建设项目管理流程图-(1190)
- 格式:doc
- 大小:1.80 MB
- 文档页数:6
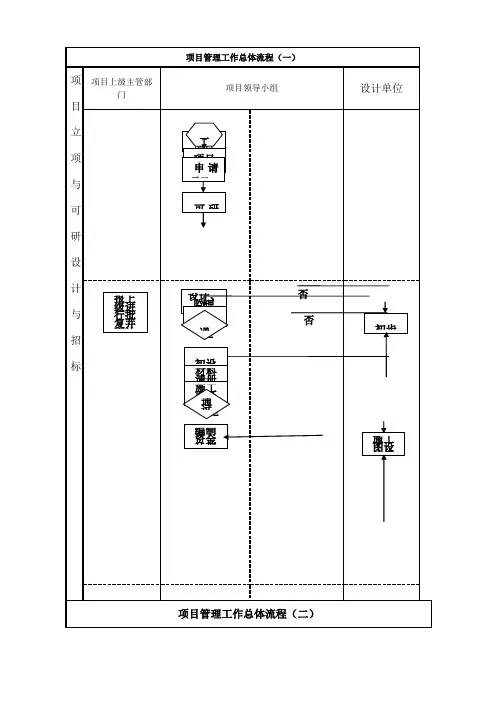
项目管理工作总体流程(一)项目上级主管部门项目领导小组设计单位项目\立项与可研项目可研申请项目核准项目可研评审可研批复设计与招标报上级进行批复并下达实施项目初设批复施工图及预算审查材料清册技术协议设计、监理招标配合初步设计施工图设计及预算编制资金计划口是初设评审项目管理工作总体流程(二)项目上级王项目领导小组监理单位施工单位管部门批复并下达项目建设资金建设施工合同管理进度管理安全管理质量管理土建(基础施工)造价管理技术管理档案管理安装(杆塔组立)调试(架线附件)安监员项目领导小组参建单位监督检查工程安全管理体的建立和运行项目刖期及施工准备阶段开始监理项目部否否I+I编制安全监理工作方案,建立安全管理台账建立安全管理制度和安全管理台账审批参建单位的安全文明施工策划开工前,召开第一次安全会议督促、检查参建单位编制安全管理制度、台账及危险点预控措施符合要求达到安全开工条件条件建立安全管理网络文明施工施工项目部编制安全文明施工实施细则方案及危险点预控措施,建立安全管理台账修改完善1 ‘施工项目部监理项目部开工前,落实安全文明措施,落实安全会议精神和风险、应急、分包等管理措施■审核安措费使用情况,对现场安全文明施工条件及措施落实情况进行把关整改完善安监员项目领导小组参建单位检查指导项目安全管理定期召开安全会议组织开展安全管理活动项冃施工及竣工阶段总结并制定安全管理改进计4 戈U 监督改进落实情况并提出预防措施组织月度和随机安全检查监督指导项目问题整改定期开展危险点预控管理分包管理评价,总结上报落实季度及专 f项安全大检查监理项目部监督检查项目施工现场安全文明状况,对重要工序、危险点、特殊作业实施旁站,协调交叉作业和工序交接中安全文明施工问题施工项目部每月开展安全教育,开展安全检查活动,落实安全会议决定和安评、危险点、应急和分包管理制度和措施,实行隐患整改闭环管理,保持安全文明施工环境对检查和评价中存> 在的隐患进行整改闭环否----------- ►继续整顿持续动态改进保持良好按文明施工环境上级主管部门加强设备采购质量管理和监造工作项目质量管理工作总体流程(一)工程实施阶段项目造价管理工作总体流程(一)可编辑范本上级主管部 项目领导小组 监理单位 参建单位 刖 期 阶 段 V 初 步 设 计 阶 段 组织可研 估算工作 组织初步 设计评审 批复初步 设计 设计单位编制 初步设计概算 设计单位配合 初步设计评审 -施工图设计阶段 组织施 及预算 参与施工图 及预算评审 芷编制 预算 编制底标,组织 施工单位招标 批复施工 图预算 审查批准支付审批重大设 计变更预算。
1、工程项目管理总流程2、建设工程政府部门审批流程3、招标工作程序4、监理工作程序5、质量控制程序6、工期控制程序7、成本控制程序8、重要材料控制程序9、设计变更程序10、隐蔽工程验收程序11、竣工验收程序12、合同订立程序13、信息、资料管理程序◆工程项目管理总流程建设工程审批流程◆招标工作程序◆监理工作程序总 监 理 工 程 师建 立 项 目 监 理 部编 制 监理规划按 工 程 进 度 分 专 业编 制 监 理 实 施 细 则参加业主主持召开的第一次工地会议建立监理任务完成后 向业主提交工程监理档案资料质量控制程序质 量 控 制事先控制质量预控制组织图纸会审和设计交底审批施工 组织设计 审查质量体系 检 查 监 督组织机构工序管理质量自检上 岗 证施工设备测量定位工序质量跟踪控制 事中控制施工控制 检查原材料构审查设计变工程更改检查验收隐蔽签认分部分项工程质量签订装饰工程分析处理质量工期控制程序签订承包合同(业主与施工单位)编制施工进度计划(施工单位)基础工程主体工程安装工程装饰装修工程审查施工进度计划(项目管理部)编制年/季/月度实施计划(施工单位)审查施工计划(项目管理部)➢同意否NO YES同意否 NO YES动态管➢➢ ➢ ➢➢投资控制程序投资预控(事先)重要材料控制程序 竣工验收决算(事后)实现投资控制目标材料进场前提出材料使用计划、村质试验报告专业监理工程师审查报告监理工程师发现疑问 则承包单位重新检验批准报告、同意材料进场专业监理工程师再次审查申 报是再次 申➢➢隐蔽工程验收程序设计变更程序设 计 单 位 提 出 设 计 变 更监 理 工 程 师 从 质 量 、 进 度 、 投 资 控 制 角 度 审 查➢重 大 修 改 与 业 主 磋 商 并 取 得 业 主 的 认 可通 知 承 包 单 位 进 行 造 价 及 工 期 的 估 算根据合同条款核定承包单位的造价和工期的增减批准承包单位实施设计变更➢是否隐蔽工程验收程序业主抽查竣工验收程序 承包单位验收合格后报送验收资料监理工程师对承包单位报送的竣工资料进行审查有问题总监理工程师组织专业监理工程师对工程质量进行竣工预验收监理工程师就存在的问题要求承包单位及时整改➢否总监签暑工程竣工报验单合同订立程序信息、资料管理程序表示文件、档案资料的收集表示文件、档案资料的发送。
_________________ 开发有限公司工程项目管工作流程编制人:年月曰、建设工程审批流程二、招标工作程序三、质量控制程序四、工期控制程序五、成本控制程序六、重要材料控制程序七、设计变更程序八、隐蔽工程验收程序九、竣工验收程序十、信息、资料管理程序建设工程审批流程建设工程设计方案审查建设工程规划许可证施工图审查WORD格式可编辑J竣工测量、规划验收、招标(施工、设计、监理、勘探等)工作程序督监查检三、质量控制程序质量控制审查质量体系审批施工 组织设计组织图纸会审 和设计交底事先控制测量定位施工设备 上岗证 质量自检 工质量预控制工序质量跟踪控制分析处理质量事故签订装饰工程样板签认分部分项工程质量检查验收隐蔽工程审查设计变更工程更改检查原材料构配件事中控制施工控制竣工验收编制织专业知识整理分享验竣事 工后 控控 制制WORD 格式可编辑ES否Y意 同 S No 否YE ——意I Y同四、工期控制程序签订承包合同(业主与施工单位)编制施工进度计划(施工单位)审查施工进度计划(项目管理部)编制年/季/月度/周实施计划(施工单位)审查施工计划(项目管理部)实施进度计划(施工单位)检查计划实施情况(项目管理部)清表工程土方工程房建工程市政道路工程----------- 修改实施进度计划— 审查施工措施_____ — 检查材料、施工设施—检查劳动力落实情况 --- 组织协调各方关系动态管理跟踪控制实际值与计划值对比(项目管理部) ------------- 偏离否YESWORD格式可编辑五、投资控制程序投资预控(事先)优化设计概、预算审查施工招标施工图会审择优选择承建单位动态控制(事中)审查材料、设备订货审查设计变更工程更改审查合同价分解实现投资控制目标六、重要材料控制程序材料进场前提出材料使用计划、村质试验报告申报监理工程师发现疑问专业监理工程师审查报告 ---------------------- 则承包单位重新检验再是次申批准报告、同意材料进场_______________________ 专业监理工程师再次审查不批准承包单位用村,指令并监督不合格材料运出现场业主抽查七、设计变更程序设计单位提出设计变更监理工程师从质量、进度、投资控制角度审查重大修改与业主磋商并取得业主的认可通知承包单位进行造价及工期的估算根据合同条款核定批准承包单位实施设计变更八、隐蔽工程验收程序承包单位自检合格并提交有质检人员签字的隐检记录申报否监理工程师发现不符合要求时退回承包单位重新进行隐检监理工程师审查隐检记录并进行现场随机抽查核验是监理人员复核认可监理工程师批准隐检记录并签字认可承包单位取得隐检认可后进入下道工序施工专业知识整理分享九、竣工验收程序承包单位验收合格后报送验收资料一有问题监理工程师对承包单位报送的竣工资料进行审查总监理工程师组织专业监理工程师对工程质量进行竣工预验收监理工程师就存在的问题要求承包单位及时整改总监签暑工程竣工报验单并提出工程质量评估报告承包单位提出竣工验收申请监理工程师审查申请施工、监理、设计单位参加业主组织竣工验收专项核验(消防等)对验收中提出的问题,监理机构应要求总体核验承包单位进行整改总监会同参加验收的各方签署竣工验收报告竣工验收意见报质监站备案WORD格式可编辑十、信息、资料管理程序表示文件、档案资料的发送建设单位技术负责人设计单位投资管理监理单位总承包单位工程分包单位材料供应单位其他部门。
开始项目可研项目可研评审可研批复申请项目核准制定物资采购计划物资采购设计、监理招标配合初设评审通过初设批复材料清册技术协议施工图及预算审查通过编制资金计划A施工图设计及预算初步设计图 1-1 项目管理工作总体流程(一)施工协调管理流程图 工程指挥部监理单位施工单位补充物资采购A初设材料清册与施工图材料清册对比编制并下达工程进度计划落实开工条件满足合同管理进度管理安全管理质量管理造价管理技术管理档案管理土建 (基础施工)安装 (杆塔组立)调试 (架线附件)竣工验收通过启动投运工程结算资料移交竣工决算资产移交工程结算审计结束评价考核图1-2 项目管理工作总体流程(二)审批工程开工报审表召开工程例会,解决相关施工出现的问题审核工程开工报审表提出相关需要施工单位解决的施工问题是否下达工程暂停令下达工程暂停令配合协调解决问题审批复工申请结束开始办理开工手续组织编写工程开工报审表组织工程开工负责落实解决影响工程施工的相关事项确认整改完成后提出复工申请参加启动工作图1-3 施工协调管理流程汇总物资、施工、监理月报,编制《电网建设月报》,每月5日前报工程指挥部审查施工月报,并编制监理月报,每月27日前报工程部开始编制月报(包括各个专业本月工作情况,存在的困难和问题以及相应对策,下月进度计划),每月23日前报监理单位图1-4 工程建设月报上报流程开始提出档案管理的目标计划及要求工程竣工档案移交至公司档案室结束审查工程竣工档案接受工程竣工档案移交审核相关文档审核工程竣工档案确认工程竣工档案移交确认工程档案管理目标、档案范围及要求收集自身负责的所有相关文档案及影像资料做好纸质文档的收发保管工作,每月整理影像资料按要求对文件资料进行归档工作经施工单位审核后上报验竣工资料工程竣工档案移交图1-5 档案信息管理流程监督检查工程安全管理体的建立和运行符合要求审批参建单位的安全文明施工策划划建立安全管理网络开始建立安全管理制度和安全管理台账督促、检查参建单位编制安全管理制度、台账及危险点预控措施A达到安全文明施工开工条件条件开工前,召开第一次安全会议修改完善监理项目部编制安全监理工作方案,建立安全管理台账施工项目部编制安全文明施工实施细则方案及危险点预控措施,建立安全管理台账施工项目部开工前,落实安全文明措施,落实安全会议精神和风险、应急、分包等管理措施监理项目部审核安措费使用情况,对现场安全文明施工条件及措施落实情况进行把关整改完善图 2-1 项目安全管理工作总体流程(一)全过程安全管理监督检查指导组织开展各类安全检查总结并制定安全管理改进计划检查指导项目安全管理监督改进落实情况并提出预防措施结束A组织实施全过程安全管理定期召开安全会议组织开展安全管理活动组织月度和随机安全检查落实季度及专项安全大检查定期开展危险点预控管理分包管理评价,总结上报监督指导项目问题整改符合要求分析总结评价结果总结上报监理项目部监督检查项目施工现场安全文明状况,对重要工序、危险点、特殊作业实施旁站,协调交叉作业和工序交接中安全文明施工问题施工项目部每月开展安全教育,开展安全检查活动,落实安全会议决定和安评、危险点、应急和分包管理制度和措施,实行隐患整改闭环管理,保持安全文明施工环境对检查和评价中存在的隐患进行整改闭环继续整顿持续动态改进保持良好按文明施工环境图2-2 项目安全管理工作总体流程(二)加强设备采购质量管理和监造工作建立设计质量管理制度定期随机检查在建工程质量开始建立质量管理体系及规章制度对项目质量进行全过程管理组织中间验收A设计单位保证供图进度和质量;派驻工地代表;及时答复参建各方提出的设计问题;参加歌唱质量检查歌唱质量事故调查等工作施工单位建立健全施工质量管理体系和制度;制定落实质量保证措施;加强分包质量管理;严格工序管理,组织好内部质量检查、验收工作,参加工程质量检查,质量事故调查和处理等工作;完善施工质量档案管理监理单位建立健全监理质量控制保证体系,制定见证、旁站、巡视、平行检验等监理工作制度,并确保有效实施;审查施工单位的《施工组织设计》等有关文件;组织检查验收进场设备和材料;严格施工过程质量控制,定期编写过程质量报告;组织或参加过程质量检查,过程质量事故调查和处理;建立健全工程监理质量档案设备供应公司严格执行国家及行业标准、合同规定,提供全套产品质量证明文件,并按合同规定提供技术培训和现场安装试验技术指导及相关服务,配合监造工作调试试验单位严格执行有关规定,编制调试试验大纲,提交准确、齐全的工程调试、试验报告B图3-1项目质量管理工作总体流程(一)项目质量管理工作总体流程(二)工程指挥部参建单位批准工程项目启动计划书参加工程竣工验收工程竣工启动验收编制工程项目启动计划书组织工程质量竣工验收AB汇总竣工验收出现的缺陷并组织复检配合做好复检工作在规定的时限内完成消陷工作结束负责投产后的质量保修工作图3-2 项目质量管理工作总体流程(二)建设部组织施工图交接备案组织竣工验收组织技术交底批准工程质量控制跟踪参与竣工验收参与技术交底审批质量通病防范措施审批施工组织设计审查质量管理体系1、组织机构2、工序管理3、质量自检检查监督1、上岗证2、施工设备监督管理1、检查材料、设备2、审查设计变更、工程变更3、检查验收隐蔽工程4、签认分部分项工程质量5、分析处理质量事故组织中间验收或初检结束配合中间验收或初检开始质量回访配合竣工验收三级自查关键工序过程控制关键材料跟踪管理1、编制施工组织设计2、编制质量通病防范措施3、建立质量管理体系成立施工项目部图3-3 施工质量控制管理流程项目造价管理工作总体流程(一)领导小组工程指挥部监理单位参建单位建设部工程部组织可研估算工作开始批复初步设计组织初步设计评审设计单位配合初步设计评审设计单位编制初步设计概算组织施工图及预算会审批复施工图预算编制底标,组织施工单位招标参与施工图及预算评审设计单位编制施工图预算审批重大设计变更预算审核工程变更重大设计变更审查批准支付审查工程变更预算A审核申请施工单位申请支付工程进度款工程变更费用施工单位申请支付工程预付款施工单位申请其他付款施工单位提出工程变更图4-1项目造价管理工作总体流程(一)结束竣工决算及审计审查批准A汇总工程变更、签证、索赔等资料,对资料的完整性进行审查通过审查签署审查意见编制施工结算书,提出竣工结算申请图4-2项目造价管理工作总体流程(二)审核批准监督材料供应、劳务分包款项的支付情况审查付款申请办理预付款进度款开始编制工程预付款报审表,申请支付工程预付款根据工程施工完成形象进度编制工程进度款报审表审核材料供应、劳务分包提出的付款申请支付预付款进度款结束工程变更管理工作流程图领导小组工程指挥部监理单位施工单位工程部同意是是否图4-3 工程进度款管理工作流程实行重大工程变更审批规定审核是否重大工程变更现场监督实施是否同意工程变更从质量、进度、投资控制角度审查监督实施结束报送工程变更单汇总表组织实施工程变更编制工程变更预算书开始提出工程变更图4-4 工程变更管理工作流程开始优化设计施工图会审概、预算审查1、审查竣工决算2、补偿与索赔3、扣质保金施工招标择优选择施工单位1、审查合同价分解2、审查设计变更、工程变更3、核对材料、设备订货进度款支付动态控制(事中)实现成本控制目标结束竣工验收决算(事后)根据施工合同组建项目部,作出成本管理规划及资金使用计划合同归档并对价款使用进行控制、分析、反馈图4-5 成本控制管理工作流程根据工程立项批复编制工程前期进度计划每月汇总各个工程进度执行情况汇总排定项目设计计划根据施工图编制工程进度计划编制《工程物资供应协调表》汇总工程施工进度计划和物资供应协调表每月检查进度执行情况,及时纠正偏差1、审查施工措施2、检查材料、施工设施3、检查劳动力落实情况4、组织协调各方关系结合月度存在的问题及相应对策,汇总、编制《电网建设月报》工程各节点进度变更造成项目进度变化,实际值与计划值对比是否影响总体进度进度控制审核工程施工进度计划是否满足工期要求审核调整后施工进度计划编制《工程施工进度计划》结束实施施工进度计划报出形象进度报表对相应施工进度计划进行调整图5-1 项目进度管理工作总体流程项目设备、材料供应计划管理流程图物资公司工程指挥部监理单位施工单位工程部否是物资公司采购签订施工合同编制甲供材料设备合同交货计划审批甲供材料设备需求或补充计划通知工程部对进场材料设备验收审核乙供材料工器具需求计划并检查落实审核甲供材料设备需求计划计划审核材料设备补充计划计划组织各参建单位对进场材料设备进行验收质量是否符合规定对质量不符合要求的材料设备提出处理意见结束材料进货检验(设备开箱)流程图物资公司工程指挥部监理单位施工单位工程部否是交付使用安装甲供材料设备补充计划编制施工工器具需求计划编制乙供材料计划编制甲供材料设备需求计划图5-2 项目设备、材料供应计划管理流程按意见处理参加设备开箱验货组织验货对不合格设备提出处理意见并清出现场开始物资(设备)到货,提出物资使用计划,各种试验报告,申请验货进货检验设备开箱是否合格物资发放建立跟踪记录结束乙供材料存在缺陷联系厂家处理进入设备合格区并建立台账图5-3 材料进货检验(设备开箱)流程建设管理单位建设管理单位电网规划可研技术管理设计单位工程部建设部参与施工图设计评审组织初步设计评审施工图评审设计单位建设部工程部设计交底、技术交底、设备技术审核技术方案审核工程变更管理监理单位施工单位设计单位工程部工程部建设部建设部工程部技术总结参与工程启动组织工程启动参与工程竣工验收组织工程竣工验收施工单位设计单位监理单位图6-1 项目技术管理工作总体流程文档附件上传成功,但与已有文档重复,只能自己阅读!文档附件上传成功,但与已有文档重复,只能自己阅读!文档附件上传成功,但与已有文档重复,只能自己阅读!文档附件上传成功,但与已有文档重复,只能自己阅读!文档附件上传成功,但与已有文档重复,只能自己阅读!文档附件上传成功,但与已有文档重复,只能自己阅读!文档附件上传成功,但与已有文档重复,只能自己阅读!文档附件上传成功,但与已有文档重复,只能自己阅读!文档附件上传成功,但与已有文档重复,只能自己阅读!文档附件上传成功,但与已有文档重复,只能自己阅读!文档附件上传成功,但与已有文档重复,只能自己阅读!文档附件上传成功,但与已有文档重复,只能自己阅读!文档附件上传成功,但与已有文档重复,只能自己阅读!文档附件上传成功,但与已有文档重复,只能自己阅读!文档附件上传成功,但与已有文档重复,只能自己阅读!文档附件上传成功,但与已有文档重复,只能自己阅读!文档附件上传成功,但与已有文档重复,只能自己阅读!文档附件上传成功,但与已有文档重复,只能自己阅读!文档附件上传成功,但与已有文档重复,只能自己阅读!文档附件上传成功,但与已有文档重复,只能自己阅读!文档附件上传成功,但与已有文档重复,只能自己阅读!文档附件上传成功,但与已有文档重复,只能自己阅读!文档附件上传成功,但与已有文档重复,只能自己阅读!文档附件上传成功,但与已有文档重复,只能自己阅读!文档附件上传成功,但与已有文档重复,只能自己阅读!文档附件上传成功,但与已有文档重复,只能自己阅读!文档附件上传成功,但与已有文档重复,只能自己阅读!文档附件上传成功,但与已有文档重复,只能自己阅读!文档附件上传成功,但与已有文档重复,只能自己阅读!文档附件上传成功,但与已有文档重复,只能自己阅读!文档附件上传成功,但与已有文档重复,只能自己阅读!文档附件上传成功,但与已有文档重复,只能自己阅读!文档附件上传成功,但与已有文档重复,只能自己阅读!文档附件上传成功,但与已有文档重复,只能自己阅读!文档附件上传成功,但与已有文档重复,只能自己阅读!文档附件上传成功,但与已有文档重复,只能自己阅读!文档附件上传成功,但与已有文档重复,只能自己阅读!文档附件上传成功,但与已有文档重复,只能自己阅读!文档附件上传成功,但与已有文档重复,只能自己阅读!文档附件上传成功,但与已有文档重复,只能自己阅读!文档附件上传成功,但与已有文档重复,只能自己阅读!文档附件上传成功,但与已有文档重复,只能自己阅读!文档附件上传成功,但与已有文档重复,只能自己阅读!文档附件上传成功,但与已有文档重复,只能自己阅读!文档附件上传成功,但与已有文档重复,只能自己阅读!文档附件上传成功,但与已有文档重复,只能自己阅读!文档附件上传成功,但与已有文档重复,只能自己阅读!文档附件上传成功,但与已有文档重复,只能自己阅读!文档附件上传成功,但与已有文档重复,只能自己阅读!文档附件上传成功,但与已有文档重复,只能自己阅读!文档附件上传成功,但与已有文档重复,只能自己阅读!文档附件上传成功,但与已有文档重复,只能自己阅读!文档附件上传成功,但与已有文档重复,只能自己阅读!文档附件上传成功,但与已有文档重复,只能自己阅读!文档附件上传成功,但与已有文档重复,只能自己阅读!文档附件上传成功,但与已有文档重复,只能自己阅读!文档附件上传成功,但与已有文档重复,只能自己阅读!文档附件上传成功,但与已有文档重复,只能自己阅读!文档附件上传成功,但与已有文档重复,只能自己阅读!文档附件上传成功,但与已有文档重复,只能自己阅读!文档附件上传成功,但与已有文档重复,只能自己阅读!文档附件上传成功,但与已有文档重复,只能自己阅读!。
建筑公司项目管理流程图建筑公司项目管理流程图如下:1.签订施工总承包合同,任命项目经理,组建项目经理部。
项目经理组织编制《项目管理实施规划》,董事长与项目经理签订《项目管理目标责任书》。
在此阶段,需要办理各项施工手续,编制施工组织设计,对项目相关岗位人员进行培训,进行项目施工现场准备和项目施工技术准备。
同时,需要编制《施工组织设计》。
2.对项目进行施工过程控制。
在施工过程中,需要进行施工图纸、图纸会审、设计变更,安全员巡日检查对违反安全生产的行为进行制止和处罚。
需要编写分项工程技术质量、安全交底,并对工长进行书面交底并签字。
工长布置施工任务,进行班前交底。
质检员对重点部位进行监控整修进行施工过程。
分项组织对本小组作业分段进行检查,检验不合格完成工作量70%-80%工长组织组长互检查。
检验不合格整修进行完成工作量80%-90%,质量员组织工长进行专检查,技术员对关键部行复合。
检验不合格整修进行报监理、甲方验收。
检验不合格整修进行进入下道工序施工。
3.项目阶段考核项目竣工验收,移交资料和工程。
项目经理部施工总结,按照《项目管理目标责任书》对经理部进行考核、评价、兑现。
项目经理部解体。
项目竣工后进行回访、保修。
附图3、2为大型或涉及论论证的施工组织设计或方案的审批流程图。
在项目部开工前15日之内,需要编制施工组织设计或施工方案。
合约部参与优化,工程部审核、优化,安监部参与优化,总工程师审批,监理审批。
项目技术负责人对施工人员进行施工组织设计/方案交底、实施。
项目管理部、工程部存档。
附图3、3为施工过程控制流程(三检制度)。
需要对施工过程进行控制,包括施工图纸、图纸会审、设计变更等。
安全员巡日检查对违反安全生产的行为进行制止和处罚。
需要编写分项工程技术质量、安全交底,并对工长进行书面交底并签字。
工长布置施工任务,进行班前交底。
质检员对重点部位进行监控整修进行施工过程。
分项组织对本小组作业分段进行检查,检验不合格完成工作量70%-80%工长组织组长互检查。
建设单位(业主方)工程项目管理工作流程图图1-2 项目管理工作总体流程(二)图1-3 施工协调管理流程图1-4 工程建设月报上报流程图1-5档案信息管理流程竣工审查工程竣工档案 审核工程竣工档案工程竣工档案移交提出档案管理的目标计划及要求收集自身负责的 所有相关文档案 及影像资料经施工单位审核后 上报验竣工资料做好纸质文档的 收发保管工作, 每月整理影像资按要求对文件资料 进行归档工作工程竣工档案移交・ 至公司档案室 确认工程竣工档案w 移交接受工程竣工档案彳移交确认工程档案管理目 标、档案范围及要求项目安全管理工作总体流程(一)图2-1 项目安全管理工作总体流程(一)***安全监察部 监督检查工程 安全管理体的 建立和运行参建单位项 刖 期 及 施准 备 阶 段 &&&图2-2 项目安全管理工作总体流程(二)图3-1 项目质量管理工作总体流程(一)图3-2 项目质量管理工作总体流程(二)图3-3 施工质量控制管理流程图4-2 项目造价管理工作总体流程(二)图4-3工程进度款管理工作流程图4-4 工程变更管理工作流程图4-5成本控制管理工作流程***图5-1 项目进度管理工作总体流程****** 否是否 合格 材料进货检验(设备开箱)流程图工程指挥部监理单位施工单位物资公司工程部开始组织验货按意见处理W是结束进货检验 设备开箱参加设备 开箱验货对不合格设备 提出处理意见 并清出现场物资发放 建立跟踪记录进入设备合格 区并建立台账乙供材 料存在 缺陷联 系厂家 处理物资(设备)到货, 提出物资使用计 划,各种试验报告,申请验货图5-3 材料进货检验(设备开箱)流程***图6-1项目技术管理工作总体流程。
建设项目管理流程图-(1190)学校建设项目管理流程图建设项目的工作流程如下:建设项目划分为项目立项、工程设计与概预算、工程招标、工程建设与竣工决算五个主要环节,其业务流程图如下分别如下:建设项目立项流程节点说明:A1 :建设单位提出项目申报需求,编制项目建议书;B1:决策机构对项目建议书进行审批;D1:政府发改部门对项目立项申请进行审批;A2 :建设单位编制项目可行性研究报告;- 1 -B2:决策机构对项目可行性报告进行审批;D2:政府发改部门对项目可行性研究报告进行审批;A3:项目可行性研究报告批复后,建设单位应到国土部门办理征地许可(如涉及征占用林地,需到林业或园林绿化部门办理征占林地许可)、到规划部门办理建设用地规划许可、到建设部门办理房屋征收许可和征收结案证明,之后到国土部门办理划拨用地许可和国有土地使用者等手续。
建设项目设计和概预算环节流程节点说明:- 2 -A1 :建设单位组成勘探、设计单位招标;D1:招标代理机构组织招标;C1:中标设计单位进行项目设计;A2 :建设单位组织编制项目概预算;B2:决策机构对项目初步设计和投资概预算进行审批;D2:政府发改部门对项目初步设计和投资概预算进行审批;A2 :项目初步设计方案和投资概预算批复后,建设单位应当人防部门办理人防工程初步设计审核,到规划部门办理建设工程规划许可证。
建设项目招标子流程节点说明:- 3 -A1 :建设单位基建部门组织招标文件,制定标底;B1:决策机构对招标文件和标底进行审批;E1:招标代理机构受委托发布招标公告或邀请函;A2 :建设单位公布标底;E2:招标代理机构组织开标、评标和定标,公布中标单位;A3 :建设单位与中标单位签订施工、监理合同。
A1 :建设单位到建设部门办理建设工程施工许可证;A2 :建设单位组织项目实施;D2:施工单位组织工程施工,按工程进度提出款项拨付申请;- 4 -E2:监理单位对工程施工进行监理,并在有关文件上签字;B2:财务部门根据施工单位的申请和监理单位的相关文件对款项拨付申请进行审核;C2:建设单位决策机构对款项拨付申请进行审批;B2:建设单位财务部门拨付工程款竣工验收子流程节点说明:A1 :建设单位组织本单位、施工单位、监理单位、政府有关部门进行竣工验收;C1:审计部门实施财务决算审计;- 5 -A1 :建设单位根据审计部门的审计结果和项目会计核算结构,组织编制竣工财务决算书;E1:发改部门审批竣工财务决算书;B2:建设单位财务部门对根据经批复的竣工财务决算书进行账务处理;A2 :建设单位基建部门组织资产和工程档案移交。
制定物资采购计划
物资采购建设单位工程项目管理工作流程图
项目可行性研究
项目可研评审
申请项目核准
可研批复
设计、监理
招标配合
初步设计
初设评审
否
通过
初设批复
施工图设计
材料清册及预算技术协议
施工图及
预算审查
否
通过
编制资金计划A
竣工验收
通过
启动搬运
工程结算资料移交
工程结算审计
竣工决算
资产移交
A
初设材料清册
与施工图材料
清册我对比
编制并下达
工程进度计
落实开工
条件
否
满足
是
土建(基础设施)
土建(基础设施)合同管理
进度管理土建(基础设施)安全管理
质量管理
造价管理
技术管理
否
评价考核
结束。
学校建设项目管理流程图
建设项目的工作流程如下:
建设项目划分为项目立项、工程设计与概预算、工程招标、
工程建设与竣工决算五个主要环节,其业务流程图如下分别如下:
建设项目立项流程节点说明:
? A1 :建设单位提出项目申报需求,编制项目建议书;
? B1:决策机构对项目建议书进行审批;
? D1:政府发改部门对项目立项申请进行审批;
? A2 :建设单位编制项目可行性研究报告;
- 1 -
? B2:决策机构对项目可行性报告进行审批;
? D2:政府发改部门对项目可行性研究报告进行审批;
? A3:项目可行性研究报告批复后,建设单位应到国土部门办
理征地许可(如涉及征占用林地,需到林业或园林绿化部门办理
征占林地许可)、到规划部门办理建设用地规划许可、到建设部门办理房屋征收许可
和征收结案证明,之后到国土部门办理划拨用地许可和国有
土地使用者等手续。
建设项目设计和概预算环节流程节点说明:
- 2 -
? A1 :建设单位组成勘探、设计单位招标;
? D1:招标代理机构组织招标;
? C1:中标设计单位进行项目设计;
? A2 :建设单位组织编制项目概预算;
? B2:决策机构对项目初步设计和投资概预算进行审批;
? D2:政府发改部门对项目初步设计和投资概预算进行审批;
? A2 :项目初步设计方案和投资概预算批复后,建设单位应
当人防部门办理人防工程初步设计审核,到规划部门办理建设工
程规划许可证。
建设项目招标子流程节点说明:
- 3 -
? A1 :建设单位基建部门组织招标文件,制定标底;
? B1:决策机构对招标文件和标底进行审批;
? E1:招标代理机构受委托发布招标公告或邀请函;
? A2 :建设单位公布标底;
? E2:招标代理机构组织开标、评标和定标,公布中标单位;
? A3 :建设单位与中标单位签订施工、监理合同。
? A1 :建设单位到建设部门办理建设工程施工许可证;
? A2 :建设单位组织项目实施;
? D2:施工单位组织工程施工,按工程进度提出款项拨付申请;
- 4 -
? E2:监理单位对工程施工进行监理,并在有关文件上签字;
? B2:财务部门根据施工单位的申请和监理
单位的相关文件对款项拨付申请进行审核;
? C2:建设单位决策机构对款项拨付申请进行审批;
? B2:建设单位财务部门拨付工程款
竣工验收子流程节点说明:
? A1 :建设单位组织本单位、施工单位、监理单位、政府有
关部门进行竣工验收;
? C1:审计部门实施财务决算审计;
- 5 -
? A1 :建设单位根据审计部门的审计结果和项目会计核算结构,组织编制竣工财务决算书;
? E1:发改部门审批竣工财务决算书;
? B2:建设单位财务部门对根据经批复的竣工财务决算书进行账务处理;
? A2 :建设单位基建部门组织资产和工程档案移交。
- 6 -。