炮眼布置方法及示意图
- 格式:doc
- 大小:58.00 KB
- 文档页数:2
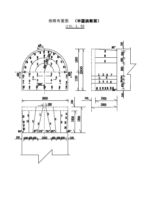
炮眼布置图(半圆拱断面)比例:1:50根据现场实际岩层硬度对炮眼个数及装药量适当增减(炮眼个数不得超过5个,装药量不超过3kg),但炮眼间距及封泥量必须符合要求。
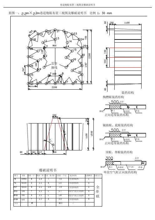
主题:炮眼掏槽已阅:517 / 回复:0 / (楼主)一、斜眼掏槽1.单斜掏槽:单斜掏槽适用于中硬及较软的岩层,当岩层中有松软的夹层和层理、节理与裂隙结构时,各掏槽眼应尽量垂直地穿过层理、节理和裂隙,并处于巷道中心线上,避免夹钎或崩倒支架。
掏槽眼数一般为1~3个,眼距为0.3~0.6 m,与工作面的平面夹角为50 °~75 °,眼深为0.8~1.5 m,装药满度系数为0.5左右。
2.扇形掏槽:适用于软岩层中有弱面可利用的巷道。
它把炮眼布置在较软的煤岩层中并成一排,炮眼向同一方向倾斜,与工作面的平面夹角一个比一个大,形成扇形。
掏槽眼的方向可随软层的位置选定,一般为3~5个,眼距为0.3~0.6 m,眼深通常为1.3~2.0 m,装药满度系数为0.5左右,各槽眼利用多段延期雷管依次起爆。
3.锥形掏槽:在只有一个自由面的坚硬岩石或均质岩石中爆破时,采用锥形掏槽。
锥形掏槽就是将几个掏槽炮眼的眼底,集中在一点附近,实行集中装药,一齐起爆的方法。
锥形掏槽可分为三眼或四眼锥形掏槽,掏槽呈锥形。
眼数、眼深和眼距根据断面大小及岩石软硬而定。
眼数一般为3~6个,多为4个。
眼口左右间距为0.8~1.2 m,上、下间距为0.6~1.0 m,眼底间距为0.1~0.2 m,眼深应小于巷道高或宽的1/2,各槽眼同时起爆,为了加深掏槽深度和循环进度,可采用分段锥形掏槽。
锥形掏槽因槽眼方向不易掌握,钻眼工作不方便,眼深受到限制,目前在巷道掘进中已很少使用。
4.楔形掏槽:楔形掏槽和锥形掏槽一样,都是尽量在炮眼底集中装药,使炸药爆炸时形成更大的威力把岩石爆破成抛掷漏斗,集中装药在眼底呈一条直线。
槽眼对称布置,分水平楔形掏槽和垂直楔形掏槽两种,均为同时起爆。
第十一章 炮眼布置图11.1半圆拱型炮眼布置图可以实现楔形斜眼掏槽方式的半圆拱断面炮眼布置图的绘制工作。
启用命令方法菜单命令:[辅助图]→[炮眼布置图]→[半圆拱]执行菜单“辅助图”→“炮眼布置图”→“半圆拱”命令,系统弹出如图11-1所示炮眼布置图对话框。
图十一-1 炮眼布置图左侧可设置相应参数;右侧为预览区,把鼠标移动到预览区,通过鼠标滚轮可以实现图形的放大缩小,鼠标右键可以满屏显示。
11.1.1巷道参数1、比例尺:绘制炮眼布置图的比例尺,同时会设置为整幅图的比例尺;2、巷道高度:巷道的净高;不包括超挖部分;3、巷道宽度:巷道净宽,不包括超挖部分;4、水沟位置:有水沟时在水沟的水平中线位置自动布置一个炮眼;设置为无水沟时,“水沟宽度”和“水沟高度”自动变为不可编辑状态。
5、水沟宽度:水沟净宽;6、水沟高度:水沟净高;16016111.1.2掏槽眼1、炮眼直径:掏槽眼的直径2、炮眼深度:垂直深度3、炮眼倾角:与巷道断面的夹角;4、水平间距L1:掏槽眼的两个眼孔的水平间距;5、垂直排距L2:掏槽眼上下两排的间距;6、距离底眼D :即距离底板的距离;7、辅助掏槽眼:需要打辅助掏槽眼时选中此复选框,同时右侧预览图中会出现两个新的掏槽眼,此即为辅助掏槽眼8、间距L3:使用辅助掏槽眼时,辅助掏槽眼的眼间距;图 十一-2 炮眼布置图-掏槽眼11.1.3辅助眼1、炮眼直径:辅助眼的直径;2、炮眼深度:垂直深度;3、外圈眼间距:外圈辅助眼上炮眼间的间距;4、眼间距:辅助眼上炮眼的间距;5、间距L1:周边眼与外圈辅助眼间的水平距离;6、间距L2:外圈辅助眼与辅助眼圈的水平距离;7、三圈辅助眼:需要打第三圈辅助眼时,勾选此复选框;8、眼间距:第三圈辅助眼的炮眼间距;9、间距L3:辅助眼圈与第三圈辅助眼的水平间距;162图11-3 辅助眼11.1.4周边眼图 十一-3 炮眼布置图-周边眼1、炮眼直径:周边眼的直径;2、炮眼深度:垂直深度;3、炮眼倾角:与巷道断面的夹角;4、眼间距:周边眼上炮眼之间的间距;5、帮距:周边眼到帮的距离。
项目二炮眼布置
知识目标:
1.掌握炮眼的种类;
2.掌握炮眼的布置原则和方法;
3.熟悉光面爆破参数选择要求。
能力目标:
1.具备绘制炮眼布置图的能力;
2.具备确定隧道爆破参数的能力。
一、知识链接
1.概念
为了取得好的爆破效果,正确指导钻爆施工,爆破参数的选择至关重要,隧道的爆破参数包含炮眼的数目、深度、布置、装药量、起爆顺序等。
其中合理炮眼布置图是控制隧道开挖作业的重点。
2.检测项目
①绘制炮眼布置图。
②检测炮眼间距。
③测量炮眼的深度。
④测量炮眼的长度。
⑤测量周边眼外插斜率。
3.量测频率
每个爆破的掌子面均需测量。
二、使用仪器设备
图1-5钢尺图
1-6 角度仪
图1-7 深度尺
三、操作步骤
1.根据隧道爆破参数设计绘制炮眼布置图。
2.绘制的隧道开挖轮廓线(已有)。
3.在隧道工作面(掌子面)布置炮眼。
4.利用钢尺检查炮眼的间距。
5.用深度尺检查炮眼深度,并填入表格内。
6.用角度仪检查周边眼的外插角。
四、注意事项
1.进洞需要做好个人防护。
2.布置炮眼时注意工作面稳定。
3.高空作业做好安全防护。
五、数据记录及处理
炮眼检查记录表。
采煤工作面的爆破工作要求及炮眼布置(一)采煤工作面的爆破工作要求采煤工作面爆破工作应满足“五不、两少、两高”的要求。
“五不”:不崩坏顶板;不崩倒、崩坏支架;不崩翻刮板输送机;不留底煤,以减少工人起底煤的工作量;不出大块煤炭,以减少工人二次破碎的工作量。
“两高”:爆破自装率高,爆破后要求煤体松动适度,使尽量多的煤落入刮板输送机,以减少人工攉煤量,同时防止把煤抛到采空区一侧,以提高煤炭采出率;炮眼利用率高,以保证采煤工作面的循环进度。
“两少”:爆破消耗的时间少,应尽量增加每一次爆破的炮眼个数,以减少放炮次数,缩短放炮的辅助时间,提高出煤工效;爆破材料消耗量少,应合理布置炮眼和装药量,降低炸药、雷管消耗量,提高经济效益。
另外,在有瓦斯、煤尘爆炸危险的工作面进行爆破作业时,还有特殊的安全要求,概括为以下基本内容:(1)有瓦斯、煤尘爆炸危险的工作面,都必须使用取得产品许可证的煤矿许用炸药和煤矿许用雷管。
(风险管理世界网-安全员之家)(2)放炮工作必须由经过专门训练、取得放炮合格证的专职放炮员担任。
放炮作业包括放炮母线连接脚线、检查线路和通电工作,只准放炮员一人操作。
(3)放炮作业时,放炮员、班组长、瓦斯检查员都必须在现场执行“一炮三检制”和“三人连锁放炮制”。
(4)装药前和放炮前后,必须检查瓦斯。
如果放炮地点20m以内瓦斯浓度达到1%时,不准装药、放炮,同时附近20m以内,都必须进行洒水降尘。
(5)炮眼封泥必须使用水炮泥,水炮泥外剩余炮眼部分,应用粘土炮泥充填封实。
严禁放糊炮和放炮出现“打筒”现象。
(6)采煤工作面可以采用分组装药,但一组装药必须一次起爆。
严禁在一个采煤工作面使用两台放炮器同时进行放炮。
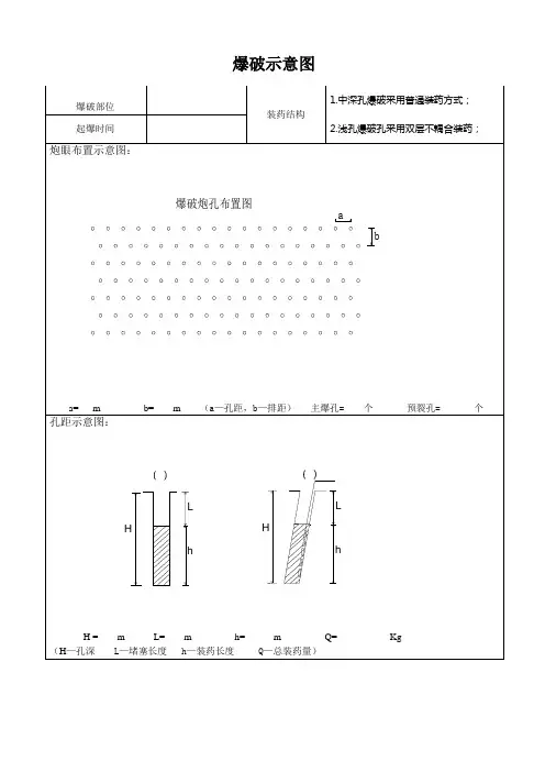
(二)采煤工作面炮眼布置方式采煤工作面炮眼布置方式一般有以下几种:(1)单排眼布置方式:在煤层厚度为1.0m以下的薄煤层或煤质松软、节理发达的中厚煤层中,可沿工作面中间打一排向下倾斜的炮眼,称为单排眼,如图5--7所示。
地震波预报孔的布置示意图
需要材料及注意事项:
1、每个掌子面需要8卷150g的乳化炸药,24个电雷管;
2、请安排好一个电工和两个炮工协作;
3、准备大约5包黄油(一斤装);
4、准备好水一桶,如果条件允许,最要是有活动的水管,并且水管能够放入炮孔中;
5、钻孔后一定要吹干净孔内岩粉和碎石,防止接收器和炸药不能放入孔内;
6、接收孔一定要用50mm的孔钻,如果没有,60mm的也可以,只是效果不好,并且接收孔一定要平
直,光滑,不能有倾角;
7、炮孔一定要用40mm的孔钻,在钻炮孔的时候,最好有一定的倾角,这样水可以灌入;
8、24个炮孔是布置在隧道的一侧,随便哪侧都行。
接收孔是隧道左右两边一边一个;
9、炮孔的间距是1.5米一个,高度为1米;
10、接收孔距最后一个炮孔的距离是20米,高度为1米;
11、第一个炮孔距掌子面距离为5~10米,如果条件不允许,就设置为10米,如果条件允许就为5米;
12、接收孔与炮孔钻孔后应该用高压水将孔冲干净。
采煤工作面的爆破工作要求及炮眼布置(一)采煤工作面的爆破工作要求采煤工作面爆破工作应满足“五不、两少、两高”的要求。
“五不”:不崩坏顶板;不崩倒、崩坏支架;不崩翻刮板输送机;不留底煤,以减少工人起底煤的工作量;不出大块煤炭,以减少工人二次破碎的工作量。
“两高”:爆破自装率高,爆破后要求煤体松动适度,使尽量多的煤落入刮板输送机,以减少人工攉煤量,同时防止把煤抛到采空区一侧,以提高煤炭采出率;炮眼利用率高,以保证采煤工作面的循环进度。
“两少”:爆破消耗的时间少,应尽量增加每一次爆破的炮眼个数,以减少放炮次数,缩短放炮的辅助时间,提高出煤工效;爆破材料消耗量少,应合理布置炮眼和装药量,降低炸药、雷管消耗量,提高经济效益。
另外,在有瓦斯、煤尘爆炸危险的工作面进行爆破作业时,还有特殊的安全要求,概括为以下基本内容:(1)有瓦斯、煤尘爆炸危险的工作面,都必须使用取得产品许可证的煤矿许用炸药和煤矿许用雷管。
(风险管理世界网-安全员之家)(2)放炮工作必须由经过专门训练、取得放炮合格证的专职放炮员担任。
放炮作业包括放炮母线连接脚线、检查线路和通电工作,只准放炮员一人操作。
(3)放炮作业时,放炮员、班组长、瓦斯检查员都必须在现场执行“一炮三检制”和“三人连锁放炮制”。
(4)装药前和放炮前后,必须检查瓦斯。
如果放炮地点20m以内瓦斯浓度达到1%时,不准装药、放炮,同时附近20m以内,都必须进行洒水降尘。
(5)炮眼封泥必须使用水炮泥,水炮泥外剩余炮眼部分,应用粘土炮泥充填封实。
严禁放糊炮和放炮出现“打筒”现象。
(6)采煤工作面可以采用分组装药,但一组装药必须一次起爆。
严禁在一个采煤工作面使用两台放炮器同时进行放炮。
(二)采煤工作面炮眼布置方式采煤工作面炮眼布置方式一般有以下几种:(1)单排眼布置方式:在煤层厚度为1.0m以下的薄煤层或煤质松软、节理发达的中厚煤层中,可沿工作面中间打一排向下倾斜的炮眼,称为单排眼,如图5--7所示。