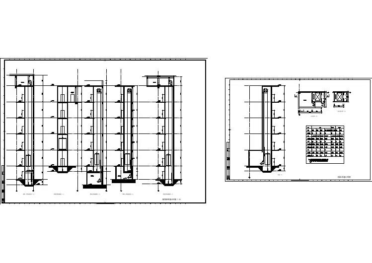
自动扶梯CAD图纸
- 格式:dwg
- 大小:239.02 KB
- 文档页数:1
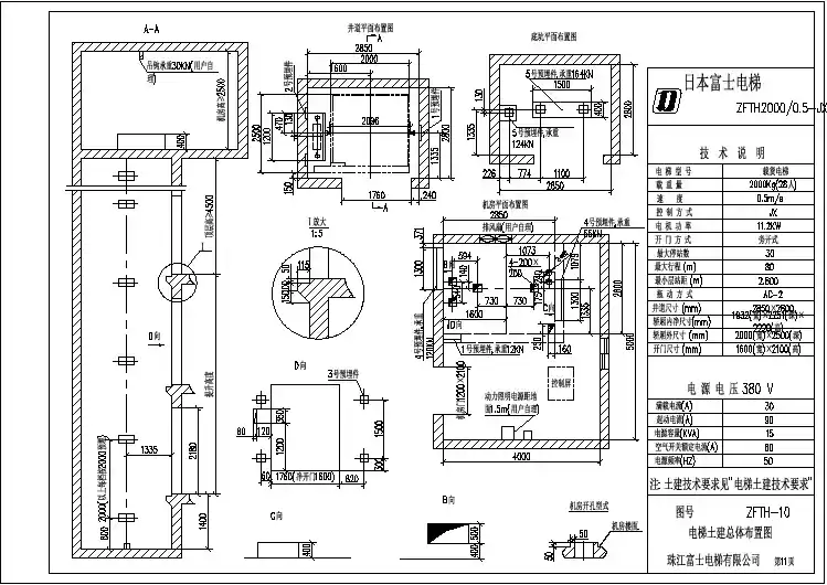
扶梯安装施工组织设计(施工方案)项目名称:编制:审核:批准:电梯安装有限公司2014年 03 月06 日目录一、编制依据文件二、工程概况三、工程组织3.1人员组织3.2施工过程控制3.3施工质量管理3.4施工安全管理四、安装阶段的成品保护问题五、调试和验收六、工程竣工移交七、附件及图纸附件一自动扶梯安装工艺流程图一、编制依据:1.国家标准《电梯制造与安装安全规范》 GB7588-20032.国家标准《电梯安装验收规范》 GB10060-933.国家标准《建筑工程施工质量验收统一标准》 GB50300-20014.国家标准《电梯工程施工质量验收规范》 GB50310-20025.国家标准《电梯技术条件》 GB10058-976.国家标准《自动扶梯和自动人行道的制造与安装安全规范 GB16899-977.发包商随机提供的营业设计图纸8.产品销售合同与产品安装合同9.施工联系单及有关会议纪要10.本公司质量管理体系要求二、工程概况:工程名称:我公司将始终贯彻“顾客满意、合法经营,是我们永远恒的追求”的质量方针,严格按照公司质量管理体系的要求,精心组织、合理安排,避免发生等工、怠工现象,确保施工进度与安装质量和安全。
三、工程组织1.1施工质量管理网络图2、施工过程控制2.1自动扶梯的土建测量2.1.1常用机具钢卷尺、线坠、经纬仪(或全站仪)。
2.1.2施工条件(1)现场施工用电、照明用电必须符合国标《施工现场临时用电安全技术规范》的要求。
(2)安装口内及四周无杂物、积水。
(3)扶梯上、下支撑面预埋钢板符合图纸要求。
(4)土建单位已提供明显的水平基准线标识。
2.1.3施工方法(1)提升高度测量方法一:以上支撑面预埋钢板为上测点,下支撑面预埋钢板所在水平面为下测点,用钢卷尺测量上测点至下测点间的垂直距离。
方法二:用经纬仪或全站仪测量上、下支撑面预埋钢板间的高差。
(2)跨度测量方法一:从上支撑面预埋钢板边沿垂下一线坠,用钢卷尺测量该垂线与下支撑面预埋钢板内沿的水平距离。
光面钢筋时,除梯板上部纵筋的跨内端头做90º直角弯钩外,所有末端做180º的弯钩。
ab用于设计按铰接的情况,括号内数据0.6L ab用于设计考虑充分发挥钢筋抗拉强度的情况,具体工程中设计应指明采用何种情况。
.上部纵筋有条件时可直接伸入平台板内锚固,如图中虚线所示。
上部纵筋需伸至支座对边再向下弯折。
高端梯梁上部纵筋梯板分布筋下部纵筋上部纵筋弯锚长度15d锚入长度≥5d且至少伸过支座中线低端梯梁图集号16G101-2-26 BT 型楼梯板配筋构造/也可直锚见平面图L a ≥20d低端平板长踏步段水平长L sn(=d s×m)n/4梯板分布筋上部纵筋上部纵筋下部纵筋≥5d且至少伸过支座中线15d≥0.35L a b(≥0.6L a b)高端梯梁L n/4bh(梯板厚度)L n梯板跨度hsb sA 型楼梯板配构造筋T型楼梯的适用条件为:两梯梁之间的矩形梯板由低端平板和踏步段构成,两部分的)双分平项为楼梯类型代号与项为上部纵筋及下配筋可参照【混凝土结构施工图平面整体表示方法制图规制和构CT 型楼梯平面注写方式与适用条件图集号16G101-2-27 CT3,h=120:表示CT型楼梯板厚1201600/10:表示一跑高度为1600,一共10步,踏步高1600÷1012@200; 12@150:表示梯板上部筋为直径12的HRB400级钢筋间距200布置;下部受力筋为直径12间距150布置F8@250:表示分布筋为直径8的间距250布置。
HRB400级钢筋。
HPB300级钢筋。
图集号16G101-2-27 CT 型楼梯双分平行楼梯/交叉楼梯/剪刀楼梯图集号16G101-2-28光面钢筋时,除梯板上部纵筋的跨内端头做90º直角弯钩外,所有末端做2.图中上部纵筋锚固长度0.35L ab 用于设计按铰接的情况,括号内数据0.6L ab 用于设计考虑充分发挥钢筋抗拉强度的情况,具体工程中设计应指明采用何种情况。
DAO 工程设计CAD制图标准工程设计CAD制图标准为统一公司设计部门制图格式,规范设计制图,推出本制图标准。
1.适用管理范围适用于公司内部各事业部、分公司工程设计项目,并以CAD方式制图的初步设计、施工图设计阶段的设计文件;方案设计阶段可参照执行。
合作设计的项目可与合作方协商,然后确定该合作项目采用的CAD制图规定。
本标准未尽事宜参照国家制图标准执行。
2.引用标准下列标准所包含的条文,通过在本标准中引用而构成为本标准的条文。
●《道路工程制图标准》GB 50162-92●《技术制图字体》GB/T 114691-93●《技术制图通用术语》GB/T 13361-92●《机械工程CAD制图规则》GB/T 14665-1998●《CAD通用技术规范》GB/T 17304-1998●《技术制图图线》GB/T 17450-1998●《CAD文件管理》GB/T 17825.1~17825.10-1998●《房屋建筑CAD制图统一规则》GB/T 18112-2000●《CAD工程制图规则》GB/T 18229-2000●《电气工程CAD制图规则》GB/T 18135-2000●《房屋建筑制图统一标准》GB/T 50001-2001●《总图制图标准》GB/T 50103-2001●《建筑制图标准》GB/T 50104-2001●《建筑结构制图标准》GB/T 50105-2001●《给水排水制图标准》GB/T 50106-2001●《暖通空调制图标准》GB/T 50114-2001●《风景园林图例图示标准》CJJ 67-95●《城市规划制图标准》CJJ/T 97-20033.制图要求3.1电子制图文件的格式所有的出图文件格式必须满足AutoCAD2004的软件版本要求(文件格式为 .dwg),如果AutoCAD的软件版本高于该版本,AutoCAD的制图面版本格式也默认设定为AutoCAD2004。
3.2图框注:A0、A1、A2及用于市政工程设计的A3图框允许加长,但必须按基本幅面的长边(L)成1/4倍增加,不可随意加长。
当前,国内商业建筑越来越多,其中一些商业建筑规模比较大,集购物、餐饮、娱乐、休闲于一体,为人们营造了舒适的工作和生活环境。
这些商业建筑给建筑师们提供了更多展示自身设计才华的机会,由此也诞生了很多优秀的建筑作品。
但是,对于商业建筑中如何正确配置自动扶梯的数量、规格、设置的位置、配置排列的方式等问题,一直困扰着建筑设计师。
本文将对商业建筑的特点进行分析,并介绍自动扶梯的配置,希望给国内建筑师在商业建筑设计中选配自动扶梯时带来帮助。
1 自动扶梯的运输能力自动扶梯是指带有循环运动梯级,向上或向下倾斜输送乘客的固定电力输送设备。
1899年诞生了世界上第1台梯级式木制扶梯,历经100多年的发展,自动扶梯已经成为商业建筑、车站、机场、地铁等客流量较大场所必备的输送设备。
自动人行道的原理与自动扶梯相似,可以用来运输购物小车以及拉杆行包等,在超市、机场等场所应用比较多。
相比较电梯,自动扶梯的输送能力是电梯的十几倍,特别适合在短距离内输送较大客流。
自动扶梯的运输能力包括理论输送能力与实际输送能力,实际输送能力根据理论输送能力统计计算得出。
1.1 理论输送能力理论输送能力c的计算式如下:c=3600×k×v / 0.4式中: c——理论输送能力,人/h;k——系数;v——额定速度,m/s。
系数k 与自动扶梯的梯级宽度有关,国内自动扶梯的规格按照梯级宽度一般有600mm、800mm、1 000mm 3种规格,相对应地k取值为1、1.5、2。
k的含义就是在600mm梯级理论上可以站立1人,800mm梯级上可以站立1.5人,1 000mm梯级上可以站立2人。
国内自动扶梯额定速度一般有0.5m/s、0.65m/s、0.75m/s 3种,这样理论输送能力见下表1。
表1 自动扶梯理论输送能力1.2 实际运送能力实际使用自动扶梯时,即使乘客相当拥挤(比如上海人民广场地铁车站内上下的自动扶梯),由于乘客的自身情况各异,并不能保证每个梯级上都能站满理论的乘客人数。