珠宝展柜标准尺寸
- 格式:doc
- 大小:102.50 KB
- 文档页数:4
黄金珠宝展柜专卖店设计(5篇)第一篇:黄金珠宝展柜专卖店设计黄金珠宝展柜专卖店设计中国黄金珠宝展柜专卖店的设计制作多采用了中国图案元素,在整体深木色的环境中利用灯光和墙面立体的突出与推进的组合将空间富有立体层次感,黑色的柜台把空间托起,使空间层次变化而不离整体效果。
店面的整体有庄重典雅、品质高尚之感,在柜台内的红色配衬下使珠宝店空间更显品质高尚。
珠宝展示柜设计的目的是使观众在有限的时空中最有效地接受信息。
因此,珠宝展示柜设计就是围绕着如何有效地提高展示活动的效率和质量进行的。
除了展示环境本身的设计之外,展示对象陈列形式的设计也是珠宝展示柜设计的重要内容。
因此除了研究一般空间设计的基本法则外,研究人在观赏展示对象时是视觉生理和心理过程是珠宝展示柜设计的基本前提展示品的集合将形成多种视觉因素,这些因素在不同程度上对视觉产生影响。
人类观察事物的方式具有一定的共性,研究这些共性的特点是我们研究视觉规律的基本出发点。
近代对视觉心理和艺术心理的研究取得了长足的进步,这些方面的成果被广泛运用到现代展示的设计中。
基于在视觉行为方面的共性,珠宝展示柜设计中引人了许多平面构成、立体构成和色彩构成方面的原理,并在珠宝展示柜设计的实践中形成了相对完整的设计原理和法则。
对直线、曲线、圆形、三角形以及矩形的运用是最基础的设计视觉元素。
直线在视觉中是最常见的现象,也是珠宝展示柜设计中运用最广泛的视觉元素之一,使用得当的直线,会具有明确的视觉效果。
在展示中应用得当的曲线,能丰富整体效果,创造出富于节奏和韵律的变化效果,改变由单纯直线造成的冷峻、严厉的气氛。
从几何学的角度说,圆是一个被连续曲线包围的形状,曲线上各点距与该形状的中心的距离相等。
从展示柜设计的角度来说,圆是非常有用的形状,它既可以是实心的盘状,也可以是空心的圆环。
原形的使用,应当使整体的各个局部都能有效地和谐。
三角形或菱锥形等形体的运用,可在珠宝展示柜设计中产生更丰富的视觉想象力与对比效果;在构图中,通常将一组不同位置的三角形布置成不对称的三角形组群,以产生丰富而有叙的变化。
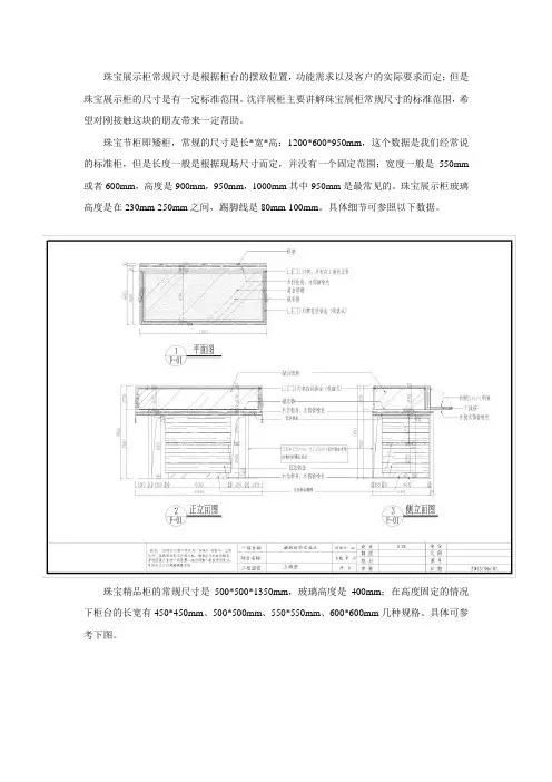
珠宝展示柜常规尺寸是根据柜台的摆放位置,功能需求以及客户的实际要求而定;但是珠宝展示柜的尺寸是有一定标准范围。
沈洋展柜主要讲解珠宝展柜常规尺寸的标准范围,希望对刚接触这块的朋友带来一定帮助。
珠宝节柜即矮柜,常规的尺寸是长*宽*高:1200*600*950mm,这个数据是我们经常说的标准柜,但是长度一般是根据现场尺寸而定,并没有一个固定范围;宽度一般是550mm 或者600mm,高度是900mm,950mm,1000mm其中950mm是最常见的。
珠宝展示柜玻璃高度是在230mm-250mm之间,踢脚线是80mm-100mm。
具体细节可参照以下数据。
珠宝精品柜的常规尺寸是500*500*1350mm,玻璃高度是400mm;在高度固定的情况下柜台的长宽有450*450mm、500*500mm、550*550mm、600*600mm几种规格。
具体可参考下图。
珠宝背柜是靠墙摆放的柜台,长度是依据墙面而定,宽度有250mm、300mm、350mm 三种常见规格;商场珠宝背柜高度是常规的2400mm,专卖店靠墙珠宝展示柜高度是随墙面高度而定,要么直接与天花相接,要么比天花低300mm-400mm。
橱窗位离地高度一般在1000mm左右,具体大小依据实际需求设计。
具体标准可参照一下图纸。
柜台装修要求为了给顾客营造一个优美的购物环境,同时保证商场装修整体风格,特对商户装修提出如下要求。
一)一层1、化妆品岛通常是围柱的圆岛或方岛,岛高2400mm,帽沿250mm,如没有灯带,帽沿较大,如有灯带,帽沿与岛为一体。
如有灯带,灯带高通常为250mm,厚200mm,为内置灯,灯带顶端至地面2400mm。
玻璃柜通常为异形柜,也有直柜,玻璃柜距地高为950mm,宽500mm,其上端为玻璃制作的展示柜,通常高度为300mm,玻璃柜不要将岛围死。
2、黄金、珠宝岛通常围柱做形象,岛高2400mm,通常帽沿与岛柜为一体,灯带高通常为150mm,厚250mm,通常用镶嵌射灯,灯带顶端至地面240mm。
3、手机岛通常围柱做形象,岛高2400mm,通常无灯带,帽沿较大。
4、名表、眼镜、手袋等边厅通常货柜高2400mm,宽350mm,低柜高1350mm,宽350mm,长1200 mm。
5、鞋区、箱包区、所有边厅店铺的背墙边柜均为高柜,高柜高度为2400mm,宽350mm,中间可使用低柜,低柜高1350mm,宽350mm,同时要有试鞋登、试鞋镜及库房,如专柜内有柱子,需围立柱做形象,高为2400mm,柱面展示由品牌供应商自行设计,店铺原则上不安装门楣或拉杆灯箱。
鞋区中厅距通道均为1200mm的低柜,其它与鞋区相同。
6、手机、数码家电区边厅货柜(架)高2400mm,如专厅内有柱子,需围立柱做形象,高为2400mm,柜面展示由品牌供应商自行设计,店铺原则上不安装门楣或拉杆灯箱。
二)二层男装:运动、中性休闲边厅的背墙边柜均为高柜(架),高柜(架)高2600 mm,厚度450-550mm,中间可使用低柜,低柜高为1350mm,宽450mm,同时要有试衣镜、试衣间及库房,商户需自行安装门楣,门楣高度为400mm,宽度250mm,长度同边厅,如专柜内有柱子,需围立柱做形象,高为2600mm,柱面展示由品牌供应商自行设计。
二层中厅距通道两侧均为长1200mm的低柜,其它与边厅相同。
货品陈列及柜台管理一、柜台陈列管理的内容在进行具体的柜台布置和陈设时需要掌握柜台特点、道具的应用、造型的设计、颜色的搭配、搭配品的选择、温湿条件要求、灯光布置等,具体要求如下:1.柜台要布置柜台,首先应了解柜台特点和柜台功能。
(1)多数柜台在1-1.5m之间,上部采用全透明加厚防暴玻璃,玻璃与置物层高差在20-25cm左右。
(2)按照功能,柜台可分为销售柜和鉴赏柜。
销售柜的作用是销售。
鉴赏柜的作用是展示,供顾客欣赏商品,起点缀环境和烘托销售气氛的作用。
在专卖店内,鉴赏柜台多设在店堂中央,或一进门的醒目位置。
在综合商场中的珠宝首饰环岛里,鉴赏柜台设于环岛的拐角及正对着顾客的中心柜台处。
2.道具道具是珠宝首饰的载体,直接影响着首饰的摆放风格,具体选择时应考虑以下几点:(1)道具的形状与首饰种类一致。
如项链、手链、手镯、耳钉、胸花、戒指等不同品种,应辅以不同形状的道具。
(2)道具的数量、类型与柜台功能相符。
①销售柜台销售柜台的道具数量及布货密度应根据企业的经营理念而定。
一些经销店,货源充足,货品数量大,常采用“货堆如山”的摆放方式,所用道具数量多,道具内商品摆放的密度大。
一个柜台最少可摆八个盘,每个盘都密密麻麻堆满了珠宝首饰,最多时一个盘内可摆40条项链或插40多枚戒指,如果摆放的都是黄金首饰,则形成金灿灿的一片,蔚为壮观,这也不失为吸引顾客的一个好办法。
而一些专卖店、品牌店、品牌专柜或资金较小、商品数量较少的企业,其柜台内所用的道具数量及布货密度可明显减少,一般一个柜台内摆放4-6个盘,每个盘内插10-15枚戒指,或挂上6-10条项链,盘与盘之间空出一定的距离,或形成一定的造型,这种摆放方式给人清新、明快的感觉,同样会给顾客留下好印象。
销售柜台所选道具形状和规格应大致相同,同一柜台可选1-3个道具品种,以其中一种为主,另两种为辅,摆放时形成一定的规律,使整个柜台主题突出、整齐、美观。
②鉴赏柜台鉴赏柜台的道具应少而精。
x展架标准几个尺寸展架标准几个尺寸。
展架是一种常见的展示工具,通常用于展示产品、宣传资料等。
在不同的场合和需求下,展架的尺寸也会有所不同。
以下是几种常见的展架标准尺寸,供您参考选择。
首先,最常见的展架尺寸是85厘米×200厘米。
这种尺寸的展架通常被称为标准拉网展架,适合于大多数展览场合。
它有足够的高度和宽度,可以展示各种宣传资料和产品,同时又不会占用太多的空间。
这种尺寸的展架在展览会、商业展示、宣传活动等场合都非常适用。
其次,还有一种常见的展架尺寸是60厘米×160厘米。
这种尺寸的展架通常被称为小型展架,适合于一些空间较小的场合。
它的高度和宽度适中,可以展示一些简单的宣传资料和产品,非常适合于店铺、门店促销、临时展示等场合。
另外,还有一种展架尺寸是100厘米×200厘米。
这种尺寸的展架通常被称为大型展架,适合于一些需要更大展示面积的场合。
它的高度和宽度都比较大,可以展示更多的宣传资料和产品,非常适合于展览会、大型商业展示、活动现场等场合。
除了以上提到的几种常见展架尺寸外,根据实际需求,展架的尺寸还可以定制。
例如,有些特殊场合可能需要非常大的展架来展示特别大型的产品或宣传资料,而有些场合可能需要非常小巧的展架来适应狭小的空间。
因此,展架的尺寸可以根据实际需求进行定制,以满足不同场合的展示需求。
总的来说,展架的尺寸是根据展示的内容和场合来选择的。
不同尺寸的展架都有各自的优势和适用场合,选择合适的展架尺寸可以更好地展示您的产品和宣传资料,提升展示效果。
希望以上内容能够帮助您更好地了解展架的尺寸选择,为您的展示活动提供参考。
道具与展品尺度展示道具按构造和功能来分有许多种,尺度上不是统一不变的.但每类道具的尺度都有一个基本的尺度数据,都是按人体工程学的原理确定的.即以人体的尺度作为依据,要适应和方便人们参观,不是随心所欲来确定的。
(1)道具尺度以下列出一些主要展示道具的基本尺度数据,供展示设计工作者参考。
①展板:常用规格尺寸有600 mm×1 800 mm、900 mm×1 800 mm、l 200 mm x2 400 mm 等,这些大块展板的宽高比是1:3或1:2。
也有方形大展板如l200 mm×1200 mm、l 800 mm ×1 800 mm、2 400 mm×2 400 mm等。
板厚35~45 mm。
小型展板有400 mm×600 mm、600 mm×900 mm、900 mm×1 200mm等几种。
也可以做成400 mm或600 mm、900 mm、1 200 mm见方的方形小展板。
②展台:展台从高度上分高、中、低3类,低的高度有80 mm、100 mm、120 mm、150 mm、200 mm、250 mm、300 mm、400 mm等几种。
中高展台高度有600 mm、800 mm、1 000 mm和1 200 mm几种。
高展台高度在1 400 mm以上,最高的可达2.8 m。
从展台形状来看,有方、长方、三角、圆、五角、六角、菱形、椭圆等多种,常用的平面尺寸为1200 mm ×l200 mm、1200mm×1800 mm、900 mm×1800 mm、l200 mm×2400 mm;300 mm×300 mm、400 mm×400 mm、400 mm×600 mm、500 mm×500 mm、500 mm×1000 mm (以上为中高型展台)。
展示柜设计
随着经济的发展,人们生活水平的不断提高,对家居环境的要求也越来越高。
随着市场上各种各样新颖的产品层出不穷,琳琅满目,为了增加产品吸引力,在产品外面,往往需要添加一些装饰物或者包装来突显其优越性,所以有了这个行业,就是展示柜设计。
下面就让我给大家介绍一下展示柜设计:
其中,橱窗展示柜的制作材料与规格型号,按规定分为木质展示柜,玻璃展示柜, PVC展示柜和铝合金展示柜等;而根据展示商品的不同,可将展示柜分为化妆品展示柜,电子产品展示柜,珠宝首饰展示柜等。
根据客户要求,按使用需要可选择单面或双面的展示柜台。
根据尺寸和使用空间要求可选择地柜、吊柜、岛柜和特殊造型柜等多种样式。
此外,还有半柜、屏风展示柜等。
一般柜体高度为800mm至2400mm。
展示柜的宽度为750mm至1800mm,长度为800mm至2400mm。
柜台所用材料如下: 1、木质展示柜材料:木板,胶合板,密度板,防火板,金属等; 2、玻璃展示柜:亚克力,钢化玻璃,有机玻璃,防火玻璃,夹胶玻璃,彩晶玻璃,镀膜玻璃等; 3、 PVC展示柜:聚氯乙烯等; 4、铝合金展示柜:铝型材,铝制品等; 5、地柜:普通冷轧钢板,优质钢板,铝镁合金,铝板,不锈钢,木材等; 6、吊柜:多功能吊柜,带灯吊柜,带灯吊柜,隔板吊柜,拉网,钢结构,烤漆工艺等; 7、岛柜:组合式转角岛柜,固定式转角岛柜,吊柜岛柜等。
展示柜的规格类型1、地柜:长方形, L型,超长方形,异型地柜; 2、吊柜:单开门,双开门,三开门; 3、岛柜:分离式,整
体式,封闭式; 4、悬臂柜:单边悬臂柜,双边悬臂柜,单边带柜,双边带柜; 5、落地柜:单面,双面,三面,四面,五面落地柜。
商场专柜设计规范说明商业空间设计装修商场专柜设计规范说明一、靠墙专柜1、靠墙货柜高度尺寸2400mm(背板2400mm),宽度尺寸300~500mm;专柜内的平面布置设计应考虑不影响消防设施、空调设施、各种检修口、门和公共通道等使用的要求,高柜、背展柜距排风口、暖风口不少于500mm。
2、专柜间隔板高度尺寸:沿柜位临通道边线退后1200mm之间是1350mm高的隔断,之后为2400mm高的隔断到墙;若两柜位间隔断为柱且柱体位于通道边线,则柱体至墙体的隔断高度为2400mm;若两柜位间隔断为柱且柱体不位于通道边线,则柱体至墙体的隔断高度为2400mm,柱体至通道的隔断高度为1350mm。
3、若专柜要求吊楣,则吊楣底部距地面为2400mm,吊楣自身高度为300mm,须用亚克力板镂空字制作手法,并须注意专柜吊楣间的衔接。
特殊吊楣根据品牌的形象要求和现场情况确定。
二、中岛专柜1、专柜间隔高度尺寸,延柜位线退后柜位进深的二分之一,为1350mm高的隔断。
2、服装类区域临主通道专柜与反向专柜之间隔断高度为2400mm;除此之外各专柜之间沿通道线退后600mm为1350mm高的隔断。
3、货架高度为1350mm(特殊货架除外)。
退后4、平柜高度尺寸为900mm,宽度尺寸为600mm.5、若专柜要求吊楣,吊楣底部距地面在2400mm,吊楣自身高度为300mm,须用亚克力板镂空字制作手法,并须注意专柜吊楣间的衔接。
三、特殊专柜1、收银台区域专柜以实际现场情况设计制作。
2、中庭部分靠电扶梯两侧专柜须做通透半面柜,高度为1350mm,要注意避让防火卷帘。
3、若专柜柱子在通道线上,柱子临通道一面必须制作形象,高度为2400mm。
展示柜的常识
靠墙摆放的展柜背板为不透光板,可选与柜体外观一样的颜色,如红色、镜面。
顶部可装灯箱片,柜内灯可选日光灯、射灯,顶部带灯箱的高度在1800-2000mm,高度在1800之下的展柜不适合装顶部灯箱;深度一般为350。
如果展示较大体积物品则深度可改为400mm 。
方形的展柜一般为四边透光玻璃,400*400mm展柜适合展示珠宝、首饰、手表、手机等物品,500*500mm展示柜用于展示礼品、工艺品、电子产品、笔,烟酒等较大件物品;
客户站立时观看的展柜高度一般在1300MM至1700MM,顶部装有灯箱或字时,一般高度控制在1800-2000mm间,顶部不装灯箱时,一般高度在1500-1700mm之间。
客户坐或弯腰观看的展柜高度一般在800-1000mm之间,形状可设计为柜台样式或方形;
铝合金外框可选颜色为哑光金色、银白色、黑色、红色、洋红色、灰色等颜色;亦可根据客户要求的色样订制。
一般金色或金属感较强的物品用哑光黑色较多,皮制品、烟酒,瓷器、工艺品等用金色外框配黑色板较多。
颜色的选择一般根客户的要求。
柜台一般的高度在900mm左右,多用于商场或门市;宽度在10001500mm间,深度在500-600mm间;。
卡地亚展柜材质讲解
卡地亚珠宝展柜越来越受人们的喜爱,特别是卡地亚展柜以其细腻的工艺技术,时尚经典的款式风格,卡地亚卡地亚展柜不管是在整体款式风格上还是在造型上,都是能展现出展柜的高档。
卡地亚珠宝展柜从选材上为大家介绍一下,普通的卡地亚珠宝展柜的选择的是201#的不锈钢,钢得厚度有1.2mm,我们选用不锈钢作为材料的话,其实他还有一个电镀的过程,我们在选择尽量不要选择价格太高的电镀厂,还有就是卡地亚珠宝展柜品质和档次比常见的木制或钢木结合的传统珠宝展示柜要更显高贵,但是在制作整体的过程中价格应该比其他的展柜要高一些。
说完常见的卡地亚珠宝展柜,我们说一下高档的卡地亚珠宝展柜,高档的卡地亚珠宝展柜是采用304#不锈钢材料,其厚度在2.5mm,每个包边处理都是满焊处理的,并且也是采用高端的五金配件,电镀的效果也非常好,但是其价格也是高昂的。
卡地亚展柜款型:有直形、方形、圆形等,根据客户要求定制设计
卡地亚专柜的尺寸可以设置为:
卡地亚展柜规格:1000mm*550mm*950mm
卡地亚展柜规格:1100mm*550mm*950mm
卡地亚展柜规格:1200mm*550mm*950mm
大多数高档珠宝首饰品牌店,精品首饰店、高档商场等都以卡地亚珠宝展柜作为展示柜台。
而且通过卡地亚的风格衍生了许多不同新款式的珠宝展柜,致使现在市场上有很多新颖的珠宝展柜—鼎贵展柜。
鲁班尺最吉利尺寸大门→ 鲁班尺最吉利
尺寸柜子
鲁班尺最吉利尺寸柜子
介绍
鲁班尺是一种用于测量的传统工具,拥有两端具有刻度的木制尺子。
根据古代文化和风俗,使用特定尺寸的鲁班尺可以获得好运和吉利。
本文档将介绍鲁班尺最吉利的尺寸用于制作柜子。
理论依据
根据传统观念,选择特定的尺寸可以带来好运和吉利。
尺寸的选择基于数学原理和数字的象征意义。
以下是一些常用的鲁班尺最吉利尺寸。
长度
对于柜子的长度,使用128厘米或180厘米的尺寸可以带来好运。
这些尺寸代表着繁荣和富裕的象征。
宽度
柜子的宽度通常选择为64厘米或96厘米。
这些数值在数字象
征意义上与吉祥相关联。
高度
在选择柜子的高度时,常用的鲁班尺最吉利尺寸为112厘米或160厘米。
这些尺寸与幸运和长久的意义相连。
实际应用
考虑到传统文化观念,以及好运的愿望,选取鲁班尺最吉利的
尺寸来制作柜子可能会受到一些人的欢迎。
然而,实际制作柜子时,个人的设计偏好和功能需求也应该被考虑进去。
最终的尺寸选择应
该综合考虑传统文化与实用性。
结论
鲁班尺最吉利的尺寸柜子,根据长度选择128厘米或180厘米,宽度选择64厘米或96厘米,高度选择112厘米或160厘米。
这些
尺寸代表着幸运和吉祥的意义。
然而,在实际制作柜子时,也应综
合考虑个人偏好和功能需求。
专柜装修设计规范一、各品类装修设计要求1.珠宝柜:前柜高900mm;中岛包柱及靠墙背柜限高2400mm;中岛商户如需在中岛做高柜设计,图纸必须经负责的楼层经理同意,由招商部统一制定高柜走向、位置后,方可施工;吊楣上檐高度为2400mm,下檐高度为2150mm;2.皮具区:形象墙限高2400mm;开架限高1350mm.中岛柜,单面开架及双面开架限高1350mm3.女装、男装及休闲:靠墙背柜及形象墙限高2400mm;中岛高柜高2400mm,中岛开架限高1350mm;4.裤装区:形象墙限高2400mm;开架限高1350mm。
5.童装区:边厅――靠墙背柜及形象墙限高2400mm;中岛开架限高1350mm;中岛――中岛开架限高1350mm;6.皮鞋区(边厅需铺木地板)边厅――靠墙背柜及形象墙限高2400mm;中岛开架限高1350mm;中岛――中岛开架限高1350mm;7.动装区:边厅――背柜及形象墙限高2400mm;中岛开架限高1350mm;中岛――中岛高柜高2400mm,中岛开架限高1350mm;8.通用部分试衣间:限高2400mm;如柜内有防火卷帘滑轨的商户,设计时要让开滑轨左右各10cm。
每家商户在设计时,需突出自己的风格、特点。
有收银台在的商户,设计时需将收银台位置留空。
中岛区不做吊楣接邻走道的柜高为1.35米,柜长(进深至柜内)1.2米二、装修范围及须提供图纸装修范围:专柜所属区域地面、墙面、顶面及相关事物图纸规格:所有专柜提供审核的图纸(平面布置图、施工图、电路图、效果图等),均须用A4规格来表示(除效果图一份外,其它图纸均一式二份,比例为1:50或1:100)。
图纸内容:1、封面:专柜名称、柜位号等;2、平面布置图:详细标示柜位尺寸及区内货架、货柜等的位置。
要求:尺寸详细、准确,与实地尺寸相符,背景为浅色,能详实体现的卖场实际布局状况。
3、立面施工图:区域内所有道具及形象展示的详细施工内容,含柱体包饰、货柜等,须详标尺寸、工艺做法、材质、色彩等。
货品陈列及柜台管理一、柜台陈列管理的内容在进行具体的柜台布置和陈设时需要掌握柜台特点、道具的应用、造型的设计、颜色的搭配、搭配品的选择、温湿条件要求、灯光布置等,具体要求如下:1.柜台要布置柜台,首先应了解柜台特点和柜台功能。
(1)多数柜台在1-1.5m之间,上部采用全透明加厚防暴玻璃,玻璃与置物层高差在20-25cm左右。
(2)按照功能,柜台可分为销售柜和鉴赏柜。
销售柜的作用是销售。
鉴赏柜的作用是展示,供顾客欣赏商品,起点缀环境和烘托销售气氛的作用。
在专卖店内,鉴赏柜台多设在店堂中央,或一进门的醒目位置。
在综合商场中的珠宝首饰环岛里,鉴赏柜台设于环岛的拐角及正对着顾客的中心柜台处。
2.道具道具是珠宝首饰的载体,直接影响着首饰的摆放风格,具体选择时应考虑以下几点:(1)道具的形状与首饰种类一致。
如项链、手链、手镯、耳钉、胸花、戒指等不同品种,应辅以不同形状的道具。
(2)道具的数量、类型与柜台功能相符。
①销售柜台销售柜台的道具数量及布货密度应根据企业的经营理念而定。
一些经销店,货源充足,货品数量大,常采用“货堆如山”的摆放方式,所用道具数量多,道具内商品摆放的密度大。
一个柜台最少可摆八个盘,每个盘都密密麻麻堆满了珠宝首饰,最多时一个盘内可摆40条项链或插40多枚戒指,如果摆放的都是黄金首饰,则形成金灿灿的一片,蔚为壮观,这也不失为吸引顾客的一个好办法。
而一些专卖店、品牌店、品牌专柜或资金较小、商品数量较少的企业,其柜台内所用的道具数量及布货密度可明显减少,一般一个柜台内摆放4-6个盘,每个盘内插10-15枚戒指,或挂上6-10条项链,盘与盘之间空出一定的距离,或形成一定的造型,这种摆放方式给人清新、明快的感觉,同样会给顾客留下好印象。
销售柜台所选道具形状和规格应大致相同,同一柜台可选1-3个道具品种,以其中一种为主,另两种为辅,摆放时形成一定的规律,使整个柜台主题突出、整齐、美观。
②鉴赏柜台鉴赏柜台的道具应少而精。
专柜设计规范1FA、化妆品区——(1)中岛柱位柜高2400MM;厚350MM;下存柜高800MM;2400MM下返300MM为标识位。
(2)柜台高950MM;柜台上玻璃展柜高度为300MM——450MM;柜台厚600。
B、珠宝区——(1)中岛柜位及边柜高2400MM;厚350MM;2400MM下返300MM为标识位。
(2)柜台高950MM;厚600MM;柜台上玻璃展柜高300MM。
(3)吊楣灯带高200MM;2000MM上返200MM安装。
(4)部分玻璃展柜高度可做到1800MM。
C、鞋区——(1)边区背柜高2400MM;厚400MM;2400MM下返300MM为标识位。
(2)矮柜高1350MM。
(3)展台高600MM以内长1200MM以内。
(4)票台高度要求1000MM。
(5)试鞋登高450MM。
D、表区——(1)边区背柜高2400MM;厚350MM;2400MM下返300MM为标识位。
(2)中岛柱位柜高2400MM;厚350MM;下存柜高800MM;2400MM下返300MM为标识位。
(3)柜台高950MM;厚600MM;柜台上玻璃展柜高300MM。
(4)吊楣灯带高200MM;2000MM上返200MM安装。
(5)部分玻璃展柜高度可做到1800MM。
2FA、女装边区——(1)高柜(背柜)高2400MM;2400MM下返300MM为标识位。
(2)试衣间高2400MM。
(3)矮柜高1400MM。
(4)由通道向货区内返600MM为模特位;距通道600MM至1800MM位置制作1200MM长矮柜。
B、女装中岛——(1)试衣间高2400MM。
(2)柱位高柜高2400MM,2400MM以下返300MM为标识位。
(3)中岛矮柜高1400MM。
(4)票台高1000MM。
C、包区——(1)柱位高柜2400MM,厚350MM,2400下返300MM为标识位。
(2)展柜高950MM,展柜玻璃柜高350MM,柜厚550MM。
珠宝展柜标准尺寸
一般标准化的珠宝店空间面积为5mx7m,珠宝柜台尺寸在1200x600x1000mm(长x宽x高)。
为什么柜台尺寸是这个标准?地区物理特性:一般站柜售货均为女性,中国女性的平均身高在158左右(南方与北方差异在2~4公分左右);1米的高的柜台高度,当售货员与客户交流时,双手与柜台面会显得较为自然;而宽度则体现在拿货时身体倾斜20度左右即可方便拿到货品,在形为体态上也不失大雅。
安全距离柜台的宽度不仅仅蕴含着陈列和展示货品的功能,更重要的是这个宽度较为适合人与人之间的安全距离(心理学,正常人与人安全距离为1.2米),一般售货员都较为热心和有礼貌,非常容易与人打交道,所以在国内很容易将安全距离拉近。
60公分是私人距离,即打破了亲密的关系,又打破了礼貌的关系,这样就会将售货员推向一个专业的私人顾问角色中,无论是对信任度和成交量都会有帮助。
珠宝展柜要求工艺比较苛刻,90公分珠宝柜台高度是以前的做法,为了更好展示珠宝,有更好的展示空间,现在的珠宝柜台全部在1米的高度,玻璃的展示空间根据客户需求在22公分或25公分,柜底到玻璃也就在75~78公分左右,玻璃一般选择十里厚的(有八厘、十厘、十二厘)。
帽檐指的是上面的灯带,以前是30x30公分,现在为突显精致一般为25x25(另外也得看商场对这个的要求,还要看用灯情况)
珠宝展柜如何设计才会显得高档?主要注意几个方面:
1视觉效果方面:现代化展柜设计,基于在视觉行为方面的共性,珠宝展柜设计应该引人了许多平面构成、立体构成和色彩构成方面的原理,并在珠宝展柜设计的实践中形成了相对完整的设计原理和法则。
珠宝展柜设计的目的是使消费者在有限的时空中最有效地接受
信息。
因此,珠宝展示柜设计就是围绕着如何有效地提高展示活动的效率和质量进行的。
除了展示环境本身的设计之外,展示对象陈列形式的设计也是珠宝展柜设计的重要内容。
因此除了研究一般空间设计的基本法则外,研究人在观赏展示对象时是视觉生理和心理过程是珠宝展柜设计的基本前提,所以展柜设计应该尽大限度让客户看着舒服,很自然。
2、展柜灯光方面:卤素灯耗电大,发暖色的黄光。
LED等耗电小,发冷色的白光。
根据你对光色的需要来选。
珠宝展示柜的灯光设计首先来自顶部光源。
珠宝展示柜内侧多采用日光灯照明以提高整体亮度。
另外,柜台前侧左右两角多安装冷光射灯和LED灯做为补充光源,以提高珠宝的立体感。
特别是珠宝展示柜,通过角部射灯或LED 灯的照射反射出钻石特有的棱角质感从而激发顾客的购买欲。
珠宝店所卖的商品都比较名贵,而且要突出晶莹剔透的效果,眩目的效果更能衬托珠宝的高贵品质还有就是要简约,大方.毕竟吸引顾客目光的
必须是珠宝,而不是其他的装饰点缀品.。
顶面金卤灯和射灯为主要光源,而岛柜形式通过灯带照明以提高珠宝区域的整体照明效果。
3、展柜色彩方面:珠宝展柜色彩设计要简洁,如果色彩变化过多则容易引起消费者视觉疲劳反而达不到要重点突出效果。
运用企业标志中的标准色及其近似色,则能非常简单地解决以上问题。
标志的色彩设计具有极强的精确性和简洁性。
从精确性方面讲,标志对于色彩的选用是一切艺术形态当中最苛刻、最严谨的,必须符合企业产品的性质,什么样的产品就有什么样的特性,就必须用什么样的色彩去体现它;从简洁性方面讲,标志对于珠宝展柜色彩选用的另一个原则便是简洁,就像人搭配衣服一样一般不超过三种色彩。
和谐的色彩使人积极、明朗、轻松、愉快;不和谐的色彩则相反,它使人感到消极、抑郁、重、疲劳。
4:附属材料方面:展柜附属材料,其实也就是展柜的一些装饰,比如雕花、喷绘等。
不能设计得太过花俏,应该结合珠宝店铺的整体形象来设计,让喷绘、雕花等附属材料起到点缀的效果。