防静电架空地板施工方法
- 格式:doc
- 大小:25.00 KB
- 文档页数:2
防静电架空地板施工方案一、概述静电是指物体之间由于静电电荷的不平衡而产生的一种自然现象。
在某些特定的场合,静电产生的危害是不可忽视的,特别是在一些需要进行精密仪器操作的实验室、医院手术室、电子厂等场所。
防静电架空地板作为一种有效控制静电的方法,其施工方案应该合理、可行。
本文将介绍一种可行的防静电架空地板施工方案。
二、材料准备1. 架空地板:选择具有良好导电性能的金属材料,如铝合金、镀锌钢板等。
2. 接地装置:选择优质的铜材料接地线,确保与地面的良好接触。
3. 防静电材料:使用防静电涂料或贴防静电膜,确保地板表面电阻小于10的6次方欧姆。
4. 辅助材料:包括螺钉、固定件、绝缘垫等。
三、施工步骤1. 清理地面:首先将施工区域清理干净,确保地面平整、无灰尘、无水迹。
2. 安装接地线:根据施工图纸规定的位置,使用螺钉将接地线固定在地面上,并确保与地面良好接触。
3. 安装架空地板:按照施工图纸要求,将架空地板板材依次固定在接地线上。
注意板材之间的间隔应保持一致,并使用固定件进行固定。
4. 连接地板与接地线:使用专用的导电螺钉或者紧固件将架空地板与接地线连接起来,确保电流能够有效地通过地板排放。
5. 涂覆防静电材料:使用专用的刷子或辊筒,将防静电涂料均匀地涂覆在地板表面,或者贴上防静电膜。
6. 检测和测试:待防静电涂料干燥后,进行防静电性能的测试。
可以使用专用的静电测试仪器,检测地板表面的电阻是否符合要求。
四、安全注意事项1. 施工过程中,工人应戴好防静电手套和鞋套,以免静电通过人体排放。
2. 在施工现场严禁吸烟,以防止火花引发火灾。
3. 使用防静电涂料时,应注意通风,避免吸入有害物质。
4. 施工完成后,应进行全面的测试和检测,确保防静电地板的效果达到预期。
五、总结防静电架空地板施工方案是控制静电的一种有效手段。
本文介绍了一种可行的施工方案,包括材料准备、施工步骤和安全注意事项。
通过科学的施工,可以有效地减少静电的产生,提升场所的安全性和稳定性。
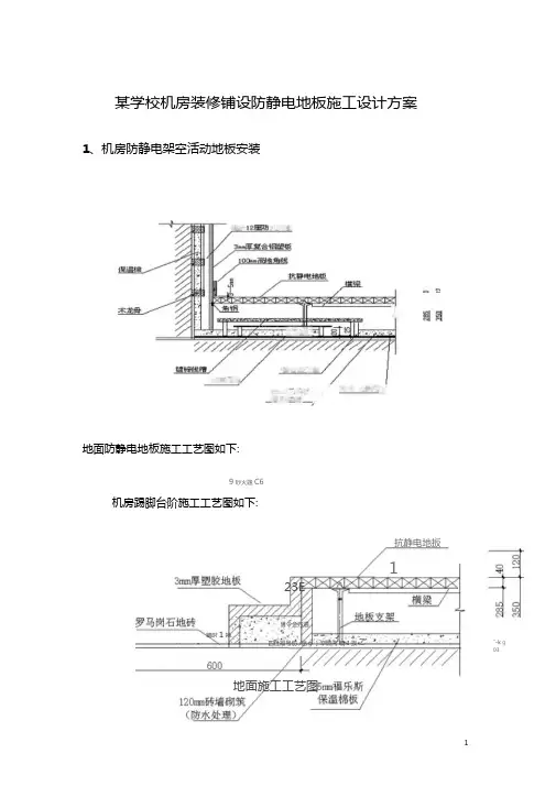
某学校机房装修铺设防静电地板施工设计方案1、机房防静电架空活动地板安装地面防静电地板施工工艺图如下:机房踢脚台阶施工工艺图如下:9砂火題C6123E借令金方遇鑛时1挽四仕福号肪 /呂g ]辛炯內曉3扳z地面施工工艺图厂抗静电地扳―-k g03进入机房架高地面的踢脚台应具有防水隔潮、美观大气、坚固实用等特点,本项目中,我方使用120mm 砖墙砌筑以隔离机房架高地面,设一级台阶,台阶的宽度以300mm 为宜,以砌素砼而成,根据实际需要,在台阶表面铺设防水材料,如大理石、丁纹钢板、塑胶地板等。
2、防静电架空活动地板施工步骤机房抗静电地板安装工程中,地面预处理十分关键,在铺设地板前必须先对地面进行较好的预处理,首先刷素泥一道,抹平机房地面,采用20厚1 : 2.5水泥砂砂抹面赶光,地面基础处理到平整、光滑、没有明显的坡度和不平,再刷机房专用地台漆二遍,起防潮、防霉作用。
拉水平线,地面弹方格网线,弹线要反复校正。
在机房四周墙面安装角钢支架,地面按地面弹线铺设金属屏蔽网(50*0.1紫铜片),金属屏蔽网与机房接地铜排相连,组成一个完整的机房屏蔽系统,具有接地、抗静电、抗干扰的作用。
结合布线系统的设计及施工,在地面架空安装强弱电走线线槽及接地铜排,强弱电走线线槽之间间距大于30mm。
在地面铺设和地板下四周墙面铺设25mm 厚阿姆斯壮一级福乐期保温棉,包福乐斯不燃铝箔,起到保温、隔热、防潮作用,至此,地面预处理完成。
铺设防静电地板,地板支撑脚直接安装在50*0.1紫铜片上方。
敷设地板时,用水泡水平仪逐步找平,高度靠可调支架调节,相临地板间不得有缝隙,安装较重设备的地板下部加强支撑。
地板板面标高300~350mm ,具有足够空间形成地板下净压风库。
3、防静电架空活动地板施工注意事项由于本方案采用的是无边活动地板,配合精度高,其美观、整洁、耐用。
但其施工难度大,要求施工人员的专业水平高,否则安装的地板配合精度不能达到要求。
架空防静电地板施工技术方案一、施工前准备:1、材料要求:(1)活动地板的品种和规格由设计人确定,并在施工图中示明,采购时一定要按照设计要求购买配套系列的合格产品。
(2)活动地板面层承载力不应小于7.5MPa,系统电阻应为105+~1010。
板块面应平整、坚实,并具有耐磨、防潮阻燃、耐污染、耐老化和导静电等特点,技术性能应符合现行国家标准。
(3)环氧树脂胶、滑石粉、泡沫塑料条、木条、橡胶条、铝型材和角铁、铝型角铁等材质要符合要求。
(4)清理检查支架绗条的数量和质量。
(5)按要求码放于指定材料堆放场地,并立醒目标志以示他人;“架空地板堆放场”、“禁止非作业人员动用”。
2、主要机具准备:吸盘、切割锯、手刨、螺机、水平仪、水平尺、方尺、钢尺、小线、錾子、刷子、钢丝刷等。
3、施工条件要求:(1)材料检验已经完毕并符合要求。
(2)应已对所覆盖的隐蔽工程进行验收且合格,并进行隐蔽会签。
(3)施工前,应做好水平标志,以控制铺设的高度和厚度,可采用竖尺、拉线、弹线等方法。
(4)对所有作业人员已进行了技术交底,特殊工种必须持证上岗。
(5)作业时的施工条件应满足施工质量可达到标准的要求。
(6)基层地面或楼面平整、无明显凹凸不平。
如平整度误差太大,就需要用水泥砂浆找平。
二、施工方案:1、施工工艺流程:放线→基层清理、地面穿线→地面除尘→安装柱脚→调平→安装板面及插座安装(机电配合)→验收。
2、施工方法:(1)放线:在需铺设地板的区域,按地板的排列图和轴线放出地面的分格线。
(2)基层修补:将分格线支叉位置即底脚安装处的缺陷修补完好,再用吸尘器将表面浮物清吸干净。
(3)安装支承脚:在十字线交叉处将膨胀螺栓埋入。
(4)调平:按室内的水平高度调整地板标高,用水平仪再整体超平一次。
支座与基层之间的空隙应灌注环氧树脂,应连接牢固。
亦可按设计要求的方法固定。
(5)安装面板:根据房间的具体情况选择铺设方向。
当无设备或流洞但模数不相符时,宜由外向里铺。
架空静电地板施工工艺流程下载温馨提示:该文档是我店铺精心编制而成,希望大家下载以后,能够帮助大家解决实际的问题。
文档下载后可定制随意修改,请根据实际需要进行相应的调整和使用,谢谢!并且,本店铺为大家提供各种各样类型的实用资料,如教育随笔、日记赏析、句子摘抄、古诗大全、经典美文、话题作文、工作总结、词语解析、文案摘录、其他资料等等,如想了解不同资料格式和写法,敬请关注!Download tips: This document is carefully compiled by theeditor.I hope that after you download them,they can help yousolve practical problems. The document can be customized andmodified after downloading,please adjust and use it according toactual needs, thank you!In addition, our shop provides you with various types ofpractical materials,such as educational essays, diaryappreciation,sentence excerpts,ancient poems,classic articles,topic composition,work summary,word parsing,copy excerpts,other materials and so on,want to know different data formats andwriting methods,please pay attention!架空静电地板施工工艺流程详解在现代化的建筑和数据中心设计中,架空静电地板因其独特的功能性和实用性,被广泛应用于各种场合。
防静电架空地板施工方案1. 简介在一些特殊的场所,如医院手术室、电子芯片生产车间等,静电可能对设备和人员造成严重影响。
为了解决这个问题,防静电架空地板逐渐被广泛采用。
本文将介绍防静电架空地板的施工方案。
2. 材料准备在进行防静电架空地板施工前,需要准备以下材料:•防静电架空地板板材•地板支撑架•地板连接件•地板安装工具3. 施工步骤3.1 准备施工区域在施工前,需要将施工区域进行清洁和整理,确保地面干净平整,并确保空气湿度适宜,以减少静电的产生。
3.2 安装地板支撑架首先,根据施工区域的尺寸和要求,确定架空地板的位置和布局。
然后,按照设计要求,安装地板支撑架。
确保支撑架的平整和稳固。
3.3 铺设地板板材安装完地板支撑架后,可以开始铺设地板板材。
将地板板材逐个拼接在地板支撑架上,并使用地板连接件将它们连接在一起。
3.4 处理地板边缘在铺设完主体地板后,需要注意处理地板边缘。
使用专门的地板边缘材料,将地板边缘进行封装,以保证架空地板的完整性和可靠性。
3.5 进行导电处理铺设完地板后,需要进行导电处理,以确保架空地板具有良好的导电性能。
导电处理可以采用涂覆剂或其他导电材料,将其施加在地板板材表面。
3.6 进行接地处理为了进一步减少静电的积累,需要进行接地处理。
通过将导电材料与地面的有效接地线相连接,可以将静电引导到地面,降低静电的产生和积累。
4. 施工注意事项在进行防静电架空地板的施工时,需要注意以下事项:•按照施工方案严格操作,确保每个施工步骤的正确性和安全性。
•注意防止施工区域进入静电敏感设备,以免对其造成损害。
•施工现场应保持整洁,并及时清理产生的碎片和废料。
5. 总结防静电架空地板的施工是为了解决静电问题而进行的,它可以有效地降低静电对设备和人员的影响。
通过准备材料,按照施工步骤进行操作,并注意施工注意事项,可以顺利完成防静电架空地板的施工工作。
希望本文的内容对您有所帮助。
防静电地板施工方案及技术措施一、构造防静电钢质板架空地面。
20厚C20细石砼表面提浆抹光,刷绝缘漆三道。
素水泥浆结合层一道。
结构层。
二、安装施工1、施工要点(1)基层要求:原基层楼面或地面要符合设计要求。
基层表面必须具有足够的强度,要求坚挺、平整、光滑,无明显的凹凸不平。
施工前,应清除表面污垢、尘土及浮砂,保持基层表面干燥、干净。
(2)放线弹线:依设计要求放线,按地板的尺寸弹出墨线,形成双格网,依方格网的十字交点来确定支梁固定位置,按弹线进行试装,检查调整无误后,再进行安装。
(3)固定方法:将支架底座用建筑胶粘在平整光滑的地面上,为了牢固和抗震的需要,在底座上补射两只射钉。
在安装固定过程中,随时调整支架高度。
调整支架摩托顶面高度至全室水平。
将桁条放在支架上,用水平尺校正水平,然后放上面板。
(4)安放面板:将桁条放在支架上并校正水平后,安装抗静电塑胶活动地板。
拼装地板,调整地板水平度及缝隙,活动地板安装水平度在2m内不平度<3mm;纵横直线度90°±3°。
面板安装时要轻拿轻放,防止损伤抗静电贴面。
安装设备及连接电缆、管线时,必须注意保护面板。
一般铺设五层胶合板来采取临时保护措施。
2、安装质量标准活动地板安装缝隙<0.5mm,用塞尺检查;平整度用2m钢尺立放,最大缝隙<1.0mm。
表面无损伤、污染等现象。
对抗静电要求严格的机房,使用单位必须对所有的南进行抽样测试,检查是否达到设计和使用要求。
为了防雷,导静电,抗静电地板支架应用铜带与主体结构钢筋网相连接,必要时,亦可以单独接地,以免影响电器设备的正常运转。
活动地板是按设计要求,由生产厂家配套加工制作,对非整块板的侧面加工也由厂家加工制作,不能在施工现场随意加工。
三、质量要求1、质量要求和检验方法板块面层表面质量要求:色泽均匀,粘、钉基本严密,板块无裂纹、掉角、缺楞等缺陷。
接缝质量要求:接缝均匀一致,无明显高差,表面洁净,粘结面层无溢胶。
全钢架空活动地板工程(防静电地板)施工方案一、立项背景在现代办公环境中,为了满足电子设备和人员对于防静电的需求,防静电地板逐渐成为一种被广泛应用的地板材料。
全钢架空活动地板是一种结构合理、安装方便、清洁简便的防静电地板,具有较好的耐磨、防静电等特点。
本文以全钢架空活动地板工程为研究对象,制定施工方案,确保工程质量,提高工程效率。
二、施工方案概述1.材料准备:准备所需的全钢架空活动地板及配件,按设计要求进行组装。
2.基础处理:确保地面平整、牢固,清除障碍物,做好防水处理。
3.铺设地板:根据设计方案将全钢架空活动地板铺设在基础上。
4.接地处理:根据防静电要求对地板及金属结构进行接地处理。
5.验收工作:完成施工后进行验收,确保地板质量符合要求。
三、施工步骤详解1. 材料准备•检查全钢架空活动地板及配件的数量和质量,确保无损坏。
•对各种工具进行清点,确保施工顺利进行。
2. 基础处理•清理施工区域,确保地面平整,清除障碍物。
•进行地面防水处理,保证地板长久使用。
3. 铺设地板•按照设计方案对全钢架空活动地板进行组装。
•将组装好的地板依次铺设在基础之上,确保连接牢固。
4. 接地处理•对地板及金属结构进行接地处理,确保防静电效果。
5. 验收工作•完成施工后进行验收工作,确保地板质量符合要求。
•如有问题及时处理,确保工程质量。
四、施工注意事项1.安全第一:在施工过程中要注意安全,避免发生意外。
2.严格按照设计图纸施工:确保每一步施工符合设计要求。
3.细心施工:确保每一个细节都处理到位,提高施工质量。
4.定期检查:施工过程中要定期检查质量,确保施工质量。
5.施工结束后保养:施工结束后要做好地板的保养工作,延长使用寿命。
五、总结全钢架空活动地板工程是一项关键的防静电地板工程,其施工质量直接影响日后使用效果。
通过本施工方案的实施,可以确保施工过程有条不紊、质量可控,进而提高工程的效率和质量,为办公环境提供一个适宜的工作场所。
全钢架空活动地板工程(防静电地板)施工方案工艺流程及施工方案设计单位:广州莱安智能化系统开发有限公司http:地址:广州市天河区中山大道建中路5号天河软件园海天楼3A06用户服务中心:Tel:98850联系人:周先生:欢迎来电索取详细方案或来电洽谈业务,免费提供设计方案,价格实惠我司开发以及生产大量的机房防静电地板,欢迎各界人士批发以及代理。
目录一、施工工艺...................................................................................................................31、"施工前........................................................................................................................32、"施工中........................................................................................................................43、"施工后........................................................................................................................54、"质量标准....................................................................................................................55、"施工注意事项 (6)二、施工组织机构............................................................................................................61、"机械一览表.................................................................................................................72、"施工质量管理机构......................................................................................................73、"施工进度 (8)三、施工检验标准............................................................................................................91、"目测...........................................................................................................................92、"仪器测量..................................................................................................................103、"附件.........................................................................................................................104、"斜坡与踏步 (10)四、防静电地板用户手册...............................................................................................101、"面板..........................................................................................................................112、"支架与横梁 (11)五、防静电地板操作手册................................................................................................111、"600×600mm面板........................................................................................................112、"通风板的操作...........................................................................................................123、"注意事项:...............................................................................................................124、"重物的搬动...............................................................................................................125、"地板系统的调整 (12)一、施工工艺1、施工前1)工序交接我公司施工人员、施工材料进入工地之前,应与施工单位做好工序交接工作,以确保地板工程的安装顺利进行。
防静电架空地板的施工方案一、准备工作1.明确施工区域:根据场所的使用要求,明确需要安装防静电架空地板的区域,确保准备充分,为施工做好各项准备工作。
2.清理场地:清理施工区域的地面,将其清除干净,并确保没有灰尘和杂物。
清理后,可以进行下一步的操作。
二、施工准备1.测量和标线:根据施工区域的尺寸和布局,进行测量,确定防静电架空地板的铺设位置。
在地面上进行标线,以保证施工的准确性和对齐性。
2.检测地面电阻:使用电阻测试仪对地面电阻进行测试,确保地面对防静电架空地板的要求达标。
如果地面电阻超过要求的范围,需要做好地面处理工作,以达到要求。
三、地下系统1.地下系统铺设:根据设计图纸,在地下系统位置进行开槽,将地下系统铺设好。
地下系统包括电缆线、数据线、水管等,并且需要根据实际情况进行布线和连接。
2.开槽处理:根据地下系统的宽度和深度,使用槽铣机进行开槽处理。
开槽后,应该及时清理槽内的尘土和杂物,确保槽道干净。
四、地板铺设1.选购地板材料:根据需求,选购适合的防静电架空地板材料,包括地板板材、地板底座和螺栓等附件。
确保选购的地板材料符合国家相关标准和要求。
2.地板安装:根据设计图纸和施工计划,按照预先测量好的位置进行地板的安装。
首先安装地板底座,然后将地板板材放在底座上,使用螺栓进行固定。
确保地板夹紧牢固,不松动。
五、接地系统1.接地系统设置:防静电架空地板需要有良好的接地系统,以避免静电的积累和传导。
根据设计要求,进行接地系统的设置和布线。
接地系统包括接地导线、接地棒等,需要合理安装和布置。
2.接地导线连接:将接地导线连接到地板底座上的金属接地螺杆上,并确保接地导线与地面的良好接触。
接地导线需要选用符合要求的导电材料,并确保导线连接牢固不松动。
六、验收和维护1.验收工作:在地板施工完成后,进行验收工作。
验收内容包括地板的平整度、固定牢固性、接头平滑度等。
人员可以根据要求进行检查和测试,确保防静电架空地板的质量和使用效果符合标准。
1、楼面处理:将地面垃圾、灰尘、泥渣等妨碍地板安装的都清理掉,保持地面平整和清洁;
2、估料:测量现场实际面积,估算出现场所需架空防静电地板和支架等安装物品(含损耗料)所需数量,以免出现浪费问题。
3、进料:数量确定后依序进料;
4、选定基准:确定施工基准,依基点方向施工,并铺设铜箔连接处用导电胶粘接并用兆欧表测量导电性能;
5、铺设基座与地板:按照基点方向依序铺设基座与架空防静电地板;
6、收边:当遇至墙壁、柱子等不能整块放置时,可以切割收边;
7、开孔:施工人员按规定要求和数量开孔;
8、调整:整工程施工完毕后,施工人员会重新审视,如遇不妥之处,视状态调整架空防静电地板,务必达到规定要求为止,同时进行成品保护,以免表面受损。
防静电地板是由面板、龙骨、可调支架等组合拼装而成。
面板、龙骨、支架的技术性能应符合设计要求和国家现行规范规定。
一、施工准备(1)对铺设场地的要求1、地板的铺设应在室内土建及装修完毕后进行;2、地面应平整(无明显凹凸不平,其表面不平度应小于2/1000mm)、清洁、干燥、无杂物、无灰尘;3、布置在地板下的电缆等管道及空调系统应在安装地板前施工完毕;4、重型设备基座固定应完工,设备安装在基座上,基座高度应同地板上表面完成高度一致;5、施工现场备有220V/50Hz电源和水源。
(2)施工用材料及工具1、施工用材料地板:符合设计和规范要求,规格600X600;导电胶:电阻值应小于贴面板的电阻值;铜箔(或铝箔):厚度0。
01-0。
05mm,宽度20—40mm;酒精:工业级;焊条:直径2~5mm;2、施工用工具刮板:用于涂布导电胶;橡皮掷头:用于捶打塑料地板,使其与地面充分粘合;兆欧表:电压100伏,用于测量导电性能;专业切割锯:用于切割地板;焊枪:用于焊接地板;其他:激光水平测定仪,水泡水平仪,尺,墨线,吸板器,螺母调节扳手,十子螺丝刀,吸尘器,笤帚,拖把;二、施工工艺1、认真检查地面平整度,如发现不符合施工要求,向甲方有关部门提出;2、拉水平线,并将地板安装高度用墨线弹到墙面上,保证铺设后的地板在同一水平面上;测量室内的长度、宽度,并恰当选择铺设基准位置以减少地板的切割,在地面弹出安装支架的网格线;3、将要安装的支架调整到同一需要的高度并将支架摆放到地面网格线的十字交叉处;4、用螺钉将横梁固定到支架上,并用水平尺校正横梁,使之在同一平面上并互相垂直;5、用吸板器在组装好的横粱上放置地板;6、若墙、柱边剩余尺寸小于地板本身长度,可用切割地板的方法进行处理,切割时,地板必须先测量好,使得切割好的地板能符合且紧密结合在墙面之外廓线,墙面和切割好的地板之间的间隙必须在1。
5mm,地板需不规则切割以配合柱子或圆管时,必须精确测量,以保证地板与圆弧面的配合。
防静电地板施工方案1、安装程序1、楼面处理:将地面之垃圾、灰尘、泥渣等一切物清理干净,地面如有凸凹物,必须填平或铲除,保持地面平坦。
则施工品质较优。
2、估料:丈量现场,估算架空地板、支架等安装物品(含损耗料)需多少数量。
3、进料:数量确定后,依序进料4、选定基准:确定施工基准,依基点方向施工。
5、铺设基座与地板:按基点方向依序铺设基座与地板。
6、收边:当遇至墙壁、柱子等不能整块放置时,可以切割做收边处理。
7、开孔:施工人员按规定要求和数量开孔。
8、调整:整个工程施作完毕后,施工人员会重新审视,遇不妥之处,视状态调整地板,务必达到规定要求为止,同时进行成品保护,以免表面受损。
5.2、施工工艺1、地板的安装1.1测量建筑物面积,确认与蓝图相符。
若不符合,则勿施工,并立即与业主或承建商商量,说明不符合处,进行改正。
1.2确认楼面所有区域高度变化,以利地板之铺设。
可用施工水平仪,经纬仪或激光水平仪测试。
同时确认现有固定构物如柱子、门槛等的数量、位置及地面到顶面的高度化。
升降机或地板必须配合某些区域之特点,决定特殊方法,以保证地板与基座之安装,使地板有确定适合当之平面。
在现场条件不能使地板水平安装且不能配合所有结构要求时,不要贸然施工,以免施工后影响工程品质。
1.3建立起始点,根据经纬仪测试结果,在用墨斗线划出两条垂直基准线,以决定地板铺设起始位置。
在收边位置,所需切割之地板不得少于15cm另沿垂直地线按600X1200mm分派基座。
1.4装设基座,有激光水平仪为基准,校准基座水平,以确保在三米范围内,其完成高度水平误差不得超越±1.5mm,且整层楼面不得超±2.5mm,然后装设基座与压铸铝头。
1.5装设帕尔特牌架空地板,沿着地线装四块地板,再一次确认楼面与基座和面板垂直于底线。
若不垂直,必须调整好。
在此基础上依此装设架空地板。
2、切割周边地板2.1在装设地板期间,可用收边基座支撑侧边切割地板。
防静电架空地板的施工方案防静电架空地板是一种具有防静电功能的地板,广泛应用于静电敏感场所,如电子厂、医院、实验室、计算机机房等。
它主要由导电橡胶地板和金属骨架组成,通过金属骨架和地板之间的接地铜线将静电导向地下,防止静电的积聚和损害。
以下是防静电架空地板的施工方案:1.施工前准备:-确定施工的地点和范围,清理地面,确保地面平整干净。
-完成静电环境的测量,确定施工需求。
2.材料准备:-购买合适的导电橡胶地板和金属骨架材料,确保质量可靠。
-配备必要的工具和设备,如电动钻、水平仪、电焊机等。
3.施工步骤:-铺设金属骨架:根据地面情况和实际需求,使用电动钻在地面上打孔,然后将金属骨架按照设计要求铺设在地面上。
-接地处理:将地板上的导电橡胶垫片剪裁成适当尺寸,安装在金属骨架上。
确保垫片与金属骨架之间接触良好。
-金属骨架的连接:使用电焊机将金属骨架进行连接,确保结构稳固可靠。
-地板安装:根据地板的尺寸,在金属骨架上逐块放置导电橡胶地板。
确保地板之间的间隙和接缝均匀,没有松动的情况。
-导电连接:使用铜线将金属骨架与接地端子板连接起来,确保静电能够导向地下。
4.检测和验收:-用专业的静电检测仪器对施工后的地板进行检测,确保防静电效果符合要求。
-对整个施工过程进行检查和验收,确保工程质量符合要求。
需要注意的是,防静电架空地板的施工应由专业施工团队进行操作,确保施工过程和结果的质量。
在施工过程中,应按照国家相关标准和规定进行操作,并使用符合质量要求的材料和设备。
此外,还需要与建筑、电气等专业进行密切协作,确保施工过程中的安全和错综复杂的问题能够得到妥善处理。
综上所述,防静电架空地板的施工方案包括施工前准备、材料准备、施工步骤和检测验收。
通过正确的施工方法和优质的材料,可以有效地防止静电积聚和损害,保障静电敏感场所的安全和稳定运行。
施工方案-防静电架空地板的施工方案
文字精炼
一、背景描述
在当今社会,由于电子元件的普及,人们运用电子元件的地方也越来
越多。
这些电子元件的性能及使用寿命取决于用户的维护习惯及环境情况。
环境中的静电对电子元件有损害,因此在安装电子产品时,必须采用防静
电架空地板,以保证操作人员及电子产品的安全。
二、防静电架空地板施工方案
1、准备工作
在施工之前,应根据用地设计图对地板的尺寸、高度等参数进行准备,检查施工工具及材料,确保施工条件良好,并对施工现场安全情况进行检查。
2、安装支撑架
在施工前先制定出操作计划,确定支撑点及支撑架的位置,并将现场
成型支撑架安装到位,然后用加固件与支撑点固定,支撑体处理完毕。
3、打基础
排放基础时,应注意基础混凝土应高于地面,以便在后期施工过程中,可以根据实际厚度配置厚度不同的砖块或木块,基础混凝土层高度不宜小
于1.2m,宽度不宜小于2m,打基础时要用手棒或模具检查平整度,在施
工后应进行抗压及抗拉强度测试,确保抗压及抗拉强度达到规定要求平顺
度达到规定要求。
4、安装防静电架空地板。
6防静电架空地板工程
第 1 页共 1 页 (楼地面工程6)
X防静电架空地板
本工程中,三层信息中心、电话总机房等处采用防静电架空地板做法。
防静电架空地板必须由具有专业资质的分包队伍施工。
X.1工艺流程:基层处理 ?弹支柱(架)定位线 ?测水平线 ?固定支柱架底座 ? 安装桁条(搁栅) ?仪器抄平、调平 ?铺设地板。
X.2基层清理找平。
基层必须有足够的强度,要求坚硬、平整、光滑。
将基层上的杂物、层埃清扫干净,然后找平。
X.3弹线应按设计要求,根据地板的规格定水平尺寸,在基层上弹钢支柱(架)定位方格或十字线。
测量底座水平标高,将底座就位,并在墙四周量出支(架)顶水平线。
X.4安装支柱(架):将底座摆平在座点上,核对中心线后,安装支柱(架),按支柱(架)的标高,拉纵横水平通线调整支柱(架)活动杆顶面,按标高固定,再用水平尺逐点超平,校准支柱(架)托板。
X.5安装桁条(搁栅):支柱(架)顶平后,弹安装搁栅线,从房间中央开始安装桁条(搁栅),再次调整其平整度、方正度至合格为止。
X.6安装活动地板:在桁条(搁栅)上按活动地板尺寸弹出分格线,按线安装,并调整活动地板的缝隙使之顺直。
X.7成品保护
(1)防静电架空地板安装时,应注意墙面、门樘、门扇等的保护。
(2)在已铺设完工的防静电架空地板应加强保护,手推车不得在上面通行,表面严禁堆放重物及玻璃等锐利物品。
(3)地面铺设时,对所接触的电线管、暖卫管等,要有保护措施。
防静电架空地板的施工方案一、一般规定1、防静电架空地板地面施工内容包括基层处理,安装支架、横梁、斜撑,安装接地系统,铺设地板等的施工、测试与质量检验。
2、施工现场温度应在10---35摄氏度之间,相对湿度小于80%;通风应良好。
二、材料、设备与工具1、施工材料应符合要求。
在设计无特殊要求时,应符合以下规定:防静电活动地板板面应平整、坚实,板与面的粘接应牢固,应具有耐磨、防潮、阻燃等性能。
支架、横梁、斜撑表面应平整、光洁,钢质件须经镀锌或其它防锈处理。
防静电性能指标和机械性能、外观质量等应符合《防静电活动地板通风规范》SJ/T10796的要求。
应储存在通风干燥的仓库中,远离酸、碱及其它腐蚀性物质,严禁置于室外日晒雨淋。
2、施工应具有的设备和工具包括切割机、手提式电锯、吸盘器、1M钢直尺、水平尺、清洗打蜡机、测试电极和测试仪表等,其规格、性能和技术指标应符合施工工艺的要求。
三、施工准备1、施工应做如下准备工作:熟悉设计施工图纸和勘察施工现场。
制定施工方案,绘制防静电地面接地系统图、接地端子图和地网布置图。
备齐各种施工材料、设备、器具,并检验合格。
彻底清除施工场地、器具,并检验合格。
彻底清除施工场地的尘土、小沙石等影响工程质量的残留物。
大于140平方米的工程,应作样铺设。
2、施工场地应符合下列要求:基层地面无论是水泥地面、水磨石地面或其它硬质地面,都应表面平整、凹凸不平等必须修补。
对于新建工程项目,在土建施工时应一预设接地装置。
工程面积100平方米以内的设1到2个接地端子。
对于老厂房改造项目,应根据实际情况按相同要求确定接地端子位置与数量。
应在室内装修工作已基本完工、安装与基层上的设备已固定在预定位置、放置在活动地板下的管线或导线已铺设就位后,方可进行防静电活动地板安装,不得上下交叉作业。
四、施工步骤1、认真检查地面平整度及墙面垂直度,如发现有重大缺陷或需要局部改造,应向甲方有关部门提出;2、拉水平线,并将地板安装高度用墨线弹到墙面上,保证铺设后的地板在同一水平内,测量室内的长度、宽度及选择基准位置,并在地面弹出安装支座的网络格线,以保证铺设整齐、美观,同时尽量减少地板的切割;3、将要安装的支座调整到同一需要的高度并将支座摆到地面网格线的十字交点处;4、用安装螺钉将桁梁固定到支座上,并用水平尺、直角尺逐一校正桁梁,使之既在同一平面内,又相互垂直;5、用吸板器在组装好的桁梁上放置活动地板;6、若靠近墙面处剩余尺寸小于活动地板的长度,可以用切割地板的方法进行拼补;7、在铺设地板时,用水泡水平仪逐块找平,活动地板的的高度靠可调支座调节,铺设过程中应轻拿轻放,防止划伤地板及损坏边条,同时应边铺设边打扫,避免将杂物、灰尘遗留在地板下面;8、在机房设置较重设备时,可在设备基座的地板下加装支座,以防地板变形;9、HPL装饰板需要切割或开口加工时,其开口凹角处应制φ6~φ8止裂孔,以防止加工后的地板装饰面开裂。
防静电架空地板施工工艺
1.施工准备
(1)首先按照设计图纸要求,事先把要铺设的活动地板的基层做好(大多是水泥地面或现制水磨地面等),基层表面应平整、光洁、不起尘,含水率不大于8%安装前应清扫干净,必要时,安装活动地板面层,必须待室内各项工程完工和超过地板面承载力的设备进入房间预定位置之后,方可进行,不得交叉施工。
(2)架设活动地板面层前,要检查核对地面面层标高,应符合设计要求。
将室内四周的墙面划出标高控制水平线。
2.施工工艺流程
基层处理→分格弹线→安装支架、横梁→铺架空地板→检查验收
3.施工方法
1、在清洁的地面上用经纬仪进行弹线
2、地板、支架、角底板装配连接
3、采用激光扫平仪进行调节地板水平
4、采用螺丝刀调节地板水平
5、紧固螺钉
6、放置盖板
7、切割收边8、完工效果
4.质量标准
当活动地板全部铺设完成以后,要求对整个工程进行全面细致的检查,对不完善的地方进行改进。
(1)活动地板安装完后行走必须无声响,无摆动,牢固性好。
(2)表面清洁,色泽一致,接缝均匀,周边顺直。
(3)各种面层邻接处镶边用料及尺寸符合设计要求和施工规范规定,边角整齐、光滑。
防静电架空地板施工方法
防静电架空地板施工方法
一、材料要求
架空地板的品种和规格由设计人确定,并在施工图中示明。
架空地面层承载力还应小于7.5Mpa,系统电阻应为105~1010Ω。
板块面应平整、坚实、并具有耐用磨、防潮阻燃、耐污染、耐老化和导静电等特点,技术性能应符合现行国家标准。
滑石粉、泡沫塑料条、木条、橡胶条、铝型材和角铁、铝型角铁等材质要符合要符合要求。
二、主要机具
水平仪、铁制水平尺、铁制方尺、2~3m 靠尺板、墨斗或粉线包、小线、线坠、扫帚、盒尺、钢尺、钉子、铅丝、红铅笔、油刷子、开刀、吸盘、手推车、铁簸箕、小铁锤、合金钢扁钻子、裁改板面圆盘锯、木工截料锯、刀锯、木工用刨子和斧子、磅秤、钢丝钳子、小木桶、棉丝、小方锹、铁制螺丝扳子、工具袋、泡沫塑料拖鞋等。
三、作业条件
1.首先按照设计图纸要求,事先把要铺设的架空地板的基层做好,基层表面应平整、光洁、不起尘,含水率不大于8%安装前应清扫干净,必要时,在其面上涂刷绝缘脂或油漆. 房间平面如是矩形,其相邻墙体必须相互垂直。
2.安装架空地板面层,必须待室内各项工程完工和超过地板面承载力的设备进入房间预定置之后,方可进行,不得交叉施工;也不得在房间内加工。
相邻房间内也应全部完工。
3.架设架空地板面层前,要检查核对地面面层标高,应符合设计要求。
将室内四周的墙划出面层标高控制水平线。
4.大面积架设前,应先放出施工大样,并做样板间,经质检部门鉴定合格方可组织按样板间要求施工。
四、操作工艺:
1.工艺流程
基层处理与清理-->找中、套方、分格、定位弹线-->安装固定可调支架和引条――>铺设架空地板面层-->清擦和打蜡
2. 基层处理与清理:
架空地板面层的骨架支承在现浇混凝土上抹水泥砂浆地面基层上,基层表面应平整、光洁、不起尘土,含水率不大于8%。
安装前应认真清擦干净,必要时,在其面上涂刷绝缘脂或清漆。
3.找中、套方、分格、定位弹线:
根据房间平面尺寸和设备布置等情况,按架空地板模数选择板块铺设方向,具体有以下几种情况:
A:如室内平面无控制柜等设备,平面尺寸又符合板块模时,宜由内向外铺设。
B:如室内平面尺寸不符合板块模数时,应把室内2个方向平面中心线找出来。
看两面尺寸相差多少,若相差的不明显宜由外向内铺设;如相差较大时,宜进行对称对格,由内向外铺设。
C:如室内有控制柜等设备要留洞时,其铺设方向和先后顺序应综合考虑。
根据上述选铺方法确定后,就要进行找中、套方、分格、定位弹线工作。
既要把面层分格线划在室内四周墙面上(又叫面板控制位置控制线,便于施工操作控制用),又要把分格线在基层上面,而且要尺寸正确、上下交圈对口,形成方格网并标明设备预留部位(此时应
插入铺设活动地板下的管线要注意避开己弹好标志的支架座)。
4. 安装固定可调支架和引条:
首先要事先检查复核原室内四周墙上弹划出的标高控制线,按选定的铺设方向和顺序确定基准点,然后按基层已弹好标出位置在方格网交点处安放可调支座,架上横梁转动支座螺杆,先用小线和水平尺调整支座面高度至全室等高,待有钢支柱和横梁构成框架一体后,应用水平仪抄平。
5. 铺设活动地板面层:
首先检查架空地板面层下铺设的电缆、管线,确保无误后才能铺设架空地板面层。
先在横梁上铺放缓冲胶条,并用乳胶液与横梁粘合。
铺设活动地板调整水平高度以保证四角接触平整、严密,不得使用加垫的方法。
铺设活动地板块不符合模数时,不足部分可根据实际尺寸将板面切割后镶补,并配装相应的可调支撑和横梁。
切割边一般应用清漆或环氧树脂胶加滑石粉按设计要求比例调成腻子封边,也可应用防潮腻子封边。
要求高的应用铝型材镶嵌后方可安装。
与墙边的接缝处,应根据缝隙宽窄分别采用活动地板或木条刷高强胶镶嵌,窄缝宜用泡沫塑料镶嵌。
随后应检查调整板块水平度及缝隙。
6.清擦和打蜡:
进行清擦地板面层和涂擦地板工作。
五、质量标准
1.保证项目:
A.架空地板的品种、规格和技术性能必须符合设计要求,符合施工规范和现行国家标准。
B. 架空地板安装完后行走必须无声响,无摆动,牢固性好。
2.基本项目:
A.表面清洁,图案清淅,色泽一至,接缝均匀,周边顺直,析块无裂纹、掉角和缺楞等现象。
B.各种面层邻接处的镶边用料及尺寸符合设计要求和施工规范规定,边角整齐、光滑。
感谢您的阅读!。