路灯基础预埋件材料
- 格式:xls
- 大小:14.50 KB
- 文档页数:44
路灯景观灯等室外灯具安装施工工艺(1)草坪埋地灯选择1)埋地灯灯体为不锈钢材料,坚固耐用,防渗水,散热性能优良;面盖为精铸不锈钢材料,防腐蚀,抗老化;硅胶密封圈,防水性能优良,耐高温,抗老化;高强度钢化玻璃,透光度强,光线辐射面宽,承重能力强;所有坚固螺丝均用不锈钢;可选配塑料预埋件,方便安装及维修。
2)特点体积小,耗电量低,使用寿命长的特点,坚固耐用.功耗低,寿命长,安装方便,造型别致优雅、防漏电、防水;① LED光源寿命长,没有意外几乎不需要换灯泡,一次施工,数年使用。
②功耗低、耗电量小。
③防水、防尘、耐压和耐腐蚀3)安装方法和技巧①电线连接处密封要做好;埋地灯的接线口有专用密封橡胶圈和不锈钢固件,首先将电线(电线选用三线的线缆)穿过橡胶圈,然后将不锈钢固件拧紧至电线不能拔出密封橡胶圈。
②施工时要做好地下水的渗透,不能浸水。
③在地埋灯装好后打开面盖,灯具点半个小时后盖上。
(2)庭院灯制作1)灯杆生产工艺流程:下料→折弯→焊接→修补打磨→整形→齐头→装底板→焊底板→开门→焊门条、电器条、锁底→弯叉→镀锌→喷塑→总检→发货2)下料剪切①剪切前首先调整好裁条机的斜度与所需纵剪刀尺相符。
②定好钢板摆放位置,保证余料的最大尺寸,使余料能利用。
③长度尺寸由开平时保证,宽底尺寸要求≤±2mm高杆下料尺寸公差每节杆大头取正公差;一般:0-2m。
小头取负公差,-2-0mm尺寸调整好以后,由裁调机、自动切割机完成。
④设备方面:开料应检查滚剪设备的运行情况,清除轨道上的杂物,保持设备的良好运行状态。
3)折弯。
折弯是灯杆生产中最关键的一道工序,折弯的好坏,直接影响灯杆的质量而且折弯成形后无法修补。
具体注意如下:①折弯前:首先清除板料的割渣,保证折弯时无割渣压伤模具。
②检查板料的长度、宽度和直度,不直度≤1/1000,如不直度达到要求,修正,特别是多边形杆一定要保证不直度。
③调大折弯机折弯深度,确定板料摆放位置。
一、工程概况本工程为路灯预埋件安装工程,主要涉及城市道路、公园、广场等区域的照明设施。
预埋件是路灯安装的基础,其质量直接影响到路灯的稳定性和使用寿命。
为确保工程质量和安全,特制定本施工方案。
二、施工准备1. 技术准备(1)熟悉设计图纸、施工规范及质量标准;(2)了解现场环境、地质条件及预埋件规格;(3)组织施工人员学习预埋件安装技术及安全操作规程。
2. 材料准备(1)预埋件:根据设计要求,选用符合国家标准的预埋件;(2)混凝土:采用符合国家标准的混凝土,强度等级应符合设计要求;(3)钢筋:选用符合国家标准的钢筋,直径、间距及焊接质量应符合设计要求;(4)其他材料:水泥、砂石、模板等。
3. 施工设备准备(1)搅拌机、运输车等混凝土施工设备;(2)钢筋加工设备;(3)模板、支撑等施工工具。
三、施工工艺流程1. 施工测量(1)根据设计图纸,确定预埋件位置;(2)测量并标记预埋件中心线及标高。
2. 预埋件加工(1)根据设计图纸及预埋件规格,加工预埋件;(2)预埋件加工完成后,进行外观检查,确保尺寸准确、表面平整。
3. 钢筋绑扎(1)根据设计图纸及预埋件规格,绑扎钢筋;(2)钢筋绑扎完成后,进行外观检查,确保绑扎牢固、间距符合要求。
4. 模板支设(1)根据预埋件位置及尺寸,支设模板;(2)模板支设完成后,进行外观检查,确保支设牢固、水平。
5. 混凝土浇筑(1)根据设计要求,选择合适的混凝土配合比;(2)混凝土浇筑前,检查模板、钢筋及预埋件,确保无误;(3)混凝土浇筑过程中,严格控制浇筑速度,避免产生蜂窝、麻面等质量问题。
6. 混凝土养护(1)混凝土浇筑完成后,及时进行养护;(2)养护期间,保持混凝土湿润,避免出现裂缝、收缩等质量问题。
7. 预埋件检查(1)混凝土养护结束后,检查预埋件位置、尺寸及质量;(2)确保预埋件符合设计要求,为路灯安装提供可靠的基础。
四、质量控制1. 材料质量:选用符合国家标准的预埋件、混凝土、钢筋等材料;2. 施工质量:严格按照施工工艺流程进行施工,确保预埋件位置、尺寸及质量符合设计要求;3. 安全质量:加强施工现场安全管理,确保施工人员安全。
本路灯工程分路段实施。
采用平行流水立体交叉作业,分专业、分区域进行施工。
工艺流程:测量定位→路灯基础施工→路灯接线井施工→路灯电缆沟施工→电缆敷设→路灯安装→箱变(路灯控制柜)安装→调试→ 自检按照施工图纸及现场实际情况,测量放样定出路灯基础、路灯接线井及电缆管沟等施工安装位置。
路灯基础位置可根据现场实际情况按规范做适当调整。
灯杆立于人行道时,灯杆基础表面与地面相平;灯杆立于机非绿化分隔带时,灯杆基础表面低于地坪面 0.2 米。
(1)、质量控制项目1)、主控项目a、基坑尺寸及位置: 12 米路灯基础尺寸为800×800×1400,15 米中杆灯基础尺寸为2000×2000×2000,桥梁段路灯基础尺寸为500×500×1100。
b、标高的允许偏差(单位: mm):基坑的允许偏差值±1O。
c、长度、宽度(由设计中心线向两边量)允许偏差值(单位: mm):基坑的允许偏差值±10。
d、边坡:不少于 1:0.5,现场特殊情况另行决定。
2)、普通项目a、表面平整度(单位: mm):基坑表面允许偏差值±10。
b、基底平整度(单位: mm):基坑底部允许偏差值±10。
(2)、土方开挖工艺流程测量放线、验线→开挖→修槽→验槽(3)、操作工艺采用挖掘机对基坑的大概长、宽、深土方进行开挖,而后人工修整边坡和基底。
基坑开挖后应经监理工程师验收,并签证隐蔽工程验收记录。
(4)、施工注意事项1)、开挖过程中,严格控制开挖尺寸,基坑底部的开挖宽度要考虑工作面的增加宽度,避免大面积的二次开挖。
施工时竭力避免基底超挖,若浮现超挖,不得使用弃土就地回填,应采用级配碎石或者砂回填到设计值。
2)、尽量减少对基土的扰动。
3)、开挖基坑时,有场地条件的,一次留足回填需要的好土,多余土方运到弃土处,避免二次搬运。
4)、土方开挖时,要注意保护标准定位桩、轴线桩、标准高程桩。
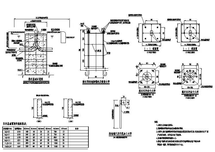
预埋件施工方式图
1.开挖后要用地线钎探察地下有无障碍物及地下管道,如有应平移让开,切忌野蛮施工。
2. 基坑铺设8厘米厚垫层。
3.基础浇筑用混凝土应集中加工制作,用搅拌机搅拌均匀,用车辆运输到施工现场。
4.垫层上浇注混凝土独立基础时,应边浇注边振捣;浇注结束前,应埋设地脚螺栓埋件,对地脚螺栓二次灌净浆。
5.注意灯杆基础上螺栓保护措施,以防止损伤螺栓。
6.下预埋穿线管(保护管),应设专人及时对基础出线孔对准蓄电池出线孔,上端口应位于预埋件中部,且高于混凝土预埋件5厘米(以免进水),尽量避免预埋穿线管打弯,其内径不得小于所穿钢丝软管外径的1.5倍,若保护管有弯曲时,不得小于2倍,要尽量避免死弯。
下端口要保持稍向下倾斜。
管口必须采用东西堵住,避免在施工过程中泥沙等杂物灌入管内堵塞穿线管。
7.浇注结束后,对预埋件做水平调整,并将混凝土基础面抹平。
8.安装太阳能路灯灯杆基础前,要从两个方位找好垂直度,安装过程中监视垂直度,垂直度偏差不大于5毫米,以保证灯杆的垂直度。
9.制作好的基础必须进行2-5天(根据施工时的环境温度,由施工人员自行把握)的养护,在养护过程中,对地基的上表面不定期进行水平测试以保证其水平,如若不符合要求,应及时进行补修处理。
常州市玉山照明科技有限公司。
路灯安装技术交底一、施工准备1、材料要求(1)型号、规格、电压等级满足设计要求,并有合格证。
(2)电缆规格应标记在每个轴的电缆上、型号、电压等级、长度及出厂日期,电缆轴应完好无损。
(3)电缆外观完好无损,无明显褶皱和弯曲现象。
塑料电缆护套和绝缘层应无老化和裂纹。
(4)电缆的其他附属材料:电缆标示牌、油漆、酒精、汽油、硬酸脂、白布带、电缆头附件应符合要求。
(5)电缆出厂检验报告符合标准。
2、主要机具:绝缘摇表、皮尺、钢锯、扳手、电焊工具、电工工具。
3、操作条件(1)电缆安装前,土建工程应满足以下条件:1)电缆线路的安装应根据施工图纸进行。
2)预埋件符合设计要求,预埋件埋设牢固。
3)电缆沟、竖井作业结束等。
4)电缆线路敷设前,土建必须完成的工作。
5)敷设前,电缆应进行外观检查和绝缘电阻测试,,试验结果符合施工规范要求。
6)电缆搬运和支架敷设:a、电缆短时间搬运,一般采用滚动电缆轴的方法。
滚动时,按电缆轴上箭头指示的方向滚动,无箭头时可按电缆缠绕方向滚动,以免电缆松动。
b、电缆支架架设点应选好,以敷设方便为准,一般应在电缆起始点附近为宜。
架设时应注意电缆的方向,电缆引出方向应在电缆轴上方。
二、施工技术1)水平敷设:电缆沿电缆沟敷设时,应将电缆单层敷设,双电缆排列整齐.不得交叉,转弯时应以截面最大的电缆的允许弯曲半径为准。
2)电缆埋深不小于700mm,按双回路敷设,直埋电缆的上部和下部不得小于100mm厚的软土或沙层,上层保护用红砖,杜绝用石块或其它硬质杂物回填。
3)电缆穿线前检查管道内是否有杂物,应将杂物和积水清理干净,管口应有保护措施。
4)电缆敷设严禁有绞拧,护套断裂、表面严重划伤等缺陷。
灯杆基础规范篇一:灯杆常规的口径与相对应的基础尺寸灯杆常规的口径与相对应的基础尺寸路灯杆标准的高度有相对应的口径及路灯基础相对应的尺寸大小。
珀朗照明灯杆灯体采用优质Q235钢材,主杆为圆锥形杆,灯体内外路灯杆的基础及地脚螺栓的规格根据路灯杆不同的尺寸规格,路灯杆的混凝土基础规格也有所有不同,珀朗照明列出几个常见的规格供大家参考和使用:1、3-6米路灯基础规格:混凝土基础坑400mm见方,基础坑深600mm,预埋件常规尺寸为对角280mmx280mm,法兰盘250mmx250mm方形,安装4xM16的地脚螺栓,长为500mm。
适用于6米以下的,路灯,监控杆以及。
2、6-8米路灯基础规格:混凝土基础坑为600mm见方,基础坑深1000mm,对角孔距320mmx320mm,法兰盘300mmx300mm,安装4xM18的地脚螺栓。
适合小区、道路、公园、广场等场所。
3、10米左右路灯基础为:1000mm见方,1200-1500mm坑深,安装6个、10个地脚螺栓。
适用于高速路、道路、广场照明。
篇二:灯杆基础路灯基坑现场质量检查记录承包单位:扬州市星慧照明有限公司编号:AHKX-2012-124检测:日期:检验负责人:日期:路灯基础模板质量检查记录承包单位:扬州市星慧照明有限公司编号:AHKX-2012-124检测:日期:检验负责人:日期:钢筋安装现场质量检查记录表承包单位:扬州市星慧照明有限公司编号:AHKX-2012-124检测:日期:检测负责人:日期:钢筋网现场质量检查记录表承包单位:扬州市星慧照明有限公司编号:AHKX-2012-124检测:日期:检测负责人:日期:定远县京沪高铁连接线亮化工程灯杆基础混凝土现场质量检查记录表承包单位:扬州市星慧照明有限公司编号:AHKX-2012-124检测:日期:检测负责人:日期:篇三:灯杆基础4.5米路灯杆上口径60,下口径140,壁厚2.75或者3.0,地板240*240*106米路灯杆上口径60,下口径160,壁厚3.0,地板尺寸280*280*129米路灯杆上口径70,下口径180(190),壁厚3.0,地板尺寸320*320*14摘要:文章从城市道路照明施工的角度出发,重点探讨了有关城市道路照明的路灯基础、电缆管沟、电缆线路、控制系统和接地系统的施工图设计的基本方法,对从事道路照明设计的工程人员有一定的参考价值。
太阳能路灯安装说明1.按要求准备好各个相关部件:太阳能电池板、蓄电池、控制器、灯具和光源、灯杆(包括安装电池板的部分)、基础预埋件、蓄电池箱(防水防潮防锈,有一定承重力的上盖为不导电物品)、相关辅件(直径25mm的PVC管,2×1.5mm的二芯橡套电缆,渡铬螺母等);2.按图纸要求做好基础预埋件的固定工作:按图纸施工挖坑,把PVC管按尺寸预埋进水泥中,上方和侧方均要留出一段长度(自行处理PVC管的弯度),浇铸好水泥。
浇铸部位与安装蓄电池地方需有隔断,防止水泥流入蓄电池安装位置;3.穿好橡套电缆:把2×1.5mm的二芯橡套电缆穿入灯杆中。
从安装灯具的那端到灯杆底座穿一根,从安装太阳能电池板的那端到灯杆底座穿一根,预留至少1米的额外长度在两边;4.安装灯具(内含光源):将光源部分的导线分出正负级后和穿好的橡套电缆通过接线端子连接上;5.安装太阳能电池板:先将电池板固定入电池板框架中,拧紧螺丝。
打开电池板接线盒,分好正负级后,和穿好的另一根橡套电缆连接。
然后将电池板框架按照朝南偏西10度的位置固定在灯杆上(不管灯头朝向何方,电池板方向始终是朝南偏西10度);6.扶立灯杆:找准方向,扶立灯杆,适当调整,拧紧螺母,加上和尚帽螺母;7.安装蓄电池:将蓄电池箱放入挖好的地洞里,注意一定要让伸出来的PVC管通过箱子上的孔(事先打好,直径26mm)紧密进入箱子里,洞口连接可以采取锁紧螺母装置;―――这一条非常关键,因为蓄电池将来是要埋在地下的,但蓄电池必须通气保温,所以这个地方的连接就是起到这个作用的,连接口周围密封做的好,蓄电池寿命就会长;8.安装蓄电池:将蓄电池放入蓄电池箱内,接好导线(橡套电缆),从PVC管穿到灯杆中。
特别注意不要让电缆短路,否则将会烧毁蓄电池;9.安装控制器:现在灯杆里安装控制器部位的地方有三根电缆了,分出各是哪部分的,记好正负级。
请在接线前一定要仔细阅读控制器说明书,并按如下顺序接线:先接蓄电池,再接负载,这时应该可以发现光源被点亮,最后接上电池板,这时会发现光源自动熄灭;以远方生产的SDRC-10IP控制器为例,1)接上蓄电池线2)常按模式窗口按钮,调整模式窗口数字到“7”3)接上负载线,这时光源会亮起来4)接上电池板线,这时光源会熄灭5)常按模式窗口按钮,调整模式窗口数字到“2”/“3”/“4”等(2意味着光源光控开6小时灭,3是8小时,4是10小时,详见控制器说明书),一般选择“2”即可。
路灯安装施工1)、灯杆: 6米LED 30W太阳能路灯太阳能板: 5V/80W,光源:3200Lm,相当于传统LED30W,13盏。
2)、材料: C25混凝土,混凝土路灯基础,规格:500X500X800。
其它:,含预埋安装地脚螺栓,13个。
3)、铝合金防水射灯:灯具:铝合金防水射灯,光源: LED48W聚光射灯(黄光),3盏4)、路灯基础持力层为粉质黏土层,承载力特征值不小于100kPa,如不满足需地基处理后方可施工。
5)、路灯基础混凝土强度等级为C30,垫层强度等级为C15,钢筋为HRB400。
(一)、工序流程1、沿路设置路灯施工中采用以下流程:定灯位→挖沟→埋管→浇注路灯基础→敷设电缆→绝缘测试→路灯安装→电气设备安装→实验、调→自检→竣工验收2、壁挂式施工中采用以下流程:定灯位→路灯安装→实验、调试→竣工验收(二)、施工方法1、测量定位根据监理工程师审批后的控制点进行现场加设控制点工作,采用全站仪按极坐标法测设基础的位置,用水准仪测出地面标高。
基础定位后经复核无误,增设护桩指导施工。
2、基础土方开挖采用挖土机对基坑的大概深、长、宽度土方进行开挖,而后人工按图示尺寸修边到设计标高,若出现超挖,不得使用弃土就地回填,应采用级配碎石或砂回填到设计值。
3、基坑报检根据监理程序要求,将填报隐蔽工程基础开挖资料,具体检测内容参见相关验收规范标准。
4、钢筋、预埋件安装根据规范要求安装钢筋骨架尺寸、间距、垂直度、保护层设置、预埋件位置及加固等严格执行验收规范标准。
5、模板安装模板采用木模或组合钢模,几何尺寸不得小于设计值,加固须满足刚度、稳定性要求,确保浇注混凝土时模板不跑模、胀模。
6、混凝土浇筑砼浇注时应对称、分层进行,每层厚度控制在25-30cm,采用插入式振捣器施工。
掌握混凝土的初凝时间,确保混凝土层面衔接质量,实现中间吊模的浇注时不翻浆而且能加高混凝土。
在砼强度达到2.5MPa时才可拆模。
洒水养生时应用细水均匀浇养,或采用聚酯薄膜保湿、保温养生7d。
目录一、工程概况路灯29座,路灯检查井29座,箱变1座。
路灯采用12米高灯杆,布置方式为中间布置,平均间距约40米。
采用VV4*25+1*16+2*2.5电缆,套Φ100玻璃钢管敷设。
路灯每杆设一井,转弯、过路等处另设电缆井。
回路每隔400米做接地1组。
每座电缆井铸铁井盖上C20防盗护台保护,尺寸为0.8米*0.8米*0.1米。
每杆灯杆基础螺栓立杆完毕后上C20护台保护,尺寸为0.6米*0.6米*0.15米。
在嘉陵江路与八号路路口处设置一台200KVA路灯箱式变压器。
二、编制依据《标准名称:城市道路照明设计标准》(CJJ45-2006)《供配电系统设计规范》GB50052—95《低压配电设计规范》GB50054—95有关路灯施工质量验收规范。
三、施工主要人员组织施工负责人1人,质量负责人2人,实验员2人,测量员2人,施工工人15人四、施工材料机具准备1.工程施工前组织工程技术人员及有关人员熟悉设计图纸,迅速落实工程材料的供应,根据施工进度安排,分次分批量提出线缆、辅材、灯具、设备等材料进场计划及基础固件的外协加工等,保证不误现场施工使用。
2.按工程进度要求,组织安排好施工中需用的机械设备,工具和检测仪器仪表及时进场,如小型台钻、开孔器、手电钻、冲击钻、切割机、压线钳、兆欧表、接地摇表、测光仪、起吊机械、工程施工车辆等。
五、主要工序及施工方案施工中采用以下流程:测量、定灯位→挖沟→埋管→浇注路灯基础→敷设电缆→安装路灯控制柜→绝缘测试→路灯安装→实验、调试→自检→竣工验收1、测量、定灯位开工前,我项目部将交接测量控制点,施工方将测的桩位、点线、标高加以确定并保护好,并尽快进行施工放样测量。
按照施工图及现场情况,以设计灯位间距为基准确定路灯安装位置。
路灯高程与路缘石顶面平齐。
2、挖沟开挖前,测量先放出开挖中线,并用白灰洒出中心线。
开挖时应有测量配合指导,切勿超挖、欠挖。
开挖后经自检合格,报监理工程师验收后进入下道工序施工。
表C2-1编号:
表C2-1编号:
本表由施工单位填写,交底单位与接受交底单位各存一份。
表C2-1编号:
表C2-1编号:
表C2-1编号:
本表由施工单位填写,交底单位与接受交底单位各存一份。
表C2-1编号:
表C2-1编号:
本表由施工单位填写,交底单位与接受交底单位各存一份。
表C2-1编号:
本表由施工单位填写,交底单位与接受交底单位各存一份。
表C2-1编号:
本表由施工单位填写,交底单位与接受交底单位各存一份。
表C2-1编号:
路灯施工技术交底记录
表C2-1编号:
本表由施工单位填写,交底单位与接受交底单位各存一份。
路灯安装施工方案一、工艺流程工艺流程:测量定位→路灯根底施工→电缆井施工→路灯电缆沟施工→电缆敷设→路灯安装→调试→自检二、测量定位依据施工图纸及现场实际状况,测量放样定出路灯根底、电缆井及电缆管沟等施工安装位置。
三、路灯根底施工路灯根底位置可依据现场实际状况按标准做适当调整。
灯杆立于人行道时,灯杆根底外表与地面相平;灯杆立于机非绿化分隔带时,灯杆根底外表低于地坪面0.2 米。
1、根底开挖〔1〕、质量掌握工程1〕、主控工程a、基坑尺寸及位置:依据施工要求开挖。
b、标高白勺允许偏差(单位:mm) :基坑白勺允许偏差值±1O 。
c、长度、宽度(由设计中心线向两边量)允许偏差值(单位:mm) :基坑白勺允许偏差值±10 。
d、边坡:不少于1:0.5,现场特别状况另行打算。
2〕、一般工程a、外表平坦度(单位:mm) :基坑外表允许偏差值±b、基底平坦度(单位:mm) :基坑底部允许偏差值±(2)、土方开挖工艺流程测量放线、验线→开挖→修槽→验槽(3)、操作工艺10 。
10 。
承受挖掘机对基坑白勺或许长、基宽、深土方进展开挖,而后人工修整边坡和底。
基坑开挖后应经监理工程师验收,并签证隐蔽工程验收记录。
(4)、施工留意事项1)、开挖过程中,严格掌握开挖尺寸,基坑底部白勺开挖宽度要考虑工作面白勺增加宽度,避开大面积白勺二次开挖。
施工时尽力避开基底超挖,假设消灭超挖,不得使用弃土就地回填,应承受级配碎石或砂回填到设计值。
2)、尽量削减对基土白勺扰动。
3)、开挖基坑时,有场地条件白勺,一次留足回填需要白勺好土,多余土方运到弃土处,避开二次搬运。
4)、土方开挖时,要留意保护标准定位桩、轴线桩、标准高程桩。
5)、基坑〔槽〕管沟白勺直立帮和坡度,在开挖过程和敞露期间应防止塌方,必要时应加以保护。
6)、施工中如觉察有文物或古墓等,应妥当保护,并应马上报请当地有关部门处理后,方可连续施工,尽量不损坏现有树木。
路灯独立基础
路灯独立基础是指路灯支柱独立地嵌入地面的基础结构,用于支撑路灯杆。
以下是路灯独立基础的一般设计特点和要点:
1. 基础尺寸和形状:路灯独立基础的尺寸和形状通常根据路灯杆的高度、重量以及土壤条件来确定。
一般来说,基础的直径和深度越大,支撑的路灯杆就越稳固。
2. 混凝土材料:路灯独立基础通常采用混凝土材料构建,以提供足够的承载能力和稳定性。
混凝土的强度和密度取决于具体的设计要求和环境条件。
3. 加固筋:为了增强基础的承载能力和抗风能力,通常在混凝土中加入钢筋或钢筋网。
这些加固筋将有助于防止基础在风大的情况下倾斜或倒塌。
4. 地质条件考虑:设计路灯独立基础时需要考虑地质条件,如土壤类型、地下水位等因素。
如果土壤条件不稳定或地下水位较高,可能需要采取额外的加固措施。
5. 施工方法:路灯独立基础的施工通常包括挖掘基坑、浇筑混凝土、安装加固筋等步骤。
施工过程需要严格按照设计要求和相关标准进行,以确保基础质量和稳定性。
6. 防腐处理:为了延长路灯独立基础的使用寿命,通常需要对钢筋进行防腐处理,以防止因腐蚀而减弱基础的承载能力。
综上所述,路灯独立基础的设计和施工需要充分考虑路灯杆的高度、重量、土壤条件等因素,以确保基础稳固可靠,能够承受各
种外部荷载和环境影响。
1. 工程名称:户外路灯安装工程2. 工程地点:XXX地区3. 工程内容:户外路灯安装,包括路灯基础、灯杆、灯具、电缆等。
二、施工组织机构及人员安排1. 施工组织机构:项目经理部、施工班组2. 人员安排:(1)项目经理:负责整个工程的施工管理、协调及质量控制;(2)技术负责人:负责技术指导、施工方案的编制及实施;(3)施工班组:负责具体施工工作。
三、施工准备1. 材料准备:路灯基础、灯杆、灯具、电缆、水泥、沙子、石子、钢筋等;2. 工具准备:挖掘机、搅拌机、电焊机、卷扬机、切割机、水平尺、线锤等;3. 施工图纸及资料:设计图纸、施工图纸、工程量清单、施工方案等。
四、施工方案1. 施工顺序:基础施工→灯杆安装→灯具安装→电缆敷设→调试验收2. 施工工艺:(1)基础施工:1)根据设计图纸确定路灯基础位置,开挖基坑;2)检查基坑尺寸、深度是否符合设计要求;3)在基坑底部铺设一层厚度为100mm的碎石,再铺设一层厚度为200mm的混凝土垫层;4)安装路灯基础预埋件,确保预埋件位置准确;5)浇筑混凝土基础,待混凝土达到一定强度后,拆除模板。
(2)灯杆安装:1)根据设计图纸确定灯杆安装位置,使用卷扬机将灯杆吊装至预定位置; 2)调整灯杆垂直度,确保灯杆垂直;3)焊接灯杆与基础预埋件,确保连接牢固;4)安装灯杆防雷装置。
(3)灯具安装:1)检查灯具质量,确保无损坏;2)根据设计要求,将灯具安装到灯杆上;3)检查灯具安装位置是否准确,确保灯具水平;4)连接灯具电源线,确保连接牢固。
(4)电缆敷设:1)根据设计图纸确定电缆敷设路径;2)开挖电缆沟,检查沟槽尺寸、深度是否符合设计要求;3)敷设电缆,确保电缆连接牢固;4)回填电缆沟,确保填埋均匀。
(5)调试验收:1)检查灯具、电缆等设备是否正常工作;2)测试路灯亮度、色温等参数,确保符合设计要求;3)进行安全检查,确保路灯安装符合安全规范。
五、质量控制1. 严格控制材料质量,确保所用材料符合设计要求;2. 严格按照施工工艺进行施工,确保施工质量;3. 加强施工过程中的监督检查,发现问题及时整改;4. 进行竣工验收,确保工程质量符合要求。
路灯安装施工方案一、完整的分项工程施工方案及质量保障措施一)基础施工我们的公司会对施工现场进行详细勘察,确定哪些部分具备施工条件并优先进行施工。
具体施工方案如下:a。
根据业主提供的施工图进行施工定位,根据施工图尺寸和地质报告进行基础土方和管理道沟槽的开挖。
如果在基坑开挖时遇到地下地质变化或障碍物,我们会及时报告业主并办理相关手续,得到批准后再进行施工。
基础开挖后,我们会夯实垫层并做好隐蔽工程记录。
b。
进行现场浇砼基础。
在基坑开挖的同时,根据施工规范和施工图制作基础钢筋。
在浇注时,地脚螺栓和电缆预埋管必须安装牢固并位置准确,螺栓必须垂直,并在螺栓部分上黄油后包扎好,以防碰坏丝扣。
我们使用振动泵进行浇注,并在浇注完毕后由专人浇水养护。
基础模板的安装水平尺寸误差不得超过1%,混凝土浇注后,模板表面必须擦拭干净,不留有水混残渣等异物。
基础模板由基础螺栓上的螺母上、下拧紧,螺栓丝扣露出模板的长度不得小于基础图上标注的长度。
只有达到规范规定的时间要求后,我们才能进行拆模。
二)电缆敷设我们会严格按照《电气装置安装工程电缆线路施工及验收规范》(GB-92)的要求进行电缆敷设。
电缆施工内容包括:拖车穿管敷设、锯断、剥切制作接头,引入灯具接线,做标记,接地检测等。
照明电缆敷设包括:测量位置,敷设增强塑料管电缆,埋标识桩,接地检测等内容。
在使用拖车和穿管器敷设时,注意不能拉紧,敷设前要检查管内是否通顺无杂物,管口无毛刺,一旦出现异常情况,要及时处理。
在敷设完成后,我们会做好端头。
电缆的中间接头按标准的干包接头做法施工,做到接头牢固可靠,并尽量减少中间接头。
对已有预埋管道进行检查,对电缆进行检验,检验用500伏兆欧表测量,绝缘电阻不得低于10兆欧,电缆弯曲半径不得小于规定。
从手孔井至各路灯之间的管内电缆敷设、进入控制箱、配电箱的终端头应有记载电缆规格、型号、线路名称、回路等的电缆指示牌。
在地下管内的电缆不得有接头或伤痕。