很全的挡土墙设计
- 格式:doc
- 大小:3.56 MB
- 文档页数:20
五种常见挡土墙的设计计算实例
挡土墙是一种用于防止土方滑坡和土壤侵蚀的土木结构,常用于公路、铁路、水利工程等项目中。
设计一个挡土墙需要考虑多个因素,包括土壤
性质、挡土墙的高度和倾角、抗滑稳定性等。
以下是五种常见挡土墙的设
计计算实例:
1.重力挡土墙设计:
重力挡土墙是最简单的挡土墙类型,靠自身的重力使其稳定。
设计时
需要计算挡土墙的底部摩擦力、上部土压力以及挡土墙的自重。
2.填土挡土墙设计:
填土挡土墙是利用挡土墙后面的填土来平衡土压力的一种结构。
设计
时需要计算挡土墙的自重和填土的重量以及土与墙之间的摩擦力。
3.墙身倾斜挡土墙设计:
墙身倾斜挡土墙是指挡土墙的外侧墙面倾斜,以增加土体与墙之间的
摩擦力,提高稳定性。
设计时需要计算倾斜挡土墙的自重、上部土压力和
墙身倾斜带来的附加力。
4.箱形式挡土墙设计:
箱形式挡土墙是由钢片或混凝土墙板拼接而成的结构形式,其内部填
充土体以平衡土压力。
设计时需要计算挡土墙板的自重和填充土的重量。
5.挡土墙加筋设计:
挡土墙加筋设计是为了增加挡土墙的稳定性和承载能力,常用的加筋方式有钢筋混凝土挡土墙和钢束挡土墙。
设计时需要计算挡土墙的自重、土压力以及加筋材料的受力情况。
以上是五种常见挡土墙的设计计算实例,每一种挡土墙都有其适用的场景和设计要点。
实际设计时还需要考虑地质条件、降雨等因素对土体的影响,以确保挡土墙的稳定性和安全性。
五种常见挡土墙的设计计算实例挡土墙是一种用来抵御土体压力而阻挡土体滑动的结构。
根据土方的性质和施工条件的不同,挡土墙可以采用不同的设计计算方法。
以下是五种常见挡土墙的设计计算实例:1.重力挡土墙:重力挡土墙是最简单和常见的挡土墙类型。
它的抗滑力主要靠墙体的自重来提供。
设计计算中,需要确定墙体的稳定安全系数,并根据土方的强度和墙体材料的重量来确定墙体尺寸。
例如,假设挡土墙高度为10米,土方的角度为30度,考虑到土方的自重和墙体的自重,需要确保挡土墙的稳定系数大于1.52.反滑挡土墙:反滑挡土墙通过墙后的土压力,抵消土方的滑动力。
设计计算中,需要根据土方的角度、土的重量和墙体材料的摩擦系数来确定墙体尺寸。
例如,假设土方的角度为20度,土的重量为20kN/m3,墙体材料的摩擦系数为0.6,需要计算出墙体的抗滑力,并确保墙体的稳定系数大于1.53.剪切挡土墙:剪切挡土墙是一种由水平和垂直墙体组成的结构。
水平墙体抵抗土压力,垂直墙体抵抗土体的剪切力。
设计计算中,需要根据土方的性质、墙体的尺寸和材料的强度来计算出水平和垂直墙体的稳定性。
例如,假设土方的角度为25度,墙体材料的强度为30MPa,需要计算出水平墙体的尺寸和稳定安全系数,以及垂直墙体的尺寸和稳定安全系数。
4.底座挡土墙:底座挡土墙是一种在挡土墙底部设置底座,以增加墙体稳定性的结构。
设计计算中,需要根据土方的性质、底座的尺寸和墙体材料的强度来计算出底座的稳定安全系数。
例如,假设土方的角度为30度,底座的尺寸为2米,墙体材料的强度为40MPa,需要计算出底座的稳定性和稳定安全系数。
5.锚固挡土墙:锚固挡土墙是一种在挡土墙背后设置锚杆或土钉,以增加墙体的稳定性。
设计计算中,需要根据土方的性质、锚杆或土钉的数量、长度和材料的强度来计算出锚固的稳定安全系数。
例如,假设土方的角度为35度,锚杆的数量为10个,长度为3米,材料的强度为50MPa,需要计算出锚固的稳定性和稳定安全系数。
园林挡土墙五大设计形式一、砌石护土墙砌石护土墙是一种非常古老且经典的设计形式。
它通常由块状或规则状的石材堆砌而成,用于护土和保持墙体的稳定。
这种形式的挡土墙具有坚固耐久的特点,同时其独特的造型和纹理也能为园林增添独特的美感。
砌石护土墙在园林设计中广泛应用,尤其适合于山地和丘陵地区的园林景观。
二、格子挡土墙格子挡土墙是指将挡土墙分割成一块一块的小格子,形成一种有规律的方格状结构。
这种形式的挡土墙一般由混凝土、石材或木材等材料制成,通过将这些材料垂直或倾斜地排列组合成格子形式,增加了挡土墙的强度和稳定性。
格子挡土墙通常用于园林设计中需要划分不同区域的场所,可以起到美化和装饰的作用。
三、植物挡土墙植物挡土墙是一种利用植物来护土的设计形式。
这种形式的挡土墙将植物与土壤结合在一起,通过植物的根系来增强土壤的稳定性。
通常植物挡土墙将多种具有强大根系的植物种植在挡土墙上,如灌木、草本植物等。
植物挡土墙除了起到护土的作用,还能提供美丽的园林景观,形成自然、绿色的墙体。
四、竹子挡土墙竹子挡土墙是一种利用竹子来搭建挡土结构的设计形式。
竹子有着轻巧而坚韧的特点,非常适合用于挡土墙的搭建。
竹子挡土墙的搭建方式一般是将竹子直接插入或绑扎在地面上,形成一种纵向的结构。
这种形式的挡土墙既具有美观性,又具有一定的护土功能,适用于园林景观中的小型挡土墙的建设。
五、砂石挡土墙砂石挡土墙是一种利用砂石来护土的设计形式。
这种形式的挡土墙主要是由大型的砂石组成,通过将砂石码放在一起,形成一个坚固而稳定的挡土结构。
砂石挡土墙具有坚固耐用且透气性好的特点,能够有效防止土壤的滑坡和坍塌。
同时,砂石挡土墙的独特颜色和纹理也能为园林景观增添独特的美感。
以上是园林挡土墙的五大设计形式,每种形式都有其独特的特点和适用范围。
在园林设计中,可以根据需要选择合适的挡土墙形式,既能起到护土的作用,又能为园林景观增添美感。
挡土墙设计一、挡土墙的分类及用途为防止路基填土或山坡土体坍塌而修筑的承受土体侧压力的墙式构造物,称为挡土墙。
在公路工程中,它广泛地用于支撑路堤填土或路堑边坡,以及桥台、隧道洞口和河流堤岸等处。
路基工程中,挡土墙的建筑费用较高,故路基设计时,应与其他可能的工程方案进行技术经济比较,择优选定。
公路工程中的挡土墙主要按下述几种方法进行分类。
按照挡土墙设置的位置,挡土墙可分为:路堑墙、路堤墙、路肩墙和山坡墙等类型,如图2-5-1所示。
按照结构形式,挡土墙可分为:重力式挡土墙、锚定式挡土墙、薄壁式挡土墙、加筋土挡土墙等。
按照墙体材料,挡土墙可分为:石砌挡土墙、混凝土挡土墙、钢筋混凝土挡土墙、钢板挡土墙等。
挡土墙各部分名称如图2-5-1a)所示。
靠回填土或山体的一侧面称为墒背;外露的一侧面称为墙面.也称墙胸;墙的顶面部分称为墙顶;墙的底面部分称为基底或墙底;墙面与墙底的交线称为墙趾;墙背与墙底的变线称为墙踵;墙背与铅垂线的夹角称为墙背倾角a。
挡土墙设置位置不同,其用途也不相同。
路堑墙设置在路堑边坡底部,主要用于支撑开挖后不能自行稳定的山坡,同时可减少挖方数量,降低挖方边坡的高度(图2-5-1a)。
路堤墙设置在高填土路提或陡坡路堤的下方,可以防止路堤边坡或路堤沿基底滑动,同时可以收缩路堤坡脚,减少填方数量,减少拆迁和占地面积(图2-5-1b)。
路肩墙设置在路肩部位,墙顶是路肩的组成部分,其用途与路堤墙相同。
它还可以保护临近路线的既有的重要建筑物(图2-5-1c)。
沿河路堤,在傍水的一侧设置挡土墙,可以防止水流对路基的冲刷和侵蚀,也是减少压缩河床的有效措施(图2-5-1d)。
山坡墙设置在路堑或路堤上方,用于支撑山坡上可能坍滑的覆盖层、破碎岩层或山体滑坡(图2-5-1e、图2-5-1f)。
为一个整体。
在这个整体中起控制作用的是填土与拉筋之间的摩擦力。
面板的作用是阻挡填土坍落挤出,迫使填土与拉筋结合为整体。
加筋土挡土墙属于柔性结构,对地基变形适应性大,建筑高度大,具有省工、省料、施工方便、快速等优点,适用于填土路基。
挡土墙设计(很全面)(一)引言概述:挡土墙设计在土木工程中扮演着重要的角色,用于防止土地滑坡和土壤侵蚀等问题。
本文将从设计原则、工程材料、结构类型、施工方法和监测控制等方面全面介绍挡土墙设计的相关知识。
正文内容:1. 设计原则1.1 考虑土壤特性:设计过程中应充分考虑土壤的力学性质,如抗剪强度、压缩性和液化特性等。
1.2 确定地基条件:对挡土墙的设计应充分了解地基的类型和性质,确定适合的基础形式和尺寸。
1.3 考虑水分影响:挡土墙要考虑降雨和地下水对土体及结构的影响,采取合适的防水措施。
1.4 考虑荷载:挡土墙要根据设计荷载,确定合适的结构类型和尺寸,以确保安全可靠。
2. 工程材料2.1 壤土:选用合适的土体材料,考虑土壤的稳定性和排水性能。
2.2 砖石:挡土墙可选用砖石材料进行建造,要考虑砖石的强度和耐久性。
2.3 预制板材:采用预制板材作为挡土墙的结构材料,具有施工速度快、质量可控的优势。
2.4 钢筋混凝土:挡土墙采用钢筋混凝土结构,具有较好的抗震性能和承载能力。
3. 结构类型3.1 重力挡土墙:以自重为主要抵抗力的挡土墙结构,适用于较低的挡土高度。
3.2 块石挡土墙:采用块石堆砌构成的挡土墙,具有较好的抗坡度能力和抗滑性能。
3.3 框架挡土墙:挡土墙采用钢筋混凝土框架结构,具有较好的刚度和稳定性。
3.4 跳墙:跳墙是一种新型的挡土墙结构,通过斜坡和壁板的组合实现土体自重的平衡。
4. 施工方法4.1 挡土墙基础施工:基础施工包括地基处理、基础开挖和基础填筑等工程。
4.2 挡土墙支护及固结:利用支撑系统对挡土墙进行支护,如钢支撑、土钉和锚杆等。
4.3 应力调整:挡土墙施工过程中要进行应力调整,控制土体变形,确保结构的稳定性。
4.4 坡面护面:挡土墙的坡面需要进行护面处理,可采用混凝土喷涂、草皮覆盖等方法。
4.5 排水系统:为了保证挡土墙的排水性能,需要建立合理的排水系统,包括排水管网和防渗设施。
挡土墙设计(最全)一、挡土墙概述二、挡土墙类型及特点1. 重力式挡土墙(2)混凝土挡土墙:采用现浇或预制混凝土构件,强度高,适用于各种地质条件。
2. 悬臂式挡土墙悬臂式挡土墙由立壁、底板和悬臂三部分组成,通过悬臂承受土压力。
适用于高度较大、地质条件较差的场合。
3. 扶壁式挡土墙扶壁式挡土墙在悬臂式挡土墙的基础上,增加了扶壁结构,提高了挡土墙的稳定性。
适用于高度较大、地质条件较差的场合。
4. 钢板桩挡土墙三、挡土墙设计要点1. 土压力计算在设计挡土墙时,要准确计算土压力。
土压力分为主动土压力、被动土压力和静止土压力,应根据实际情况选择合适的计算方法。
2. 确定挡土墙尺寸根据土压力计算结果,确定挡土墙的尺寸,包括墙身高度、底板宽度、立壁厚度等。
3. 材料选择根据工程需求和地质条件,选择合适的挡土墙材料。
常见的材料有混凝土、砖、石、钢材等。
4. 稳定性分析对挡土墙进行稳定性分析,包括抗滑稳定性、抗倾覆稳定性和地基承载力验算。
5. 细部构造设计考虑排水设施、伸缩缝、沉降缝等细部构造,确保挡土墙的使用寿命和安全性。
四、挡土墙施工注意事项1. 施工前应进行详细的地质勘察,了解地形地貌、土壤性质等条件。
2. 施工过程中,严格遵循设计图纸和施工规范,确保工程质量。
3. 加强施工现场安全管理,预防安全事故发生。
4. 施工完成后,对挡土墙进行验收,确保其满足设计要求。
五、挡土墙维护与监测1. 定期检查挡土墙在使用过程中,应定期进行外观检查,观察是否有裂缝、沉降、位移等现象。
一旦发现问题,要及时进行处理。
2. 维护措施针对检查出的问题,采取相应的维护措施,如修补裂缝、加固结构、清理排水系统等,确保挡土墙的稳定性和安全性。
3. 监测手段安装监测设备,对挡土墙的变形、土压力、地下水位等进行实时监测,以便及时发现潜在风险。
六、挡土墙设计与环境和谐1. 美观性在设计挡土墙时,考虑其与周围环境的协调性,采用合适的材料和造型,使挡土墙成为一道亮丽的风景线。
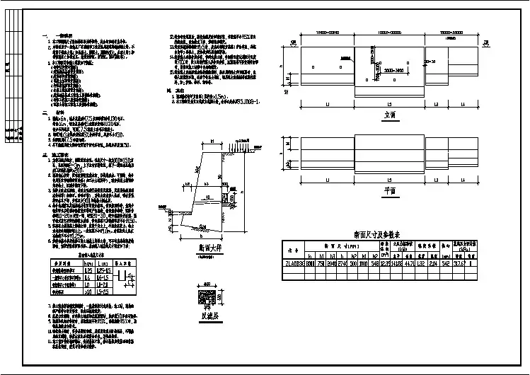
挡土墙设计实例挡土墙是指支承路基填土或山坡土体、防止填土或土体变形失稳的构造物。
在挡土墙横断面中,与被支承土体直接接触的部位称为墙背;与墙背相对的、临空的部位称为墙面;与地基直接接触的部位称为基地;与基底相对的、墙的顶面称为墙顶;基底的前端称为墙趾;基底的后端称为墙踵。
根据挡土墙的设置位置不同,分为路肩墙、路堤墙、路堑墙和山坡墙等。
设置于路堤边坡的挡土墙称为路堤墙;墙顶位于路肩的挡土墙称为路肩墙;设置于路堑边坡的挡土墙称为路堑墙;设置于山坡上,支承山坡上可能坍塌的覆盖层土体或破碎岩层的挡土墙称为山坡墙。
本实例中主要讲述了5种常见挡土墙的设计计算实例。
1、重力式挡土墙------------------------------------------------------------------------原始条件:墙身尺寸:墙身高: 6.500(m)墙顶宽: 0.660(m)面坡倾斜坡度: 1:0.250背坡倾斜坡度: 1:0.200采用1个扩展墙址台阶:墙趾台阶b1: 0.300(m)墙趾台阶h1: 0.500(m)墙趾台阶与墙面坡坡度相同墙底倾斜坡率: 0.200:1物理参数:圬工砌体容重: 23.000(kN/m3)圬工之间摩擦系数: 0.400地基土摩擦系数: 0.500砌体种类: 片石砌体砂浆标号: 5石料强度(MPa): 30挡土墙类型: 一般挡土墙墙后填土内摩擦角: 35.000(度)墙后填土粘聚力: 0.000(kPa)墙后填土容重: 19.000(kN/m3)墙背与墙后填土摩擦角: 17.500(度)地基土容重: 18.000(kN/m3)修正后地基土容许承载力: 500.000(kPa)地基土容许承载力提高系数:墙趾值提高系数: 1.200墙踵值提高系数: 1.300平均值提高系数: 1.000墙底摩擦系数: 0.500地基土类型: 土质地基地基土内摩擦角: 30.000(度)土压力计算方法: 库仑坡线土柱:坡面线段数: 2折线序号水平投影长(m) 竖向投影长(m) 换算土柱数1 3.000 2.000 02 5.000 0.000 0坡面起始距离: 0.000(m)地面横坡角度: 20.000(度)墙顶标高: 0.000(m)挡墙分段长度: 10.000(m)===================================================================== 组合1(仅取一种组合计算)=============================================组合系数: 1.0001. 挡土墙结构重力分项系数 = 1.000 √2. 墙顶上的有效永久荷载分项系数 = 1.000 √3. 墙顶与第二破裂面间有效荷载分项系数 = 1.000 √4. 填土侧压力分项系数 = 1.000 √5. 车辆荷载引起的土侧压力分项系数 = 1.000 √=============================================[土压力计算] 计算高度为 7.309(m)处的库仑主动土压力无荷载时的破裂角 = 28.320(度)按实际墙背计算得到:第1破裂角: 28.320(度)Ea=244.312 Ex=214.072 Ey=117.736(kN) 作用点高度 Zy=2.627(m) 因为俯斜墙背,需判断第二破裂面是否存在,计算后发现第二破裂面不存在墙身截面积 = 15.518(m2) 重量 = 356.925 kN(一) 滑动稳定性验算基底摩擦系数 = 0.500采用倾斜基底增强抗滑动稳定性,计算过程如下:基底倾斜角度 = 11.310 (度)Wn = 349.993(kN) En = 157.432(kN) Wt = 69.999(kN) Et = 186.825(kN) 滑移力= 116.827(kN) 抗滑力= 253.713(kN)滑移验算满足: Kc = 2.172 > 1.300滑动稳定方程验算:滑动稳定方程满足: 方程值 = 164.582(kN) > 0.0地基土摩擦系数 = 0.500地基土层水平向: 滑移力= 214.072(kN) 抗滑力= 252.070(kN)地基土层水平向: 滑移验算不满足: Kc2 = 1.177 <= 1.300(二) 倾覆稳定性验算相对于墙趾点,墙身重力的力臂 Zw = 2.186 (m)相对于墙趾点,Ey的力臂 Zx = 3.521 (m)相对于墙趾点,Ex的力臂 Zy = 1.818 (m)验算挡土墙绕墙趾的倾覆稳定性倾覆力矩= 389.149(kN-m) 抗倾覆力矩= 1194.778(kN-m)倾覆验算满足: K0 = 3.070 > 1.500倾覆稳定方程验算:倾覆稳定方程满足: 方程值 = 649.592(kN-m) > 0.0(三) 地基应力及偏心距验算基础为天然地基,验算墙底偏心距及压应力取倾斜基底的倾斜宽度验算地基承载力和偏心距作用于基础底的总竖向力 = 507.426(kN) 作用于墙趾下点的总弯矩=805.628(kN-m) 基础底面宽度 B = 4.127 (m) 偏心距 e = 0.476(m)基础底面合力作用点距离基础趾点的距离 Zn = 1.588(m)基底压应力: 趾部=208.008 踵部=37.896(kPa)最大应力与最小应力之比 = 208.008 / 37.896 = 5.489作用于基底的合力偏心距验算满足: e=0.476 <= 0.167*4.127 = 0.688(m)墙趾处地基承载力验算满足: 压应力=208.008 <= 600.000(kPa)墙踵处地基承载力验算满足: 压应力=37.896 <= 650.000(kPa)地基平均承载力验算满足: 压应力=122.952 <= 500.000(kPa)(四) 基础强度验算基础为天然地基,不作强度验算(五) 墙底截面强度验算验算截面以上,墙身截面积 = 13.946(m2) 重量 = 320.764 kN相对于验算截面外边缘,墙身重力的力臂 Zw = 2.134 (m)相对于验算截面外边缘,Ey的力臂 Zx = 3.521 (m)相对于验算截面外边缘,Ex的力臂 Zy = 1.818 (m)[容许应力法]:法向应力检算:作用于验算截面的总竖向力 = 438.499(kN) 作用于墙趾下点的总弯矩=710.021(kN-m) 相对于验算截面外边缘,合力作用力臂 Zn = 1.619(m)截面宽度 B = 3.885 (m) 偏心距 e1 = 0.323(m)截面上偏心距验算满足: e1= 0.323 <= 0.250*3.885 = 0.971(m)截面上压应力: 面坡=169.225 背坡=56.514(kPa)压应力验算满足: 计算值= 169.225 <= 800.000(kPa)切向应力检算:剪应力验算满足: 计算值= 9.954 <= 80.000(kPa)[极限状态法]:重要性系数0 = 1.000验算截面上的轴向力组合设计值Nd = 438.499(kN)轴心力偏心影响系数醟= 0.923挡墙构件的计算截面每沿米面积A = 3.885(m2)材料抗压极限强度Ra = 1600.000(kPa)圬工构件或材料的抗力分项系数鉬= 2.310偏心受压构件在弯曲平面内的纵向弯曲系数豮= 0.997计算强度时:强度验算满足: 计算值= 438.499 <= 2484.452(kN)计算稳定时:稳定验算满足: 计算值= 438.499 <= 2478.074(kN)(六) 台顶截面强度验算[土压力计算] 计算高度为 6.000(m)处的库仑主动土压力无荷载时的破裂角 = 29.150(度)按实际墙背计算得到:第1破裂角: 29.150(度)Ea=172.939 Ex=151.533 Ey=83.340(kN) 作用点高度 Zy=2.150(m) 因为俯斜墙背,需判断第二破裂面是否存在,计算后发现第二破裂面不存在墙身截面积 = 12.060(m2) 重量 = 277.380 kN[强度验算]验算截面以上,墙身截面积 = 12.060(m2) 重量 = 277.380 kN相对于验算截面外边缘,墙身重力的力臂 Zw = 1.738 (m)相对于验算截面外边缘,Ey的力臂 Zx = 2.930 (m)相对于验算截面外边缘,Ex的力臂 Zy = 2.150 (m)[容许应力法]:法向应力检算:作用于验算截面的总竖向力 = 360.720(kN) 作用于墙趾下点的总弯矩=400.617(kN-m) 相对于验算截面外边缘,合力作用力臂 Zn = 1.111(m)截面宽度 B = 3.360 (m) 偏心距 e1 = 0.569(m)截面上偏心距验算满足: e1= 0.569 <= 0.250*3.360 = 0.840(m)截面上压应力: 面坡=216.516 背坡=-1.802(kPa)压应力验算满足: 计算值= 216.516 <= 800.000(kPa)拉应力验算满足: 计算值= 1.802 <= 80.000(kPa)切向应力检算:剪应力验算满足: 计算值= 2.156 <= 80.000(kPa)[极限状态法]:重要性系数0 = 1.000验算截面上的轴向力组合设计值Nd = 360.720(kN)轴心力偏心影响系数醟= 0.744挡墙构件的计算截面每沿米面积A = 3.360(m2)材料抗压极限强度Ra = 1600.000(kPa)圬工构件或材料的抗力分项系数鉬= 2.310偏心受压构件在弯曲平面内的纵向弯曲系数豮= 0.994计算强度时:强度验算满足: 计算值= 360.720 <= 1730.509(kN)计算稳定时:稳定验算满足: 计算值= 360.720 <= 1720.261(kN)2、衡重式挡土墙------------------------------------------------------------------------ 原始条件:墙身尺寸:墙身总高: 9.600(m)上墙高: 3.400(m)墙顶宽: 0.660(m)台宽: 1.500(m)面坡倾斜坡度: 1:0.150上墙背坡倾斜坡度: 1:0.200下墙背坡倾斜坡度: 1:-0.200采用1个扩展墙址台阶:墙趾台阶b1: 0.300(m)墙趾台阶h1: 0.500(m)墙趾台阶与墙面坡坡度相同墙底倾斜坡率: 0.200:1下墙土压力计算方法: 力多边形法物理参数:圬工砌体容重: 23.000(kN/m3)圬工之间摩擦系数: 0.400地基土摩擦系数: 0.500砌体种类: 片石砌体砂浆标号: 5石料强度(MPa): 30挡土墙类型: 一般挡土墙墙后填土内摩擦角: 35.000(度)墙后填土粘聚力: 0.000(kPa)墙后填土容重: 19.000(kN/m3)墙背与墙后填土摩擦角: 17.500(度)地基土容重: 18.000(kN/m3)修正后地基土容许承载力: 500.000(kPa)地基土容许承载力提高系数:墙趾值提高系数: 1.200墙踵值提高系数: 1.300平均值提高系数: 1.000墙底摩擦系数: 0.500地基土类型: 土质地基地基土内摩擦角: 30.000(度)坡线土柱:坡面线段数: 2折线序号水平投影长(m) 竖向投影长(m) 换算土柱数1 3.000 2.000 02 5.000 0.000 0地面横坡角度: 20.000(度)墙顶标高: 0.000(m)挡墙分段长度: 10.000(m)===================================================================== 组合1(仅取一种组合计算)=============================================组合系数: 1.0001. 挡土墙结构重力分项系数 = 1.000 √2. 填土重力分项系数 = 1.000 √3. 填土侧压力分项系数 = 1.000 √4. 车辆荷载引起的土侧压力分项系数 = 1.000 √=============================================[土压力计算] 计算高度为 10.242(m)处的库仑主动土压力计算上墙土压力无荷载时的破裂角 = 31.060(度)按假想墙背计算得到:第1破裂角: 32.720(度)Ea=148.041 Ex=56.254 Ey=136.937(kN) 作用点高度 Zy=1.260(m) 因为俯斜墙背,需判断第二破裂面是否存在,计算后发现第二破裂面存在:第2破裂角=17.542(度) 第1破裂角=31.060(度)Ea=102.147 Ex=62.124 Ey=81.085(kN) 作用点高度 Zy=1.465(m) 计算下墙土压力无荷载时的破裂角 = 34.222(度)按力多边形法计算得到:破裂角: 34.222(度)Ea=201.028 Ex=199.855 Ey=21.676(kN) 作用点高度 Zy=2.979(m) 墙身截面积 = 25.299(m2) 重量 = 581.869 kN衡重台上填料重 = 90.539(kN) 重心坐标(1.649,-1.646)(相对于墙面坡上角点) (一) 滑动稳定性验算基底摩擦系数 = 0.500采用倾斜基底增强抗滑动稳定性,计算过程如下:基底倾斜角度 = 11.310 (度)Wn = 659.350(kN) En = 152.144(kN) Wt = 131.870(kN) Et = 236.739(kN) 滑移力= 104.869(kN) 抗滑力= 405.747(kN)滑移验算满足: Kc = 3.869 > 1.300滑动稳定方程验算:滑动稳定方程满足: 方程值 = 353.905(kN) > 0.0地基土摩擦系数 = 0.500地基土层水平向: 滑移力= 261.979(kN) 抗滑力= 396.867(kN)地基土层水平向: 滑移验算满足: Kc2 = 1.515 > 1.300(二) 倾覆稳定性验算相对于墙趾,墙身重力的力臂 Zw = 2.308 (m)相对于墙趾,上墙Ey的力臂 Zx = 4.117 (m)相对于墙趾,上墙Ex的力臂 Zy = 7.665 (m)相对于墙趾,下墙Ey的力臂 Zx3 = 3.807 (m)相对于墙趾,下墙Ex的力臂 Zy3 = 2.337 (m)验算挡土墙绕墙趾的倾覆稳定性倾覆力矩= 943.130(kN-m) 抗倾覆力矩= 2066.104(kN-m)倾覆验算满足: K0 = 2.191 > 1.500倾覆稳定方程验算:倾覆稳定方程满足: 方程值 = 793.025(kN-m) > 0.0(三) 地基应力及偏心距验算基础为天然地基,验算墙底偏心距及压应力取倾斜基底的倾斜宽度验算地基承载力和偏心距作用于基础底的总竖向力 = 811.494(kN) 作用于墙趾下点的总弯矩=1122.975(kN-m) 基础底面宽度 B = 3.275 (m) 偏心距 e = 0.254(m)基础底面合力作用点距离基础趾点的距离 Zn = 1.384(m)基底压应力: 趾部=362.948 踵部=132.600(kPa)最大应力与最小应力之比 = 362.948 / 132.600 = 2.737作用于基底的合力偏心距验算满足: e=0.254 <= 0.167*3.275 = 0.546(m)墙趾处地基承载力验算满足: 压应力=362.948 <= 600.000(kPa)墙踵处地基承载力验算满足: 压应力=132.600 <= 650.000(kPa)地基平均承载力验算满足: 压应力=247.774 <= 500.000(kPa)(四) 基础强度验算基础为天然地基,不作强度验算(五) 上墙截面强度验算上墙重力 Ws = 98.141 (kN)上墙墙背处的 Ex = 62.124 (kN)上墙墙背处的 Ey = 12.425 (kN)相对于上墙墙趾,上墙重力的力臂 Zw = 0.889 (m)相对于上墙墙趾,上墙Ex的力臂 Zy = 1.465 (m)相对于上墙墙趾,上墙Ey的力臂 Zx = 1.557 (m)[容许应力法]:法向应力检算:相对于上墙墙趾,合力作用力臂 Zn = 0.141(m)截面宽度 B = 1.850 (m) 偏心距 e1 = 0.784(m)截面上偏心距验算不满足: e1= 0.784 > 0.250*1.850 = 0.463(m) 截面上压应力: 面坡=211.665 背坡=-92.134(kPa)压应力验算满足: 计算值= 211.665 <= 800.000(kPa)拉应力验算不满足: 计算值= 92.134 > 80.000(kPa) 切向应力检算:剪应力验算满足: 计算值= 9.674 <= 80.000(kPa)斜截面剪应力检算斜剪应力验算满足: 计算值= 41.598 <= 80.000(kPa)[极限状态法]:重要性系数0 = 1.000验算截面上的轴向力组合设计值Nd = 110.566(kN)轴心力偏心影响系数醟= 0.233挡墙构件的计算截面每沿米面积A = 1.850(m2)材料抗压极限强度Ra = 1600.000(kPa)圬工构件或材料的抗力分项系数鉬= 2.310偏心受压构件在弯曲平面内的纵向弯曲系数豮= 0.981计算强度时:强度验算满足: 计算值= 110.566 <= 298.521(kN)计算稳定时:稳定验算满足: 计算值= 110.566 <= 292.889(kN)(六) 墙底截面强度验算验算截面以上,墙身截面积 = 24.226(m2) 重量 = 557.198 kN相对于验算截面外边缘,墙身重力的力臂 Zw = 2.313 (m)[容许应力法]:法向应力检算:作用于截面总竖向力 = 750.498(kN) 作用于墙趾下点的总弯矩=1106.215(kN-m) 相对于验算截面外边缘,合力作用力臂 Zn = 1.474(m)截面宽度 B = 3.340 (m) 偏心距 e1 = 0.196(m)截面上偏心距验算满足: e1= 0.196 <= 0.250*3.340 = 0.835(m)截面上压应力: 面坡=303.826 背坡=145.574(kPa)压应力验算满足: 计算值= 303.826 <= 800.000(kPa)切向应力检算:剪应力验算满足: 计算值= -11.443 <= 80.000(kPa)[极限状态法]:重要性系数0 = 1.000验算截面上的轴向力组合设计值Nd = 750.498(kN)轴心力偏心影响系数醟= 0.960挡墙构件的计算截面每沿米面积A = 3.340(m2)材料抗压极限强度Ra = 1600.000(kPa)圬工构件或材料的抗力分项系数鉬= 2.310偏心受压构件在弯曲平面内的纵向弯曲系数豮= 0.968计算强度时:强度验算满足: 计算值= 750.498 <= 2221.592(kN)计算稳定时:稳定验算满足: 计算值= 750.498 <= 2149.911(kN)(七) 台顶截面强度验算[土压力计算] 计算高度为 9.100(m)处的库仑主动土压力计算上墙土压力无荷载时的破裂角 = 31.060(度)按假想墙背计算得到:第1破裂角: 32.720(度)Ea=148.041 Ex=56.254 Ey=136.937(kN) 作用点高度 Zy=1.260(m) 因为俯斜墙背,需判断第二破裂面是否存在,计算后发现第二破裂面存在:第2破裂角=17.542(度) 第1破裂角=31.060(度)Ea=102.147 Ex=62.124 Ey=81.085(kN) 作用点高度 Zy=1.465(m) 计算下墙土压力无荷载时的破裂角 = 34.075(度)按力多边形法计算得到:破裂角: 34.075(度)Ea=156.451 Ex=155.539 Ey=16.870(kN) 作用点高度 Zy=2.522(m)[强度验算]验算截面以上,墙身截面积 = 22.550(m2) 重量 = 518.644 kN相对于验算截面外边缘,墙身重力的力臂 Zw = 2.358 (m)[容许应力法]:法向应力检算:作用于截面总竖向力 = 707.137(kN) 作用于墙趾下点的总弯矩=830.127(kN-m) 相对于验算截面外边缘,合力作用力臂 Zn = 1.174(m)截面宽度 B = 3.065 (m) 偏心距 e1 = 0.359(m)截面上偏心距验算满足: e1= 0.359 <= 0.250*3.065 = 0.766(m)截面上压应力: 面坡=392.661 背坡=68.767(kPa)压应力验算满足: 计算值= 392.661 <= 800.000(kPa)切向应力检算:剪应力验算满足: 计算值= -21.270 <= 80.000(kPa)[极限状态法]:重要性系数0 = 1.000验算截面上的轴向力组合设计值Nd = 707.137(kN)轴心力偏心影响系数醟= 0.859挡墙构件的计算截面每沿米面积A = 3.065(m2)材料抗压极限强度Ra = 1600.000(kPa)圬工构件或材料的抗力分项系数鉬= 2.310偏心受压构件在弯曲平面内的纵向弯曲系数豮= 0.959计算强度时:强度验算满足: 计算值= 707.137 <= 1823.443(kN)计算稳定时:稳定验算满足: 计算值= 707.137 <= 1749.052(kN)=====================================================================3、加筋土挡土墙------------------------------------------------------------------------ 原始条件:墙身尺寸:墙身总高: 8.200(m)筋带竖向间距是否不等: 否单个筋带厚: 1(mm)筋带水平方向间距: 0.420(m)筋带竖直方向间距: 0.400(m)筋带长度竖向分段数: 2分段序号高度(m) 筋带长(m)1 6.000 6.0002 2.200 4.000筋带序号筋带宽(m)1 0.2002 0.2003 0.2004 0.2005 0.2006 0.2007 0.2008 0.2009 0.20010 0.20011 0.20012 0.20013 0.20014 0.20015 0.20016 0.20017 0.20018 0.20019 0.20020 0.200物理参数:加筋土容重: 20.000(kN/m3)加筋土内摩擦角: 35.000(度)筋带容许拉应力: 50.000(MPa)土与筋带之间的摩擦系数: 0.400加筋土浮容重: 10.000(kN/m3)地基土浮重度: 10.000(kN/m3)筋带抗拔力计算调节系数: 1.400筋带材料抗拉计算调节系数: 1.000筋带材料强度标准值: 240.000(MPa)筋带材料抗拉性能的分项系数: 1.250挡土墙类型: 一般挡土墙墙后填土内摩擦角: 35.000(度)墙后填土粘聚力: 0.000(kPa)墙后填土容重: 19.000(kN/m3)地基土容重: 18.000(kN/m3)修正后地基土容许承载力: 500.000(kPa)地基土容许承载力提高系数:墙趾值提高系数: 1.200墙踵值提高系数: 1.300平均值提高系数: 1.000墙底摩擦系数: 0.500地基土类型: 土质地基地基土内摩擦角: 30.000(度)坡线土柱:坡面线段数: 2折线序号水平投影长(m) 竖向投影长(m) 换算土柱数1 3.000 2.000 02 5.000 0.000 0地面横坡角度: 20.000(度)墙顶标高: 0.000(m)挡墙分段长度: 10.000(m)计算参数:稳定计算目标: 给定圆心,半径计算安全系数圆心X坐标: -2.000(m)圆心Y坐标: 10.000(m)半径: 15.000(m)筋带对稳定的作用: 筋带力沿圆弧切线内部稳定分析采用方法: 应力分析法条分法的土条宽度: 0.500(m)墙后填土粘聚力: 10.000(kPa)墙体填土粘聚力: 10.000(kPa)地基土粘聚力: 10.000(kPa)土条切向分力与滑动方向反向时: 当作下滑力对待===================================================================== 第 1 种情况: 组合1=============================================组合系数: 1.0001. 挡土墙结构重力分项系数 = 1.000 √2. 填土侧压力分项系数 = 1.000 √3. 车辆荷载引起的土侧压力分项系数 = 1.000 √=============================================----------------------------------------------------------内部稳定性验算采用应力分析法(一) 应力分析法筋带号宽度总长度稳定区竖向压应水平应最大拉力抗拉力抗拔力 (m) (m) 长度(m) 力(kPa) 力(kPa) 设计值(kN) (kN) (kN)01 0.200 6.000 3.540 46.000 19.139 3.215 38.400 18.61002 0.200 6.000 3.540 54.000 21.908 3.681 38.400 21.84703 0.200 6.000 3.540 62.000 24.511 4.118 38.400 25.08304 0.200 6.000 3.540 70.000 26.948 4.527 38.400 28.32005 0.200 6.000 3.540 78.000 29.220 4.909 38.400 31.55706 0.200 6.000 3.540 86.000 31.326 5.263 38.400 34.79307 0.200 6.000 3.540 94.000 33.265 5.589 38.400 38.03008 0.200 6.000 3.540 102.000 35.040 5.887 38.400 41.26609 0.200 6.000 3.605 110.000 36.648 6.157 38.400 45.32510 0.200 6.000 3.814 118.000 38.091 6.399 38.400 51.42911 0.200 6.000 4.022 126.000 39.367 6.614 38.400 57.91512 0.200 6.000 4.230 134.000 40.478 6.800 38.400 64.78113 0.200 6.000 4.438 142.000 41.423 6.959 38.400 72.02714 0.200 6.000 4.647 150.000 42.203 7.090 38.400 79.65515 0.200 4.000 2.855 158.000 42.816 7.193 38.400 51.54916 0.200 4.000 3.063 166.000 44.984 7.557 38.400 58.10917 0.200 4.000 3.271 174.000 47.152 7.922 38.400 65.05018 0.200 4.000 3.479 182.000 49.320 8.286 38.400 72.37219 0.200 4.000 3.688 190.000 51.488 8.650 38.400 80.07520 0.200 4.000 3.896 198.000 53.656 9.014 38.400 88.158单个筋带结点抗拔稳定满足: 拉力设计值=3.215 <= 18.610(kN)筋带截面抗拉强度验算满足: 拉力设计值=9.014 <= 38.400(kN)全墙抗拔验算满足: 最小安全系数=11.415 >= 2.000----------------------------------------------------------外部稳定性验算[土压力计算] 计算墙背处的库仑主动土压力按假想墙背计算得到:第1破裂角: 32.600(度)Ea=246.817 Ex=202.181 Ey=141.568(kN) 作用点高度 Zy=3.400(m) 墙身截面积 = 44.800(m2) 重量 = 896.000 kN墙顶上的土重(包括超载) = 171.000(kN) 重心坐标(3.667,0.889)(相对于墙面坡上角点) 墙顶上的土重(不包括超载) = 171.000(kN) 重心坐标(3.667,0.889)(相对于墙面坡上角点) (一) 滑动稳定性验算基底摩擦系数 = 0.500滑移力= 202.181(kN) 抗滑力= 604.284(kN)滑移验算满足: Kc = 2.989 > 1.300滑动稳定方程验算:滑动稳定方程满足: 方程值 = 455.454(kN) > 0.0(二) 倾覆稳定性验算相对于墙趾点,墙身重力的力臂 Zw = 2.804 (m)相对于墙趾点,墙土压力Ey的力臂 Zx = 6.000 (m)相对于墙趾点,墙土压力Ex的力臂 Zy = 3.400 (m)验算挡土墙绕墙趾的倾覆稳定性倾覆力矩= 687.414(kN-m) 抗倾覆力矩= 3988.410(kN-m)倾覆验算满足: K0 = 5.802 > 1.500倾覆稳定方程验算:倾覆稳定方程满足: 方程值 = 2673.196(kN-m) > 0.0(三) 地基应力及偏心距验算基础为天然地基,验算墙底偏心距及压应力作用于基础底的总竖向力 = 1208.568(kN) 作用于墙趾下点的总弯矩=3300.996(kN-m)墙计算宽度 B = 6.000 (m) 偏心距 e = 0.269(m)墙底面合力作用点距离墙趾点的距离 Zn = 2.731(m)基底压应力: 墙趾=255.546 墙踵=147.310(kPa)最大应力与最小应力之比 = 255.546 / 147.310 = 1.735作用于基底的合力偏心距验算满足: e=0.269 <= 0.167*6.000 = 1.000(m) 墙趾处地基承载力验算满足: 压应力=255.546 <= 600.000(kPa)墙踵处地基承载力验算满足: 压应力=147.310 <= 650.000(kPa)地基平均承载力验算满足: 压应力=201.428 <= 500.000(kPa)(四) 整体稳定验算圆心: (-2.000,10.000)半径 = 15.000(m)安全系数 = 1.802总的下滑力 = 1214.149(kN)总的抗滑力 = 2188.340(kN)土体部分下滑力 = 1214.149(kN)土体部分抗滑力 = 2188.340(kN)筋带的抗滑力 = 0.000(kN)整体稳定验算满足: 最小安全系数=1.802 >= 1.2504、桩板式挡土墙原始条件:墙身尺寸:桩总长: 16.000(m)嵌入深度: 6.000(m)截面形状: 方桩桩宽: 1.000(m)桩高: 1.500(m)桩间距: 3.500(m)挡土板的类型数: 2板类型号板厚(m) 板宽(m) 板块数1 0.200 0.500 82 0.200 0.500 8嵌入段土层数: 1柱底支承条件: 铰接计算方法: M法土层序号土层厚(m) 重度(kN/m3) M(MN/m4) 1 50.000 18.000 10.000初始弹性系数A: 0.000(MN/m3)初始弹性系数A1: 0.000(MN/m3)物理参数:桩混凝土强度等级: C40桩纵筋合力点到外皮距离: 35(mm)桩纵筋级别: HRB335桩箍筋级别: HPB235桩箍筋间距: 150(mm)板混凝土强度等级: C30板纵筋合力点到外皮距离: 35(mm)板纵筋级别: HRB335挡土墙类型: 一般挡土墙墙后填土内摩擦角: 35.000(度)墙后填土粘聚力: 0.000(kPa)墙后填土容重: 19.000(kN/m3)墙背与墙后填土摩擦角: 17.500(度)土压力计算方法: 库仑坡线土柱:坡面线段数: 2折线序号水平投影长(m) 竖向投影长(m) 换算土柱数1 3.000 2.000 02 5.000 0.000 0地面横坡角度: 20.000(度)墙顶标高: 0.000(m)挡墙分段长度: 10.000(m)钢筋混凝土配筋计算依据:《混凝土结构设计规范》(GB 50010--2002)===================================================================== 第 1 种情况: 组合1注意:内力计算时,土压力分项(安全)系数 = 1.000[土压力计算] 计算高度为 10.000(m)处的库仑主动土压力无荷载时的破裂角 = 31.530(度)第1破裂角: 31.530(度)Ea=313.264 Ex=298.765 Ey=94.200(kN) 作用点高度 Zy=3.584(m)(一) 桩身内力计算计算方法: m 法背侧——为挡土侧;面侧——为非挡土侧。
挡土墙设计一.挡土墙的分类及用处为防止路基填土或山坡土体坍塌而构筑的推却土体侧压力的墙式构造物,称为挡土墙.在公路工程中,它普遍地用于支持路堤填土或路堑边坡,以及桥台.地道洞口和河道堤岸等处.路基工程中,挡土墙的建筑费用较高,故路基设计时,应与其他可能的工程计划进行技巧经济比较,择优选定.公路工程中的挡土墙重要按下述几种办法进行分类.按照挡土墙设置的地位,挡土墙可分为:路堑墙.路堤墙.路肩墙和山坡墙等类型,如图2-5-1所示.按照构造情势,挡土墙可分为:重力式挡土墙.锚定式挡土墙.薄壁式挡土墙.加筋土挡土墙等.按照墙体材料,挡土墙可分为:石砌挡土墙.混凝土挡土墙.钢筋混凝土挡土墙.钢板挡土墙等.挡土墙各部分名称如图2-5-1a)所示.靠回填土或山体的一正面称为墒背;外露的一正面称为墙面.也称墙胸;墙的顶面部分称为墙顶;墙的底面部分称为基底或墙底;墙面与墙底的交线称为墙趾;墙背与墙底的变线称为墙踵;墙背与铅垂线的夹角称为墙背倾角a.挡土墙设置地位不合,其用处也不雷同.路堑墙设置在路堑边坡底部,重要用于支持开挖后不克不及自行稳固的山坡,同时可削减挖方数目,降低挖方边坡的高度(图2-5-1a).路堤墙设置在高填土路提或陡坡路堤的下方,可以防止路堤边坡或路堤沿基底滑动,同时可以紧缩路堤坡脚,削减填方数目,削减拆迁和占地面积(图2-5-1b).路肩墙设置在路肩部位,墙顶是路肩的构成部分,其用处与路堤墙雷同.它还可以呵护邻近路线的既有的重要建筑物(图2-5-1c).沿河路堤,在傍水的一侧设置挡土墙,可以防止水流对路基的冲刷和侵蚀,也是削减紧缩河床的有用措施(图2-5-1d).山坡墙设置在路堑或路堤上方,用于支持山坡上可能坍滑的笼罩层.破裂岩层或山体滑坡(图2-5-1e.图2-5-1f).为一个整体.在这个整体中起掌握感化的是填土与拉筋之间的摩擦力.面板的感化是阻拦填土坍落挤出,迫使填土与拉筋结合为整体.加筋土挡土墙属于柔性构造,对地基变形顺应性大,建筑高度大,具有省工.省料.施工便利.快速等长处,实用于填土路基.3.锚定式挡土墙锚定式挡土墙可分为锚杆式和锚定板式两种.锚杆式挡土墙是由预制的钢筋混凝土立柱.挡土板构成墙面,与程度或竖直的钢锚杆结合构成,如图2-5-3a)所示.锚杆的一端与立柱连接,另一端被锚固在山坡深处的稳固岩层或土层中.墙后侧向土压力由挡土板传结立柱,由锚杆与稳固岩层或上层之间的锚固力,使墙获得稳固.它实用于墙高较大,缺少石料或挖基艰苦地区,具有锚固前提的路堑挡土墙.锚定板式挡土墙是由钢筋混凝土墙面.钢拉杆.锚走板以及其间的填土配合形成的一种组合挡土构造,如图2-5-3b)所示.它借助于埋在填土内的锚定板的抗拔力抵抗侧土压力,保持墙的稳固.锚定式挡土墙的特色在于构件断面小,工程量省,不受地基承载力的限制,构件可预制.有利于实现构造轻型化和施工机械化.它实用于缺少石料地区的路肩墙或路堤墙;4.薄壁式挡土墙薄壁式挡土墙属于钢筋混凝土构造,可以分为悬臂式和扶壁式两种.第8-2节重力式挡土墙的构造与安插经常运用的重力式挡土墙,一般由墙身.基本.排水举措措施和沉降.伸缩缝等几部分构成.(一)墙身1.墙背根据墙背竖直偏向的不合,墙身断面情势可分为仰斜.垂直.俯斜.凸形折线式和衡重式等几种.如图2-5-5所示.以仰斜.垂直和俯斜式三种不合的墙背所受的土压力剖析,在墙高和墙后填料等前提雷同时,仰斜墙背所受的土压力为最小,垂直墙背次之,俯斜墙背较大;是以仰斜式的墙身断面较经济.用于路堑墙时,墙背与开挖的暂时边坡较贴合,开挖量与回填量均较小.但当墙趾处地面横坡较陡时,采取仰斜式墙背会增长墙高,断面增大.故仰斜墙背实用于路堑墙及墙趾处地面平展的路肩墙或路堤墙.仰斜墙背的坡度愈缓,所受的土压力愈小,但施工愈艰苦,故仰斜墙背的坡度不宜缓于1:0.3.俯斜墙背所受的土压力较大,相对而言,俯斜墙背的断面比仰斜式要大.但当地面横坡较陡时,俯斜式挡土墙可采取陡直的墙面,从而减小墙高.俯斜墙背的坡度缓些固然对施工有利,但所受的土压力亦随之增长,致使断面增大,是以墙背坡度不宜过缓,平日掌握a<21°48′(即1:0.4).垂直墙背的持点介于仰斜和俯斜墙背之间.凸形折线墙背系将仰斜式挡土墙的上部墙背改为俯斜,以减小上部断面尺寸,故其断面较为经济,多用于路堑墙,也可用于路肩墙.衡重式墙背可视为在凸形折线式的高低墙之间设一衡重台,并采取陡直的墙面.上墙俯斜墙背的坡度平日为1:0.25~1:0.45,下墙仰斜墙背的坡度一般在1:0.25阁下,高低墙的墙高比一般为2:3.实用于山区地形陡峻处的路肩墙和路堤墙,也可用于路堑墙.2.墙面墙面一般为平面,墙面坡度除应与墙背的坡度相调和外,还应斟酌到墙趾处地面的横坡度(影响挡土墙的高度).当地面横坡度较陡时,墙面可竖立或外斜1:0.05~1:0.20,以削减墙高;当地面横坡平缓时,一般采取1:0.20~1:0.35较为经济.3.墙顶重力式挡土墙可采取浆砌或干砌圬工.墙顶最小宽度,浆砌时边不小于50cm;干砌时应不小于60cm.干砌挡土墙的高度一般不宜大于6m.浆砌挡土墙墙顶运用5号砂浆抹平,或用较大石块砌筑,并勾缝.浆砌路肩墙墙顶宜采取粗料石或混凝土做成顶帽,厚度取40cm.干砌挡土墙顶部50cm厚度内,宜用5号砂浆砌筑,以求稳固.4.护栏为增长驾驶员心理上的安然感,包管行车安然,在地形平缓地段的路肩墙,或墙顶凌驾地面6m以上且持续长度大于20m的路肩墙,或弯道处的路肩墙的墙顶应设置护栏等防护举措措施.护栏分墙式和柱式两种,所采取的材料,护拦高度.宽度,视现实须要而定.护栏内侧边沿距路面边沿的距离,应知足路肩最小宽度的请求.(二)基本地基不良和基本处理不当,往往引起挡土墙的损坏,是以,应看重挡土墙的基本设计.基本设计的程序是:起首应对地基的地质前提作具体查询拜访,须要时须做挖探或钻探,然后再来肯定基本类型与埋置深度.1.基本类型当地基承载力缺少且墙趾处地形平展时,挡土墙大多半都是直接砌筑在自然地基上的浅基本.为削减基底应力和增长抗倾覆稳固性,经常采取扩展基本,如图2-5-6a)所示,将墙趾部分加宽成台阶,或墙趾墙踵同时加宽,以加大承压面积.加宽宽度视基底应力须要削减的程度和加宽后的合力偏幸距的大小而定,一船不小于20cm.台阶高度按基本材料的刚性角的请求肯定,对于砖.片石.块石.粗料石砌体,当用低于5号的砂浆砌筑时,刚性角应不大于35°;对混所示.台阶的高宽比应不大于2:1.台阶宽度不宜小于50cm.最下一个台阶的宽度应知足偏幸距的有关划定,其实不宜小于1.5~.如地基有短段缺口(如深沟等)或挖基因难(如局部地段地基脆弱等),可采取拱形基本,如图2-5-6d)所示,以石砌拱圈跨过,再在其上砌筑墙身.但应留意土压力不宜过大.以免横向推力导致拱圈开裂.设计时应对拱圈予以验算.当地基为脆弱土层,如淤泥.软粘土等,可采取砂砾.碎石.矿渣或石灰土等材料予以换填,以集中基底压应力,使之平均地传递到下卧脆弱土层中.2.基本埋置深度挡土墙基本,应视地形.地质前提埋置足够的深度,以包管挡土墙的稳固性.设置在土质地基上的挡土墙,基底埋置深度应相符下列请求:①无冲刷时,一般应在自然地面下不小于m;⑦有冲刷时,应在冲刷线下不小于m;⑦受冻胀影响时,应在冰陈线以下不小于.非冰胀土层中的基本,例如岩石.卵石.砾石.中砂或粗砂等,埋置深度可不受冻深的限制.挡土墙基本设置在岩石上时,应清除概况风化层;当风化层较厚难以全体清除时,可根据地基的风化程度及其响应的允许承载力将基底埋在风化层中.当墙趾前地面横坡较大时,基本埋置深度用墙趾前的安然襟边宽度l来掌握,以防线基剪切损坏.襟边宽度见表2-5-1.(三)排水举措措施挡土墙的排水处理是否得当,直接影响到挡土墙的安然及运用后果.是以,挡土墙应设置排水举措措施,以疏干墙后坡估中的水分,防止地表水下渗造成墙后积水,从而使墙身免受额外的静水压力;清除粘性土填料因含水量增长产生的膨胀压力;削减季候性冰冻地区填料的冻胀压力.挡土墙的排水举措措施平日内地面排水和墙身排水两部分构成.地面排水可设置地面排水沟,引排地面水;夯实回填土顶面和地面松土,防止雨水和地面水下渗,须要时可加设铺砌;对路堑挡土墙墙趾前的边沟应予以铺砌加固,以防止边沟水渗入基本.墙身排水主如果为了敏捷清除墙后积水.浆砌挡土墙应根据渗水量在墙身的恰当高度处安插泄水孔.如图2-5-7所示.泄水孔尺寸可视泄水量大小分离采取5cm×10cm.10cm×10cm.15cm ×20cm的方孔,或直径5~10cm的圆孔.泄水孔间距一般为2~3M,高低交织设置.最下渗出水孔的底部应凌驾墙趾前地面;当为路堑墙时,出水口应凌驾边沟水位:若为浸水挡土墙.则应凌驾常水位以上,以防止墙外水流倒灌.为防止水分渗入地基,在最下一渗出水孔的底部应设置30cm厚的粘土隔水层.在泄水孔进口处应设置粗粒料反滤层,以防止堵塞孔道.当墙背填土透水性不良或有冻胀可能时,应在墙后最低一渗出水孔到墙顶之间设置厚度不小于的砂.卵石排水层或采取土工布.干砌挡土墙围墙身透水可不设泄水孔.挡墙排水孔(四)沉降缝和仲缩缝为了防止因地基不平均沉陷而引起墙身开裂,应根据地基的地质前提及墙高.墙身断面的变更情形设置沉降缝;为了防止圬工砌体因砂浆硬化紧缩和温度变更而产生裂痕,须设置伸缩缝.平日把沉降缝与伸缩缝归并在一路,统称为沉降伸缩缝或变形缝.沉降伸缩缝的间距按现实情形面定,对于非岩石地基,宜每隔10~15m设置一道沉降伸缩缝;对于岩石地基,其沉降伸缩缝间距可恰当增大.沉降伸缩缝的缝宽—般为2~3cm.浆砌挡土墙的沉降伸缩缝内可用胶泥填塞,但在渗水量大.冻害轻微的地区,宜用沥青麻筋或沥青木板等材料,沿墙内.外顶三边填塞,填深不宜小于15m;当墙背为填石且冻害不轻微时,可仅留闲暇,不嵌填料.对于干砌挡土墙,沉降伸缩缝两侧应选平整石料砌筑,使具形成垂纵贯缝.沉降缝二.挡土墙的安插挡土墙的安插是挡土墙设计的一个重要内容,平日是在路基横断面图和墙趾纵断面图上进行,个体庞杂的挡土墙尚应作平面安插.(一)横向安插横向安插主如果在路基横断面图长进行,其内容有:选择挡土墙的地位.肯定断面情势.绘制挡土墙横断面图等.1.挡土墙的地位选择路堑挡土墙,大多设置在边沟的外侧.路肩墙应保让路基宽度布设.路堤墙应与路肩墙进行技巧经济比较,以肯定墙的合理地位.当路堤墙与路肩墙的墙高或圬工数目邻近,其基本情形亦相仿时,宜做路肩,因为采取路肩墙可削减填方和占地;但当路堤墙的墙高或圬工数目比路肩墙明显降低,且基本靠得住时,则宜做路堤墙.浸水挡土墒应结合河道情形安插,以保持水流顺畅,不致挤压河道而引起局部冲刷.山坡挡土墙应斟酌设在基本靠得住处,墙的高度应包管墙后墙顶以上边坡的稳固性.2.肯定断面情势,绘制挡土墙横断面图不管是路堤墙,照样路肩墙.当地形陡峻时,可采取俯斜式或衡重式;地形平展时,则可采取仰斜式.对路堑墙来说,宜采取仰斜式或折线式.挡土墙横断面图的绘制,选择在起讫点.墙高最大处.墙身断面或基本情势变异处,以及其他必须桩号处的横断面图长进行.根据墙体态式.墙高和地基与填料的物理力学指标等设计材料,进行设计或套用尺度图,肯定墙身断面尺寸,基本情势和埋置深度,安插排水举措措施,指定墙背填料的类型等.(二)纵向安插纵向安插重要在墙趾纵断面图长进行,安插后绘制挡土墙正面图,如图2-5-8所示.1.肯定挡土墙的起讫点和墙长,选择挡土墙与路基或其他构造物的连接方法.路肩墙与路堑连策应嵌入路堑中2~3m;与路堤连接采取锥坡和路堤连接;与桥台连接时.为了防止墙后回填土从桥台尾端与挡土墙连接处的闲暇中溜出,应在台尾与挡土墙之间设置隔墙及接头墙.路堑挡土墙在地道洞口比结合地道洞门.翼墙的设置情形平顺连接;与路堑边坡连接时,一般将墙顶逐渐降低到2m以下,使边坡坡脚不致于伸人边沟内,有时也可用横向端墙连接.2.按地基及地形情形进行分段,安插沉降伸缩缝的地位.3.安插各段挡土墙的基本.沿挡土墙长度偏向有纵坡时,挡土墙的纵向基底宜做成不大于5%的纵坡.当墙址地面纵坡不超出5%时.基底可按此纵坡市置;若大于5%时,应在纵向挖成台阶,台阶的尺寸随地形而变更,但其高宽比不宜大于1:2.地基为岩石时,纵坡虽不大于5%,为削减开挖,也可在纵向做成台阶.1.安插泄水孔和护栏(护桩或护墙)的地位,包含数目.尺寸和间距.5.标注各特点断面的桩号,及墙顶.基本.基底.冲刷线.冰冻线相设计洪水位的标高级.(二)平面安插对于个体庞杂的挡土墙,如高的.长的沿河挡土墙和曲线路段的挡上墙.除了横.纵向安插外,还应作平面安插,并绘制平面安插图.在平面图上,应标示挡土墙与路线平面地位的关系,与挡土墙有关的地物.地貌等情形,沿河挡土墙还应标示河道及水流偏向,以及其他防护.加固工程等.在挡土墙设计图纸上,应附有扼要解释,解释选用挡土墙设计参数的根据,重要工程数目,对材料和施工的请求及留意事项等.以利指点施工.1.根据具体情形,经由过程技巧和经济比较,肯定墙趾地位;2.测绘墙趾处的纵向地面线,查对路基横断面图,收集墙趾处的地质和水文等材料; 3.选择墙后填料,肯定填料的物理力学盘算参数和地基盘算参数;4.进行挡土墙断面情势.构造和材料设计,肯定有关盘算参数;5.进行挡土墙的纵向安插;6.用盘算法或套用标堆图肯定挡土墙的断面尺寸;7.绘制挡土墙立面.横断面和平面图.第8-3节重力式挡土墙盘算当挡土墙的地位.墙高和断面情势肯定后,挡土墙的断面尺寸可经由过程试算的办法肯定,其程序是:①根据经验或尺度图,初步拟定断面尺寸;⑦盘算侧向土压力;③进行稳固性验算和基底应力与偏幸距验算;④当验算成果知足请求时,初拟断面尺寸可作为设计尺寸;当验算成果不克不及知足请求时,采纳恰当的措施使其知足请求,或从新拟定断面尺寸,从新盘算,直至知足请求为止.一.库仑自动土压力盘算挡土墙是支挡土体的构造物,它的断面尺寸与稳固性重要取决于土压力;挡土墙的位移情形不合,可以形成不合性质的土压力.当挡土墙受土体侧压力感化向外位移或倾覆时,土压力随之减小,直到墙后土体达到向下滑动的极限均衡状况时.感化于墙背的土压力称为自动土压力;当挡土墙因为外力感化(如拱桥桥台受到拱圈的推力)向土体挤压移动时,土压力随之增大,直到墙后土体达到向上滑动的极限均衡状况时,土体对墙的抗力称为自动土压力;当挡土墙在本来地位面不产生位移时,感化于墙背的土压力称为静止土压力.路基挡土墙都可能向外位移或倾覆,墙背受到的土压力为自动土压力.对于墙趾前土体的自动土压力(即墙前土的反推力),为偏于安然,往往略去不计.挡土墙推却的自动土压力,一般可按库仑理论盘算.库仑土压力理论假定:墙后填土是松散的.匀质的砂性土;墙体产生位移.使墙后填土达到极限均衡状况,将形成一个滑动土楔体ADC,如图2-5-9所示;其滑裂面是经由过程墙脚的两个平面,一个是墙背AD面.另—个是经由过程墙脚的AC面;滑动土楔体是一个刚性整体.根据土楔体静力均衡前提,可解出墙背上的土压力.本节结合路基挡土墙的设计,介绍库仑自动土压力盘算办法的具体运用.虑在内摩擦角这一参数内,按砂性土的公式盘算其自动土压力.可以按换算前后土的抗剪强度相等的原则或土压力相等的原则来盘算换算内摩擦角ΨD值;平日把粘性土的内摩擦角值增大5°~10°.作为换算内摩擦角,或取换算内摩擦角值为30°~35°.此法固然简略,但是,因为影响土压力数值的身分是多方面的,采取上述换算内摩擦角值,只与某一特定的墙高相顺应,对于墙高小于6m的矮墙是偏于安然的,对于墙嵬峨于6m的高墙则偏于安全.是以,对于矮墙尚可采取这个数值,而对于高墙则应按墙高酌情降低换算内摩擦角,最好核现实的c.Ψ值盘算粘性土的自动土应力.1.力多边形法(数解法)挡土墙的盘算长度,取下述两种长度的较大者:1.取挡土墙的分段长度(系指两沉降伸缩缝间的距离),但应不大于15m.2.取一辆重车的集中长度,集中长度可按以下两式盘算,但当集中长度大于15m时,仍用15m(汽车—超20级感化时,重车的集中长度以不超出20m为度).对于汽车—10级或汽车—15级:·B= 4.2十(2a十H)tan30° (2-5-20)对于汽车—20级和汽车—超20级分离按下式盘算:B=5.6+(2a十H)tan30°,B==13.0+(2a十H)tan30° (2-5-21)式中:B——一辆重车的集中长度,m;H——挡土墙高度,m;a——挡土墙顶面以上的填料高度,m.挡土墙上汽车荷载的安插及验算等代均布土层厚度的肯定,应相符下列请求:1.汽车荷载纵向:当取挡土墙的分段长度时.为分段长度内可能安插的车轮;当取用一辆重车的集中长度时,为一辆重车.横向:上述L0规模内可能安插的车轮.当为路肩墙时,车后轮外缘应靠墙顶内缘安插;若为路堤墙时,车辆外侧后轮中间至路基边沿的距离应不小于m.2.验算荷载荷载应在路面宽度内居中行驶,其等代均布土层厚度划定如下:挂车—100为,挂车—80为,履带—50为(单车道路基为).三.挡土墙稳固性验算为包管挡土墙在土压力及外荷载感化下,有足够的强度及稳固性,在设计挡土墙时,应验算挡土墙沿基底的抗滑动稳固性.绕墙趾的抗倾覆稳固性,基底应力和偏幸距,以及墙身强度等.一般情形下,重要由基底承载力和滑动稳固性来掌握设计,墙身应力可不必验算.挡土墙的力学盘算取单位长度盘算.(一)感化于挡土墙的力系挡土墙设计所用的荷裁与荷载组合按交通部部颁尺度(JTJ021-89)《公路桥涵设计通用规范》的划定采取.当K c<[K c],标明挡土墙的抗滑稳固性缺少,可斟酌采取下列措施,以增长其抗滑动稳固性.1.采取竖直基底,设置向内竖直的基底,可以增长抗滑力和削减滑动力,从而增长抗滑稳固性.基底倾角,对于土质地基不陡于1:5;对于岩石地基不陡于1:3.2.采取凸榫基本,在挡土墙基本底面设置混凝土凸榫,与基本连成整体,运用凸榫前土体所产生的自动土压力以增长挡土墙的抗滑稳固性.3.改换基底土层,以增大基本底面与地基之间的摩擦系数.4.转变墙身断面情势和尺寸,以增大垂直力系,但单纯扩展断面尺寸,见效不大,也不经济.(三)抗倾覆稳固性验算墙趾总的稳固力矩与总的倾覆力矩之比称为抗倾覆稳固系数.用K0暗示.从上述剖析可知,合力偏幸距e0直接影响到基底应力的大小和性质(拉或压),如e0过大,即使基底应力小于地基允许承载力,但因为墙趾压应力σ1与墙踵压应力σ2相差过大,亦可能引起基本产生不平均沉陷,从而导致墙身过火竖直,为此应掌握偏幸距.偏幸距e0应相符下列请求:土质地基:eo≤B/6;石质较差的岩石地基:eo≤B/5;坚硬的岩石地基:eo≤B/4.(五)墙身断面强度盘算重力式挡土墙一般均属于偏幸受压,故截面强度应按偏幸受压构件进行验算:平日选择一两个掌握性断面进行墙身应力和偏幸距验算,如墙身底部.二分之一墙高和断面外形突变处.1.法向应力验算如图2-5-17所示,断面1—1为验算截面.若截面以上墙背受的自动土压力为E1,其程度与当墙身断面消失拉应力时.应斟酌裂痕对受剪面积的折减.一般情形下,因为墙身截面的切应力远小于其允许值,可不进行这方面的验算.第8-4节加筋土挡土墙一.加筋土的特色与基起源基本理加筋土挡土墙自20世纪60年月初问世以来,以其明显的技巧经济效益,被普遍地运用于土木匠程中,同时加筋土技巧本身也逐渐地完美成熟.加筋土挡土墙的根本构造如图2-5-2所示.加筋土挡土墙加筋土工程有以下特色:1.可以做成很高的垂直填土,从而削减占地面积,这对晦气于开挖的地区.城市道路以及地盘名贵地区而言,有着很大的经济效益.2.面板.筋带可以在工场中定形制造.加工,在现场可以用机械分层施工.这种装配式施工办法轻便快速,并且节俭劳动力和缩短工期.3.加筋土是柔性构造物,可以或许顺应地基较大的变形,因而可用于较软的地基上.同时,因为加筋土构造所特有的柔性可以或许很好地接收地震的能量,故其抗震性好.4.造价低廉,据国内部分工程材料统计,加筋土挡土墙的造价一般为钢筋混凝土挡墙的50%,重力式挡土墙的60%~80%.加筋土的基起源基本理是借助于拉筋与填土间的摩擦力来进步填土的抗剪强度,从而包管土体均衡.加筋土体工作时,土和拉筋一路推却外部和内部的荷载,因为土与拉筋之间的摩擦感化,将士中的应力传递给拉筋,而拉筋所产生的拉应力抵抗了土体的程度位移,就似乎在土体中增长了一个内聚力,从而改良了土体的力学特点.是以,土与拉筋间的摩擦感化是加筋土体可否稳固的一个重要身分.土体与拉筋间的摩擦感化是很庞杂的,不但取决于泥土成分.颗粒粒径级配.拉筋种类及其断面外形相尺寸,并且与情外形况.构造类型.荷载方法等有关.取拉筋小的一个微段dL剖析,如图2-5-18所示,设此微段的拉力变更为dT,拉筋宽度为b,感化于拉筋概况土的单位的摩擦感化,拉筋必须有足够的长度;为了推却拉力T i,拉筋又必须有足够的强度.二.加筋土的材料与构造(一)加筋土填料。
挡土墙的设计步骤一、确定墙高二、墙上荷载(主动土压力、墙上移动荷载、振动系数)三、墙体型式四、墙底基底承载力五、计算1)抗倾覆计算(主动土压力+移动荷载*振动系数)2)抗滑动计算(同上)3)墙身水平截面强度验算4)墙身垂直截面变位计算(截面应力校核)六、设计1、根据具体情况,通过技术和经济比较,确定墙址位置;2、测绘墙址处的纵向地面线,核对路基横断面图,收集墙址处的地质和水文等资料;3、选择墙后填料,确定填料的物理力学计算参数和地基计算参数;4、进行挡土墙断面型式、构造和材料设计,确定有关计算参数;5、进行挡土墙的纵向布置;6、用计算法或套用标准图确定挡土墙的断面尺寸;7、绘制挡土墙立面、横断面和平面图。
挡土墙墙身抗弯强度计算:1 按弹性计算;2 砌体为脆性材料,抗拉能力很差;3 应考虑竖向压力产生的压应力与弯曲拉应力的叠加;4 受拉一侧外缘真实应力=N/A-M/W,小于砌体抗拉能力既是安全的。
第一节概述能够保持结构物两侧的土体、物料有一定高差的结构称为支挡结构。
支承路堤填土或山坡土体,防止填土或土体变形失稳,而承受侧向土压力的建筑物称为挡土墙。
支挡结构在各种土建工程中得到广泛的应用,如铁路、公路工程中可以用于支承路堤或路堑边坡、隧道洞口、支承桥台台后填土,以减少土石方量和占地面积,防止水流冲刷路基,并经常用于整治坍方、滑坡等路基病害;水利、港湾工程中支挡河岸及水闸的岸墙;民用与工业建筑中的地下连续墙等。
随着大量土木工程在地形复杂地区的兴建,支挡结构愈加显得重要。
支挡结构的设计将直接影响到工程的经济效益及安全。
挡土墙各部位的名称如图10-1所示,墙身靠填土(或山体)一侧称为墙背,大部分外露的一侧称为墙面(或墙胸),墙的顶面部分称为墙顶,墙的底面部分称为墙底,墙背与墙底的交线称为墙踵,墙面与墙底的交线称为墙趾。
墙背与竖直面的夹角称为墙背倾角,一般用表示,墙踵到墙顶的垂直距离称为墙高,用H表示。
挡土墙的类型划分方法很多,根据墙体自身的刚度可将其分为柔性挡土墙和刚性挡土墙;根据挡土墙的结构形式可将其分为重力式(包括衡重式)挡土墙和轻型挡土墙;根据挡土墙在路基横断面上的位置可分为:路堑挡土墙、路肩挡土墙、路堤挡土墙、山坡挡土墙、抗滑挡土墙、站台挡土墙等;根据建筑材料可分为石、混凝土及钢筋混凝土挡土墙等;根据所处的环境条件可分为一般地区挡土墙、浸水地区挡土墙与地震地区挡土墙等。
100款·乡村挡土墙设计(收藏)
当我们对地形或斜坡处理时
挡土墙常常必不可少
挡土墙
可以用来支撑、保护受侵蚀的山坡,
也可以在陡坡处创造可用的室外空间。
一个结构合理的挡土墙可以使用多年,挡水挡沙。
但如果想按照设计意图实现所需景观,
正确的工程与墙体结构至关重要。
除了其结构功能,挡土墙还可用于美化园林景观,
挡土墙可直可曲、可滑可糙、可以彩色也可以用泥土色系。
低矮的挡土墙可当作种植床,为庭院增加情趣。
本期,小编收集了100款挡土墙设计实景图
拿走,不谢!。
挡土墙设计实例挡土墙是指支承路基填土或山坡土体、防止填土或土体变形失稳的构造物。
在挡土墙横断面中,与被支承土体直接接触的部位称为墙背;与墙背相对的、临空的部位称为墙面;与地基直接接触的部位称为基地;与基底相对的、墙的顶面称为墙顶;基底的前端称为墙趾;基底的后端称为墙踵。
根据挡土墙的设置位置不同,分为路肩墙、路堤墙、路堑墙和山坡墙等。
设置于路堤边坡的挡土墙称为路堤墙;墙顶位于路肩的挡土墙称为路肩墙;设置于路堑边坡的挡土墙称为路堑墙;设置于山坡上,支承山坡上可能坍塌的覆盖层土体或破碎岩层的挡土墙称为山坡墙。
本实例中主要讲述了5种常见挡土墙的设计计算实例。
1、重力式挡土墙------------------------------------------------------------------------原始条件:墙身尺寸:墙身高: 6.500(m)墙顶宽: 0.660(m)面坡倾斜坡度: 1:0.250背坡倾斜坡度: 1:0.200采用1个扩展墙址台阶:墙趾台阶b1: 0.300(m)墙趾台阶h1: 0.500(m)墙趾台阶与墙面坡坡度相同墙底倾斜坡率: 0.200:1物理参数:圬工砌体容重: 23.000(kN/m3)圬工之间摩擦系数: 0.400地基土摩擦系数: 0.500砌体种类: 片石砌体砂浆标号: 5石料强度(MPa): 30挡土墙类型: 一般挡土墙墙后填土内摩擦角: 35.000(度)墙后填土粘聚力: 0.000(kPa)墙后填土容重: 19.000(kN/m3)墙背与墙后填土摩擦角: 17.500(度)地基土容重: 18.000(kN/m3)修正后地基土容许承载力: 500.000(kPa)地基土容许承载力提高系数:墙趾值提高系数: 1.200墙踵值提高系数: 1.300平均值提高系数: 1.000墙底摩擦系数: 0.500地基土类型: 土质地基地基土内摩擦角: 30.000(度)土压力计算方法: 库仑坡线土柱:坡面线段数: 2折线序号水平投影长(m) 竖向投影长(m) 换算土柱数1 3.000 2.000 02 5.000 0.000 0坡面起始距离: 0.000(m)地面横坡角度: 20.000(度)墙顶标高: 0.000(m)挡墙分段长度: 10.000(m)===================================================================== 组合1(仅取一种组合计算)=============================================组合系数: 1.0001. 挡土墙结构重力分项系数 = 1.000 √2. 墙顶上的有效永久荷载分项系数 = 1.000 √3. 墙顶与第二破裂面间有效荷载分项系数 = 1.000 √4. 填土侧压力分项系数 = 1.000 √5. 车辆荷载引起的土侧压力分项系数 = 1.000 √=============================================[土压力计算] 计算高度为 7.309(m)处的库仑主动土压力无荷载时的破裂角 = 28.320(度)按实际墙背计算得到:第1破裂角: 28.320(度)Ea=244.312 Ex=214.072 Ey=117.736(kN) 作用点高度 Zy=2.627(m) 因为俯斜墙背,需判断第二破裂面是否存在,计算后发现第二破裂面不存在墙身截面积 = 15.518(m2) 重量 = 356.925 kN(一) 滑动稳定性验算基底摩擦系数 = 0.500采用倾斜基底增强抗滑动稳定性,计算过程如下:基底倾斜角度 = 11.310 (度)Wn = 349.993(kN) En = 157.432(kN) Wt = 69.999(kN) Et = 186.825(kN) 滑移力= 116.827(kN) 抗滑力= 253.713(kN)滑移验算满足: Kc = 2.172 > 1.300滑动稳定方程验算:滑动稳定方程满足: 方程值 = 164.582(kN) > 0.0地基土摩擦系数 = 0.500地基土层水平向: 滑移力= 214.072(kN) 抗滑力= 252.070(kN)地基土层水平向: 滑移验算不满足: Kc2 = 1.177 <= 1.300(二) 倾覆稳定性验算相对于墙趾点,墙身重力的力臂 Zw = 2.186 (m)相对于墙趾点,Ey的力臂 Zx = 3.521 (m)相对于墙趾点,Ex的力臂 Zy = 1.818 (m)验算挡土墙绕墙趾的倾覆稳定性倾覆力矩= 389.149(kN-m) 抗倾覆力矩= 1194.778(kN-m)倾覆验算满足: K0 = 3.070 > 1.500倾覆稳定方程验算:倾覆稳定方程满足: 方程值 = 649.592(kN-m) > 0.0(三) 地基应力及偏心距验算基础为天然地基,验算墙底偏心距及压应力取倾斜基底的倾斜宽度验算地基承载力和偏心距作用于基础底的总竖向力 = 507.426(kN) 作用于墙趾下点的总弯矩=805.628(kN-m) 基础底面宽度 B = 4.127 (m) 偏心距 e = 0.476(m)基础底面合力作用点距离基础趾点的距离 Zn = 1.588(m)基底压应力: 趾部=208.008 踵部=37.896(kPa)最大应力与最小应力之比 = 208.008 / 37.896 = 5.489作用于基底的合力偏心距验算满足: e=0.476 <= 0.167*4.127 = 0.688(m)墙趾处地基承载力验算满足: 压应力=208.008 <= 600.000(kPa)墙踵处地基承载力验算满足: 压应力=37.896 <= 650.000(kPa)地基平均承载力验算满足: 压应力=122.952 <= 500.000(kPa)(四) 基础强度验算基础为天然地基,不作强度验算(五) 墙底截面强度验算验算截面以上,墙身截面积 = 13.946(m2) 重量 = 320.764 kN相对于验算截面外边缘,墙身重力的力臂 Zw = 2.134 (m)相对于验算截面外边缘,Ey的力臂 Zx = 3.521 (m)相对于验算截面外边缘,Ex的力臂 Zy = 1.818 (m)[容许应力法]:法向应力检算:作用于验算截面的总竖向力 = 438.499(kN) 作用于墙趾下点的总弯矩=710.021(kN-m) 相对于验算截面外边缘,合力作用力臂 Zn = 1.619(m)截面宽度 B = 3.885 (m) 偏心距 e1 = 0.323(m)截面上偏心距验算满足: e1= 0.323 <= 0.250*3.885 = 0.971(m)截面上压应力: 面坡=169.225 背坡=56.514(kPa)压应力验算满足: 计算值= 169.225 <= 800.000(kPa)切向应力检算:剪应力验算满足: 计算值= 9.954 <= 80.000(kPa)[极限状态法]:重要性系数0 = 1.000验算截面上的轴向力组合设计值Nd = 438.499(kN)轴心力偏心影响系数醟= 0.923挡墙构件的计算截面每沿米面积A = 3.885(m2)材料抗压极限强度Ra = 1600.000(kPa)圬工构件或材料的抗力分项系数鉬= 2.310偏心受压构件在弯曲平面内的纵向弯曲系数豮= 0.997计算强度时:强度验算满足: 计算值= 438.499 <= 2484.452(kN)计算稳定时:稳定验算满足: 计算值= 438.499 <= 2478.074(kN)(六) 台顶截面强度验算[土压力计算] 计算高度为 6.000(m)处的库仑主动土压力无荷载时的破裂角 = 29.150(度)按实际墙背计算得到:第1破裂角: 29.150(度)Ea=172.939 Ex=151.533 Ey=83.340(kN) 作用点高度 Zy=2.150(m) 因为俯斜墙背,需判断第二破裂面是否存在,计算后发现第二破裂面不存在墙身截面积 = 12.060(m2) 重量 = 277.380 kN[强度验算]验算截面以上,墙身截面积 = 12.060(m2) 重量 = 277.380 kN相对于验算截面外边缘,墙身重力的力臂 Zw = 1.738 (m)相对于验算截面外边缘,Ey的力臂 Zx = 2.930 (m)相对于验算截面外边缘,Ex的力臂 Zy = 2.150 (m)[容许应力法]:法向应力检算:作用于验算截面的总竖向力 = 360.720(kN) 作用于墙趾下点的总弯矩=400.617(kN-m) 相对于验算截面外边缘,合力作用力臂 Zn = 1.111(m)截面宽度 B = 3.360 (m) 偏心距 e1 = 0.569(m)截面上偏心距验算满足: e1= 0.569 <= 0.250*3.360 = 0.840(m)截面上压应力: 面坡=216.516 背坡=-1.802(kPa)压应力验算满足: 计算值= 216.516 <= 800.000(kPa)拉应力验算满足: 计算值= 1.802 <= 80.000(kPa)切向应力检算:剪应力验算满足: 计算值= 2.156 <= 80.000(kPa)[极限状态法]:重要性系数0 = 1.000验算截面上的轴向力组合设计值Nd = 360.720(kN)轴心力偏心影响系数醟= 0.744挡墙构件的计算截面每沿米面积A = 3.360(m2)材料抗压极限强度Ra = 1600.000(kPa)圬工构件或材料的抗力分项系数鉬= 2.310偏心受压构件在弯曲平面内的纵向弯曲系数豮= 0.994计算强度时:强度验算满足: 计算值= 360.720 <= 1730.509(kN)计算稳定时:稳定验算满足: 计算值= 360.720 <= 1720.261(kN)2、衡重式挡土墙------------------------------------------------------------------------ 原始条件:墙身尺寸:墙身总高: 9.600(m)上墙高: 3.400(m)墙顶宽: 0.660(m)台宽: 1.500(m)面坡倾斜坡度: 1:0.150上墙背坡倾斜坡度: 1:0.200下墙背坡倾斜坡度: 1:-0.200采用1个扩展墙址台阶:墙趾台阶b1: 0.300(m)墙趾台阶h1: 0.500(m)墙趾台阶与墙面坡坡度相同墙底倾斜坡率: 0.200:1下墙土压力计算方法: 力多边形法物理参数:圬工砌体容重: 23.000(kN/m3)圬工之间摩擦系数: 0.400地基土摩擦系数: 0.500砌体种类: 片石砌体砂浆标号: 5石料强度(MPa): 30挡土墙类型: 一般挡土墙墙后填土内摩擦角: 35.000(度)墙后填土粘聚力: 0.000(kPa)墙后填土容重: 19.000(kN/m3)墙背与墙后填土摩擦角: 17.500(度)地基土容重: 18.000(kN/m3)修正后地基土容许承载力: 500.000(kPa)地基土容许承载力提高系数:墙趾值提高系数: 1.200墙踵值提高系数: 1.300平均值提高系数: 1.000墙底摩擦系数: 0.500地基土类型: 土质地基地基土内摩擦角: 30.000(度)坡线土柱:坡面线段数: 2折线序号水平投影长(m) 竖向投影长(m) 换算土柱数1 3.000 2.000 02 5.000 0.000 0地面横坡角度: 20.000(度)墙顶标高: 0.000(m)挡墙分段长度: 10.000(m)===================================================================== 组合1(仅取一种组合计算)=============================================组合系数: 1.0001. 挡土墙结构重力分项系数 = 1.000 √2. 填土重力分项系数 = 1.000 √3. 填土侧压力分项系数 = 1.000 √4. 车辆荷载引起的土侧压力分项系数 = 1.000 √=============================================[土压力计算] 计算高度为 10.242(m)处的库仑主动土压力计算上墙土压力无荷载时的破裂角 = 31.060(度)按假想墙背计算得到:第1破裂角: 32.720(度)Ea=148.041 Ex=56.254 Ey=136.937(kN) 作用点高度 Zy=1.260(m) 因为俯斜墙背,需判断第二破裂面是否存在,计算后发现第二破裂面存在:第2破裂角=17.542(度) 第1破裂角=31.060(度)Ea=102.147 Ex=62.124 Ey=81.085(kN) 作用点高度 Zy=1.465(m) 计算下墙土压力无荷载时的破裂角 = 34.222(度)按力多边形法计算得到:破裂角: 34.222(度)Ea=201.028 Ex=199.855 Ey=21.676(kN) 作用点高度 Zy=2.979(m) 墙身截面积 = 25.299(m2) 重量 = 581.869 kN衡重台上填料重 = 90.539(kN) 重心坐标(1.649,-1.646)(相对于墙面坡上角点) (一) 滑动稳定性验算基底摩擦系数 = 0.500采用倾斜基底增强抗滑动稳定性,计算过程如下:基底倾斜角度 = 11.310 (度)Wn = 659.350(kN) En = 152.144(kN) Wt = 131.870(kN) Et = 236.739(kN) 滑移力= 104.869(kN) 抗滑力= 405.747(kN)滑移验算满足: Kc = 3.869 > 1.300滑动稳定方程验算:滑动稳定方程满足: 方程值 = 353.905(kN) > 0.0地基土摩擦系数 = 0.500地基土层水平向: 滑移力= 261.979(kN) 抗滑力= 396.867(kN)地基土层水平向: 滑移验算满足: Kc2 = 1.515 > 1.300(二) 倾覆稳定性验算相对于墙趾,墙身重力的力臂 Zw = 2.308 (m)相对于墙趾,上墙Ey的力臂 Zx = 4.117 (m)相对于墙趾,上墙Ex的力臂 Zy = 7.665 (m)相对于墙趾,下墙Ey的力臂 Zx3 = 3.807 (m)相对于墙趾,下墙Ex的力臂 Zy3 = 2.337 (m)验算挡土墙绕墙趾的倾覆稳定性倾覆力矩= 943.130(kN-m) 抗倾覆力矩= 2066.104(kN-m)倾覆验算满足: K0 = 2.191 > 1.500倾覆稳定方程验算:倾覆稳定方程满足: 方程值 = 793.025(kN-m) > 0.0(三) 地基应力及偏心距验算基础为天然地基,验算墙底偏心距及压应力取倾斜基底的倾斜宽度验算地基承载力和偏心距作用于基础底的总竖向力 = 811.494(kN) 作用于墙趾下点的总弯矩=1122.975(kN-m) 基础底面宽度 B = 3.275 (m) 偏心距 e = 0.254(m)基础底面合力作用点距离基础趾点的距离 Zn = 1.384(m)基底压应力: 趾部=362.948 踵部=132.600(kPa)最大应力与最小应力之比 = 362.948 / 132.600 = 2.737作用于基底的合力偏心距验算满足: e=0.254 <= 0.167*3.275 = 0.546(m)墙趾处地基承载力验算满足: 压应力=362.948 <= 600.000(kPa)墙踵处地基承载力验算满足: 压应力=132.600 <= 650.000(kPa)地基平均承载力验算满足: 压应力=247.774 <= 500.000(kPa)(四) 基础强度验算基础为天然地基,不作强度验算(五) 上墙截面强度验算上墙重力 Ws = 98.141 (kN)上墙墙背处的 Ex = 62.124 (kN)上墙墙背处的 Ey = 12.425 (kN)相对于上墙墙趾,上墙重力的力臂 Zw = 0.889 (m)相对于上墙墙趾,上墙Ex的力臂 Zy = 1.465 (m)相对于上墙墙趾,上墙Ey的力臂 Zx = 1.557 (m)[容许应力法]:法向应力检算:相对于上墙墙趾,合力作用力臂 Zn = 0.141(m)截面宽度 B = 1.850 (m) 偏心距 e1 = 0.784(m)截面上偏心距验算不满足: e1= 0.784 > 0.250*1.850 = 0.463(m) 截面上压应力: 面坡=211.665 背坡=-92.134(kPa)压应力验算满足: 计算值= 211.665 <= 800.000(kPa)拉应力验算不满足: 计算值= 92.134 > 80.000(kPa) 切向应力检算:剪应力验算满足: 计算值= 9.674 <= 80.000(kPa)斜截面剪应力检算斜剪应力验算满足: 计算值= 41.598 <= 80.000(kPa)[极限状态法]:重要性系数0 = 1.000验算截面上的轴向力组合设计值Nd = 110.566(kN)轴心力偏心影响系数醟= 0.233挡墙构件的计算截面每沿米面积A = 1.850(m2)材料抗压极限强度Ra = 1600.000(kPa)圬工构件或材料的抗力分项系数鉬= 2.310偏心受压构件在弯曲平面内的纵向弯曲系数豮= 0.981计算强度时:强度验算满足: 计算值= 110.566 <= 298.521(kN)计算稳定时:稳定验算满足: 计算值= 110.566 <= 292.889(kN)(六) 墙底截面强度验算验算截面以上,墙身截面积 = 24.226(m2) 重量 = 557.198 kN相对于验算截面外边缘,墙身重力的力臂 Zw = 2.313 (m)[容许应力法]:法向应力检算:作用于截面总竖向力 = 750.498(kN) 作用于墙趾下点的总弯矩=1106.215(kN-m) 相对于验算截面外边缘,合力作用力臂 Zn = 1.474(m)截面宽度 B = 3.340 (m) 偏心距 e1 = 0.196(m)截面上偏心距验算满足: e1= 0.196 <= 0.250*3.340 = 0.835(m)截面上压应力: 面坡=303.826 背坡=145.574(kPa)压应力验算满足: 计算值= 303.826 <= 800.000(kPa)切向应力检算:剪应力验算满足: 计算值= -11.443 <= 80.000(kPa)[极限状态法]:重要性系数0 = 1.000验算截面上的轴向力组合设计值Nd = 750.498(kN)轴心力偏心影响系数醟= 0.960挡墙构件的计算截面每沿米面积A = 3.340(m2)材料抗压极限强度Ra = 1600.000(kPa)圬工构件或材料的抗力分项系数鉬= 2.310偏心受压构件在弯曲平面内的纵向弯曲系数豮= 0.968计算强度时:强度验算满足: 计算值= 750.498 <= 2221.592(kN)计算稳定时:稳定验算满足: 计算值= 750.498 <= 2149.911(kN)(七) 台顶截面强度验算[土压力计算] 计算高度为 9.100(m)处的库仑主动土压力计算上墙土压力无荷载时的破裂角 = 31.060(度)按假想墙背计算得到:第1破裂角: 32.720(度)Ea=148.041 Ex=56.254 Ey=136.937(kN) 作用点高度 Zy=1.260(m) 因为俯斜墙背,需判断第二破裂面是否存在,计算后发现第二破裂面存在:第2破裂角=17.542(度) 第1破裂角=31.060(度)Ea=102.147 Ex=62.124 Ey=81.085(kN) 作用点高度 Zy=1.465(m) 计算下墙土压力无荷载时的破裂角 = 34.075(度)按力多边形法计算得到:破裂角: 34.075(度)Ea=156.451 Ex=155.539 Ey=16.870(kN) 作用点高度 Zy=2.522(m)[强度验算]验算截面以上,墙身截面积 = 22.550(m2) 重量 = 518.644 kN相对于验算截面外边缘,墙身重力的力臂 Zw = 2.358 (m)[容许应力法]:法向应力检算:作用于截面总竖向力 = 707.137(kN) 作用于墙趾下点的总弯矩=830.127(kN-m) 相对于验算截面外边缘,合力作用力臂 Zn = 1.174(m)截面宽度 B = 3.065 (m) 偏心距 e1 = 0.359(m)截面上偏心距验算满足: e1= 0.359 <= 0.250*3.065 = 0.766(m)截面上压应力: 面坡=392.661 背坡=68.767(kPa)压应力验算满足: 计算值= 392.661 <= 800.000(kPa)切向应力检算:剪应力验算满足: 计算值= -21.270 <= 80.000(kPa)[极限状态法]:重要性系数0 = 1.000验算截面上的轴向力组合设计值Nd = 707.137(kN)轴心力偏心影响系数醟= 0.859挡墙构件的计算截面每沿米面积A = 3.065(m2)材料抗压极限强度Ra = 1600.000(kPa)圬工构件或材料的抗力分项系数鉬= 2.310偏心受压构件在弯曲平面内的纵向弯曲系数豮= 0.959计算强度时:强度验算满足: 计算值= 707.137 <= 1823.443(kN)计算稳定时:稳定验算满足: 计算值= 707.137 <= 1749.052(kN)=====================================================================3、加筋土挡土墙------------------------------------------------------------------------ 原始条件:墙身尺寸:墙身总高: 8.200(m)筋带竖向间距是否不等: 否单个筋带厚: 1(mm)筋带水平方向间距: 0.420(m)筋带竖直方向间距: 0.400(m)筋带长度竖向分段数: 2分段序号高度(m) 筋带长(m)1 6.000 6.0002 2.200 4.000筋带序号筋带宽(m)1 0.2002 0.2003 0.2004 0.2005 0.2006 0.2007 0.2008 0.2009 0.20010 0.20011 0.20012 0.20013 0.20014 0.20015 0.20016 0.20017 0.20018 0.20019 0.20020 0.200物理参数:加筋土容重: 20.000(kN/m3)加筋土内摩擦角: 35.000(度)筋带容许拉应力: 50.000(MPa)土与筋带之间的摩擦系数: 0.400加筋土浮容重: 10.000(kN/m3)地基土浮重度: 10.000(kN/m3)筋带抗拔力计算调节系数: 1.400筋带材料抗拉计算调节系数: 1.000筋带材料强度标准值: 240.000(MPa)筋带材料抗拉性能的分项系数: 1.250挡土墙类型: 一般挡土墙墙后填土内摩擦角: 35.000(度)墙后填土粘聚力: 0.000(kPa)墙后填土容重: 19.000(kN/m3)地基土容重: 18.000(kN/m3)修正后地基土容许承载力: 500.000(kPa)地基土容许承载力提高系数:墙趾值提高系数: 1.200墙踵值提高系数: 1.300平均值提高系数: 1.000墙底摩擦系数: 0.500地基土类型: 土质地基地基土内摩擦角: 30.000(度)坡线土柱:坡面线段数: 2折线序号水平投影长(m) 竖向投影长(m) 换算土柱数1 3.000 2.000 02 5.000 0.000 0地面横坡角度: 20.000(度)墙顶标高: 0.000(m)挡墙分段长度: 10.000(m)计算参数:稳定计算目标: 给定圆心,半径计算安全系数圆心X坐标: -2.000(m)圆心Y坐标: 10.000(m)半径: 15.000(m)筋带对稳定的作用: 筋带力沿圆弧切线内部稳定分析采用方法: 应力分析法条分法的土条宽度: 0.500(m)墙后填土粘聚力: 10.000(kPa)墙体填土粘聚力: 10.000(kPa)地基土粘聚力: 10.000(kPa)土条切向分力与滑动方向反向时: 当作下滑力对待===================================================================== 第 1 种情况: 组合1=============================================组合系数: 1.0001. 挡土墙结构重力分项系数 = 1.000 √2. 填土侧压力分项系数 = 1.000 √3. 车辆荷载引起的土侧压力分项系数 = 1.000 √=============================================----------------------------------------------------------内部稳定性验算采用应力分析法(一) 应力分析法筋带号宽度总长度稳定区竖向压应水平应最大拉力抗拉力抗拔力 (m) (m) 长度(m) 力(kPa) 力(kPa) 设计值(kN) (kN) (kN)01 0.200 6.000 3.540 46.000 19.139 3.215 38.400 18.61002 0.200 6.000 3.540 54.000 21.908 3.681 38.400 21.84703 0.200 6.000 3.540 62.000 24.511 4.118 38.400 25.08304 0.200 6.000 3.540 70.000 26.948 4.527 38.400 28.32005 0.200 6.000 3.540 78.000 29.220 4.909 38.400 31.55706 0.200 6.000 3.540 86.000 31.326 5.263 38.400 34.79307 0.200 6.000 3.540 94.000 33.265 5.589 38.400 38.03008 0.200 6.000 3.540 102.000 35.040 5.887 38.400 41.26609 0.200 6.000 3.605 110.000 36.648 6.157 38.400 45.32510 0.200 6.000 3.814 118.000 38.091 6.399 38.400 51.42911 0.200 6.000 4.022 126.000 39.367 6.614 38.400 57.91512 0.200 6.000 4.230 134.000 40.478 6.800 38.400 64.78113 0.200 6.000 4.438 142.000 41.423 6.959 38.400 72.02714 0.200 6.000 4.647 150.000 42.203 7.090 38.400 79.65515 0.200 4.000 2.855 158.000 42.816 7.193 38.400 51.54916 0.200 4.000 3.063 166.000 44.984 7.557 38.400 58.10917 0.200 4.000 3.271 174.000 47.152 7.922 38.400 65.05018 0.200 4.000 3.479 182.000 49.320 8.286 38.400 72.37219 0.200 4.000 3.688 190.000 51.488 8.650 38.400 80.07520 0.200 4.000 3.896 198.000 53.656 9.014 38.400 88.158单个筋带结点抗拔稳定满足: 拉力设计值=3.215 <= 18.610(kN)筋带截面抗拉强度验算满足: 拉力设计值=9.014 <= 38.400(kN)全墙抗拔验算满足: 最小安全系数=11.415 >= 2.000----------------------------------------------------------外部稳定性验算[土压力计算] 计算墙背处的库仑主动土压力按假想墙背计算得到:第1破裂角: 32.600(度)Ea=246.817 Ex=202.181 Ey=141.568(kN) 作用点高度 Zy=3.400(m) 墙身截面积 = 44.800(m2) 重量 = 896.000 kN墙顶上的土重(包括超载) = 171.000(kN) 重心坐标(3.667,0.889)(相对于墙面坡上角点) 墙顶上的土重(不包括超载) = 171.000(kN) 重心坐标(3.667,0.889)(相对于墙面坡上角点) (一) 滑动稳定性验算基底摩擦系数 = 0.500滑移力= 202.181(kN) 抗滑力= 604.284(kN)滑移验算满足: Kc = 2.989 > 1.300滑动稳定方程验算:滑动稳定方程满足: 方程值 = 455.454(kN) > 0.0(二) 倾覆稳定性验算相对于墙趾点,墙身重力的力臂 Zw = 2.804 (m)相对于墙趾点,墙土压力Ey的力臂 Zx = 6.000 (m)相对于墙趾点,墙土压力Ex的力臂 Zy = 3.400 (m)验算挡土墙绕墙趾的倾覆稳定性倾覆力矩= 687.414(kN-m) 抗倾覆力矩= 3988.410(kN-m)倾覆验算满足: K0 = 5.802 > 1.500倾覆稳定方程验算:倾覆稳定方程满足: 方程值 = 2673.196(kN-m) > 0.0(三) 地基应力及偏心距验算基础为天然地基,验算墙底偏心距及压应力作用于基础底的总竖向力 = 1208.568(kN) 作用于墙趾下点的总弯矩=3300.996(kN-m)墙计算宽度 B = 6.000 (m) 偏心距 e = 0.269(m)墙底面合力作用点距离墙趾点的距离 Zn = 2.731(m)基底压应力: 墙趾=255.546 墙踵=147.310(kPa)最大应力与最小应力之比 = 255.546 / 147.310 = 1.735作用于基底的合力偏心距验算满足: e=0.269 <= 0.167*6.000 = 1.000(m) 墙趾处地基承载力验算满足: 压应力=255.546 <= 600.000(kPa)墙踵处地基承载力验算满足: 压应力=147.310 <= 650.000(kPa)地基平均承载力验算满足: 压应力=201.428 <= 500.000(kPa)(四) 整体稳定验算圆心: (-2.000,10.000)半径 = 15.000(m)安全系数 = 1.802总的下滑力 = 1214.149(kN)总的抗滑力 = 2188.340(kN)土体部分下滑力 = 1214.149(kN)土体部分抗滑力 = 2188.340(kN)筋带的抗滑力 = 0.000(kN)整体稳定验算满足: 最小安全系数=1.802 >= 1.2504、桩板式挡土墙原始条件:墙身尺寸:桩总长: 16.000(m)嵌入深度: 6.000(m)截面形状: 方桩桩宽: 1.000(m)桩高: 1.500(m)桩间距: 3.500(m)挡土板的类型数: 2板类型号板厚(m) 板宽(m) 板块数1 0.200 0.500 82 0.200 0.500 8嵌入段土层数: 1柱底支承条件: 铰接计算方法: M法土层序号土层厚(m) 重度(kN/m3) M(MN/m4) 1 50.000 18.000 10.000初始弹性系数A: 0.000(MN/m3)初始弹性系数A1: 0.000(MN/m3)物理参数:桩混凝土强度等级: C40桩纵筋合力点到外皮距离: 35(mm)桩纵筋级别: HRB335桩箍筋级别: HPB235桩箍筋间距: 150(mm)板混凝土强度等级: C30板纵筋合力点到外皮距离: 35(mm)板纵筋级别: HRB335挡土墙类型: 一般挡土墙墙后填土内摩擦角: 35.000(度)墙后填土粘聚力: 0.000(kPa)墙后填土容重: 19.000(kN/m3)墙背与墙后填土摩擦角: 17.500(度)土压力计算方法: 库仑坡线土柱:坡面线段数: 2折线序号水平投影长(m) 竖向投影长(m) 换算土柱数1 3.000 2.000 02 5.000 0.000 0地面横坡角度: 20.000(度)墙顶标高: 0.000(m)挡墙分段长度: 10.000(m)钢筋混凝土配筋计算依据:《混凝土结构设计规范》(GB 50010--2002)===================================================================== 第 1 种情况: 组合1注意:内力计算时,土压力分项(安全)系数 = 1.000[土压力计算] 计算高度为 10.000(m)处的库仑主动土压力无荷载时的破裂角 = 31.530(度)第1破裂角: 31.530(度)Ea=313.264 Ex=298.765 Ey=94.200(kN) 作用点高度 Zy=3.584(m)(一) 桩身内力计算计算方法: m 法背侧——为挡土侧;面侧——为非挡土侧。
挡土墙设计第8-1节概述一、挡土墙的分类及用途为防止路基填土或山坡土体坍塌而修筑的承受土体侧压力的墙式构造物,称为挡土墙。
在公路工程中,它广泛地用于支撑路堤填土或路堑边坡,以及桥台、隧道洞口和河流堤岸等处。
路基工程中,挡土墙的建筑费用较高,故路基设计时,应与其他可能的工程方案进行技术经济比较,择优选定。
公路工程中的挡土墙主要按下述几种方法进行分类。
按照挡土墙设置的位置,挡土墙可分为:路堑墙、路堤墙、路肩墙和山坡墙等类型,如图2-5-1所示。
按照结构形式,挡土墙可分为:重力式挡土墙、锚定式挡土墙、薄壁式挡土墙、加筋土挡土墙等。
按照墙体材料,挡土墙可分为:石砌挡土墙、混凝土挡土墙、钢筋混凝土挡土墙、钢板挡土墙等。
挡土墙各部分名称如图2-5-1a)所示。
靠回填土或山体的一侧面称为墒背;外露的一侧面称为墙面.也称墙胸;墙的顶面部分称为墙顶;墙的底面部分称为基底或墙底;墙面与墙底的交线称为墙趾;墙背与墙底的变线称为墙踵;墙背与铅垂线的夹角称为墙背倾角a。
挡土墙设置位置不同,其用途也不相同。
路堑墙设置在路堑边坡底部,主要用于支撑开挖后不能自行稳定的山坡,同时可减少挖方数量,降低挖方边坡的高度(图2-5-1a)。
路堤墙设置在高填土路提或陡坡路堤的下方,可以防止路堤边坡或路堤沿基底滑动,同时可以收缩路堤坡脚,减少填方数量,减少拆迁和占地面积(图2-5-1b)。
路肩墙设置在路肩部位,墙顶是路肩的组成部分,其用途与路堤墙相同。
它还可以保护临近路线的既有的重要建筑物(图2-5-1c)。
沿河路堤,在傍水的一侧设置挡土墙,可以防止水流对路基的冲刷和侵蚀,也是减少压缩河床的有效措施(图2-5-1d)。
山坡墙设置在路堑或路堤上方,用于支撑山坡上可能坍滑的覆盖层、破碎岩层或山体滑坡(图2-5-1e、图2-5-1f)。
为一个整体。
在这个整体中起控制作用的是填土与拉筋之间的摩擦力。
面板的作用是阻挡填土坍落挤出,迫使填土与拉筋结合为整体。
加筋土挡土墙属于柔性结构,对地基变形适应性大,建筑高度大,具有省工、省料、施工方便、快速等优点,适用于填土路基。
3.锚定式挡土墙锚定式挡土墙可分为锚杆式和锚定板式两种。
锚杆式挡土墙是由预制的钢筋混凝土立柱、挡土板构成墙面,与水平或倾斜的钢锚杆联合组成,如图2-5-3a)所示。
锚杆的一端与立柱连接,另一端被锚固在山坡深处的稳定岩层或土层中。
墙后侧向土压力由挡土板传结立柱,由锚杆与稳定岩层或上层之间的锚固力,使墙获得稳定。
它适用于墙高较大,缺乏石料或挖基困难地区,具有锚固条件的路堑挡土墙。
锚定板式挡土墙是由钢筋混凝土墙面、钢拉杆、锚走板以及其间的填土共同形成的一种组合挡土结构,如图2-5-3b)所示。
它借助于埋在填土内的锚定板的抗拔力抵抗侧土压力,保持墙的稳定。
锚定式挡土墙的特点在于构件断面小,工程量省,不受地基承载力的限制,构件可顶制.有利于实现结构轻型化和施工机械化。
它适用于缺乏石料地区的路肩墙或路堤墙;4.薄壁式挡土墙薄壁式挡土墙属于钢筋混凝土结构,可以分为悬臂式和扶壁式两种。
第8-2节重力式挡土墙的构造与布置常用的重力式挡土墙,一般由墙身、基础、排水设施和沉降、伸缩缝等几部分组成。
(一)墙身1.墒背根据墙背倾斜方向的不同,墙身断面形式可分为仰斜、垂直、俯斜、凸形折线式和衡重式等几种.如图2-5-5所示。
以仰斜、垂直和俯斜式三种不同的墙背所受的土压力分析,在墙高和墙后填料等条件相同时,仰斜墙背所受的土压力为最小,垂直墙背次之,俯斜墙背较大;因此仰斜式的墙身断面较经济。
用于路堑墙时,墙背与开挖的临时边坡较贴合,开挖量与回填量均较小。
但当墙趾处地面横坡较陡时,采用仰斜式墙背会增加墙高,断面增大。
故仰斜墙背适用于路堑墙及墙趾处地面平坦的路肩墙或路堤墙。
仰斜墙背的坡度愈缓,所受的土压力愈小,但施工愈困难,故仰斜墙背的坡度不宜缓于1:0.3。
俯斜墙背所受的土压力较大,相对而言,俯斜墙背的断面比仰斜式要大。
但当地面横坡较陡时,俯斜式挡土墙可采用陡直的墙面,从而减小墙高。
俯斜墙背的坡度缓些固然对施工有利,但所受的土压力亦随之增加,致使断面增大,因此墙背坡度不宜过缓,通常控制a<21°48′(即1:0.4)。
垂直墙背的持点介于仰斜和俯斜墙背之间。
凸形折线墙背系将仰斜式挡土墙的上部墙背改为俯斜,以减小上部断面尺寸,故其断面较为经济,多用于路堑墙,也可用于路肩墙。
衡重式墙背可视为在凸形折线式的上下墙之间设一衡重台,并采用陡直的墙面。
上墙俯斜墙背的坡度通常为1:0.25~1:0.45,下墙仰斜墙背的坡度一般在1:0.25左右,上下墙的墙高比一般为2:3。
适用于山区地形陡峻处的路肩墙和路堤墙,也可用于路堑墙。
2.墙面墙面一般为平面,墙面坡度除应与墙背的坡度相协调外,还应考虑到墙趾处地面的横坡度(影响挡土墙的高度)。
当地面横坡度较陡时,墙面可直立或外斜1:0.05~1:0.20,以减少墙高;当地面横坡平缓时,一般采用1:0.20~1:0.35较为经济。
3.墙顶重力式挡土墙可采用浆砌或干砌圬工。
墙顶最小宽度,浆砌时边不小于50cm;干砌时应不小于60cm。
干砌挡土墙的高度一般不宜大于6m。
浆砌挡土墙墙顶应用5号砂浆抹平,或用较大石块砌筑,并勾缝。
浆砌路肩墙墙顶宜采用粗料石或混凝土做成顶帽,厚度取40cm。
干砌挡土墙顶部50cm厚度内,宜用5号砂浆砌筑,以求稳定。
4.护栏为增加驾驶员心理上的安全感,保证行车安全,在地形险峻地段的路肩墙,或墙顶高出地面6m以上且连续长度大于20m的路肩墙,或弯道处的路肩墙的墙顶应设置护栏等防护设施。
护栏分墙式和柱式两种,所采用的材料,护拦高度、宽度,视实际需要而定。
护栏内侧边缘距路面边缘的距离,应满足路肩最小宽度的要求。
(二)基础地基不良和基础处理不当,往往引起挡土墙的破坏,因此,应重视挡土墙的基础设计。
基础设计的程序是:首先应对地基的地质条件作详细调查,必要时须做挖探或钻探,然后再来确定基础类型与埋置深度。
1.基础类型当地基承载力不足且墙趾处地形平坦时,挡土墙大多数都是直接砌筑在天然地基上的浅基础。
为减少基底应力和增加抗倾覆稳定性,常常采用扩大基础,如图2-5-6a)所示,将墙趾部分加宽成台阶,或墙趾墙踵同时加宽,以加大承压面积。
加宽宽度视基底应力需要减少的程度和加宽后的合力偏心距的大小而定,一船不小于20cm。
台阶高度按基础材料的刚性角的要求确定,对于砖、片石、块石、粗料石砌体,当用低于5号的砂浆砌筑时,刚性角应不大于35°;对混所示。
台阶的高宽比应不大于2:1.台阶宽度不宜小于50cm。
最下一个台阶的宽度应满足偏心距的有关规定,并不宜小于1.5~2.0m。
如地基有短段缺口(如深沟等)或挖基因难(如局部地段地基软弱等),可采用拱形基础,如图2-5-6d)所示,以石砌拱圈跨过,再在其上砌筑墙身。
但应注意土压力不宜过大。
以免横向推力导致拱圈开裂。
设计时应对拱圈予以验算。
当地基为软弱土层,如淤泥、软粘土等,可采用砂砾、碎石、矿渣或石灰土等材料予以换填,以扩散基底压应力,使之均匀地传递到下卧软弱土层中。
2.基础埋置深度挡土墙基础,应视地形、地质条件埋置足够的深度,以保证挡土墙的稳定性。
设置在土质地基上的挡土墙,基底埋置深度应符合下列要求:①无冲刷时,一般应在天然地面下不小于1.0m;⑦有冲刷时,应在冲刷线下不小于1.0m;⑦受冻胀影响时,应在冰陈线以下不小于0.25m。
非冰胀土层中的基础,例如岩石、卵石、砾石、中砂或粗砂等,埋置深度可不受冻深的限制。
挡土墙基础设置在岩石上时,应清除表面风化层;当风化层较厚难以全部清除时,可根据地基的风化程度及其相应的容许承载力将基底埋在风化层中。
当墙趾前地面横坡较大时,基础埋置深度用墙趾前的安全襟边宽度l来控制,以防地基剪切破坏。
襟边宽度见表2-5-1。
(三)排水设施挡土墙的排水处理是否得当,直接影响到挡土墙的安全及使用效果。
因此,挡土墙应设置排水设施,以疏干墙后坡料中的水分,防止地表水下渗造成墙后积水,从而使墙身免受额外的静水压力;消除粘性土填料因含水量增加产生的膨胀压力;减少季节性冰冻地区填料的冻胀压力。
挡土墙的排水设施通常内地面排水和墙身排水两部分组成。
地面排水可设置地面排水沟,引排地面水;夯实回填土顶面和地面松土,防止雨水和地面水下渗,必要时可加设铺砌;对路堑挡土墙墙趾前的边沟应予以铺砌加固,以防止边沟水渗入基础。
墙身排水主要是为了迅速排除墙后积水。
浆砌挡土墙应根据渗水量在墙身的适当高度处布置泄水孔。
如图2-5-7所示。
泄水孔尺寸可视泄水量大小分别采用5cm×10cm、10cm×10cm、15cm ×20cm的方孔,或直径5~10cm的圆孔。
泄水孔间距一般为2~3M,上下交错设置。
最下排泄水孔的底部应高出墙趾前地面0.3m;当为路堑墙时,出水口应高出边沟水位0.3m:若为浸水挡土墙.则应高出常水位以上0.3m,以避免墙外水流倒灌。
为防止水分渗入地基,在最下一排泄水孔的底部应设置30cm厚的粘土隔水层。
在泄水孔进口处应设置粗粒料反滤层,以避免堵塞孔道。
当墙背填土透水性不良或有冻胀可能时,应在墙后最低一排泄水孔到墙顶0.5m之间设置厚度不小于0.3m的砂、卵石排水层或采用土工布。
干砌挡土墙围墙身透水可不设泄水孔。
挡墙排水孔(四)沉降缝和仲缩缝为了防止因地基不均匀沉陷而引起墙身开裂,应根据地基的地质条件及墙高、墙身断面的变化情况设置沉降缝;为了防止圬工砌体因砂浆硬化收缩和温度变化而产生裂缝,须设置伸缩缝。
通常把沉降缝与伸缩缝合并在一起,统称为沉降伸缩缝或变形缝。
沉降伸缩缝的间距按实际情况面定,对于非岩石地基,宜每隔10~15m设置一道沉降伸缩缝;对于岩石地基,其沉降伸缩缝间距可适当增大。
沉降伸缩缝的缝宽—般为2~3cm。
浆砌挡土墙的沉降伸缩缝内可用胶泥填塞,但在渗水量大、冻害严重的地区,宜用沥青麻筋或沥青木板等材料,沿墙内、外顶三边填塞,填深不宜小于15m;当墙背为填石且冻害不严重时,可仅留空隙,不嵌填料。
对于干砌挡土墙,沉降伸缩缝两侧应选平整石料砌筑,使具形成垂直通缝。
沉降缝二、挡土墙的布置挡土墙的布置是挡土墙设计的一个重要内容,通常是在路基横断面图和墙趾纵断面图上进行,个别复杂的挡土墙尚应作平面布置。
(一)横向布置横向布置主要是在路基横断面图上进行,其内容有:选择挡土墙的位置、确定断面形式、绘制挡土墙横断面图等。
1.挡土墙的位置选择路堑挡土墙,大多设置在边沟的外侧。
路肩墙应保让路基宽度布设。
路堤墙应与路肩墙进行技术经济比较,以确定墙的合理位置。
当路堤墙与路肩墙的墙高或圬工数量相近,其基础情况亦相仿时,宜做路肩,因为采用路肩墙可减少填方和占地;但当路堤墙的墙高或圬工数量比路肩墙显著降低,且基础可靠时,则宜做路堤墙。