科目二倒桩考试技巧口诀
- 格式:doc
- 大小:25.50 KB
- 文档页数:2
一、图解学车倒库移库技巧本文从正角倒桩、移库、出库、反角入库、归位四方面图文解读了电子桩考,希望学员们仔细阅读桩考教程再结合实践,相信通过科目二桩考没有问题。
一、正角倒桩1、考试开始前先调座位;方向回正;放手刹车;挂倒档;2、倒车,直到从右玻璃看到1号4号杆重合后,停;3、向右打轮2圈,待后档风玻璃右角中的2号杆消失时停车;4、向左打轮半圈,待后档风玻璃右角中的2号杆再次出现时停车5、向右回轮半圈(右打死),进库(适当修正),待车身与倒视镜中地面黄线平行时,停车,方向盘回正;6、向后倒车,当右车厢角与库底5号杆相差一扎时停车;二、移库:1、换一档;方向盘向右打2圈(打死);机器盖左前筋对1号杆,停车;2、方向盘向左打4圈(左打死),对准2号杆摆正,停车(不要撞2号杆);3、换倒档;方向盘向右打4圈(右打死);待左小三角窗中出现5杆时停车4、换倒档;方向盘向左打4圈(左打死);待车身与倒视镜中地面黄线平行时,停车,方向盘回正;换1档;向前一上(不要出杆);5、换倒档;向后一退;当右车厢角与库底6号杆相差一扎时停车三、出库:1、换1档;方向盘左打1圈,当左车角对准3号杆时停车2、轮回正;直行出杆;看后挡风玻璃,当后沙发中部与5号杆重合时,停车3、方向盘左打2圈(左打死);出库;待车正时停车;四、反角入库:1、换倒档;倒车,直到从左玻璃窗看到3号6号杆重合后,停;2、方向盘左打两圈(左打死);入库;待车身与地面黄线平行时停车,轮回正;四、归位:1、换1档,前行;待1号杆出现在右后小三角窗角时,停车;2、方向盘右打2圈(右打死),转弯出库,待与地面平行时,停车。
轮回正,摘空挡,拉手刹车倒桩有技巧,桩考有规则,众悦网特别贡献倒桩移库口诀,给面临倒桩学习的童鞋们视觉记忆体验。
倒桩移库五步骤:第一步:首先挂入倒档向后退,当看到前一杆与后第三杆相交重叠前20公分时,方向立即向右打满尽;第二步:然后从后挡风玻璃右上角看到前中杆漏出10公分长时,方向立即回半圈,再看到露出部分在后挡风玻璃右上角完全消失后,方向立即再各右回半圈(右满尽);第三步:看左后视镜见左车尾露出左后杆等距离时,立即向正(回两个正位);第四步:再通过两边后视镜看两车尾与两后杆等距离调整后退;第五步:当看右枕头中位对上后中杆时踩刹车停车;二、侧方位停车倒车入库技巧:一字型停车位要领与非字型停车位有一些不同,但是第一步都是确认倒车轨迹是否能顺利通过,第二是当车尾超出障碍物一段距离之后才开始打方向,再者是车身进入时不用太斜的角度,包保证预留出空位让车头进入必考——上坡停车、起步(一)考试要求﹔实际上包括两个考试项目﹐先是上坡路的定点停车﹐再是坡道的起步行车。
a3科目二倒桩移库讲解技巧
A3科目二倒桩移库的讲解技巧主要包括以下几个方面:
1. 确定起始位置:调整车辆,使车身与起始标杆平行,保持车轮正直。
同时,检查方向盘是否朝上。
2. 进入库位:当6号杆与1号杆成直线时,方向盘向右打死。
观察后视镜
和前中杆,调整车辆位置,使车身与标杆平行。
当5号杆(前中杆)在后挡风玻璃右侧露出时,方向盘向左回1圈。
当前中杆在右后侧三角窗处露出时,再次将方向盘向右打死。
3. 调整位置:回头看左侧倒车镜,当1号杆(左后杆)出现时,方向盘快速向左回2圈。
同时,观察车身与边线的平行度,并进行调整。
4. 出库:当车2/3入库后回头朝前看着前中杆的底部,地面路出20厘米左右即刻刹停。
然后挂1挡,缓抬离合前行,观察车头与库门冲齐时回正方向。
继续前进,车身整体出库,回头观察前中杆至后挡风玻璃左20公分距离时,向左打死方向,车正回正,停车。
5. 倒桩移库:踩离合,挂倒挡,缓抬离合倒车。
观察对角杆相距40cm时,向左打死方向。
观察后视镜前中杆距车身30公分处停车回正方向。
向左转
头观察前中杆,当杆出现在三角窗竖梁根部,重新向左打死方向。
观察左后视镜,车身与库平行时回正方向。
观察两侧距离调整到均等,入车库约1米停车。
以上是A3科目二倒桩移库的讲解技巧,供您参考。
具体的操作还需根据考试规则和考场实际情况进行灵活应用。
祝您顺利通过考试!。
一、图例和说明二、桩考口诀倒桩训练要注意三点:车速控制的慢,方向打的快,点位看的准。
(一)贴库:R档1.(右回头)①⑥重合右打死;【右2圈】2.(左右镜)④⑤均等左2圈;【左2圈】(先看右镜⑤杆出,再看左镜④⑤杆均等)3.(右回头)后挡⑤消右打死;【右2圈】(后挡风玻璃右上⑤杆快消失就开始右打死)4.(左右镜)①②均等左2圈;【左2圈】(入库后可向较宽方向,略转修正后回正)5.(右回头)四线交②就停车;(后挡风玻璃上第四条横线与②杆交叉)(二)移库1.一进:1档(1)(向前看)1 档车动右打死;【右2圈】(两进两退过程中第1步都是右打死)(2)(向前看)车标对⑤左打死;【左4圈】(车标位于前风挡玻璃左下角,对⑤要过一点)(3)(向前看)车正回正右2圈;【右2圈】(4)(向前看)前进不撞⑤杆停;(尽量离杆近一点)2.一退:R档(1)(向前看)R档车动右打死;【右2圈】(2)(向前看)铆钉对④左打死;【左4圈】(铆钉位于前雨刷左头)(3)(向前看)车正回正右2圈;【右2圈】(4)(右回头)后窗③重就停车;(右后窗三角小窗立柱与③杆重合)3.二进:1档步骤同“一进”;4.二退:R档(1)(向前看)R档车动右打死;【右2圈】(2)(右镜看)右镜③消左打死;【左4圈】(右后视镜中③杆完全被车身挡住消失后,在运动中左打死,不要停车)(3)(向前看)车正回正右2圈;【右2圈】(4)(右回头)四线交③就停车;(后挡风玻璃上第四条横线与③杆交叉)(三)出库:1档1.(向前看)1 档车动左1圈;【左1圈】2.(向前看)铆钉过④右1圈;【右1圈】(铆钉位于前雨刷左头,注意左右镜别碰杆)3.(向前看)身体出库看车头;4.(向前看)马路边消左打死;【左2圈】(车头左方马路边线消失)5.(向前看)车正回正右2圈;【右2圈】(四)倒库:R档1.(左回头)④③重合左打死;【左2圈】(早点看好位置)2.(右左镜)⑤⑥均等右2圈;【右2圈】3.(左回头)后窗⑤重左打死;【左2圈】(左后窗三角小窗立柱与⑤杆重合后,再过一点)4.(右左镜)②③均等右2圈;【右2圈】5.(向前看)车头进米就停车;(车头进库一米就停车)(五)向右出库:1档1.(向前看)身体出库向后看;2.(右回头)后窗⑥消右打死;【右2圈】(右后门小窗⑥杆消失)3.(向前看)车正回正左2圈;【左2圈】。
b2倒桩移库技巧讲解
1、出甲库:身体端正,看车厢右侧红点与右杆平行时,向右打两圈方向盘,等车正后回两圈停车。
2、倒乙库:首先把车上蓝点与车厢上蓝杆成一条直线,对准中杆时,方向盘向右打两圈,看车厢后角(内角)往中杆的走向快慢。
如果快的话,看右侧挡板上的1号黄点对准中杆时,方向盘向左回一圈;一定等车内角与中杆平行时扣方向。
如果慢的话,在确定能进库的情况下,方向盘先回一圈,等车身进库后,看后挡板黄点对准后中杆时,再回一圈,然后看后挡板中心点(红点)是否在库中心位置,并调整离中杆稍近点。
3、出乙库:
4、起步后,斜出乙库,看车厢左后角到左边杆时,向左打两圈,等车正后,回两圈停车。
5、回甲库:首先闭左眼当车上铁丝与车窗黄点和中杆成一线时,向左打两圈,打完后,一定要查看内角(左角)。
看一看是转大圈还是小圈(小圈是指内角在中杆的前面走,大圈是指内角绕着中杆走)如果转小圈,角铁对准中杆时,方向盘向右回一圈,如果转大圈,在确定能进库的情况下,内角距中杆一米左右方向盘回一圈。
6、如果车厢与中杆距离小时,一定等内角与中杆平行时扣方向,如果内角与中杆距离大时,适当早点扣方向,进库后左车角对准后中
杆快速回方向,如果扣少许,看中心点,快到库中心回方向,看中心点是否在中心位置并调整。
小车科二倒桩考试口诀一杆二镜三回头四看车身平行走五看进库到底线及时换挡再移库移库前进见中杆后退后轮压中线摆正车身下一步二进二退莫忘记左转一圈斜出库角对边杆轮回正车身出库不撞杆转向停车到终点甲库要点差不多勤学多练来掌握。
科目二倒桩考试有没有什么技巧?科目二倒桩考试技巧口诀一起来看看吧。
倒桩一直是学车过程中的重头戏,学员往往要花费大量时间,有时却不得要领,如果你也有这方面的苦恼,不妨看看这个口诀吧:科目二倒桩考试技巧口诀:训练考试样不变,压慢速度最关键;进退不可中途停,严禁撞杆和压线。
考生入场看屏幕,报告姓名亮证件;请示上车别迟疑,听到指令站车边。
上车先需调座位,各种操作应方便;车镜角度要调好,方便看杆和看线。
前后应便踏离合,上下不够加座垫;转身回头认准库,前后六杆看清楚。
左脚踏下离合器,挂准倒档别挂错;松下手刹脚不变,离合缓松至车动。
车动先须观车速,不宜快来只宜慢;快压离合慢缓抬,微调离合速可限。
角杆重合打方向,点前打死点后回;车尾入库速看镜,车身平行回两圈。
车速宜慢不宜快,保持平行不压线;库底停车看准点,确保车尾不出线。
学车倒桩之移库:移库起步右两圈,角对中杆左四圈;车头左移车平行,右打两圈杆前停。
一退起步右两圈,角对角杆左四圈;车头右移车平行,右打两圈对点停。
二进起步右两圈,角对中杆慢回盘;边走边回对中杆,车正盘正杆前停。
二退起步右两圈,尾对角杆慢回盘;两圈打死车停正,车居库中移库完。
学车倒桩之出库:向前向左出车库,左角贴杆不擦杆;车头重合库外线,猛向左转车正停。
学车倒桩之进反库:挂入倒档看角杆,左门窗边慢打盘;盘速跟着车速转,左转方向看中杆。
左后门窗角对杆,点前打死点后回;车尾入库速看镜,车身平行回两圈。
车速宜慢不宜快,保持平行不压线;车身出库不撞杆,车镜出库不挂杆。
那边欲挂那打盘,平安出库算过关。
这个口诀看似字数不多,却已经包含了桩考过程中的各个方面,学员多多诵读,灵活运用。
考驾照的朋友必看科目二桩考技巧(图文并茂)科目二桩考技巧(图文并茂)桩考技巧,1 认识场地:脸对着车库,背后是1线,左边车库叫甲库,右边车库叫乙库,左边停车位置叫A点,右边停车位置叫B点。
桩考技巧,2 考试程序:首先,从A点往后倒,入乙库底,经两进两退将车移入甲库,然后,从甲库起步经乙库门出去至B点,再倒入甲库(车头进去即可)后,开出去至A点,考试程序结束。
在整个过程中,只要不碰杆不越线,就算合格。
桩考技巧,3 直线倒车方法:头必须伸到车...桩考技巧,1认识场地:脸对着车库,背后是1线,左边车库叫甲库,右边车库叫乙库,左边停车位置叫A点,右边停车位置叫B点。
桩考技巧,2考试程序:首先,从A点往后倒,入乙库底,经两进两退将车移入甲库,然后,从甲库起步经乙库门出去至B点,再倒入甲库(车头进去即可)后,开出去至A点,考试程序结束。
在整个过程中,只要不碰杆不越线,就算合格。
桩考技巧,3直线倒车方法:头必须伸到车左右宽度的中间位置(必须伸到中间位置,如若不然,你就是把后面对准了,车也不在车库的中间位置。
这一点和你能否将车倒到车库的中间位置,至关重要),而且转向后方(你的头不可能转180度,首先,身体先转90度,也就是后背对着车门,然后,头再转90度,这样,脖子就不难受了),用车尾部中间位置对准车库门正中间直线倒车,尾部进入车库门后,立刻对准车库底正中间直线倒车,左右摆动幅度不得超过10公分,如有偏差,提前调整方向。
否则不是碰杆就是越线,调整方向方法和前进时相同。
桩考技巧,4A点入乙库方法:1、停车位置:车左边一定要和1线保持平行,并离开1线1.5米左右,不能小于1米(如果小于1米,在转动方向盘进乙库时,由于后悬外移的出现,车头容易越1线);也不能大于两米,(如果大于两米,车右边距离乙库门的横向距离减小,转弯半径减小,调整方向时的距离缩短,入库难度加大,车尾容易越乙库的边线)。
此停车位置适合于C1驾驶证考试。
b2科目二倒库移库技巧一、离合器要用前脚掌踩,不要用脚心,然后以脚跟为支点控制离合大小,一般把离合踩到底时,脚跟所处的位置并不方便做为支点的,这时你可以把整个脚后移一下找一个合适的支点。
二、找正看车尾的两角与库的后面两杆的距离,远离哪边就往哪打方向,方向一般要打半圈,到位后要迅速回正方向。
三、回头最好能把头转到车的中间,要做到每次回头,头所在的位置要一样,这样才能把误差正确找出来。
四、速度这个是关键,越慢越好,别人说没用的,一般三天差不多就有感觉了,尤其在打方向时,离合会跟着动,最好时刻要想着踩离合。
倒库准备:车辆与底线平行(前轮回正,可看方向盘和左前轮是否正)倒左库1、挂倒挡,松手刹,离合器慢慢抬到半联动,启动后压稳离合器,调整好车速,慢速向后倒车;回头向右后方观察右后门三角窗,当库前中杆到达三角窗前边时,将方向迅速向右打死(打方向时注意车速保持在最慢)。
2、如果观察到右车尾有可能碰中杆时,迅速向左回一大把方向,稍待片刻,估计车尾不会碰中杆时,继续向右打死方向。
3、车尾顺利进库后,通过左倒车镜观察左车身线与库左边线平行时,迅速将方向向左回正。
待车头顺利进库后(此时车头应该不会触两边的杆),向后观察左倒车镜车身与边线的平行情况来修正方向,宽了,往左修,窄了,往右修,(也可回头看车后窗中心标志与两后杆中心标志是否对正,如果右偏,往左修,左偏,往右修。
),修完后保持方向。
4、当身体到达停车标志位置后,停车。
倒右库1、平稳倒车后,当3号杆和4号杆还有20厘米没重合时(或当身体到达打死标志位置后),方向迅速往左打死。
2、接近中杆后,当左车尾有可能碰中杆时,迅速向右回一大把方向,稍待片刻,估计不会碰中杆时,继续向左打死方向。
3、车尾顺利进库后,通过左倒车镜观察左车身线与库左边线平行时,迅速将方向向右回正。
4、左右适当调整,停车标志停车。
技巧:1、尽量慢速倒车,但中间不能停。
2、第一次打死,早打点比晚打好,早打一点还可以回一把,晚打车过了就没法调整了。
科目二倒车入库八字口诀科目二倒车入库考试口诀技巧:倒车入库有原则,车身要直前后齐。
右倒车库有诀窍,转向可早不可迟。
早了见角回一圈,迟了神仙也难医。
左右后视见库底,两边库底差不离。
回正方向尽量急,车身若偏小幅移。
整车入库才停车,出库左灯莫忘记。
手中方向松三分,回库距离隔半米。
左宽右窄出库松,回倒之时修得及。
科目二倒车入库操作方法:一、右倒库1、轻抬离合使车后移,控制好车速,看左后视镜,当右起点感应线出现在左后视镜位置时把转向盘右打死。
2、把转向盘右打死,继续后移,中间不能停车,同时观察右后视镜,至最右边线露出后,保持车身与库角距离750px(小于750px回半圈方向盘调整,大于750px继续右打死方向盘,车身正还是大于30 cm,可能是看1点时方向盘打得慢,下次提前或加快打方向的速度)。
继续后移,当右后视镜库边线与车身平行时,方向盘回正,调整车身,倒入车库。
3、倒库入底时看左后视镜,当库前边线在左后视镜位置时,停车,倒库完成。
4、出库,挂一档前行,当车前头盖刚看不到路边线时,把转向盘左打死,当车身正时,回正方向,前车轮做起点感应线,停车。
二、左倒库1、轻抬离合使车后移,看左后视镜,当左起点感应线稍微过左后视镜,到位置时把转向盘左打死。
2、把转向盘左打死,继续后移,中间不能停车,同时观察左后视镜,至最左边线露出后,保持车身与库角距离750px(小于750px回半圈方向盘调整,大于750px继续左打死方向盘,车身正还是大于750px,可能是看1点时方向盘打的慢,下次提前或加快打方向的速度)。
继续后移,当左后视镜库边线与车身平行时,方向盘回正,调正车身,倒车入库。
3、方向盘回正,倒库入底。
看左后视镜,当库前边线出在左后视镜位置时,停车,倒库完成。
4、出库,挂一档前行,当车前头盖看不到路边时,把转向盘右打死,当车身正时,回正方向,前车轮过右起点感应线,停车。
科目二倒桩顺口溜进场心情莫紧张,仔细把场来打量。
看清边线红外线,操作过程莫触越。
上车先要调座椅,再调车位至理想。
一切就绪再举牌,开考指令要听清。
离合倒档松手刹,慢速匀速向后行。
紧盯中杆左后杆,三点一线慢转轮。
若待中杆近锁杆,则要快速打转向。
到了锁杆B柱间,停车转向没商量。
转向打死盯右镜,车尾中杆是目标。
二者间距二十整,再小入库费思量。
间距二十看车身,库车平行最理想。
若有夹角也不慌,方向回正再后行。
待到车尾已入库,方向打死继续倒。
车身正时轮回正,此时车身已入库。
若是车身紧贴杆,转向一圈向宽边。
闪开二十公分时,方向一圈向窄边。
继续倒车看车身,与库平行轮回正。
待到车镜已入库,库内微调稍靠中。
移库首进向右转,方向打死再起步。
起步以后看边杆,车上找准左棱端。
棱端边杆成一线,停车回正转向盘。
再进快速左打死,中标近杆要停车。
首退先要右打死,把手过线轮回正。
轮正继续向后行,轮眉到线左打死。
车身正时轮回正,此时首退已完成。
二进二退为微调,确保车身进库中。
出库需经左库门,违反路线可不行。
启动之前打一圈,方向向左要记清。
车头右角抵边杆,方向回正继续行。
等到车头盖边线,方向向左快打死。
车正轮正稍前行,停车倒档进右库。
若是车身太靠库,右打一圈来修正。
稍向后行轮回正,车尾库门间距足。
三点一线对角杆,向左打死莫放松。
库口处理同甲库,脚慢手快细心调。
乙库只需入半库,换档前行出右门。
待到车头盖住线,向右打死手要快。
车正轮正稍前行,停车空档拉手刹。
耳闻喇叭恭喜声,倒库大功已告成。
科目二倒车入库技巧大全
进库:
1.前行时左车缝线对准地上白*虚线前进
2.要进库勒,身体对准左边石头砌的库边左打一圈进库
3.左车筋线对准库位角上白标志右打一圈
4.车前盖碰白标志右打死(可以不打死)
5.车身正左打一圈半回平,前进对白标慢慢修
6.车窗3C标志重合地上白库线停
左倒库入库:
1.身体坐直,对准地上白标向左打死(若离原定距离远,晚打死,若近,早打死.)
2.慢慢倒车,左后视镜中,前门把手与左侧前角距20公分回半圈(如果左边前把手与直角距离小了,一圈早点回,再向左打,慢慢修正)
3.如果前把手与直角距离可以,等左边前后把手与边线平行即车身正了回一圈.
5.慢慢倒车左肩对齐标点立即停车
注意:倒车的时候,车尾要向哪里,方向盘就往哪里打.
右倒库出库:
1.当右边门锁与右边地面上黄线快重合时,方向盘右打1圈加90度,直到车子正了停,挂倒档
右倒库入库:
1.不打倒退,左后镜看见库位直角,回90度,一旦保险杠离开黄线,快回一圈.
宁愿屁股留空隙小不成直线,也要确保反光镜在界内.
(如果倒下去发现距离很小,可以向右打一点,成直线再回.或不回半圈,离开马上回一圈半.)
倒车出库左:
1.直线出库车头碰黄线方向盘左边打死切忌要慢
2.车筋线与前方标记差半米回半圈,快接近回一圈,左车窗3C标志
重合白线停.
出库:
1.方向盘回正,挂倒档
2.退至身体对准第二条库线停
3.挂一档右打一圈出库,车头出了左打一圈.
停车:
离合踩到底,慢踩刹车,停稳后空档,关车拉手刹.。
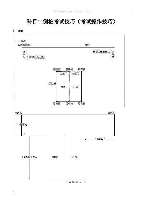
科目二倒桩考试技巧(考试操作技巧)(一)考场(二)考试车-捷达车(三)车身点位A点:右手边前车窗边。
B点:左手边后门门锁。
C点:右手边后挡风玻璃边上。
D点:右手边后排座位中间。
E点:左手边后视镜内侧边。
F点:前边盖标志旁边(此点关系不大,只要不碰前中杆就行,最好车头与前中杆离20CM左右)。
G点:左前刮水杆折点。
H点:A点对应的左手边位置。
K点:B点对应的右手边后门门锁位置。
M点:右手边后车窗中间。
(四)倒桩线路(五)倒桩步骤1.先踩离合器,刹车,启动车。
挂倒档,放手刹。
轻放离合,倒车至转向点与A点对齐;2.方向盘向右打满,倒车至B点与前左杆对齐;3.检查C点是否与前中杆对齐,回正方向盘,倒车至C点与前中杆对齐;4.方向盘向右打满,倒车至车身与中线平行;5.回正方向盘,倒车至D点与后中杆对齐;6.踩离合器挂1档,方向盘向右打满,前进至E点与前中杆对齐;7.方向盘向左打满,前进至F点与前中杆对齐;8.踩离合器挂倒档,方向盘向右打满,倒车至左后车轮压住中线边缘;9.检查车身是否与中线平行,以及判断车尾是否超出底线。
方向盘向左打满,倒车至车身与中线平行;10.踩离合器挂1档,方向盘回正,前进修整车身与中线平行;11.踩离合器挂倒档,倒车至D点与后右杆对齐;12.踩离合器挂1档,方向盘向右打一圈,前进至G点与前左杆对齐后,回正方向盘,检查两边宽度调整好通过车门,前进至D点与前中杆对齐;13.方向盘向左打满,前进至车身成直线;14.踩离合器挂倒档,转向点与H点对齐;15.方向盘向左打满,倒车至K点与前右杆对齐;16.检查M点是否与前中杆对齐,回正方向盘,倒车至M点与前中杆对齐;17.方向盘向左打满,倒车至车身与中线平行;18.回正方向盘,倒车至车头与前车库门1米左右;19.踩离合器挂1档,调整车身与两边宽度,前进至C点与前右杆对齐;20.方向盘向右打满,前进至车身成直线,拉车刹,置空档,松离合器,停车。
(六)(七)要点1.整个过程中,车速一定要控制好,要慢。
驾驶证B科目二桩考技巧图文文件管理序列号:[K8UY-K9IO69-O6M243-OL889-F88688]B2桩考技巧认识场地:脸对着车库,背后是1线,左边车库叫甲库,右边车库叫乙库,左边停车位置叫A点,右边停车位置叫B点。
此主题相关图片如下:桩考技巧,2考试程序:首先,从A点往后倒,入乙库底,经两进两退将车移入甲库,然后,从甲库起步经乙库门出去至B点,再倒入甲库(车头进去即可)后,开出去至A点,考试程序结束。
在整个过程中,只要不碰杆不越线,就算合格。
此主题相关图片如下:桩考技巧,3直线倒车方法:头必须伸到车左右宽度的中间位置(必须伸到中间位置,如若不然,你就是把后面对准了,车也不在车库的中间位置。
这一点和你能否将车倒到车库的中间位置,至关重要),而且转向后方(你的头不可能转180度,首先,身体先转90度,也就是后背对着车门,然后,头再转90度,这样,脖子就不难受了),用车尾部中间位置对准车库门正中间直线倒车,尾部进入车库门后,立刻对准车库底正中间直线倒车,左右摆动幅度不得超过10公分,如有偏差,提前调整方向。
否则不是碰杆就是越线,调整方向方法和前进时相同。
此主题相关图片如下:桩考技巧,4A点入乙库方法:1、停车位置:车左边一定要和1线保持平行,并离开1线1.5米左右,不能小于1米(如果小于1米,在转动方向盘进乙库时,由于后悬外移的出现,车头容易越1线);也不能大于两米,(如果大于两米,车右边距离乙库门的横向距离减小,转弯半径减小,调整方向时的距离缩短,入库难度加大,车尾容易越乙库的边线)。
此停车位置适合于C1驾驶证考试。
此主题相关图片如下:2、设计行使路线:能否沿着正确的行使路线倒车,是决定碰不碰杆和能否顺利入库的关键所在,行使路线如下图所示。
此主题相关图片如下:3、转动方向盘时机:在A点开始起步往后倒车时,先保持直线倒车,等车尾接近(甲库边线往1线延长)的延长线时,开始打方向入乙库,这时,看着车尾的右后角,在入乙库的瞬间,要和中杆保持30厘米(左右10厘米)的距离,如果不符合要求,提前调整方向。
移库(倒桩)简要说明1.倒进乙库:①踩离合器到底,挂R档,慢慢放松离合器,倒车,回身看,当右后窗把手上小圆孔对A 桩,踩制动器,停车,右打3圈轮;②继续倒车,回头看后窗左二杆对B 桩时,踩离合器到底,踩制动器,停车,左打2圈轮,继续倒车;回头看后窗右边小孔和B 桩对上时,踩离合器到底,踩制动器,停车,回右打2圈轮;③继续倒车,看左倒镜——看到CC'边线和车身将要平行时,踩离合器到底,踩制动器,停车;④回左打3圈轮,继续倒车,边倒车,边看左右倒镜,方向盘调整车身,回身看,当后窗左二杆和B'贴近时,踩离合器到底,踩制动器,停车;2.从乙库移到甲库:①挂一档,右打3圈轮,车前行,当车头左侧蓝边对准A 桩时,踩离合器到底,踩制动器,停车;②左打6圈轮,车起前行,当保险杠左点对准B 桩时,踩离合器到底,踩制动器,停车;③右打3圈轮,车前行,当保险杠快贴到B 桩时,踩离合器到底,踩A A' 甲库 B B'乙库C C'制动器,停车;④挂R档,用手下压左倒镜,右打3圈轮,倒车,看左倒镜,当左后轮贴压BB'边线时,踩离合器到底,左打6圈轮;⑤继续倒车,看车头在桩中心时,踩离合器到底,踩制动器,停车,挂一档,右打3圈轮,车前行,把车身摆正,车不要出AB边线,踩离合器到底,踩制动器,停车,挂R档,倒车,看后窗第二杆和A'桩贴近时,踩离合器到底,踩制动器,停车;⑥挂一档,左打2圈轮,行进中右打1圈轮,当车左边缝即将对准C 桩时,快右打一圈轮,出甲库,3.倒进甲库、出库:①回头看,当车后备箱右角对准B桩时,踩离合器到底,踩制动器,停车,左打3圈轮,前行,当车身和左边线平行时,踩离合器到底,踩制动器,拉手刹4扣,停车,挂R档,回右打3圈轮;②倒车,看对角线两个点C、A'点相距大约200mm重合时,左打死轮,看右后窗,当左下点和B点贴近时,踩离合器到底,踩制动器,停车,右打2圈轮;③继续倒车,回身看当左后窗的白色标识右边和B桩重合时,左打2圈轮,倒车看右倒镜,当车身和右边线平行时,踩离合器到底,踩制动器,停车,右打3圈轮,继续倒车,进库就踩离合器到底,踩制动器,停车,松手刹到底;④挂1档,前行,从甲库口出来,当前车厢水平边和前方白线即将贴上时,车行进中,根据车速右打3圈轮;车身成60度角,左打1圈轮,当车身和白线平行正时,再左打2圈轮,到位踩制动器,停车(踩离合器到底、踩制动、挂空挡、拉手制动)——(完毕)。
南部新城科二倒库要点①倒桩:两次模拟,一次B区,一次C区,我觉得考场的库还是挺标准的,按照教练教的点,我基本都是一把倒进去的,有时候都不用调整直接倒进去。
模拟的时候每个库有两次机会,我觉得基本可以找到适合自己的点,如果实在没有,考试当天上午7点前还可以复模一次。
正式考试的时候,前面一个人下车后,教练会帮你重新停好车,所以不用担心前面的人没有停好的问题。
以正手入库为例,本人身高166,当左视镜下沿碰到白线上沿的时候就立马向右打死,接着看右视镜,库角离把手还有30公分时(这个需要靠自己平时的积累,多练练就能找到感觉了),自己看情况,如果你觉得继续倒能倒进去,就不用回;如果你觉得右边有点小,就往左回方向盘,直到你觉得够了为止,然后再向右打方向盘,车身进库以后9分正以后回正方向盘。
反之就是反手入库。
②小四项:我所在的驾校小四项是考前三天集训的,说是三天其实没有那么多,每天抽上午或者下午上车跑5圈就结束了。
所以小四项能多练练就多练练,记住各种点。
三次考试都是抽到3号线,只不过车不同。
一条线有3辆车同时跑,所以考试时候前面有车进入考试区域的时候,一定不要进去,在后面等,直到他通过你再进去,你在考试区域中是不能停车的,但是在每个项目中间是可以停车等前面人通过再走的。
比如你过了直角转弯,下一个项目是S弯,你现在已经出了直角转弯的考试区域,还没有进入S弯,而且S弯考试区域里有人在考试,这个时候你要停下,并且是不会扣分的。
3号线的顺序是:坡道启停→直角转弯→S弯→侧方位停车。
直角转弯出来以后不是正对着S弯,要稍微绕过一个柱子才会进入S弯,这个就意味着你的车是斜对着S弯的入口进去的,车速一定要慢(中途可以踩刹车减速),看车头的两个小镜子(不是左右后视镜)调整方向。
小四项开的时候要注意一下标志牌,因为会出现开到别的路线上的情况,这样就挂了,所以考前要知道你抽到的线的顺序。
我的问题主要是车头的三分之一找不准,这就导致在【坡道启停】和【侧方位】容易出问题。
(一).科目二(倒桩移库)一、从右停车位(起点)倒入乙库1.车盖子中心对准水泥缝(泰安考试场地),车轮是否正直,方向大口是否朝上,踩离合器,挂倒档。
2.当3号杆与4号杆成直线时方向盘向右打死(朝中杆方向打死),3.看左反光镜里,左后门把手和边杆1重合,回正方向。
3.回头看,车右三角窗一露前中杆时,向右打死(朝中杆方向打死)6.看左右反光镜里,车身与白线平行,回正方向。
7.进库后,看左右反光镜,杆4、5是否对称,谁大向哪打方向8.回头看,后中杆到后座靠背的1/3处,停车(方向盘动作:向右打死—→回正—→向右打死—→回正二、从乙库移到甲库(2进2退)1.前进与后退,全部都可以先将方向盘向右打死。
2.一进:挂一档,向右打死,左加强筋过边杆3有5公分的时候向左打死,找平行(别碰前中杆)3.一退:挂倒档,向右打死,回头看左大窗的黑标志与后中杆重合(或雨刷大弯和左前边杆对齐)向左打死,雨刷轴和中杆对齐(或车左前角边刚过中线)回正方向,此时车身是斜的,4.二进,朝车库正中开,抬头看两白线与车头距离,再调方向,哪边大向那边打,合适回正,一定要移到甲库。
5.二退,只要平行尽量不调方向,回头看,后中杆到后座靠背的1/3处,停车三、从甲库前进到左停车点1.左打一圈,左加强筋过边杆30公分(或车左前角边刚过前边杆1),回正方向2.先右镜子出,再左镜子出,等镜子全出来的时候,向右立起方向盘,中杆到后座位中央(因人而异,1/3处保险)向左打死,车出库后与白线平行回正,(看车左窗黑边与白线15公分左右,实际尺寸1.5米)。
题外话:如果在泰安考试,出第一个库时,水泥缝在车头正中是不对的,水泥缝应该偏右,出库最好不要管水泥缝,只要车身平行,不是特别靠外,车身就不会出线。
四、从左停车点倒入甲库1.当3、4号杆对准成直线前20厘米(相隔“2拳宽”时)时,停车,方向盘向左打死(朝中杆方向打死),2.看右反光镜里,左后门把手和边杆3重合,回正方向。
科目二倒桩要领技巧(希望对您有帮助)
操作过程:
一、倒乙库
从起点上车,先看车身与6号线的距离是否在1.5~2.0米之间,向右侧回头看,当从右后车门的前边看到1号两杆和驾驶员的身体成一条时停车,然后将方向盘向右打死倒车,看右后视镜,当车尾离2号杆20~30厘米时停车,回正前轮直接倒车,向右回头看车体右边的后三角挡风玻璃,当三角玻璃中出现2号杆时停车,将方向重新向右打死,看后视镜倒车,在后视镜中看到车体与库线平行时回正方向盘,当车在两线中间时直倒,倒车时回头看右靠枕与5号杆对齐时停车。
二、移库
一进在乙库库底向右打死方向,换1挡前进,当2号杆到车前面大挡风玻璃的左下角时停车,向左打死方向,然后前进至车身摆正,回正方向直行,当车头与2号杆之间有30cm左右时停车。
一退向右打死方向倒车,当车头的中间与3号杆对齐时停车回正前轮,然后看左后视镜直倒,当从左后视镜中看到左后轮压中间线时,停车向左打死方向,然后看后视镜倒车至车体与裤线平行时停车并回正方向盘。
二进二退此时车已完全进甲库,换挡直行至车头与库口有30cm左右时停车换挡再退至甲库库底。
移完库后向左打一圈前进,当左车头与3号杆对齐时回正方向盘直行至左车头挡住6号线时向左打死方向前进,车身回正方向时停车。
三、倒甲库
向后倒车,从左侧回头看,当从左前车门的前边看到3号和4号杆成一条直线时停车,向左打死方向,看左后视镜倒车,当从左后视镜中看到2号杆时,看左后视镜倒车至车尾离2号杆20~30cm时停车回正方向盘直倒,向左回头看左后车门的梯形玻璃,当2号杆出现在梯形玻璃的中间时停车,将方向盘重新向左打死,在后视镜中看到车体与库线平等时停车,回正方向直接停车,当车头进库大约1米停车,将车开回原起点,考试结束。
驾校科目二倒桩入库的考试技巧大全桩考作为科目二首个操作项目的考试,顺利通过倒桩移库考试对后面的学习可是至关重要的。
下面是小编为大家整理的倒桩考试技巧。
一、桩考步骤:1、备考:在备考大厅备考,听广播叫名字,持身份证到与桩库号对应的考试窗口,交验身份证,然后沿人行道至库外准备。
2、上车:首先调整座椅,除第一名学员或接在一名未及格学员后考试的学员外,都需要先将车从右库开出,开至起点,(挂一档,松手刹,出库,车头盖七米线停车,方向右打满,车正停车,不正调整方向,开出一段距离,不要过人行线,停住车,回正方向,不要动档)此过程不是考试过程。
至起点后,通过车窗举手示意监控室人员已经准备好。
下面是正式考试步骤:1、听到副驾驶座位上对讲设备发出“开始考试请倒车”指令,挂倒档,倒车,通过看右后门车窗看,当右前杆与左后杆重合,停车,向右打满方向;2、继续倒车,看右后门后面三角窗尾角,当前中杆刚从这个角消失时,停车,向左回半圈方向;3、继续倒车,看右后门后面三角窗尾角处的CCC标志,当前中杆又出现在这个标志处时,停车,向右打满方向;4、倒车,看左反光镜,车正停车,然后看左右反光镜,哪边距离大就向那侧调整,每次可打四分之一方向,一旦使车在库中左右距离相等后回正方向,保持左右位置倒车,向右后头枕看,当后中杆基本到头枕外侧时,停车;以上步骤完成后,车已停于左库内。
然后继续下面步骤。
1、一上:在上面第四步基础上,向右打满方向,换一档,前进,引擎盖左凸棱对右前杆停车,向左打满方向;前进,车正停车,车不论能否停正也不能使车头盖过前中杆上的蓝线条,否则会撞到前中杆;2、一下:向右打满,挂倒档,引擎盖左凸棱对准左前杆,停车,向左打满方向;引擎盖左凸棱对前中杆停车,回正方向;3、二上:挂一档,前进,引擎盖左凸棱一直对准前中杆走,车头刚盖过前中杆上的蓝线条停车,向右打满方向;4、二下:挂倒档,倒车,看左后车门窗黑立柱前的窗花,此位置每个人不一样,请根据教练教学时的点看,当后中杆出现在适合你的位置时,停车,向左打满方向;继续倒车,左车头对前中杆停车。
科目二口诀
学车倒桩之进正库:
训练考试样不变,压慢速度最关键;进退不可中途停,严禁撞杆和压线。
考生入场看屏幕,报告姓名亮证件;请示上车别迟疑,听到指令站车边。
上车先需调座位,各种操作应方便;车镜角度要调好,方便看杆和看线。
前后应便踏离合,上下不够加座垫;转身回头认准库,前后六杆看清楚。
左脚踏下离合器,挂准倒档别挂错;松下手刹脚不变,离合缓松至车动。
车动先须观车速,不宜快来只宜慢;快压离合慢缓抬,微调离合速可限。
角杆重合打方向,点前打死点后回;车尾入库速看镜,车身平行回两圈。
车速宜慢不宜快,保持平行不压线;库底停车看准点,确保车尾不出线。
学车倒桩之移库:
移库起步右两圈,角对中杆左四圈;车头左移车平行,右打两圈杆前停。
一退起步右两圈,角对角杆左四圈;车头右移车平行,右打两圈对点停。
二进起步右两圈,角对中杆慢回盘;边走边回对中杆,车正盘正杆前停。
二退起步右两圈,尾对角杆慢回盘;两圈打死车停正,车居库中移库完。
学车倒桩之出库:
向前向左出车库,左角贴杆不擦杆;车头重合库外线,猛向左转车正停。
学车倒桩之进反库:
挂入倒档看角杆,左门窗边慢打盘;盘速跟着车速转,左转方向看中杆。
左后门窗角对杆,点前打死点后回;车尾入库速看镜,车身平行回两圈。
车速宜慢不宜快,保持平行不压线;车身出库不撞杆,车镜出库不挂杆。
那边欲挂那打盘,平安出库算过关。
仅供参考。