三管塔安装方案组织设计
- 格式:doc
- 大小:192.01 KB
- 文档页数:12
40米三管塔基础安全施工方案一、编制依据本专项安全方案是在《新建铁路成都至绵阳、乐山客运专线四电系统集成工程通信工程施工组织设计》的基础上,落实成绵乐铁路客运专线相关文件精神并结合本工程特点,根据设计院提供设计图纸《成绵乐客专施房-205》、《成绵乐客专施房-212》、《成绵乐客专施房-213》和我公司施工相关文件进行编制。
编制依据:1)《铁路通信施工规范》TB10205-99;2)《铁路通信设计规范》TB10006-99;3)《铁路运输通信工程施工质量验收标准》TB10418—2003;4)《铁路通信施工技术安全规则》TBJ406—87;5)《铁路GSM-R数字移动通信工程施工技术指南》TZ 341-20076)《高速铁路通信工程施工质量验收标准》TB10755-2010;7)《高速铁路通信工程施工技术指南》铁建设【2010】 241号;8)《建筑地基基础工程施工质量验收规范》 GB50202-2002;9)《混凝土结构工程施工质量验收规范》 GB50204-2002(2011 修正)10)《建筑基坑支护技术规程》JGJ120-99;11) 其它现行国家有关施工及验收规范;12) 我公司现有相关文件。
二、工程概况新建成绵乐铁路客运专线全线共有52座铁塔(区间基站D1K160+550和成都南站的GSM-R通信铁塔不属于成绵乐工程),其中2座铁塔(德阳站和新成都站)都是利用既有铁塔,故本次工程只需要建筑50座铁塔。
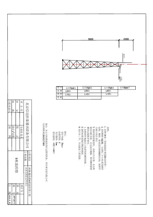
其中铁塔高度:50米2座、40米44座、35米1座、25米1座、20米1座。
按照设计图纸要求,基坑开挖基本在2.7m-4.6m,同时区间段内还有人工开挖的桩基,桩孔深度为6.5m,本安全方案包括深度超过3m的基坑和桩基开挖部分。
三、危险源、风险辨别与控制策划铁塔基础施工存在的危险源通信铁塔基础施工过程中危险源有很多,如没有设置安全警戒线、防护栏和标志牌,基坑开挖堆土情况,基坑内土质状况。
钢管铁塔工程安装方案一、前期准备工作1、施工场地的准备首先,要确认施工场地是否符合地基承载能力和场地平整度的要求。
然后进行场地的清理,包括清除杂草、石头等障碍物,确保场地平整整洁。
2、人员准备安装钢管铁塔的工程需要各个专业的人员配合完成,包括施工人员、安全人员、监理人员等。
在施工前需要对相关人员进行岗前培训,熟悉工程要求和安全操作规程。
3、材料和设备准备在施工开始之前,需要确保所有安装所需的材料和设备齐全,并且材料质量合格,符合工程要求。
4、安全准备安全是施工的首要任务,需要制定好安全操作规程,严格执行施工安全管理制度,确保施工过程中的安全。
二、塔身组装1、选择合适的现场装配工艺根据工程要求和现场条件选择合适的装配工艺,制定详细的现场操作方案。
2、现场钢管切割将钢管按照设计要求进行切割,并对切口进行清理和打磨,以确保切口平整光滑。
3、现场焊接将切割好的钢管进行组装,采用焊接工艺进行连接。
焊接过程中要注意操作规范,确保焊接质量。
4、塔身吊装安装将焊接好的钢管塔身进行吊装安装,确保吊装设备合格,使用安全可靠。
5、塔身调平在完成吊装后,对塔身进行调平调正,确保塔身垂直度和平整度。
三、基础施工1、基础材料准备选择合格的基础材料,确保基础施工质量。
2、基础施工工艺根据设计要求制定基础施工方案,包括基础开挖、基础混凝土浇筑等工艺要求。
3、基础施工控制在施工过程中,要对基础施工进行严格的质量控制,确保基础质量符合要求。
四、整体安装1、整体吊装安装在完成塔身组装和基础施工后,对整个钢管铁塔进行整体吊装安装,确保吊装设备和方案合格可靠。
2、验收和调试在整体安装完成后,对钢管铁塔进行验收和调试工作,确保安装质量和性能符合要求。
五、安全保障在整个安装过程中要加强施工现场的安全管理,定期进行安全检查和隐患排查,确保施工过程中的安全。
六、施工质量控制对各个施工环节都要进行严格的质量控制,确保施工质量符合工程要求。
七、环保措施在施工过程中要加强对环保措施的落实,确保施工对环境的影响最小化。
江苏景灿钢杆有限公司三管塔安装方案三管通信塔安装批准:审核:编制:目录目录 (1)一、工程概况 (2)1、工程概况 (2)2、工程量和工期 (2)二、编制依据 (2)三、作业前的条件和准备 (2)1、技术准备 (2)2、施工人员组成 (3)3、主要施工机具 (3)4、材料和设备 (3)5、安全器具 (4)6、工序交接 (4)7、其他 (4)四、作业程序、方法和内容 (4)1、主要施工步骤 (4)2、施工工艺 (4)五、质量通病处理及预防和作业过程中控制点的设置 (6)1、质量通病处理及预防 (6)2、作业过程中控制点的设置.. (9)3、质量标准及要求 (10)六、作业的安全要求和环境条件 (11)1、作业的安全要求 (11)2、环境条件 (11)三管塔施工方案一、工程概况:1、工程概况:本工程为中国有限公司分公司三管通信塔安装工程,本工程采用机械绞磨(或人工绞磨吊装)。
使用机械绞磨(或人工绞磨)吊装三管通信塔是建筑安装企业总结多年安装经验,经专业施工人员及技术人员共同研究,制定的一种安装方法,该吊装方案,吊装经济,但使用机械绞磨(或人工绞磨)吊装对安全要求较高,对现场安装人员的施工整体素质要求较高,因此必须严格按吊装操作规程,确保安全,经密组织,谨慎操作。
工程地点位于,设计使用年限50年。
建设单位:监理单位:施工单位:设计单位:2、工程量和工期塔型塔高(m)数量(基)工期要求备注三管塔二、编制依据1、国家法律法规性文件2、国家标准及规范:《钢结构工程施工质量验收规范》GB50205-2001《建筑钢结构焊接规范》JGJ81-91《塔桅钢结构施工及验收规程》CESC80:2006《移动通信工程钢塔桅结构验收规范》YD/T5132-2005《起重机械技术条件》GB5226.2-20023、业主制定的质量目标和合同承诺4、已批准的施工图和设计变更及设备出厂的技术文件5、合同规定采用的规程规范等工程施工装备和现场条件6、类似工程的施工经验、专题报告等可作为参考资料三、作业前的条件和准备1、技术准备:1.1、安装前应取得基础验收合格的资料证明文件(包括根开、地脚螺栓安装)。
三管通信塔
三管通信塔
通信塔包括新型三管通信塔,传统类型的角钢塔和拉线塔等。
塔的设计针对国内传统角钢塔重量过重,占地面积大,造价高等问题,借鉴发达国家通信塔的设计和建设经验,采用无缝钢管做为塔柱材料,通过优化设计来最大限度的减轻塔的重量,减少土地占用,节省基础造价和施工进度,全面帮助运营商降低通信塔建设工程造价,节省国家土地和钢材资源,降低运营和维护成[1]本。
新型三管通信塔的特点采用无缝钢管作为塔柱材料,风荷载系数小,抗风能力强塔柱采用外法兰盘连接,螺栓受拉,不易破坏,降低维护成本塔柱正三角型布置,节约钢材跟开小,占地面积小,节约土地资源,选址便利塔身自重轻,新型三叶式伐板基础,降低基础造价桁架式结构设计,运输和安装便捷、建设工期短塔型随风荷载曲线变化设计,线条流畅,遇罕遇风灾不易倒塌,减少人畜伤亡设计符合国家钢结构设计规范和塔桅设计规程,结构安全可靠
新型三管塔主要参数:基本设计依据:钢结构设计规范(TJ17-74).
基本参数:设计风速:35米每秒
抗震: 8 级
裹冰:5-10毫米
垂直度:1/1000
适宜温度:-45C-+45C
防腐处理:热镀锌
使用寿命:30年。
本项目为某大型化工项目,其中包含多台塔类设备。
为确保塔类设备的安装质量和安全,特制定本施工方案。
二、编制依据1. 《化工塔类设备施工及验收规范》HGJ211-852. 《工业设备和管道安装工程设计规范》GB50264-973. 《化工机器安装工程施工及验收规范》HGJ203-834. 《机械设备安装工程施工及验收规范》GB50231-2009三、施工准备1. 施工人员:组织具有丰富经验的施工队伍,进行专业培训,确保施工人员具备相应的技能和素质。
2. 施工材料:根据设备清单,提前备齐所需材料,确保材料质量合格。
3. 施工工具:准备必要的施工工具,如吊车、扳手、螺丝刀、水平尺等。
四、施工工艺1. 基础验收:对基础进行检查,确保基础平整、坚实、满足设计要求。
2. 开箱检验:检查设备外观,核对设备型号、规格、数量等,确保设备完好。
3. 设备吊装:采用吊车进行设备吊装,确保吊装过程安全、平稳。
4. 设备找正:根据设备安装图,对设备进行找正、找平,确保设备安装精度。
5. 基础灌浆:在设备找正后,进行基础灌浆,确保基础与设备紧密结合。
6. 内件安装:按照设备安装图,安装设备内件,确保内件安装正确。
7. 封闭气密试验:对设备进行封闭气密试验,确保设备密封性能良好。
8. 试车:完成设备安装后,进行单体试车,确保设备运行正常。
五、质量控制1. 施工过程中,严格按照施工规范进行操作,确保施工质量。
2. 对施工人员进行定期检查,确保施工人员熟悉施工工艺和质量要求。
3. 对施工材料进行检验,确保材料质量合格。
4. 对设备安装精度进行检测,确保设备安装满足设计要求。
六、安全措施1. 施工人员必须穿戴好个人防护用品,如安全帽、手套、防护眼镜等。
2. 施工现场设置警示标志,确保施工区域安全。
3. 吊装作业时,严格按照吊装规范进行操作,确保吊装安全。
4. 施工过程中,加强安全巡查,及时发现并处理安全隐患。
七、施工进度安排1. 施工前期:完成施工准备、设备验收等工作,预计用时15天。
江苏景灿钢杆有限公司三管塔安装方案管通信塔安装批准:_____________________审核:_____________________编制:____________________目录................................................................................. .1、工程概况.......................................................................... ..21、工程概况......................................................................... ..22、工程量和工期....................................................................... ..2二、.............................................................................. 编制依据2三、.................................................................... 作业前的条件和准备21、技术准备 (2)2、施工人员组成 (3)3、主要施工机具 (3)4、材料和设备 (3)5、安全器具 (4)6、工序交接 (4)7、其他 (4)四、作业程序、方法和内容 (4)1、主要施工步骤 (4)2、施工工艺 (4)五、质量通病处理及预防和作业过程中控制点的设置 (6)1、质量通病处理及预防 (6)2、作业过程中控制点的设置 (9)3、质量标准及要求 (10)六、作业的安全要求和环境条件 (11)1、作业的安全要求 (11)2、环境条件 (11)三管塔施工方案—、工程概况:1、工程概况:本工程为中国__________ 有限公司_________ 分公司______ 三管通信塔安装工程,本工程采用机械绞磨(或人工绞磨吊装)。
10kV镇东线、10kV莲新线架空线改电缆工程钢管塔吊装组立施工方案及措施编写:高要南兴公司新桥工程部2016年2月2日本工程为10kV镇东线、10kV莲新线架空线改电缆工程,新建杆塔1基,考虑到钢管塔高度计重量,决定采用分段起吊组装的方案。
为保证施工平安迅速地组立钢管塔,特制定以下措施。
一、工程概况:1、本工程为10kV镇东线、10kV莲新线架空线改电缆工程,新建杆塔1基,2、钢管塔交通运输情况:本线路杆塔分布于马路边及田中,全线地形平坦,交通便利。
3、危险点情况及对应措施:1〕、由于钢管塔施工现场过往行人车辆,因此需在穿插路口上设置专人监护并设立平安警示牌如:前方施工车辆绕行等。
2〕、在起吊钢管塔前应进展试吊作业,在每一段钢管塔起吊约10cm时应暂停,检查制动装置,确认完好前方可继续起吊。
4、施工时间及要求:施工队定于2016年1月30日进展钢管塔组立工作,进展组立钢管塔前,施工工程经理部应组织施工员及聘用的专业起吊人员一同进展平安技术交底,明确任务、职责。
二、施工组织机构:(见下页)作。
施工队长:负责施工现场的组织管理平安生产、施工进度安排、文明施工、协调以及在起吊过程中配合起吊指挥员的工作等。
技术负责人:全面负责钢管塔组立过程中的工程技术管理和施工质量管理及具体负责施工技术管理、钢管塔专项组立措施及现场技术指导和督查等工作。
专职安监员:具体负责工程的平安监视管理、组织平安学习、督查和指导规程、措施的落实,参加事故的调查、处理以及消防、保卫和环境保护管理工作,对平安文明施工进展考核与奖惩。
整理并保管好平安资料。
兼职平安员:负责组织施工队平安学习、监视施工现场的平安文明施工,检查施工措施的落实,做好平安活动记录,整理有关平安资料并妥善保管,做好消防、保卫、环境保护等工作。
质检员:具体负责组立钢管塔的施工质量、计量、测量、试验等工作。
材料员:具体负责工程材料的收发保管及施工机器具的管理维护等工作。
三塔合一施工方案1. 引言三塔合一施工方案是指在建设过程中,将三座独立的塔楼合并为一座塔楼的施工方案。
这一方案可以减少占地面积、提高空间利用率,并且节约建设成本。
本文将详细介绍三塔合一施工方案的设计和实施过程。
2. 设计方案2.1 原始设计原始设计要求将三座独立的塔楼合并成一座塔楼,并保持原有的功能和空间分布。
在进行设计之前,需要进行详细的勘察和分析,确定原有建筑的结构和布局情况。
2.2 结构设计结构设计是三塔合一方案的核心,需要将原有的三座塔楼的结构进行整合。
在设计过程中,需要注意考虑原有结构的承重能力以及合并后结构的稳定性和安全性。
2.3 空间布局设计空间布局设计是为了保持原有的功能和空间分布,同时兼顾合并后的建筑形态和空间利用率。
在设计过程中,需要充分考虑功能之间的关联以及使用者的便利性。
2.4 设备布置设计设备布置设计是为了满足三座塔楼中的设备要求,并合并为一座塔楼的设计。
在设计过程中,需要充分考虑设备的运行和维护要求,以及合并后的建筑设备布置的合理性和便利性。
3. 实施过程3.1 地基处理在进行施工前,需要对原有的三座塔楼的地基进行处理。
地基处理的内容包括地基加固、地基排水等工作,以保证合并后的塔楼的地基能够承受合并后的建筑重量和荷载。
3.2 结构整合结构整合是将原有的三座塔楼的结构进行整合的过程。
这一过程需要根据设计方案,拆除部分结构,并进行新增和加固工作。
在进行拆除和新增工作时,需要注意保证原有结构的安全性,并确保合并后的结构稳定。
3.3 空间布置与装修在进行空间布置与装修之前,需要进行详细的平面布置和施工图设计。
这一过程包括墙体拆除、墙面处理、地面铺设等工作。
在进行装修过程中,需要充分考虑合并后的建筑的整体效果和使用功能。
3.4 设备安装与调试设备安装与调试是为了确保三塔合一后的塔楼设备的正常运行。
这一过程包括设备的安装、接线以及设备的调试和测试工作。
在进行设备安装与调试时,需要参考设备的安装手册和调试标准,确保设备能够正常运行。
烟气净化三管放散烟囱安装施工方案-secret
一、前言
烟气净化技术在环境保护领域中起着重要作用,而烟囱作为烟气排放的主要通道,其安装施工方案尤为关键。
本文将介绍烟气净化三管放散烟囱的安装施工方案。
二、设备准备
在进行安装施工前,需要准备以下设备和材料:
1.不锈钢三管放散烟囱
2.手持工具:扳手、螺丝刀等
3.螺栓、螺母
4.技术人员
三、安装施工步骤
1. 确定安装位置
首先需要根据现场情况,确定烟囱的安装位置。
要确保烟囱离排烟口远离一定
距离,确保排烟通道畅通。
2. 安装固定底座
在安装位置上,需要安装固定底座,将其固定在地面上,以确保烟囱的稳固性。
3. 组装烟囱管道
将三管放散烟囱的管道逐一组装起来,注意连接处要紧密,确保不会有漏气的
情况发生。
4. 固定烟囱管道
将组装好的烟囱管道固定在底座上,使用螺栓和螺母将其牢固地固定在地面上。
5. 连接烟囱和烟气净化设备
最后,将烟囱与烟气净化设备进行连接,确保排放的烟气可以经过净化后再排
放出去,达到环境保护的要求。
四、施工注意事项
1.施工过程中,要注意安全,避免发生意外事故。
2.确保所有连接处都严密可靠,避免漏气现象发生。
3.应根据具体情况合理安排施工顺序,确保施工的顺利进行。
五、总结
烟气净化三管放散烟囱的安装施工是一个重要的环节,需要认真对待。
通过本文介绍的安装施工方案,可以确保烟囱安装施工的顺利进行,从而达到烟气净化和环境保护的目的。
某三柱钢管火炬塔的施工方案【摘要】本文介绍了某三柱钢管火炬塔的施工方案,该火炬塔高57米,火炬高58米,塔架主体采用钢管作为塔柱,之间采用角钢拉杆螺栓连接,塔体标准节为6米,火炬筒体最长一节为12米,全部采用散件螺栓连接。
按原先方案,高空作业量大,施工周期长,经研究采用地面预制、分段吊装的方案,提高了安装的质量和效率,施工周期由15天缩短到了7天。
【关键词】某三柱钢管火炬塔的施工方案1 施工准备1.1 基础复验(1)对每个基础的水平度、锚栓跨度进行检测,是否符合设计要求及安装要求。
(2)对每个基础锚栓露出定位板的长度进行检测,是否符合安装要求。
1.2 塔件清点及安排(1)根据发货清单及安装图纸对已经到场的塔件进行清点并标明塔件号。
(2)对已清点标号的塔件分类、分段、分号,一次排放整齐。
(3)对以排好的塔件,根据安装图纸对其主要尺寸进行检测。
1.3 吊装准备(1)平整场地,疏通进车道路。
(2)对火炬及地脚螺栓进行检查,不得有损坏及锈蚀;要检查设备的方位标记、重心标记及吊挂点,对不符合安装要求者,给予补充。
(3)落实辅助机具及设备材料,如枕木、起吊用具等。
检查吊车的性能参数是否与选定的相符。
检查吊带的规格型号是否正确,有无损伤现象。
(4)安装时所使用的测量及检查用仪器与量具符合要求。
2 吊装方案2.1 卷扬机安装先将底部塔柱安装起来,底节内部横杆、斜杆逐一安装到位,将抱杆吊装到塔柱中心下端用三根钢丝绳分别固定到塔柱上,上端用三个手拉葫芦与塔柱固定。
抱杆顶部及中间各安装一个滑轮,地面塔脚处设计一个定向滑轮,固定好卷扬机。
2.2 塔体吊装(1)预先立好抱杆,调节手拉葫芦控制抱杆松或紧,使抱杆可以倾向所吊装主材位置。
(2)地面人员在已在地面组装好的主材上选定节点,并在主材下部栓上揽风绳,以控制主材的稳定性并配齐所用螺栓。
(3)利用固定在抱杆顶部的滑轮将主材起吊到所安装位置后,高空人员调节主材向心方向,使之正确就位并用螺栓固定好。
通信塔作业文件安装规程北京梅泰诺通信工业技术有限公司项目管理部2007年10月目录一、编制目的二、编制依据三、施工细则四、应急预案五、安全施工六、文明施工三角钢管通信塔安装规程一、编制目的为了顺利完成北京梅泰诺工程技术有限公司各个项目的安全施工,按期完工,并确保安装工程质量,树立我公司优秀的施工形象,特编制本<<三角钢管通信塔安装规程>>,作为我公司的通信塔安装实现标准化,系统化,统一化管理.指导性文件本规程作为安装施工及施工检测依据。
二、编制依据:《钢结构工程施工质量验收规范》GB50205—2001;《建筑钢结构焊接技术规程》JGJ81—2002 J218—2002;《塔桅钢结构施工及验收规程》CECS80:2006;《钢结构高强度螺栓连接的设计施工及验收规程》JGJ82;《紧固件机械性能螺栓螺钉和螺柱》GB/T3098.1;《紧固件机械性能螺母粗牙螺纹》GB/T3098.2;三、施工细则各铁塔安装队必须严格贯彻本公司质量管理方针,按合同工期为国内各地区移动通信运营商提供质量合格的发射塔,树立我公司良好的质量形象。
1铁塔安装队必须具备以下施工设备方可承担我公司的铁塔安装任务: 绞磨一套(含钢丝绳),起重抱杆一套,电钻一台,电焊机及焊接设备一套,手拉葫芦(2吨)2台,千斤顶(3吨)一台,大绳100米,水管10米(测水平用),扭矩扳手一把,扳手、撬棍、铁锯、大锤等小型工具若干。
2铁塔安装队接到公司项目部通知后必须提前派专人到达基站位置,按公司所发的图纸对铁塔基础进行复测,并做实测纪录。
偏差大于10毫米的及时与项目部联系,取得校正方案。
有异常情况必须即时反馈给项目部决策。
表1观测基准点、塔的定位中心和标高的允许偏差检查数量:全部柱敦、法兰的标高与中心坐标。
每个法兰检查2个螺栓。
检验方法:用经纬仪、水平仪、钢尺现场实测。
3铁塔安装队与运输车辆取得联系,到达施工现场后准备卸车。
三管通信塔安装施工方案批准:审核:编制:目录目录 (1)一、工程概况 (2)1、工程概况 (2)2、工程量和工期 (2)二、编制依据 (2)三、作业前的条件和准备 (2)1、技术准备 (2)2、施工人员组成 (3)3、主要施工机具 (3)4、材料和设备 (3)5、安全器具 (4)6、工序交接 (4)7、其他 (4)四、作业程序、方法和内容 (4)1、主要施工步骤 (4)2、施工工艺 (4)五、质量通病处理及预防和作业过程中控制点的设置 (6)1、质量通病处理及预防 (6)2、作业过程中控制点的设置.. (9)3、质量标准及要求 (10)六、作业的安全要求和环境条件 (11)1、作业的安全要求 (11)2、环境条件 (11)三管塔施工方案一、工程概况:1、工程概况:本工程为中国有限公司分公司三管通信塔安装工程,本工程采用机械绞磨(或人工绞磨吊装)。
使用机械绞磨(或人工绞磨)吊装三管通信塔是建筑安装企业总结多年安装经验,经专业施工人员及技术人员共同研究,制定的一种安装方法,该吊装方案,吊装经济,但使用机械绞磨(或人工绞磨)吊装对安全要求较高,对现场安装人员的施工整体素质要求较高,因此必须严格按吊装操作规程,确保安全,经密组织,谨慎操作。
工程地点位于,设计使用年限50年。
建设单位:监理单位:施工单位:设计单位:2、工程量和工期二、编制依据1、国家法律法规性文件2、国家标准及规范:《钢结构工程施工质量验收规范》GB50205-2001《建筑钢结构焊接规范》JGJ81-91《塔桅钢结构施工及验收规程》CESC80:2006《移动通信工程钢塔桅结构验收规范》YD/T5132-2005《起重机械技术条件》GB5226.2-20023、业主制定的质量目标和合同承诺4、已批准的施工图和设计变更及设备出厂的技术文件5、合同规定采用的规程规范等工程施工装备和现场条件6、类似工程的施工经验、专题报告等可作为参考资料三、作业前的条件和准备1、技术准备:1.1、安装前应取得基础验收合格的资料证明文件(包括根开、地脚螺栓安装)。
三管塔工程安装方案怎么写一、前言三管塔是一种常见的建筑工程,其安装工作需要合理的规划和科学的方法来保证安全和效率。
本文将提供一个详细的三管塔工程安装方案,包括施工计划、安全措施、材料准备、施工流程等内容,以供参考。
二、工程概况三管塔工程的主要工作内容包括塔身安装、钢结构搭建、设备安装等。
本次安装的三管塔高度为30米,其中包括三个独立的管道,每个管道直径为2米。
塔身由钢结构组成,地基为混凝土基础。
设备安装包括通风设备、照明设备等。
三、施工准备1. 人员配备:安排足够数量的工程人员,包括项目经理、施工队长、操作工人等,并确保所有人员具备相关的施工经验和操作技能。
同时,保证施工人员的安全培训和防护用具配备。
2. 材料准备:准备好所需的材料和设备,包括钢结构、混凝土、起重设备、焊接设备等,并进行检查和质量验收,确保符合施工要求。
3. 安全措施:制定完善的安全管理方案,包括施工现场的安全围栏设置、紧急救援预案、作业人员的安全防护等,确保施工过程中的安全。
四、施工流程1. 地基施工:首先进行地基的施工,包括挖掘、浇筑混凝土基础等工作。
地基施工完成后,进行基础验收和质量核对。
2. 塔身组装:根据设计图纸,对钢结构进行组装,并使用起重设备将组装好的塔身部件吊装到预定位置。
3. 焊接工作:对吊装好的塔身部件进行焊接,确保组装的牢固和稳固。
4. 设备安装:安装通风设备、照明设备等,对设备进行调试和验收。
5. 完工验收:对整个工程进行验收和检查,并填写相关的验收报告。
完成工程移交。
五、安全控制1. 施工现场要严格遵守施工安全操作规程,施工人员须佩戴相关的防护用品,遵守安全操作规程。
2. 施工设备要定期检查和保养,确保设备运行正常。
3. 施工现场要设置明显的安全警示标志,保证施工现场的通行安全。
4. 在施工期间,要做好天气预测工作,确保在恶劣天气下停工,以避免意外。
5. 在施工过程中,要特别注意高空作业的安全,严格控制高空坠落等风险。
1. 编写依据根据《工业管道工程施工及验收规范》(GB50235)、《工业金属管道工程质量检验评定标准》(GB50184)、《现场设备、工业管道焊接工程施工及验收规范》(GB50236)、《涂装前钢材表面腐蚀等级及除锈等级》(GB8923)、《工业设备及管道防腐蚀工程施工规范》(GB 50726)及设计施工蓝图,制定本塔上管道安装施工方案。
2. 施工主要内容和技术要求(1)施工准备1)对塔上管道安装区域进行现场勘察,了解现场环境、设备布局及施工条件;2)编制施工组织设计,明确施工进度、人员配置、材料设备需求等;3)对施工人员进行技术培训,确保施工质量;4)备齐施工所需材料、设备、工具等。
(2)施工流程1)塔上管道安装前的准备工作;2)塔上管道的安装;3)管道焊接;4)管道试压;5)管道防腐;6)管道验收。
(3)施工要点1)塔上管道安装前,对管道进行外观检查,确保无裂纹、缩孔、夹渣、粘砂、折迭、漏焊、重皮等缺陷;2)塔上管道安装时,确保管道与支架连接牢固,支架焊接质量符合要求;3)管道焊接过程中,严格控制焊接工艺,确保焊缝质量;4)管道试压时,按照规范要求进行,确保管道系统无泄漏;5)管道防腐处理,采用涂料或防腐层,确保防腐效果;6)管道验收,按照规范要求进行,确保管道安装质量。
二、施工流程1. 施工准备(1)现场勘察,了解施工条件;(2)编制施工组织设计;(3)技术培训;(4)备齐材料、设备、工具等。
2. 塔上管道安装(1)管道与支架连接,确保连接牢固;(2)管道焊接,控制焊接工艺;(3)管道安装过程中,检查管道尺寸、位置及焊接质量。
3. 管道焊接(1)按照焊接工艺要求进行焊接;(2)焊接过程中,严格控制焊接参数,确保焊缝质量。
4. 管道试压(1)按照规范要求进行试压;(2)试压过程中,检查管道系统无泄漏。
5. 管道防腐(1)采用涂料或防腐层进行防腐处理;(2)确保防腐效果。
6. 管道验收(1)按照规范要求进行验收;(2)确保管道安装质量。
内爬式三管塔的结构优化设计作者:庞博马哲锐范文明杨靖来源:《中国新通信》 2018年第20期庞博马哲锐范文明杨靖中国通信建设集团设计院有限公司第四分公司【摘要】本文主要对现有三管塔的一些进行优化设计,以提高安装效率并节约成本。
文中对现有三管塔的结构优化进行了理论分析,并结合了两个工程实例,验证了这种优化的实用性和可操作性,大大节约了工程成本。
【关键字】内爬式三管塔优化设计节约成本一、概述随着通信行业的快速发展,通信塔在基站建设中得到大量的应用。
多管型通信塔以其不易损坏、维护成本低等特点而广泛应用于郊区、农村等偏远地区。
多管型通信塔还具有占地面积小、结构简单、施工难度低的特点,能够有效节约土地资源,为施工、运输提供便利。
目前国内的三管塔基本都是爬梯设置在铁塔外部,设置 2-4 个圆形平台,很大程度上增大了塔体的迎风面积,铁塔塔身重量比较重,用钢量较多,铁塔地脚力也比较大,铁塔建设成本相对较高。
本项目根据上述三管塔的不足,提出了优化思路和措施,使得在满足相同使用功能的前提下降低塔身重量,减小铁塔地脚力,从而降低铁塔建设成本。
同时方便塔厂批量加工零部件,缩短单站建设周期,方便后期维护、管理。
二、项目目标在满足客户需求的前提下,优化塔体结构与天线安装要求,合理减少塔体上部钢材用量,降低基础内力。
规范、减少地脚螺栓规格种类,节省塔体与基础建设投资,同时方便塔厂批量加工零部件,缩短单站建设周期,方便后期维护、管理。
三、铁塔结构优化思路和措施(1)将三管塔通常的外爬梯改为内爬梯,铁塔上下爬梯及馈线系统等安装在塔桶内,减少铁塔塔身受风面积,减少塔体偏心扭转等不利影响,同时减少部分爬梯护圈材料用量。
(2)合理利用铁塔垂直高度空间,上部塔身设计为直线段,与地面垂直的塔身三角主材钢管尺寸尽量与抱杆相当,可用于直接安装天线,减少负荷同时节约材料。
天线设备的安装高度、位置、数量等可在该区段内随意调整,以方便实用。
(3)考虑同一高度位置的各个天线方向不同,最大迎风面不会完全一致,优化同层天线总迎风面积折减。
江苏景灿钢杆有限公司三管塔安装方案三管通信塔安装批准:审核:编制:目录目录 (1)一、工程概况 (2)1、工程概况 (2)2、工程量和工期 (2)二、编制依据 (2)三、作业前的条件和准备 (2)1、技术准备 (2)2、施工人员组成 (3)3、主要施工机具 (3)4、材料和设备 (3)5、安全器具 (4)6、工序交接 (4)7、其他 (4)四、作业程序、方法和内容 (4)1、主要施工步骤 (4)2、施工工艺 (4)五、质量通病处理及预防和作业过程中控制点的设置 (6)1、质量通病处理及预防 (6)2、作业过程中控制点的设置.. (9)3、质量标准及要求 (10)六、作业的安全要求和环境条件 (11)1、作业的安全要求 (11)2、环境条件 (11)三管塔施工方案一、工程概况:1、工程概况:本工程为中国有限公司分公司三管通信塔安装工程,本工程采用机械绞磨(或人工绞磨吊装)。
使用机械绞磨(或人工绞磨)吊装三管通信塔是建筑安装企业总结多年安装经验,经专业施工人员及技术人员共同研究,制定的一种安装方法,该吊装方案,吊装经济,但使用机械绞磨(或人工绞磨)吊装对安全要求较高,对现场安装人员的施工整体素质要求较高,因此必须严格按吊装操作规程,确保安全,经密组织,谨慎操作。
工程地点位于,设计使用年限50年。
建设单位:监理单位:施工单位:设计单位:2、工程量和工期塔型塔高(m)数量(基)工期要求备注三管塔二、编制依据1、国家法律法规性文件2、国家标准及规范:《钢结构工程施工质量验收规范》GB50205-2001《建筑钢结构焊接规范》JGJ81-91《塔桅钢结构施工及验收规程》CESC80:2006《移动通信工程钢塔桅结构验收规范》YD/T5132-2005《起重机械技术条件》GB5226.2-20023、业主制定的质量目标和合同承诺4、已批准的施工图和设计变更及设备出厂的技术文件5、合同规定采用的规程规范等工程施工装备和现场条件6、类似工程的施工经验、专题报告等可作为参考资料三、作业前的条件和准备1、技术准备:1.1、安装前应取得基础验收合格的资料证明文件(包括根开、地脚螺栓安装)。
安装前应根据基础验收资料复核各项数据,按下表执行支承面、支座和地脚螺栓允许偏差项次项目允许偏差1 柱墩支承表面(法兰上端面)(1)标高(2)水平度±3.00mmL/500,且不大于3mm2 地脚螺栓位置扭转(任意截面处)±2.00mm3 塔基对角线上地脚螺栓法兰中心连线长度L/2000,且±10mmL—对角线长度4 相邻两组地脚螺栓法兰中心边长±5.00mm5 地脚螺栓伸出法兰面长度±30.0mm6 地脚螺栓螺纹长度±30.0mm1.2塔体进场前,人员先进场,首先考察地形和基础周围环境,对基础根开进行检查。
1.3施工前必须对施工操作人员进行技术交底和安全交底。
1.4熟悉本工程设计施工图纸。
2、施工人员组成人员配备人数职责要求起重工1-2人专业起重工,持证上岗,操作时密切与塔上作业人员配合。
高空作业人员2人具有较好的技术素质,工作胆大心细,身体素质较好,并持有高空操作证。
其中1人具有起重安装方面较全面的专业知识。
地面组装工2人具备三管塔安装基本知识,工作认真有一定识图能力,并且负责区域警戒。
配合起重工起吊塔件。
3、主要施工机具:提升设备(机械绞磨或人工绞磨)、钢丝绳、U型卡、垫铁、三脚架、扳手、撬棍、扭矩扳手、手持电砂轮、电钻、电焊机、钢卷尺、透明塑料软管6m、经纬仪、铁锤、钢丝刷、液压千斤顶等工具。
4、材料和设备4.1塔材到场,对构件的外形几何尺寸、制孔、组装、焊接、镀锌等进行检查,做出记录。
4.2塔体进场后,及时卸车,对照塔厂发料清单及设计图纸,清点构件数量是否齐全,检查缺件,错件,签回执单(将所发现的构件问题在回执单上标明并立刻通知项目部)。
4.3构件分类堆放,钢度较大的构件可以铺垫木水平堆放,避雷针一定要轻拿轻放。
4.4严禁将塔件做地锚使用,以免变形影响安装质量。
4.5连接材料:检查各种螺栓连接材料数量、规格、质量证明书,并符合设计要求及有关国家标准的规定。
4.6防腐材料:防腐材料(环氧沥青厚浆型防锈漆)技术性能应符合设计要求和有关标准的规定,应有产品质量证明书。
4.7检查吊装机械及吊具,安装及质量检查所有量具、检测仪器等均应具有相应的精度,并应定期送计量部门检测鉴定。
4.8其它材料及设备。
5、安全器具5.1安全带、安全帽、绝缘防滑鞋、施工围挡、起重指挥专有工具。
6、工序交接6.1安装前土建基础验收资料齐全,并通过建设单位及监理单位验收。
7、其他。
7.1注意半成品、成品保护,检查构件在装卸、运输及堆放中有无损坏或变形。
损坏和变形的构件应予矫正或重新加工,被碰损的防锈漆应补涂。
四、作业程序、方法和内容1、主要施工步骤检查基础是否合格→组装主体和角钢塔件→吊装塔体第一段完成→检测地脚法兰盘上表面水平→主体完成→安装避雷针→安装平台→天线抱杆、GPS天线→安装爬梯→过桥安装→地线焊接、防腐→场地清理2、施工工艺2.1工艺流程:作业准备→塔件组拼→杆件吊装→法兰连接→检查、验收2.2、安装过程1铁塔安装应严格执行《塔桅钢结构施工及验收规程》CECS:2006;2先将地脚螺栓调节螺母及垫片初步定位,然后将抱杆立起紧固在塔基础柱上,然后将铁塔底段三根主管搬运到塔基础边,分别将主管调至基础柱上,用绞磨吊装塔件就位,主管就位后将厚垫片分别套进地脚螺栓,然后把螺母进行预紧,使用水准管开始对底段法兰上端面进行测量(每个法兰至少测量两个点,以最内侧和最外侧两个点为最佳。
)所有的测量点都应在同一平面内,如有误差则调节预埋螺栓进行调校,待全部调校合格后,将法兰盘螺栓上、下三个螺母拧紧,每法兰上为双螺母一垫片,法兰下为一母一垫片;铁塔法兰盘离地脚螺栓法兰高度控制在80mm左右,为了防止底段螺母被盗,塔脚拧紧调校后将地脚螺栓顶部丝扣破坏或点焊。
3底段安装完毕,抱杆升起准备吊装下一段(见附图)按同样方法吊装第二段,每安装完毕一段后要及时测定垂直度,法兰与法兰的贴含率不得低于75%,法兰盘间的间隙大于0.8mm时用垫片垫实,垫片应镀锌,并作防腐处理。
连接节点板与连接件的贴含率不得小于75%。
4距地面第二塔段安装完毕后,测量上法兰上端面是否在同一平面内(测量方法与底段法兰同),如有误差,立即调整。
按此方法向上逐段安装,铁塔安装完避雷针后安装平台之前将底段水平再次调校,误差控制在2mm以内。
5铁塔安装完毕后,应对塔身中心垂直度进行自检,垂直度倾斜不得大于全塔高度的1/1500。
6通过业主验收合格一年后,对铁塔基础进行观测,地基均匀沉降方可对塔脚进行包封。
附图五、作业过程中控制点的设置和质量通病及预防1、质量通病及预防1.1主体结构安装质量通病处理与预防通病1:塔身扭转处理措施:对扭转较小的塔身进行底部抄平、法兰盘角度调整或者对部分角钢重新安装或更换以释放应力,对扭转较大无法调整的铁塔必须拆除重建。
预防措施:加强基础地脚螺栓验收,偏差超过验收标准的基础、未经处理或处理不合格禁止安装。
通病2:节点板贴合率不满足要求处理措施:矫正变形构件,螺栓抗剪连接时节点板应紧密贴合,其实际贴合面与设计贴合面之比应不小于90%。
预防措施:杜绝野蛮卸车,运输及倒运过程中如有节点板变形应及时矫正。
通病3:法兰盘间隙不符合要求处理措施:检查铁塔底段法兰盘是否水平或对部分角钢重新安装或更换以释放应力,法兰实际接触面与设计接触面之比对桁架及单管塔不应少于75%,对桅杆不应少于60%。
用0.3mm塞尺不能插入即认为达到实际接触要求。
法兰间隙超过0.8mm时应用垫片垫实,垫片应镀锌,垫入后其边缘应与法兰盘焊接,然后现场做防腐处理。
预防措施:加强基础地脚螺栓验收,偏差超过验收标准的基础未经处理或处理不合格禁止安装,安装过程中每层需复核水平,发现问题及时整改。
通病4:交叉铁无垫片处理措施:整改,补齐垫片。
预防措施:加强技术交底与到货清点,仔细核对安装图纸,统一验收标准。
通病5:现场缺件处理措施:及时安装补件。
预防措施:加强现场到货清点,现场缺件应及时上报,并要求塔厂尽快补件,对现场的缺件,项目部应做好记录并跟踪。
通病6:角钢改件后无防腐措施处理措施:对现场切割的角钢断面做喷涂锌处理。
预防措施:加强现场到货清点与核对,现场角钢改件时需对断面做喷涂锌防腐处理。
通病7:构件现场开、扩孔或改件不合理处理措施:对不合理的构件更改进行补强处理或更换。
预防措施:加强技术交底,严格监管,现场不得用气割或电焊开、扩孔,主材构件现场改件必须通过公司批准后按要求实施。
通病8:主材及构件变形处理措施:用千斤顶或利用现场条件矫正,变形严重的主材及构件需更换后方可安装。
预防措施:加强到货验收,杜绝野蛮卸车,运输及倒运过程中如有变形应及时矫正,如变形严重需及时与塔厂沟通,及时更换。
通病9:构件锈蚀处理措施:轻度的划痕或擦伤采用现场喷涂锌处理。
大面积的构件锈蚀应找出原因并及时与塔厂沟通,更换构件。
预防措施:加强到货验收,杜绝野蛮卸车,运输及倒运过程中如有划痕或破坏镀锌层,应在安装完后进行喷涂锌处理。
通病10:塔材污染处理措施:及时清理。
预防措施:加强技术交底,对易造成塔材污染的施工环境做必要的处理,不可避免的塔材污染在铁塔安装完后对塔身进行清理。
1.2紧固件连接质量通病处理与预防通病1:螺栓以小代大处理措施:及时更换。
预防措施:加强螺栓到货清点,做好技术交底,安装过程中避免螺栓缺损。
通病2:螺栓漏穿处理措施:及时补齐并紧固。
预防措施:加强螺栓到货清点,安装过程中避免螺栓缺损,严格检查验收,如有缺件,应尽快补齐。
通病3:主材螺栓反穿处理措施:及时整改,螺栓穿入方向在同层同种节点中应一致。
预防措施:加强技术交底,统一安装标准。
通病4:同一层面螺栓穿过方向不一致处理措施:及时整改。
预防措施:加强技术交底,统一验收标准,螺栓穿入方向在同层同种节点中应一致。
通病5:防盗螺栓和普通螺栓混用(或不同普通螺栓混用)处理措施:按要求整改,调换和增补螺栓确保螺栓安装与设计图纸一致。
预防措施:加强技术交底与到货清点,仔细核对安装图纸,统一验收标准。
通病6:螺栓未紧固处理措施:及时整改,对全塔螺栓紧固,达到规定扭矩。
预防措施:加强塔队管理,铁塔完工之前必须对所有螺栓复紧。
通病7:螺栓锈蚀处理措施:对锈蚀的螺栓做喷涂锌处理或更换。
预防措施:加强到货验收环节,标准件必须有合格证,材质检验单。
通病8:螺栓未热镀锌(使用黑螺栓或电镀螺栓)处理措施:更换螺栓。
预防措施:加强到货验收环节,临时购买安装的黑螺栓或电镀螺栓必须及时更换为热镀锌螺栓。
1.3平台安装质量通病处理与预防通病1:护圈不水平处理措施:现场整改,调平。