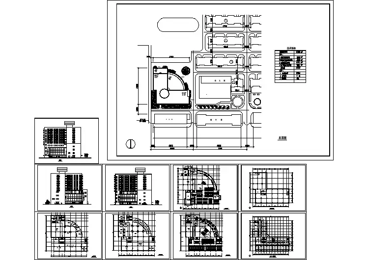
男厕残卫女厕宿舍梯入口暖通弱电演艺吧 男厕男更衣女厕女更衣职工餐厅暖通 男厕女厕包厢包厢 男厕女厕KTVKTV散座化妆KTV舞台大厅本层不超过540人控制室暖通弱电KTV服装道具KTV散座强电连廊休息厅强电散座门厅强电连廊 男厕女厕FM-1520FM-1520FM-1520KTV特级防火卷帘特级防火卷帘弱电KTVKTV暖通FM-1520KTVKTVFM-1520FM-1520大厅上空特级防火卷帘特级防火卷帘KTV女厕8人宿舍男厕本层最多可住宿164人暖通男浴室女浴室弱电活动8人宿舍天井特级防火卷帘FM-1520FM-1520过厅特级防火卷帘强电8人宿舍8人宿舍电梯机房强电一层平面图1:100二层平面图1:100三层平面图1:100四层平面图1:100五层平面图1:100屋顶平面图1:100初加工库房库房主食品库副食品库备餐间洗碗间主楼(已建)主楼(已建)主楼(已建)主楼(已建)连廊花池见建施说明残疾人坡道及其栏杆做法详98ZJ901上坡道1:12配电间@260X143上4级@300X140上2级上3级@300X140上2级@300X140由甲方二次装修设计送审厨房具体做法由甲方二次装修送审餐厅墙体采用轻质隔断,由甲方二次装修送审选定墙体采用轻质隔断,墙体采用轻质隔断,由甲方二次装修送审消毒间120厚耐火砖1烟囱大样1:25烟囱见建施排污沟及其盖板参98ZJ512沟300宽400深热加工灶台灶台灶台男厕女厕大便槽及砖砌隔断见参98ZJ512男浴室女浴室见98ZJ512小便槽及砖砌隔断妇洗洗手池洗涤池洗涤池洗手池KTVKTVKTVKTV弱电上3级@300X140门厅盥洗室第一演艺单元,面积198.39%%164第二演艺单元,面积127.96%%164第四演艺单元,面积152.60%%164第三演艺单元,面积161.00%%164上底标高=23.000顶标高=25.20015t冷水箱顶标高=25.0