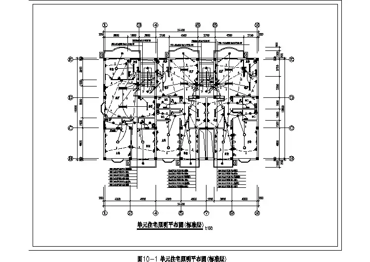
建 筑电 气给 排 水结 构暖 通1.251.01.3照明照明照明w-a33w-a32w-a310.851.7照明w-p33w-p32照明BA16ADPN16ADPNZR-BVV3X2.5 CT/E,SC20/CZR-BVV3X2.5 CT/E,SC20/C1.51.81.80.75照明W-n28W-n30照明W-n29照明W-n31照明BCBA16ADPNDPN16ADPN16ADPN16AZR-BVV3X2.5 CT/E,SC20/CZR-BVV3X2.5 CT/E,SC20/CZR-BVV3X2.5 CT/E,SC20/CZR-BVV3X2.5 CT/E,SC20/CPe=350kWPe=439kWPe=180kWPe=236kWPe=181kWPe=175kWPe=179kWPe=260kWPe=209kWPe=268kW信号相线应急电源应急电源信号相线应急电源信号相线16ACDPNZR-BVV1X2.5 CT/E,SC20/CDPN16AADPN16A16ADPN16ADPNDPN16ACBABZR-BVV3X2.5 CT/E,SC20/CZR-BVV3X2.5 CT/E,SC20/CZR-BVV3X2.5 CT/E,SC20/CZR-BVV1X2.5 CT/E,SC20/CZR-BVV1X2.5 CT/E,SC20/CZR-BVV1X2.5 CT/E,SC20/CZR-BVV3X2.5 CT/E,SC20/CZR-BVV3X2.5 CT/E,SC20/CZR-BVV3X2.5 CT/E,SC20/CZR-BVV3X2.5 CT/E,SC20/CZR-BVV3X2.5 CT/E,SC20/C16ADPNCDPN16ABDPN16ABDPNA16ADPN16ACDPN16AA应急电源信号相线应急电源信号相线信号相线应急电源DPN16AADPN16A16ADPN16ADPNDPN16AD