屋面排气管做法
- 格式:docx
- 大小:27.97 KB
- 文档页数:1
上人屋面排气管做法
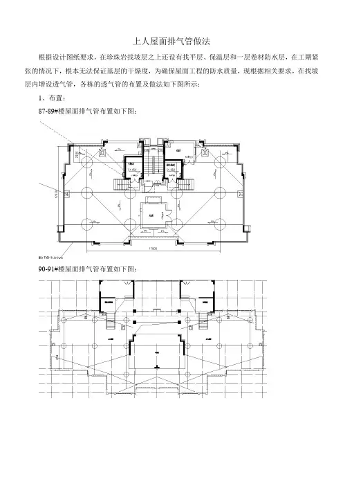
根据设计图纸要求,在珍珠岩找坡层之上还设有找平层、保温层和一层卷材防水层,在工期紧张的情况下,根本无法保证基层的干燥度,为确保屋面工程的防水质量,现根据相关要求,在找坡层内增设透气管,各栋的透气管的布置及做法如下图所示:
1、布置:
87-89#楼屋面排气管布置如下图:
90-91#楼屋面排气管布置如下图:
92-94楼屋面排气管布置如下图:
2、做法:
排气管立管采用金属管DN50,水平管采用PVCDN50,在自粘改型沥青卷材施工完成后,按照布置图布设,竖直段和水平段排气管交界处采用五通或三通连接,其端部用透水布或密目铁丝网包裹,防止砂浆堵塞管道口。
用1:3水泥砂浆抹成斜面固定,水泥砂浆固定点间隔不大于2m,水泥砂浆抹面高度不大于50mm。
珍珠岩找坡施工时,注意排气管的成品保护。
水平PVC管,每隔300mm在上下各钻孔一处。
竖向排气管顶部采用弯头,弯头朝下。
在局部按照《屋面工程质量验收规范》要求,做防水补强。
屋面暗埋式排汽管工法屋面工程防水层施工前,受各种条件和环境因素的影响,防水基层以下各层次的含水率往往过高.在温度升高和自干燥过程中,会产生一定的水汽压力,当防水层处于密闭状态时,这种水汽压力超过防水层与基层的粘结强度时,会使防水层与基层脱离,产生鼓泡甚至破坏,从而影响防水质量和耐久性,克服此弊端的传统做法是做成排汽屋面。
排汽屋面通常在屋面找坡层、保温层内留置间距约6m左右排汽通道.排汽道纵横贯通,在交汇处竖向留置排汽孔,待一定时间各层自然干燥后,可拆除排汽孔并将防水层封闭。
目前,更多的做法则是永久性留置,并进行了适度细部装饰。
随着屋面混凝土结构整体现浇的大量应用,建设速度的加快以及屋面使用功能的扩充,排汽屋面施工势在必行且已相当普遍,但传统做法已不太适应使用要求。
本工法在不改变排汽功能的条件下,改进传统做法,经工程实践,收到很好效果。
一、工法特点本工法具有如下几个主要特点:(1)排汽管网畅通、汇汽效果易得到保证。
(2)排汽口隐蔽美观、屋面实用性提高。
(3)屋面防水层渗漏隐患减少、防水效果好。
二、适用范围本工法适用于屋面防水层施工需要采取排汽措施,且四周设有女儿墙或有突出屋面的楼梯间、设备房排气烟道等结构的屋面排汽管道施工。
三、工艺原理所谓暗埋式排汽管是指排汽屋面的排汽管暗埋于防水层下,通过暗设在女儿墙或突出屋面结构的墙体上排汽管道系统。
它利用排汽管网内压力相等,管网内外存在压力差即可排汽的原理,改变传统排汽屋面在屋面上均匀设置排汽孔的做法,将排汽口永久性隐蔽设置。
暗埋式排汽管在屋面上不留设排汽孔,减少屋面障碍物,增加实用性、美观性,可以克服传统排气屋面排汽孔易被碰撞受损形成渗漏的弊端,保证屋面排汽通畅,保证屋面防水效果。
四、施工工艺流程及要点(一)工艺流程施工前准备墙内预埋排汽管UPVC塑料排汽管加工基层上弹出排汽管位置线找坡层、保温层施工排汽管网敷设找平层施工防水层施工出汽口细部装饰。
(二)操作要点1.按屋面图纸及设计要求画出排汽道施工布置图,排汽道纵横间距不大于6m ,以5m左右为宜,排汽道应纵横贯通,与墙上预留排汽管连通.2.根据排汽道布置图在墙体上预留排汽孔管道,排汽孔宜设在不易碰撞受损、无障碍物处,排气口距屋面高度不小于350mm(如图1).当住宅工程有突出屋面的排烟气道时,排汽管出口亦可直接伸入屋面排烟气道内(如图2)。
表C2-1
编号
工程名称
将台乡农民回迁安置房11#、
12#、14#、15#住宅楼及3#车库
东段
交底日期2017.3.7施工单位北京市朝阳田华建筑集团公司分项工程名称屋面排气管交底提要相关施工工艺、质量标准及安全防护
交底内容:
审核人交底人接受交底人
表C2-1
编号
工程名称
将台乡农民回迁安置房11#、
12#、14#、15#住宅楼及3#车库
东段
交底日期2017.3.7
施工单位北京市朝阳田华建筑集团公司分项工程名称屋面排气管交底提要相关施工工艺、质量标准及安全防护
交底内容:
审核人交底人接受交底人。
雨水管以及屋面排气管、落水口、披水做法1、雨水管安装:雨水管卡应设置牢固、距离均匀一致、距墙面20mm。
明排水口距地面不大于200mm。
在排水口弯头拐弯处设一道管卡,卡子间距不大于2m,最下面一道设置双卡子。
雨水管卡与墙面连接处应打胶封闭。
(见图)高跨屋面向低屋面排水时,在低屋面排水口处设置收水簸箕(见图)2、屋面排气孔做法:2.1对需要铺设排气管道的屋面,排气管道设置在保温层中,在穿过保温层的管道上打排气孔,排气孔呈梅花状分布。
2.2排气管道外壁包裹一层玻璃布,防止保温层中颗粒将管道上的排气孔堵死。
2.3根据屋面的情况布置排气管道,排气管道要纵横贯通,在保温层形成有效的排气网。
2.4在排气管道上设置排气出口,排气出口与大气相通,在屋面面积每36m2的围设置1个出气口,在排气管出口处要做防水处理,防水层高度不低于300mm。
排气孔根部进行装饰。
(参见效果图)2.5排气出口效果图:3、屋面面层做法:3.1面层砖镶贴时应双向留缝,缝宽10mm,采用1:1水泥砂浆勾缝。
当屋顶面积较大时,要求不大于6×6m设置变形缝,留置20mm宽缝,用柔性防水材料填缝。
3.2面层排砖应考虑整体效果美观,应尽量采用整砖排布,若出现非整砖,其宽度不宜小于整砖宽度的2/3或变色做装饰带。
4、屋面落水口做法:5、屋面披水做法:5.1女儿墙与屋面交接处做成圆弧型,卷材顺女儿墙铺贴至女儿墙顶端檐下,卷材收头的端部裁齐,收头用金属压条钉压牢固,用密封膏封闭压条上口及固定点处。
5.2女儿墙防水卷材铺贴完毕后,在其表面抹灰,采用纤维混合水泥砂浆抹灰,设置分格缝,分格缝间距不大于6m一道,缝宽20mm,分格缝用密封膏封闭。
5.3在镶贴屋面圆弧转角处镶贴地砖时,屋面地砖铺贴到圆弧的结束处,在地砖与圆弧的交界处设置凹槽,槽填塞密封胶。
5.2面层效果图:。
图析:雨水管以及屋面排气管、落水口、披水做法RSS打印复制链接大中小发布时间:2014-04-10 08:58:541、雨水管安装:雨水管卡应设置牢固、距离均匀一致、距墙面20m m。
明排水口距地面不大于200mm。
在排水口弯头拐弯处设一道管卡,卡子间距不大于2m,最下面一道设置双卡子。
雨水管卡与墙面连接处应打胶封闭。
(见图)高跨屋面向低屋面排水时,在低屋面排水口处设置收水簸箕(见图)2、屋面排气孔做法:2.1对需要铺设排气管道的屋面,排气管道设置在保温层中,在穿过保温层的管道上打排气孔,排气孔呈梅花状分布。
2.2排气管道外壁包裹一层玻璃布,防止保温层中颗粒将管道上的排气孔堵死。
2.3根据屋面的情况布置排气管道,排气管道要纵横贯通,在保温层内形成有效的排气网。
2.4在排气管道上设置排气出口,排气出口与大气相通,在屋面面积每36m2的范围内设置1个出气口,在排气管出口处要做防水处理,防水层高度不低于300mm。
排气孔根部进行装饰。
(参见效果图)2.5排气出口效果图:3、屋面面层做法:3.1面层砖镶贴时应双向留缝,缝宽10mm,采用1:1水泥砂浆勾缝。
当屋顶面积较大时,要求不大于6×6m设置变形缝,留置20mm宽缝,用柔性防水材料填缝。
3.2面层排砖应考虑整体效果美观,应尽量采用整砖排布,若出现非整砖,其宽度不宜小于整砖宽度的2/3或变色做装饰带。
4、屋面落水口做法:5、屋面披水做法:5.1女儿墙与屋面交接处做成圆弧型,卷材顺女儿墙铺贴至女儿墙顶端檐下,卷材收头的端部裁齐,收头用金属压条钉压牢固,用密封膏封闭压条上口及固定点处。
5.2女儿墙防水卷材铺贴完毕后,在其表面抹灰,采用纤维混合水泥砂浆抹灰,设置分格缝,分格缝间距不大于6m一道,缝宽20mm,分格缝用密封膏封闭。
屋面暗埋式排汽管工法屋面工程防水层施工前,受各种条件和环境因素的影响,防水基层以下各层次的含水率往往过高。
在温度升高和自干燥过程中,会产生一定的水汽压力,当防水层处于密闭状态时,这种水汽压力超过防水层与基层的粘结强度时,会使防水层与基层脱离,产生鼓泡甚至破坏,从而影响防水质量和耐久性,克服此弊端的传统做法是做成排汽屋面。
排汽屋面通常在屋面找坡层、保温层内留置间距约6m左右排汽通道。
排汽道纵横贯通,在交汇处竖向留置排汽孔,待一定时间各层自然干燥后,可拆除排汽孔并将防水层封闭。
目前,更多的做法则是永久性留置,并进行了适度细部装饰。
随着屋面混凝土结构整体现浇的大量应用,建设速度的加快以及屋面使用功能的扩充,排汽屋面施工势在必行且已相当普遍,但传统做法已不太适应使用要求。
本工法在不改变排汽功能的条件下,改进传统做法,经工程实践,收到很好效果。
一、工法特点本工法具有如下几个主要特点:(1)排汽管网畅通、汇汽效果易得到保证。
(2)排汽口美观、屋面实用性提高。
(3)屋面防水层渗漏隐患减少、防水效果好。
二、适用范围且四周设有女本工法适用于屋面防水层施工需要采取排汽措施,设备房排气烟道等结构的屋面排汽管道儿墙或有突出屋面的楼梯间、施工。
三、工艺原理通过所谓暗埋式排汽管是指排汽屋面的排汽管暗埋于防水层下,它利用排汽管暗设在女儿墙或突出屋面结构的墙体上排汽管道系统。
改变传统排汽网内压力相等,管网内外存在压力差即可排汽的原理,暗将排汽口永久性隐蔽设置。
屋面在屋面上均匀设置排汽孔的做法,埋式排汽管在屋面上不留设排汽孔,减少屋面障碍物,增加实用性、美观性,可以克服传统排气屋面排汽孔易被碰撞受损形成渗漏的弊端,保证屋面排汽通畅,保证屋面防水效果。
四、施工工艺流程及要点(一)工艺流程UPVC 塑料排汽管施工前准备墙内预埋排汽管加工基层上弹出排汽管位置线找坡层、保温层施工排汽管网敷设找平层施工防水层施工出汽口细部装饰。
(二)操作要点1.按屋面图纸及设计要求画出排汽道施工布置图,排汽道纵横间距不大于6m ,以5m左右为宜,排汽道应纵横贯通,与墙上预留排汽管连通。
屋面保温排气管做法《屋面保温排气管做法》屋面保温排气管,这玩意儿听起来好像很专业,很神秘,但其实啊,它就像是屋面的“呼吸器官”,重要得很呢。
我记得第一次接触屋面保温排气管的时候,我那是一脸懵啊。
当时跟着师傅在工地上,师傅指着那些管子说:“小子,这可是有讲究的。
”我心里就想,不就是几根管子嘛,能有啥讲究?哼,后来才知道自己真是太天真了。
这屋面保温排气管的做法,首先得选好管子。
你可别小瞧这一步,就像选对象一样,得慎重。
也许你会觉得,随便找根管子不就行了?那可不行!这管子得有一定的强度,就好比人得有个好身板儿,要不然在屋面风吹日晒的,没多久就坏了,那不是白忙活嘛。
然后就是安装位置啦。
这就像是给房子“扎针灸”,位置得精准。
我就见过有的施工队,可能为了图省事,随便找个地方就把管子安上了。
这可不对啊!这排气管得放在保温层里水汽容易聚集的地方,就像在潮湿的角落里放个抽湿器一样。
要是放错了位置,水汽排不出去,那屋面保温层就像被泡在水里的面包,时间长了就烂了。
说到安装过程,那也是个技术活儿。
管子得垂直安装,不能歪歪扭扭的。
这让我想起小时候搭积木,要是积木没搭正,那肯定得塌呀。
安装的时候,还要注意管子和屋面的连接要紧密,可不能漏风。
这就好比给房子穿衣服,要是衣服有个大口子,风呼呼地往里灌,那还能暖和吗?在管子周围做密封处理的时候,那材料得选好。
有的密封材料,就像那不靠谱的朋友,刚开始看着还行,时间一长就不行了。
而好的密封材料呢,就像忠诚的卫士,死死地守住管子周围,不让水汽有可乘之机。
不过,我有时候也会想,这屋面保温排气管的做法是不是就一成不变了呢?难道就不能有点创新?比如说,能不能研发一种智能的排气管,能自动检测水汽的含量,然后自动调节排气的速度?这听起来有点像科幻电影里的东西,但谁知道呢?也许在不久的将来就能实现了。
还有啊,在施工过程中,有些工人可能会偷懒。
我就纳闷儿了,这屋面保温排气管做不好,以后出了问题还不是得返工?这不是自己给自己找麻烦嘛。
雨水管以及屋面排气管、落水口、披水做法1、雨水管安装:雨水管卡应设置牢固、距离均匀一致、距墙面20mm。
明排水口距地面不大于20 0mm。
在排水口弯头拐弯处设一道管卡,卡子间距不大于2m,最下面一道设置双卡子。
雨水管卡与墙面连接处应打胶封闭。
(见图)高跨屋面向低屋面排水时,在低屋面排水口处设置收水簸箕(见图)2、屋面排气孔做法:对需要铺设排气管道的屋面,排气管道设置在保温层中,在穿过保温层的管道上打排气孔,排气孔呈梅花状分布。
排气管道外壁包裹一层玻璃布,防止保温层中颗粒将管道上的排气孔堵死。
根据屋面的情况布置排气管道,排气管道要纵横贯通,在保温层内形成有效的排气网。
在排气管道上设置排气出口,排气出口与大气相通,在屋面面积每36m2的范围内设置1个出气口,在排气管出口处要做防水处理,防水层高度不低于300mm。
排气孔根部进行装饰。
(参见效果图)排气出口效果图:3、屋面面层做法:面层砖镶贴时应双向留缝,缝宽10mm,采用1:1水泥砂浆勾缝。
当屋顶面积较大时,要求不大于6×6m设置变形缝,留置20mm宽缝,用柔性防水材料填缝。
面层排砖应考虑整体效果美观,应尽量采用整砖排布,若出现非整砖,其宽度不宜小于整砖宽度的2/3或变色做装饰带。
4、屋面落水口做法:5、屋面披水做法:女儿墙与屋面交接处做成圆弧型,卷材顺女儿墙铺贴至女儿墙顶端檐下,卷材收头的端部裁齐,收头用金属压条钉压牢固,用密封膏封闭压条上口及固定点处。
女儿墙防水卷材铺贴完毕后,在其表面抹灰,采用纤维混合水泥砂浆抹灰,设置分格缝,分格缝间距不大于6m一道,缝宽20mm,分格缝用密封膏封闭。
在镶贴屋面圆弧转角处镶贴地砖时,屋面地砖铺贴到圆弧的结束处,在地砖与圆弧的交界处设置凹槽,槽内填塞密封胶。
面层效果图:。
屋面暗埋式排气管方案(全面完整版)(可以直接使用,可编辑全面完整版资料,欢迎下载)屋面暗埋式排汽管工法屋面工程防水层施工前,受各种条件和环境因素的影响,防水基层以下各层次的含水率往往过高。
在温度升高和自干燥过程中,会产生一定的水汽压力,当防水层处于密闭状态时,这种水汽压力超过防水层与基层的粘结强度时,会使防水层与基层脱离,产生鼓泡甚至破坏,从而影响防水质量和耐久性,克服此弊端的传统做法是做成排汽屋面。
排汽屋面通常在屋面找坡层、保温层内留置间距约6m左右排汽通道。
排汽道纵横贯通,在交汇处竖向留置排汽孔,待一定时间各层自然干燥后,可拆除排汽孔并将防水层封闭。
目前,更多的做法则是永久性留置,并进行了适度细部装饰。
随着屋面混凝土结构整体现浇的大量应用,建设速度的加快以及屋面使用功能的扩充,排汽屋面施工势在必行且已相当普遍,但传统做法已不太适应使用要求。
本工法在不改变排汽功能的条件下,改进传统做法,经工程实践,收到很好效果。
一、工法特点本工法具有如下几个主要特点:(1)排汽管网畅通、汇汽效果易得到保证。
(2)排汽口隐蔽美观、屋面实用性提高。
(3)屋面防水层渗漏隐患减少、防水效果好。
二、适用范围本工法适用于屋面防水层施工需要采取排汽措施,且四周设有女儿墙或有突出屋面的楼梯间、设备房排气烟道等结构的屋面排汽管道施工。
三、工艺原理所谓暗埋式排汽管是指排汽屋面的排汽管暗埋于防水层下,通过暗设在女儿墙或突出屋面结构的墙体上排汽管道系统。
它利用排汽管网内压力相等,管网内外存在压力差即可排汽的原理,改变传统排汽屋面在屋面上均匀设置排汽孔的做法,将排汽口永久性隐蔽设置。
暗埋式排汽管在屋面上不留设排汽孔,减少屋面障碍物,增加实用性、美观性,可以克服传统排气屋面排汽孔易被碰撞受损形成渗漏的弊端,保证屋面排汽通畅,保证屋面防水效果。
四、施工工艺流程及要点(一)工艺流程施工前准备墙内预埋排汽管UPVC塑料排汽管加工基层上弹出排汽管位置线找坡层、保温层施工排汽管网敷设找平层施工防水层施工出汽口细部装饰。
雨水管以及屋面排气管、落水口、披水做法1、雨水管安装:雨水管卡应设置牢固、距离均匀一致、距墙面20mm.明排水口距地面不大于200 mm.在排水口弯头拐弯处设一道管卡,卡子间距不大于2m,最下面一道设置双卡子。
雨水管卡与墙面连接处应打胶封闭。
(见图)高跨屋面向低屋面排水时,在低屋面排水口处设置收水簸箕(见图)2、屋面排气孔做法:2。
1对需要铺设排气管道的屋面,排气管道设置在保温层中,在穿过保温层的管道上打排气孔,排气孔呈梅花状分布。
2.2排气管道外壁包裹一层玻璃布,防止保温层中颗粒将管道上的排气孔堵死.2.3根据屋面的情况布置排气管道,排气管道要纵横贯通,在保温层内形成有效的排气网.2.4在排气管道上设置排气出口,排气出口与大气相通,在屋面面积每36m2的范围内设置1个出气口,在排气管出口处要做防水处理,防水层高度不低于300mm。
排气孔根部进行装饰。
(参见效果图)2.5排气出口效果图:3、屋面面层做法:3。
1面层砖镶贴时应双向留缝,缝宽10mm,采用1:1水泥砂浆勾缝。
当屋顶面积较大时,要求不大于6×6m设置变形缝,留置20mm宽缝,用柔性防水材料填缝。
3.2面层排砖应考虑整体效果美观,应尽量采用整砖排布,若出现非整砖,其宽度不宜小于整砖宽度的2/3或变色做装饰带.4、屋面落水口做法:5、屋面披水做法:5。
1女儿墙与屋面交接处做成圆弧型,卷材顺女儿墙铺贴至女儿墙顶端檐下,卷材收头的端部裁齐,收头用金属压条钉压牢固,用密封膏封闭压条上口及固定点处。
5.2女儿墙防水卷材铺贴完毕后,在其表面抹灰,采用纤维混合水泥砂浆抹灰,设置分格缝,分格缝间距不大于6m一道,缝宽20mm,分格缝用密封膏封闭。
5.3在镶贴屋面圆弧转角处镶贴地砖时,屋面地砖铺贴到圆弧的结束处,在地砖与圆弧的交界处设置凹槽,槽内填塞密封胶。
5.2面层效果图:。
屋面暗埋式排汽管工法屋面工程防水层施工前,受各种条件和环境因素的影响,防水基层以下各层次的含水率往往过高。
在温度升高和自干燥过程中,会产生一定的水汽压力,当防水层处于密闭状态时,这种水汽压力超过防水层与基层的粘结强度时,会使防水层与基层脱离,产生鼓泡甚至破坏,从而影响防水质量和耐久性,克服此弊端的传统做法是做成排汽屋面。
排汽屋面通常在屋面找坡层、保温层内留置间距约6m左右排汽通道。
排汽道纵横贯通,在交汇处竖向留置排汽孔,待一定时间各层自然干燥后,可拆除排汽孔并将防水层封闭。
目前,更多的做法则是永久性留置,并进行了适度细部装饰。
随着屋面混凝土结构整体现浇的大量应用,建设速度的加快以及屋面使用功能的扩充,排汽屋面施工势在必行且已相当普遍,但传统做法已不太适应使用要求。
本工法在不改变排汽功能的条件下,改进传统做法,经工程实践,收到很好效果。
一、工法特点本工法具有如下几个主要特点:(1)排汽管网畅通、汇汽效果易得到保证。
(2)排汽口美观、屋面实用性提高。
(3)屋面防水层渗漏隐患减少、防水效果好。
二、适用范围本工法适用于屋面防水层施工需要采取排汽措施,且四周设有女儿墙或有突出屋面的楼梯间、设备房排气烟道等结构的屋面排汽管道施工。
三、工艺原理所谓暗埋式排汽管是指排汽屋面的排汽管暗埋于防水层下,通过暗设在女儿墙或突出屋面结构的墙体上排汽管道系统。
它利用排汽管网内压力相等,管网内外存在压力差即可排汽的原理,改变传统排汽屋面在屋面上均匀设置排汽孔的做法,将排汽口永久性隐蔽设置。
暗埋式排汽管在屋面上不留设排汽孔,减少屋面障碍物,增加实用性、美观性,可以克服传统排气屋面排汽孔易被碰撞受损形成渗漏的弊端,保证屋面排汽通畅,保证屋面防水效果。
四、施工工艺流程及要点(一)工艺流程施工前准备墙内预埋排汽管UPVC塑料排汽管加工基层上弹出排汽管位置线找坡层、保温层施工排汽管网敷设找平层施工防水层施工出汽口细部装饰。
(二)操作要点1.按屋面图纸及设计要求画出排汽道施工布置图,排汽道纵横间距不大于6m,以5m左右为宜,排汽道应纵横贯通,与墙上预留排汽管连通。