钢结构设计例题
- 格式:ppt
- 大小:2.46 MB
- 文档页数:38
4、夹层结构一根次梁传给主梁的集中荷载设计值为58.7kN ,主梁与该次梁连接处的加劲肋和主梁腹板采用双面直角角焊缝连接,设焊缝高度mm h f 6=,加劲肋的切角尺寸如图。
试问,该焊缝连接的剪应力设计值(2mm N )?(20分) 提示:按侧面角焊缝进行计算。
解:7.1.3 直角角焊缝的强度计算在通过焊缝形心的拉力、压力或剪力作用下:……………….侧面角焊缝(作用力平行于焊缝长度方向): τf =we l h N≤w f f (7.1.3-2) ……………..8.2.7 角焊缝的尺寸应符合下列要求:5 侧面角焊缝的计算长度不宜大于60hf ,当大于上述数值时,其超过部分在计算中 不予考虑。
若内力沿侧面角焊缝全长分布时,其计算长度不受此限。
竖向焊缝的几何长度为900-2×16-2×40=788mm ,扣除2h f 后的计算长度为 776mm>60h f =360mm ,依据《钢结构设计规范》GB 50017-2003第8.2.7条,取计算长 度为60hf=360mm 。
于是4.19360267.0107.583=⨯⨯⨯⨯==w e f l h N τ N/mm 25、在夹层结构中,假定主梁作用于立柱的轴向压力设计值kN N 6.307=;立柱选用Q235B钢材,截面无孔眼削弱,翼缘板为焰切边。
立柱与基础刚接,柱顶与主梁为铰接,其计算长度在两个主轴方向均为5.50m 。
要求对立柱按实腹式轴心受压构件作整体稳定性验算。
试问,柱截面的压应力设计值(2mm N )?(20分)解:依据《钢结构设计规范》GB 50017- 2003表5.1.2- 1,截面对x 轴y 轴均属于b 类。
表5.1.2-1 轴心受压构件的截面分类(板厚t <40mm )由于x-x 轴和y-y 轴的计算长度相同,因此只需要对弱轴(y 轴)计算即可,此外应注意 回转半径(i x 及i y )的计算方法 6.56106.77104.248524=⨯⨯==A I i yy mm 976.5655000===yy y i l λ 查规范表C-2,得到φy =0.57569106.77575.0106.30723=⨯⨯⨯=A N y ϕ N/mm 2截 面 形 式 对x 轴 对y 轴 焊接,翼缘为焰切边 b 类 b 类。
钢结构设计练习题19、十字交叉形柱间支撑,采用单角钢且两杆在交叉点不中断,支撑两端节点中心间距为L.,按拉杆设计时,支撑平面外的计算长度应为下列何项所示? (A) (B) (C)(D)20、梯形屋架的端斜杆和受较大节间荷载作用的屋架上弦杆的合理截面形式是两个。
(A) 等肢角钢相连(B) 不等肢角钢相连(C) 不等肢角钢长肢相连(D) 等肢角钢十字相连21、屋架上弦横向水平支撑之间的距离不宜大于。
(A)120m(B) 80m 60m (D) 40m22、门式刚架的柱脚,当有桥式吊车或刚架侧向刚度过弱时,则应采用柱脚(A) 铰接(B) 刚接(C) 刚接或铰接23、当采用压型钢板轻型屋面时,屋面竖向均布活荷载的标准值(按水平投影面积计算)应取;对受荷水平投影面积超过60m2的刚架结构,计算时采用的竖向均布活荷载标准值可取。
(A) 0.5kN/m2 (B) 0.4kN/m2 (C) 0.3kN /m2 (D) 0.2kN/m224、当实腹式刚架斜梁的下翼缘受压时,必须在受压翼缘两侧布置(A) 拉杆(B) 系杆(C) 檩托(D) 隅撑25、当檩条跨度大于4m时,应在檩条间位置设置拉条。
当檩条跨度大6m时,应在檩条跨度分点位置各设置一道拉条。
(A) 五分点(B) 四分点(C) 三分点(D) 二分点 26、实腹式檩条可通过与刚架斜梁连接。
(A) 拉杆(B) 系杆(C) 檩托(D) 隅撑27、当采用压型钢板轻型屋面时,屋面竖向均布活荷载的标准值(按水平投影面积计算)应取;对受荷水平投影面积超过60m2的刚架结构,计算时采用的竖向均布活荷载标准值可取。
(A) 0.5kN/m2 (B) 0.4kN/m2 (C) 0.3kN/m2 (D) 0.2kN/m2 28、梯形钢屋架受压杆件.其合理截面形式,应使所选截面尽量满足的要求。
(A) 等稳定(B) 等刚度(C) 等强度(D) 计算长度相等29、梯形钢屋架节点板的厚度,是根据来选定的。
时,按式(3.3.7)计算正面角焊缝承担的内力'w f f e w N f h l β=∑。
图3.3.11受轴心力的盖板连接式中w l ∑为连接一侧正面角焊缝计算长度的总和;再由力(N-N ’)计算侧面角焊缝的强度: 'w f f e w N N f h l τ-=≤∑ (3.9) 式中w l ∑——连接一侧的侧面角焊缝计算长度的总和。
2、承受斜向轴心力的角焊缝图3.3.12所示受斜向轴心力的角焊缝连接,有两种计算方法。
图3.3.12斜向轴心力作用(1)分力法将N 分解为垂直于焊缝长度的分力N X =N ·sin θ,和沿焊缝长度的分力N y =N ·cos θ,则:.sin .cos ,f f e w e wN N h l h l θθστ==∑∑ (3.3.9) 代入公式(3.3.6)中进行计算:w f f ≤ (2)合力法不将N 力分解,按下列方法导出的计算式直接进行计算:将公式(3.3.9)的f σ和f τ代入公式(3.3.6)中:w f f ≤w f f =≤令f θβ=w f f e wN f h l θβ≤∑ (3.3.10) 式中θ——作用力(或焊缝应力)与焊缝长度方向的夹角;f θβ——斜焊缝强度增大系数(或有效截面增大系数),其值介于1.0~1.22之间。
3、承受轴力的角钢端部连接在钢桁架中,角钢腹杆与节点板的连接焊缝一般采用两面侧焊,也可采用三面围焊,特殊情况也允许采用L 形围焊(图3.3.13)。
腹杆受轴心力作用,为了避免焊缝偏心受力,焊缝所传递的合力的作用线应与角钢杆件的轴线重合。
对于三面围焊(图3.3.13b )可先假定正面角焊缝的焊脚尺寸h f3,求出正面角焊缝所分担的轴心力N 3。
当腹杆为双角钢组成的T 形截面,且肢宽为b 时,3320.7w f f f N h b f β=⨯ (3.3.11)由平衡条件(0M =∑)可得:3311()22N N N b e N K N b -=-=- (3.3.12) 332222N N Ne N K N b =-=- (3.3.13) 式中 N 1、N 2——支钢肢背和肢尖上的侧面角焊缝所分担的轴力;e ——角钢的形心距;K 1、K 2——角钢肢背和肢尖焊缝的内力分配系数,可按表 3.3.1查用;也可近似取1221,33K K ==。
钢结构练习题钢结构是一种常用于建筑和桥梁等工程项目的结构材料。
由于钢材的高强度、耐久性和可塑性,钢结构在现代建筑中得到广泛应用。
为了提高工程师和设计师的技能,下面将提供一些钢结构练习题,帮助读者了解和加深对钢结构设计和分析的理解。
题目1:悬臂梁的设计与分析1. 假设有一根长度为6m的悬臂梁,承受一个集中荷载P在悬臂端点处。
假设悬臂梁材料为Q345钢,使用强度安全系数为1.5,求荷载P的最大允许值。
2. 假设有一个长度为10m的悬臂梁,在其自由端有一个集中荷载P,设计梁的截面尺寸以满足以下要求:最大允许弯矩为120 kNm,使用Q345钢材料,强度安全系数为1.5。
题目2:梁的屈曲分析1. 假设有一根I型钢梁,其长度为8m,截面为200mm x 100mm。
使用Q345钢材料,强度安全系数为1.5,求梁的屈曲承载力。
2. 假设有一根H型钢梁,其长度为12m,截面为300mm x 300mm。
使用Q345钢材料,强度安全系数为1.5,求梁的屈曲承载力。
题目3:桁架结构计算1. 假设有一座钢制桁架桥,跨度为40m,使用相同尺寸的钢材作为桁架的支撑材料。
桥面荷载为10kN/m²,求桁架结构的最大允许荷载。
2. 假设有一个钢制桁架,其长度为30m,高度为6m,使用相同尺寸的钢材作为桁架的支撑材料。
给定荷载为20kN,求桁架结构的应力分布情况。
题目4:钢结构的膨胀缝设计与分析1. 假设有一个钢制建筑物,长度为80m,温度变化范围为-10°C至30°C。
设计一个膨胀缝以容纳温度变化所引起的长度变化。
2. 假设有一根直径为300mm的钢管,长度为10m,温度变化范围为-20°C至40°C。
设计管道的膨胀缝以容纳温度变化所引起的长度变化。
以上钢结构练习题旨在帮助读者加深对钢结构设计、分析和计算的理解,熟练掌握这些知识可以有效提高工程师和设计师在钢结构领域的专业能力。
计算题A1、如图所示用拼接板的平接连接,主板截面为14⨯400mm ,拼接板的尺寸为8⨯360⨯300mm ;用直角角焊缝三面围焊,每条侧面焊缝的长度为13cm (一边有4条)。
承受轴心力设计值kN 920=N (静力荷载),钢材为Q235,采用E43系列型焊条,手工焊。
试验算该连接是否可靠?(设焊缝的焊脚尺寸mm6=f h ,直角角焊缝的强度设计值2N/mm 160=w f f )10mm8一条侧焊缝长为130mm400m mN=920KNN=920KN814300mmN=920KN360m mN=920KN2、图示连接中,焊脚尺寸h f =8mm,钢材为Q235B ,f =215N/mm 2,手工焊,焊条为E4303, w f f =160N/mm 2,盖板厚10mm ,主板厚18mm ,试计算此连接的承载能力。
3、验算如图所示摩擦型高强螺栓连接是否安全,已知:荷载N =300kN,螺栓M20,10.9级,μ=0.5,预紧力P =155kN 。
4、如图连接,尺寸为mm ,受静载拉力kN 130=P ,mm10=fh ,钢材为Q235BF ,E43焊条,手工焊无引弧板,2N/mm 160=w f f 。
试验算焊缝强度。
5、某6m 跨度简支梁的截面和荷栽(含梁自重在内的设计值)如图所示。
在距支座2.4m 处有翼缘和腹板的拼接连接,实验算其10P10110P10A拼接的对接焊缝。
已知钢材为Q235,采用E43型焊条,手工焊,三级质量标准,施焊时采用引弧板。
解:①计算焊缝截面处的内力m kN m kN qab M ⋅=⋅-⨯⨯⨯==8.1036)]4.20.6(4.224021[21 ()[]kN kN a l q V 1444.2324021=-⨯=⎪⎭⎫⎝⎛-=② 计算焊缝截面几何特征值:()4643310289810002401032250121mm mm I W ⨯=⨯-⨯⨯=()363610616.5516102898mm mm W W ⨯=÷⨯= ()363110032.250816250mm mm S W ⨯=⨯⨯= ()363110282.325010500mm mm S S W W ⨯=⨯⨯+=③ 计算焊缝强度查附表得2/185mm N f w t = 2/125mm N f w v =2266max/185/6.18410616.5108.1036mm N f mm N W M w t W =<=⎪⎪⎭⎫ ⎝⎛⨯⨯==σ 22663max /125/3.161010289810282.310144mm N f mm N t I VS w v w W W =<=⨯⨯⨯⨯⨯==τ 2max 01/9.1786.18410321000mm N h h =⨯==σσ266311/1.101010289810032.210144mm N t I VS w W W =⨯⨯⨯⨯⨯==τ 折算应力:22222121/5.2031851.11.1/8.1791.1039.1783mm N f mm N w t =⨯=<=⨯+=+τσ6、设计图示双盖板对接连接。
门式刚架设计例题门式刚架轻型房屋钢结构图集以下是五个门式刚架设计例题的轻型房屋钢结构图集。
每个数据集都包含大约250个字。
例题1:门式刚架设计-轻型钢结构这个设计例题展示了一个轻型钢结构门式刚架的设计方案。
该方案基于建筑物的使用需求和工程条件,并结合了钢材的特性和优势来实现。
设计图集包括房屋的平面布置图、剖面图和详细的建筑物尺寸和钢材规格。
此外,还包括门式刚架的节点连接细节和房屋的承载体系等信息。
例题2:门式刚架设计-轻型房屋钢结构施工图这个设计例题展示了一个轻型房屋钢结构门式刚架的施工图。
施工图集包括门式刚架的整体布置图、内外墙立面图、构造剖面图以及具体的建筑结构尺寸和钢材规格。
此外,还包括门式刚架的节点连接细节、承重墙和墙柱的布置等信息。
施工图集的目的是提供给施工人员清晰且可执行的工程图纸,以便他们能够准确地落地到实际施工中。
例题3:门式刚架轻型房屋钢结构节点设计这个设计例题展示了门式刚架轻型房屋钢结构的节点设计。
节点设计是门式刚架设计中至关重要的一部分,它直接影响着房屋的稳定性和承载能力。
设计图集包括门式刚架各个节点的细节剖面图和节点构造图。
每个节点的设计要求和材料规格也被详细列出。
此外,还包括节点连接的焊接方法和规范要求。
例题4:门式刚架轻型房屋钢结构承载体系设计这个设计例题展示了门式刚架轻型房屋钢结构的承载体系设计。
承载体系设计是门式刚架设计的基础,它确定了建筑物的整体结构和承载能力。
设计图集包括门式刚架承载体系的平面布置图、剖面图和细节构造图。
详细说明了承载体系的构成、每个构件的规格和承载能力要求。
此外,还包括门式刚架的荷载计算结果和结构安全性分析。
例题5:门式刚架轻型房屋钢结构材料选择这个设计例题展示了门式刚架轻型房屋钢结构的材料选择。
材料选择是门式刚架设计中至关重要的一环,它直接影响到房屋的质量和使用寿命。
设计图集包括门式刚架使用的各种钢材的规格和特性。
钢材的选择是根据构件的功能、承载能力和经济性来确定的。
一、课程设计名称梯形钢屋架设计二、课程设计资料北京地区某金工车间,采用无檩屋盖体系,梯形钢屋架。
跨度为27m,柱距6m,厂房高度为15.7m,长度为156m。
车间内设有两台200/50kN中级工作制吊车,计算温度高于-20℃。
采用三毡四油,上铺小石子防水屋面,水泥砂浆找平层,厚泡沫混凝土保温层,1.5m×6m预应力混凝土大型屋面板。
屋面积灰荷载为0.4kN/㎡,屋面活荷载为0.4kN/㎡,雪荷载为0.4kN/㎡,风荷载为0.45 kN/㎡。
屋架铰支在钢筋混凝土柱上,柱截面为400mm×400mm,混凝土标号为C20。
设计荷载标准值见表1(单位:kN/㎡)。
三、钢材和焊条的选用根据北京地区的计算温度、荷载性质和连接方法,屋架刚材采用 Q235沸腾钢,要求保证屈服强度 fy、抗拉强度 fu、伸长率δ和冷弯实验四项机械性能及硫(S)、磷(P)、碳(C)三项化学成分的合格含量。
焊条采用 E43型,手工焊。
四、 屋架形式和几何尺寸屋面材料为预应力混凝土大型屋面板,采用无檩屋盖体系,平坡梯形钢屋架。
屋面坡度。
10/1=i屋架计算跨度。
mm l l 2670015022700015020=⨯-=⨯-= 屋架端部高度取:mm H 20000=。
跨中高度:mm i l H 335033351.02/2670020002H 00≈=⨯+=⋅+=。
屋架高跨比:.812670033500==l H 。
屋架跨中起拱,54500/mm l f ==取50 mm 。
为了使屋架节点受荷,配合屋面板1.5m 宽,腹杆体系大部分采用下弦节间水平尺寸为3.0m 的人字形式,上弦节间水平尺寸为 1.5m ,屋架几何尺寸如图 1 所示。
图1:27米跨屋架几何尺寸五、 屋盖支撑布置根据车间长度、跨度及荷载情况,在车间两端 5.5m 开间内布置上下弦横向水平支撑,在设置横向水平支撑的同一开间的屋架两端及跨中布置三道竖向支撑,中间各个屋架用系杆联系,在屋架两端和中央的上、下弦设三道通长系杆,其中:上弦屋脊节点处及屋架支座出的系杆为刚性系杆(图2),安装螺栓采用 C 级,螺杆直径:d=20mm,螺孔直径:d0=21.5mm。
1、某6m 跨度简支梁的截面和荷栽(含梁自重在内的设计值)如 图所示。
在距支座2.4m 处有翼缘和腹板的拼接连接,实验算其 拼接的对接焊缝。
已知钢材为 Q235,采用E43型焊条,手工焊, 二级质量标准,施焊时米用引弧板。
解:① 计算焊缝截面处的内力1 1 M qab [240 2.4 (6.0 2.4)]kN m 1036.8kN m1V q l a 2403 2.4 kN 144kN2②计算焊缝截面几何特征值:1 3 3 46 4I W 250 10323240 10003mm 42898 106mm 412W W 2898 106516 mm 35.616 106mm 3S W1 250 16 508 mm 32.032 106mm 3S wS W1500 10 250 mm 33.282 106mm 3③ 计算焊缝强度-'250^16查附表得f t w185N / mm2f v w125N / mm2maxMW W1036.8 1065.616 106184.6N/mm2 f t w 185N/mm2maxVS W144 1033.282 106W tw2898 106 1016.3N/mm2f:125N/mm2h o""~ max h184.6 178.9N /mm2 1032VSW11 W tw3 6144 10 2.032 102898 106 1010.1N/mm2折算应力:3:2178.92 3 10.12 179.8N/mm2 1.1f t w 1.1 185 203.5N/mm22、设计图示双盖板对接连接。
已知钢板宽a=240mm ,厚度t=10mm,钢材为Q235钢,焊条为E43,手工焊,轴力设计值N=550kN。
解:(1)确定盖板尺寸为了保证施焊,盖板b取为b=240mm-40mm=200mm按盖板与构件板等强度原则计算盖板厚度240 10t16mm2 200取t1=6mm (2)计算焊缝t1=6mm hfmax<t1=6mm 因此取hf=6mm ①若只设侧面角焊缝,则每侧共有四条焊缝,每条角焊缝长度4 0.7h fv 10mmf550 10310mm4 0.7 6 160205mm1w 210mm200mm所需盖板全长12l w 10mm 430mmN ii4 0.7h f按构造要求确定焊角高度hfh fmin 1.5t max 4.74mm②若采用三面围焊,则端缝承载力为2bh e f f f w 2 200 0.7 6 1.22 160 327936N328KN每条焊缝的长度为:(550 328) 103—5mm 5mm 88mmW4 0.7 6 160取1w90mm所需盖板全长1 21w 10mm 190mm3、如图所示支架,支柱的压力设计值 N 1600kN ,柱两端铰接, 钢材为Q235( f215N/mm 2),容许长细比150。
4 轴压构件例题例1:下图所示为一轴心受压柱的工字形截面,该柱承受轴心压力设计值N=4500kN,计算长度为,5.3,7m l m l oy ox ==钢材为Q235BF ,2/205mm N f =,验算该柱的刚度和整体稳定性。
227500mm A =,49105089.1mm I x ⨯=,48101667.4mm I y ⨯=,150][=λ。
λ 15 20 25 30 35 40 45 ϕ0.983 0.970 0.953 0.936 0.918 0.899 0.878解:mm AI i xx 2.234==,mm AI i y y 1.123==(1)刚度验算:4.281.12335009.292.2347000======yoy y x ox x i l i l λλ 150][9.29max =<=λλ(2)整体稳定算:当9.29=λ时,936.0=ϕ223/205/3.19227500936.0104500mm N f mm N A N =<=⨯⨯=ϕ例2:右图示轴心受压构件,44cm 1054.2⨯=x I ,43cm 1025.1⨯=y I ,2cm 8760=A ,m 2.5=l ,Q235钢,截面无削弱,翼缘为轧制边。
问:(1)此柱的最大承载力设计值N ?(2)此柱绕y 轴失稳的形式?(3)局部稳定是否满足要求?解:(1)整体稳定承载力计算 对x 轴:m2.50==l l x ,cm 176.871054.24=⨯==A I i x x 150][6.30175200=≤===λλx x x i l 翼缘轧制边,对x 轴为b 类截面,查表有:934.0=x ϕkN 1759102158760934.03=⨯⨯⨯==-Af N x x ϕ 对y 轴: m6.22/0==l l y ,cm 78.36.871025.13=⨯==A I i y y 150][8.6878.35200=≤===λλy y y i l翼缘轧制边,对y 轴为c 类截面,查表有:650.0=y ϕkN 122410215876065.03=⨯⨯⨯==-Af N y y ϕ 由于无截面削弱,强度承载力高于稳定承载力,故构件的最大承载力为:kN 1224max ==y N N (2)绕y 轴为弯扭失稳(3)局部稳定验算8.68},max {max ==y x λλλ,10030max ≤≤λ1) 较大翼缘的局部稳定y f t b 235)1.010(79.614/95/max 1λ+≤==88.16235235)8.681.010(=⨯+=,可2) 腹板的局部稳定y w f t h 235)5.025(4010/400/max 0λ+≤==4.59235235)8.685.025(=⨯+=,可例3:下图所示轴心受压格构柱承受轴力设计值N=800kN ,计算长度l ox =l oy =10m ,分肢采用2[25a :A=2×34.91=69.82cm 2,i y =9.81cm,I 1=175.9cm 4,i 1=2.24cm ,y 1=2.07cm ,钢材为Q235BF ,缀条用L45×4,A d =3.49cm 2。
钢结构试题一、简答题(每小题5分,共20分)1.结构或构件的承载能力极限状态包括哪些计算内容?正常使用极限状态又包括哪些内容?2.为什么采用钢材的屈服点f y 作为设计强度标准值?无明显屈服点的钢材,其设计强度值如何确定?3.为了保证实腹式轴压杆件组成板件的局部稳定,有哪几种处理方法?4.何谓焊接板梁的最大高度h max 和最小高度h min ?梁的经济高度h e 的范围?腹板太厚或太薄会出现什么问题?二、单项选择题(在每小题的四个备选答案中,选出一个正确答案,并将正确答案的序号填在题干的括号内。
每小题1分,共10分)1.下列各项,( )不属于结构的承载能力极限状态范畴。
A.静力强度计算B.动力强度计算C.稳定性计算D.梁的挠度计算2.在下列各化学元素中,( )的存在可提高钢材的强度和抗锈蚀能力,但却会严重地降低钢材的塑性、韧性和可焊性,特别是在温度较低时促使钢材变脆(冷脆)。
A.硅B.铝C.硫D.磷3.根据钢材的一次拉伸试验,可得到如下四个力学性能指标,其中( )是钢结构的强度储备。
A.屈服点f yB.抗拉强度f uC.伸长率δD.弹性模量E4.普通轴心受压构件的承载力经常决定于( )。
A.扭转屈曲B.强度C.弯曲屈曲D.弯扭屈曲5.摩擦型高强度螺栓的抗剪连接以( )作为承载能力极限状态。
A.螺杆被拉断B.螺杆被剪断C.孔壁被压坏D.连接板件间的摩擦力刚被克服6.根据施焊时焊工所持焊条与焊件之间的相互位置的不同,焊缝可分为平焊、立焊、横焊和仰焊四种方位,其中( )施焊的质量最易保证。
A.平焊B.立焊C.横焊D.仰焊7.为了保证焊接板梁腹板的局部稳定性,应根据腹板的高厚比w 0t h 的不同情况配置加颈肋。
当y f 23580<w 0t h ≤170y f 235时,应( )。
A.不需配置加劲肋 B.配置横向加劲肋C.配置横向和纵向加颈肋D.配置横向、纵向和短加颈肋8.双轴对称焊接工字形单向压弯构件,若弯矩作用在强轴平面内而使构件绕弱轴弯曲,则此构件可能出现的整体失稳形式是( )。
《钢结构设计原理》【练习1】两块钢板采用对接焊缝(直缝)连接。
钢板宽度L=250mm ,厚度t=10mm 。
钢材采用Q235,焊条E43系列,手工焊,无引弧板,焊缝采用三级检验质量标准,2/185mm N f w t =。
试求连接所能承受的最大拉力?=N解:无引弧板时,焊缝的计算长度w l 取实际长度减去2t ,即250-2*10mm 。
根据公式 w t w f tl N<⋅=σ 移项得: kN N f t l N w t w 5.42542550018510)102250(==⨯⨯⨯-=⋅⋅< 【变化】若有引弧板,问?=N解:上题中w l 取实际长度250,得kN N 5.462=【练习2】两截面为450⨯14mm 的钢板,采用双盖板焊接连接,连接盖板宽300mm ,长度410mm(中间留空10mm),厚度8mm 。
钢材Q235,手工焊,焊条为E43,2/160mm N f w f =,静态荷载,mm h f 6=。
求最大承载力?=N解:端焊缝所能承担的内力为:N f l h N w f f w f 49190416022.130067.027.033=⨯⨯⨯⨯⨯=∑=β侧焊缝所能承担的内力为:N f l h N w f w f 521472160)6200(67.047.011=⨯-⨯⨯⨯=∑= 最大承载力kN N N 4.10131013376521472491904==+= 【变化】若取消端焊缝,问?=N解:上题中令03=N ,622001⨯-=w l ,得kN N N 344.5051==【练习3】钢材为Q235,手工焊,焊条为E43,2/160mm N f w f =,静态荷载。
双角钢2L125x8采用三面围焊和节点板连接,mm h f 6=,肢尖和肢背实际焊缝长度均为250mm 。
等边角钢的内力分配系数7.01=k ,3.02=k 。
求最大承载力?=N解:端焊缝所能承担的内力为:N f l h N w f f w f 20496016022.112567.027.033=⨯⨯⨯⨯⨯=∑=β肢背焊缝所能承担的内力为:N f l h N w f w f 327936160)6250(67.027.011=⨯-⨯⨯⨯=∑=根据2311N N k N -= 得:kN N N N K N 88.614614880)2204960327936(7.01)2(1311==+=+=【变化】若取消端焊缝,问?=N解:上题中令03=N ,622501⨯-=w l ,得kN N 96.456=【练习4】钢材为Q235,手工焊,焊条为E43,2/160mm N f wf =,静态荷载。
按构造要求确定焊角高h f 为h fmin =1.5t =1.5⨯10=4.74mm mm t h fmsx 77.51==,取h f =6mm取盖板截面为260⨯6mm 2,则端缝承载力为 w t f e f B h b N ⨯⨯⨯=21 查表1-4得fw t =160 N/mm2则 kN N 8.42631616022.167.026021=⨯⨯⨯⨯⨯= 接缝一侧一条焊缝需要长度()mm f h N N L wt f W 57516067.0410975.40955057.0431=+⨯⨯⨯⨯-=+⨯⨯⨯-=取L W =60mm.则盖板全长为: mm L L W 130********=+⨯=+⨯=3-3.图3-73所示焊接工形截面梁,在腹板上设置一条工厂对接焊缝,梁拼接处承受内力为m kN M ⋅=2500,钢材为Q235钢,焊条为E43型,手工焊,二级质量标准,试验算拼接焊缝强度。
(提示:剪力V 可假定全部由腹板承担,弯矩按刚度比分配,即M II M ww =)解:查得2/215mm N f w t =,2/215mm N f w c =,2/125mm N f w v = 计算焊缝截面特征值()4237393605953601440006124021200.1121cm I =+=⨯⨯⨯+⨯⨯= 431440001200.1121cm I w =⨯⨯=21201120cm A w =⨯=验算正应力m kN M I I M w w ⋅=⨯==9.48673936014400025002246/215/9.202600/10144000109.486mm N mm N W M w w w <=⨯⨯==σ满足 验算剪应力2223/125/7.411012010500mm N mm N A V w w <=⨯⨯==τ满足验算折算应力222222/2362151.1/4.2157.4139.2023mm N mm N w w =⨯<=⨯+=+τσ满足要求3-4.图3-74所示一柱间支撑与柱的连接节点,支撑杆承受轴拉力设计值kN N 300=,用2L80×6角钢做成,钢材均为Q235钢,焊条为E43型,手工焊。
钢结构设计原理试题及答案
试题1:
1. 什么是构造构件的稳定性?
答案:构造构件的稳定性指的是构件在受力过程中能够保持其形状和位置不发生失稳或破坏的能力。
2. 钢结构中常用的稳定性分析方法有哪些?
答案:常用的稳定性分析方法包括弯曲屈服稳定性分析、扭转屈曲稳定性分析和稳定杆件的整体稳定性分析。
3. 什么是构件的局部稳定性?
答案:构件的局部稳定性指的是构件在受力过程中能够保持其截面形状和截面尺寸不发生局部失稳或破坏的能力。
4. 钢结构设计中,如何考虑构件的局部稳定性?
答案:在钢结构设计中,常通过采用适当的构造形式、加强构件的连接节点和设置适当的加强措施等方式来考虑构件的局部稳定性。
试题2:
1. 钢结构的抗震设计原则是什么?
答案:钢结构的抗震设计原则是在满足安全、刚度和稳定性要
求的前提下,通过采用合理的结构形式、增加构件的强度和刚度以及提高连接的刚度和强度等措施来提高结构的抗震性能。
2. 钢结构中常用的抗震设计方法有哪些?
答案:常用的钢结构抗震设计方法包括弹性设计法、准弹性设计法和弹塑性设计法。
3. 钢结构中如何考虑构件的抗震能力?
答案:在钢结构设计中,可通过增加构件的截面尺寸、增加构件的强度和刚度、采用适当的加强措施以及合理设计构件的连接节点等方式来提高构件的抗震能力。
4. 钢结构中如何考虑构件之间的整体稳定性?
答案:为考虑构件之间的整体稳定性,钢结构设计中应在合适的位置设置合理的撑杆、设置适当的连梁或连板以及采用合理的支撑或加强措施等方式来增强构件之间的整体稳定性。
钢结构练习题在钢结构设计和分析领域中,练习题是提高专业技能和增强对原理和概念的理解的重要工具。
通过解决练习题,设计师可以检验自己对于钢结构设计的掌握程度,并通过实际操作加深对于理论知识的理解和应用。
本文将介绍一些常见的钢结构练习题,帮助读者进一步提高其钢结构设计能力。
练习题1:弹性力学性质1. 某根钢梁的截面为等边三角形,边长为200mm,梁的长度为6m。
若该梁在两端施加790kN的集中荷载,在梁的中点处的最大弯矩是多少?2. 一根钢梁的长度为8m,截面为矩形,宽度为200mm,高度为400mm。
该梁在两端分别施加80kN的集中荷载,计算该梁的最大轴力和最大剪力。
练习题2:稳定性和刚度1. 设计一个钢制柱子,其长度为4m,截面为矩形,宽度为300mm,高度为500mm,材料弹性模量为210GPa。
该柱子承受的最大压力为2000kN,根据欧拉公式计算该柱子的临界荷载。
2. 一根钢梁的截面为等边三角形,边长为200mm,长度为6m。
该梁在两端分别受到50kN的集中荷载。
计算该梁的挠度和轴向应变。
练习题3:连接件设计1. 设计一个支撑架,用于支撑一根长10m的钢梁。
该支撑架由两个垂直的钢柱和一横梁组成,横梁与钢柱之间的连接件需能承受最大荷载为100kN。
根据设计要求,确定连接件的最小尺寸。
2. 一根钢梁的截面为矩形,宽度为300mm,高度为400mm,长度为8m。
该梁需要通过焊接连接到另一根相同截面的梁上。
根据设计要求,计算焊接接头的最小尺寸。
练习题4:动力学性能1. 一根钢梁的长度为10m,截面为矩形,宽度为200mm,高度为400mm。
该梁在一端被施加一个冲击荷载,荷载峰值为50kN,荷载时长为0.1s。
计算梁的最大应力。
2. 设计一个支撑架,用于支撑一根长12m的钢梁,在该梁上有一个动态荷载作用,荷载峰值为100kN,荷载作用时间为0.5s。
根据设计要求,计算支撑架的最小尺寸。
以上只是一些钢结构练习题的简单示例,涵盖了弹性力学性质、稳定性和刚度、连接件设计以及动力学性能等方面。
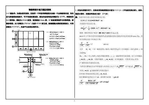
1.试验算图中所示柱牛腿中钢板与柱翼缘节点的连接焊缝的强度(说明验算点)。
图中荷载为静力荷载设计值。
钢材为Q235-A•F。
手工焊,焊条E43型。
ffw=160N/mm2,ftw=185N/mm2,fvw=125N/mm2。
2.试验算图示节点摩擦型高强螺栓群的强度。
图中荷载为静力荷载设计值,高强螺栓为8.8级M20,预拉力P=110KN,被连接板件钢材Q235-A•F(=125N/mm2,=215N/mm2),板件摩擦面间作喷砂处理(μ=0.45)。
ﻫ3.某简支梁截面如图所示,梁的跨度为6m,荷载为静力荷载设计值,试验算梁的强度是否满足要求。
判定梁的局部稳定是否满足要求(腹板判定是否需设加劲肋,如需设加劲肋,请按构造要求设置加劲肋,并画出加劲肋的布置图)。
梁采用Q235-A钢材,fd=215N/mm2,fvd=125N/mm2,fy=235N/mm2。
计算时可忽略梁的自重。
4.某压弯构件截面如图所示,荷载为静力荷载设计值,试验算整体稳定是否满足要求。
材质:Q235-A钢材,fd=215N/mm2,fvd=125N/m m2,fy=235N/mm2,E=2.06×105N/mm2。
ﻫ,ﻫﻫ;0.7572;平面内稳定验算:ﻫﻫ平面内稳定验算:;0.6309;ﻫ1.试验算图中所示柱牛腿中钢板与柱翼缘节点的连接焊缝的强度。
图中荷载为静力荷载设计值。
钢材为Q235-A•F。
手工焊,焊条E 43型。
ffw=160N/mm2,ftw=185N/mm2,fvw=125N/mm2。
ﻫ2.试验算图示节点摩擦型高强螺栓群的强度(不需验算连接板的强度)。
图中荷载为静力荷载设计值,高强螺栓为10.9级M20(孔d0=21.5mm),预拉力P=155kN,被连接板件钢材Q235-A• F(=125N/mm2,=215N/mm2),板件摩擦面间作喷砂处理(μ=0.45)。
3.某简支梁截面如图所示,梁的跨度为6m,所受荷载为静力荷载设计值,试验算梁的强度是否满足要求。