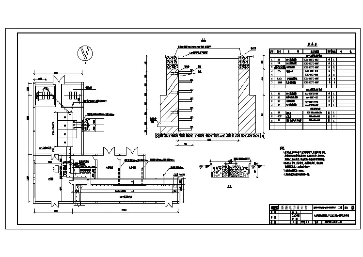
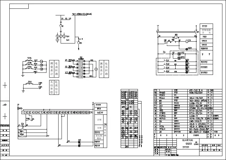
电容器组XYMaXYMbXYMNXYMcXGN2-10(F)-91XGN2-10(F)-61SCI-50/10LHK-0.5GN30-10D/630RN5-10新 疆 电 力 设 计 院 工程 阶 段 设 计 年 月 日 比例 图号 描 图 设计制图 校 核 主要设计人 组 长 主任工程师 设 总 总工程师 DZ20-100/3CJ20-100RN1-10/10-8LMZ1-0.5 100/5AXGN2-10(F)-61SC9-50/10GN30-10D/630安装单位名称避雷器型号二次接线图号操作机构型号进出线型号显示装置型号接地刀型号电压互感器型号电流互感器型号线号编回路工作电流开关柜型号熔断器型号断路器型号(A)次接一主母线LMY-100x10Q268S-D0101-04屋内配电装置配置结线图(一)35KV初设阶段 主要设计人新 疆 电 力 设 计 院总工程师大河沿子变电所35KV工程 比 例校 核校对设计1999,4日 期设总 工程负责人组 长主任工程师/图 号 描图制图1JYN1-35(F)Z-26TZN-35/1600-25150/5A 0.5/10PHY5WZ1-51/134JN-35DXN3-27B/Q~220VDC CT10LMY-63x6.3Q268S-D0201A-05LCZ-353JYN1-35(F)Z-11TZN-35/1600-25HY5WZ1-51/134JN-35DXN3-27B/Q~220VDC CT101#主变进线5JYN1-35(F)Z-25TZN-35/1600-25LCZ34DC CT10LMY-100x10分段断路器电源进线6JYN1-35(F)-52分段LCZ-35100/5A 0.5/10PLCZ-35100/5A 0.5/10PLMY-63x6.348JYN1-35(F)Z-11TZN-35/1600-25LCZ-3550/5A 0.5/10PHY5WZ1-51/134JN-3550/5A 0.5/10PLCZ-35DXN3-27B/Q~220VDC CT10LMY-63x6.32#主变进线9JYN1-35(F)Z-05TZN-35/1600-25LCZ-35150/5A 0.5/10PHY5WZ1-51/134JN-35DXN3-27B/Q~220VDC CT10LMY-63x6.3 馈线I母线PTRN2-35/0.5HY5WZ1-51/134JYN1-35(F)-1124I母线PTHY5WZ1-51/134JYN1-35(F)-1127LMY-63x6.3所用变LMZ1-0.5JYN1-35(F)-1012100/5A SC-50/35熔断器型号RL1-100/100DZ20-100变压器型号空气断路器电流互感器型号熔断器型号RW10-35/3交流接触器CJ20-100/3JDJJ2-353530.130.13KV 新疆晶华浮法玻璃有限公司35KV 变电所 年 月 日 20074序号名称型号及规范设备表数量单位备注12345678910日期专业会签土建日 期比 例新 疆 电 力 设 计 院总工程师设总(工程负责人)组 长主任工程师主要设计人校 核设计校对制图描图图号工程阶段150-0.30m0.00m14.50m2326508506003003001200200012004003800700400校对描图组 长日 期比 例新 疆 电 力 设 计 院主任工程师设总(工程负责人)总工程师主要设计人校 核设计制图图号工程阶段年 月比 例日图号新 疆 电 力 设 计 院总 工 程 师主 要 设 计 人描 图制 图校 核设 计校 对设总(工程负责人)组 长主任(专业)工程师工程阶段N9888888101380251520156514045年 月比 例日图号新 疆 电 力 设 计 院批 准CAD制图校 核审 核工程设计设 计阶段新 疆 电 力 设 计 院图号工程年 月比 例日图号新 疆 电 力 设 计 院批 准CAD制图校 核审 核工程设计设 计阶段批 准审 核校 核设 计CAD制图比 例日 期阶段设计4X7=281240202520252070259888888101380251520156514045XINJIANGXINJIANGXINJIANGXINJIANG施设2007B01S-D0101-03 新 疆 电 力 设 计 院图号工程批 准审 核校 核设 计CAD制图比 例日 期阶段设计 日 期 校 核 组 长 比 例人计设要主描 图校 对制 图设 计主任(专业)工程师设总(工程负责人)总 工 程 师新 疆 电 力 设 计 院审 核校 核批 准CAD制图日 期比 例设 计图号工程阶段设计1000200专 业日 期会 签土 建NNNABC250025001000ABC2500120030031100.1KV0.13高频阻波器结合滤波器藕合电容器台台台222结构长度:2800;爬电距离:132016001600新 疆 电 力 设 计 院审 核校 核批 准CAD制图日 期比 例设 计图号工程阶段设计 注备数量单位型号及规范称名号序号编54分段断路器柜8,16D17D271柜PT母线主变进线柜5D台2高压室内的设备GZS1-12(F)Z-006T10KV1台台台1设备表1,2,3,4,9,10D116台26,12D电容器控制柜台2控制室的设备微机监控公用设备屏11SP所用屏面1 35kV,10KV配电装置提资图主建筑物及