8D报告格式模板(英文)
- 格式:ppt
- 大小:229.50 KB
- 文档页数:21
XXX 精密机械有限公司8D-REPORT 异常No.: 产品编号\MFC P/N : 供货商\Supplier :INV NO. S/C NO : 管理代表\Manager Rep : 订单数量\Q'TY : 不良数\DEF Q'TY :Discipline 1 INTERNAL/EXTERNAL MEMBERS/责任归属1.RESPONSIBLE DEPARTMENT \责属单位:2. RESPONSIBLE PERSON\责属人员: Discipline 2 DESCRIBE THE PROBLEM\问题描述Discipline 3 IMMEDIATE ACTION\立即改善措施负责人 预定完成日Discipline 4 DECRIBE ROOT CAUSE\根本原因描述ROOT CAUSE\发生原因WHY WAS NOT DETECTED\ 为何未被侦测到 责属单位 责属人员Discipline 5 LONG-TERM ACTION\长期措施CORRECTIVE ACTION \改善措施 RECHECK FOR RELATIONAL PROCESS AND PRODUCT \类似制程和产品的考量负责人 预定完成日是否修正YES NOFMEA/FLOW CHART/CONTROL PLAN Department Manager/单位主管﹕ Respondor/承办人﹕ Discipline 6 VERIFICATION OF EFFECTIVENESS 效果确认审核者 效果追踪日Discipline 7 PREVENT RECURRENCE\再发防止审核者 效果追踪日Case close(结案) □YES \是 □NO \否Discipline 8 MEMO\备注Discipline 6、7、8由MFC 或客户填写 窗体编号:FM 本单据需由品保部追踪FMEA/CONTROL PLAN/FLOW CHART 已因应相对应改善措施修正完成. Open Date\发生日期 Happen Station\发生地 Close Date\结案日期。
(如果有任何说明/附件)(图-1)A. 3Way5Why Methodology(3Way5Why 方法论)No 问题点描述1way 2way 3way 4way 5way1按键功能不良(脏点,水印,白点)/Poor functional key(dirty dot, watermark,white dot)LUPHi人员是否清楚注意事项.(清楚)/ If LUPHistuff are clearabout mattersneedingattention(clear)有没有对应的SOP;(有)/ If LUPHihas thecorrespondingSOP;(yes)有没有相应的培训教育;(有)/ If LUPHihas thecorrespondingprofessionaltraining;(yes)制程中有没有发现此类不良;(有)/ If LUPHIfinds thisproblem inmanufactureprocedure(yes)其它客户有没有反馈类似问题;(较少发生)/ IfLUPHi getsothercostomer’sfeedback likethis;(rarely)C.再现解析:1、通过对客退品分析具体如下:/ The analysis of the return goods as follow:■解析项目:常规测试按键不导通(5PCS)/ analyse program:the button can not connect with normal test(5PCS).■解析结果:analyse result:■发生根本原因:线路断线导致按键失效:(如图-2)/primary cause: the circuit breaks line leads the circuit can not work(as picture 2);■影响因素:/ reason:①、反复多次折弯导致;/the circuit bends many times;②、线路银浆剥离导致;/ the circuit silver paste fall off;③、线路不够柔韧;(线路印刷2次光固(感光固化)UV厚度达到0.21MM)/ the circuit is not enough soft(the circuitUV thickness leads to 0.21mm with printing 2 times);(图-2)/(as picture 2)说明:“/”标示位置为PIN折弯后形成的痕迹,线路漏电路线为分析原因造成。
商标图案公司英文名称公司中文名称Date/日期:Complaint No./客诉编号:Complaint - 8D-Report/客诉-8D-报告Company/公司: Attn./相关人:Model Name/机型名称:Complaint Date/抱怨日期:Purchase Order No./定单号:Delivery ./出货日期:Define Problem/问题描述:(all relevant data like failure description, failure rate, line or incoming failure - filled-in by customer)(所有相关数据比如缺陷描述,缺陷比率,在线或进料缺陷-客户提供)Fill in/填写:Send/发送:Team Member/小组成员:Approvl/核准:Root Cause/根本原因:(description of technical or logistical background/技术或内在联系)Analysis/分析:Approvl/核准:Containment Action(s)/补救措施:Fill in/填写:Approvl/核准:Send/发送:Corrective Action/纠正措施:(short-term and mid-term actions/短期及中期预防措施)Fill in/填写:Approvl/核准:Send/发送:Verify Corrective Actions/确认纠正措施:(indication that corrective actions are covering the defined problem/指明纠正措施覆盖到描述的问题)p。
8D 编号:客户Customer 发生率/件数Failure Rate 报告发出日期Close Date客户提交人/日期Submitter/ Date 提交人联系电话:Submitter Tel部门Department负责人Principal负责人Principal负责人Principal负责人Principal问题纠正措施 8D 报告Corrective Actions 8D Report内部(Internal )产品型号:Product Type 问题发生日期Open Date问题处理时间:Close Term :2.小组成员 Team Member 发起人:Sponsor :负责人:Principal :1. 问题描述 Problem Description 市场反馈情况:工厂确认情况:3.临时措施 Containment Actions 目标完成日期 Target Close Day4.根本原因分析 Root Cause Analysis5.长期措施 Corrective Actions目标完成日期 Target Close Day6.预防措施 Preventive Actions目标完成日期 Target Close Day7.有效性 Verification (如有必要需跟踪措施导入后的10K 产品Track 10K PCS after the actions have been introduced if it's necessary. )目标完成日期 Target Close Day8.祝贺团队 Congratulate YOUR TEAM Close目标完成日期 Target Close DayPrepared By :Checked By :报告的起草者(工程师)报告的审核者(报告起草者主管)实际完成日期 Actual Close Day实际完成日期 Actual Close Day实际完成日期 Actual Close Day实际完成日期 Actual Close Day实际完成日期 Actual Close Day报告D Report外部(External ) Ver:A电话号码 Phone No.期 Target Close Day 期 Target Close Day 期 Target Close Day 期 Target Close Day 关闭日期 Close Day版本:A 版期 Target Close Day Approved By :报告的最终批准者(经理)。
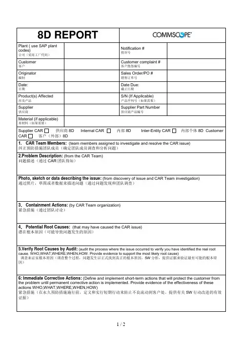
8D REPORTPlant ( use SAP plant codes)公司(采用工厂代码)Notification # 投诉号Customer 客户Customer complaint # 客户抱怨编号Originator 编制Sales Order/PO # 销售订单号Date: 日期Date Due: 截止日期Product(s) Affected 涉及产品S/N (If Applicable) 产品序列号(如果需要)Supplier 供应商Supplier Part Number 供应商产品编号Material (if applicable)原材料(如果需要)Supplier CAR 供应商8D Internal CAR 内部8D Inter-Entity CAR 内部个体8D Customer CAR 客户(外部)8D1. CAR Team Members: (team members assigned to investigate and resolve the CAR issue)纠正预防措施团队成员(确定团队成员调查和分析问题)2.Problem Description: (from the CAR Team)问题描述(通过CAR团队得知)Photo, sketch or data describing the issue: (from discovery of issue and CAR Team investigation)通过照片,草图或者数据来描述问题(通过问题发现和团队调查)3. Containment Actions: (by CAR Team organization)紧急措施(通过团队讨论)4. Potential Root Causes: (that may have caused the CAR issue)潜在根本原因(可能导致问题发生的原因)5.Verify Root Causes by Audit: (audit the process where the issue occurred to verify you have identified the real root cause. WHO,WHAT,WHERE,WHEN,HOW. Provide evidence to support the most likely root cause)调查来证实根本原因(调查整个过程,问题发生以正式找到真正的根本原因,5W分析,提供证据来验证最有可能的根本原因)6: Immediate Corrective Actions: (Define and implement short-term actions that will protect the customer from the problem until permanent corrective action is implemented. Provide evidence of the effectiveness of these actions WHO,WHAT,WHERE,WHEN,HOW)紧急措施(在永久预防措施施行前,定义和实行短期行动来防止不良流动到客户处。
CORRECTIVE ACTION REQUEST (CAR)□Complete 完整的(8D) □ Short Form 简式的( D4, D5, D6 & D7 Only)Steps 1 - 3 and estimated time for resolution must be completed within 12 hours 步骤 1 - 3,预计解决时间必须在 12 小时内完成Step 4 - 7 must be completed within 2 weeks, in case of more than 2 weeks; detailed plan must be attached 步骤 4 - 7 必须在 2 周内完成,如果超过 2 周,必须附详细的计划Date Issued 发出日期CAR Number CAR 编号Recurrence of defect 是否重复发生 Yes - No ■ If yes: old CAR No.对应旧的 CAR No.:Issued To 发放给:Supplier 供应商:CAR Requestor 要求者:Part Number 产品型号:Part Des:Qty controlled 检测数量: Qty. Rejected 不良数量:Defect Description 缺陷描述:➢ Who:➢ What:➢ Why:➢ When:➢ Where:➢ How:➢ How Many:➢Traceability Data (e.g. cast lot no.; delivery slip no.; serial number, colour dots,):可追溯性数据(货柜号;送货单号;批次号;色彩点;)Photo / Sketch 图片/草图Effects Estimation 影响效果评估: Request originated by 要求来源于:□Customer Spill 客户处 □Internal Inspections 内部检查 □ Customer Satisfaction 客户投诉□Logistics 物流 / Packaging 包装□ Other______________CAR information sent to:CAR 信息发送到:□Supplier Quality 供应商质量□Process Quality 制程质量□ Customer Quality 客户质量□ Production Dept 生产部□ Technology Dept 技术部□ Process Technology Dept 过程工艺部□Suppliers 供应商□Other 采购部_____________Cost Recovery will be requested 是否需要成本补偿( 1 ) Select a Team ( Must have "BUY-IN" and ability to solve problem ) : 确定团队(必须有“接受/认同”和解决问题的能力)Team Leader 团队组长Supplier Quality 供应商质量Manufact. Engineering 制造工程师Process Quality 过程质量Process Engineering 工艺工程师Customer Quality 客户质量Manufacturing 生产部Other 其他YesNoLPR-QR-807-04 B31/4CORRECTIVE ACTION REQUEST (CAR)( 2 ) Define & Describe the problem (Analyze the problem freq., loc., effects, etc., and define desired solutions) :定义&描述问题(分析问题频率、地方、效果等,并定义所需的解决方案)➢ Who: ➢ What: ➢ Why: ➢ When: ➢ Where: ➢ How: ➢ How Many: ➢Frequency of problem (ppm): 问题的频率(PPM):Reasons of non-detestability: 非检测的原因:Estimation of consequences: 后果评估:Extension to other Part Numbers/Lines/Plants: 扩展到其他零件编号、生产线、工厂:( 3 ) Containment: (Immediate actions required to eliminate defects at supplier, mfg., and customer locations) 围堵措施: (需要确认缺陷问题在供应商、生产线和客户处的数量)VERIFY 查证Supplier 供应商处OKNON OKAction / Notes / Identification of OK parts 行动、备注、识别好的部分Warehouse 库存品WIP 在制品 Customer 客户处OthersTemporary Countermeasure (until the implementation of definitive corrective actions) : 临时对策(直到确定的纠正措施的实施)1)TimingImpact %( 4 ) A) Identify Root Cause applying cause effect analysis 确定根本原因应用造成影响的分析 Material 物料: NA Machine 机器: NA Method 方法: NA Man 人: NA(4) B Identify Root Cause with min.“3 whywhy ”: 确定根本原因和最少有“3 个为什么” Why ?Why ?Why ?Why ?LPR-QR-807-04 B32/4CORRECTIVE ACTION REQUEST (CAR)Measurement 测量: NA Environment 环境: N/A 4) C) Verify root Causes, 根本原因 the root causes are:根本原因是:Why ? Why ?( 5 ) Permanent Corrective Action: (Choose & Implement Corrective Action )纠正措施:(选择和实施纠正措施)➢TimingImpact %➢➢ ➢➢( 6 ) Verification of Corrective Action (Resp. Team) 纠正措施的验证:Quality department 质量部门Corrective action implemented on (Date) ____ Pls see feasibility analysis report for long term actionTracking period: from week____to week ____ 纠正措施实施(日期) ____ 请见上实现可行性分析报告长期行动跟踪期:从____星期到___星期Documentation of Verification Evidence 文档验证的证据:■ Test and Measure results 测试和测量结果 □ Capability 性能 □Audit 审核■ Attribute Data 属性数据□ Fmea□ Control Plan 控制计划□ Preventive Maintenance Instruc. 预防性维护的教诲 □ Other____________Information sent to 信息发送到: ■Supplier Quality 供应商质量 □Process Quality 制程质量 ■Customer Quality 客户质量□Customer Quality 客户质量 □Production Dept 生产部 □Technology Dept 技术部 □Process Technology Dept 过程工艺部 □Suppliers 供应商 □Other_____________( 7) Prevention 预防: (Preventive action taken, to see this does not occur again 预防行动确保不会再发生)(Resp. Team):FMEA Updated FMEA 更新□ Yes ■No DatePrevious FMEA (以前 FMEA)Severity 严重性____ Occurrence 发生率____ Detection 探测度____RPN_____Revised FMEA (修改 FMEA)Severity 严重性____ Occurrence 发生率____ Detection 探测度____RPN_____Control Plan Updated 控制计划更新□Yes ■ No Date _______Procedures Updated 操作指导更新□Yes ■ No DateInformation to other plants 信息给其他工厂□ Yes ■No Date _______Information to other Supplier 信息给其他供应商 □ Yes ■No Date _______Other 其他_____________________□ Yes □ No Date _______Audit signature 审核签名:Audit Date 审核日期:( 8 ) Recognize team success ( Acknowledge team and communicate results) : 确认团队成功(承认团队和沟通的结果)This CAR will be closed, If there are no more than two consecutive batches. 如果连续 2 批次无重复发生,这个 CAR 将会关闭第 1 批次供货: 第 2 批次供货:LPR-QR-807-04 B33/4CORRECTIVE ACTION REQUEST (CAR)Evaluation of Corrective Action 矫正行动有效性评估(Resp. Issuer)□Acceptable 可接受□ Unacceptable 不能接受Remarks 备注: _____ ____________________________________________________________________________Review Signature:___ ___________________________ Date:__ ____________Communication to the Customer completed on (Date)向客户沟通完成日期 :__ _________□ Accepted 可接受□ Unaccepted 不能接受Corrective action implemented starting from 纠正措施实施开始日期 __________附件:LPR-QR-807-04 B34/4。