型钢悬挑脚手架带联梁计算
- 格式:rtf
- 大小:3.09 MB
- 文档页数:11
目录一、工程概况: (1)二、架体设计、搭设与拆除 (2)2。
1扣件式钢管脚手架搭设的基本要求 (2)2。
2外架结构构造 (2)2.3外架防护构造 (3)2.4脚手架的拆除时应符合下列规定: (3)三、脚手架材质要求 (4)3。
1钢管 (4)3。
2扣件 (4)3。
3脚手板 (4)3。
4连墙件 (4)3.5安全网 (5)四、外脚手架的验收、使用与保养 (5)五、安全管理 (6)六、计算书 (6)七、质量保证措施 (22)八、安全管理制度 (22)一、工程概况:本工程为博大·世纪华庭6#楼,位于焦作市山阳区焦东路北段东侧,工期为365天,要求2011年5月20日开工,2012年5月20日竣工交付使用.该工程由中国建筑技术集团设计, 建筑面积为8443.5M2。
地下是一层地下室,地上主体为18层.地下室层高3.6M,地上部位层高均为2。
9M,单元组合为一梯两户,地上部分均为住宅。
该工程剪力墙结构。
由于需要及时进行基础回填土,综合考虑了以往的施工经验,决定采用型钢悬挑脚手架。
本方案编制依据:《建筑施工扣件式钢管脚手架安全技术规范》(JGJ130-2001)、《建筑结构荷载规范》(GB 50009—2001)、《钢结构设计规范》(GB 50017-2003)、《建筑施工安全检查评分标准》(JGJ59-99)、《建筑施工高处作业安全技术规范》(JGJ80-91)以及本工程的施工图纸.二、架体设计、搭设与拆除2.1扣件式钢管脚手架搭设的基本要求横平竖直,整齐清晰图形一致,平竖通顺,连接牢固,受荷安全,有安全操作空间,不变形,不摇晃。
外架搭设时,严格按照规范对材质、搭设顺序的要求进行,遵守安全技术规程对外架搭设的安全操作要求,保证操作人员持证上岗,以确保外架搭设的质量和安全性。
2。
2外架结构构造本工程悬挑脚手架采用普通型钢悬挑脚手架.架体距离墙面400㎜,架体宽度1200㎜,立杆间距1500㎜,大横杆步距外侧1800㎜,内侧1800㎜。
悬挑脚手架阳角型钢计算书水平阳角型钢采用焊接建筑物预埋件连接,计算条件为一端固支的连续梁。
本工程中,脚手架排距为800mm,内侧脚手架距离墙体700mm,计算中取其1.414倍为集中力作用点。
型钢采用14号工字钢,型钢支点距离建筑物角点1900mm。
型钢截面惯性矩I = 712.00cm4,截面抵抗矩W = 102.00cm3,截面积A = 21.50cm2。
阳角型钢示意图阳角型钢计算简图1、型钢受力计算受脚手架作用的联梁传递集中力 P=9.80kN水平钢梁自重荷载 q=1.2×21.50×0.0001×7.85×10=0.20kN/m经过连续梁的计算得到5.365.17阳角型钢支撑梁剪力图(kN)2.425阳角型钢支撑梁弯矩图(kN.m)阳角型钢支撑梁变形图(mm)型钢支点的的支撑力为15.479kN型钢固接处的支撑力为4.829kN型钢最大弯矩 M max =2.425kN.m图中距离|MP|=(1.900×1.900+0.000×0.000+1.900×0.000×1.414+2.900×2.900)1/2=3.467m图中角度 <MPQ=arcsin(2.900/3.467)=0.991图中角度 <OPQ=arctg(0.000/1.900)=0.000每根支撑杆的压力 T=15.479/2/sin(0.991)=9.253kN水平型钢的轴向力 N=2×9.253×cos0.991×cos0.000=10.142kN型钢抗弯计算强度 f =M/1.05W+N/A=2.425×106/(1.05×102000.0)+10.142×1000/2150.0=27.360N/mm2型钢计算强度小于215.0N/mm 2,满足要求!2、型钢整体稳定性计算水平型钢采用14号工字钢,计算公式如下其中b —— 均匀弯曲的受弯构件整体稳定系数,查表《钢结构设计规范》(GB50017-2003)附录B 得到:b=2.00由于b大于0.6,按照《钢结构设计规范》(GB50017-2003)附录B其值用b'查表得到其值为0.929经过计算得到强度=2.43×106/(0.929×102000.00)=25.59N/mm2;水平钢梁的稳定性计算 < [f],满足要求!3、支杆的强度计算斜压支杆的轴力 R=9.253kN下面压杆以[14a号槽钢计算,斜压杆的容许压力按照下式计算:其中 N ——受压斜杆的轴心压力设计值,N = 9.25kN;——轴心受压斜杆的稳定系数,由长细比l/i查表得到=0.18;i ——计算受压斜杆的截面回转半径,i = 1.70cm;l ——受最大压力斜杆计算长度,l = 3.47m;A ——受压斜杆净截面面积,A =18.51cm2;——受压斜杆受压强度计算值,经计算得到结果是 28.51 N/mm2;[f] ——受压斜杆抗压强度设计值,f = 205N/mm2;受压斜杆的稳定性计算 < [f],满足要求!斜撑支杆采用焊接方式与墙体预埋件连接,对接焊缝强度计算公式如下其中 N为斜撑支杆的轴向力,N=9.253kN;l w为斜撑支杆件的周长,取500.00mm;t为斜撑支杆的厚度,t=6.00mm;f t或f c为对接焊缝的抗拉或抗压强度,取185.0N/mm2;经过计算得到焊缝抗拉强度 = 9252.96/(500.00×6.00) = 3.08N/mm2。
型钢悬挑脚手架计算书依据规范:《建筑施工脚手架安全技术统一标准》GB51210-2016《建筑施工扣件式钢管脚手架安全技术规范》JGJ130-2011《建筑结构荷载规范》GB50009-2012《钢结构设计标准》GB50017-2017《混凝土结构设计规范》GB50010-2010计算参数:钢管强度为205.0 N/mm2,钢管强度折减系数取1.00。
双排脚手架,搭设高度19.0米,立杆采用单立管。
立杆的纵距1.50米,立杆的横距0.80米,内排架距离结构0.30米,立杆的步距1.80米。
采用的钢管类型为φ48×2.8,连墙件采用2步3跨,竖向间距3.60米,水平间距4.50米。
施工活荷载为1.0kN/m2,同时考虑2层施工。
脚手板采用木板,荷载为0.35kN/m2,按照铺设2层计算。
栏杆采用木板,荷载为0.17kN/m,安全网荷载取0.1000kN/m2。
脚手板下小横杆在大横杆上面,且主结点间增加一根小横杆。
基本风压0.45kN/m2,高度变化系数1.2000,体型系数1.2480。
卸荷吊点按照构造要求考虑,不进行受力计算!悬挑水平钢梁采用20a号工字钢,建筑物外悬挑段长度3.55米,建筑物内锚固段长度4.75米,支承点到锚固中心点距离为4.35米。
悬挑水平钢梁上面的联梁采用16号工字钢,相邻悬挑钢梁之间的联梁上最多布置1根立杆。
悬挑水平钢梁采用悬臂式结构,没有钢丝绳或支杆与建筑物拉结。
钢管惯性矩计算采用I=π(D4-d4)/64,抵抗距计算采用W=π(D4-d4)/32D。
一、小横杆的计算小横杆按照简支梁进行强度和挠度计算,小横杆在大横杆的上面。
按照小横杆上面的脚手板和活荷载作为均布荷载计算小横杆的最大弯矩和变形。
1.均布荷载值计算小横杆的自重标准值 P1=0.036kN/m脚手板的荷载标准值 P2=0.350×1.500/2=0.262kN/m活荷载标准值Q=1.000×1.500/2=0.750kN/m荷载的计算值q=1.20×0.036+1.20×0.262+1.40×0.750=1.408kN/m小横杆计算简图2.抗弯强度计算最大弯矩考虑为简支梁均布荷载作用下的弯矩计算公式如下:M=1.408×0.8002/8=0.113kN.mσ=γ0M/W = 1.000×0.113×106/4247.0=26.515N/mm2小横杆的计算强度小于205.0N/mm2,满足要求!3.挠度计算最大挠度考虑为简支梁均布荷载作用下的挠度计算公式如下:荷载标准值q=0.036+0.262+0.750=1.048kN/m简支梁均布荷载作用下的最大挠度V=5.0×1.048×800.04/(384×2.06×105×101928.7)=0.266mm小横杆的最大挠度小于800.0/150与10mm,满足要求!二、大横杆的计算大横杆按照三跨连续梁进行强度和挠度计算,小横杆在大横杆的上面。
悬挑脚手架阳角型钢计算书工程名称计算部位计算参数水平阳角型钢采用焊接建筑物预埋件连接,计算条件为一端固支的连续梁。
脚手架排距为900mm,内侧脚手架距离墙体300mm,计算中取其 1.414倍为集中力作用点。
型钢采用16号工字钢,型钢支点距离建筑物角点2000mm。
型钢截面惯性矩I =1130.00cm4,截面抵抗矩W =141.00cm3,截面积A =26.10cm2计算简图材料特性型钢采用16号工字钢,型钢截面惯性矩I =1130.00cm4,截面抵抗矩W =141.00cm3,截面积A =26.10cm2序号计算要点详细计算过程结论计算过程及结论型钢计算1.强度验算:f=M/1.05W+N/A=4.463×106/(1.05141000.000)+6.609×1000/2610.000=32.679N/mm2型钢计算强度小于215.0N/mm2满足要求2.稳定性验算:σ=4.46×106/(0.929×141000.00)=34.07N/mm2水平钢梁的稳定性计算σ<[f]满足要求支杆或拉绳计算1.拉绳强度计算选择拉钢丝绳的破断拉力要大于:8.000×5.448/0.850=51.278kN。
选择6×19+1钢丝绳,钢丝绳公称抗拉强度1400MPa,直径11.0mm。
吊环计算 D=[5448.000×4/(3.1416×50×2)]1/2=9mm型钢与建筑物连接计算焊缝正应力强度: σ=6608.530/120.000=55.071N/mm2焊缝剪应力强度: f=11645.221/120.000=97.044N/mm2焊缝总强度为 176.876N/mm2满足要求施工单位计算人审核人。
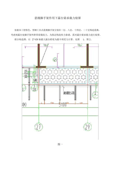
悬挑脚手架作用下露台梁承载力验算依据本工程特色,型钢工具式悬挑脚手架分别在二层、八层、十四层、二十层构造悬挑,考虑到露台处脚手架外附带荷载较大,为保证构造传力靠谱,需对露台梁承载力进行验算。
联合构造图,以27-29 轴最大露台跨度为最不利受力计算,见图1、图 2。
图一图二依据外脚手架方案,立杆纵向间距,单立杆竖向力 P=20KN,则型钢作用于露台上,其受力简图以下:一、露台连系梁承载力验算露台连系梁截面为 200*550 ,混凝土强度等级为 C30,受力纵筋采纳 HRB400三级钢,箍筋采纳 HRB400三级钢。
2计算条件:荷载条件 :均布恒载标准值:m活载准永远值系数均布活载标准值:m支座弯矩调幅幅度梁容重:m3计算时考虑梁自重::% :考虑恒载分项系数:活载分项系数:活载调整系数:配筋条件 :抗震等级:不布防纵筋级别:HRB400混凝土等级:C30箍筋级别:HRB400配筋调整系数:上部纵筋保护层厚 :25mm面积合并率:%下部纵筋保护层厚 :25mm最大裂痕限值:挠度控制系数 C:200截面配筋方式:双筋3计算结果:单位说明 :弯矩 :剪2裂缝 :mm 力 :kN2挠度 :mm-----------------------------------------------------------------------梁号1:跨长= 600B×H = 200×550左中右弯矩 (-) :弯矩 (+) :剪力:上部 as:353535下部 as:353535上部纵筋 :220220220下部纵筋 :220220220箍筋 Asv:191191191上纵实配 :2E14(308)2E14(308)2E14(308)下纵实配 :2E14(308)2E14(308)2E14(308)箍筋实配 :2E6@250(226)2E6@250(226)2E6@250(226)腰筋实配 :6d8(302)6d8(302)6d8(302)上实配筋率 :%%%下实配筋率 :%%%箍筋配筋率 :%%%裂缝:挠度:最大裂痕 :<最大挠度 :<(600/200)本跨计算经过 .-----------------------------------------------------------------------梁号2:跨长= 1600B×H = 200×550左中右弯矩 (-) :弯矩 (+) :剪力:上部 as:353535下部 as:353535上部纵筋 :220220220下部纵筋 :220220220箍筋 Asv:191191191上纵实配 :2E14(308)2E14(308)2E14(308)下纵实配 :2E14(308)2E14(308)2E14(308)箍筋实配 :2E6@250(226)2E6@250(226)2E6@250(226)腰筋实配 :6d8(302)6d8(302)6d8(302)上实配筋率 :%%%下实配筋率 :%%%箍筋配筋率 :%%%裂缝:挠度:最大裂痕 :<最大挠度 :<(1600/200)本跨计算经过 .-----------------------------------------------------------------------梁号3:跨长 = 1600B×H = 200 × 550左中右弯矩 (-) :弯矩 (+) :剪力:上部 as:353535下部 as:353535上部纵筋 :220220220下部纵筋 :220220220箍筋 Asv:191191191上纵实配 :2E14(308)2E14(308)2E14(308)下纵实配 :2E14(308)2E14(308)2E14(308)箍筋实配 :2E6@250(226)2E6@250(226)2E6@250(226)腰筋实配 :6d8(302)6d8(302)6d8(302)上实配筋率 :%%%下实配筋率 :%%%箍筋配筋率 :%%%裂缝:挠度:最大裂痕 :<最大挠度 :<(1600/200)本跨计算经过 .-----------------------------------------------------------------------梁号4:跨长= 1300B×H = 200×550左中右弯矩 (-) :弯矩 (+) :剪力:上部 as:353535下部 as:353535上部纵筋 :220220220下部纵筋 :220220220箍筋 Asv:191191191上纵实配 :2E14(308)2E14(308)2E14(308)下纵实配 :2E14(308)2E14(308)2E14(308)箍筋实配 :2E6@250(226)2E6@250(226)2E6@250(226)腰筋实配 :6d8(302)6d8(302)6d8(302)上实配筋率 :%%%下实配筋率 :%%%箍筋配筋率 :%%%裂缝:挠度:最大裂痕 :<最大挠度 :<(1300/200)本跨计算经过 .-----------------------------------------------------------------------4全部简图:由此可知原构造设计梁安全二、露台悬挑梁承载力验算露台梁截面尺寸 200mm*550mm ,混凝土强度等级 C30,曲折抗拉强度设计值为 f cm=mm2,轴心抗压强度设计值 f c= N/mm 2,纵向受力钢筋为三级钢, f y=360N/mm2,f y'=360N/mm 2,受拉钢筋为 3Φ20,受压钢筋为 2Φ16,箍筋为三级钢Φ 8@100。
多排悬挑钢管脚手架主梁计算书(一)依据规范:《建筑施工扣件式钢管脚手架安全技术规范》JGJ130-2011《建筑结构荷载规范》GB50009-2012《钢结构设计标准》GB50017-2017《混凝土结构设计规范》GB50010-2010计算参数:悬挑水平钢梁采用16号工字钢,建筑物外悬挑段长度1.65米,建筑物内锚固段长度3.50米。
悬挑水平钢梁采用拉杆与建筑物拉结,最外面支点距离建筑物1.10m。
而拉杆采用钢丝绳。
钢管惯性矩计算采用 I=π(D4-d4)/64,抵抗矩计算采用 W=π(D4-d4)/32D。
一、悬挑梁的受力计算悬挑脚手架的水平钢梁按照带悬臂的连续梁计算。
悬臂部分脚手架荷载N的作用,里端B为与楼板的锚固点,A为墙支点。
本工程中,支拉斜杆的支点距离墙体 = 1100mm。
水平钢梁自重荷载 q=1.20×26.10×0.0001×7.85×10=0.25kN/m由钢管脚手架自重及荷载计算,钢管立杆底部轴心力取5.1kN;根据联梁布置平面图,N1受力情况如下:得出N1=4.29kN;N2受力情况如下:得出N2=10.56kN。
悬挑脚手架计算简图经过连续梁的计算得到悬挑脚手架支撑梁剪力图(kN)4.3900.373悬挑脚手架支撑梁弯矩图(kN.m)0.1040.201悬挑脚手架支撑梁变形图(mm)各支座对支撑梁的支撑反力由左至右分别为R1=20.580kN,R2=0.208kN,R3=0.428kN最大弯矩 M max=4.390kN.m抗弯计算强度:f=M/1.05W+N/A=4.390×106/(1.05×141000.0)+5.031×1000/2610.0=31.581N/mm2水平支撑梁的抗弯计算强度小于215.0N/mm2,满足要求!二、悬挑梁的整体稳定性计算水平钢梁采用16号工字钢,计算公式如下其中φb——均匀弯曲的受弯构件整体稳定系数,查表《钢结构设计标准》(GB50017-2017)附录得到:φb=2.00由于φb大于0.6,按照《钢结构设计标准》(GB50017-2017)附录B其值φb'=1.07-0.282/φb=0.929 经过计算得到强度σ=4.39×106/(0.929×141000.00)=33.52N/mm2;水平钢梁的稳定性计算σ < [f],满足要求!三、拉杆的受力计算水平钢梁的轴力R AH和拉钢绳的轴力R Ui按照下面计算其中R Ui cosθi为钢绳的拉力对水平杆产生的轴压力。
型钢悬挑脚手架计算书编者:一、参数信息:1.脚手架参数底层采用落地式脚手架;从第2层4.50m~22.5m,22.5~顶采用两次悬挑型钢脚手架;女儿墙顶标高为38.70m,双排脚手架搭设高度分别为18m、17.2 米,立杆采用单立杆;搭设尺寸为:立杆的纵距为 1.50米,立杆的横距为0.800米,横杆的步距为1.80 米;内排架距离墙距离为0.2米;大横杆在上,搭接在小横杆上的大横杆根数为1 根;采用的钢管类型为Φ48×3.5;连墙件布置:竖向间距按层高 3.0米,水平间距按3跨4.50 米,采用扣件连接;连墙件连接方式为单扣件连接;吉工注:1、《扣规》规定,立杆顶端宜高出女儿墙1米,高出檐口上皮1.5米;2、《浙江省建筑施工现场安全质量标化管理实用手册》(以下简称《标化》)要求:悬挑架每段容许搭设高度小于18m;现在已形成了悬挑脚手架的标准做法,即:立杆横距0.8m立杆纵距1.5m内立杆与墙面的间距0.2m连墙,竖向每层、水平小于6m3、《扣规》6.2.1条,第2款第3项,当使用冲压钢脚手板、木脚手板、竹串片脚手板时,纵向水平杆应作为横向水平杆的支座,用直角扣件固定在立杆上;当使用竹笆脚手板时,纵向水平杆应采用直角扣件固定在横向水平杆上,并应等间距设置,间距不应大于400mm;所以本案搭接在小横杆上的大横杆根数可以采用1 根,我以前用2根;现在工地也只用一根;4、有的考虑楼层周边梁支模而增大内立杆与墙的间距,常见的为0.45m左右,这种情况折模后要封闭内立杆与墙的间隙;5、“椒建规[2009]45号”,脚手架(一)严格执行钢管、扣件分色管理制度;(二)严禁不同受力性质的脚手架混搭;(三)脚手架搭投应及时跟上楼层施工进度。
(四)有地下室的建筑,考虑到地下室防水施工和土方回填,一层难以搭设脚手架的须规范设置临边防护。
从二层面开始必须搭设悬挑脚手架。
本案就是尊从上述第(四)条的做法;6、“台建规转[2003]17号” 按照省厅规定,严格界定钢管、扣件的使用范围。
悬挑式钢管脚手架计算规则施工中常用的悬挑脚手架通常是指单双排钢管脚手架的底部通过型钢(工字钢或者槽钢)支撑架传递到主体结构的施工外用脚手架,包括型钢支撑架、扣件式钢管脚手架和连墙件等三部分。
从支撑的形式来讲,悬挑脚手架常见两种形式,一种是使用钢丝绳拉结水平钢梁与建筑物,如图1.22;另一种是将水平钢梁通过角钢或钢管支设到建筑物上,如图1。
23;在施工现场比较特殊的情况下,在保证计算结果可靠和底部支撑钢梁锚固长度足够的情况下,也有施工单位采用过没有任何保护的悬臂式钢梁支撑,但从安全角度讲不推荐使用。
图1。
22 采用钢丝绳悬挑脚手架施工图图1。
23 下支撑悬挑脚手架施工图图1.24 钢管两层悬挑施工图从钢梁的布置形式来讲,悬挑脚手架常见两种形式,一种带联梁型钢,每脚手架立杆下面是水平联梁,联梁下面以悬挑主梁型钢支撑;另一种是每脚手架立杆直接用悬挑主梁型钢支撑,如下图所示:图1。
25 悬挑脚手架两种形式示意图悬挑脚手架型钢最稳定安全的选择是工字钢,在工字钢上面按照双排脚手架排距焊接短钢筋头,然后将48mm钢管套在外面使基础牢靠。
但也有施工单位选择使用槽钢,脚手架立杆很难直接作用于槽钢腹板,基本上会作用于槽钢翼缘上,这样槽钢受力就很不合理,比较好的解决办法是在槽钢槽口内每隔立杆的纵距焊接短钢筋,形成矩形槽口受力,比较稳定的受力体系。
在北方一些施工企业,为了节约施工开支,也有使用钢管做悬挑梁,但存在很大的安全隐患,因为所有关键受力点都是扣件连接传递荷载,而市场上扣件质量非常不可靠,几乎没有合格的产品,对于两三个楼层的脚手架高度经过计算还勉强可以使用,对于比较高、荷载比较大的悬挑脚手架一定要慎重使用钢管做悬挑梁。
悬挑脚手架上部计算与落地式扣件钢管脚手架计算的前四项要求是一致的,即按照《建筑施工扣件式钢管脚手架安全技术规范》(JGJ130—2001)要求计算。
1、纵向和横向水平杆(大小横杆)等受弯构件的强度计算;2、扣件的抗滑承载力计算;3、立杆的稳定性计算;4、连墙件的强度、稳定性和连接强度的计算。
悬挑脚手架计算书一、基本参数:立杆纵距la = 1.8 m立杆横距lb = 0.9 m脚手架形式双排架脚手架的步距h = 1.8 m脚手架搭设高度H = 53.2 m小横杆上大横杆根数ng = 2 根连墙件布置形式二步三跨脚手板类型木脚手板栏杆,档板类型木脚手板挡板扣件类型单扣件脚手板的铺设层数nj = 6 层同时施工层数ns = 4 层二、大横杆的计算1、大横杆荷载计算脚手板的荷载标准值q1=0.35×0.45=0.16 kN/m活荷载标准值q2=3×0.45=1.35(kN/m)2、强度计算(1)、最大弯矩:其中:l 立杆纵距;取l=1.8 mq1 脚手板的荷载标准值q1 = 0.16 kN/mq2 活荷载标准值q2 = 1.35 kN/m经计算得到:M=(-0.1×1.2×0.16-0.117×1.4×1.35)×1.8^2=-0.78 kN.m(2)、截面应力计算公式如下:其中W 钢管截面抵抗矩W = 12.19 cm3M 最大弯矩M = -0.78 kN.m经计算得到:σ=0.78×1000000÷(12.19×1000)=63.99 N/mm2大横杆强度计算值小于或等于钢管抗弯强度设计值205N/mm2,故满足要求3、挠度计算最大挠度:其中: l 立杆纵距l = 1.8 mI 截面惯性矩I = 5.08 cm4E 弹性摸量E = 206000 N/mm2q1 脚手板的荷载标准值q1 = 0.16 kN/mq2 活荷载标准值q2 = 1.35 kN/m经计算得到:最大挠度V=(0.667×0.16+0.99×1.35)×(1.8×1000)^4÷(100×206000×5.08×10000)=14.48 mm最大挠度计算值大于l/150=6mm,故不满足要求三、小横杆的计算1、小横杆荷载计算大横杆自重标准值:P1=0.03763×1.8=0.07 kN脚手板的荷载标准值:P2=0.35×1.8×0.45=0.28 kN静荷载标准值:P=0.07+0.28=0.35 kN活荷载标准值:Q=3×1.8×0.45=2.43 kN2、强度计算(1)、最大弯矩计算公式如下:其中: l 立杆的纵距l = 1.8mP 静荷载标准值P = 0.35 kNQ 活荷载标准值Q = 2.43 kN经计算得到最大弯矩M= (1.2×0.35+1.4×2.43)×1.8÷2 =3.44 kN.m(2)、截面应力计算公式如下:其中W 钢管截面抵抗矩W = 12.19 cm3M 最大弯矩M = 3.44 kN.m经计算得到:σ=3.44×1000000÷(12.19×1000)=282.2 N/mm2大横杆强度计算值大于钢管抗弯强度设计值205 N/mm2,不满足要求3、挠度计算其中: l 立杆的纵距l = 0.9 mI 截面惯性矩I = 5.08 cm4E 弹性摸量E = 206000 N/mm2P 静荷载标准值P = 0.35 kNQ 活荷载标准值Q = 2.43 kN经计算最大挠度V=23÷648×(0.35+2.43)×(0.9×1000)^3÷(206000×5.08×10000)=3.65 mm最大挠度计算值小于等于l/150=12mm,并且小于10mm,故满足要求四、扣件的抗滑承载力计算:横杆的自重标准值P1 = 0.03763×(0.9 +1.8) =0.1kN脚手板的荷载标准值P2 = 0.35×1.8×0.9÷2 =0.28kN活荷载标准值Q = 3×1.8×0.9÷2 =2.43kN荷载的计算值R = 1.2×(0.1+0.28)+1.4×2.43 =3.86kN纵向或横向水平杆与立杆连接时,扣件的抗滑承载力按照下式计算:其中: Rc 扣件抗滑承载力设计值Rc=8kNR 纵向或横向水平杆传给立杆的竖向作用力设计值R=3.86kN扣件的抗滑承载力小于等于扣件抗滑承载力设计值8kN,满足要求!五、脚手架计算:1、荷载计算:每米立杆承受的结构自重标准值NG1=0.13×53.2=6.92 kN脚手板的自重标准值NG2=0.35×6×1.8×(0.9+0.35)=2.36 kN栏杆与挡脚板自重标准值NG3=0.14×1.8×6÷2=0.76 kN吊挂的安全设施荷载:NG4=0.1×1.8×53.2=9.58 kN静荷载标准值NG=6.92+2.36+0.76+9.58=19.62 kN活荷载标准值NQ=3×4×1.8×0.9÷2=9.72 kN风荷载标准值Wk=0.7×0.74×0.9×0.35=0.16 kN/m2不考虑风荷载时,立杆的轴向压力设计值N=1.2×19.62+1.4×9.72=37.15 kN考虑风荷载时,立杆的轴向压力设计值N=1.2×19.62+0.85×1.4×9.72=35.11 kN 风荷载标准值产生的立杆段弯矩:Mwk=0.16×1.8×1.8^2÷10=0.09 kN.m风荷载设计值产生的立杆段弯矩:Mw=0.85×1.4×0.09=0.11 kN.m构配件自重标准值产生的轴向力:NG2k=2.36+0.76+9.58=12.7 kN2、立杆的稳定性计算:(1)、立杆的长细比计算:其中: lo 立杆的计算长度lo = ×1.5×=3.12 mI 立杆的回转半径I = 1.58 cm经过计算,立杆的长细比λ=3.12×100÷1.58=198(2)、立杆的稳定性计算不考虑风荷载时,立杆的稳定性计算公式其中: A 立杆净截面面积;取A=4.89 cm2N 不考虑风荷载时,立杆的轴向压力设计值;取N=37.15 kNυ轴心受压立杆的稳定系数,由长细比λ的结果查表得到υ=0.203不考虑风荷载时立杆的稳定性σ=37.15×1000÷(0.203×(4.89×100))=374.24 N/mm2 考虑风荷载时,立杆的稳定性计算公式其中: A 立杆净截面面积;取A=4.89 cm2W 立杆净截面模量(抵抗矩);取W=12.19 cm3N 考虑风荷载时,立杆的轴向压力设计值;取N=35.11 kNMw 计算立杆段由风荷载设计值产生的弯矩;取Mw=0.11 kN.mυ轴心受压立杆的稳定系数,由长细比λ的结果查表得到υ=0.203 考虑风荷载时立杆的稳定性σ=35.11×1000÷(0.203×(4.89×100))+(0.11×1000000)÷(12.19×1000)=362.72 N/mm2不考虑风荷载时,立杆稳定性大于205N/mm2,不满足要求考虑风荷载时,立杆稳定性大于205N/mm2,不满足要求3、最大搭设高度的计算不组合风荷载最大搭设高度:组合风荷载最大搭设高度:其中: A 立杆净截面面积 A = 4.89 cm2W 钢管截面抵抗矩W = 12.19 cm3f 钢管立杆抗压强度设计值f= 205 N/mm2gk 每米立杆承受的结构自重标准值gk=0.13 kN/mNQK 活荷载标准值NQK=9.72 kNMwk 计算立杆段由风荷载标准值产生的弯矩Mwk=0.09 kN.mNG2K 构配件自重标准值产生的轴向力NG2K=12.7 kNυ轴心受压杆件稳定系数υ= 0.203经计算,不组合风荷载最大搭设高度Hs=((0.203×(4.89×100)×205÷1000)-(1.2×12.7+1.4×9.72)÷(1.2×0.13)=-54.48 m组合风荷载最大搭设高度Hs=((0.203×(4.89×100)×205÷1000)-(1.2×12.7+0.85×1.4×(9.72+0.09×0.203×(4.89÷12.19÷100)))÷(1.2×0.13)=-46.98 m最大搭设高度应该取上式中的较小值Hs=-54.48m六、连墙件的计算:1、风荷载产生的连墙件轴向力设计值按照下式计算:其中: wk 风荷载基本风压值,wk=0.16 kN/m2Aw 每个连墙件的覆盖面积内脚手架外侧的迎风面积;Aw=9.72 m2 经计算得到:风荷载产生的连墙件轴向力设计值Nlw=1.4×0.16×9.72=2.18 kN2、连墙件的轴向力计算值应按照下式计算:其中No 连墙件约束脚手架平面外变形所产生的轴向力;取No=5 kNNlw 风荷载产生的连墙件轴向力设计值Nlw=2.18 kN经计算得到:连墙件轴向力计算值Nl=2.18+5=7.18 kN3、连墙件轴向力设计值其中:υ轴心受压立杆的稳定系数,由长细比λ查表得到υ=0.976A 立杆净截面面积A = 4.89 cm2[f] 钢管的强度设计值[f] = 205 N/mm2经过计算得到Nf=0.976×(4.89×100)×205÷1000=97.84 kN长细比λ计算:其中: l 计算长度l = 0.35 mI 钢管回转半径I = 1.58 cm经过计算,立杆的长细比λ=0.35×100÷1.58=23计算结果:连墙件轴向力计算值小于等于连墙件的轴向力设计值;满足要求连墙件轴向力计算值小于等于扣件抗滑承载力,满足要求七、联梁计算:无联梁八、悬挑梁受力计算:1、挑梁最大弯矩其中: F 悬挑梁所受集中荷载 F = 37.15 kNl 支撑点距墙固支点距离l = 2.6 ma 脚手架内排架距墙和梁上支点距集中力作用点的较大值,取a=1.35 m经过计算:M中= 1.35×(2-3×1.35÷2.6+3×1.35^2÷2.6^2)×37.15÷2= 31.37 kN.mM支= -3×1.35×(1-1.35÷2.6)×37.15÷2 = -36.17 kN.m故: M = -36.17 kN.m2、支撑点的最大支座力其中: F 悬挑梁所受集中荷载 F = 37.15 kNl 支撑点距墙固支点距离l = 2.6 ma 脚手架内排架距墙和梁上支点距集中力作用点的较大值,取a=1.35 m经过计算:Rp = (2-3×1.35÷2.6+3×1.35^2 ÷2.6^2)×37.15÷2 = 23.24 kN 3、支撑点的最大支座力其中: F 悬挑梁所受集中荷载 F = 37.15 kNl 支撑点距墙固支点距离l = 2.6 ma 脚手架内排架距墙和梁上支点距集中力作用点的较大值,取a=1.35 m经过计算:RO = (2+3×1.35÷2.6-3×1.35^2 ÷2.6^2)×37.15÷2 = 51.06 kN4、支杆的轴向力计算其中: Rp 支撑点的最大支座力Rp = 23.24 kNα支杆(拉绳)与悬挑梁夹角α= ATan(L2÷L1) = 49.09 度经过计算: T = 23.24÷sin(49.09) = 30.75 kN5、悬挑梁轴向力计算其中: Rp 支撑点的最大支座力Rp = 23.24 kNα支杆(拉绳)与悬挑梁夹角α= 49.09 度经过计算: N = 23.24÷tg(49.09) = 20.14 kN九、悬挑梁强度计算1、悬挑梁型钢截面应力计算其中: A 截面面积 A = 29.299 cm2W 截面抵抗矩W = 21.5 cm3M 挑梁最大弯矩M = -36.17 kN.mN 悬挑梁所受轴向力N = 20.14 kN经过计算: σ= 1000000×36.17÷(1.05×1000×21.5)+1000×20.14÷(100×29.299) = -1595.34 N/mm2型钢截面应力小于等于钢材强度设计值205 N/mm2,故满足要求十、悬挑梁整体稳定性计算其中: W 截面抵抗矩W = 21.5 cm3M 挑梁最大弯矩M =-36.17 kN.mυb 型钢整体稳定系数型υb = 0.74经过计算: σ= 36.17×1000000÷(21.5×0.74×1000) = -2273.41 N/mm2悬挑梁整体稳定性小于等于钢材强度设计值205 N/mm2,故满足要求十一、悬挑梁与建筑物连接的焊缝计算1、焊缝的正应力其中: t 焊缝厚度t = 9.5 mmlw 悬挑梁与建筑物连接的焊缝长度lw = 100 mmN 悬挑梁所受轴向力N = 20.14 kN经过计算: σ= 20.14×1000÷((100-2×9.5)×9.5) = 26.17 N/mm2焊缝的正应力小于等于焊缝抗压强度设计值205 N/mm2,故满足要求2、焊缝的剪应力其中: t 焊缝厚度t = 9.5 mmlw 悬挑梁与建筑物连接的焊缝长度lw = 100 mmF 固支点的最大支座力F = 37.15 kN经过计算: τ= 37.15×1000÷((100-2×9.5)×9.5) = 48.28 N/mm2焊缝的剪应力小于等于焊缝抗剪强度设计值120 N/mm2,故满足要求3、焊缝的折算应力其中: σ焊缝的正应力σ= 26.17 N/mm2τ焊缝的剪应力τ= 48.28 N/mm2经过计算: f = sqrt(26.17^2+3×48.28^2) =87.62 N/mm2焊缝的折算应力小于等于焊缝折算应力设计值160×1.1=176 N/mm2,故满足要求十二、支撑杆计算1、支杆长细比计算λ= l/i = 3.97÷1.58 = 252支杆的稳定系数υ根据支杆长细比λ查表取: 02、支杆的稳定性计算其中: N 支杆轴向力N = 30.75 kNA 支杆净截面面积A = 4.89 cm2υ支杆的稳定系数υ= 0经过计算: σ= (30.75×1000)÷(0×4.89×100) = 0 N/mm2支杆的稳定性小于等于支杆抗压强度设计值205 N/mm2,故满足要求3、对接焊缝强度计算其中: N 挑梁支点最大支座力N = 23.24 kNd 支撑钢管外径d = 48 mmb 支撑钢管壁厚b = 3.5 mm经过计算: σ= 23.24×1000÷(3.1415926×48×3.5) = 44.03 N/mm2 对接焊缝强度小于等于焊缝抗压强度设计值205 N/mm2,故满足要求。
建筑悬挑脚手架计算实例一、悬挑脚手架计算1.高度要求:当脚手架搭设高度超过50米时,采用明确卸载装置时,自距离地面一定高度处开始采取明确卸载装置,也就是悬挑形式。
悬挑高度一般不宜超过40米。
2.悬挑脚手架上面结构同落地式脚手架,在施工现场还是要对连墙件的设置引起高度的重视。
另外控制的重点就是悬挑主梁的强度、稳定性的验算以及钢拉绳、锚固板的验算。
3.对于大、小横杆的强度和变形的计算、扣件抗滑移的计算、连墙件的计算以及立杆稳定性的计算仍然同落地式脚手架计算方法一样进行计算。
4.悬挑形式5.联梁计算:按照集中荷载作用下的简支梁计算,集中荷载P传递力,计算简图如下,计算联梁的支座力、强度,强度应满足规范的要求。
6.支撑按照简支梁计算公式按照钢结构的计算公式验算型钢的抗弯强度是否满足要求。
7.主梁的计算:(1)悬挑脚手架的水平钢梁按照带悬臂的连续梁计算。
悬臂部分脚手架荷载N的作用,里端B为与楼板的锚固点,A为墙支点。
悬挑脚手架计算简图计算主梁的弯矩,支座力,验算悬挑梁的整体稳定性。
(2)抗弯计算强度f=M/1.05W+N/A公式说明,根据《钢结构设计规范》(GB5001 7-2003)拉弯构件和压弯构件的计算公式如下,y-y轴没有弯矩作用,公式简化为上面的公式。
(3)悬挑梁的整体稳定性计算:公式由来:《钢结构设计规范》(GB50017-2003)规定整体稳定性计算公式如下,但由于没有y-y轴向弯矩,公式简化为上面的式子。
其中φb——均匀弯曲的受弯构件整体稳定系数,查表《钢结构设计规范》(GB50017 -2003)附录B得到:φb说明:依据《钢结构设计规范》附录B得自由长度l1长度确定:1、没侧向支撑时取梁跨度;2、当有支撑时取支撑之间的间距;3、当为脚手架悬臂端没有上部拉绳和下部支杆时,支撑的间距要取悬挑长度的2倍。
φb大于0.6,按照《规范》附录B,其值用φb'替换φb8.拉杆(钢丝绳等)、支杆(型钢等)的受力计算、强度验算。
型钢悬挑脚手架计算书(3m·爬架操作架)说明:因3m工字钢带联梁类型,受力情况比不带联梁类型更不利,故仅计算带联梁类型。
依据规范:《建筑施工脚手架安全技术统一标准》GB51210-2016《建筑施工扣件式钢管脚手架安全技术规范》JGJ130-2011《建筑结构荷载规范》GB50009-2012《钢结构设计标准》GB50017-2017《混凝土结构设计规范》GB50010-2010计算参数:钢管强度为205.0 N/mm2,钢管强度折减系数取1.00。
双排脚手架,搭设高度5.2米,立杆采用单立管。
立杆的纵距1.50米,立杆的横距0.80米,内排架距离结构0.30米,立杆的步距1.80米。
采用的钢管类型为φ48×2.8,连墙件采用2步3跨,竖向间距3.60米,水平间距4.50米。
施工活荷载为3.6kN/m2,同时考虑1层施工。
脚手板采用竹串片,荷载为0.35kN/m2,按照铺设2层计算。
栏杆采用木板,荷载为0.17kN/m,安全网荷载取0.0100kN/m2。
脚手板下大横杆在小横杆上面,且主结点间增加三根大横杆。
基本风压0.30kN/m2,高度变化系数1.0000,体型系数1.2480。
悬挑水平钢梁采用16号工字钢,建筑物外悬挑段长度1.20米,建筑物内锚固段长度1.80米,支承点到锚固中心点距离为1.30米。
悬挑水平钢梁上面的联梁采用16号工字钢,相邻悬挑钢梁之间的联梁上最多布置2根立杆。
悬挑水平钢梁采用悬臂式结构,没有钢丝绳或支杆与建筑物拉结。
钢管惯性矩计算采用 I=π(D4-d4)/64,抵抗矩计算采用 W=π(D4-d4)/32D。
一、大横杆的计算大横杆按照三跨连续梁进行强度和挠度计算,大横杆在小横杆的上面。
按照大横杆上面的脚手板和活荷载作为均布荷载计算大横杆的最大弯矩和变形。
1.均布荷载值计算大横杆的自重标准值 P1=0.036kN/m脚手板的荷载标准值 P2=0.350×0.800/4=0.070kN/m活荷载标准值 Q=3.600×0.800/4=0.720kN/m静荷载的计算值 q1=1.20×0.036+1.20×0.070=0.127kN/m活荷载的计算值 q2=1.40×0.720=1.008kN/m大横杆计算荷载组合简图(跨中最大弯矩和跨中最大挠度)大横杆计算荷载组合简图(支座最大弯矩)2.抗弯强度计算最大弯矩考虑为三跨连续梁均布荷载作用下的弯矩跨中最大弯矩计算公式如下:跨中最大弯矩为M1=(0.08×0.127+0.10×1.008)×1.5002=0.250kN.m支座最大弯矩计算公式如下:支座最大弯矩为M2=-(0.10×0.127+0.117×1.008)×1.5002=-0.294kN.m我们选择支座弯矩和跨中弯矩的最大值进行强度验算:σ=γ0M/W = 1.000×0.294×106/4247.0=69.187N/mm2大横杆的计算强度小于205.0N/mm2,满足要求!3.挠度计算最大挠度考虑为三跨连续梁均布荷载作用下的挠度计算公式如下:静荷载标准值 q1=0.036+0.070=0.105kN/m活荷载标准值 q2=0.720kN/m三跨连续梁均布荷载作用下的最大挠度V=(0.677×0.105+0.990×0.720)×1500.04/(100×2.06×105×101928.7)=1.891mm 大横杆的最大挠度小于1500.0/150与10mm,满足要求!二、小横杆的计算小横杆按照简支梁进行强度和挠度计算,大横杆在小横杆的上面。
××××工程斜拉式型钢悬挑脚手架方案编制人:校对人:审核人:审批人:目录第一节前言 (4)一、工程概况 (4)二、施工中执行的规范、标准 (4)第二节脚手架工程施工部署 (5)一、脚手架设计 (5)二、构造要求 (6)三、劳动力及材料、机具配备 (9)四、劳动力及材料、机具配备及进度计划 (9)第三节施工工艺技术 (10)一、脚手架搭设流程及构造要求 (10)二、脚手架的检查与验收 (11)三、脚手架的拆除 (11)第二节技术质量保证措施 (12)一、进场钢管、扣件、脚手板等构配件的技术质量要求(标准) (12)二、脚手架搭设技术质量要求 (14)三、脚手架工程质量控制 (18)四、脚手架工程的规范要求 (18)第三节安全、环保、危险源控制、文明施工 (20)一、安全施工技术措施 (20)二、危险源控制 (23)三、环保、文明施工要求 (27)四、总包与分包的安全责任 (28)第四节防雷措施 (32)第五节应急组织构架与应急救援预案 (33)一、安全事故应急救援架构 (33)二、高处坠落事故应急救援 (35)三、外脚手架坍塌救援 (36)四、物体打击事故应急救援 (37)五、火灾事故应急救援 (38)六、在建工程火灾的扑救方法 (39)第六节脚手架计算书 (40)一、型钢悬挑脚手架(扣件式)计算书 (40)二、转角不利位置计算 (52)第七节附图 (63)悬挂式脚手架施工方案第一节前言一、工程概况1、工程简介建设用地面积17613m2,地上总建筑面积73699㎡。
地下室建筑面积为23070㎡,设两层地下室,其中地下室负一层建筑面积为11535㎡,地下室负二层建筑面积为11535㎡,地下室负一层层高为4.95m,地下室负二层层高为3.80m。
拟建建筑主要由6幢(1#楼为20F、2#楼为28F、3#楼为25F、4#楼为17+1F、5#、6#楼为30+1F)高层住宅楼组成,6幢楼地下室相连为一整体。
悬挑脚手架阳角型钢计算书一、参数信息1、荷载参数脚手架联梁传递支座力F(kN) 122、阳角型钢构造参数型钢支撑形式两根钢丝拉绳立杆横向间距或排距Lb(m) 0.8内排架距离墙长度a(m) 0.3 阳角型钢长度L(m) 1.8点M到Q点的距离D1(m) 3 O点到Q点的距离D2(m) 1.5支点P到建筑物角点O的距离D3(m) 1.73、阳角型钢材料参数型钢型号16号工字钢钢丝绳规格型号6×19 二、阳角型钢计算水平阳角型钢采用焊接建筑物埋件连接,计算条件为一端固支的连续梁。
型钢截面惯性矩I=1130cm4,截面抵抗矩W =141cm3,截面积A =26.1cm2。
平面图侧面图1、型钢受力计算脚手架联梁传递支座力F=12kN;水平钢梁自重荷载q=1.2×20.5×9.8×10-3=0.241 kN/m 经过连续梁的计算得到剪力图(kN)弯矩图(kN·m)型钢支点的支撑力为R A=11.773kN;型钢固接处的支撑力为R B=12.661kN;型钢最大弯矩M max=4.244kN·m;图中距离|MP|=(D1×D1+D2×D2+D3×D3+1.414×D2×D3)1/2=(3×3+1.5×1.5+1.7×1.7+1.4142×1.5×1.7) 1/2=4.21m图中角度<MPQ=arcsin(3.000/4.213)=45.411°图中角度<OPQ=arctan(0.707×1.500 /(1.700 + 0.707× 1.500))=21.015°每根钢丝绳的拉力T=11.773/2/sin(45.411°)=8.266kN水平型钢的轴向力N=2×8.266×cos(45.411°)×cos(41.424°)=8.702kN型钢最大应力计算值σ=M max/(1.05W)+N/A=4.244×106/(1.05×141×103)+8.702×103/(26.1×102)=32.001N/mm2 型钢的最大应力计算值σ= 32.001 N/mm2≤[f]=215 N/mm2,满足要求!2、型钢整体稳定性计算水平型钢采用16号工字钢φb -- 均匀弯曲的受弯构件整体稳定系数,查表《钢结构设计规范》(GB50017-2003)附录B得到:φb=2由于φb大于0.6,查《钢结构设计规范》(GB50017-2003),得到φb'=1.07-0.282/φb = 1.07-0.282/2=0.929。
悬挑式脚手架工程方案计算书目录一、编制依据 (2)二、工程参数 (2)三、横向水平杆(小横杆)验算 (3)四、纵向水平杆(大横杆)验算 (4)五、扣件抗滑承载力验算 (4)六、计算立杆段轴向力设计值N (4)七、立杆的稳定性计算 (5)八、连墙件计算 (6)九、悬挑梁计算-悬挑长度1.3m (7)十、悬挑梁的整体稳定性计算 (8)十一、悬挑梁钢丝绳计算 (8)十二、悬挑梁与建筑结构锚固计算 (9)十三、转角悬挑梁计算 (10)十四、转角联梁的计算 (12)十五、加长悬挑梁计算 (12)加长悬挑梁的整体稳定性计算 (13)加长悬挑梁钢丝绳计算 (13)一、编制依据1、工程施工图纸及现场概况2、《建筑施工脚手架安全技术统一标准》GB51210-20163、《建筑施工扣件式钢管脚手架安全技术规范》JGJ130—20114、《建筑施工安全检查标准》JGJ59—20115、《混凝土结构工程施工质量验收规范》GB50204-20156、《混凝土结构设计规范》GB50010-20107、《建筑结构荷载规范》GB50009—20128、《建筑地基基础设计规范》GB50007—20119、《建筑施工高处作业安全技术规范》JGJ80—201610、《危险性较大的分部分项工程安全管理规定》住建部令第37号二、工程参数三、横向水平杆(小横杆)验算横向水平杆按照简支梁进行强度和挠度计算,小横杆在大横杆的上面。
(一)抗弯强度计算1、作用横向水平杆线荷载标准值:q k =(QK+QP1)×S=(3+0。
35)×1。
5=5.03 kN/m2、作用横向水平杆线荷载设计值:q=1.4×QK ×S+1。
2×QP1×S=1.4×3×1。
5+1.2×0.35×1。
5=6.93 kN/m3、计算最大弯矩:M max =qlb2=6.93×0.92=0。
恒智天成安全计算软件联梁型钢悬挑扣件式双排脚手架计算书计算依据《建筑施工扣件式钢管脚手架安全技术规范》(JGJ130-2011)、《建筑结构荷载规范》(GB 50009-2001)、《钢结构设计规范》(GB 50017-2003)、《建筑施工安全检查评分标以及本工程的施工图纸。
脚手架搭设体系剖面图脚手架搭设体系正立面图脚手架搭设体系平面图一、恒智天成安全计算软件参数信息1.脚手架搭设参数脚手架从距地面50m处开始搭设,搭设高度H:19.4m;顶步栏杆高:1.2m;内立杆距离墙长度a:0.3m;立杆步距h:1.8m;总步数:10步;立杆纵距la:1.5m;立杆横距lb:1.05m;小横杆伸出内立杆长度a1:0.3m;扫地杆距地:0.2m;采用小横杆在上布置,搭接在大横杆上的小横杆根数为1根;采用的钢管类型为Φ48.3 × 3.6;连墙件布置方式为二步二跨,连接方式为扣件连接;连墙件扣件连接方式为双扣件,扣件抗滑承载力折减系数为1;脚手架沿墙纵向长度l:150m;2.荷载参数(1)活荷载参数装修脚手架均布活荷载:2kN/m2;装修脚手架同时施工层数:2层;(2)风荷载参数本工程地处北京,基本风压Wo:0.3kN/m2;地面粗糙度类别为:C类(有密集建筑群市区);(2)静荷载参数1)脚手板参数选用木脚手板,按规范要求铺脚手板;脚手板自重:0.35kN/m2;铺设层数:2层;2)挡脚板参数选用木脚手板(220×48×3000),铺脚手板层设挡脚板挡脚板自重:0.08kN/m;挡脚板铺设层数:2层;3)防护栏杆铺脚手板层设防护栏杆,每步防护栏杆根数为2根,总根数为4根;4)围护材料2300目/100cm2,A0=1.3mm2密目安全网全封闭。
密目网选用为:2300目/100cm2,A0=1.3mm2;密目网自重:0.01kN/m2;3.支撑参数支撑系统搭设形式为斜拉式-钢丝绳不受力(规范推荐);主梁截面特征:工字钢,工字钢型号:22a号工字钢;型钢悬挑主梁平铺在楼面上,锚点采用压环钢筋方式,钢筋直径12mm;联梁截面特征:槽钢-槽口水平[,槽钢型号:12.6号槽钢;楼板混凝土强度等级:C35;选用钢丝绳为6×19,钢丝绳吊点与主梁的垂直距离:5m。
型钢悬挑脚手架(扣件式)计算书计算依据:1、《建筑施工脚手架安全技术统一标准》GB51210-20162、《建筑施工扣件式钢管脚手架安全技术规范》JGJ130-20113、《建筑施工门式钢管脚手架安全技术规范》JGJ128-20104、《建筑结构荷载规范》GB50009-20125、《钢结构设计标准》GB50017-20176、《混凝土结构设计规范》GB50010-2010架体验算一、脚手架参数二、荷载设计计算简图:立面图侧面图三、横向水平杆验算纵、横向水平杆布置承载能力极限状态q=1.2×(0.03+G kjb×l a/(n+1))+1.4×G k×l a/(n+1)=1.2×(0.03+0.3×1.45/(1+1))+1.4×3×1.45/(1 +1)=3.342kN/m正常使用极限状态q'=(0.03+G kjb×l a/(n+1))=(0.03+0.3×1.45/(1+1))=0.248kN/m计算简图如下:1、抗弯验算M max=max[ql b2/8,qa12/2]=max[3.342×0.82/8,3.342×0.12/2]=0.267kN·mσ=γ0M max/W=1.1×0.267×106/4120=71.385N/mm2≤[f]=205N/mm2满足要求!2、挠度验算νmax=max[5q'l b4/(384EI),q'a14/(8EI)]=max[5×0.248×8004/(384×206000×98900),0.248×1004/(8×206000×98900)]=0.065mmνmax=0.065mm≤[ν]=min[l b/150,10]=min[800/150,10]=5.333mm满足要求!3、支座反力计算承载能力极限状态R max=q(l b+a1)2/(2l b)=3.342×(0.8+0.1)2/(2×0.8)=1.692kN正常使用极限状态R max'=q'(l b+a1)2/(2l b)=0.248×(0.8+0.1)2/(2×0.8)=0.125kN四、纵向水平杆验算承载能力极限状态由上节可知F1=R max=1.692kNq=1.2×0.03=0.036kN/m正常使用极限状态由上节可知F1'=R max'=0.125kNq'=0.03kN/m1、抗弯验算计算简图如下:弯矩图(kN·m)σ=γ0M max/W=1.1×0.435×106/4120=116.147N/mm2≤[f]=205N/mm2 满足要求!2、挠度验算计算简图如下:变形图(mm)νmax=0.261mm≤[ν]=min[l a/150,10]=min[1450/150,10]=9.667mm 满足要求!3、支座反力计算承载能力极限状态R max=2.003kN五、扣件抗滑承载力验算扣件抗滑承载力验算:横向水平杆:R max=1.1×1.692kN≤R c=0.9×8=7.2kN纵向水平杆:R max=1.1×2.003kN≤R c=0.9×8=7.2kN满足要求!六、荷载计算立杆静荷载计算1、立杆承受的结构自重标准值N G1k单外立杆:N G1k=(gk+(l b+a1)×n/2×0.03/h)×H=(0.12+(0.8+0.1)×1/2×0.03/1.8)×24.3=3.0 99kN单内立杆:N G1k=3.099kN2、脚手板的自重标准值N G2k1单外立杆:N G2k1=(H/h+1)×la×(l b+a1)×G kjb×1/1/2=(24.3/1.8+1)×1.45×(0.8+0.1)×0.3×1/ 1/2=2.838kN1/1表示脚手板1步1设单内立杆:N G2k1=2.838kN3、栏杆与挡脚板自重标准值N G2k2单外立杆:N G2k2=(H/h+1)×la×G kdb×1/6=(24.3/1.8+1)×1.45×0.17×1/6=0.596kN 1/6表示挡脚板6步1设4、围护材料的自重标准值N G2k3单外立杆:N G2k3=G kmw×la×H=0.01×1.45×24.3=0.352kN5、构配件自重标准值N G2k总计单外立杆:N G2k=N G2k1+N G2k2+N G2k3=2.838+0.596+0.352=3.786kN单内立杆:N G2k=N G2k1=2.838kN立杆施工活荷载计算外立杆:N Q1k=la×(l b+a1)×(n jj×G kjj)/2=1.45×(0.8+0.1)×(1×3)/2=1.958kN内立杆:N Q1k=1.958kN组合风荷载作用下单立杆轴向力:单外立杆:N=1.2×(N G1k+ N G2k)+1.4×N Q1k=1.2×(3.099+3.786)+1.4×1.958=11.003kN单内立杆:N=1.2×(N G1k+ N G2k)+1.4×N Q1k=1.2×(3.099+2.838)+1.4×1.958=9.865kN七、立杆稳定性验算1、立杆长细比验算立杆计算长度l0=Kμh=1×1.55×1.8=2.79m长细比λ=l0/i=2.79×103/16=174.375≤210满足要求!轴心受压构件的稳定系数计算:立杆计算长度l0=Kμh=1.155×1.55×1.8=3.222m长细比λ=l0/i=3.222×103/16=201.403查《规范》表A得,υ=0.1792、立杆稳定性验算组合风荷载作用单立杆的轴心压力标准值N'=N G1k+N G2k=3.099+3.786=6.885kN单立杆的轴心压力设计值N=1.2(N G1k+N G2k)+1.4N Q1k=1.2×(3.099+3.786)+1.4×1.958=1 1.003kNM wd=υwγQ M wk=υwγQ(0.05ζ1w k l a H12)=0.6×1.4×(0.05×0.6×0.2×1.45×3.62)=0.095kN·m σ=γ0[N/(υA)+M wd/W]=1.1×[11002.849/(0.179×384)+94711.68/4120]=201.369N/mm2≤[f]=205N/mm2 满足要求!八、连墙件承载力验算N lw=1.4×ωk×2×h×3×l a=1.4×0.2×2×1.8×3×1.45=4.385kN长细比λ=l0/i=600/16=37.5,查《规范》表A.0.6得,υ=0.896(N lw+N0)/(υAc)=(4.385+3)×103/(0.896×384)=21.464N/mm2≤0.85×[f]=0.85×205N/mm2= 174.25N/mm2满足要求!扣件抗滑承载力验算:N lw+N0=4.385+3=7.385kN≤0.9×12=10.8kN满足要求!悬挑梁验算一、基本参数二、荷载布置参数附图如下:平面图立面图三、联梁验算荷载标准值:q'=g k=0.112=0.112kN/m第1排:F'1=F1'/n l=6.89/1=6.89kN第2排:F'2=F2'/n l=6.89/1=6.89kNF'=max[F'1,F'2]=6.89kN荷载设计值:q=1.2×g k=1.2×0.112=0.134kN/m第1排:F1=F1/n l=11/1=11kN第2排:F2=F2/n l=11/1=11kNF=max[F1,F2]=11kN计算简图如下:1、强度验算弯矩图(kN·m)σmax=γ0M max/W=1.1×5.667×106/77529=80.405N/mm2≤[f]=215N/mm2 符合要求!2、抗剪验算剪力图(kN)τmax=γ0Q max/(8I zδ)[bh02-(b-δ)h2]=1.1×7.383×1000×[74×1262-(74-5)×109.22]/(8×4885920×5)=14.629N/mm2τmax=14.629N/mm2≤[τ]=125N/mm2符合要求!3、挠度验算变形图(mm)νmax=1.984mm≤[ν]=l a/250=2900/250=11.6mm符合要求!4、支座反力计算正常使用受力状态下:第1排:R'1max=15.171kN第2排:R'2max=15.171kN极限受力状态下:第1排:R1max=24.078kN第2排:R2max=24.078kN四、主梁验算荷载标准值:q'=g k=0.205=0.205kN/m第1排:F'1=n l×R'1max/n z=1×15.171/1=15.171kN 第2排:F'2=n l×R'2max/n z=1×15.171/1=15.171kN 荷载设计值:q=1.2×g k=1.2×0.205=0.246kN/m第1排:F1=n l×R1max/n z=1×24.078/1=24.078kN 第2排:F2=n l×R2max/n z=1×24.078/1=24.078kN1、强度验算弯矩图(kN·m)σmax=γ0M max/W=1.1×18.11×106/141000=141.285N/mm2≤[f]=215N/mm2符合要求!2、抗剪验算剪力图(kN)τmax=γ0Q max/(8I zδ)[bh02-(b-δ)h2]=1.1×34.101×1000×[88×1602-(88-6)×140.22]/(8×113000 00×6)=44.331N/mm2τmax=44.331N/mm2≤[τ]=125N/mm2符合要求!3、挠度验算变形图(mm) νmax=2.454mm≤[ν]=2×l x/250=2×2550/250=20.4mm符合要求!4、支座反力计算设计值:R1=14.642kN,R2=34.151kN五、上拉杆件验算上拉杆件角度计算:α1=arctanL1/L2=arctan(2800/2350)=49.994°上拉杆件支座力:设计值:R S1=n z R2=1×34.151=34.151kN主梁轴向力设计值:N SZ1=R S1/tanα1=34.151/tan49.994°=28.663kN上拉杆件轴向力:设计值:N S1=γ0R S1/sinα1=1.1×34.151/sin49.994°=49.044kN 上拉杆件的最大轴向拉力N S=max[N S1...N Si]/2=24.522kN轴心受拉稳定性计算:σ=N S/A=24.522×103/314.2=78.046N/mm2≤0.5×f=102.5N/mm2符合要求!螺栓验算:σ=N S/(π×d e2/4)=24.522×103/(π×202/4)=78.056N/mm2≤[f t]=400N/mm2钢筋作为上拉杆件,端部采用螺栓与主梁连接时,为了保持对称,主梁两边各1根钢筋。
联梁型钢悬挑脚手架计算书某某大厦工程;属于框架结构;地上0层;地下0层;建筑高度:0.00m;标准层层高:0.00m ;总建筑面积:0.00平方米;总工期:0天;施工单位:某某施工单位。
本工程由某某房开公司投资建设,某某设计院设计,某某堪查单位地质勘查,某某监理公司监理,某某施工单位组织施工;由章某某担任项目经理,李某某担任技术负责人。
型钢悬挑扣件式钢管脚手架的计算依据《建筑施工扣件式钢管脚手架安全技术规范》(JGJ130-2001)、《建筑结构荷载规范》(GB 50009-2001)、《钢结构设计规范》(GB 50017-2003)等规范编制。
一、参数信息:1.脚手架参数双排脚手架搭设高度为 15.0 米,立杆采用单立杆;搭设尺寸为:立杆的纵距为 1.50米,立杆的横距为1.05米,立杆的步距为1.80 米;内排架距离墙长度为0.30米;小横杆在上,搭接在大横杆上的小横杆根数为 2 根;脚手架沿墙纵向长度为 150 米;采用的钢管类型为Φ48×3.5;横杆与立杆连接方式为单扣件;取扣件抗滑承载力系数 0.80;连墙件布置取两步两跨,竖向间距 3.60 米,水平间距3.00 米,采用扣件连接;连墙件连接方式为双扣件连接;2.活荷载参数施工均布荷载(kN/m2):2.000;脚手架用途:装修脚手架;同时施工层数:2 层;3.风荷载参数本工程地处河北省唐山市,查荷载规范基本风压为0.400,风荷载高度变化系数μz为0.740,风荷载体型系数μs为0.645;计算中考虑风荷载作用;4.静荷载参数每米立杆承受的结构自重荷载标准值(kN/m2):0.1248;脚手板自重标准值(kN/m2):0.300;栏杆挡脚板自重标准值(kN/m2):0.150;安全设施与安全网自重标准值(kN/m2):0.005;脚手板铺设层数:6 层;脚手板类别:竹笆片脚手板;栏杆挡板类别:栏杆、竹笆片脚手板挡板;5.水平悬挑支撑梁悬挑水平钢梁采用16a号槽钢,其中建筑物外悬挑段长度1.50米,建筑物内锚固段长度 2.30 米。
悬挑式扣件钢管脚手架计算书钢管脚手架的计算参照《建筑施工扣件式钢管脚手架安全技术规范》(JGJ130-2011)。
计算参数:双排脚手架,搭设高度16.2米,立杆采用单立管。
立杆的纵距1.20米,立杆的横距1.05米,内排架距离结构0.50米,立杆的步距1.80米。
采用的钢管类型为48×2.8,连墙件采用2步2跨,竖向间距3.60米,水平间距2.40米。
施工活荷载为2.0kN/m2,同时考虑2层施工。
脚手板采用竹笆片,荷载为0.10kN/m2,按照铺设4层计算。
栏杆采用竹笆片,荷载为0.17kN/m,安全网荷载取0.0100kN/m2。
脚手板下大横杆在小横杆上面,且主结点间增加一根大横杆。
基本风压0.35kN/m2,高度变化系数1.2500,体型系数0.8000。
悬挑水平钢梁采用16号工字钢,其中建筑物外悬挑段长度1.65米,建筑物内锚固段长度4.00米。
悬挑水平钢梁上面的联梁采用[16b号槽钢U口水平,相邻悬挑钢梁之间的联梁上最多布置2根立杆。
悬挑水平钢梁采用悬臂式结构,没有钢丝绳或支杆与建筑物拉结。
一、大横杆的计算大横杆按照三跨连续梁进行强度和挠度计算,大横杆在小横杆的上面。
按照大横杆上面的脚手板和活荷载作为均布荷载计算大横杆的最大弯矩和变形。
1.均布荷载值计算大横杆的自重标准值 P1=0.036kN/m脚手板的荷载标准值 P2=0.100×1.050/2=0.052kN/m活荷载标准值 Q=2.000×1.050/2=1.050kN/m静荷载的计算值 q1=1.2×0.036+1.2×0.052=0.106kN/m活荷载的计算值 q2=1.4×1.050=1.470kN/m大横杆计算荷载组合简图(跨中最大弯矩和跨中最大挠度)大横杆计算荷载组合简图(支座最大弯矩)2.抗弯强度计算最大弯矩考虑为三跨连续梁均布荷载作用下的弯矩跨中最大弯矩计算公式如下:跨中最大弯矩为M1=(0.08×0.106+0.10×1.470)×1.2002=0.224kN.m支座最大弯矩计算公式如下:支座最大弯矩为M2=-(0.10×0.106+0.117×1.470)×1.2002=-0.263kN.m我们选择支座弯矩和跨中弯矩的最大值进行强度验算:=0.263×106/4248.0=61.881N/mm2大横杆的计算强度小于205.0N/mm2,满足要求!3.挠度计算最大挠度考虑为三跨连续梁均布荷载作用下的挠度计算公式如下:静荷载标准值q1=0.036+0.052=0.088kN/m活荷载标准值q2=1.050kN/m三跨连续梁均布荷载作用下的最大挠度V=(0.677×0.088+0.990×1.050)×1200.04/(100×2.06×105×101950.0)=1.085mm 大横杆的最大挠度小于1200.0/150与10mm,满足要求!二、小横杆的计算小横杆按照简支梁进行强度和挠度计算,大横杆在小横杆的上面。
用大横杆支座的最大反力计算值,在最不利荷载布置下计算小横杆的最大弯矩和变形。
1.荷载值计算大横杆的自重标准值 P1=0.036×1.200=0.043kN脚手板的荷载标准值 P2=0.100×1.050×1.200/2=0.063kN活荷载标准值 Q=2.000×1.050×1.200/2=1.260kN荷载的计算值 P=1.2×0.043+1.2×0.063+1.4×1.260=1.891kN小横杆计算简图2.抗弯强度计算最大弯矩考虑为小横杆自重均布荷载与荷载的计算值最不利分配的弯矩和均布荷载最大弯矩计算公式如下:集中荷载最大弯矩计算公式如下:M=(1.2×0.036)×1.0502/8+1.891×1.050/4=0.502kN.m=0.502×106/4248.0=118.217N/mm2小横杆的计算强度小于205.0N/mm2,满足要求!3.挠度计算最大挠度考虑为小横杆自重均布荷载与荷载的计算值最不利分配的挠度和均布荷载最大挠度计算公式如下:集中荷载最大挠度计算公式如下:小横杆自重均布荷载引起的最大挠度V1=5.0×0.036×1050.004/(384×2.060×105×101950.000)=0.03mm 集中荷载标准值P=0.043+0.063+1.260=1.366kN集中荷载标准值最不利分配引起的最大挠度V2=1365.600×1050.0×1050.0×1050.0/(48×2.06×105×101950.0)=1.568mm最大挠度和V=V1+V2=1.595mm小横杆的最大挠度小于1050.0/150与10mm,满足要求!三、扣件抗滑力的计算纵向或横向水平杆与立杆连接时,扣件的抗滑承载力按照下式计算(规范5.2.5):R ≤R c其中 R c——扣件抗滑承载力设计值,取8.0kN;R ——纵向或横向水平杆传给立杆的竖向作用力设计值;1.荷载值计算横杆的自重标准值 P1=0.036×1.050=0.037kN脚手板的荷载标准值 P2=0.100×1.050×1.200/2=0.063kN活荷载标准值 Q=2.000×1.050×1.200/2=1.260kN荷载的计算值 R=1.2×0.037+1.2×0.063+1.4×1.260=1.884kN单扣件抗滑承载力的设计计算满足要求!当直角扣件的拧紧力矩达40--65N.m时,试验表明:单扣件在12kN的荷载下会滑动,其抗滑承载力可取8.0kN;双扣件在20kN的荷载下会滑动,其抗滑承载力可取12.0kN;四、脚手架荷载标准值作用于脚手架的荷载包括静荷载、活荷载和风荷载。
静荷载标准值包括以下内容:(1)每米立杆承受的结构自重标准值(kN/m);本例为0.0929N G1 = 0.093×16.200=1.505kN(2)脚手板的自重标准值(kN/m2);本例采用竹笆片脚手板,标准值为0.10N G2 = 0.100×4×1.200×(1.050+0.500)/2=0.372kN(3)栏杆与挡脚手板自重标准值(kN/m);本例采用栏杆、竹笆片脚手板挡板,标准值为0.17 N G3 = 0.170×1.200×4/2=0.408kN(4)吊挂的安全设施荷载,包括安全网(kN/m2);0.010N G4 = 0.010×1.200×16.200=0.194kN经计算得到,静荷载标准值 N G = N G1+N G2+N G3+N G4 = 2.480kN。
活荷载为施工荷载标准值产生的轴向力总和,内、外立杆按一纵距内施工荷载总和的1/2取值。
经计算得到,活荷载标准值 N Q = 2.000×2×1.200×1.050/2=2.520kN风荷载标准值应按照以下公式计算其中 W0——基本风压(kN/m2),按照《建筑结构荷载规范》(GB50009-2001)附录表D.4的规定采用:W0 = 0.350U z——风荷载高度变化系数,按照《建筑结构荷载规范》(GB50009-2001)附录表7.2.1的规定采用:U z = 1.250U s——风荷载体型系数:U s = 0.800经计算得到,风荷载标准值W k = 0.350×1.250×0.800 = 0.350kN/m2。
考虑风荷载时,立杆的轴向压力设计值计算公式N = 1.2N G + 0.9×1.4N Q经过计算得到,底部立杆的最大轴向压力N=1.2×2.480+0.9×1.4×2.520=6.151kN不考虑风荷载时,立杆的轴向压力设计值计算公式N = 1.2N G + 1.4N Q经过计算得到,底部立杆的最大轴向压力N=1.2×2.480+1.4×2.520=6.503kN风荷载设计值产生的立杆段弯矩 M W计算公式M W = 0.9×1.4W k l a h2/10其中 W k——风荷载标准值(kN/m2);l a——立杆的纵距 (m);h ——立杆的步距 (m)。
经过计算得到风荷载产生的弯矩 M w=0.9×1.4×0.350×1.200×1.800×1.800/10=0.171kN.m五、立杆的稳定性计算1.不考虑风荷载时,立杆的稳定性计算其中 N ——立杆的轴心压力设计值,N=6.503kN;i ——计算立杆的截面回转半径,i=1.60cm;k ——计算长度附加系数,取1.155;u ——计算长度系数,由脚手架的高度确定,u=1.500;l0——计算长度 (m),由公式 l0 = kuh 确定,l0=1.155×1.500×1.800=3.118m;A ——立杆净截面面积,A=3.974cm2;W ——立杆净截面模量(抵抗矩),W=4.248cm3;——由长细比,为3118/16=195;——轴心受压立杆的稳定系数,由长细比 l0/i 的结果查表得到0.191;——钢管立杆受压强度计算值 (N/mm2);经计算得到=6503/(0.19×397)=85.481N/mm2;[f] ——钢管立杆抗压强度设计值,[f]=205.00N/mm2;不考虑风荷载时,立杆的稳定性计算 < [f],满足要求!2.考虑风荷载时,立杆的稳定性计算其中 N ——立杆的轴心压力设计值,N=6.151kN;i ——计算立杆的截面回转半径,i=1.60cm;k ——计算长度附加系数,取1.155;u ——计算长度系数,由脚手架的高度确定,u=1.500;l0——计算长度 (m),由公式 l0 = kuh 确定,l0=1.155×1.500×1.800=3.118m;A ——立杆净截面面积,A=3.974cm2;W ——立杆净截面模量(抵抗矩),W=4.248cm3;——由长细比,为3118/16=195;——轴心受压立杆的稳定系数,由长细比 l0/i 的结果查表得到0.191;M W——计算立杆段由风荷载设计值产生的弯矩,M W=0.171kN.m;——钢管立杆受压强度计算值 (N/mm2);经计算得到=6151/(0.19×397)+171000/4248=121.207N/mm2;[f] ——钢管立杆抗压强度设计值,[f]=205.00N/mm2;考虑风荷载时,立杆的稳定性计算 < [f],满足要求!六、连墙件的计算连墙件的轴向力计算值应按照下式计算:N l = N lw + N o其中 N lw——风荷载产生的连墙件轴向力设计值(kN),应按照下式计算:N lw = 1.4 × w k× A ww k——风荷载标准值,w k = 0.350kN/m2;A w——每个连墙件的覆盖面积内脚手架外侧的迎风面积,A w = 3.60×2.40 =8.640m2;N o——连墙件约束脚手架平面外变形所产生的轴向力(kN);N o = 3.000经计算得到 N lw = 4.234kN,连墙件轴向力计算值 N l = 7.234kN根据连墙件杆件强度要求,轴向力设计值 N f1 = 0.85Ac[f]根据连墙件杆件稳定性要求,轴向力设计值 N f2 = 0.85A[f]其中——轴心受压立杆的稳定系数,由长细比 l/i=50.00/1.60的结果查表得到=0.92;净截面面积Ac = 3.97cm2;毛截面面积 A = 26.10cm2;[f] = 205.00N/mm2。