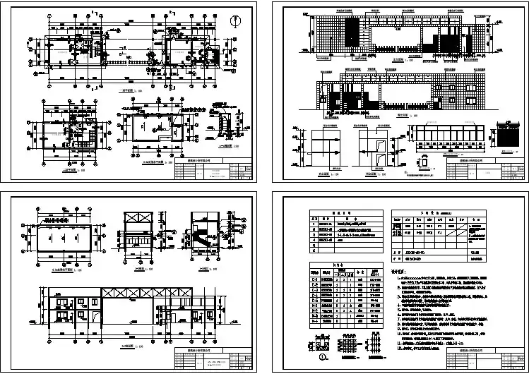
0.51.1.1.51.59.14.1-11700370017003700328003280017003700200230037001700328003280027.52C-1图例2本施工图所注尺寸除标高以米为单位外 其余均以毫米为单位2100210021002100门窗2424M1C1M2C2100038009002400详见建施详见建施88ZJ60188ZJ6010101M21-0921M21-1021900 窗台高900 窗台高夹板门夹板门高门 窗 表22.00m.98ZJ001做法详见 做法详见 做法详见 98ZJ001做法详见 98ZJ00198ZJ001做法详见 室内木门做浅米黄色调和漆 详见 涂金属构件做黑色防锈漆 做法详见 涂所有埋入墙内 混凝土内的木制构件均需涂刷防腐油图中未详之处 须严格按照国家现行施工操作规程及验收规范执行采用单一的结构标高 当比例与尺寸矛盾时 以标注尺寸为准墙身防潮层采用 厚 水泥砂浆加 防水剂混合砂浆墙面 面层仿瓷涂料二遍五 其它:大门人行道选用预制混凝土块路面别类4.1..2..3.5.2数 量编 号设 计宽门窗尺寸椭圆构架见二次设计。大门车行道选用混凝土路面大门选用单开不锈钢电动伸缩门,,,,,,做法详见 二 墙体:三 室外及室内装修:室内门墙垛除注明者外均为外墙内墙屋面四 油漆:顶棚地面 选用埋入砌体内的金属件需刷防锈漆两道本工程 标高相当的绝对标高为.2.1.....2.1.3.1,:外所有内墙选用外墙涂料详立面图98ZJ001粉刷石膏砂浆顶棚卷材防水屋面做法详见 , 选用,::: 选用平屋面 选用..,,内墙6,,1:2陶瓷地砖地面.20%%p0.000:.,5%ቤተ መጻሕፍቲ ባይዱ00,做法详见 13采用图集及编号图集编号编 号9.路..98ZJ621.路298ZJ001...备 注27.04,.101198ZJ001.98ZJ00198ZJ0012顶屋.外墙.1-0.060以黄海高程为标准在标高 处沿墙体设置 ,,地18..,..室外标高为建筑设计总说明一 总述:本施工图工程室内标高为 1..,%%p0.000-0.300.25.8426.328.006200300026.9950.2125.105总平面图1:500026.1425.10526.768.0026.52人流26.1526.00用地范围铺 地绿 地道 路26.01厕26.60学生生活小区大门26.7826.19门卫室步行入口26.6325.55人流车 流门卫室25.7625.9231002003344073.4399 26.70597673.413126.7026.2631002002006200300010030001001000801701202585R27121952585o1202001952000200020020025002003000100310020002001952705R2712花池o2002002705195200人行入口规划建筑E-125.6810031002002000休息室620030001800900上二级10001000上二级休息室9001800300100150翻起200370031001040042004200标高9.500m层平面1:10010400900021002002300标高3.000m层平面104009000420038001檐口20020070021002002300200700200420038003000C1C2门卫室600300C2%%p0.000车辆入口电动门H=1500-0.3002003700310042001700170038007002002001000170802585120R2712o2585195195200020020012020002002002500200230037001700200700200420038001:100%%p0.000300600C2C1C2门卫室200200031002705oR2712195人行入口2705195200200花池200200窗台装饰线1:201:206200300010010030003006001200窗台装饰线均面涂白色涂料-0.300801001003000.9003.3003000100檐口110080梁高见结施檐口装饰线均面涂白色涂料1002001003.600-0.300%%p0.0009.5006.500-0.3003.600%%p0.00098ZJ001水泥砂浆台阶 二 10400900020020098ZJ001水泥砂浆台阶 二 20020030004200M23800C13007001200M1300300( )17003700300042003800M21200700( )300300C1300310020002001:2.5厚 水泥砂浆3.6001001801:220二布三胶粘胶砂浆嵌牢9.5006.500bb浅灰色涂料浅灰色涂料立面图~1:100浅灰色涂料浅灰色涂料装饰材料见二次装修5.100米白色大理石贴面1柱3.6009.5007.5005.6000.900装饰材料见二次装修米白色大理石贴面柱15.6005.1003.600米白色大理石贴面米白色大理石贴面3.600立面图米白色大理石贴面~米白色大理石贴面1:1003.600见二次装修柱1正立面图装饰材料米白色大理石贴面1柱3.600-0.300%%p0.0009.5006.500见二次装修装饰材料米白色大理石贴面柱10.900-0.3003.600%%p0.000-a a1:50页岩砖 水泥砂浆砌筑10uM5Mb b-1:50水泥砂浆砌筑Mu10页岩砖 M5I I剖面图-0.3001:1001a0.900--0.3001:100a0.9007.5009.5006.500高 专 生 活 公 寓7.5009.5006.5009.5006.5009.5007.5006.5001页岩砖 水泥砂浆砌筑10uM5M7.5009.5006.500B-B剖面图构架平面示意图-0.3005.1003.600%%p0.000( 等分)20浅灰色涂料立面图见二次装修装饰材料~-0.3001:1003.6005.100%%p0.0001:501:1001:100( 等分)33.300%%p0.000-0.300A-A剖面图立面大样C13.300-0.300%%p0.0003.3003.600%%p0.000-0.3007.5009.5005.6006.5009.5006.5005.6007.5003.6003.6001:50( 等分)立面大样3C21:1003.3003.600-0.300%%p0.000213002170039003006005600560021003900980098003900210060049505X250=125030002000100049502100390090030029006005X250=1250600900300200030001000400200180020040020020020025015025015042542518001502100390090030010090010002900600100080170350074002002003500200900100030090042518001502501502501504251200120010030010003000105029006005X250=125060020001000100030001000290010505X250=12506006002000400200200200200400200200020001800900290025080170600210050015003000200010001501200420030003900600300300024001300600020053020205552055513251325380021001250204054052021001250405204052030030005302029009006002100150050021003900900300300300200030001000210039001501509003003003900900210015030030021003900900300300300中国专业人士的网络家园;因为专业,所以完美市场部:ivpmarket@ 技术部:ivptech@网易 NetEase建筑在线 编辑部:ivpinfo@==