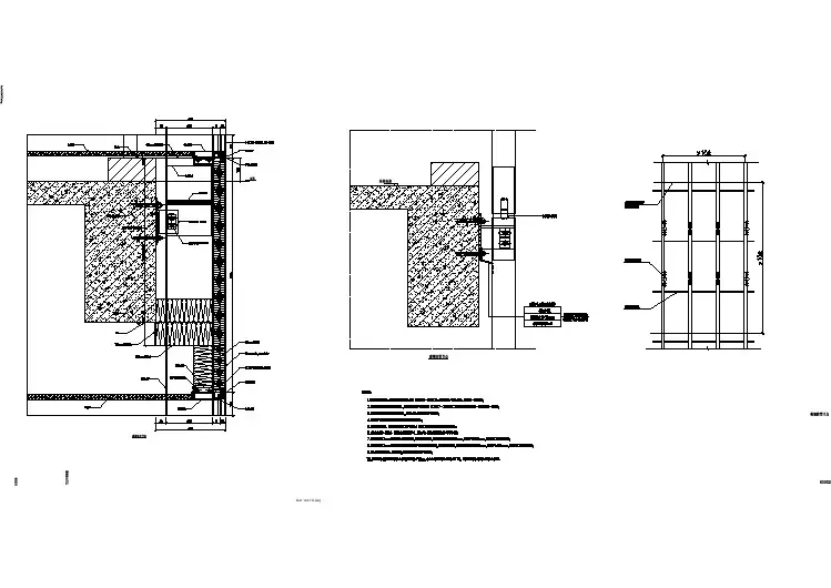
幕墙全套节点资料
- 格式:dwg
- 大小:390.95 KB
- 文档页数:1
玻璃幕墙设计知识点(含高清节点图)玻璃幕墙是由龙骨、玻璃和附件三部分组成的(1)龙骨由纵向立柱和横档组成,它是用来支撑玻璃、固定玻璃,并通过连接件与墙体结构相连。
它将玻璃的自重和风荷载及其他荷载传给主体结构,使玻璃与墙体结构连成一整体。
① 型钢龙骨:型钢做玻璃幕墙的龙骨,玻璃镶嵌在铝合金的框内,然后再将铝合金框与龙骨固定。
型钢组合的框架,其网格尺寸的适当可适当加大,但对主要受弯构件,截面不能太小,挠度最大处宜控制在5mm以内。
否则将影响铝窗的玻璃安装,也影响幕墙的外观。
② 铝合金型材龙骨:用特殊断面的铝合金型材作为玻璃幕墙的龙骨,玻璃镶嵌在龙骨的凹槽内,玻璃幕墙的立柱与主体结构之间,用连接板固定。
安装玻璃时,先在立柱的内侧上安铝合金压条,然后将玻璃放入凹槽内,再用密封材料密封。
支承玻璃的横梁略有倾斜,目的是排除因密封不严而流入凹槽的雨水,并将外侧盖封住。
(2)玻璃玻璃是建造玻璃幕墙的关键材料。
它直接制约幕墙的各项性能,同时也是幕墙艺术风格的主要体现者,因此选用玻璃是幕墙设计的主要内容,如果玻璃选用不当会产生相当严重的后果。
要根据使用要求分别选用孵化玻璃、吸热玻璃、钢化玻璃、热反射镀膜玻璃、低辐射镀膜玻璃以及由这些单层玻璃组合成的夹层玻璃和中空玻璃。
① 浮法玻璃:浮法玻璃生产的成型过程是在通入保护气体(N2及H2)的锡槽中完成的。
熔融玻璃从池窑中连续流入并漂浮在相对密度大的锡液表面上,在重力和表面张力的作用下,玻璃液在锡液面上铺开、摊平、形成上下表面平整、硬化、冷却后被引上过渡辊台。
辊台的辊子转动,把玻璃带拉出锡槽进入退火窑,经退火、切裁,就得到平板玻璃产品。
浮法与其他成型方法比较,其优点是:适合于高效率制造优质平板玻璃,如没有波筋、厚度均匀、上下表面平整、互相平行 ;生产线的规模不受成形方法的限制,单位产品的能耗低 ; 成品利用率高; 易于科学化管理和实现全线机械化、自动化,劳动生产率高;连续作业周期可长达几年,有利于稳定地生产 ;可为在线生产一些新品种提供适合条件,如电浮法反射玻璃、退火时喷涂膜玻璃、冷端表面处理等。
幕墙工程全套资料(范本) 目录序号编号名称页码备注MQ1 幕墙工程施工、技术管理资料MQ1.1 建筑幕墙工程概况MQ1.2 幕墙工程中标通知书MQ1.3 建筑幕墙施工组织设计、施工方案及审批MQ1.4 技术交底记录MQ1.5 设计交底记录、图纸会审记录MQ1.6 设计变更、洽商记录MQ1.7 幕墙工程质量事故处理记录MQ1.8 幕墙工程正常使用情况下物理耐用年限保证书MQ1.9 幕墙施工图、结构计算书、设计说明MQ1.10 建筑设计单位对幕墙工程设计的确认文件MQ1.11 幕墙工程观感质量检查记录MQ1.12 幕墙工程质量控制资料和主要功能检测报告检查表MQ2 幕墙工程质量控制资料MQ2.1 材料质量证明书及进口材料商检报告MQ2.1.1 铝合金材料产品合格证书、性能检测报告汇总表MQ2.1.2 幕墙用钢材及五金(衬垫)产品合格证书、性能检测报告汇总表MQ2.1.3 幕墙板材(玻璃、金属板、石材)合格证书、性能检测报告汇总表MQ2.1.4 保温、防火材料合格证书、性能检测报告汇总表MQ2.1.5 幕墙用硅酮胶质量证明书及性能检测报告汇总表MQ2.2 硅酮结构胶及密封材料的质量证明书或合格证MQ2.2.1 进口硅酮结构胶的商检证明MQ2.2.2 硅酮结构胶相容性和剥离粘结性试验报告MQ2.2.3 玻璃幕墙用结构胶的邵氏硬度、标准条件拉伸粘结强度报告MQ2.2.4 石材幕墙硅酮结构密封胶的粘结强度和污染性试验报告MQ2.2.5 检验报告和复验报告MQ2.3 施工安装质量隐蔽验收记录MQ2.3.1 预埋件或后置埋件隐蔽验收记录MQ2.3.2 构件连接节点隐蔽验收记录MQ2.3.3 幕墙变形缝及墙面转角处的节点构造隐蔽验收记录MQ2.3.4 幕墙防火构造隐蔽验收记录MQ2.3.5 幕墙防雷装置隐蔽验收记录MQ2.4 打胶养护环境的温度、湿度记录;双组分硅硐结构胶的混匀性试验记录及拉断试验记录(自备表)MQ2.5 防雷装置测试记录(自备表)MQ3幕墙工程施工、技术管理资料MQ1.1 建筑幕墙工程概况本部分主要介绍幕墙工程的概况,包括工程的基本情况、施工单位、设计单位等信息。
序编号号MQ1MQ1.1MQ1.2MQ1.3MQ1.4MQ1.5MQ1.6MQ1.7MQ1.8MQ2MQ2.1精心整理目录名称页码备注幕墙工程施工、技术管理资料建筑幕墙工程概略幕墙工程中标通知书建筑幕墙施工组织设计、施工方案及审批技术交底记录设计交底记录、图纸会审记录幕墙工程正常使用状况下物理耐用年限保证书幕墙施工图、结构计算书、设计说明幕墙工程观感质量检查记录幕墙工程质量控制资料和主要功能检测报告检查表幕墙工程质量控制资料资料质量证明书及入口资料商检报告铝合金资料产品合格证书、性能检测报告汇总表铝合金资料产品合格证书、性能检测报告幕墙用钢材及五金(衬垫)产品合格证书、性能检测报告汇总表幕墙用钢材及五金(衬垫)产品合格证书、性能检测报告幕墙板材(玻璃、金属板、石材)合格证书、性能检测报告汇总表幕墙板材(玻璃、金属板、石材)合格证书、性能检测报告保温、防火资料产品合格证书、性能检测报告汇总表保温、防火资料产品合格证书、性能检测报告幕墙用硅酮胶质量证明书及性能检测报告汇总表硅酮结构胶及密封资料的质量证明书或合格证MQ2.2查验报告和复试报告精心整理后置埋件的现场拉拔强度检测报告幕墙的抗风压性能、空气浸透性能、雨水浸透性能检测报告序编号名称页码备注号MQ2.3施工安装质量隐蔽查收记录预埋件或后置埋件隐蔽查收记录构件连结节点隐蔽查收记录幕墙变形缝及墙面转角处的节点结构隐蔽查收记录幕墙防火结构隐蔽查收记录幕墙防雷装置隐蔽查收记录MQ3幕墙子分部工程质量查收资料MQ3.0幕墙子分部工程质量查收记录MQ3.1玻璃幕墙分项工程质量查收记录MQ3.2明框玻璃幕墙分项工程查验批质量查收记录MQ3.3隐框、半隐框玻璃幕墙分项工程查验批质量查收记录MQ3.4金属幕墙分项工程质量查收记录MQ3.5金属幕墙分项工程查验批质量查收记录MQ3.6石材幕墙分项工程质量查收记录MQ3.7石材幕墙分项工程查验批质量查收记录建筑幕墙工程概略MQ1.1建设单位南京市建华房地产综工程名称建邺区双闸社区中合开发总公司心工程地址南京市建邺区江山广监理单位南京苏宁监理公司场邻近结构层次及建筑面积地上十六层、地下一层开完工日期10/8 —— 12/1约 82000 ㎡建筑设计单位江苏省建筑设计研究幕墙设计单位上海华艺幕墙系统院有限公司工程有限公司幕墙设计单位资质甲级幕墙种类及面积玻璃、铝板、石材幕墙高度59.75m名称上海华艺幕墙系统工项目经理张志辉程有限公司幕墙制作安装地址上海市青浦工业园公司资质一级施工单位技术负责人孙明录质量检查员程道家铝型材规格系EM06系列主材最小壁厚 3 ㎜列石材种类30 ㎜火烧板地中海灰麻幕墙主幕墙玻璃种类中空钢化产地吴江南玻要资料状况金属板材种类 3 ㎜铝单板江苏美亚结构、密封胶型硅宝 998、999产地成都号建筑幕墙施工组织设计、施工方案及审批MQ1.3工程名称建邺区双闸社区中心日期2010 年 9 月日现报上下表中的技术管理文件,请予以审批。
隐框、半隐框玻璃幕墙分项工程检验批质量验收记录 MQ3.3工程名称检验批部位施工执行标准名称及编号施工单位项目经理专业工长分包单位分包项目经理施工班组长序号GB50210-200l的规定施工单位检查评定记录监理(建设)单位验收记录主控项目1玻璃幕墙工程所使用的各种材料、构件和组件的质量,应符合设计要求及国家现行产品标准和工程技术规范的规定。
2 玻璃幕墙的造型和立面分格应符合设计要求。
3 玻璃幕墙使用的玻璃应符合规范规定。
4玻璃幕墙与主体结构连接的各种预埋件、连接件、紧固件必须安装牢固,其数量、规格、位置、连接方法和防腐处理应符合设计要求。
5各种连接件、紧固件的螺栓应有防松动措施;焊接连接应符合设计要求和焊接规范的规定6隐框或半隐框玻璃幕墙,每块玻璃下端应设置两个铝俣金或不锈钢托条,其长度不应小于100mm,厚度不应小于2mm,托条外端应低于玻璃外表面2mm。
7高度超过4m的全玻幕墙应吊挂在主体结构上,吊夹具应符合设计要求,玻璃与玻璃、玻璃与玻璃肋之间的缝隙,应采用硅酮结构密封胶填嵌严密。
8点支承玻璃幕墙应采用带万向头的活动不锈钢爪,其钢爪间的中心距离应大于250mm。
9玻璃幕墙四周、玻璃幕墙内表面与主体结构之间的连接节点、各种变形缝、墙角的连接节点应符合设计要求和技术标准的规定。
10 玻璃幕墙应无渗漏。
11玻璃幕墙结构胶和密封胶的打注应饱满、密实、连续、均匀、无气泡,宽度和厚度应符合设计要求和技术标准的规定。
12玻璃幕墙开启窗的配件应齐全,安装应牢固,安装位置和开启方向、角度应正确;开启应灵活,关闭应严密。
13 玻璃幕墙的防雷装置必须与主体结构的防雷装置可靠连接。
续表 MQ3.3一般项目1玻璃幕墙表面应平整、洁净;整幅玻璃的色泽应均匀一致;不得有污染和镀膜损坏。
2项次项目(每平方米玻璃表面) 质量要求1 明显划伤和长度>100mm的轻微划伤不允许2 长度≤100mm的轻微划伤≤8条3 擦伤总面积≤500mm23项次项目(一个分格铝合金型材表面) 质量要求1 明显划伤和长度>100mm的轻微划伤不允许2 长度≤100mm的轻微划伤≤2条3 擦伤总面积≤500mm24单元玻璃幕墙的单元拼缝或隐框玻璃幕墙的分格玻璃拼缝应横平竖直、均匀一致。
项目名称:幕墙工程施工技术资料工程名称:建设单位:监理单位:施工单位:项目负责人编制人:竣工日期:年月日目录序号编号名称页码备注1 建筑幕墙工程概况2 幕墙工程施工现场质量管理检查记录3 图纸会审记录4 设计变更洽商记录施工组织设计(施工方案)报审卡工程开工/复工报审表技术(安全)交底记录表施工日记幕墙工程成品半成品材料合格证(试验报告)汇总表设备进场开箱检查记录材料、构配件检验记录表硅酮胶结合相容性和剥离粘结性试验报告后置埋件(锚栓)的现场拉拔强度检测报告幕墙的抗风压性能、空气渗透性能、雨水渗透性能及平面变形性能检测报告幕墙等电位联结测试记录幕墙接地电阻测试记录幕墙工程施工控制网测量记录幕墙构件和组件的加工制作记录1.打胶、养护环境的温度、湿度记录幕墙工程安装施工检验记录幕墙淋水试验记录隐蔽工程验收记录幕墙等电位联结工程隐蔽验收记录预检工程检查记录表工序交接记录其它资料建筑幕墙工程概况幕墙工程施工现场质量管理检查记录建设单位工程名称工程地址监理单位结构层次及建筑面积地下层,地上层开竣工日期年月日至年月日建筑设计单位幕墙设计单位幕墙设计单位资质幕墙设计乙级幕墙类型及面积石材幕墙约平方米幕墙高度约米幕墙制作安装施工单位名称项目经理地址企业资质幕墙施工级技术负责人质量检查员幕墙主要材料情况铝型材规格系列主材最小壁厚/ 石材类型产地幕墙玻璃类型/ / 金属板材类型铝合金门窗结构、密封胶型号硅酮耐候胶、结构胶产地苏—001 工程名称施工许可证号建设单位项目负责人设计单位项目负责人监理单位总监理工程师总包单位施工单位序号项目内容1 施工单位幕墙施工资质幕墙施工资质二级2 现场质量管理体系1.质量例会制度;2.月评比及奖罚制度;3.三检及交接检制度;4.质量与经济挂钩制度。
3 质量控制及检验制度1.原材料及施工检验制度;2.抽测项目的检测计划4 施工技术标准执行国家相关标准、规范5 主要专业工种操作上岗证书项目经理、质检员、安全员、焊工等证书6 施工图审查情况经过建筑设计院及建设方审查批准7 施工组织设计、施工方案及审批施工组织设计.施工方案编制.审核.批准手续齐全8 检测计量器具齐全、有效检查结论:专业监理工程师:(建设单位专业负责人):年月日图纸会审记录苏—002 工程名称会审日期年月日序号图号会审记录问题答复意见1施工单位(公章)项目技术负责人:参加人:设计单位(公章)设计项目负责人:参加人:建设单位(公章)项目负责人:参加人:监理单位(公章)总监:参加人:设计变更(洽商)记录苏—003 工程名称变更(洽商日期)年月日记录内容:设计单位(公章)单位(项目)负责人:施工单位(公章)项目技术负责人:建设单位(公章)单位(项目)负责人:监理单位(公章)总监:施工组织设计(方案)报审表工程名称:编号:A4 苏—004 致: (监理单位)我单位已根据施工合同的有关规定完成了施工组织设计(方案)的编制,并经我单位上级技术负责人审查批准,请予以审查。
目录建筑幕墙施工组织设计、施工方案及审批MQ1.3注:附施工组织设计、施工方案。
技术交底记录MQ1.4日期:设计交底(图纸会审)记录MQ1.5共页第页设计变更、洽商记录汇总MQ1.6幕墙工程观感质量检查记录MQ1.7幕墙工程质量控制资料和主要功能检测报告检查表MQ1.8铝合金材料产品合格证书、性能检测报告汇总表MQ2.1.1技术负责人:质量检查员:提示1 玻璃幕墙工程使用的铝合金型材,应进行壁厚、膜厚、硬度和表面质量的检验。
2 用于横梁、立柱等主要受力杆件的截面受力部位的铝合金型材壁厚实测值不得小于3mm。
3 壁厚的检验,应采用分辨率为0.05mm的游标卡尺或分辨率为0.1mm的金属测厚仪在杆件同一截面的不同部位测量,测点不应少于5个,并取最小值。
4 铝合金型材膜厚的检验指标,应符合下列规定:(1)阳极氧化膜最小平均膜厚的平均值不应小于15цm,最小局部膜厚不应小于12цm。
(2)粉末静电喷涂涂层厚度的平均值不应小于60цm,其局部厚度不应大于120цm且不应小于40цm。
(3)电泳涂漆复合膜局部膜厚不应小于21цm。
(4)氟碳喷涂涂层平均厚度不应小于30цm,最小局部厚度不应小于25цm。
5 检验膜厚,应采用分辨率为0.5цm的膜厚检测仪检测。
每个杆件在装饰面不同部位的测点不应少于5个,同一测点应测量5次,取平均值,修约至整数。
6 玻璃幕墙工程使用6063T5型材的韦氏硬度值,不得小于8,6063A T5型材的韦氏硬度值,不得小于10。
7 硬度的检验,应采用韦氏硬度计测量型材表面硬度。
型材表面的涂层应清除干净,测点不应少于3个,并应以至少3点的测量值,取平均值,修约至0.5个单位值。
8 铝合金型材表面质量,应符合下列规定:(1)型材表面应清洁,色泽应均匀。
(2)型材表面不应有皱纹、裂纹、起皮、腐蚀斑点、气泡、电灼伤、流痕、发粘以及膜(涂)层脱落等缺陷存在。
9 表面质量的检验,应在自然散射光条件下,不使用放大镜,观察检查。
建筑幕墙要哪些资料之答禄夫天创作
一、前期准备资料:
1、施工合同或分包合同或协议书
2、施工方案或施工组织设计
3、施工器具报验。
(或施工工具:比方电焊机,手工切割机等属中型以上都需要,报验时只要提供有效的合格证及复检证明即可)
4、施工管理人员报验(包含,项目经理,工程师,施工员,资料员等五大员)
5、施工特种人员(包含,电工,焊工等属于建设厅允许上岗的特人员)
二、进场资料报验:必须报验给监理审批,与图纸相合的资料
1、后置锚件与药剂报验。
2、不锈钢锚固铁件报验
3、石材报验
4、焊剂报验
5、石材A B胶、硅酮结构胶报验
6、玻璃胶报验(注胶用的)
7、防锈漆报验,铝锈漆报验
8、角钢报验,扁铁报验
9、工字型报验
10、不锈钢挂件报验
11、螺丝与螺帽报验
三、监理单位见证送检资料:
1、石材A B胶
2、不锈钢锚固铁件
3、石材的三性试验
4、在室内的石材必须有放射性试验
5、在南方地区必须有抗冻性试验;
6、工字型钢拉伸试验(若监理与业主不要求时,可选择不做)
7、角钢,扁铁拉伸试验(若监理与业主不要求时,可选择不做)
四、隐蔽资料
1、后置锚件隐蔽
2、主体与立柱节点连接隐蔽
3、立柱与横梁节点连接隐蔽
4、防火隐蔽
5、防腐(油漆)隐蔽
6、防雷隐蔽
7、保温措施隐蔽
8、立柱与地面节点隐蔽
9、其它
五、现场试验:
1、后置锚件拉伸试验,
2、立柱与主体连接的探伤试验。