龙门吊操作试卷试题
- 格式:docx
- 大小:15.26 KB
- 文档页数:5
新工人入场教育考试试卷(龙门吊司机)姓名:得分:一、选择题(每题4分共44分)1、作业人员面对管理人员强令冒险作业的命令,应该()。
A.拒绝B.服从指挥C.与管理人员讨价还价D.找领导2.操作司机必须( ),按照指挥人员的信号作业,当信号不清除或错误时,操作人员可拒绝执行。
A.和指挥人员密切配合 B.按自己意愿作业C.和现场人员密切配合 D.随意作业3.作业前必须有足够的( ),清除或避开起重臂起落及回转半径内的障碍物。
A.技术人员B.施工人员C.安全机械D.工作场地4.操作人员进行变幅、行走和吊钩升降等动作前,应( )。
A.直接操作 B.发出音响信号示意 C.快速操作 D.不提示就操作5、施工现场悬挂警世标志的目的是( )。
A、为了装饰B、上级要求C、引起人们注意,预防事故发生D、管理科学化的要求6、进入施工现场必须戴(),系好帽带。
A.安全帽B.口罩C.安全带D.防护眼镜7、施工现场进行吊装作业时,要( )。
A.为省时间,快速行驶B.听需要帮忙的工人安排C.操作过程注意附近作业人员,及时提醒、避让D.只要把活干完,无所谓8、遇( )级以上大风等恶劣天气时,应停止起吊作业。
A. 4B.6C.8D.109.起吊重物时应( ),当确认重物己挂牢,起重机的稳定性和制动器的可靠性良好,再继续起吊。
A.先稍离地面试吊 B.直接起吊 C.快速起吊 D.先左右均匀晃动10、在吊装作业时,()将物料长短混吊、零散物件直接起吊。
A.严禁B.可以C.应该可以11、在吊装区域作业时,人员应 ( ),远离吊物。
A.及时躲避B.继续干活C.站着不动二、判断对错(每题4分,共56分)1.操作人员在作业前必须对工作现场环境、行驶道路、架空电线、建筑物以及构件重量和分布情况进行全面了解。
严格遵守“十不吊”规定。
( )2.起重机使用的钢丝绳,应有钢丝绳制造厂的签发的产品技术性能和质量的证明材料。
( )3、吊车在使用过程中,驾驶员应集中思想,注意附近作业人员,严禁酒后操作()4、灭火器的使用步骤是:先拔掉灭火器的保险销,再一手握紧喷管,另一手捏紧压把,然后喷嘴对准火焰根部扫射。
惠生(南通)重工门式、门座司机高级考试试卷总分(140分)部门_______________ 姓名______________________ 得分______________一、单项选择题:共计50题(每题0.5分)1、起重机工作级别共分为( B )级。
A、7B、8C、92、在用起重机的吊钩应定期检查,至少每( A )年检查一次。
A、半B、1C、23、卷筒壁磨损至原壁厚的( C )%时卷筒应报废。
A、5B、10C、204、常闭式制动器在制动装置静态时处于( B )状态。
A、打开B、制动5、起升机构的制动器必须是( B )式的。
A、常开B、制动6、在有腐蚀性的环境中工作时应选用( B )钢丝绳。
A、镀铅B、镀锌7、电动葫芦的载荷制动器在额定载荷下制动时,载荷下滑距离不应超过( A )额定起升速度。
A、1/100B、1/80C、1/508、起重机轨道及起重机上任何一点的接地电阻均不得大于( B )欧母。
A、10B、4C、89、起重机桥架上的走台应用防滑性能好的( B )制造。
A、优质木板B、网纹钢板10、端梁和走台的防护栏杆高度不应小于( A ) mm.。
A、1050B、800C、100011、桥式起重机各机构应用最广的是( B )异步电动机。
A、鼠笼式B、绕线式12、桥式起重机的照明信号回路其电源由起重机主断路器的( B )线端分接。
A、出B、进13、港口起重机在( A )级以上大风不准作业。
A、六B、七14、流动式起重机上常用的油马达有( B )式马达和柱塞式马达。
A、叶片B、齿轮15、溢流阀是液压系统的( B )装置。
A、控制流量B、安全保护16、起重机的抗倾翻能力称为起重机的( B )性。
A、安全B、稳定17、流动式起重机作业时,吊臂顶端要离高压电线( A )以上。
A、2mB、1.5m18、起重机械不得使用( B )吊钩。
A、板钩B、铸钩19、按行业沿用标准制造的吊钩,危险断面磨损量应不大于原尺寸的( B )%。
4. 吊物起吊()mm高度时,应停钩检查,待妥当后再行吊运。
A.(50~60)B.(60~80)C.(100~200)D.(200~300)5.作为吊装工必须具备的职业道德以下正确的是 ( )A:丰富的吊装经验 B:工作态度良好、责任心强 C:不服从管理4、简答题(每题15分,共30分)1.简述起重操作中严格执行“十不吊”的原则是?(至少答五条)2.起移梁施工应注意的基本事项是什么?一、填空题1、大臂主梁支腿2、分别驱动形式电动机联轴器减速器制动器4、电源的总闸5、6 22 206、《龙门吊安全操作规程》歪拉斜吊7、润滑油8、异常时人员撤退9、稳起稳行稳落2、判断题1-5 对对对对对6-10 错对对对对3、选择题1-5 C A D D B4、简答题1.(1)超载或被吊物重量不明时不吊。
(2)指挥信号不明确时不吊。
(3)捆绑、吊挂不牢或不平衡可能引起吊物滑动时不吊。
(4)被吊物上有人或有浮置物时不吊。
(5)结构或零部件有影响安全工作的缺陷或损伤时不吊。
(6)遇有拉力不清的埋置物时不吊。
(7)歪拉斜吊重物时不吊。
(8)工作场地昏暗,无法看清场地、被吊物和指挥信号时不吊。
(9)重物棱角处与捆绑钢丝绳之间未加衬垫时不吊。
(10)钢(铁)水包装得太满时不吊。
2.起移梁施工中的工作人员,必须具备良好的专业起重工素质和相对固定的人组成,按照场内的安全上岗要求经培训后精心操作,工作中戴好安全帽及劳动防护用品,不能穿拖鞋或凉鞋,做到安全文明施工。
从事T梁起吊、存放的所有工作人员必须严格执行相关安全操作规程,操作正确,稳妥可靠,服从指挥,配合协调。
起重机司机限门式起重机操作考试题及答案一、选择题(每题2分,共40分)1. 下列哪个部件不是门式起重机的主要组成部分?A. 起重机主机B. 电气控制系统C. 安全防护装置D. 运输车辆答案:D2. 门式起重机的桥架通常采用哪种材质?A. 钢材B. 木材C. 塑料D. 玻璃答案:A3. 门式起重机的运行速度与其哪个参数有关?A. 起重量B. 跨度C. 运行速度D. 起重高度答案:C4. 门式起重机的起升机构通常由哪个部件驱动?A. 电动机B. 液压泵C. 气压泵D. 手动泵答案:A5. 门式起重机的电气控制系统主要包括哪个部分?A. 电源系统B. 控制柜C. 电缆D. 电动机答案:B6. 门式起重机的哪种安全防护装置能有效防止起重物坠落?A. 限位器B. 缓冲器C. 防护罩D. 连锁开关答案:D7. 门式起重机的哪种机构能实现重物的水平移动?A. 起升机构B. 运行机构C. 旋转机构D. 变幅机构答案:B8. 门式起重机的哪种机构能实现重物的垂直移动?A. 起升机构B. 运行机构C. 旋转机构D. 变幅机构答案:A9. 门式起重机的哪种机构能实现重物的旋转?A. 起升机构B. 运行机构C. 旋转机构D. 变幅机构答案:C10. 门式起重机的哪种机构能实现重物的摆动?A. 起升机构B. 运行机构C. 旋转机构D. 变幅机构答案:D二、判断题(每题2分,共20分)11. 门式起重机的起升速度应根据起重量和跨度进行调整。
()答案:√12. 门式起重机的运行速度应根据起重量和跨度进行调整。
()答案:√13. 门式起重机的起升机构通常采用交流电动机驱动。
()答案:×(正确答案:直流电动机)14. 门式起重机的电气控制系统通常采用PLC控制。
()答案:√15. 门式起重机的限位器能防止起升机构超过设定的起升高度。
()答案:√16. 门式起重机的缓冲器能减少运行机构的冲击力。
()答案:√17. 门式起重机的防护罩能防止操作人员误触运行机构。
龙门吊安装与拆卸工安全教育试卷姓名成绩一、判断题(40分)1、搭拆龙门吊要设警戒区,并指定专人负责,操作人员必须佩戴安全带、安全帽。
(√)2、龙门吊安装严格规定,作业人员要经过专业培训,考试合格,持证上岗(√)3、电动葫芦应由专人操作,操作者应充分掌握《龙门吊安全操作规程》,严禁歪拉斜吊(√)4、起重机易损坏件主要有:钢丝绳、制动器、互块、起升电机制动环(√)5、电缆线中间不可以有接头,长度合适,并直接插入控制箱端子上。
(×)6、支腿与主梁采用刚性法兰连接,其底部支撑在钢轨上。
(×)7、钢丝绳断了一股可以继续使用。
(×)8、支腿两侧同一端安装有2台完全相同的驱动机构。
(×)9、16吨电动葫芦龙门吊的起重钢丝绳直径为φ15mm。
(×)10、16吨电动葫芦龙门吊的额定起重量为16 吨,净空起升高度为米。
(√)11、龙门吊的底座必须安置在坚硬地基上,埋深不得少于0.5m:用地脚螺栓将立栓底盘连接牢固。
(√)12、立柱每2肢交替安装,操作人员要系安全带(√)13、缆风绳不准在高压线上方通过,与高架空线必须保持规定的安全距离(√)14、龙门吊吊篮与每层楼面必须有醒目的信号装置或标志。
(√)15、龙门吊进行缆风绳等严禁随意拆除。
(√)16、16吨龙门吊由大臂、主梁、支腿及走行驱动装置组成。
(√)17、使用机械矫正须由专人操作,统一指挥,其设备的防护装置必须齐全。
(√)18、拆除龙门吊应先设置临时缆风。
遇高能现金层缆风绳的井架,对下层缆风绳采取可靠的安全措施后,方可拆除顶层缆风绳。
(√)19、活动支腿即柔性支腿的上横梁上安装有操作室、电控柜等电气系统。
(√)20、在起重作业中,有两个吊钩的起重机,在主、副钩换用时和两钩高度相近时,主、副钩必须单独作业,以免两钩相撞。
(√)二、单选题(60分)1、《中华人民共和国建筑法》第四十六条规定建筑施工企业应当建立健全安全生产教育培训制度,加强对职工安全生产的教育培训;未经安全生产教育培训的人员,( C )上岗作业。
三级安全教育试卷(龙门吊安装与拆卸工)姓名成绩一、判断题(40分)1、搭拆龙门吊要设警戒区,并指定专人负责,操作人员必须佩戴安全带、安全帽。
()2、龙门吊安装严格规定,作业人员要经过专业培训,考试合格,持证上岗()3、电动葫芦应由专人操作,操作者应充分掌握《龙门吊安全操作规程》,严禁歪拉斜吊()4、起重机易损坏件主要有:钢丝绳、制动器、互块、起升电机制动环()5、电缆线中间不可以有接头,长度合适,并直接插入控制箱端子上。
()6、支腿与主梁采用刚性法兰连接,其底部支撑在钢轨上。
()7、钢丝绳断了一股可以继续使用。
()8、支腿两侧同一端安装有2台完全相同的驱动机构。
()9、16吨电动葫芦龙门吊的起重钢丝绳直径为φ15mm。
()10、16吨电动葫芦龙门吊的额定起重量为16 吨,净空起升高度为米。
()11、龙门吊的底座必须安置在坚硬地基上,埋深不得少于0.5m:用地脚螺栓将立栓底盘连接牢固。
()12、立柱每2肢交替安装,操作人员要系安全带()13、缆风绳不准在高压线上方通过,与高架空线必须保持规定的安全距离()14、龙门吊吊篮与每层楼面必须有醒目的信号装置或标志。
()15、龙门吊进行缆风绳等严禁随意拆除。
()16、16吨龙门吊由大臂、主梁、支腿及走行驱动装置组成。
()17、使用机械矫正须由专人操作,统一指挥,其设备的防护装置必须齐全。
()18、拆除龙门吊应先设置临时缆风。
遇高能现金层缆风绳的井架,对下层缆风绳采取可靠的安全措施后,方可拆除顶层缆风绳。
()19、活动支腿即柔性支腿的上横梁上安装有操作室、电控柜等电气系统。
()20、在起重作业中,有两个吊钩的起重机,在主、副钩换用时和两钩高度相近时,主、副钩必须单独作业,以免两钩相撞。
()二、单选题(60分)1、《中华人民共和国建筑法》第四十六条规定建筑施工企业应当建立健全安全生产教育培训制度,加强对职工安全生产的教育培训;未经安全生产教育培训的人员,()上岗作业。
龙门吊安全技术培训试题1、门式起重机可按门框结构形式,按主梁形式,按(),按用途形式分类。
[单选题]A、主梁结构(正确答案)B、支腿结构C、轨道长度D、起重量2、市场监管总局办公厅关于开展起重机械隐患排查治理工作的通知要求,对于已经安装了()高度限位装置的新出厂或在用桥式、门式起重机,不再要求设置“双限位”装置。
[单选题]A、断火式B、重锤式C、压板式D、传动式(正确答案)3、轨道不应有裂纹或严重磨损等影响安全运行的缺陷;不得随意在轨道上动用电火焊,不得使用轨道作为电焊机() [单选题]A、一次接地B、二次接地(正确答案)C、接地D、导线4、轨道不应缺少螺栓和压板,压板固定牢固,间距( )mm,对称设置。
[单选题]A、500B、600(正确答案)C、700D、8005、轨道纵向坡度不应超过( )/1000。
[单选题]A、1(正确答案)B、2C、3D、56、龙门吊桥架安装单机起吊钢丝绳夹角不得超过( )°,双机抬吊时则每台吊机的负荷率应控制在80%以下。
[单选题]A、90B、120(正确答案)C、150D、1807、轨道两端各设一组接地装置,轨道的接头处作电气连接,较长轨道每隔不大于()m 加一组接地装置。
轨道的接地电阻值不应大于4Ω; [单选题]A、15B、20C、30(正确答案)D、508、特种设备作业人员中起重指挥应持有()证件。
[单选题]A、Q1(正确答案)B、Q2C、Q3D、Q49、车轮定期检查轮缘和踏面,当轮缘部分的磨损或崩裂达到( )%厚度时应更换新轮。
[单选题]A、5B、10(正确答案)C、15D、2010、起升高度在()m以上的龙门吊必须安装风速仪。
[单选题]A、9B、10C、12(正确答案)D、151、《起重机械安全规程》规定,露天工作于轨道上运行的起重机,如门式起重机、装卸桥、塔式起重机和门座式起重机,均应装设防风防爬装置。
下列属于防风防爬装置的是()A、夹轨器(正确答案)B、锚定装置(正确答案)C、铁鞋(正确答案)D、安全钩E、防后倾装置2、桥架类型起重机的特点是以桥形结构作为主要承载构件,取物装置悬挂在可沿主梁运行的起重小车上。
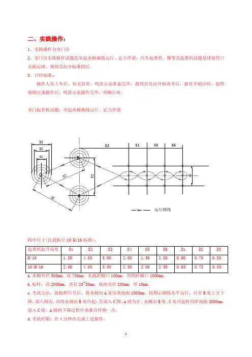
二、实践操作:1、实践操作分龙门吊2、龙门吊实践操作试题是吊起水桶曲线运行、定点停放,汽车起重机、履带式起重机试题是球放管口无振运球,规则及扣分标准附后。
3、计时标准:操作人员上车后,如无异常,呜笛示意准备完毕,裁判员发出开始命令后,操作开始计时,按照规则完成操作后,呜笛示意操作完毕,终断计时。
龙门起重机试题:吊起水桶曲线运行、定点停放图中尺寸(比武执行10<H<16标准):b.标杆:高2000mm,直径20~30mm,底座直径250mm,厚10mm。
c.考试方法:接指挥信号后,将水桶由A处吊离地面1000mm,按图示路线水平运行,行至B处上方下降,放入圆内。
再将水桶由B处吊起,先放入C圆、A圆为止。
水桶由B处、C处吊起时均距地面3000mm,放入C圆、A圆的下降过程中各准许停顿一次。
d.考试时限:在4分钟内完成上述操作。
e.吊起水桶曲线运行、定点停放扣分标准四、比武器材准备比赛用车:32/5t龙门吊一辆比武器材计时表1个,比赛场地拉设围绳。
三、机械操作理论考试复习题机械操作工理论考试复习题(一)一、判断题(对的划√,错的划×)1、起重机取物装置本身的重量一般都不应包括在额定起重量中。
()2、起重机的吊钩通常有铸造吊钩、锻造吊钩和板钩三种。
()3、吊钩开口度比原尺寸增加15%时,吊钩应报废。
()4、吊钩危险断面或吊钩颈部产生塑性变形吊钩应报废。
()5、车轮轮缘磨损量超过原厚度的10%时车轮应报废。
()6、起重机轨道接头的缝隙一般为5~10mm。
()7、滑轮有裂纹或轮缘破损应报废。
()8、滑轮槽不均匀磨损达3mm应报废。
()9、新更换的钢丝绳应与原安装的钢丝绳同类型、同规格。
()10、起重机扫轨板距轨面不应大于20~30mm。
()11、司机室位于大车滑线端时,通向司机室的梯子和走台与滑线间应设置安全防护板。
()12、露天工作的起重机,其电器设备应设置防雨罩。
()13、目前葫芦式起重机的控制回路多采用低压电路(一般位36V或42V)。
龙门吊司机安全知识试题答案ATTA standardization office【TTA 5AB- TTAK 08- TTA 2C】龙门吊司机安全培训答案一、填空题:(每空2分,共40分)1、司机上班时穿戴的劳动保护用品有防滑鞋、安全帽。
、2、司机上机前检查轨道两侧是否有障碍物。
3、在起重作业工序中,每班第一次起吊重物时(或负荷达到最大重量时),应在吊离地面高度 0.5米后,重新将重物放下,以检查制动性能,确认可靠后,再进行正常作业。
4、工作中突然断电时,应将所有的控制器手柄置于零位,在重新工作前应检查起重机动作是否正常。
5、在起重作业中,有两个吊钩的起重机,在主、副钩换用时和两钩高度相近时,主、副钩必须单独作业,以免两钩相撞。
6、司机操作中,不准利用极限位置限制器停车,严禁在有负载的情况下调整起升机构制动器。
7、龙门吊操作者应密切注视运行方向及其附近有无人或障碍物。
8、龙门吊作业时,当风力大于级 6 级时,一般应停止工作,并将其中机用夹轨钳锁定。
9、将吊钩升高至一定高度(距规定 4~4.5 米)并停靠在驾驶室前( ~1.2米范围内),大车停靠在指定位置。
10、在指定位置,控制器手柄置于“零”位;拉下保护箱刀开关手柄,切断电源。
11、安全生产管理所讲的“四不伤害”是指:不伤害自己,不伤害别人,不被别人伤、保护他人不被伤害。
二、判断题:(对的打“√”,错的打“×”,每题4分,共24分)1、司机视线较好,在龙门吊起重作业中,起升、降落重物;开动大、小车行驶时不需要鸣铃报警。
(×)2起重机龙门架、起重小车在正常起吊过程中,严禁开反车制动停车;变换大、小车运动方向时,必须将手柄置于“零”位,使机构完全停止运转后,方能反向开车。
(√)3、有两个吊钩的起重机,在主、副钩换用时和两钩高度相近时,主、副钩必须单独作业,以免两钩相撞。
(√)。
4、龙门吊在起重作业中突然断电时,应将所有的控制器手柄置于“零”位,来电后可以继续作业(×)。
龙门吊知识测试试卷起重机正常吊运作业时,被吊物应处在()状态*不转动(正确答案)不移动(正确答案)不倾覆(正确答案)不擦碰(正确答案)不滑动(正确答案)2.起重作业中出现下列情况之一时,司机不应进行操作()。
* A•超载(正确答案)B•物体重量不明(正确答案)C•工作场地昏暗(正确答案)D.被吊物上有人(正确答案)3.起重作业中严禁超载使用()。
*A•A•吊钩(正确答案)B•千斤顶(正确答案)C•钢丝绳(正确答案)D.起重链(正确答案)E•卸扣(正确答案)4.轮胎式集装箱门式起重机机构应设有()几种安全保护装置。
* A•起升上升至终点停止(正确答案)B•起升下降至终点停止(正确答案)C.上、下终点前减速(正确答案)A、高度指示器(正确答案)D•起升上限极限限位(正确答案)E•超载保护(正确答案)5.《特种设备安全监察条例》(国务院549号令)所称的特种设备是指涉及生命安全、危险性较大的设备,包括()。
*A•A•锅炉、压力容器、压力管道(正确答案)B•电梯、起重机械(正确答案)C•客运索道、大型游乐设施(正确答案)D•场(厂)内专用机动车辆(正确答案)E.矿山专用机械6.起重吊运指挥信号包括:()。
*A•手势信号(正确答案)B•指挥语言(正确答案)C•灯光信号D•旗语信号(正确答案)E•音响信号(正确答案)7.《特种设备安全监察条例》(国务院第549号令)规定,特种设备生产、使用单位应当建立健全()。
*A.特种设备安全管理和岗位安全责任制度(正确答案)B•特种设备节能管理和岗位节能责任制度(正确答案)C•奖惩制度D.岗位管理制度8.属于场桥起升的安全保护装置有()*B、超载保护(正确答案)C、超速保护(正确答案)9.吊具不能伸缩的原因有()*A、吊具处于闭锁状态(正确答案)B、吊具泵联轴节坏(正确答案)C、吊具处于开锁状态D、吊具顶销灯亮(正确答案)10.四不伤害()*A不伤害自己(正确答案)B不伤害他人(正确答案)C不被别人伤害(正确答案)D保护他人不被他人伤害。
门座式起重机司机操作证考试题库及答案一、判断题(每题1分,共50题,满分50分)1. 门座式起重机的起升机构包括起升电机、卷筒、钢丝绳和滑轮组。
()2. 门座式起重机的变幅机构包括变幅电机、变幅卷筒和钢丝绳。
()3. 门座式起重机的旋转机构包括旋转电机、旋转机构和制动器。
()4. 门座式起重机的行走机构包括行走电机、行走机构和制动器。
()5. 门座式起重机的控制器应具有过载保护功能。
()6. 门座式起重机的起升机构应具有紧急停止功能。
()7. 门座式起重机的变幅机构应具有自动稳幅功能。
()8. 门座式起重机的旋转机构应具有双向旋转功能。
()9. 门座式起重机的行走机构应具有速度调节功能。
()10. 门座式起重机的操作室应具有良好的视野和照明条件。
()11. 门座式起重机的操作人员应持有相应的操作证件。
()12. 门座式起重机的日常维护应由操作人员负责。
()13. 门座式起重机的定期检查应由维修人员进行。
()14. 门座式起重机的故障排除应由维修人员进行。
()15. 门座式起重机的操作人员应具备一定的机械原理知识。
()16. 门座式起重机的操作人员应具备一定的电气知识。
()17. 门座式起重机的操作人员应具备一定的金属材料知识。
()识。
()19. 门座式起重机的操作人员应具备一定的力学知识。
()20. 门座式起重机的操作人员应具备一定的工程机械知识。
()21. 门座式起重机的操作人员应具备一定的安全生产知识。
()22. 门座式起重机的操作人员应具备一定的应急预案知识。
()23. 门座式起重机的操作人员应具备一定的消防知识。
()24. 门座式起重机的操作人员应具备一定的急救知识。
()25. 门座式起重机的操作人员应具备一定的法律法规知识。
()26. 门座式起重机的操作人员应具备一定的职业道德知识。
()27. 门座式起重机的操作人员应具备一定的沟通与协调能力。
()作能力。
()29. 门座式起重机的操作人员应具备一定的自学能力。
安全教育考试题(龙门吊拆除)姓名:成绩:一、选择题(50分,每小题2分)1、安全带应(),不可将绳子打结使用。
A、低挂高用B、高挂低用C、平挂平用2、遇到他人触电时,要首先()。
A、拉断电源B、找电工解决C、打急救电话3、“三违”是指()、违章指挥、违反劳动纪律。
A、违章作业B、违反交通规则C、违法4、堆放材料的高度要按规定,不要超高,以防()。
A、材料损坏B、倒塌伤人C、团伙盗窃5、宿舍里不可使用电炉及大功率灯具,电线上不可挂衣服,不可自己乱拉乱接电器,防止发生()事故A、火灾及触电事故B、意外C、伤人6、施工中不得随意()建筑材料、残土、旧料及其它杂物A、堆放B、抛掷C、收集7、安全教育培训的目的是提高员工的安全素质,防患于未然,使员工努力做到:()。
A.事不关已,高高挂起;B.保证自己安全,不伤害自己;C.保护自己,不被他人伤害;D.不伤害自己,不伤害他人,不被他人伤害;8、员工在安全生产中有拒绝权,是指:()。
A.有权拒绝违章作业和强令冒险作业;B.不想做的工种,就可拒绝;C.不想做的岗位,可以不去;D.心情不好,就可以拒绝;9、员工在安全生产的义务包含()。
A.自觉遵守安全规章制度的义务;B.自觉学习安全知识的义务;B.C.自觉报告危险和不安全因素的义务; D.以上都包含;10、下列( )灭火剂是扑救精密仪器火灾的最佳选择。
A.二氧化碳灭火剂B.干粉灭火剂C.泡沫灭火剂11、用灭火器灭火时,灭火器的喷射口应该对准火焰的( )。
A.上部B.中部C.根部12、身上着火后,下列哪种灭火方法是错误的( )。
A.就地打滚B.用厚重衣物覆盖压灭火苗C.迎风快跑13、按要求佩戴个人防护用品的目的是:()。
A.应付客户的检查;B.保护员工的身体健康;C.应付政府的检查;D.应付老板的检查;14、( )必须分间、分库储存。
A.灭火方法相同的物品B.容易相互发生化学反应的物品C.以上两种答案都对15、环境保护,人人有责,并养成良好的环保习惯,如:()。
起重机械操作技术比武试题起重机械操作技术比武试题起重机械操作技术比武试题一、判断题(每题0.5分,共46题23分)1.钢丝绳有三根以上的断丝聚集在一起时,应维修或报废()2.塔式起重机距轨道端部可以小于2m。
()3.一般起重机械露天作业时当风力大于6级时应停止作业。
()4.钢丝绳的破断拉力与钢丝绳的截面积总和及抗拉强度成正比。
()5.起吊重物时,两吊索的夹角不宜超过90°,而吊链不宜超过30°。
()6.动臂式塔机的起重、回转、行走三种动作可以同时进行,但变幅只能单独进行。
()7.两机抬吊重物,如重心低于绑扎点,重物产生倾斜时,抬得越高的机械,负荷越小。
()8.吊索绕过吊重的曲率应小于该绳径的2倍。
()9.物体的重心越低,支承面越大,物体所处的状态越稳定。
()10.力的三要素为力的大小、方向和作用点。
()11.起重机的作业状态处于起重量性能表粗实线下面时,应把注意力集中在整机稳定方面。
()12.发动机每次起动时间可以超过10秒。
()13.流动式起重机在伸出臂杆前,应适当地降下吊钩,防止过卷。
()14.具有简单几何形状、材质均匀分布的物体,它的重心就是该物体的几何中心。
()15.起重量与额定起重量是同一概念。
()16.起重指挥信号一般有旗、哨和手势三种。
()17.塔式起重机可以不设最大重量限制器。
()18.12t以下的流动式起重机可不设高度限位器。
()19.塔式起重机高度大于30m应设风速仪。
()20.地面控制按扭盒操作的起重机控制电压应为220V。
()21.桥门式起重机上仓门应设联锁开关。
()22.16t以上流动式起重机应设力矩限制器。
()23.大于30t的塔式起重机应设力矩限制器。
()24.大于10t的门式起重机应设重量限制器。
()25.26.27.28.大于10t的桥式起重机应设重量限制器。
()钢丝绳外层钢丝磨损达钢丝直径的40%时应报废。
()制动器制动轮表面磨损凸凹不平达1.5时,可以使用。
安全教育试卷(龙门吊司机)姓名:班组:得分:填空题:1、防护装置是通过(物体障碍)方式专门用于提供防护的机器部分。
根据其结构,防护装置可以分为(壳、罩、屏、门)等。
防护装置一般用于以下有危险的部位:机械外露的旋转部位、(容易物体抛射危险部位)、由于无法达到安全距离而可能造成危险的部位、容易引起扬尘或者火花的部位。
2、安全装置是用于消除或(减小风险)的单一装置或与防护装置两用的装置。
安全装置按照功能和控制方式可分为:(联动装置)、控制装置、止动操作装置、(自动停机装置)、机械抑制装置、(限制装置)、阻挡装置。
3、(翻倒)由于基础不牢、超机械工作能力范围运行和运行时碰到障碍物等原因造成;4、(超载)超过工作载荷、超过运行半径等;5、(碰撞)与建筑物、电缆线或其他起重机相撞;6、(基础损坏)设备置放在坑或下水道的上方,支撑架未能伸展,未能支撑于牢固的地面7、在(吊装)前,必须对各限位器、排线器等进行检查,各安全装置必须灵敏、可靠,方可进行吊装作业;8、不准酒后操作。
不准赤脚或穿三鞋(拖鞋、硬底鞋、高跟鞋)。
在施工現场不准乱躺、乱卧、乱坐。
问答题:在机械操作中,常见的不安全行为有:1)未经许可开动、关停、移动机器;(2)开动、关停机器时未给信号;(3)开关为紧缩,造成意外转动;(4)忘记关闭设备;(5)忽视警告标志、警告信号,操作错误(如按错拔钮、阀门、搬手、把柄的操作方向相反);(6)设备运转速度过快;(7)违章驾驶机动车;(8)机械运转时加油、修理、检查、调整、焊接或清扫;(9)安全装置失效;(10)用手代替工具操作;(11)攀、坐危险位置。
安全教育试卷(龙门吊司机)姓名:班组:得分:填空题:1、防护装置是通过( )方式专门用于提供防护的机器部分。
根据其结构,防护装置可以分为( )等。
防护装置一般用于以下有危险的部位:机械外露的旋转部位、()、由于无法达到安全距离而可能造成危险的部位、容易引起扬尘或者火花的部位。
文件编号: D3-75-63-69-99
整理人 尼克 龙门吊考试试题及答案
文件编号:D3-75-63-69-99
试题1、
(1)本题分值:分
(2)考核时间:分钟
(3)考核形式:实际操作
(4)具体考核要求(需要达到的结果):
a)
b)
……
(5)否定项说明:
试题2、
(1)本题分值:分
(2)考核时间:分钟
(3)考核形式:实际操作
(4)具体考核要求:
a)
b)
……
(5)否定项说明:
试题3、
(1)本题分值:分
(2)考核时间:分钟
(3)考核形式:实际操作
(4)具体考核要求:
a)
b)
……
(5)否定项说明:
整理丨尼克
本文档信息来自于网络,如您发现内容不准确或不完善,欢迎您联系我修正;如您发现内容涉嫌侵权,请与我们联系,我们将按照相关法律规定及时处理。
十三龙门吊防风指导手册考核试题一、单选题(10道)1、以下不属于防风作业管理档案资料的是:()A、防风装置技术档案资料B、防风装置采购记录C、防风装置定期检查记录D、防风装置安装验收检查记录2、门式起重机防风作业材料配置不包括:()A、对讲机B、救生衣C、安全带D、防风铁楔制动器3、日常防风作业的防风装置操作步骤正确的是:()①解除吊钩上的吊索②吊钩升至最高限位处,起重小车停放至规定位置③门式起重机运行至固定停机位置④自动式夹轨器自动启动⑤手动式夹轨器启动⑥锚定装置启动⑦防风缆装置启动A、③①②④⑥⑤⑦B、①②③④⑤⑥⑦C、①②③④⑥⑤⑦D、③①②④⑥⑤⑦4、防台风作业的防风装置操作步骤正确的是:()①解除吊钩上的吊索②吊钩升至最高限位处,起重小车停放至规定位置③门式起重机运行至固定停机位置④自动式夹轨器自动启动⑤手动式夹轨器启动⑥锚定装置启动⑦防风缆装置启动⑧大车、小车行走车轮下塞好木楔或铁楔A、③⑧①②④⑥⑤⑦B、①②③⑧④⑤⑥⑦C、①②③④⑥⑤⑦⑧D、③①②④⑥⑤⑦⑧5、台风到达前,门式起重机防台专项检查内容不包括:()A、门式起重机上活动、摆动部件的牢固性B、检查所有防风装置的有效性C、供电线路的有效性D、三防工作方案审批记录二、多选题(7道)1、使用单位应对门式起重机操作人员和相关作业人员定期开展防风作业专项培训,专项培训的内容应包括:()A、门式起重机三防工作方案B、防风装置操作流程C、防风装置操作要点D、防风过程个人安全防护E、门式起重机安全操作规程2、根据防风作业指导手册,门式起重机防风现场作业实施包括以下外业条件:()A、施工现场整理到位B、设备到位C、施工现场管控到位D、人员到位E、制定应急救援预案,将防风作业纳入应急演练内容,并定期演练3、门式起重机防风作业专岗人员包括:()A、起重机操作B、设备管理员C、预制梁模板安装工D、起重机指挥E、混凝土浇筑振捣工人4、门式起重机防风装置主要有:()A、自动式夹轨器B、手动式夹轨器C、锚定装置D、防风缆装置E、止挡装置5、门式起重机防风装置监管要点包括:()A、风速报警器检测B、制动间隙检测C、控制信号检测D、摩擦面检测E、零部件完好性检测6、阵风预警解除后,应检查防风装置:()A、各部件安装是否牢靠,紧固件是否有松动B、自动夹轨器是否恢复C、各铰点和螺纹传动副的润滑是否良好D、指示或警示标志是否正确、清晰和完好E、液压系统是否存在漏油,渗油现象7、根据防风作业指导手册,台风预警解除后,应对门式起重机结构件、电气系统、安全装置、防风装置进行全面检查,并按以下步骤恢复防风装置:()A、锚定装置恢复B、防风缆装置恢复C、手动式夹轨器恢复D、试运行,确认防风装置和其它各种安全装置灵敏可靠E、打开总电源,自动式夹轨器恢复三、判断题(5道)1、门式起重机管理应建立一机一档,防风作业管理资料只需收集防风装置检查记录、防风装置维修保养记录。
龙门吊操作者考试试题
姓名:成绩:
一、填空题(每空2分,共40分)
1、龙门吊由、、及走行驱动装置组成。
2、其运行机构采用,驱动机构靠、、
、车轮组来完成。
3、工作完毕之后必须把拉开,切断电源。
4、16T龙门吊主起升速度为m/min,大车运行速度为m/min,小车运行速度为m/min。
5、电动葫芦应由专人操作,操作者应充分掌握,严禁。
6、在使用前应检查个润滑部位是否充足。
7、吊物悬空运转后突发,指挥者应迅速视情况判断,紧急通告危险部位。
起重工将吊物慢慢放下,排除险情后,再行起吊
8、操作中要始终做到、、。
在靠近邻
车或接近人时必须及时打铃告警。
二、判断题(每题2分,共20分)
1.在处理故障或离车时,控制器必须放于'0'位,切断电源。
不准悬挂重物离开车。
下班时把小车停于驾驶室一端,吊钩升至规定高度。
()
2.离开工作地时应将吊物放下,吊钩升到规定高度,切断电源。
()
3.起重工必须持证作业,熟知吊装方案、指挥信号、安全技术要求及起重机械的操作方法。
()
4.起重机驾驶人员交接班必须实行班点检,详细记录每班检查及运转情况。
()
5.信号指挥者应当站在有利于保护自身安全,又能正常指挥作业的有效位置。
()
6.起吊物宜在空中长时间停留,若须停留应采取可靠的安全措施。
()
7.起吊后严禁人员从吊物下穿越、停留、要集中精力观察吊装动态。
()
8.吊装指挥要检查吊物挂钩、钢丝绳吊点部位、是否正确、等作业人员安全离开在指挥起吊司机起吊。
()
9.起吊前,必须正确掌握吊件重量,不允许起重机具超载使用。
()
10.龙门吊吊运物品时,应鸣铃让人躲开或绕开,禁止从人头顶通过,
开车前必须发出开车警告信号。
()
三、选择题(每题2分,共10分)
1.露天起重机当风力达()级及以上。
A.5
B. 4
C. 6
D.3
2. 起吊重物时,距地面距离不许超过()米。
A.0.5 B.0.7 C.0.8 D.1.0 3. 吊运接近额定负荷时,应升至()毫米高度停车检查刹车能
力。
A.50 B.60 C.80
D.100
4. 吊物起吊()mm高度时,应停钩检查,待妥当后再行吊运。
A.(50~60)
B.(60~80)
C.(100~200)
D.(200~300)
5.作为吊装工必须具备的职业道德以下正确的是( )
A:丰富的吊装经验B:工作态度良好、责任心强C:不服从管理
四、简答题(每题15分,共30分)
1.简述起重操作中严格执行“十不吊”的原则是?(至少答五条)
2.起移梁施工应注意的基本事项是什么?
答案:
一、填空题
1、大臂主梁支腿
2、分别驱动形式电动机联轴器减速器制动器 4、电源的总闸 5、6 22 20 6、《龙门吊安全操作规程》歪拉斜吊 7、润滑油
8、异常时人员撤退 9、稳起稳行稳落二、判断题
1-5 对对对对对 6-10 错对对对对三、选择题
1-5 C A D D B 四、简答题 1.
(1)超载或被吊物重量不明时不吊。
(2)指挥信号不明确时不吊。
(3)捆绑、吊挂不牢或不平衡可能引起吊物滑动时不吊。
(4)被吊物上有人或有浮置物时不吊。
(5)结构或零部件有影响安全工作的缺陷或损伤时不吊。
(6)遇有拉力不清的埋置物时不吊。
(7)歪拉斜吊重物时不吊。
(8)工作场地昏暗,无法看清场地、被吊物和指挥信号时不吊。
(9)重物棱角处与捆绑钢丝绳之间未加衬垫时不吊。
(10)钢(铁)水包装得太满时不吊。
2.起移梁施工中的工作人员,必须具备良好的专业起重工素质和相对固定的人组成,按照场内的安全上岗要求经培训后精心操作,工作中戴好安全帽及劳动防护用品,不能穿拖鞋或凉鞋,做到安全文明施工。
从事T梁起吊、存放的所有工作人员必须严格执行相关安全操作规程,操作正确,稳妥可靠,服从指挥,配合协调。