工程造价案例分析套模拟试题
- 格式:docx
- 大小:1.34 MB
- 文档页数:12
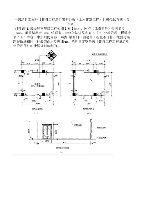
一级造价工程师《建设工程造价案例分析(土木建筑工程)》模拟试卷四(含答案)[问答题]1.某经理室装修工程如图8.6.I所示。
间壁(江南博哥)轻隔墙厚120mm,承重墙厚240mm。
经理室内装修做法详见表8.6.Ⅰ-1分部分项工程量清单“工作内容”中所列的内容。
踢脚.墙面门口侧边的工程量不计算,柱面与墙踢脚做法相同,柱装饰面层厚度50mm。
消耗量定额是按《建设工程工程量清单计价规范》的计算规则编制的。
问题:1.根据图8.6.Ⅰ所示内容和表8.6.Ⅰ-4“分部分项工程量清单”所列项目,依据《建设工程工程量清单计价规范》附录B的计算规则,计算经理室内装修工程量。
范围包括:A.C两个立面.柱面(Z1.Z2.Z3).地面.踢脚线.天棚。
将相应的计量单位.计算式及计算结果填入表8.6.Ⅰ-4“分部分项工程量清单”的相应栏目中。
2.根据表8.6.Ⅰ-4所列经理室内装修做法,以及(表8.6.Ⅰ-1~表8.6.Ⅰ-3)《××装饰工程消耗量定额》(节选)的消耗量.预算价格,按《建设工程工程量清单计价规范》中综合单价的内容要求。
编制表8.6.Ⅰ-5“分部分项工程量清单综合单价分析表”。
管理费按人工费的70%.利润按人工费的50%计算。
(计算结果均保留两位小数)参考答案:1.2.解答依据如下:依据《房屋建筑与装饰工程工程量计算规范》GB50584--2013L.2块料面层和N.2天棚吊顶。
块料楼地面,清单工程量按设计图示尺寸以面积计算,门洞.空圈的开口部分并入相应工程量内。
吊顶天棚,按设计图示尺寸以水平投影面积计算,不扣除间壁墙.检查口.柱垛所占面积,扣除单个>0.3m2的孔洞.独立柱与天棚相连的窗帘盒所占面积。
[问答题]2.某分包商承包了某专业分项工程,分包合同中规定:工程量为2400m3;合同工期为30天,6月11日开工,7月10日完工;逾期违约金为1000元/天。
该分包商根据企业定额规定:正常施工情况下(按计划完成每天安排的工作量),采用计日工资的日工资标准为60元/工日(折算成小时工资为7.5元/小时);延时加班,每小时按小时工资标准的120%计:夜间加班.每班按日工资标准的130%计。
工程造价案例分析模拟试题(A卷)试题一:(25分)某企业拟投资兴建一生产项目。
预计该生产项目的生命周期为12年,其中:建设期为2年,生产期为10年。
项目投资的现金流量数据如表1.1所示。
根据国家规定,全部数据均按发生在各年年末计算。
项目的折现率按照银行贷款年利率12%计算,按季计息。
表1.1 某项目全部投资现金流量表单位:万元问题:1.分别按6%、33%的税率计算运营期内每年的销售税金及附加和所得税( 生产期第一年和最后一年的年总成本为2400万元,其余各年总成本均为3600万元)。
2.计算现金流入量、现金流出量和净现金流量、累计净现金流量。
3.计算年实际利率、每年折现系数、折现净现金流量、累计折现净现金流量。
4.计算该项目的静态、动态投资回收期。
5.根据计算结果,评价该项目的可行性。
说明:仅要求对年实际利率和静态、动态投资回收期列式计算,其余均直接在表中计算。
试题二:(20分)某开发公司的造价工程师在某公寓建设过程中,对该工程的设计方案和设计概算进行了全面的分析与审查,取得了良好的经济效益和社会效益。
问题:1.表1.2为造价工程师针对设计院提出的四个设计方案,在征求各方专家意见后汇总而得到的功能评价因素、功能重要系数,各方案功能满足程度评分和各方案单方造价数据。
请根据此表将表1.3填写完整,并选出最佳设计方案。
表1.32.设计概算分为哪几类? 该公寓工程的设计概算属于哪一类概算?3.单项工程综合概算的内容与审查方法有哪些?试题三:(25分)某市政工程需砌筑一段毛石护坡,断面尺寸如图1.1所示,拟采用M5.0水泥砂浆砌筑。
根据甲乙双方商定,工程单价的确定方法是,首先现场测定每10m3砌体人工工日、材料、机械台班消耗指标,并将其乘以相应的当地价格确定。
各项测定参数如下:1.砌筑1m3毛石砌体需工时参数为:基本工作时间为12.6工时;辅助工作时间为工作延续时间的3%;准备与结束时间为工作延续时间的2%;不可避免的中断时间为工作延续时间的2%;休息时间为工作延续时间的18%;人工幅度差系数为10%。
工程造价案例分析模拟真题及答案案例分析题一拟建砖混结构教学楼建筑面积701.71m2,外墙为二砖外墙,M7.5混合砂浆砌筑,其结构形式与已建成的某工程相同,只有外墙厚度不同,其他部分均较为接近。
类似工程外墙为一砖半厚,M5.0混合砂浆砌筑,每平方米建筑面积消耗量分别为:普通粘土砖 0.535千块,砂浆0.24m3,普通粘土砖134.38元/千块,M5.0砂浆148.92元/m3,拟建工程外墙为二砖外墙,每平方米建筑面积消耗量分别为:普通粘土砖0.531千块,砂浆0.245m3,M7.5砂浆165.67元/m3。
类似工程单方造价为583元/m2,其中,人工费、材料费、机械费、间接费和其他取费占单方造价比例,分别为:18%、55%、6%、3%、18%,拟建工程与类似工程预算造价在这几方面的差异系数分别为:1.91、1.03、1.79、1.02和0.88。
问题:1.应用类似工程预算法确定拟建工程的单位工程概算造价。
2.若类似工程预算中,每平方米建筑面积主要资源消耗为:人工消耗4.8工日,水泥225kg,钢材15.8kg,木材0.05m3,铝合金门窗0.2m2,其他材料费为主材费41%,机械费占定额直接费8%,拟建工程主要资源的现行预算价格分别为:人工22.88元/工日,钢材3.2元/kg,水泥0.39元/kg,木材1700元/m3,铝合金门窗平均350 元/m2.拟建工程综合费率24%,应用概算指标法,确定拟建工程的单位工程概算造价。
解题思路:本案例主要考核利用类似工程预算法和概算指标法编制拟建工程概算的方法。
答案:问题1:(1)K=18%×1.91+55%×1.03+6%×1.79+3%×1.02+18%×0.88=1.21拟建工程概算指标=583×1.21=703.51元/m2(2)结构差异额=0.531×134.38+0.245×165.67-(0.535×134.38+0.24×148.92)=4.31元/m2(3)修正概算指标=703.51+4.31=707.82元/m2(4)拟建工程概算造价=拟建工程建筑面积×修正概算指标=701.71×707.82=496684.37元问题2:(1)计算拟建工程单位建筑面积的人工费、材料费、机械费。
2024年一级造价师之工程造价案例分析(土建+安装)全真模拟考试试卷A卷含答案大题(共10题)一、[背景材料]某拟建生产项目,建设期为2年,运营期为6年。
设计年产1000台设备,不含税售价3万元/台,增值税税率为13%,运营期第1年达产85%,以后各年均达产100%。
1.建设投资3600万元,在建设期内均衡投入,其中有180万元为可抵扣的进项税额,有600万元形成无形资产,其余形成固定资产。
固定资产使用年限为10年,残值率为5%,固定资产余值在项目运营期末一次收回。
无形资产在运营期内均匀摊入成本。
2.建设投资中每年贷款800万元,其余为自有资金,贷款利率6%,还款方式为运营期前4年等额本金偿还。
流动资金300万元为自有资金,于运营期第1年投入,在项目运营期末一次收回。
3.增值税附加按应纳增值税的6%计算,所得税税率为25%。
4.运营期第1年经营成本(不含进项税)为1800万元,以后各年经营成本(不含进项税)为2200万元,可抵扣进项税额按当年的经营成本的5%计算。
(计算结果保留2位小数)问题:1.列式计算年固定资产折旧费、无形资产摊销费。
2.列式计算运营期第1年、第2年建设投资贷款应偿还本金、利息。
3.列式计算运营期第1年、第2年的所得税。
【答案】问题1:建设期贷款利息:第1年:800/2X6%=24.00(万元)第2年:(824+800/2)X6%=73.44(万元)合计:24+73.44=97.44(万元)折旧=[(3600-180-600+97.44)X(1-5%)]÷10=277.16(万元)摊销=600÷6=100.00(万元)问题2:第1年、第2年本金=(1600+97.44)/4=1697.44/4=424.36(万元)第1年利息=1697.44X6%=101.85(万元)第2年利息=(1697.44-424.36)X6%=76.38(万元)问题3:运营期第1年应纳增值税=3X1000X85%X13%-1800X5%-180=61.50(万元)增值税附加=61.5X6%=3.69(万元)二、某工程项目由A、B、C、D四个分项工程组成,合同工期为6个月。
2023年一级造价师之工程造价案例分析(土建+安装)模考模拟试题(全优)大题(共10题)一、某工程项目业主采用《建设工程工程量清单计价规范》规定的计价方法,通过公开招标,确定了中标人。
招投标文件中有关资料如下:(1)分部分项工程量清单中含有甲、乙两个分项,工程量分别为4500m3和3200m3.清单报价中甲项综合单价为1240元/m3,乙项综合单价为985元/m3.(2)措施项目清单中环境保护、文明施工、安全施工、临时设施等四项费用以分部分项工程量清单计价合计为基数,费率为3.8%。
(3)其他项目清单中包含零星工作费一项,暂定费用为3万元。
(4)规费以分部分项工程量清单计价合计、措施项目清单计价合计和其他项目清单计价合计之和为基数,规费费率为4%。
税金率为3.41%。
建|设工程教|育网在中标通知书发出以后,招投标双方按规定及时签订了合同,有关条款如下:1.施工工期自2006年3月1日开始,工期4个月。
2.材料预付款按分部分项工程量清单计价合计的20%计,于开工前7天支付,在最后两个月平均扣回。
3.措施费(含规费和税金)在开工前7天支付50%,其余部分在各月工程款支付时平均支付。
4.零星工作费于最后一个月按实结算。
5.当某一分项工程实际工程量比清单工程量增加10%以上时,超出部分的工程量单价调价系数为0.9;当实际工程量比清单工程量减少10%以上时,全部工程量的单价调价系数为1.08.建|设工程教|育网6.质量保证金从承包商每月的工程款中按5%比例扣留。
承包商各月实际完成(经业主确认)的工程量,见表5.1.【答案】问题1:(2分)分部分项清单项目合价:4500×0.124+3200×0.0985=873.20(万元)(1分)材料预付款:873.20×20%=174.64(万元)(1分)问题2:(4分)措施项目清单合价:873.2×3.8%=33.18(万元)(2分)预付措施费:33.18×50%×(1+4%)×(1+3.41%)=17.84(万元)(2分)问题3:(5分)5月份应付工程款:(1100×0.124(0.5分)+1100×0.0985(0.5分)+33.18×50%÷4(0.5分)+1.0(0.5分)(1+4%)(0.5分)(1+3.41%)(0.5分)×(1-5%)(0.5分)-174.64÷2(0.5分)=249.90×1.04×1.0341×0.95-87.32=168.00(1分)(万元)问题4:(4分)6月份承包商完成工程的工程款:建/设工程/教育|网整理甲分项工程(4050-4500)/4500=-10%,故结算价不需要调整。
造价工程师考试《案例分析》模拟试题及答案案例分析题一某业主与某施工单位签订了施工总承包合同,该工程采用边设计边施工的方式进行,合同的部分条款如下:××工程施工合同书(节选)一、协议书(一)工程概况该工程位于某市的××路段,建筑面积3000m2,砖混结构住宅楼(其他概况略)。
(二)承包范围承包范围为该工程施工图所包括的土建工程。
(三)合同工期合同工期为2010年11月20日~2011年6月30日,合同工期总日历天数为223天。
(四)合同价款本工程采用总价合同形式,合同总价为:人民币贰佰叁拾肆万元整(¥234.00万元)。
(五)质量标准本工程质量标准要求达到承包商最优的工程质量。
(六)质量保修施工单位在该项目的设计规定的使用年限内承担全部保修责任。
(七)工程款支付在工程基本竣工时,支付全部合同价款,为确保工程如期竣工,乙方不得因甲方资金的暂时不到位而停工和拖延工期。
二、其他补充协议(一)乙方在施工前不允许将工程分包,只可以转包。
(二)甲方不负责提供施工场地的工程地质和地下主要管网线路资料。
(三)乙方应按项目经理批准的施工组织设计组织施工。
(四)涉及质量标准的变更由乙方自行解决。
(五)合同变更时,按有关程序确定变更工程价款。
问题:1.该项工程施工合同协议书中有哪些不妥之处?并请指正。
2.该项工程施工合同的补充协议中有哪些不妥之处?请指出并改正。
3.该工程按工期定额来计算,其工期为212天,那么你认为该工程的合同工期应为多少天?4.确定变更合同价款的程序是什么?参考解析1.协议书的不妥之处及正确做法具体如下:(1)不妥之处:承包范围为该工程施工图所包括的土建工程。
正确做法:承包范围为施工图所包括的土建、装饰、水暖电等全部工程。
(2)不妥之处:本工程采用总价合同形式。
正确做法:应采用单价合同。
(3)不妥之处:工程质量标准要求达到承包商最优的工程质量。
正确做法:应以《建筑工程施工质量验收统一标准》中规定的质量标准作为该工程的质量标准。
2024年一级造价师之工程造价案例分析(土建+安装)模考模拟试题(全优)大题(共12题)一、某分包商承包了某专业分项工程,分包合同中规定:工程量为2400m3;合同工期为30天,6月11日开工,7月10日完工;逾期违约金为1000元/天。
该分包商根据企业定额规定:正常施工情况下(按计划完成每天安排的工作量),采用计日工资的日工资标准为60元/工日(折算成小时工资为7.5元/小时);延时加班,每小时按小时工资标准的120%计:夜间加班.每班按日工资标准的130%计。
该分包商原计划每天安排20人(按8小时计算)施工,由于施工机械调配出现问题,致使该专业分项工程推迟到6月18日才开工。
为了保证按合同工期完工,分包商可采取延时加班(每天延长工作时间,不超过4小时)或夜间加班(每班按8小时计算)两种方式赶工。
延时加班和夜间加班的人数与正常作业的人数相同。
问题:1.若该分包商不采取赶工措施,根据该分项工程是否为关键工作,试分析该分项工程的工期延误对该工程总工期的影响。
2.若采取每天延长工作时间方式赶工,延时加班时间内平均降效10%,每天需增加多少工作时间(按小时计算,计算结果保留两位小数)每天需额外增加多少费用3.若采取夜间加班方式赶工,加班期内白天施工平均降效5%,夜间施工平均降效15%。
需加班多少天(计算结果四舍五人取整)4.若夜间施工每天增加其他费用100元,每天需额外增加多少费用5.从经济角度考虑,该分包商是否应该采取赶工措施说明理由。
假设分包商需赶工,应采取哪一种赶工方式【答案】问题1:若该分包商不采取赶工措施,该分项工程的工期延误对该工程总工期的影响有以下三种情况:(1)若该分项工程在总进度计划的关键线路上,则该工程的总工期需要相应延长7天。
(2)若该分项工程在总进度计划的非关键线路上且其总时差大于或等于7天,则该工程的总工期不受影响。
(3)若该分项工程在总进度计划的非关键线路上,但其总时差小于7天,则该工程的总工期会受影响;延长的天数为7天与该分项工程总时差天数之差。
二、案例分析:第一题、某工程采用公开招标方式,招标入3月1日在指定媒体上发布了招标公告,3月6日至3月12日发售了招标文件,共有A、B、C、D四家投标人购买了招标文件。
在招标文件规定的投标截止日(4月5日)前,四家投标入都递交了投标文件。
开标时投标人D因其投标文件的签署入没有法定代表入的授权委托书而被招标管理机构宣布为无效投标。
该工程评标委员会于4月15日经评标确定投标入A为中标入,并于4月26 日向中标入和其他投标人分别发出中标通知书和中标结果通知,同时通知了招标入。
发包入与承包入A于5月10 日签订了工程承包合同.合同约定的不含税合同价为6948万元,工期为300天;合同价中的间接费以直接费为计算基数,间接费率为12%,利润率为5%。
在施工过程中,该工程的关键线路上发生了以下几种原因引起的工期延误:(1)由于发包入原因,设计变更后新增一项工程于7月28日至8月7日施工(新增工程款为160万元);另一分项工程的图纸延误导致承包入于8月27日至9月12日停工。
(2)由于承包入原因,原计划于8月5日晨到场的施工机械直到8月26日晨才到场。
(3)由于天气原因.连续多日高温造成供电紧张。
该工程所在地区于8月3日至8月5日停电,另外,该地区于8月24日晨至8月28日晚下了特大暴雨。
在发生上述工期延误事件后,承包入A按合同规定的程序向发包入提出了索赔要求,经双方协商一致。
除特大暴雨造成的工期延误之外,对其他应予补偿的工期延误事件.既补偿直接费又补偿间接费,间接费补偿按合同工期每天平均分摊的间接费计算。
问题:1.指出该工程在招标过程中的不妥之处,并说明理由。
2.谈工程的实际工期延误为多少天?应予批准的工期延长时间为多少天?分别说明每个工期延误事件应批准的延长时间及其原因。
3.图纸延误应予补偿的间接费为多少?4.该工程所在地市政府规定.高温期间施工企业每日工作时间减少1小时,企业必须给职工每入每天10元高温津贴。
2023年-2024年一级造价师之工程造价案例分析(土建+安装)模考模拟试题(全优)大题(共12题)一、某新建建设项目的基础数据如下:1.项目建设期2年,运营期8年,建设投资4000万元,除300万形成无形资产外,其余全部形成固定资产。
2.项目建设投资来源为自有资金和贷款,贷款总额为2000万元,贷款年利率7.2%(按月计息),贷款在运营期前5年等额本息偿还。
自有资金和贷款在建设期内均衡投入。
3.项目固定资产使用年限10年,残值率5%,直线法折旧。
4.无形资产在运营期均匀摊销。
5.项目生产经营所必需的流动资金250万元由项目自有资金在运营期第2年投入。
6.项目运营期达生产年份不含税销售收入为900万元,适用的增值税税率为16%。
增值税附加按增值税的10%计取。
项目达产年份的经营成本为260万元(含进项税60万元)。
所得税率为25%。
7.运营期第1年达到设计产能的80%,该年的营业收入、经营成本均为正常年份的80%,以后各年均达到设计产能。
8.在建设期贷款偿还完成之前,不计提盈余公积金,不分配投资者股利。
9.假定建设投资中无可抵扣固定资产进项税额,上述其他各项费用及收入均为不含增值税价格。
(不考虑公积金、公益金的提取及投资者股利分配)问题:1.列式计算项目建设期贷款利息和固定资产投资额。
2.列式计算年折旧费、摊销费、固定资产余值、项目运营期第1年的总成本费用(不含增值税)。
【答案】问题1年实际利率=(1+7.2%/12)12?1=7.44%建设期第1年贷款利息=1000/2×7.44%=37.20(万元)建设期第2年贷款利息=(1000+37.2+1000/2)×7.44%=114.37(万元)建设期贷款利息=37.20+114.37=151.57(万元)固定资产总投资=4000+151.57=4151.57(万元)问题2年折旧费=(4000-300+151.57)×(1-5%)/10=337.10(万元)年摊销费=300/8=37.50(万元)固定资产余值=(4000-300+151.57)×5%+(10-8)×337.10=916.78(万元)运营期第1年的利息支付=(2000+151.57)×7.44%=160.08(万元)总成本费用=(260-60)×80%+337.10+37.50+160.08=694.68(万元)问题3运营期第1年的利润总额=900×80%-694.68-(900×16%-60)×80%×10%=18.60(万元)二、某工程采用工程量清单招标方式确定了中标人,业主和中标人签订了单价合同。
2023年一级造价师之工程造价案例分析(土建+安装)模考模拟试题(全优)大题(共3题)一、【背景资料】某生产建设项目有关基础数据如下:(1)类似项目的设备购置费为3100万元,类似项目的建筑工程费、安装工程费占设备购置费的比例分别为35%、30%,由于时间、地点因素引起的拟建项目上述两项费用变化的综合调整系数为1.08,拟建项目按当地现行价格计算设备购置费为3500万元,拟建项目的工程建设其他费和预备费用按900万元估算。
(2)项目建设期1年,运营期6年。
项目投产第一年可获得当地政府扶持该产品生产的补贴收入500万元。
(3)若该项目的建设投资为6000万元,预计全部形成固定资产(包括可抵扣固定资产进项税额100万),固定资产使用年限10年,按直线法折旧,期末残值率4%,固定资产余值在项目运营期末收回。
投产当年需要投入运营期流动资金300万元;(4)正常年份年营业收入为3000万元(其中销项税额为600万),经营成本为2000万元(其中进项税额为500万);增值税附加按应纳增值税的9%计算,所得税税率为25%;(5)投产第一年仅达到设计生产能力的80%,预计这一年的营业收入、经营成本和总成本均达到正常年份的80%;以后各年均达到设计生产能力;【问题】1.列式计算拟建项目的建设投资。
2.若该项目的建设投资为6000万元,列式计算融资前计算期第3年的净现金流量。
3.若该项目的初步融资方案为:贷款500万元用于建设投资,贷款年利率为8%(按年计息),还款方式为运营期前4年等额还本付息,剩余建设投资及流动资金来源于项目资本金,计算第3年的净现金流量。
(计算结果均保留两位小数)【答案】问题1:建筑、安装工程费用为:3100×(35%+30%)×1.08=2176.20(万元)项目建设投资为:3500+2176.20+900=6576.20(万元)问题2:(1)年固定资产折旧费=(6000-100)×(1-4%)÷10=566.40(万元)(2)第2年的增值税=600×0.8-500×0.8-100=-20(万元)<0,故第2年应纳增值税额为0;增值税附加为0;第3年的增值税=600-500-20=80(万元)第3年的增值税附加=80×9%=7.2(万元)(3)第2年调整所得税=【[(3000-600)×80%+500]-[(2000-500)×80%+566.40]】×25%=163.40(万元)第3年调整所得税=【(3000-600)-[(2000-500)+566.40+7.2]】×25%=81.60(万元)(4)第3年净现金流量=3000-(2000+80+7.2+81.60)=831.20万元问题3:(1)项目建设期贷款利息二、某项目法人(以下称甲方)与某施工企业(以下称乙方)依据《建设工程工程量清单计价规范》和《标准施工招标文件》于2009年4月10日签订了合同协议书,合同条款部分内容如下:1.合同协议书中的部分条款(1)工程概况:工程名称:商品住宅楼;工程地点:市区;工程内容:五栋砖混结构住宅楼,每栋建筑面积为3150平方米。
2022-2023年一级造价师之工程造价案例分析(土建+安装)模考模拟试题(全优)大题(共10题)一、某国有企业的工程项目,建设单位通过招标选择了一具有相应资质的造价事务所承担施工招标代理和施工阶段造价控制工作,并在中标通知书发出后第45天,与该事务所签订了委托合同。
之后双方又另行签订了一份酬金比中标价降低10%的协议。
在施工公开招标中,业主代表为了更好控制招标结果,提出招标控制价要有浮动,以便更好的选择有实力的投标人。
综合各种因素,最后招标人公布了招标控制价为1500万。
有A、B、C、D、E、F、G、H、J、K、M、N等多家施工单位报名投标,经事务所资格预审均符合要求,但建设单位以A施工单位是外地企业为由不同意其参加投标,而事务所坚持认为A施工单位有资格参加投标。
评标委员会由5人组成,其中当地建设行政管理部门的招投标管理办公室主任1人、建设单位代表1人、政府相关部门提供的专家库中抽取的技术经济专家3人。
开标后评标前,J单位提出为了不引起误解,要提交一个补充文件,说明在正副本投标文件上有个别文字描述在编辑时有丢落非关键的词语的地方,并保证不会影响实质性内容。
业主代表表示可以递交,是否有效,待评标委员会审定后通知。
评标时发现,B施工单位投标报价明显低于其他投标单位报价且未能合理说明理由;D施工单位投标报价大写金额小于小写金额;F施工单位投标文件提供的检验标准和方法不符合招标文件的要求;H施工单位投标文件中某分项工程的报价有个别漏项;E单位的投标报价为1600万元。
其他施工单位的投标文件均符合招标文件要求。
评标中,评标专家还发现K单位在非关键问题的描述中模糊不清,向K单位提出要求澄清,K 单位认为已经描述清楚,不需要说明,故未答复。
建设单位最终确定G施工单位中标,并按照《建设工程施工合同(示范文本)》与该施工单位签订了施工合同。
【问题】1.指出建设单位在造价事务所招标和委托合同签订及确定投标控制价过程中的不妥之处,并说明理由。
2023年一级造价师之工程造价案例分析(土建+安装)模拟考试试卷B卷含答案大题(共5题)一、某工业项目计算期为l0年,建设期2年,第3年投产,第4年开始达到设计生产能力。
建设投资2800万元(不含建设期贷款利息),第l年投入1000万元,第2年投入1800万元。
投资方自有资金2500万元,根据筹资情况建设期分两年各投入l000万元,余下的500万元在投产年初作为流动资金投入。
建设投资不足部分向银行贷款,贷款年利率为6%,从第3年起,以年初的本息和为基准开始还贷,每年付清利息,并分5年等额还本。
该项目固定资产投资总额中,预计85%形成固定资产,15%形成无形资产。
固定资产综合折旧年限为10年,采用直线法折旧,固定资产残值率为5%,无形资产按5年平均摊销。
该项目计算期第3年的经营成本为1500万元、第4年至第10年的经营成本为1800万元。
设计生产能力为50万件,销售价格(不含税)54元/件。
产品固定成本占年总成本的40%。
问题 1.列式计算固定资产年折旧额及无形资产摊销费,并按答题纸表l.1所列项目填写相应数字。
2.列式计算计算期末固定资产余值。
3.列式计算计算期第3年、第4年、第8年的总成本费用。
4.以计算期第4年的数据为依据,列式计算年产量盈亏平衡点,并据此进行盈亏平衡分析。
(除问题4计算结果保留两位小数外,其余各题计算结果均保留三位小数。
)【答案】问题1固定资产年折旧额=[(2800+24)×85%×(1-5%)]÷10=228.038(万元)无形资产摊销费=(2800+24)×15%÷5=84.720(万元)表1.1项目建设投资还本付息及固定资产折旧、摊销费用表问题2计算期末的固定资产余值为:(2800+24)×85%一228.038×(10-2)=576.096(万元)或:228.038×(10一8)+2824×85%×5%=576.096(万元)问题3第3年总成本费用:1500+228.038+84.720+49.440=1862.198万元第4年总成本费用:1800+228.038+84.720+39.552=2152.310(万元)第8年总成本费用:1800+228.038=2028.038(万元)问题4年产量盈亏平衡点:二、【背景资料】某新建建设项目的基础数据如下:(1)建设期2年,运营期10年,建设投资3600万元,预计全部形成固定资产。
2023年一级造价师之工程造价案例分析(土建+安装)全真模拟考试试卷B卷含答案大题(共5题)一、某大型工程项目由政府投资建设,业主委托某招标代理公司代理施工招标。
招标代理公司确定该项目采用公开招标方式招标,招标公告在当地政府规定的招标信息网上发布。
招标文件中规定:投标担保可采用投标保证金或投标保函方式投保。
评标方法采用经评审的最低投标价法。
投标有效期为60天。
业主对招标代理公司提出以下要求:为了避免潜在的投标人过多,项目招标公告只在本市日报上发布,且采用邀请招标方式招标。
项目施工招标信息发布以后,共有12家潜在的投标人报名参加投标。
业主认为报名参加投标的人数太多.为减少评标工作量,要求招标代理公司仅对报名的潜在投标人的资质条件、业绩进行资格审查。
开标后发现:①A投标人的投标报价为8000万元,为最低投标价。
经评审后推荐其为中标候选人。
②B投标人在开标后又提交了一份补充说明,提出可以降价5%。
③C投标人提交的银行投标保函有效期为70天。
④D投标人投标文件的投标函盖有企业及企业法定代表人的印章,但没有加盖项目负责人的印章。
⑤E投标人与其他投标人组成了联合体投标,附有各方资质证书,但没有联合体共同投标协议书。
⑥F投标人投标报价最高,故F投标人在开标后第二天撤回了其投标文件。
经过标书评审,A投标人被确定为中标候选人。
发出中标通知书后,招标人和A 投标人进行合同谈判,希望A投标人能再压缩工期、降低费用。
经谈判后双方达成一致:不压缩工期,降价3%。
问题:1.业主对招标代理公司提出的要求是否正确说明理由。
2.分析A、B、C、D、E投标人的投标文件是否有效说明理由。
3.F投标人的投标文件是否有效对其撤回投标文件的行为应如何处理4.该项目施工合同应该如何签订合同价格应是多少【答案】问题1:(1)“业主提出招标公告只在本市日报上发布”不正确。
理由:公开招标项目的招标公告。
必须在指定媒介发布,任何单位和个人不得非法限制招标公告的发布地点和发布范围。
2023年-2024年一级造价师之工程造价案例分析(土建+安装)模考模拟试题(全优)大题(共10题)一、某企业拟新建一化工产品生产项目,其中设备从某国进口,重量700吨,装运港船上交货价为420万美元,国际运费标准为550美元/吨,国际运输保险费率为3‰,银行财务费率为5‰,外贸手续费率为1.5%,关税税率为22%,进口环节增值税的税率为17%,银行外汇牌价为1美元=6.7元人民币,该设备国内运杂费率为3.5%。
项目的建筑工程费用为2500万元,安装工程费用为1700万元,工程建设其他费用为工程费用的20%,基本预备费费率为工程费用和工程建设其他费用之和的5%,建设期价差预备费为静态投资的3%。
项目建设期1年,运营期6年,项目建设投资全部为自有资金投入,预计全部形成固定资产,其中包含13%可抵扣的固定资产进项税额。
固定资产可使用年限为8年,按直线法折旧,残值率为4%,固定资产余值在项目运营期末收回。
运营期第1年投入流动资金1350万元,全部为自有资金,流动资金在计算期末全部收回。
项目运营期第1年即达到设计生产能力,在运营期间,每年的含税营业收入为7500万元,其中销项税额为900万元,经营成本为2800万元,其中进项税额170万元,增值税附加税率按应纳增值税的12%计算,所得税率为25%,行业基准投资回收期为5年,企业投资者可接受的最低税后收益率为10%。
问题:1.列式计算该项目的设备购置费。
2.列式计算该项目的建设投资。
3.列式计算该项目的固定资产原值、年折旧费和余值。
4.列式计算项目运营期各年的调整所得税。
【答案】问题1:解:进口设备货价(FOB)=420×6.7=2814.00(万元)国际运费=550×700×6.7/10000=257.95(万元)国外运输保险费=(2814+257.95)×3‰/(1-3‰)=9.24(万元)到岸价(CIF)=2814.00+257.95+9.24=3081.19(万元)银行财务费=2814.00×5‰=14.07(万元)外贸手续费=3081.19×1.5%=46.22(万元)关税=3081.19×22%=677.86(万元)进口环节增值税=(3018.19+677.86)×17%=628.33(万元)进口从属费=14.07+46.22+677.86+628.33=1366.48(万元)进口设备原价(抵岸价)=3081.19+1366.48=4447.67(万元)国内运杂费=4447.67×3.5%=155.67(万元)设备购置费=4447.67+155.67=4603.34(万元)二、某企业投资建设一个工业项目,该项目可行性研究报告中的相关资料和基础数据如下:1.项目工程费用为2000万元,工程建设其他费用为500万元(其中无形资产费用为200万元),基本预备费费率为8%,预计未来3年的年均投资价格上涨率为5%。
造价案例分析模拟试题一、案例背景某公司计划在某城市新建一座办公楼,经过初步论证,决定采用钢结构,总建筑面积为5000平方米。
为了确保工程质量以及控制项目成本,公司决定进行造价案例分析模拟试题,以便更好地评估工程造价和预算。
二、工程量清单1. 土建工程- 基坑开挖:1000平方米- 地基基础:800平方米- 钢筋混凝土结构:3000平方米- 外墙装饰:1500平方米2. 钢结构工程- 钢梁:5000米- 钢柱:1000根- 钢板:1500平方米3. 安装工程- 电气安装:500平方米- 给排水工程:300平方米- 暖通空调:800平方米4. 设备设施- 电梯:2部- 空调主机:10台- 照明设备:500平方米三、造价分析根据以上工程量清单,结合市场行情和物价指数,逐项计算各项工程的造价,综合考虑各种因素,最终得出该办公楼的预算总造价。
四、成本控制针对不同工程量的高低和市场波动,公司需要合理控制项目成本,包括材料成本、人工成本、设备成本等,以确保项目的顺利进行和良好的效益。
五、工程质量与管理在造价分析的基础上,公司需要加强对工程质量的管理,确保工程施工符合标准规范,提高工程的整体质量水平,从而增强公司的竞争力和形象。
六、总结通过本次造价案例分析模拟试题,公司可以更好地了解工程造价和预算的相关知识,为今后的项目决策提供参考和支持,帮助公司实现长远发展目标。
以上为本次造价案例分析模拟试题的详细内容,希望能够帮助公司更好地掌握造价分析和项目管理的要点,有效提升工程管理水平和实践能力。
愿公司在未来的项目中取得更大的成功和发展!。
押题宝典一级造价师之工程造价案例分析(土建+安装)模考模拟试题(全优)大题(共10题)一、某建设项目采用全过程总承包EPC模式进行公开招标工作,工程建设工期定为1年,标底300万元。
通过资格审查并参加投标的有甲、乙、丙、丁、戊五家施工单位。
开标后,发现所有投标人的报价比标底高出100万,为了避免招标失败,甲方要求招标代理机构重新核查和制定新的标底,代理机构核查后发现标底漏项,修正了错误,重新确定了新的标底。
甲、乙、丙三家投标人认为新的标底不合理,要求撤回投标文件。
由于这些原因。
在招标文件规定的投标有效期内没有定标。
为了早日开工,甲方更改了招标文件中关于工期和结算的条件,指定了一家施工单位为中标人。
问题:1.指出上述招标过程中的不恰当的地方。
2.甲、乙、丙三家投标人撤回投标文件是否正确并说明原因。
3.如果招标失败。
甲方能否重新招标说明原因。
【答案】问题1:招标过程的不当之处:(1)开标后,重新确定标底。
(2)投标有效期内,未完成定标工作。
(3)更改招标文件中的关键条款。
(4)直接指定施工单位。
问题2:甲、乙、丙三家投标人撤回投标文件是不正确的,在投标有效期内不得撤回投标文件。
问题3:可以重新招标。
有下列情形之一的,招标人将重新招标:(1)投标截止时间止,投标人少于3个的:(2)经评标委员会评审后否决所有投标人。
二、【背景资料】某市为迎接一大型体育赛事拟建一国内一流体育场馆,在招投标过程中,发生了如下事件:事件1.体育局作为建设单位通过公开招标确定一家招标代理公司。
由于招标工作时间紧迫,双方在中标通知书发出后第2天就签订了委托合同。
之后双方对代理费用进行了协商,最后签订了一份酬金比中标价降低10万元的补充协议。
事件2.该项目施工招标采用资格预审,3月1日开始发售资格预审文件,要求3月5日提交资格预审申请文件。
有16家施工单位报名投标,经招标代理公司资格预审均符合要求。
事件3.开标之后,由于投标单位数量较多,业主代表为了更好控制投资,决定将招标控制价由8000万元降为7500万元;同时为了保障工程质量,规定最低报价不得低于6500万元。
工程造价案例分析100套模拟试题
1、某单位拟建一建筑面积为6000m2 的多层住宅楼工程,编制土建工程概算时,参照2000 年建造的某建筑面积5200m2 的类似工程预算资
料见表:
表某类似工程预算表
2、承包商拟对两个工程项目进行投标(总工期均为10 年),限于自身能力,承包商只能对其中一个项目进行施工,在制定招标策略时,收集到下列信息资料:
(1)第一个工程项目(A)需对10 年期进行整体投标,第一年年初需投入费用800 万元,该项目的中标概率为,中标后施工顺利的概率
为,不顺利的概率为,顺利时年净现金流量为250 万元,不顺利时为-20 万元。
(2)第二个工程项目(B)需对前3 年和后7 年分两个阶段投标,第二阶段投标是在第一阶段开工后一段时间再进行。
据估计第一阶段中标概率为,不中标概率为。
第一阶段中标后施工顺利的概率为,不顺利的概率为,顺利时,年净现金流量为250 万元,不顺利
时为-20 万元。
其中标(第一阶段)后施工顺利则参加第二阶段投标,(中标概率为,第二阶段施工顺利概率为,不顺利概率为,
顺利情况下年净现金流量为265 万元,不顺利情况下为20 万元。
(3)第二个工程第一阶段初始需投入费用350 万元,第二阶段初始需投入费用450 万元。
(4)两种投标不中标应付出费用5 万元。
(5)基准折现率为i=10%,不考虑建设所接待时间。
3、(1)某项目建设期为2 年,生产期为8 年。
项目建设投资(含工程费、其他费用、预备费用)3100 万元,预计全部形成固定资产。
固定资产折旧年限为8 年,按平均年限法计算折旧,残值率为5%。
在生产期末回收固定资产残值。
(2)建设期第1 年投入建设资金的60%,第2 年投入40%,其中每年投资的50%为自有资金,50%由银行贷款,贷款年利率为7%,建设期只计息不还款。
生产期第1 年投入流动资金300 万元,全部为自有资金。
流动资金在计算期末全部回收。
(3)建设单位与银行约定:从生产期开始的6 年间,按照每年等额本金偿还法进行偿还,同时偿还当年发生的利息。
(4)预计生产期各年的经营成本均为2600 万元,销售收入在计算期第3 年为3800 万元,第4 年为4320 万元,第5 至第10 年每年均为5400 万元。
假定销售税金及附加的税率为6%,所得税率为33%,行业基准投资回收期( )为8 年。
问题:
1.计算期第3 年初的累计借款是多少(要求列出计算式)
2.编制项目还本付息表(将计算结果填入表中)。
3.计算固定资产残值及各年固定资产折旧额(要求列出计算式)。
4.编制自有资金流量表(将现金流量有关数据填入表中)。
5.计算静态投资回收期(要求列出计算式),并评价本项目是否可行
(注:计算结果保留2 位小数。
)
4、某公司拟投资化工项目,该化工厂预计计算期为10 年,建设期3 年,投产当年为设计能力的90%,基础数据如下:
(1)主要生产项目5200 万元,其中:建设工程费占55%,设备购置费占30%,安装工程费占15%。
(2)配套项目5530 万元,其中:建设工程费占50%,设备购置费占34%,安装工程费占16%。
(3)工程建设其他费用210 万元,基本预备费率为15%,建设期内涨价预备费率为6%,固定资产调节税率为5%。
(4)项目建设资金来源为自有资金和贷款,建设期内贷款总额为5000 万元,贷款年利率为6%(按月计息),还款方式为在运营期前5 年内
等额还本,利息照付方式,贷款在建设期第一年投入30%,第二年投入50%,第三年投入20%,各年投入资金在年内均匀使用。
(5)预计项目建设期投资全部形成固定资产,使用期限10 年,残值率3%,按直线法计提折旧。
(6)项目投产后定员1200 人,每人每年工资和福利6000 元,每年的其他费用530 万元(其中其他制造费用400 万元)。
每年经营成本为8300
万元。
各项流动资金的最低周转天数分别为:应收账款30 天,现金40 天,应付账款30 天,存货40 天。
所需流动资金全部以贷款方式筹集,拟在运营期第一年贷入60%,第二年贷入40%,流动资金贷款利率为3%(按年计息),还款方式为运营期内每年末只还所欠利息,项目期末偿还本金。
问题:
1.完成项目固定资产投资估算表,并计算出各项投资比例(表。
表建设项目固定资产投资估算表(单位:万元)
答案
1、类似工程人工费34306×22=754732 元
类似工程材料费×3100+×620+×400+×58+×60+×180+324×140+×160+155300= 元类似工程机械费71600 元
工程直接费754732++71600= 元
类似措施费×18%= 元
类似直接费+= 元
类似间接费×16%= 元
所以,类似工程的成本+=3887183 元
类似工程成本造价3887183/5200= 元/m2
类似工程各项费用占成本造价的百分比:
人工费占成本造价的百分比:754732/3887183=%
材料费占成本造价的百分比:/3887183=%
机械费占成本造价的百分比:71600/3887183=%
措施费占成本造价的百分比:/3887183=%
间接费占成本造价的百分比:/3887183=%
拟建工程与类似工程在各项费用上的差异系数:
人工费差异系数25/22=
材料费差异系数(3400×+710×+420×+63×+70×+500×+200×324+180×+155300×/= 机械费差异系数71600×/71600=
措施费差异系数21%/18%=
间接费差异系数17%/16%=
综合调价系数K=%×+%×+%×+%×+%×=
则拟建工程平方米成本造价×+42×(1+17%)=元
拟建工程总造价=×(1+10%)×(1+%)×6000=万元
注意:主观题答案仅供参考.
2、
注意:主观题答案仅供参考.
3、1.第1 年应计利息=(0+3100×60%×50%/2)×7%=万元第2 年应计利息=[(3100×60%×50%++3100×40%×50%/2]×7%=万元
建设期贷款利息=+= 万元
故,第3 年初的累计借款=3100×50%+= 万元
2.根据有关数据可填写项目还本付息表,如表所示。
第3 年总成本费用=2600++= 万元
第4 年总成本费用=2600++=万元第5 年总成本费用=2600++= 万元
第6 年总成本费用=2600++=万元
第7 年总成本费用=2600++= 万元
第8 年总成本费用=2600++= 万元
第9、10 年总成本费用=2600+= 万元
第3 年所得税=(3800--228)×33%= 万元
第4 年所得税=(4320--×33%= 万元
第5 年所得税=(5400--324)×33%= 万元
第6 年所得税=(5400--324)×33%= 万元
第7 年所得税=(5400——324)×33%= 万元
第8 年所得税=(5400--324)×33%= 万元
第9、10 年所得税=(5400--324)×33%=万元
5.静态投资回收期=5-1+||/ = 年
项目的静态投资回收期P t 为年,小于行业基准投资回收期P c=8 年,说明该项目是可行的。
注:主观题答案仅供参考
4、。