- 1、下载文档前请自行甄别文档内容的完整性,平台不提供额外的编辑、内容补充、找答案等附加服务。
- 2、"仅部分预览"的文档,不可在线预览部分如存在完整性等问题,可反馈申请退款(可完整预览的文档不适用该条件!)。
- 3、如文档侵犯您的权益,请联系客服反馈,我们会尽快为您处理(人工客服工作时间:9:00-18:30)。
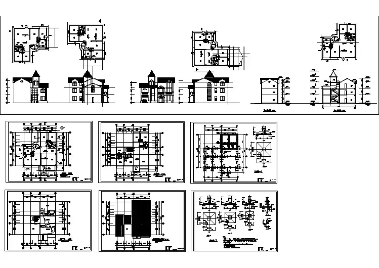
专业负责人工程负责人审 定比 例 日 期描 图设 计校 对审 核设计阶段档 案 号工程编号图 号暖 通建 筑结 构电 气给 排 水1180039004000390042001800102004200%%p0.000-0.050厨房餐厅客房客厅客房-0.0501000240060015002000250一层平面卧房二层平面118003900400039003300330090012004200180042001020060010006001020042001800420011800390040003900卧房卧房卧房卧房1020042001800420011800390040003900柱1梁1,2,312001200平开门8003900400039001180042001800420010200AA厕所顶板布置A-A剖3300ADDA800M2M2M2M3250300名称规格备注M1M2M3C1C2C3C41200*2000900*2000700*20001800*1800600*15001300*1800600+1200+600*1800防盗门木门塑钢门厕所走廊飘窗说明:\P1、客厅的上楼旋转梯为半圆形钢木结构,其制作节点可参考有关图集。\P2、一楼外走廊为120砖墙带压顶。M2M2M2M2M2M2M2M2C4C4C4说明:\P1、平开门尺寸:1500*200为两扇对开门。\P2、二层的阳台栏杆为铁艺,由住户自己定样式。1~3层柱、梁布置图300500挖孔桩断面∅2938,58∅2938,58800%%c\fsimplex.shx,HZTXT.SHX%%c\fsimplex.shx,HZTXT.SHX1807,293154,15柱断面梁2、3断面(2、3层)梁1断面(底层地梁)1807,293003154,155001615,032493,441297,791778,451297,792501778,453001615,033002493,444004*%%c202*%%c182*%%c122*%%c122*%%c18%%c6@200%%c6@200980,1812006001000240015002000300120060010003300330090012006008003300800300500800300500300400250300980,18980,181000%%c20的预埋插筋和柱筋绑扎L=800此段孔桩箍筋加密@150挖孔桩和柱搭接布置挖孔桩挖孔桩梁1梁1柱柱1624,2柱头及柱根800内箍筋加密@1001458,11705,041458,11681,52700,89700,89700,898008002001681,528001705,04800梁端头和柱连接处800内箍筋加密@100现浇楼板布筋图440,38594,2517,49540,81440,38594,2517,49540,81440,38700594,21000517,491000540,8110001000437,141079,08676,14676,14985,58491,35676,14500985,581000491,35500380,46380,46422,67495,997007001000100050010001000380,465001079,0810001000437,14700422,67500495,99500679,81500700679,811000%%c12@200%%c6@300旋转梯预留孔洞2100*1400%%c145003.3米0.00说明:二层厕所底板应做整体现浇,并做防水,然后填炉渣和地面。其上下水应留保护穿管。2400536,95800600800300600300536,95100板、梁现浇布筋断面300473,0498,624005937,35001001,79270018851602,134500,854000400,34现浇坡屋顶结构图一473,04473,04473,045001602,13967,83603,9屋面分布筋%%c12@3002%%c122%%c181602,1316001001,791000%%c12@2004500,854500400,344005937,3594098,6210028008038,672771,621104,921104,92594,15598,15400,964001104,921105598,155958038,6780402771,622770400,96400110,32110,32100594,152%%c182%%c18屋面分布筋%%c12@3002%%c122%%c122%%c122%%c18%%c12@200现浇坡屋顶结构图二砖砌栏杆二楼铁艺栏杆正立面侧立面A2*%%c182*%%c12%%c12@200预埋钢板8*50*50@500%%c12@200阳台板布筋图4727,073373,334684,264684,2612003373,331000752,57752,57100说明:\P1、阳台板为悬挑板,其筋应布在上面。,混凝土保护层厚25mm.阳台板横筋形状图1199,41834,881199,41350834,88250%%c12@200C轴梁B轴梁1952,161952,161800440,96440,966005004001004004005951105277080402800柱、梁布筋图