12x11 三层半农村自建房布置图平面图户型图外观图
- 格式:pdf
- 大小:17.81 MB
- 文档页数:10
农村⾃建⼆三半层欧式⼩洋房带架空层别墅设计图图纸属性层数:三层结构形式:砖混结构开间:10.16m进深:13m占地⾯积:主体占地133.6㎡建筑⾯积:349.43m2主体造价:28万~35万图纸内容建筑图建筑设计说明,材料表,架空层平⾯图,⼀层平⾯图,⼆层平⾯图,三层平⾯图,屋顶平⾯图,1-5轴⽴⾯图,1-5轴⽴⾯图,A0-J轴⽴⾯图,J-A0轴⽴⾯图,卫⽣间⼤样图,楼梯⼤样1,楼梯⼤样2,节点⼤样图,门窗表,檐廊平⾯图,檐廊⽴⾯、剖⾯图,檐廊侧⽴⾯图结构图结构设计说明1,结构设计说明2,基础施⼯图1,基础施⼯图2,底框柱平⾯布置图及配筋详图,底框板平⾯布置图及配筋图,底框梁配筋图,⼀层墙平⾯布置图,⼆层墙平⾯布置及板配筋图,三层墙平⾯布置及板配筋图,闷顶层平⾯布置及板配筋图,⼆层梁配筋图,⼆层梁配筋图,闷顶层梁配筋图,楼梯详图给排⽔图给排⽔设计说明,架空层给排⽔平⾯图,⼀层给排⽔平⾯图,⼆层给排⽔平⾯图,三层给排⽔平⾯图,屋顶排⽔平⾯图,卫⽣间⼤样图1,卫⽣间⼤样图2,给排⽔系统图电⽓图电⽓设计说明,开关箱系统图1,开关箱系统图2,架空层照明平⾯图,⼀层照明平⾯图,⼆层照明平⾯图,三层照明平⾯图,架空层插座平⾯图,⼀层插座平⾯图,⼆层插座平⾯图,三层插座平⾯图,⼀层弱电平⾯图,⼆层弱电平⾯图,三层弱电平⾯图,屋顶防雷平⾯图设计功能架空层车库或商业⼀层门廊,客厅,餐厅,厨房,两个卧室,杂物间,两个卫⽣间,露台⼆层三个卧室,客厅,两个卫⽣间,阳台三层两个卧室,书房,⾐帽间,两个卫⽣间,两个露台特别提⽰:地基承载⼒暂定为150~180kPa,因每个地⽅的地质情况不同,在施⼯前务必请当地有经验的专业⼈⼠进⾏验证,如⽆经验须进⾏现场地质勘察,以确保结构安全,如有疑问,务必提前咨询。
另外尺⼨和平⾯布局是图纸的基础,只要有⼀个地⽅要改动,其他专业的图纸都要修改,⼯作量很⼤,所以成品图纸不提供免费修改,修改的费⽤咨询客服另计。
美丽旳三层别墅全套施工图及效果图
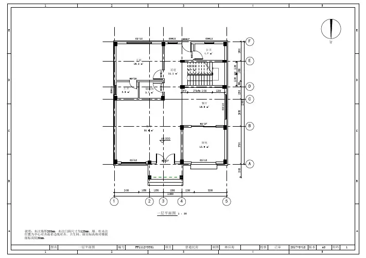
图纸属性
编号:DC0187 层数:三层构造形式:框架构造主体造价:28-33万
开间:12米进深:12.7米占地面积:122.3平方米建筑面积:332.6平方米
图纸内容
建筑图:建筑设计阐明、工程做法表、一层平面图、二层平面图、三层平面图、屋顶平面图、正立面图、背立面图、左立面图、右立面图、1-1剖面图、楼梯大样图、门窗表、大样详图
结构图:构造设计阐明、基本平面布置图、基本大样图、一层柱平面图、二层柱平面图、三层柱平面图、一层梁构造平面图、二层梁构造平面图、三层梁构造平面图、屋面梁构造平面图、二层板构造平面图、三层板构造平面图、屋面板构造平面图、楼梯大样图、节点大样图、老虎窗大样图
给排水图:给排水设计阐明、一层给排水平面图、二层给排水平面图、三层给排水平面图、屋顶给排水平面图、给排水系统图、厨卫给排水详图
电气图:电气设计阐明、设备材料表、一层照明平面图、二层照明平面图、三层照明平面图、一层插座平面图、二层插座平面图、三层插座平面图、一层弱电平面图、二层弱电平面图、三层弱电平面图、配电系统图、弱电系统图、配电干线系统图、屋顶防雷平面图、接地平面图、等电位联结做法
设计功能
一层:门廊、客厅、卧室、厨房、餐厅、卫生间、车库
二层:起居室、主卧(附走入式衣柜,卫生间,露台)、卧室(附走入式衣柜,阳台)、卧室、卫生间
三层:家庭室、卧室、卫生间、洗衣房、2露台。
2X11米农村3层别墅,落地窗设计带露台,30万自建今天要给大家展示的这套户型占地12X11米,田园风格的农村别墅,外观设计方正大气,大面积使用文化石搭配外墙挂板,令其更显不俗品味,同时坡屋顶处还设有老虎窗,从居住角度来讲更适合咱们的农村生活。
平面布局图:
首层布局通透开阔,东侧设有老人房,方便家中老人在此居住休息,客餐一体化加大了空间阔度,无形中增强了房屋的质感。
二层双卧一书房,卧室均带有衣帽间设计,二层独立的小客厅设计令居室生活更适合咱们的农村人。
三层设有露天,占据三分之一的面积,可作为屋顶花园使用。
日志•我的日志•私密日志•分享的日志•好友日志•记事本•草稿箱<<返回前一页_/~绣逗分享日志回家建这样的房子,新农村超漂亮户型图12月7日 20:18回家建这样的房子,新农村超漂亮户型图作者:砖墙已被分享13次复制链接现在跟大家介绍几款新农村户型图,在农村有地的,手头上有二十万要建房的(不含精装修),基本上下面的户型是可以建造的。
哈哈。
实现从农村包围城市,农村的豪宅是第一步!户型参考造价1、毛胚房砖混400-1000/㎡,框架600-1600/㎡2、毛胚房+精装修砖混1200-3000元/㎡,框架1500-4000元/㎡当然精装修只是说按照一般的好的装修,奢华的装修就不是这个价格了,以上价格不包括前后花园栽花种草等费用。
下面的户型,一般只给了建筑图,没有结构图,如果施工时候不清楚配筋,可以留言询问。
一般框架结构,基础好的,可以采用天然地基,不好的,就要做整板基础或桩基础,通常板宜采用双层配筋,现浇,屋面板可不用抗渗混凝土,也可以不做防水,但屋面板要做好一点,瓦要盖好点。
以下的户型只是本人收集的一部分,我收集了几十种户型,压缩包有20M,有相当一部分有CAD图,不过很多都是建筑图,配筋自己要考虑。
一、独栋别墅户型农村的暴发户,链子很粗的新贵,可以考虑这样的户型。
大气!户型一提高幸福指数的关键户型二一座豪宅旺三代((*^__^*) 嘻嘻……,这么像房产公司的广告?!)二、家族户型家中人丁兴旺的,可以考虑这种联排户型。
要是前面有口池塘,凉风习习,池塘的知了叽叽喳喳叫着,能够给后代一个不错的童年想象。
三、让城里人留口水的户型(独栋别墅型)不用说了,在城市里花50万买一百平米,在农村可以建一座这样的别墅,再买一台车,那就是真正的优质生活。
鸟语花香,莺飞燕舞,卧听风雨声,蟀嗡入梦来,怀抱娇妻,多美的意境啊!当然这个户型的外立面还是有可改善的地方,比如采用圆拱窗比矩形窗好看一点。
四、实用经济型不用说,这样的户型实在经济,农村的施工人员看一眼图纸就能鼓捣出来,不用请专门的施工人员,呵呵。
农村三间三层现代风格自建房图,外观时尚
这款农村三层自建房设计图,采用后现代风格设计,外观时尚。
平层屋面因为搭建成本低,适合干燥少雨的地区客户选择。
整体建筑外观造型简洁利落,黑白灰三色搭配经典时尚。
大门内推,灰色的门廊建筑几何美感强烈,左右两侧的走廊增加了活动空间,也低调的隔开和户外的距离。
大面积的玻璃门窗和走廊的玻璃围栏颜色风格统一,增加了整体的时尚通透感。
室内布局非常舒适,进门玄关半开放室的设计既避免了开门见山的风水忌讳,也和后面的公共活动区走动方便。
整套户型一共六间卧室,顶层的休闲区令人向往,一间带衣帽间和独卫的豪华卧室宽大舒适,对面的书房环境清幽又敞亮通透,还有起居室和户外露台活动动静皆宜。
建筑面积:589平方米,面宽15米,开间13米
建筑层数:三层
正面效果图
鸟瞰图
一层户型:玄关、茶室、餐厅、客厅、卫生间、卧室(带储物间)、厨房、卫生间
二层户型:卧室x4、卫生间x2、起居室、储物间
三层户型:起居室、书房、卧室(带卫生间、衣帽间)、露台。
新农村三层小别墅设计图-好看农村房子设计图刘总是个热爱炒股的股民,这几年通过炒股赚了不少钱。
他准备在老家盖一栋属于自己的房子。
现在发城市的房价越来越贵,很多人都买不起,回家乡,找一块好地,做一栋豪宅,是每个人的梦想。
刘先生说他希望自己的房子要独特,要时尚,不能太土了。
我们的设计师和他沟通几次,明白了刘先生心里想要的房子,于是着手开始设计。
按照刘总的要求我们给他设计了平面图
一楼有个大客厅,厨房和餐厅分区明确,一进大门就可以看到很大气的楼梯
二楼更是土豪了,还有个刘总个人非常喜欢的办公室,刘总真的是很满意我们给他设计的平面,他希望我们为他设计出漂亮的造型效果。
首先看看立面图
整个效果层次分明,材料分的也很细致明确。
刘总说村里房子都是很土的,和时代都脱轨了。
这样来来回回做了好几轮,也是体会到了这个房子对于朱总的重要性,我们也是拼了,最后朱总终于满意我们的设计,他说准备明年开年就动工建造了,下面
是效果图,
看了这个效果只能说高端大气上档次!刘总很满意这次的合作。
新农村自建12x11米别墅(全图+预算)
该户型占地东西长12.8米,南北宽11.2米,占地面积120平方米,建筑面积238平方米,建筑高度9.5米。
共设5室2厅2卫1厨1储藏室1阳台1露台。
360°全景图:
房屋南立面是房屋主要采光的一面,将客厅落地窗凸出于房屋主体,可以同时增大客厅与二层露台面积,一举两得;西立面突出建筑主体的钻石落地窗,是设计者的心机之举,这样的设计可以增大采光角度为原本采光不足朝向获得更多光照。
立面图:
平面布局图:
在一层有限的空间里,设计者尽量做到了动静分离,将起居空间全部设计在了西侧,将卧室休息空间设计在东侧。
指标表及工程预算:
设计咨询:131****2892,梁工;
有意从事乡村别墅、自建房设计的设计院、工作室、施工队,请与我们联系。
微信号同电话:186****5382刘工
进地方建房群,请加微信:houseparkgood2
自建房保温材料哪种好?选空气能热泵还是地源热泵?自建房上下水怎么做好?屋顶太阳能发电值不值?新风系统有必要么?看看公众号新型房屋怎么说。
您的转发和赞就是对小编最大的鼓励和支持。
乡村别墅12X11米三层现代风别墅,方正实用,年轻人最喜欢
的风格
让乡村居住更美好
理想中的生活其实很简单:有一块地,有一栋房。
这款现代风别墅占地面积138.8平方米,5间卧室,挑高客厅,能承载一家人团圆的体面,能圆多年后的衣锦还乡之梦,带来大大的生活享受。
效果图展示
这款别墅外观设计简洁而不简单,白、灰色块的组合恰到好处,幸福有时候就是这么简单,不需要过多的修饰。
由内及外,由上及下一气呵成。
镜像展示
全景展示
基本信息
别墅编号:MS1803059 占地尺寸:12.24X11.34米占地面积:138.8平方米建筑面积:439.9平方米结构类型:异型框架结构平面布局图
一层设客厅、餐厅、厨房、一间卧室、两间卫生间。
•会客厅方正端方,坐北朝南,上方作挑高设计,纵向空间得到延展,营造敞亮阔气的公共空间。
•餐厨位于北侧,操作流线便捷,空间较为独立,让其他房间无干扰。
•一楼布置一间南向卧室,主要考虑到家中老人上下楼不方便,内部带独立卫生间,生活更安全。
二层设起居室、两间卧室、一间卫生间。
•在二楼俯瞰客厅更显住宅的大气,室内居住空间设计原则以舒适为主,布置两间卧室,室室空间适中,方正通透,光线良好。
三层设衣帽间、两间卧室、两间卫生间、一个大露台。
•主卧大套房,有独立的卫生间和步入式衣帽间,居住体验度大大得到提升,可以独享自己的美丽时光。
•南向观景大露台是一个不错的户外交流空间,一起感受凉风习习,喝茶种花,饲鸟养鱼,其乐无穷。
农村盖房设计大全!三十万以内的别墅!农村盖房设计大全!三十万以内的别墅!(欢迎转载)一、新农村住宅户型户型一:地基:12m×12m占地面积:116平米,总建筑面积:213.53平米;户型二地基:9m×13m占地面积:76.60平米,总建筑面积:185.11平米;三大材料用量估算:水泥44.64吨,钢筋6.932吨,多孔砖85.643立方米;户型三地基:9m×12m占地面积:75.1平米,总建筑面积:119.7平米;三大材料用量估算:水泥32.28吨,钢筋4.753吨,多孔砖74.179立方米;户型四:地基:12m×10m占地面积:109.68平米,总建筑面积:287.82平米;二、双拼户型家里有两兄弟需要建房的可以考虑双拼的,一来兄弟间能有个照应,二来可以节省建筑成本。
户型一地基:24m×10m占地面积:178.46平米,总建筑面积:284.2平米;户型二地基:19m×12m占地面积:123平米,总建筑面积:213.2平米;三、独栋别墅户型独栋别墅即独门独院,上有独立空间,下有私家花园领地,是私密性很强的独立式住宅,表现为上下左右前后都属于独立空间,一般房屋周围都有面积不等的绿地、院落。
这一类型是别墅历史最悠久的一种,也是别墅建筑的终极形式。
在城市里花50万买一百平米,在农村却可以建这样的别墅:户型一:地基:14m×15m占地面积:147.7平米,总建筑面积:366.4平米;户型二:地基:13m×16m占地面积:130平方米,总建筑面积:310平方米;户型三:地基:14m×13m占地面积:170.38平米,总建筑面积:412.72平米;户型四:地基:8m×12m占地面积:88.7平米,总建筑面积:220.9平米;四、精选小成本户型如果感觉以上房屋建筑成本太高,手头又没有足够的资金,可以考虑以下户型:户型一:地基:12m×9m占地面积:80.3平米,总建筑面积:80.3平米;三大材料用量估算:水泥22.85吨,钢筋2.77吨,多孔砖57.702立方米;户型二:地基:11m×9m占地面积:89.96平米,总建筑面积:185.92平米;三大材料用量估算:水泥44.07吨,钢筋6.544吨,多孔砖90.525立方米;户型三:地基:11m×10m占地面积:89.66平米,总建筑面积:174.61平米;三大材料用量估算:水泥40.61吨,钢筋5.929吨,多孔砖88.851立方米;户型四:地基:8m×12m占地面积:75.1平米,总建筑面积:119.7平米;三大材料用量估算:水泥49.47吨,钢筋7.771吨,多孔砖86.371立方米;户型五:地基:8m×10m占地面积:80平米,总建筑面积:160平米;户型六:地基:8m×10m占地面积:89.60平米,总建筑面积:194.94平米。