工程估价课程设计例
- 格式:docx
- 大小:128.53 KB
- 文档页数:58
目录
第一部分定额计价
1、建设工程造价预算书
2、编制说明
3、单位工程费用表
4、工程计价表
5、价格调整表
6、工程量计算书
7、门窗明细表
第二部分工程量清单计较
1、工程量清单报价表
2、投标报价
3、单项工程费用汇总表
4、分部分项工程量清单计较表
5、措施费项目清单计价表
6、其他项目清单计价表
7、零星工作项目计价表
8、分部分项工程量清单综合单价分析表
9、主要材料价格表
第一部分定额计价
建设工程造价预算书
编制说明
工程名称:华海新天地21号片区A1-1地块【建筑工程、装饰工程】
单位工程费用表
共1页
工程计价表
价格调整表
工程名称:华海新天地21号片区A1-1地块【建筑工程】共1页
编制人:审核人:
工程量计算书
门窗明细表
第二部分工程量清单计价
投标总价
单项工程汇总表
工程名称:华海新天地21号片区A1-1地块共1页表二
单位工程费汇总表
工程名称:华海新天地21号片区A1-1地块共1页表三
分部分项工程量清单计价表
表四
措施费项目清单计价表
工程名称:建筑工程共1页表五
工程名称:建筑工程共1页表六
工程名称:建筑工程共1页表七
分部分项工程量清单综合单价分析表
主要材料价格表
工程名称:建筑工程货币单位:元表八。
欧阳科创编 2021.02.05目录第一部分定额计价1、建设工程造价预算书2、编制说明3、单位工程费用表4、工程计价表5、价格调整表6、工程量计算书7、门窗明细表第二部分工程量清单计较1、工程量清单报价表2、投标报价3、单项工程费用汇总表4、分部分项工程量清单计较表5、措施费项目清单计价表6、其他项目清单计价表7、零星工作项目计价表8、分部分项工程量清单综合单价分析表9、主要材料价格表欧阳科创编 2021.02.05第一部分定额计价建设工程造价预算书建设单位:云南华海房地产开发有限公司工程名称:华海新天地21号片区A1-1地块工程类别:建筑二类施工单位:中国有色金属工业第十四冶金建设公司建设地点:拥金路取费等级:二级工程规模:约40万平米工程造价:39556815.72元单位造价:523.96元/m2建设(监理)单位:云南工程建设监理有限公司施工(编制)单位:中国有色金属工业第十四冶金建设公司审计单位:单位负责人:曹国勇单位负责人:王勇单位负责人:资格证章:资格证章:资格证章:2015年12月2日2015年12月2日2015年12月2日欧阳科创编 2021.02.05编制说明工程名称:华海新天地21号片区A1-1地块【建筑工程、装饰工程】单位工程费用表共1页工程计价表欧阳科创编 2021.02.05欧阳科创编 2021.02.05欧阳科创编 2021.02.05欧阳科创编 2021.02.05价格调整表工程名称:华海新天地21号片区A1-1地块【建筑工共1页编制人:审核人:工程量计算书欧阳科创编 2021.02.05 门窗明细表欧阳科创编 2021.02.05第二部分工程量清单计价投标总价单项工程汇总表工程名称:华海新天地21号片区A1-1地块共1页表二单位工程费汇总表工程名称:华海新天地21号片区A1-1地块共1页表三分部分项工程量清单计价表表四措施费项目清单计价表工程名称:建筑工程共1页表五其他项目清单计价表工程名称:建筑工程共1页表六零星工作项目计价表工程名称:建筑工程共1页表七分部分项工程量清单综合单价分析表欧阳科创编 2021.02.05欧阳科创编 2021.02.05欧阳科创编 2021.02.05欧阳科创编 2021.02.05欧阳科创编 2021.02.05欧阳科创编 2021.02.05。
工程估价课程设计一、课程设计目的工程估价是工程经济学的一个重要分支,是工程项目的重要环节之一,也是决定工程实施的关键。
在工程建设、维修和管理中,估价是一个十分重要的环节,要求估价工程师具有严谨的工程思维、深厚的学科知识、适应力强的技术能力和严格的工作态度。
本次课程设计旨在培养学生的估价思维能力,提高学生的综合应用能力,以及培养学生的合理运用估价方法的能力。
二、课程设计内容1. 选题说明选择一个实际工程项目,对其进行估价。
项目应包括硬件成本、人工成本、能源成本、管理费用等各方面的因素。
2. 课程设计流程•第一步:工程项目的选择–目的:选择一个实际的工程项目,用于估价分析–要求:项目为真实的建设项目,含有相应的说明文档•第二步:估价报告的编写–目的:了解估价方法的基本步骤,掌握制作估价报告的技能–要求:制作一份完整的估价报告,包括估价的基本内容:项目背景、工程概述、估价对象及方法、估价过程及结果、假设及限制条件、影响因素、估价结论等。
•第三步:估价报告的演讲–目的:提高学生的表达能力和演讲技巧–要求:对自己所制作的估价报告进行演讲,重点介绍自己的估价方法和结论。
3. 课程设计考核•考核方式:估价报告成品及演讲•考核标准:报告内容的完整性、分析深度、方案可行性、报告格式规范、语言表达清晰、表现能力等方面。
三、课程设计基本要求•学生需独立完成课程设计,禁止抄袭或互相抄袭•学生需按时完成各项任务,迟交扣分,逾期不接收作业•学生需对所选工程项目进行深入研究,做到理解其特点和要求•学生需学习估价方法、工具及其应用,掌握基本技能•学生需按照规范要求编写估价报告,正确分析论证•学生需具备良好的团队合作能力和沟通能力四、总结工程估价对于工程项目的实施和管理具有重大意义。
本次课程设计旨在培养学生的估价思维能力和综合应用能力,为学生今后的工作和职业发展奠定基础。
希望学生们能认真对待本次课程设计,提高自身的估价水平和职业素养。
合肥森林公园一期三标段项目目录第一部分定额计价1、建设工程造价预算书2、编制说明3、单位工程费用表4、工程计价表5、价格调整表6、工程量计算书7、门窗明细表第二部分工程量清单计较1、工程量清单报价表2、投标报价3、单项工程费用汇总表4、分部分项工程量清单计较表5、措施费项目清单计价表6、其他项目清单计价表7、零星工作项目计价表8、分部分项工程量清单综合单价分析表9、主要材料价格表合肥森林公园一期三标段项目第一部分定额计价建设工程造价预算书.2编制说明工程名称:华海新天地21号片区A1-1地块【建筑工程、装饰工程】单位工程费用表合肥森林公园一期三标段项目工程名称:华海新天地21号片区A1-1地块【建筑工程】共1页合肥森林公园一期三标段项目工程计价表.7.8.9.10价格调整表工程名称:华海新天地21号片区A1-1地块【建筑共1页工程】编制人:审核人:工程量计算书合肥森林公园一期三标段项目合肥森林公园一期三标段项目 .21合肥森林公园一期三标段项目 .23合肥森林公园一期三标段项目 .25合肥森林公园一期三标段项目 .27合肥森林公园一期三标段项目 .29合肥森林公园一期三标段项目门窗明细表.30合肥森林公园一期三标段项目.31第二部分工程量清单计价投标总价单项工程汇总表工程名称:华海新天地21号片区A1-1地块共1页表二单位工程费汇总表工程名称:华海新天地21号片区A1-1地块共1页表三分部分项工程量清单计价表工程名称:华海新天地21号片区A1-1地块表四措施费项目清单计价表工程名称:建筑工程共1页表五。
广西科技大学鹿山学院课程设计任务书课程名称:工程估价课程设计_____________ 课题名称:某办公楼工程预算价编制指导教师:_____________________班级:_________________________姓名:_____________________________学号:________________________成绩评定:_________________________________ 指导教师签字:_____________________________二0—六年元月十八日课程设计报告课程名称:工程估价课程设计______________ 课题名称:柳州市某办公楼工程预算价编制指导教师:__________________________班级:____________ 工程132 _____________ 姓名:_____________________________学号:________________________成绩评定:_________________________________ 指导教师签字:_____________________________二0—六年元月十八日目录下载可编辑1. --------------------------------------- ------------- 封面2. --------------------------------------- ------------- 目录3. -------------------------------------- ——课程设计任务书4. -------------------------------------- ---- 设计内容简介5. -------------------------------------- ----------- 预算书6. -------------------------------------- ----------- 计算书7. -------------------------------------- ---- 设计心得体会8. -------------------------------------- -------- 参考文献设计内容简介一、本次课程设计内容是根据工程施工图纸计算工程量并编制建筑工程预算。
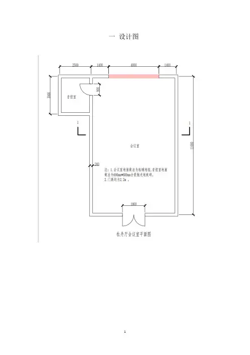
一设计图二计算过程一、说明1.招标工程量清单编制依据《房屋建筑与装饰工程工程量计算规范》(GB50854-2013)和相关工程的国家计量规范。
2.分部分项工程量清单计价采用北京市2012年建设工程计价依据-预算定额《房屋建筑与装饰工程预算定额》。
二、计算内容分部分项工程量清单1.011104001001楼地面地毯(11-0.24)*(6.8-0.24)=70.59m22.011102003001块料楼地面(3-0.24)*(2.5-0.24)+0.9*0.24=6.45 m23.011105003001块料踢脚线(3-0.24+2.5-0.24)*2-0.9=9.14m4.011201001001墙面一般抹灰会议室:(11-0.24+6.8-0.24)*2*(2.7-0.9)-4*1.5-0.9*(2.2-0.9)-1.8*(2.2-0.9)=52.842 m2音控室:(3-0.24+2.5-0.24)*2*2.7-0.9*2.2=25.128 m2合计:52.842+25.128=77.97 m25.011207001001墙面装饰板(6.8-0.24+11-0.24)*2*0.9-0.9*0.9-1.8*0.9=28.746 m26.011302001001吊顶天棚(6.8-0.24)*(11-0.24-0.25)=68.95 m27.011302001002吊顶天棚(3-0.24)*(2.5-0.24)=6.24 m28.010*********饰面夹板窗帘盒6.8-0.24=6.56m9.010*********窗帘轨6.8-0.24=6.56m10.011404001001木墙裙油漆(6.8-0.24+11-0.24)*2*0.9-0.9*0.9-1.8*0.9=28.75 m211.011408001001墙纸裱糊(11-0.24+6.8-0.24)*2*(2.7-0.9)-4*1.5-0.9*(2.2-0.9)-1.8*(2.2-0.9)=52.84 m2 12.011407001001墙面喷刷涂料音控室:(3-0.24+2.5-0.24)*2*2.7-0.9*2.2=25.128 m213.011407002001天棚喷刷涂料会议室+音控室:(6.8-0.24)*(11-0.24-0.25)+(3-0.24)*(2.5-0.24)=75.19 m2部分定额子目工程量计算1.定额12-2,12-12,12-36会议室(11-0.24+6.8-0.24)*2*(2.7-0.9+0.2)-4*1.5-0.9*(2.2-0.9)-1.8*(2.2-0.9)=59.77m2音控室:(3-0.24+2.5-0.24)*2*(2.7+0.2)-0.9*2.2= 27.14m2合计:59.77+27.14= 86.91 m2单位工程清单含量:86.91/77.97=1.115 m2/ m22.定额15-93木装饰线工程量:(11-0.24+6.8-0.24)*2-0.9-1.8=31.94m单位工程清单含量:31.94m/28.746 =1.111 m/ m23.定额13-61超长吊杆(项目编码011302001001)工程量:(1.4-0.8)/0.1*(-4.56*6.16)+(1.2-0.8)/0.1*(4.56*6.16)= 357.52 m2单位清单工程含量:357.52 m2 /68.95 m2=5.185 m2 / m24.定额13-61超长吊杆(项目编码011302001002)工程量:(3-0.24)*(2.5-0.24)*(1.4-0.8)/0.1=37.426 m2单位清单工程含量:37.426 m2/6.24 m2=6 m2/ m2三案例(一)工程量清单编制案例:__牡丹厅会议室装饰装修__工程工程量清单工程造价招标人:__XX酒店有限责任公司_ 咨询人:某工程造价咨询企业资质专用章 (单位盖章) (单位资质专用章)法定代表人法定代表人或其授权人:______某单位法定代表人____ 或其授权人:某工程造价咨询企业法定代表人(签字或盖章) (签字或盖章)编制人:___某签字盖造价工程师或造价师员专用章___(造价人员签字盖专用章)复核人:___某签字盖造价工程师专用章__________(造价工程师签字盖专用章)编制时间:年月日复核时间:年月日封一1总说明工程名称:XX酒店牡丹厅会议室装饰装修工程第页共表—01分部分项工程量清单与计价表注:根据建设部、财政部发布的《建筑安装工程费用组成》(建标[2003]206号)的规定,为计取规费等的使用,可在表中增设其中:“直接费”、“人工费”或“人工费+机械费”。
目录编制说明 (2)单位工程费用表 (4)工程计价表 (6)单位工程人材机汇总表 (13)三材汇总表 (17)价格调整表 (18)工程量计算书 (20)门窗明细表 (39)课程设计评分表 (40)课程设计任务书 (41)编制说明工程名称:单身公寓工程【建筑工程、装饰工程】第1页共1页编制依据施工图号单身公寓工程施工图合同单身公寓工程施工合同使用定额2000年全国统一建筑、装饰工程基础定额重庆市基价表2000年重庆市建设工程费用定额及其配套文件材料价格2000年重庆市材料价格基价表、重庆市市场价格信息其他说明:一、施工组织及施工方法说明1 基础垫层为原槽封闭式垫层。
2 土方运输采用人工运输,运距5m。
3 混凝土预制构件以及金属构件和木门窗在工厂加工;运输采用汽车,运距5km。
4 现浇混凝土构件钢筋在现场加工。
二、设计补充说明1 建筑面积为1013.06m22 零星抹灰均采用1:2水泥砂浆。
3 零星砌体用M10混合砂浆砌筑。
4 预应力空心板全部采用YKB3352型。
5 墙身防潮层:用20厚1:2水泥砂浆(掺5%防水剂)设于标高-0.06m处。
三、本预算未包括工资区工资单价调整、混凝土构件的预埋铁件、室外工程(除散水外)。
四、工程量计算及定额使用说明:工程量计算中注明“估”者,是估算的工程量。
五、其他说明1 本预算费按核定的土建四类工程标准计取各项费用。
2 费用项目只考虑常见费用项目。
3 劳动保险费已计入本预算。
.. . .. . ..单位工程费用表工程名称:单身公寓工程【建筑工程】共1页费用代号费用名称计算公式费率费用金额F1 1 基价直接费=F11+F12+F13+F14 318542.39 F11 1.1 其中:人工费及调增=人工费×(1+人工费调整系数) 1.2% 80160.63 F12 1.2 其中:材料费=材料费×材料费调整系数 1 214914.13 F13 1.3 其中:机械费=机械费×机械费调整系数 1 23417.07F14 1.4 机上人工调增=机上人工数×21.82×机上人工调增系数1.2% 50.56F2 2 综合费=F1×综合费系数12.61%40168.2F21 其中:其它直接费=(F2+F3)×其它直接费系数16.34%6875.78F22 其中:临时设施费=(F2+F3)×临时设施费系数14.67%6173.06F23 其中:现场管理费=(F2+F3)×现场管理费系数22.52%9476.29F24 其中:企业管理费=(F2+F3)×企业管理费系数41.24%17353.57F25 其中:财务费用=(F2+F3)×财务费系数 5.23% 2200.76 F3 3 安全文明施工增加费=F1×安全文明施工系数0.60% 1911.25 F4 4 劳动保险费=F1×劳动保险费率 4.26% 13569.91 F5 5 利润=F1×利润系数 4.35% 13856.59F6 6 人工、材料价差及允许按实计算的费用=F61+F62+F63+F64+F65+F66+F67+F68124430.8F61 6.1 土石方人工价差=土石方工日数×(F611-15) 5805.84 F611 6.1.1 土石方人工调价26 26 F62 6.2 机械人工价差=机上人工数×(F621-21.82) 1579.67 F621 6.2.1 机械人工调价30 30F63 6.3 土建人工价差=(人工费-土石方工日数×15)/18×(F631-18)39607.25F631 6.3.1 土建人工调价28 28 F64 6.4 材料价差=材料价差68669.72 F65 6.5 未计价材料费=未计价材料费167.67 F66 6.6 二次或多次转运费=F1×二次转运费系数 1.2% 3822.51 F67 6.7 扩大包干费=F1×扩大包干费系数 1.5% 4778.14 F68 6.8 允许按实计算的费用F7 7 成品门窗制作及配套费=成品门窗制作材料费×1.05 0.. . .. . ..工程计价表工程名称:单身公寓工程【建筑工程】共5页定额编号项目名称单位工程量单价合价其中:人工费其中:机械费其中:材料费备注单价合价单价合价单价合价建筑工程土石方工程1A0110 场地平整(300mm内) 1000m20.405 288.46 116.83 15 6.08 273.46 110.75 0 01A0003 挖沟槽土方(深度m以内)2 100m34.415 1152.9 5090.05 1152.9 5090.05 0 0 0 01A0034 回填土夯填100m32.799 621.27 1738.93 441 1234.36 180.27 504.58 0 01A0041+1A004 2*3 单(双)轮车运土方~运距50m内100m31.248 499.95 623.94 499.95 623.94 0 0 0 01A0044 支竹挡土板100m24.072 512.57 2087.19 236.4 962.62 0 0 276.17 1124.56土石方工程小计元9656.94 7917.05 615.33 1124.56 脚手架工程1C0006 多层建筑综合脚手架(檐口高度)12m内100m210.131 306.87 3108.9 66.6 674.72 28.19 285.59 212.08 2148.58脚手架工程小计元3108.9 674.72 285.59 2148.58 砖石工程. 专业学习资料.1D0003 砖基础^水泥砂浆M10 10m3 9.675 1345.12 13014.04 219.24 2121.15 17.28 167.18 1108.6 10725.71 1D0006换砖墙^混合砂浆M7.5{6B0351}换M10{6B0352}10m3 33.597 1403.92 47167.5 291.24 9784.79 16.57 556.7 1096.11 36826.011D0015换1/2砖墙^混合砂浆M7.5{6B0351}换M10{6B0352}10m3 3.499 1503.45 5260.57 362.52 1268.46 14.62 51.16 1126.31 3940.96 砖石工程小计元65442.11 13174.4 775.04 51492.68 砼及钢筋砼工程1E0040 现浇构造柱^C20 10m3 3.31 1777.96 5885.05 461.16 1526.44 56.33 186.45 1260.47 4172.16 1E0059 现浇基础梁^C25 10m3 0.177 1723.16 305 240.12 42.5 56.33 9.97 1426.71 252.53 1E0062 现浇圈梁.过梁^C25 10m3 0.959 1908.3 1830.06 439.2 421.19 38.18 36.61 1430.92 1372.25 1E0061 现浇圈梁.过梁^C20 10m3 4.211 1749.25 7366.09 439.2 1849.47 38.18 160.78 1271.87 5355.84 1E0046 现浇矩形梁^C20 10m3 0.27 1603.16 432.85 279.18 75.38 56.33 15.21 1267.65 342.27 1E0110 现浇有梁板^C20 10m3 1.99 1587.86 3159.84 235.26 468.17 56.33 112.1 1296.27 2579.58 7E0128 门窗分部双扇带上亮铝合金弹门100系列100m214.8515072.282238.24 3787.6 562.46 10717.9 1591.61 566.78 84.17带亮镶板木门100m2 36.72 5500.742019.87821.44301.634592.811686.4886.49 31.761H0002 带亮半百叶木门100m220.40 13264.5 2705.972488.12507.58 10387.38 2119.03 389.00 79.361H0023 塑钢推拉窗70系列100m271.55 38171.3 27311.56 24481751.5435620.6125486.55102.69 73.471I0038 平开塑钢窗60系列100m9.72 31464.73058.38 1904 185.07 29458.1 2863.33 102.69 9.98. 专业学习资料.2 91H0028 门窗分部小计37334.02 3308.2833747 278.741E0182 现浇构造柱(模板) 10m3 3.31 1865.8 6175.8 621.36 2056.7 176.84 585.34 1067.6 3533.76 1E0183 现浇基础梁(模板) 10m3 0.177 1270.91 224.95 482.4 85.38 81.61 14.44 706.9 125.12 1E0184 现浇矩形梁(模板) 10m3 0.27 1564.89 422.52 747 201.69 133.2 35.96 684.69 184.871E0186 现浇圈梁.过梁(模板) 10m3 5.17 1144.7 5918.1 516.42 2669.8958.13 300.53 570.15 2947.681E0197 现浇有梁板(模板) 10m3 1.99 1282.08 2551.34 532.44 1059.56138.75 276.11 610.89 1215.671E0199 现浇平板(模板) 10m3 0.559 1106.6 618.59 412.74 230.72 128.45 71.8 565.41 316.06 1E0201 现浇楼梯直形(模板) 10m2 2.903 336.54 976.98 133.2 386.68 34.39 99.83 168.95 490.46 1E0203 现浇悬挑板直形(模板) 10m2 0.326 497 162.02 133.92 43.66 25.59 8.34 337.49 110.02 1E0207 现浇挑檐.天沟(模板) 10m3 0.193 2066.23 398.78 857.16 165.43 225.06 43.44 984.01 189.91 1E0208 现浇零星构件(模板) 10m3 0.118 2374.42 280.18 984.96 116.23 258.61 30.52 1130.85 133.441E0465 预制预应力空心板(模板) 10m3 3.975 572.07 2273.98 309.24 1229.2334.57 137.42 228.26 907.331E0511 预制空心板安装.灌浆10m3 3.975 527.19 2095.58 221.4 880.07 58.7 233.33 247.09 982.18 1E0521+1E0522*4Ⅱ类构件~1km以内10m3 3.975 689.03 2738.89 53.28 211.79 612.94 2436.44 22.81 90.671E0528 现浇钢筋t 13.77 2763.62 38055.05 161.1 2218.3562.52 860.9 2540 34975.81E0530 先张法预应力钢筋冷拨低碳钢丝Φ5以内t 1.068 3202.17 3419.92 335.16 357.95 83.06 88.71 2783.95 2973.26 砼及钢筋砼工程小计元95331.6 18049.6583.19 70698.7. 专业学习资料.7 木结构工程1G0001 镶板门框断面52cm2全板制作100m21.642 5539.47 9095.81 633.781040.67266.59 437.74 4639.1 7617.41G00211G0090 双扇带上亮铝合金弹门100系列100m214.8515072.282238.23 3787.6 562.46 10717.9 1591.61 566.78 84.17带亮镶板木门100m236.72 5500.74 2019.87 821.44 301.63 4592.81 1686.48 86.49 31.76 100m220.04 13264.52705.972488.12 507.5810387.382119.03389 79.367E0080换塑钢窗推拉70系列100m21.652 7211.13 11912.79 2870.4 4741.9 430.56 711.29 3910.17 6459.67E0103换100m20.057 5190.75 295.871921.18109.51 288.18 16.43 2981.39 169.947E0128 门窗分部元 1.709 61.97 105.91 34.89 59.63 5.23 8.94 21.85 37.34双扇带上亮铝合金弹门100系列100m214.8515072.282238.24 3787.6 562.46 10717.9 1591.61 566.78 84.17带亮镶板木门100m2 36.72 5500.742019.87821.44301.634592.811686.4886.49 31.761H0002 带亮半百叶木门100m220.40 13264.5 2705.972488.12507.58 10387.38 2119.03 389.00 79.361H0023 塑钢推拉窗70系列100m271.55 38171.3 27311.56 24481751.5435620.6125486.55102.69 73.47. 专业学习资料.1I0038 平开塑钢窗60系列100m29.7231464.793058.38 1904 185.07 29458.1 2863.33 102.69 9.981H0028 门窗分部小计37334.02 3308.2833747 278.747A0040 地面砖楼地面水泥砂浆不勾缝100m21.157 720.83 834 635.68 735.48 63.57 73.55 21.58 24.971H0041 楼地面~(厚度20mm)^水泥砂浆1:2 100m25.42 594.06 3219.81 184.861001.9415.07 81.68 394.13 2136.181H0087 楼梯彩色水磨石(分色)底层20mm~面层15mm^1:2 100m20.29 5631.31 1633.08 3207.6 930.2 37.22 10.79 2386.49 692.081H0095 踢脚板彩色水磨石(分色)底层12mm~面层8mm^1:2.5100m 6.62 634.07 4197.54 462.78 3063.6 3.54 23.43 167.75 1110.511H0174 硬木扶手型钢栏杆10m 2.178 548.17 1193.91 58.14 126.63 128.75 280.42 361.28 786.871H0176 硬木扶手弯头10个0.7 234.09 163.86 136.62 95.63 0 0 97.47 68.231H0182 凿石明沟松次坚石净空300×30010m 7.416 124.2 921.07 124.2 921.07 0 0 0 01H0189 砼排水坡~厚60mm^C15 100m20.355 1367.15 485.34 378.54 134.38 67.48 23.96 921.13 3271H0029 找平层-在砼或硬基层上~(厚度20mm)^水泥砂浆1:2.5 100m22.344 514.3 1205.52 140.4 329.1 15.07 35.32 358.83 841.11H0028 找平层-在砼或硬基层上~(厚度20mm)^水泥砂浆1:2 100m27.764 544.48 4227.34 140.41090.0715.07 117 389.01 3020.271H0124 陶瓷马赛克楼地面^水泥砂浆1:2.5 100m22.344 2970.53 6962.92 926.822172.4719.05 44.65 2024.66 4745.8楼地面工程小计元33665.04 12422.966.68 20275.68. 专业学习资料.67 屋面工程1I0019 防水柔毡二胶一毡撒白石子100m21.528 1974.88 3017.62 103.14 157.6 0 0 1871.74 2860.021I0038 刚性屋面~40mm^C20 100m22.344 1640.86 3846.18 396.54 929.49 39.88 93.48 1204.44 2823.211I0081 塑料水落管Φ114mm 10m 2.53 211.02 533.88 17.28 43.72 0 0 193.74 490.16屋面工程小计元7397.68 1130.8193.48 6173.39耐酸、保温、隔热分部1J0131 屋面保温干铺珍珠岩10m3 0.938 813.96 763.49 65.16 61.12 0 0 748.8 702.37 耐酸、保温、隔热分部小计元763.49 61.12 0 702.37 装饰工程1K0049 墙面水泥砂浆粘贴^装饰石材100m20.41412541.775192.291125.18465.82 21.27 8.8111395.324717.661K0071 墙面.墙裙(砂浆)密缝^面砖100m27.814 4606.2 35992.851043.468153.6 18.17 141.98 3544.57 27697.271K0013 墙面、墙裙水泥砂浆砖墙100m26.754 599.96 4052.13 247.141669.1815.51 104.75 337.31 2278.191K0024 墙面、墙裙混合砂浆砖墙100m223.43 599.18 14038.79 247.145790.4917.28 404.87 334.76 7843.431K0158 砼面天棚混合砂浆纸筋灰面100m29.363 544.01 5093.57 252.542364.5313.29 124.43 278.18 2604.61K0208 单层木门底油一遍、刮腻子、100m 1.642 1120.99 1840.67 318.42 522.85 0 0 802.57 1317.82调合漆~二遍 21K0210 木扶手不带托板底油一遍、刮腻子、调合漆二遍100m 0.218 155.52 33.9 78.3 17.07 0 0 77.22 16.83装饰工程小计元66244.2 18983.54784.84 46475.8小计元其它工程1L0005 垂直运输一般建筑塔式起重机檐高20m内100m210.131 1178.07 11935.03 0 0 1178.0711935.030 0其它工程小计元11935.03 0 11935.03建筑工程总计元317541.3579210.1123417.07214914.13编制人:审核人:单位工程人材机汇总表工程名称:单身公寓工程【建筑工程】共4页序号材料名称用料范围单位数量预算价预算价×用量1 临时设施摊销标准砖千匹10.297 1602 临时设施摊销钢材kg 561.748 2.43 临时设施摊销杉原木m3 1.123 5004 临时设施摊销水泥kg 2006.245 0.235 灰膏建筑工程kg 9036.332 0.052 469.896 水泥32.5级建筑工程kg 35050.825 0.23 8061.697 特细砂建筑工程t 456.856 请看分项9968.88 8 107胶建筑工程kg 189.9 1.27 241.179 CSPE嵌缝油膏330mmL建筑工程支76.828 1.17 89.8910 YJ-302粘结剂建筑工程kg 3.912 12.14 47.4911 YJ-Ⅲ粘结剂建筑工程kg 17.388 12.14 211.0912 安全网建筑工程m2 25.328 7.54 190.9713 白乳胶建筑工程kg 11.724 5.62 65.8914 白石子建筑工程kg 1180.38 0.18 212.4715 白水泥建筑工程kg 1106.39 0.4 442.5516 板条1000×30×8 建筑工程百根 4.811 18.67 89.8217 扁钢建筑工程kg 104.108 2.4 249.8618 标准砖240×115×53 建筑工程千块247.436 160 39589.7619 玻璃建筑工程m2 170.9 20 341820 玻璃3mm 建筑工程m2 7.685 12 92.2221 玻璃胶建筑工程支86.19822 彩色石子建筑工程kg 2454.092 0.18 441.7423 彩色石子浆1:2 建筑工程m3 0.687 699.04 480.2424 彩色石子浆1:2.5 建筑工程m3 0.993 634.11 629.6725 柴油建筑工程kg 225.682 2.2 496.526 窗锁建筑工程把165.227 醇酸调合漆建筑工程kg 36.6 14.31 523.7428 催干剂建筑工程kg 1.713 11.5 19.729 底座建筑工程个 1.82430 地面砖建筑工程m2 117.43631 垫木建筑工程m3 0.119 500 59.532 电焊条建筑工程kg 111.718 6.3 703.8233 镀锌铁丝14# 建筑工程kg 12.056 4.41 53.1734 镀锌铁丝22# 建筑工程kg 54.177 5.25 284.4335 镀锌铁丝8# 建筑工程kg 263.771 4.2 1107.8336 对接扣件建筑工程个7.59837 二甲苯建筑工程kg 38.582 3.82 147.3838 防腐油建筑工程kg 46.813 3.18 148.8739 防水柔毡建筑工程m2 192.757 7.87 151740 防锈漆建筑工程kg 24.213 13.96 338.0141 非预应力模板建筑工程m3 3.97542 钢管Φ48×3.5 建筑工程kg 304.13343 钢筋建筑工程t 14.183 2400 34039.244 钢筋Φ10以内建筑工程kg 39.75 2.4 95.445 钢拉模建筑工程kg 75.207 3.3 248.1846 钢丝绳8 建筑工程kg 1.317 3.5 4.6147 钢套管建筑工程kg 44.507 2.4 106.8248 构造柱模板建筑工程m3 3.3149 弧形模板建筑工程m3 0.32650 弧形圈梁模板建筑工程m3 5.1751 滑石粉建筑工程kg 97.217 0.4 38.8852 回转扣件建筑工程个 3.44553 基础梁模板建筑工程m3 0.17754 机上人工建筑工程工日193.11455 机用柴油建筑工程kg 112.145 2.2 246.756 机用汽油建筑工程kg 94.727 2.2 208.457 加固钢丝绳建筑工程kg 1.272 3.5 4.4558 建筑油膏建筑工程kg 338.965 3.43 1162.6559 胶带建筑工程卷 1.70960 脚手架钢材建筑工程kg 398.351 2.77 1103.4361 金刚石200×75×50 建筑工程块25.37 11.09 281.3662 酒精建筑工程kg 0.715 7.96 5.6963 矩形梁模板建筑工程m3 0.2764 锯材建筑工程m3 0.364 850 309.465 矿物颜料建筑工程kg 50.864 5.14 261.4466 缆风桩木建筑工程m3 0.01 500 567 冷拔低碳钢丝Φ5以下建筑工程t 1.164 2400 2793.668 冷底子油30:70 建筑工程kg 30.527 2.17 66.2469 砾石5-10 建筑工程t 0.342 25 8.5570 砾石5-60 建筑工程t 56.693 25 1417.3371 沥青砂浆1:2:7 建筑工程m3 0.05 583.98 29.272 梁卡具建筑工程kg 18.607 3.3 61.4173 零星卡具建筑工程kg 391.931 3.3 1293.3774 铝合金地弹门建筑工程m2 5.51175 铝合金型材建筑工程kg 1046.70776 麻刀建筑工程kg 4.967 1.04 5.1777 麻刀石灰膏浆建筑工程m3 0.411 92.7 38.178 密封毛条建筑工程m 842.71779 密封油膏建筑工程kg 79.97980 面砖建筑工程m2 800.935 30 24028.0581 模板建筑工程m3 3.21482 模板锯材建筑工程m3 2.386 850 2028.183 木拉条建筑工程m3 0.131 850 111.3584 木螺丝建筑工程百个42.692 2 85.3885 木螺丝4×30 建筑工程百个 2.265 2 4.5386 木砖建筑工程m3 0.591 500 295.587 平板模板建筑工程m3 0.55988 漆片建筑工程kg 0.117 14.4 1.6989 汽油建筑工程kg 23.506 2.2 51.7290 清油建筑工程kg 2.911 16.1 46.8791 圈梁、过梁模板建筑工程m3 5.1792 软填料建筑工程kg 88.59193 砂纸建筑工程张69.836 0.23 16.0694 石膏粉建筑工程kg 8.381 0.6 5.0395 石灰膏建筑工程m3 12.923 70.09 905.7796 石油沥青30# 建筑工程kg 328.096 1.5 492.1497 石油沥青60# 建筑工程kg 164.368 1.5 246.5598 石油沥青玛蹄脂建筑工程m3 0.292 1673.2 488.5799 熟桐油建筑工程kg 7.068 8.57 60.57 100 水建筑工程m3 574.834 1.6 919.69 101 水泥107胶浆1:0.1:0.2 建筑工程m3 0.214 371.13 79.42102 水泥425# 建筑工程kg 161976.8680.23 37254.69103 水泥豆石浆1:2.5 建筑工程m3 0.209 158.48 33.12 104 水泥砂浆1:27A0040m3 2.927105 素普通水泥浆建筑工程m3 4.161 353.97 1472.87106 素水泥浆建筑工程m3 0.116107 塑料薄膜建筑工程kg 37.598108 塑料水斗建筑工程个 1.594 20.63 32.88 109 塑料弯管Φ114mm 建筑工程个 1.594 8 12.75 110 塑料硬管Φ114 建筑工程m 26.11 15 391.65 111 碎石5-10 建筑工程t 84.047 20 1680.94 112 碎石5-20 建筑工程t 51.321 20 1026.42 113 碎石5-40 建筑工程t 153.097 20 3061.94 114 陶瓷马赛克建筑工程m2 243.19 15 3647.85 115 铁钉建筑工程kg 183.1 4.73 866.06 116 土石方工日建筑工程工日527.804 15 7917.08 117 无光调合漆建筑工程kg 41.505 14.31 593.94 118 镶板.胶合板门安装建筑工程m2 1.642119 一等锯材(干)建筑工程m3 8.67 850 7369.5 120 乙炔气建筑工程m3 5.358 15.04 80.58 121 乙酸乙脂建筑工程kg 7.716 10.08 77.78 122 硬木方建筑工程m3 0.229 850 194.65 123 油灰建筑工程kg 8.604 1.88 16.18 124 油漆溶剂油200# 建筑工程kg 21.362 3.18 67.93 125 有梁板模板建筑工程m3 1.99126 预应力模板建筑工程m3 3.975127 预制空心板安装建筑工程m3 3.975128 预制砼块建筑工程m3 0.914 180 164.52 129 原木建筑工程m3 0.285 500 142.5 130 圆钢Φ18 建筑工程kg 118.461 2.4 284.31 131 粘胶建筑工程kg 111.666 7.03 785.01 132 珍珠岩建筑工程m3 11.706 60 702.36 133 支撑钢管及扣件建筑工程kg 356.672 2.79 995.11 134 直角扣件建筑工程个58.355135 直形模板建筑工程m3 0.326136 纸筋建筑工程kg 71.159 0.55 39.14 137 纸筋石灰膏浆建筑工程m3 1.873 101.01 189.19 138 竹挡土板建筑工程m2 18.283 32.57 595.48 139 竹脚手板建筑工程m2 16.21 26.67 432.32 140 抓钉建筑工程工日54.158 0.5 27.08 141 装饰石材建筑工程m2 42.228 100 4222.8 142 综合工日建筑工程工日255.73 22.08 5646.52 143 组合钢模板建筑工程kg 818.933 3.3 2702.46144 砼地模建筑工程m2 5.605 79.59 446.1编制人:审核人:三材汇总表工程名称:单身公寓工程第1页共1页材料名称单位工程直接耗用量工程摊销用量合计单位用量备注脚手架摊销量模板摊销量临时摊销量金额(万元) 金额(万元)每万元架摊销量小计每万元架摊销量小计钢材吨15.609 0.398 0.819 0.91 0.562 17.388 0.017原木立方1.82 1.123 1.123 0.001锯材立方9.677 2.386 12.063 0.012水泥吨168.7873.25 2.006170.7930.169价格调整表工程名称:单身公寓工程【建筑工程】共1页序号材料名称单位数量单价调整价单价差价差合计备注1 临时设施摊销标准砖千匹10.297 160 200 40 411.882 临时设施摊销钢材kg 561.748 2.4 4.32 1.92 1078.563 临时设施摊销水泥kg 2006.245 0.23 0.29 0.06 120.384 扁钢kg 104.108 2.4 4.32 1.92 199.895 标准砖240×115×53 千块247.436 160 200 40 9897.446 玻璃m2 170.9 20 20 0 07 钢筋t 14.183 **** **** 1920 27231.368 钢筋Φ10以内kg 39.75 2.4 4.32 1.92 76.329 冷拔低碳钢丝Φ5以下t 1.164 2400 4230 1830 2130.12 10 水泥32.5级kg 35050.825 0.23 0.29 0.06 2103.0511 水泥425# kg 153679.7710.23 0.32 0.0913831.1812 特细砂t 438.071 22 45 23 10075.6313 特细砂t 3.726 45 45 167.6714 综合工日工日255.73 22.08 28 5.92 1513.92总计68837.4编制人:审核人:工程量计算书基数计算表序号基数名称单位数量计算公式备注一外墙中心线L中m 68 (23.3+10.7)*21 L1中m 46.6 23.3*2 基础12 L3中、L4中m 21.4 10.7*2-1=20.4 基础3、4 二外墙中心线L外m 68.96 68+0.24*4三内墙净长线L内m 98.42 23.06+19.76+29.18+26.421 L1内m 23.06 23.3-2*0.24/2 基础12 L2内m 99.76 23.3-3.3-2*0.24/2 基础23 L4内m 29.18 (10.7*3-1-16*0.24/2)基础44 L5内m 26.42 10.7*2+3.6+3.1+0.12-15*0.24/2 基础5四建筑面积2m1013.06 250.73*4+10.141 建筑基底面积2m250.73 (23.3+0.24)*(10.7+0.24)-1*6.82 楼梯间面积2m10.14 (3.6+0.24)*(2.4+0.24).. . .. . ..基本工程量计算表序号分项工程名称单位数量计算公式备注一土石方工程1 场地平整2m404.65 250.73+68.96*2+162 人工挖地槽土方3m441.49 (1)+(2)+(3)+(4)+(5)加宽工作面30cm ,支挡土板(1)基础1 3m171.10 1.56*(46.6+23.6-1.15-0.2+0.24)*1.6 垫层宽960mm (2)基础2 3m50.08 1.69*(19.76-1.28-0.2+0.24)*1.6 垫层宽1090mm (3)基础3 3m63.65 1.95*1.6*20.4 垫层宽1350mm (4)基础4 3m81.27 2.08*[29.18+1-(0..96-0.24)/2*16]*1.6 垫层宽1480mm (5)基础5 3m75.39 2.21*[26.42+0.3-(0.96-0.24)/2*15]*1.6 垫层宽1610mm3 回填土3m279.88 挖地槽土方量-垫层体积-砖基础及地圈梁体积=404.65-96.85-9.59-18.334 余土外运3m124.77 404.65-279.88二脚手架工程2m1013.06 综合脚手架三砌筑工程1 砖基础3m96.85 (1)+(2)+(3)+(4)+(5)M10水泥沙浆(1)基础1 3m29.840.24*(1.6-0.24-0.1+0.525)*(46.6+23.06)折算高度0.525(2)基础2 3m50.08 0.24*(1.26+0.788)*19.76 折算高度0.788 (3)基础3 3m63.65 0.24*(1.26+1.444)折算高度1.444 (4)基础4 3m81.27 0.24*(1.26+2.297)*(29.18+1)折算高度2.297 (5)基础5 3m75.39 0.24*(1.26+1.838)*26.42 折算高度1.838 2 砖墙M10混合沙浆.. . .. . ..序 号分项工程名称单位数 量 计 算 公 式备注(1) 240墙3m 335.97=(墙长*墙高-孔洞面积)-圈梁、过梁、挑梁体积=[(68-6.78)*12.64+(98.42-1.26*5-2.16-3.87)*11.5+(3.2-0.24)*(3+2.8*3-0.3*3)+(3.3-0.24)*(2.8*3-0.3*3)+(3.6*2+2.4*2)*2.5-(2.4-0.24)*0.3-(1.16*0.08+0.24*0.3*2)*4-273.3)]*0.24-39.19-2.17(2) 120墙3m 34.99[(2.1+1.5*3-0.24*3)*10.5+(2.1+1.5-0.24)*(11.4-3-2.8-0.3*2)-61.74]*0.12-0.89四混凝土及钢筋工程 (一)混凝土工程1现浇C20构造柱3m33.1柱截面长度:外墙长=(0.072*5+16*0.0792)/0.24=6.78;内墙柱长=(0.072*3+0.0792*9)/0.24=3.87 体积v=1.65*0.24*11.5+0.072*2.5*2+0.0792*2.5*2+0.072*36*1.14构造柱形式:外墙上 L 形5个、T 形16个;内墙上L 形3个、T 型3个;女儿墙一字形36个;拄截面L 形0.072,T 形0.0792,一字形0.0722 现浇C25基础梁 3m 1.77 (3.2-0.24)*0.24*0.3+[(1.5-0.18)*10+(1.5-0.24*2)*0.12*0.3+(3.3-0.24)*9*0.12*0.33 现浇C25地圈梁 3m 9.59 0.24*0.24*(68+98.42)4现浇C20圈梁3m39.19(1)+(2)+(3)+(4)QL 净长度:147.31m (1) 2.98m 层圈梁3m 11.3542.5*0.24*0.48+3.2*0.24*0.78+(147.31-42.5-3.2)*0.24*0.24QL 兼过梁(240*480):42.5m ,QL 兼雨蓬梁、过梁(240*480)3.2m (2)5.78m 、8.58m 层圈梁3m 17.85[46.2*0.24*0.28+(147.31-46.2)*0.24*0.24]*2QL 兼过梁(240*280):46.2m(3) 11.38m 层圈梁3m9.45A 轴线:0.24*0.24*14+0.24*0.3*(22.75-14)=1.97QL 净长度:22.75m QL 兼过梁(240*400):14m A 轴线之外:0.24*0.28*32.2+0.24*0.24*(124.96-32.2)=7.48QL 净长度:124.56m QL 兼过梁序号分项工程名称单位数量计算公式备注5 现浇C20过梁3m 3.22 0.24*0.12*75.4+0.24*0.2*6.8+0.12*0.12*50.4GL(240*120):75.4mGL(240*200):6.8mGL(120*120):50.4m6 现浇C20矩形梁3m 2.70[(3.3-0.24)*4+(1.5-0.24)*20]*0.24*0.37 现浇C20有梁板3m19.93[(3.3*9+3.2)*1.5*3+2.1*(1.5-0.24)*4+2.26*3.6+(2.4+2.3)*1.26*4]*0.08+[(3.3*9+2.76)*3+1.26*28]*0.12*0.22+(1.26*7*4+3.2*3)*0.24*0.22梁的体积和板的体积合并计算8 现浇C20平板3m 5.54 (4.4-0.24)*(3.6-0.24)*4*0.19 现浇C20楼梯2m29.03 (3.6-0.24)*(2.4-0.24)*4 分层投影面积之和10 现浇C20雨蓬2m3.2610 现浇C20雨蓬2m3.26 (0.9+0.12)*(2.7+0.5)11 现浇C20天沟3m 1.93(0.4+1.6-0.2*0.08+0.34*0.1)*(23.3+0.24)天沟与圈梁整体现浇12 女儿墙压顶3m1.18 0.3*0.06*(68-2.4-0.24)13 预应力空心板3m39.75 0.119*334 共334块预制板(二)钢筋工程量计算1 构造柱钢筋计算(1)纵筋Φ14 m1890.32理论值:L=1752.32(12.6+0.1+0.24-0.12+40*0.014-0.03*2)*4*19+(11.38+0.24+40*0.014-0.03*2)*4*10+(13.9+0.1+40*0.014-0.3*2+0.24-0.12)纵筋锚入基础或地圈梁内40d.. . .. . ..序 号分项工程名称单位数 量 计 算 公 式 备注3矩形梁钢筋计算mΦ12:660.76 Φ20:74.10 Φ8:909.86Φ12:294.18+126.15+127.95+59.52+52.96 Φ8:367.43+205.50+131.36+66.98+138.54(1)L1(1)梁mΦ12:314.04 Φ8:367.43Φ12:[(1.5+0.06+0.12-0.03*2)*4+5.5*0.012*2]*38+(1.5*4+5.5*0.012*2)*7=294.18搭接长度:294.18/8*45*0.012=19.86 Φ8:[(1.5+0.06+0.12-0.03*2/0.2+1]*38*[(0.12+0.3-0.02*4)*2+11.87*0.008*0.2]+[(0.24+0.3-0.02*4)*2+11.87*0.008*2]*(1.5/0.2+1)*7主筋 箍筋Φ8@200(2)L2(1)梁mΦ12:126.15 Φ8:205.50Φ12:(1.5*4+5.5*0.012*2)*21]=126.15 Φ8:(1+1.5/0.2)*21*[(0.24+0.3-0.02*4)*2+11.87*0.008*2=205.50箍筋Φ8@200(3)L3(4)、 L5(5)梁mΦ12:127.95 Φ8:131.36Φ12:(3.3*9+5.5*0.012*2)*4=119.86 搭接长度:119.86/8*45*0.012=8.09 Φ8:(3.3*5/0.2+1+3.3*4/0.2+1)*[(0.12+0.3-0.02*4)+11.87*0.008*2]=131.36箍筋Φ8@200 (4)L2(2)、L4(2)、 L3(1)mΦ12:59.52 Φ8:66.98Φ12:[(3+0.24-0.03*2)+5.5*0.012*2]*4*4+(1.5+5.5*0.012*2)*4=59.52Φ8:[(3.24/0.2+1)*4+(1.5/0.2+1)]*[(0.12+0.3-0.02*4)*2+11.87*0.008*2]=66.98箍筋Φ8@200 (5)L6(1)、L7(1)、 L4(1)mΦ12:52.96 Φ20:74.10 Φ8:138.54Φ12:(3.3+5.5*0.012*2)*2*4+(3.2+5.5*0.012*2)*2*4 =52.96Φ20:(3.3+5.5*0.012*2)*2*4+(3.2+5.5*0.012*2)*(3*4+2)=74.10 Φ8:[(3.3/0.2+1)+(3.2/0.2+1)*4]*[(0.024*2-0.02*4)*2+11.87*0.008*2]=138.54箍筋Φ8@200Φ10:Φ10:.. . .. . .... . .. . ..序 号分项工程名称单位数 量 计 算 公 式备注5天沟板mΦ8:191.59Φ6:70.85 Φ8:[0.6+0.16-0.02*2+(1.6-0.02*2)*3+(0.4-0.02*2)+](0.1-0.02*2)*2]*[(23.3+0.24)/0.2+1]=191.59m Φ6:(23.3+6.25*2*0.006+0.24)*3=70.845箍筋Φ6@2007直行楼梯mΦ6:250.18 Φ8:536.72 Φ10:594.31 Φ12:67.08 Φ18:67.08Φ6:55.44+ 194.74 Φ8:536.72 Φ10:156.95+437.36 Φ12:67.08 Φ18:67.08(1)TB-1m156.95Φ10:[221.5 2.86++15*0.01+6.25*0.01]*(1.05/0.2+1)*2+(221.35 2.08++1)*(1.05-0.03*2+6.25*0.01*2)*2+(1.05-0.06+0.125)*3*2+(0.7+35*0.01+6.25*0.01)*(1.05/0.12+1)*4=156.95(2) TB-2mΦ10:437.36Φ6:55.44 Φ10:2222[ 1.4 2.560.03*2 6.26*0.01*2]*(1.05/0.121)*6( 1.2 2.081)*(1.050.03*2 6.25*0.01*2)*639.3*3+-+++++-++=Φ6:(1.05-0.03*2)*7*8=55.44(3)平台板mΦ8:536.72Φ8:[(1.16+0.24*2-0.02*2+6.25*0.008*2)*(2.64/0.2+1)+( 2.64-0.02*2+6.25*0.008*2)*( 1.64/0.2+1)+(0.4+0.24-0.02*2+0.004)*14*2+(09+0.24-0.02*2+0.04)*9*2+(2.64-0.04+0.04*2)*9+(1.16+0.24*2+0.04)*14]*4=536.72mΦ12:67.08 Φ18:Φ12:(2.64-0.03*2)*2*13=67.08 Φ18:(2.64-0.03*2)*2*13=67.08.. . .. . .... . .. . ..序 号分项工程名称单位数 量 计 算 公 式备注(1)3B1m202.68 Φ6:90.24Φ8:[(1.5+6.25*008*2)*(2.1/0.2+1)+(2.1+6.25*0.008*2)*(0.6+0.04*2)*(12+9)*2]*3=202.68 Φ6:[(1.5+0.04*2)+2.1+0.04*2]*4*2=90.24低筋和面筋Φ8@200架立钢筋Φ6@200(2)3B2、3B3m394.20 Φ6:1513.16Φ8:(1.8+0.04*2)*(1.5/0.2+1)*9+(1.2+0.04*2)9*21=394.20 Φ6:(2.5*9+1.6*13+0.48*26)*3*3+(1.3*9+1.6*7+0.48*14)*4*3+(1.58*13+2.48*9+1.28*9+1.58*7)*4*3=1513.16面筋Φ8@200 低筋和架立钢筋Φ6@200(3)3B4mΦ8:2236.32 Φ6:913.68 Φ8:[202.68-(06+0.04*2)*9]*10+[(1.8+0.04*2)*(9*4+2.1/0.2+1)]*3=2236.32 Φ6:[(2.1*2+0.04*2)*(1.5+0.04*2)*18]*4*3+[(2.1+0.08)*16+1.58*12]*3 低筋和面筋Φ8@200架立钢筋Φ6@200(4) 3B5mΦ12:437.16 Φ6:233.22 Φ8:[(1.5+6.25*0.008*2)*(2.4/0.2+1)+(2.4+6.25*0.008*2)*(1.5/0.2+1)+(0.6+0.04*2)*(13*2+9)]*6+(1.2+0.04*2)*9*3=437.16 Φ6:(47*4*2*3+1.58*25*3)=233.22 低筋和面筋Φ8@200架立钢筋Φ6@200 (5) 3B6mΦ8:1402.8 118 Φ6:391.68Φ8:[(4.4+6.25*0.008*2)*(3.6/0.18+1)(3.6+6.25*0.08*2)*(4.4/0.1+1)+(1.1+0.04*2)*(3*2+19)+1*(2.3/0.2+1)]*4=1402.8 Φ10:1.18*25*4=118Φ6:4.48*6*2+3.68*12*2=391.68 低筋和面筋Φ8@180 Φ8@100、Φ8@200 面筋Φ10@180 架立钢筋Φ6@200 (6)6B1mΦ8:78.62 Φ6:32.48Φ8:(2.4+6.25*0.008*2)(1.5/0.2+1)+(1.5+6.25*0.008*2)(2.4/0.2+1)+(0.6+0.04*2)(9+13*2)+(1.2+0.04*2)*9=78.62 Φ6:2.48*4*2+1.58*4*2=32.48 低筋和面筋Φ8@200架立钢筋Φ6@200(7) 6B2、6B3mΦ6:176.24Φ6:(2.3+6.25*0.08*2)(1.5/0.2+1)+1.6*(2.3/0.2+1)+2.2*9+1.6*11+0.68*13+0.88*9+0.48*13+0.48*9+0.48*11*2+32.48*2=176.24低筋、面筋和架立钢筋Φ6@200(8) VB1mΦ8:151.92 Φ8:3.7*13+2.5*19+0.88*(13+19)*2=151.92低筋和面筋Φ8@200 9 预制板 t1.068 0.166 预应力筋334*3.197=1.068 构造钢筋330*0.498=0.166.. . .. . .... . .. . ..序 号分项工程名称单位数 量 计 算 公 式备注(2)箍筋Φ6m2648.63Φ6 @200根数:[1+(12.7-0.1-4.5)/0.2]*19+[1+(13.9+0.1-5)/0.2]*4+[1+(11.4-0.12-4)/0.2]*10+[1+(1.2-0.5)/0.2]*17=1437根Φ6 @100根数:4/0.1*10+4.5/0.1*19+5/0.1*4+0.5/0.1*17=1540根钢筋长:[(0.24+0.24-4*0..02)*2+6.25*0.006*2]*(1437+1590)=2648.63(3)拉结筋Φ6m4517.1拉结筋单根长:2+0.4+6.25*0.006*2=2.475 外墙根数:[(12.6+0.1-0.14)/0.5+1]*39+(8.6-0.06)+1=1072根内墙根数:[(11.4+0.1-0.12-0.08)/05+1]*43+(8.6-0.06)/0.5+1=1051根女儿墙屋顶楼梯:[(12.6-11.4+0.12-0.14)+1]*17*2+[(13.9-11.4-0.1)/0.5+1]*8=184 扣除:5*47+5*4+2*4*4=287钢筋长:=(1072+1051+184-287)*2.475-(5*2*2*0.7+4*4*2*0.7+72*2*0.1*2*4+ 32*2*0.4)=4517.12圈梁钢筋计算mΦ12:3739.84 Φ 16:253.37 Φ6:3585.86(1) 圈梁主筋计算m3485.92 圈梁长:Φ 12 [166.42+(147.31+10.65)*4+9.6]*4=3231.44m搭接长度为:3231.44/8*45*0.014=254.48(2) 圈梁接头钢筋计算m253.92 圈梁拐角:Φ12(5+8*3+4)*2.4=79.2m 锚固接头:Φ12(16+22*4)*1.68=174.72m(3)洞口加筋长度m253.37Φ16 截面240*480:12*2.96+2.66+2.36*12=66.5 截面240*780:4.76截面240*280:(13*2.56+2*2.26+12*1.96)*2+6*2.56+2*2.26+12*1.96=166.04 截面240*400:7*(1.5-0.06+0.34*2+5.5*0.16*2)=16.07洞口附加2Φ16钢筋m截面240*480:=[(0.24+0.28-0.02*4)*2+6.25*0.006*2]42.5/0.2=202.94 截面240*780:[(0.24+0.78-0.02*4)*2+6.25*0.006*2]*3.2/0.2 =31.28 截面240*280:[(0.24+0.28-0.02*4)*2+6.25*0.006]*2*(46.2*2 +32.2)/0.2=594.97.. . .. . .... . .. . ..序 号分项工程名称单位数 量 计 算 公 式备注10过梁mΦ12:506.16 Φ6:483.53Φ12:(1.4-0.03*2)*4*47+(1.2-0.03*2)*4*8+(1.7-0.03*2)*4*4+(1.2-0.03*2)*4*42=506.16 Φ6:[(0.24+0.12)*2-4*0.02+6.25*0.006*2]*[(1.34/0.2+1)*47+(1.14/0.2+1)*8]+[(0.24+0.2)*2-4*0.02+6.25+0.006*2]*(1.64/0.2+1)*4+(0.12*2*2-0.02*4+6.25*0.006*2)*(1.14/0.2+1)*42=483.53主筋 箍筋Φ6@200合计Φ6 Φ8 Φ10Φ12 Φ14 Φ16 Φ18 Φ20t t t t t t t t3.309 2.59 0.4524.418 2.287 0.4 0.134 0.183(2648.63+4517.1+3585.86+70.85+250.18+3350.7+483.53)*0.222/1000(909.86+15.7+191.59+536.72+4903.7)*0.395/1000(594.31+28.26+118)*0.61/1000 (660.76+67.08+506.16+3739.84)*0.888/1000 1890.32*1.210/1000 253.37*1.58/1000 67.08*2/1000 74.10*2.47/100013.77t五 门窗工程1 玻璃推拉门 2m5.67 2.7*2.1=5.67JM1 2 镶板木门 2m164.22 0.7*2.1*50+0.9*2.1*48M-1,M-2 3 铝合金窗 2m 165.15 1.5*1.5*51+1.2*1.5*4+0.9*0.6*32+1.2*0.9*4+0.9*1.5*16=165.15 C-1,C-2,C-3,C-4,C-5 六楼地面工程1地面细石混凝土防潮2m183.22250.73-(68-2.7)*0.24-(98.42-11*0.9-2*0.7-2.16+2.96)*0.24-[(2.1+1.5-0.24)*9+(3-0.48)]*0.12-27.65=183.22 2水泥楼面2m182.57 359.41 =183.22-2.7*0.24=[182.57-(1.5-0.18)*(2.1-0.18)-(3.36-0.7)*0.12]*2=359.41 3钢筋混凝土自防水楼面2m115.66 27.65*2+30.18*2=115.6620厚水泥沙浆找平层152.8 115.66+[(1.5+2.1-0.36)*(9*2+10*2)+(3.6-0.42)*8]*0.25=152.8 二胶一柔防水层 115.66面转面层.. . .. . .... . .. . ..序 号分项工程名称单位数 量计 算 公 式备注5散水2m75.4868.96*0.5+4*0.5*0.5=75.48七屋面工程1 保温层 3m9.38 [250.73-(68*0.24)]*0.04=9.3840厚珍珠岩 2找平层2m234.4120厚水泥沙浆3柔性防水层2m254.07234.41+(68+3.6*2+2.4*2-0.9-0.24*4+0.24*2)*0.25=254.07二胶一柔4 刚性防水层 2m234.41 234.41 40mmC20混凝土 5 找坡层 2m234.41 234.41 20厚水泥沙浆 6面层2m234.41234.41陶瓷马赛克八装饰装修工程(一) 外墙装饰1 外墙裙仿石面 2m59.63 =(68.96-2.7)*0.9=59.63 2200蓝红色外墙面砖2m 41.3768.96*0.2*33 米黄色外墙面砖2m 739.98 (12.6-0.06)*68.96+(12+0.24*4)*(2.5-0.1)-0.24*1.2-(39.87+37.53+75.06+2.97)=739.984 女儿墙内侧2m 163.58 (68-0.24*4)*(2.5-0.06) 混合沙浆面层(二)内墙装饰1 混合沙浆抹灰2m2343.64外墙内面抹灰(68.96-0.24*4)*(11.4-0.12*4)+(12-0.24*4)*(2.5-0.1)-155.43=603.14 加240内墙双面:[(98.42-1.5*5+0.24*5+3.2-0.24)*(11.4-0.12*4)+(3.3-0.24)*(11.4-3-0.12*3)-117.67]*2=1888.8加120内墙双面:[(1.5+2.1-0.24)*9+(1.5*2-0.48)]*(11.4-0.3*3-0.12)*2+(1.5+2.1-0.24)*(11.4-5.8-0.3-0.12)*2-27*(11.4-0.13*4)*0.24=591.42序号分项工程名称单位数量计算公式备注2 水泥沙浆抹灰2m669.22[(1.5+2.1-0.18*2)*9+(1.5*2-0.18)]*(11.4-0.9-0.12)+(1.5+2.1-0.18*2)*(11.4-0.12*4)+(1.5-0.18)*(5.6-0.12*2)+(2.1-0.18)*(5.6-0.42)-61.74-14*1.35+6.52=675.74卫生间、雨蓬(三)顶棚抹灰1 混合沙浆抹灰2m819.18250.73-166.42*0.24*3-3.06*0.24*3+21.77=819.182 楼梯抹灰2m31.93 29.03*1.13 梁侧面抹灰2m32.74(1.26*2*0.3)*20+1.26*2*0.22*4+(3.3*10+3.2+3-0.24*3-0.12*9)*0.22=32.74(四)油漆工程2m164.2 0.7*2.1*50+0.9*2.1*48 门窗。
工程估价课程设计实例一、教学目标本课程的教学目标是使学生掌握工程估价的基本概念、方法和步骤,培养学生运用工程估价知识解决实际问题的能力。
具体目标如下:1.知识目标:(1)了解工程估价的基本概念、分类和作用;(2)掌握工程估价的主要方法和步骤;(3)熟悉工程估价中的常用指标和计算公式;(4)了解工程估价领域的最新发展动态。
2.技能目标:(1)能够运用工程估价方法对简单工程进行估价;(2)能够分析工程估价中的关键因素和风险;(3)能够运用计算机软件进行工程估价计算和分析。
3.情感态度价值观目标:(1)培养学生对工程估价的兴趣和热情;(2)培养学生严谨、细致的工作态度;(3)培养学生团队协作和沟通交流的能力。
二、教学内容本课程的教学内容主要包括以下几个部分:1.工程估价基本概念:介绍工程估价的定义、分类和作用,使学生了解工程估价在工程建设中的重要性。
2.工程估价方法:详细讲解工程估价的主要方法,包括成本法、市场法、收益法等,并通过实例进行分析。
3.工程估价步骤:阐述工程估价的各个步骤,包括前期准备、现场、资料收集、估价计算、报告撰写等。
4.工程估价指标和计算公式:介绍工程估价中常用的指标和计算公式,如静态投资回收期、净现值等。
5.工程估价案例分析:分析实际工程估价案例,使学生掌握工程估价的实际操作方法和技巧。
6.工程估价软件应用:介绍工程估价软件的使用方法,培养学生运用现代技术手段进行工程估价的能力。
三、教学方法为了实现本课程的教学目标,我们将采用以下教学方法:1.讲授法:通过讲解工程估价的基本概念、方法和步骤,使学生掌握工程估价的基础知识。
2.案例分析法:通过分析实际工程估价案例,使学生了解工程估价的实际操作方法和技巧。
3.讨论法:学生进行分组讨论,培养学生的团队协作和沟通交流能力。
4.实验法:利用工程估价软件进行实际操作,培养学生运用现代技术手段进行工程估价的能力。
5.互动教学:采用问答、提问等方式,激发学生的学习兴趣和主动性。
工程估价课程设计实例6一、课程目标知识目标:1. 学生能理解工程估价的基本概念,掌握工程估价的主要方法与步骤。
2. 学生能掌握各类工程量的计算规则,准确进行工程量清单的编制。
3. 学生能运用工程估价原理,结合实际案例,分析并计算工程项目的总投资。
技能目标:1. 学生具备运用工程估价软件进行工程量清单编制和价格分析的能力。
2. 学生能独立完成一项小型工程项目的估价,并撰写估价报告。
3. 学生能够通过小组合作,进行工程估价的讨论与决策,提高沟通协调能力。
情感态度价值观目标:1. 学生通过学习,培养对工程估价的兴趣,认识到工程估价在工程项目中的重要性。
2. 学生在学习过程中,树立正确的价值观,遵循职业道德,注重诚信估价。
3. 学生能够关注我国建筑行业的发展,了解行业动态,为未来从事相关工作做好准备。
课程性质:本课程为专业实践课程,以实际工程案例为主线,结合理论讲解与实际操作,提高学生的工程估价能力。
学生特点:学生为高中二年级学生,具备一定的数学基础和逻辑思维能力,对实际工程项目有一定了解。
教学要求:教师需采用案例教学法,引导学生参与讨论与实际操作,注重培养学生的实践能力和团队协作能力。
通过本课程的学习,使学生能够将理论知识与实际工程相结合,为未来从事工程领域工作打下坚实基础。
二、教学内容1. 工程估价基本概念:包括工程估价的作用、意义,以及估价的基本原则和方法。
教材章节:第一章 工程估价概述2. 工程量清单编制:讲解各类工程量的计算规则,以及工程量清单的编制方法。
教材章节:第二章 工程量清单编制3. 工程估价方法:介绍单价估价法、总价估价法、指标估价法等常见估价方法。
教材章节:第三章 工程估价方法4. 工程估价实例分析:以实际工程项目为例,分析并计算工程项目的总投资。
教材章节:第四章 工程估价实例分析5. 工程估价软件应用:介绍工程估价软件的使用方法,指导学生进行实际操作。
教材章节:第五章 工程估价软件应用6. 小组讨论与报告:分组进行工程估价实践,撰写估价报告,并进行课堂分享。
工程估价课程设计报告实例一、课程目标知识目标:1. 理解工程估价的基本概念、原则和方法;2. 掌握工程估价中各类费用的构成及计算方法;3. 了解工程估价在实际工程项目中的应用。
技能目标:1. 能够运用工程估价的基本方法,对简单工程项目进行估价;2. 学会使用相关软件和工具,进行工程估价数据的处理和分析;3. 培养学生的团队协作能力和沟通能力,能够就工程估价问题进行讨论和交流。
情感态度价值观目标:1. 培养学生对工程估价的兴趣,激发学生的学习热情;2. 增强学生的责任感,使其认识到工程估价在工程项目中的重要性;3. 培养学生严谨、客观、公正的态度,对待工程估价工作。
课程性质分析:本课程为实践性较强的课程,旨在让学生在实际工程项目中运用所学知识,提高学生的实际操作能力。
学生特点分析:学生在本年级阶段,已具备一定的理论基础,具有较强的学习能力和实践欲望,但对工程估价的实际应用尚不了解。
教学要求:1. 结合实际案例,使学生更好地理解和掌握工程估价知识;2. 注重培养学生的动手能力和团队协作能力;3. 强调情感态度价值观的培养,使学生形成正确的工程估价观念。
二、教学内容1. 工程估价概述- 工程估价的概念与作用- 工程估价的原则与方法2. 工程估价费用构成- 直接费用:人工费、材料费、施工机具使用费等- 间接费用:企业管理费、规费、利润等3. 工程估价计算方法- 单价法- 量价分离法- 类比法4. 工程估价在实际工程项目中的应用- 工程项目案例分析与讨论- 实际工程估价操作演练5. 工程估价软件与工具介绍- 常用工程估价软件的功能与操作- 工程估价数据整理与分析方法6. 团队协作与沟通能力培养- 分组讨论与报告- 模拟实际工程项目,进行工程估价方案制定与展示教学大纲安排:第一周:工程估价概述及原则第二周:工程估价费用构成及计算方法第三周:工程估价在实际工程项目中的应用第四周:工程估价软件与工具介绍及实践操作第五周:团队协作与沟通能力培养教学内容与教材关联性:本教学内容紧密围绕教材,结合课程目标,按照教材章节顺序,有针对性地选择和组织教学内容,确保学生能够系统地掌握工程估价知识。
目录一、编制说明 (4)二、单位工程计价汇总表 (5)三、分部分项工程量计价 (6)1、工程量清单计价的含义 (6)2、分部分项工程计价表 (6)四、综合单价分析 (7)1、综合单价的确定方法 (7)2、综合单价的具体计算公式 (7)3、综合单价分析表 (7)五、措施项目清单与计价表 (8)1、单价措施项目计价表 (8)2、总价措施项目计价表 (9)六、规费及税金计价表 (11)七、工料分析表 (12)1、工料分析的含义 (12)2、工料分析表 (12)附表一:分部分项工程计价表 (13)附表二:综合单价分析表 (19)附表三:工料分析表 (57)附表四:工程量计算过程 (63)一、编制说明1、工程概况:(1)本工程结构设计使用年限为50年,为翠屏山服务区配套服务用房辅楼工程,处于国家规定的夏热冬冷地区范围内。
(2)本工程为公共建筑,建筑物安全等级为二级。
(3)本工程为框架结构,地上两层。
该工程为三级抗震。
总建筑面积为758m2。
(4)本工程施工地形平坦,土质较好。
常年地下水位在地面1.5m以下,施工时可考虑为二类干土。
(5)重要性类别:丙类,地基基础等级:丙级(6)本工程砌体施工质量控制等级为B级。
2、设计说明:(1)基础为550mm高C30柱下独立基础,100mm厚C15混凝土垫层。
(2)墙身:外墙墙体材料采用MU10级非承重页岩模数砖,内墙采用A5级加气混凝土砌块。
墙厚外墙是200mm,内墙是200mm.0.000以下墙体均采用MU15级混凝土普通砖,M10级水泥砂浆砌筑。
(3)楼地面及屋面做法、屋顶抹灰、踢脚线、外墙装饰、内墙抹灰做法见施工图纸。
3、环境保护要求:必须符合当地环保部门对噪音、粉尘、污水、垃圾的限制或处理的要求。
4、本工程预算按包工包料承包方式。
5、编制依据:(1)GB50500-2013《建设工程工程量清单计价规范》(2)GB50854-2013《房屋建筑与装饰工程工程量计算规范》(3)《江苏省建筑与装饰工程计价定额》(上、下)(4)《江苏省建设工程工程量清单计价项目指引》(5)《南京市建筑材料价格信息》(2014年12月)(南京市工程造价信息网http://)二、单位工程计价汇总表工程名称:翠屏山服务区配套服务用户辅楼三、分部分项工程量计价1、工程量清单计价的含义指在拟建工程招投标活动中,按照国家有关法律、法规、文件及标准规范的规定要求,由发包人提供工程量清单,承包人自主报价,市场竞争形成工程造价的计价方式。
欧阳阳理创编 2021.03.04目录第一部分定额计价1、建设工程造价预算书2、编制说明3、单位工程费用表4、工程计价表5、价格调整表6、工程量计算书7、门窗明细表第二部分工程量清单计较1、工程量清单报价表2、投标报价3、单项工程费用汇总表4、分部分项工程量清单计较表5、措施费项目清单计价表6、其他项目清单计价表7、零星工作项目计价表8、分部分项工程量清单综合单价分析表9、主要材料价格表欧阳阳理创编 2021.03.04第一部分定额计价建设工程造价预算书建设单位:云南华海房地产开发有限公司工程名称:华海新天地21号片区A1-1地块工程类别:建筑二类施工单位:中国有色金属工业第十四冶金建设公司建设地点:拥金路取费等级:二级工程规模:约40万平米工程造价:39556815.72元单位造价:523.96元/m2建设(监理)单位:云南工程建设监理有限公司施工(编制)单位:中国有色金属工业第十四冶金建设公司审计单位:单位负责人:曹国勇单位负责人:王勇单位负责人:资格证章:资格证章:资格证章:2015年12月2日2015年12月2日2015年12月2日欧阳阳理创编 2021.03.04编制说明工程名称:华海新天地21号片区A1-1地块【建筑工程、装饰工程】单位工程费用表工程计价表欧阳阳理创编 2021.03.04欧阳阳理创编 2021.03.04欧阳阳理创编 2021.03.04欧阳阳理创编 2021.03.04欧阳阳理创编 2021.03.04欧阳阳理创编 2021.03.04价格调整表工程名称:华海新天地21号片区A1-1地块【建筑工共1页编制人:审核人:工程量计算书门窗明细表第二部分工程量清单计价投标总价单项工程汇总表工程名称:华海新天地21号片区A1-1地块共1页表单位工程费汇总表工程名称:华海新天地21号片区A1-1地块共1页表分部分项工程量清单计价表措施费项目清单计价表工程名称:建筑工程共1页表五其他项目清单计价表工程名称:建筑工程共1页表六零星工作项目计价表工程名称:建筑工程共1页表七欧阳阳理创编 2021.03.04欧阳阳理创编 2021.03.04分部分项工程量清单综合单价分析表工程名称:建筑工程货币单位:元欧阳阳理创编 2021.03.04欧阳阳理创编 2021.03.04欧阳阳理创编 2021.03.04欧阳阳理创编 2021.03.04欧阳阳理创编 2021.03.04欧阳阳理创编 2021.03.04欧阳阳理创编 2021.03.04欧阳阳理创编 2021.03.04欧阳阳理创编 2021.03.04。
完美 WORD 格式整理目录编制说明 (2)单位工程费用表 (3)工程计价表 (4)单位工程人材机汇总表 (9)三材汇总表 (12)价格调整表 (13)工程量计算书 (14)门窗明细表 (26)课程设计评分表 (27)课程设计任务书 (28)编制说明工程名称:单身公寓工程【建筑工程、装饰工程】第1页共1页施工单身公寓工程施工图图号合同单身公寓工程施工合同编制使用2000年全国统一建筑、装饰工程基础定额重庆市基价表依据定额2000年重庆市建设工程费用定额及其配套文件材料2000年重庆市材料价格基价表、重庆市市场价格信息价格其他说明:一、施工组织及施工方法说明1基础垫层为原槽封闭式垫层。
2土方运输采用人工运输 , 运距 5m。
3 混凝土预制构件以及金属构件和木门窗在工厂加工;运输采用汽车, 运距 5km。
4现浇混凝土构件钢筋在现场加工。
二、设计补充说明1 建筑面积为 1013.06m22 零星抹灰均采用1:2 水泥砂浆。
3 零星砌体用 M10混合砂浆砌筑。
4 预应力空心板全部采用YKB3352型。
5 墙身防潮层:用20 厚 1:2 水泥砂浆(掺 5%防水剂)设于标高- 0.06m 处。
三、本预算未包括工资区工资单价调整、混凝土构件的预埋铁件、室外工程(除散水外)。
四、工程量计算及定额使用说明:工程量计算中注明“估”者,是估算的工程量。
五、其他说明1本预算费按核定的土建四类工程标准计取各项费用。
2费用项目只考虑常见费用项目。
3劳动保险费已计入本预算。
单位工程费用表工程名称:单身公寓工程【建筑工程】共 1 页费用代费用名称计算公式费率费用金额号F1 1 基价直接费=F11+F12+F13+F14318542.39 F11 1.1其中:人工费及调增=人工费× (1+ 人工费调整系数 ) 1.2%80160.63 F12 1.2其中:材料费=材料费×材料费调整系数1214914.13 F13 1.3其中:机械费=机械费×机械费调整系数123417.07F14 1.4机上人工调增=机上人工数× 21.82 ×机上人工调增1.2%50.56系数F2 2 综合费=F1×综合费系数12.61%40168.2 F21其中 : 其它直接费=(F2+F3) ×其它直接费系数16.34%6875.78 F22其中 : 临时设施费=(F2+F3) ×临时设施费系数14.67%6173.06 F23其中 : 现场管理费=(F2+F3) ×现场管理费系数22.52%9476.29 F24其中 : 企业管理费=(F2+F3) ×企业管理费系数41.24%17353.57 F25其中 : 财务费用=(F2+F3) ×财务费系数 5.23%2200.76 F3 3 安全文明施工增加费=F1×安全文明施工系数0.60%1911.25 F4 4 劳动保险费=F1×劳动保险费率 4.26%13569.91 F5 5 利润=F1×利润系数 4.35%13856.59F66 人工、材料价差及允许按实计=F61+F62+F63+F64+F65+F66+F67+F68124430.8算的费用F61 6.1土石方人工价差=土石方工日数× (F611-15)5805.84 F611 6.1.1土石方人工调价2626 F62 6.2机械人工价差=机上人工数× (F621-21.82)1579.67 F621 6.2.1机械人工调价3030F63 6.3土建人工价差=( 人工费 - 土石方工日数× 15)/18 ×39607.25 (F631-18)F631 6.3.1土建人工调价2828 F64 6.4材料价差=材料价差68669.72 F65 6.5未计价材料费=未计价材料费167.67 F66 6.6二次或多次转运费=F1×二次转运费系数 1.2%3822.51 F67 6.7扩大包干费=F1×扩大包干费系数 1.5%4778.14 F68 6.8允许按实计算的费用F77 成品门窗制作及配套费=成品门窗制作材料费× 1.050F88 工程定额测定费=(F1+F2+F3+F4+F5+F6+F7)×工程定0.14%717.47额测定费系数F99 税金=(F1+F2+F3+F4+F5+F6+F7+F8)×税金3.43%17602.64系数FA10 风险金 ( 工程量清单报价 )FZ==工程造价 ===F1+F2+F3+F4+F5+F6+F7+F8+F9+FA530799.25编制人:审核人:完美 WORD 格式整理工程计价表工程名称:单身公寓工程【建筑工程】共 5 页定额编号项目名称单位工程单价合价其中:人工费其中:机械费其中:材料费备量单价合价单价合价单价合价注建筑工程土石方工程1A0110场地平整 (300mm内 )1000m20.405288.46116.8315 6.08273.46110.7500 1A0003挖沟槽土方 ( 深度 m以内 )2100m3 4.4151152.95090.051152.95090.050000 1A0034回填土夯填100m3 2.799621.271738.934411234.36180.27504.58001A0041+1A0042*3单 ( 双 ) 轮车运土方~运距 50m100m3 1.248499.95623.94499.95623.940000内1A0044支竹挡土板100m2 4.072512.572087.19236.4962.6200276.171124.56土石方工程小计元9656.947917.05615.331124.56脚手架工程1C0006多层建筑综合脚手架 ( 檐口高100m210.131306.873108.966.6674.7228.19285.59212.082148.58度 )12m 内脚手架工程小计元3108.9674.72285.592148.58砖石工程1D0003砖基础 ^水泥砂浆 M1010m39.6751345.1213014.04219.242121.1517.28167.181108.610725.711D0006 换砖墙 ^混合砂浆 M7.5{6B0351}10m333.5971403.9247167.5291.249784.7916.57556.71096.1136826.01换 M10{6B0352}1D0015 换1/2砖墙 ^混合砂浆10m3 3.4991503.455260.57362.521268.4614.6251.161126.313940.96 M7.5{6B0351} 换 M10{6B0352}砖石工程小计元65442.1113174.4775.0451492.68砼及钢筋砼工程1E0040现浇构造柱 ^C2010m3 3.311777.965885.05461.161526.4456.33186.451260.474172.16 1E0059现浇基础梁 ^C2510m30.1771723.16305240.1242.556.339.971426.71252.53 1E0062现浇圈梁 . 过梁 ^C2510m30.9591908.31830.06439.2421.1938.1836.611430.921372.25 1E0061现浇圈梁 . 过梁 ^C2010m3 4.2111749.257366.09439.21849.4738.18160.781271.875355.84专业资料分享完美 WORD 格式整理1E0046现浇矩形梁 ^C2010m30.271603.16432.85279.1875.3856.3315.211267.65342.27 1E0110现浇有梁板 ^C2010m3 1.991587.863159.84235.26468.1756.33112.11296.272579.58 7E0128门窗分部双扇带上亮铝合金弹门100 系100m214.8515072.282238.243787.6562.4610717.91591.61566.7884.17列带亮镶板木门100m236.725500.742019.87821.44301.634592.811686.4886.4931.761H0002带亮半百叶木门100m220.4013264.52705.972488.12507.5810387.382119.03389.0079.361H0023塑钢推拉窗70 系列100m271.5538171.327311.5624481751.535620.6125486.55102.6973.47 41I0038平开塑钢窗60 系列100m29.7231464.793058.381904185.0729458.12863.33102.699.981H0028门窗分部小计37334.023308.233747278.74 81E0182现浇构造柱 ( 模板 )10m3 3.311865.86175.8621.362056.7176.84585.341067.63533.76 1E0183现浇基础梁 ( 模板 )10m30.1771270.91224.95482.485.3881.6114.44706.9125.12 1E0184现浇矩形梁 ( 模板 )10m30.271564.89422.52747201.69133.235.96684.69184.871E0186现浇圈梁 . 过梁(模板 )10m3 5.171144.75918.1516.422669.858.13300.53570.152947.6891E0197现浇有梁板 ( 模板 )10m3 1.991282.082551.34532.441059.5138.75276.11610.891215.67 61E0199现浇平板 ( 模板 )10m30.5591106.6618.59412.74230.72128.4571.8565.41316.06 1E0201现浇楼梯直形 ( 模板 )10m2 2.903336.54976.98133.2386.6834.3999.83168.95490.46 1E0203现浇悬挑板直形 ( 模板 )10m20.326497162.02133.9243.6625.598.34337.49110.02 1E0207现浇挑檐 . 天沟(模板 )10m30.1932066.23398.78857.16165.43225.0643.44984.01189.91 1E0208现浇零星构件 ( 模板 )10m30.1182374.42280.18984.96116.23258.6130.521130.85133.441E0465预制预应力空心板 ( 模板 )10m3 3.975572.072273.98309.241229.234.57137.42228.26907.3331E0511预制空心板安装 . 灌浆10m3 3.975527.192095.58221.4880.0758.7233.33247.09982.18 1E0521+1E0522*4Ⅱ类构件~ 1km以内10m3 3.975689.032738.8953.28211.79612.942436.4422.8190.671E0528现浇钢筋t13.772763.6238055.05161.12218.362.52860.9254034975.851E0530先张法预应力钢筋冷拨低碳钢t 1.0683202.173419.92335.16357.9583.0688.712783.952973.26丝Φ5以内专业资料分享完美 WORD 格式整理砼及钢筋砼工程小计元95331.618049.6583.1970698.7 7木结构工程1G0001镶板门框断面 52cm2 全板制作100m2 1.6425539.479095.81633.781040.6266.59437.744639.17617.4 71G00211G0090双扇带上亮铝合金弹门100 系100m214.8515072.282238.233787.6562.4610717.91591.61566.7884.17列带亮镶板木门100m236.725500.742019.87821.44301.634592.811686.4886.4931.76100m220.0413264.52705.972488.12507.5810387.382119.0338979.367E0080 换塑钢窗推拉 70 系列100m2 1.6527211.1311912.792870.44741.9430.56711.293910.176459.6 7E0103 换100m20.0575190.75295.871921.18109.51288.1816.432981.39169.94 7E0128门窗分部元 1.70961.97105.9134.8959.63 5.238.9421.8537.34双扇带上亮铝合金弹门100 系100m214.8515072.282238.243787.6562.4610717.91591.61566.7884.17列带亮镶板木门100m236.725500.742019.87821.44301.634592.811686.4886.4931.761H0002带亮半百叶木门100m220.4013264.52705.972488.12507.5810387.382119.03389.0079.361H0023塑钢推拉窗70 系列100m271.5538171.327311.5624481751.535620.6125486.55102.6973.47 41I0038平开塑钢窗60 系列100m29.7231464.793058.381904185.0729458.12863.33102.699.981H0028门窗分部小计37334.023308.233747278.74 87A0040地面砖楼地面水泥砂浆不勾缝100m2 1.157720.83834635.68735.4863.5773.5521.5824.971H0041楼地面~ ( 厚度 20mm)^水泥砂100m2 5.42594.063219.81184.861001.915.0781.68394.132136.18浆 1:241H0087楼梯彩色水磨石 ( 分色 ) 底层100m20.295631.311633.083207.6930.237.2210.792386.49692.08 20mm~面层 15mm^1:21H0095踢脚板彩色水磨石 ( 分色 ) 底层100m 6.62634.074197.54462.783063.6 3.5423.43167.751110.51 12mm~面层 8mm^1:2.51H0174硬木扶手型钢栏杆10m 2.178548.171193.9158.14126.63128.75280.42361.28786.87 1H0176硬木扶手弯头10 个0.7234.09163.86136.6295.630097.4768.23专业资料分享完美 WORD 格式整理1H0182凿石明沟松次坚石净空 300×10m7.416124.2921.07124.2921.070000 3001H0189砼排水坡~厚 60mm^C15100m20.3551367.15485.34378.54134.3867.4823.96921.133271H0029找平层 - 在砼或硬基层上~( 厚100m2 2.344514.31205.52140.4329.115.0735.32358.83841.1度 20mm)^水泥砂浆 1:2.51H0028找平层 - 在砼或硬基层上~( 厚100m27.764544.484227.34140.41090.015.07117389.013020.27度 20mm)^水泥砂浆 1:271H0124陶瓷马赛克楼地面 ^水泥砂浆100m2 2.3442970.536962.92926.822172.419.0544.652024.664745.8 1:2.57楼地面工程小计元33665.0412422.966.6820275.6867屋面工程1I0019防水柔毡二胶一毡撒白石子100m2 1.5281974.883017.62103.14157.6001871.742860.02 1I0038刚性屋面~ 40mm^C20100m2 2.3441640.863846.18396.54929.4939.8893.481204.442823.21 1I0081塑料水落管Φ 114mm10m 2.53211.02533.8817.2843.7200193.74490.16屋面工程小计元7397.681130.893.486173.391耐酸、保温、隔热分部1J0131屋面保温干铺珍珠岩10m30.938813.96763.4965.1661.1200748.8702.37耐酸、保温、隔热分部小元763.4961.120702.37计装饰工程1K0049墙面水泥砂浆粘贴 ^装饰石材100m20.41412541.775192.291125.18465.8221.278.8111395.324717.66 1K0071墙面.墙裙 (砂浆)密缝^面砖100m27.8144606.235992.851043.468153.618.17141.983544.5727697.271K0013墙面、墙裙水泥砂浆砖墙100m2 6.754599.964052.13247.141669.115.51104.75337.312278.1981K0024墙面、墙裙混合砂浆砖墙100m223.43599.1814038.79247.145790.417.28404.87334.767843.4391K0158砼面天棚混合砂浆纸筋灰面100m29.363544.015093.57252.542364.513.29124.43278.182604.631K0208单层木门底油一遍、刮腻子、100m2 1.6421120.991840.67318.42522.8500802.571317.82调合漆~二遍1K0210木扶手不带托板底油一遍、刮100m0.218155.5233.978.317.070077.2216.83专业资料分享完美 WORD 格式整理腻子、调合漆二遍装饰工程小计元66244.218983.784.8446475.8 54小计元其它工程垂直运输一般建筑塔式起重机100m210.1311178.0711935.03001178.0711935.0300 1L0005檐高 20m内其它工程小计元11935.03011935.030建筑工程总计元317541.3579210.23417.07214914.13 11编制人:审核人:专业资料分享完美 WORD 格式整理单位工程人材机汇总表工程名称:单身公寓工程【建筑工程】共 4 页序材料名称用料范围单数量预算价预算价×用量号位1临时设施摊销标准砖千匹10.2971602临时设施摊销钢材kg561.748 2.43临时设施摊销杉原木m3 1.1235004临时设施摊销水泥kg2006.2450.235灰膏建筑工程kg9036.3320.052469.89 6水泥 32.5 级建筑工程kg35050.8250.238061.697特细砂建筑工程t456.856请看分9968.88项8107 胶建筑工程kg189.9 1.27241.17 9CSPE嵌缝油膏 330mmL建筑工程支76.828 1.1789.89 10YJ- 302 粘结剂建筑工程kg 3.91212.1447.49 11YJ-Ⅲ粘结剂建筑工程kg17.38812.14211.09 12安全网建筑工程m225.3287.54190.97 13白乳胶建筑工程kg11.724 5.6265.89 14白石子建筑工程kg1180.380.18212.47 15白水泥建筑工程kg1106.390.4442.55 16板条 1000× 30× 8建筑工程百根 4.81118.6789.82 17扁钢建筑工程kg104.108 2.4249.86 18标准砖 240× 115× 53建筑工程千块247.43616039589.76 19玻璃建筑工程m2170.9203418 20玻璃 3mm建筑工程m27.6851292.22 21玻璃胶建筑工程支86.19822彩色石子建筑工程kg2454.0920.18441.74 23彩色石子浆 1:2建筑工程m30.687699.04480.24 24彩色石子浆 1:2.5建筑工程m30.993634.11629.67 25柴油建筑工程kg225.682 2.2496.5 26窗锁建筑工程把165.227醇酸调合漆建筑工程kg36.614.31523.74 28催干剂建筑工程kg 1.71311.519.7 29底座建筑工程个 1.82430地面砖建筑工程m2117.43631垫木建筑工程m30.11950059.5 32电焊条建筑工程kg111.718 6.3703.82 33镀锌铁丝 14#建筑工程kg12.056 4.4153.17 34镀锌铁丝 22#建筑工程kg54.177 5.25284.43 35镀锌铁丝 8#建筑工程kg263.771 4.21107.83 36对接扣件建筑工程个7.59837二甲苯建筑工程kg38.582 3.82147.38 38防腐油建筑工程kg46.813 3.18148.87 39防水柔毡建筑工程m2192.7577.871517完美 WORD 格式整理41非预应力模板建筑工程m3 3.97542钢管Φ 48× 3.5建筑工程kg304.13343钢筋建筑工程t14.183240034039.2 44钢筋Φ 10 以内建筑工程kg39.75 2.495.4 45钢拉模建筑工程kg75.207 3.3248.18 46钢丝绳 8建筑工程kg 1.317 3.5 4.61 47钢套管建筑工程kg44.507 2.4106.82 48构造柱模板建筑工程m3 3.3149弧形模板建筑工程m30.32650弧形圈梁模板建筑工程m3 5.1751滑石粉建筑工程kg97.2170.438.88 52回转扣件建筑工程个 3.44553基础梁模板建筑工程m30.17754机上人工建筑工程工日193.11455机用柴油建筑工程kg112.145 2.2246.7 56机用汽油建筑工程kg94.727 2.2208.4 57加固钢丝绳建筑工程kg 1.272 3.5 4.45 58建筑油膏建筑工程kg338.965 3.431162.65 59胶带建筑工程卷 1.70960脚手架钢材建筑工程kg398.351 2.771103.43 61金刚石 200× 75× 50建筑工程块25.3711.09281.36 62酒精建筑工程kg0.7157.96 5.69 63矩形梁模板建筑工程m30.2764锯材建筑工程m30.364850309.4 65矿物颜料建筑工程kg50.864 5.14261.44 66缆风桩木建筑工程m30.015005 67冷拔低碳钢丝Φ 5 以下建筑工程t 1.16424002793.6 68冷底子油 30:70建筑工程kg30.527 2.1766.24 69砾石 5-10建筑工程t0.342258.55 70砾石 5-60建筑工程t56.693251417.33 71沥青砂浆 1:2:7建筑工程m30.05583.9829.2 72梁卡具建筑工程kg18.607 3.361.41 73零星卡具建筑工程kg391.931 3.31293.37 74铝合金地弹门建筑工程m2 5.51175铝合金型材建筑工程kg1046.70776麻刀建筑工程kg 4.967 1.04 5.17 77麻刀石灰膏浆建筑工程m30.41192.738.1 78密封毛条建筑工程m842.71779密封油膏建筑工程kg79.97980面砖建筑工程m2800.9353024028.05 81模板建筑工程m3 3.21482模板锯材建筑工程m3 2.3868502028.1 83木拉条建筑工程m30.131850111.35 84木螺丝建筑工程百个42.692285.38 85木螺丝 4× 30建筑工程百个 2.2652 4.53 86木砖建筑工程m30.591500295.5 87平板模板建筑工程m30.55988漆片建筑工程kg0.11714.4 1.6990清油建筑工程kg 2.91116.146.87 91圈梁、过梁模板建筑工程m3 5.1792软填料建筑工程kg88.59193砂纸建筑工程张69.8360.2316.06 94石膏粉建筑工程kg8.3810.6 5.03 95石灰膏建筑工程m312.92370.09905.77 96石油沥青 30#建筑工程kg328.096 1.5492.14 97石油沥青 60#建筑工程kg164.368 1.5246.55 98石油沥青玛蹄脂建筑工程m30.2921673.2488.57 99熟桐油建筑工程kg7.0688.5760.57 100水建筑工程m3574.834 1.6919.69101水泥 107 胶浆建筑工程m30.214371.1379.42 1:0.1:0.2102水泥 425#建筑工程kg161976.8680.2337254.69 103水泥豆石浆 1:2.5建筑工程m30.209158.4833.12 104水泥砂浆 1:27A0040m3 2.927105素普通水泥浆建筑工程m3 4.161353.971472.87 106素水泥浆建筑工程m30.116107塑料薄膜建筑工程kg37.598108塑料水斗建筑工程个 1.59420.6332.88 109塑料弯管Φ 114mm建筑工程个 1.594812.75 110塑料硬管Φ 114建筑工程m26.1115391.65 111碎石 5-10建筑工程t84.047201680.94 112碎石 5-20建筑工程t51.321201026.42 113碎石 5-40建筑工程t153.097203061.94 114陶瓷马赛克建筑工程m2243.19153647.85 115铁钉建筑工程kg183.1 4.73866.06 116土石方工日建筑工程工日527.804157917.08 117无光调合漆建筑工程kg41.50514.31593.94 118镶板 . 胶合板门安装建筑工程m2 1.642119一等锯材(干)建筑工程m38.678507369.5 120乙炔气建筑工程m3 5.35815.0480.58 121乙酸乙脂建筑工程kg7.71610.0877.78 122硬木方建筑工程m30.229850194.65 123油灰建筑工程kg8.604 1.8816.18 124油漆溶剂油 200#建筑工程kg21.362 3.1867.93 125有梁板模板建筑工程m3 1.99126预应力模板建筑工程m3 3.975127预制空心板安装建筑工程m3 3.975128预制砼块建筑工程m30.914180164.52 129原木建筑工程m30.285500142.5 130圆钢Φ 18建筑工程kg118.461 2.4284.31 131粘胶建筑工程kg111.6667.03785.01 132珍珠岩建筑工程m311.70660702.36 133支撑钢管及扣件建筑工程kg356.672 2.79995.11 134直角扣件建筑工程个58.355135直形模板建筑工程m30.326136纸筋建筑工程kg71.1590.5539.14 137纸筋石灰膏浆建筑工程m3 1.873101.01189.19138竹挡土板建筑工程m218.28332.57595.48 139竹脚手板建筑工程m216.2126.67432.32 140抓钉建筑工程工日54.1580.527.08 141装饰石材建筑工程m242.2281004222.8 142综合工日建筑工程工日255.7322.085646.52 143组合钢模板建筑工程kg818.933 3.32702.46 144砼地模建筑工程m2 5.60579.59446.1编制人:审核人:三材汇总表工程名称:单身公寓工程材料单工程直脚手接耗用名称位架摊量销量钢吨15.6090.398材原立木方锯立9.677材方水吨 168.787泥第1页共1页工程摊销用量模板摊销量临时摊销量金额(万金额(万合计单位备元 )元)用量注每万元架小计每万元架小计摊销量摊销量0.8190.910.56217.3880.0171.82 1.123 1.1230.0012.38612.0630.0123.25 2.006 170.7930.169价格调整表工程名称:单身公寓工程【建筑工程】共1页序材料名称单数量单调整单价价差合备号位价价差计注1临时设施摊销标准砖千匹10.29716020040411.882临时设施摊销钢材kg561.748 2.4 4.32 1.921078.563临时设施摊销水泥kg2006.2450.230.290.06120.384扁钢kg104.108 2.4 4.32 1.92199.895标准砖 240× 115× 53千块247.436160*********.446玻璃m2170.92020007钢筋t14.18324004320192027231.368钢筋Φ 10 以内kg39.75 2.4 4.32 1.9276.329冷拔低碳钢丝Φ 5 以t 1.1642400423018302130.12下10水泥 32.5 级kg35050.8250.230.290.062103.0511水泥 425#kg153679.7710.230.320.0913831.1812特细砂t438.07122452310075.6313特细砂t 3.7264545167.6714综合工日工日255.7322.0828 5.921513.92总计68837.4编制人:审核人:工程量计算书基数计算表序单计算公式备注基数名称数量号位一外墙中心线L中m68( 23.3+10.7 ) *21L中1m46.623.3*2基础 12L中3、L中4m21.410.7*2-1=20.4基础 3、4二外墙中心线L外m68.9668+0.24*4三内墙净长线L内m98.4223.06+19.76+29.18+26.421L内1m23.0623.3-2*0.24/2基础 12L内2m99.7623.3-3.3-2*0.24/2基础 23L内4m29.18( 10.7*3-1-16*0.24/2)基础 44L内5m26.4210.7*2+3.6+3.1+0.12-15*0.24/2基础 5四建筑面积m21013.06250.73*4+10.141建筑基底面积m2) * ( 10.7+0.24) -1*6.8 250.73(23.3+0.242楼梯间面积m2( 3.6+0.24) * ( 2.4+0.24)10.14专业资料分享序分项工程名称号一土石方工程1场地平整2人工挖地槽土方(1)基础 1(2)基础 2(3)基础 3(4)基础 4(5)基础 53回填土4余土外运二脚手架工程三砌筑工程1砖基础(1)基础 1(2)基础 2(3)基础 3(4)基础 4(5)基础 52砖墙单位m2m3m3m3m3m3m3m3m3m2m3m3m3m3m3m3基本工程量计算表数量计算公式备注404.65250.73+68.96*2+16441.49( 1) +( 2) +( 3) +(4) +( 5)加宽工作面 30cm ,支挡土板171.10 1.56*( 46.6+23.6-1.15-0.2+0.24) *1.6垫层宽 960mm50.08 1.69*( 19.76-1.28-0.2+0.24)*1.6垫层宽 1090mm63.65 1.95*1.6*20.4垫层宽 1350mm81.27 2.08*[29.18+1- (0..96-0.24)/2*16]*1.6垫层宽 1480mm75.39 2.21*[26.42+0.3- ( 0.96-0.24)/2*15]*1.6垫层宽 1610mm挖地槽土方量- 垫层体积 - 砖基础及地圈梁体279.88积=404.65-96.85-9.59-18.33124.77404.65-279.881013.06综合脚手架96.85(1) +( 2)+( 3) +( 4) +( 5)M10水泥沙浆29.840.24*( 1.6-0.24-0.1+0.525) *折算高度 0.525( 46.6+23.06 )50.080.24*( 1.26+0.788) *19.76折算高度 0.78863.650.24*( 1.26+1.444)折算高度 1.44481.270.24*( 1.26+2.297) * ( 29.18+1 )折算高度 2.29775.390.24*( 1.26+1.838) *26.42折算高度 1.838M10混合沙浆序 单号分项工程名称位( 1)240 墙m 3( 2)120 墙m 3四混凝土及钢筋工程(一)混凝土工程1现浇 C20 构造柱m 32 现浇 C25 基础梁m 33 现浇 C25 地圈梁m 34现浇 C20 圈梁m 3( 1 )2.98m 层 圈梁m3( 2 ) 5.78m 、 8.58m 层 圈m3梁( 3)11.38m 层 圈梁m3( 4)13.88m 层 圈梁m3数 量 计 算 公 式 备注=(墙长 * 墙高 - 孔洞面积) - 圈梁、 过梁、 挑梁体积 =[ ( 68-6.78 ) *12.64+ ( 98.42-1.26*5-2.16-3.87 )*11.5+( 3.2-0.24 )335.97*( 3+2.8*3-0.3*3 )(+ 3.3-0.24 )(* 2.8*3-0.3*3 ) +( 3.6*2+2.4*2 ) *2.5- ( 2.4-0.24 ) *0.3- ( 1.16*0.08+0.24*0.3*2 ) *4-273.3 ) ]*0.24-39.19-2.17[( 2.1+1.5*3-0.24*3)*10.5+( 2.1+1.5-0.24 )34.99) -61.74]*0.12-0.89* ( 11.4-3-2.8-0.3*2构造柱形式: 外墙上柱截面长度:外墙长=( 0.072*5+16*0.0792 ) L 形 5个、T 形 16 个;/0.24=6.78;内墙柱长 =( 0.072*3+0.0792*9 ) 内墙上 L 形 3个、T 33.1/0.24=3.87型 3 个;女儿墙一字 体积 形 36 个;拄截面 Lv=1.65*0.24*11.5+0.072*2.5*2+0.0792*2.5*2形 0.072 ,T 形 +0.072*36*1.140.0792 ,一字形0.072( 3.2-0.24 ) *0.24*0.3+[ ( 1.5-0.18 ) *10+1.77( 1.5-0.24*2 ) *0.12*0.3+ ( 3.3-0.24 )*9*0.12*0.39.59 0.24*0.24* ( 68+98.42 )39.19(1)+(2)+(3)+(4)QL 净长度: 147.31mQL 兼过梁11.3542.5*0.24*0.48+3.2*0.24*0.78+( 240*480 ):42.5m ,( 147.31-42.5-3.2 ) *0.24*0.24QL 兼雨蓬梁、过梁( 240*480 ) 3.2m 17.85[46.2*0.24*0.28+( 147.31-46.2 )QL 兼过梁*0.24*0.24]*2( 240*280 ):46.2mA 轴线:0.24*0.24*14+0.24*0.3* ( 22.75-14QL 净长度: 22.75m)QL 兼过梁=1.97( 240*400 ): 14m9.45A 轴线之外: 0.24*0.28*32.2+0.24*0.24*QL 净长度: 124.56mQL 兼过梁( 124.96-32.2 ) =7.48( 240*280 ):32.2m0.536 楼梯顶序分项工程名称号5现浇 C20过梁6现浇 C20矩形梁7现浇 C20有梁板8现浇 C20平板9现浇 C20楼梯10现浇 C20雨蓬10现浇 C20雨蓬11现浇 C20天沟12女儿墙压顶13预应力空心板(二)钢筋工程量计算1构造柱钢筋计算(1)纵筋Φ14单数量计算公式备注位GL( 240*120 ):m30.24*0.12*75.4+0.24*0.2*6.8+0.12*0.12*575.4m3.22GL( 240*200 ):6.8m0.4GL( 120*120 ):50.4mm3 2.70[( 3.3-0.24)*4+(1.5-0.24)*20]*0.24*0.3[ (3.3*9+3.2) *1.5*3+2.1*( 1.5-0.24)m3*4+2.26*3.6+( 2.4+2.3)梁的体积和板的体19.93*1.26*4]*0.08+[( 3.3*9+2.76)积合并计算*3+1.26*28]*0.12*0.22+(1.26*7*4+3.2*3)*0.24*0.22m3 5.54(4.4-0.24) * ( 3.6-0.24) *4*0.1m2(3.6-0.24) * ( 2.4-0.24) *4分层投影面积之和29.03m2 3.26m 2 3.26(0.9+0.12) * ( 2.7+0.5)m3 1.93(0.4+1.6-0.2*0.08+0.34*0.1) *天沟与圈梁整体现( 23.3+0.24)浇m3 1.180.3*0.06* (68-2.4-0.24)m339.750.119*334共 334 块预制板理论值: L=1752.32( 12.6+0.1+0.24-0.12+40*0.014-0.03*2)m*4*19+ ( 11.38+0.24+40*0.014-0.03*2)1890.32*4*10+纵筋锚入基础或地圈梁内 40d( 13.9+0.1+40*0.014-0.3*2+0.24-0.12)*4*4+ ( 1.2+40*0.014)*17搭接长度: =1752.32/8*45*0.014=138序单计算公式备注分项工程名称数量号位Φ12:m 3矩形梁钢筋计算m (1)L1( 1)梁m (2)L2( 1)梁mL3( 4)、 L5 ( 5)(3)梁mL2( 2)、 L4( 2)、(4)L3( 1)660.76Φ20:Φ 12:294.18+126.15+127.95+59.52+52.9674.10Φ 8:367.43+205.50+131.36+66.98+138.54Φ8:909.86Φ 12:[ ( 1.5+0.06+0.12-0.03*2)*4+5.5*0.012*2]*38+( 1.5*4+5.5*0.012*2)Φ 12:*7=294.18搭接长度: 294.18/8*45*0.012=19.86314.04主筋Φ 8:Φ 8:箍筋Φ 8@200 [ ( 1.5+0.06+0.12-0.03*2/0.2+1]*38*[367.43( 0.12+0.3-0.02*4 )*2+11.87*0.008*0.2]+[(0.24+0.3-0.02*4)*2+11.87*0.008*2]*( 1.5/0.2+1)*7Φ12:126.15Φ 12:( 1.5*4+5.5*0.012*2) *21]=126.15Φ 8:( 1+1.5/0.2 )*21*[ ( 0.24+0.3-0.02*4)箍筋Φ 8@200Φ 8:*2+11.87*0.008*2=205.50205.50Φ 12:Φ 12:( 3.3*9+5.5*0.012*2) *4=119.86搭接长度: 119.86/8*45*0.012=8.09127.95Φ 8:(3.3*5/0.2+1+3.3*4/0.2+1)Φ 8:箍筋Φ 8@200 *[ ( 0.12+0.3-0.02*4)131.36+11.87*0.008*2]=131.36Φ 12: [ ( 3+0.24-0.03*2)Φ 12:+5.5*0.012*2]*4*4+( 1.5+5.5*0.012*2)*4=59.5259.52Φ 8: [ ( 3.24/0.2+1) *4+箍筋Φ 8@200Φ 8:66.98( 1.5/0.2+1 ) ]*[ ( 0.12+0.3-0.02*4)*2+11.87*0.008*2]=66.98L6( 1)、 L7( 1)、(5)m L4( 1)4雨蓬mΦ 12:( 3.3+5.5*0.012*2)*2*4+Φ12:(3.2+5.5*0.012*2)*2*452.96=52.96Φ 20:Φ 20:( 3.3+5.5*0.012*2) *2*4+74.10箍筋Φ 8@200( 3.2+5.5*0.012*2 ) * (3*4+2 ) =74.10Φ8:Φ 8:[(3.3/0.2+1)+(3.2/0.2+1)138.54*4]*[(0.024*2-0.02*4)*2+11.87*0.008*2]=138.54Φ10:Φ10:[1.14-0.03*2+0.1-0.03*9+0.2+(0.06-0.03)28.26*2+6.25*0.01]*[(3.2-0.03*2)/0.15+1]=28.箍筋Φ 8@200Φ8: 15.786Φ8: [(0.84/0.2+1)]*(3.2-0.03*2)=15.7完美 WORD 格式整理序分项工程名称号5天沟板7直行楼梯(1)TB-1(2)TB-2(3)平台板(4)楼梯梁单数量计算公式备注位mΦ 8:Φ 8: [0.6+0.16-0.02*2+( 1.6-0.02*2) *3+( 0.4-0.02*2 )+] ( 0.1-0.02*2)191.59*2]*[ ( 23.3+0.24 ) /0.2+1]=191.59m箍筋Φ 6@200Φ 6: 70.85Φ 6:(23.3+6.25*2*0.006+0.24)*3=70.845Φ6:250.18mΦ 8:Φ 6: 55.44+ 194.74536.72Φ 8: 536.72Φ 10:Φ 10: 156.95+437.36594.31Φ12: 67.08Φ 12:Φ 18: 67.0867.08Φ 18:67.08Φ 10:[ 1.52 2.86215*0.01+6.25*0.01]*m156.95( 1.05/0.2+1 )*2+ ( 1.352 2.0821) *( 1.05-0.03*2+6.25*0.01*2) *2+( 1.05-0.06+0.125) *3*2+( 0.7+35*0.01+6.25*0.01)*( 1.05/0.12+1 )*4=156.95Φ10:mΦ 10:[ 1.42 2.5620.03*2 6.26*0.01*2]*437.36(1.05/ 0.12 1)*6221)*Φ 6: 55.44( 1.2 2.08(1.050.03*26.25*0.01*2)*639.3*3Φ 6:(1.05-0.03*2) *7*8=55.44Φ 8:[( 1.16+0.24*2-0.02*2+6.25*0.008*2)*( 2.64/0.2+1)+mΦ 8:( 2.64-0.02*2+6.25*0.008*2)*( 1.64/0.2+1)+( 0.4+0.24-0.02*2+0.004)536.72*14*2+ ( 09+0.24-0.02*2+0.04) *9*2+( 2.64-0.04+0.04*2)*9+( 1.16+0.24*2+0.04 ) *14]*4=536.72mΦ 12:67.08Φ 12:(2.64-0.03*2)*2*13=67.08Φ 18:Φ 18:(2.64-0.03*2)*2*13=67.0867.08Φ 6: [ ( 0.+0.24-0.02*4+6.25*0.006) *2]*箍筋Φ 6@200Φ 6:( 2.64/0.2+1 )194.74mΦ 6:Φ 6:90.24+1513.16+913.68+233.22+391.68+32.4序分项工程名称号(1)3B1(2)3B2、 3B3(3)3B4(4)3B5(5)3B6(6)6B1(7)6B2、 6B3(8)VB19预制板完美 WORD 格式整理单数量计算公式备注位mΦ 8: [ ( 1.5+6.25*008*2) * ( 2.1/0.2+1 ) +低筋和面筋202.68( 2.1+6.25*0.008*2)(*0.6+0.04*2)(* 12+9)Φ 8@200Φ 6: 90.24*2]*3=202.68架立钢筋Φ 6@200Φ 6:([ 1.5+0.04*2)+2.1+0.04*2]*4*2=90.24Φ 8:( 1.8+0.04*2) * (1.5/0.2+1) *9+394.20( 1.2+0.04*2)9*21=394.20面筋Φ 8@200mΦ 6:(2.5*9+1.6*13+0.48*26) *3*3+Φ 6:低筋和架立钢筋1513.16( 1.3*9+1.6*7+0.48*14)*4*3+Φ 6@200( 1.58*13+2.48*9+1.28*9+1.58*7)*4*3=1513.16Φ 8:Φ 8: [202.68- (06+0.04*2)*9]*10+[ ( 1.8+0.04*2)*低筋和面筋m2236.32( 9*4+2.1/0.2+1 ) ]*3=2236.32Φ 8@200Φ 6:Φ 6: [ ( 2.1*2+0.04*2)* ( 1.5+0.04*2 )架立钢筋Φ 6@200 913.68*18]*4*3+[ ( 2.1+0.08)*16+1.58*12]*3Φ 12:Φ 8: [ ( 1.5+6.25*0.008*2) * ( 2.4/0.2+1)+( 2.4+6.25*0.008*2) * ( 1.5/0.2+1 ) +低筋和面筋437.16m( 0.6+0.04*2)*( 13*2+9 )]*6+(1.2+0.04*2)Φ 8@200Φ 6:*9*3=437.16架立钢筋Φ 6@200 233.22Φ 6:(47*4*2*3+1.58*25*3) =233.22Φ 8:Φ 8:[ ( 4.4+6.25*0.008*2)*(3.6/0.18+1)低筋和面筋( 3.6+6.25*0.08*2) * (4.4/0.1+1) +1402.8Φ 8@180m( 1.1+0.04*2)* ( 3*2+19 ) +1*118Φ 8@100、Φ 8@200Φ 6:( 2.3/0.2+1) ]*4=1402.8面筋Φ 10@180Φ 10:1.18*25*4=118391.68架立钢筋Φ 6@200Φ6: 4.48*6*2+3.68*12*2=391.68Φ 8:(2.4+6.25*0.008*2 )( 1.5/0.2+1 ) +Φ 8: 78.62( 1.5+6.25*0.008*2 )( 2.4/0.2+1 ) +低筋和面筋m( 0.6+0.04*2 )(9+13*2 )+( 1.2+0.04*2)Φ 8@200Φ 6: 32.48*9=78.62架立钢筋Φ 6@200Φ 6: 2.48*4*2+1.58*4*2=32.48Φ 6:( 2.3+6.25*0.08*2 )(1.5/0.2+1 )+1.6*mΦ 6:( 2.3/0.2+1 )低筋、面筋和架立176.24+2.2*9+1.6*11+0.68*13+0.88*9+0.48*13+0.钢筋Φ 6@20048*9+0.48*11*2+32.48*2=176.24mΦ 8:Φ 8:3.7*13+2.5*19+0.88* ( 13+19)*2=151.92低筋和面筋151.92Φ 8@200t1.068预应力筋 334*3.197=1.0680.166构造钢筋 330*0.498=0.166序分项工程名称号(2)箍筋Φ6(3)拉结筋Φ6 2圈梁钢筋计算( 1)圈梁主筋计算( 2)圈梁接头钢筋计算( 3)洞口加筋长度单数量位m2648.63m4517.1mm3485.92m253.92m253.37m完美 WORD 格式整理计算公式备注Φ 6 @200 根数: [1+(12.7-0.1-4.5 )/0.2]*19+[1+( 13.9+0.1-5) /0.2]*4+[1+( 11.4-0.12-4) /0.2]*10+[1+( 1.2-0.5)/0.2]*17=1437根Φ6 @100 根数:4/0.1*10+4.5/0.1*19+5/0.1*4+0.5/0.1*17=1540 根钢筋长: [ ( 0.24+0.24-4*0..02)*2+6.25*0.006*2]*(1437+1590)=2648.63拉结筋单根长:2+0.4+6.25*0.006*2=2.475外墙根数:[ ( 12.6+0.1-0.14)/0.5+1]*39+( 8.6-0.06)+1=1072根内墙根数: [( 11.4+0.1-0.12-0.08)/05+1]*43+( 8.6-0.06)/0.5+1=1051根女儿墙屋顶楼梯:[ ( 12.6-11.4+0.12-0.14)+1]*17*2+[ ( 13.9-11.4-0.1)/0.5+1]*8=184扣除: 5*47+5*4+2*4*4=287钢筋长: =( 1072+1051+184-287 ) *2.475-(5*2*2*0.7+4*4*2*0.7+72*2*0.1*2*4+32*2*0.4 ) =4517.1Φ 12: 3739.84Φ 16:253.37Φ6: 3585.86圈梁长:Φ12 [166.42+(147.31+10.65)*4+9.6]*4=3231.44m搭接长度为:3231.44/8*45*0.014=254.48圈梁拐角:Φ12( 5+8*3+4 ) *2.4=79.2m锚固接头:Φ12( 16+22*4 ) *1.68=174.72mΦ16 截面 240*480 :12*2.96+2.66+2.36*12=66.5截面240*780:4.76洞口附加2Φ16 钢截面240*280:( 13*2.56+2*2.26+12*1.96)筋*2+6*2.56+2*2.26+12*1.96=166.04截面240*400:7*( 1.5-0.06+0.34*2+5.5*0.16*2) =16.07截面240*480:=[ ( 0.24+0.28-0.02*4)*2+6.25*0.006*2]42.5/0.2=202.94截面 240*780 :[(0.24+0.78-0.02*4)*2+6.25*0.006*2]*3.2/0.2=31.28截面 240*280 :[(0.24+0.28-0.02*4)*2+6.25*0.006]*2*(46.2*2+32.2)/0.2=594.97( 4)箍筋计算3585.86截面 240*400 :Φ 6@200[(0.24+0.4-4*0.02)*2+6.25*0.006*2]*14/0.2=83.65截面 240*300:[( 0.24+0.3-4*0.02)(112.25/0.2+1+111 .76/0.2*2+2+103.01/ 0.2+ 1)=702.625+1924.125 =2626.75完美 WORD 格式整理序分项工程名称 序号 分项工程名称号5散水七屋面工程1 保温层 10 过梁 2找平层3 柔性防水层4 刚性防水层5 Φ 6找坡层6Φ 8Φ 10面层合计Φ 12 Φ 14八装饰装修工程Φ 16 (一)外墙装饰Φ 18 1 Φ 20外墙裙仿石面 2200 蓝红色外墙面 砖五门窗工程3 米黄色外墙面砖 玻璃推拉门12 镶板木门 4 女儿墙内侧3 铝合金窗 (二)内墙装饰 六楼地面工程地面细石混凝土防 1潮2水泥楼面 1混合沙浆抹灰钢筋混凝土自防水3楼面4栏杆扶手单单位位2mm 3m 2mm 2m2m 2t t2mt ttt m 2tm2m 22mm 2m 2m2m 22mm 2数 量 数 量75.48Φ 12: 9.38506.16 Φ 6: 234.41 483.53254.07234.413.309 234.41 2.59 0.452 234.41 4.4182.2870.40.1340.183 59.6341.37739.98 5.67164.22 163.58165.15183.22182.57359.412343.64115.66152.8115.6621.78完美 WORD 格式整理计 算 公 式 备注 计 算 公 式 备注68.96*0.5+4*0.5*0.5=75.48 Φ 12:( 1.4-0.03*2 ) *4*47+ ( 1.2-0.03*2 )*4*8+ ( 1.7-0.03*2 ) *4*4+ ( 1.2-0.03*2 )*4*42=506.16 ) ]*0.04=9.3840 厚珍珠岩 [250.73- ( 68*0.24Φ 6: [ ( 0.24+0.12 )主筋*2-4*0.02+6.25*0.006*2]*[( 1.34/0.2+1 ) 箍筋 Φ 6@200 *47+ (1.14/0.2+1 ) *8]+[ ( 0.24+0.2 )20 厚水泥沙浆 *2-4*0.02+6.25+0.006*2]* (1.64/0.2+1 )*4+ 234.41+ ) *( 0.12*2*2-0.02*4+6.25*0.006*2 )二胶一柔 ( 68+3.6*2+2.4*2-0.9-0.24*4+0.24*2( 1.14/0.2+1 )*42=483.53*0.25=254.07234.41 40mmC20混凝土( 2648.63+4517.1+3585.86+70.85+250.18+3 350.7+483.53 )*0.222/1000234.41) 20 厚水泥沙浆 ( 909.86+15.7+191.59+536.72+4903.7*0.395/1000234.41陶瓷马赛克( 594.31+28.26+118 )*0.61/1000( 660.76+67.08+506.16+3739.84 )*0.888/100013.77t1890.32*1.210/1000253.37*1.58/1000=( 68.96- .7 )*0.9=59.6367.08*2/100074.10*2.47/1000 68.96*0.2*3( 12.6-0.06 ) *68.96+ (12+0.24*4 ) * ( 2.5-0.1 ) -0.24*1.2-2.7*2.1=5.67) =739.98 JM1( 39.87+37.53+75.06+2.970.7*2.1*50+0.9*2.1*48)M-1, M-2 ( 68-0.24*4 ) *( 2.5-0.06 混合沙浆面层1.5*1.5*51+1.2*1.5*4+0.9*0.6*32+1.2*0.9 C-1 ,C-2,C-3,C-4 , *4+0.9*1.5*16=165.15C-5外墙内面抹灰( 68.96-0.24*4) *250.73- ( 68-2.7 ) *0.24-( 11.4-0.12*4 )+(12-0.24*4 )*( 2.5-0.1 ) ( 98.42-11*0.9-2*0.7-2.16+2.96) -155.43=603.14*0.24-[ ( 2.1+1.5-0.24 )*9+加 240 内墙双面:( 3-0.48 ) ]*0.12-27.65=183.22) *[ ( 98.42-1.5*5+0.24*5+3.2-0.24=183.22-2.7*0.24) *( 11.4-0.12*4 )+( 3.3-0.24) -=[182.57- ( 1.5-0.18 ) * ( 2.1-0.18( 11.4-3-0.12*3 ) -117.67]*2=1888.8( 3.36-0.7 ) *0.12]*2=359.41) *9+加 120 内墙双面: [ ( 1.5+2.1-0.24 20 厚水泥沙浆找平( 1.5*2-0.48 )]* ( 11.4-0.3*3-0.12 ) *2+27.65*2+30.18*2=115.66) 层 ( 1.5+2.1-0.24 ) * ( 11.4-5.8-0.3-0.12 115.66+[ ( 1.5+2. -0.36 ) * ( ) +*2-27* ( 11.4-0.13*4 ) *0.24=59*2+10*2.42二胶一柔防水层( 3.6-0.42 ) *8]*0.25=152.8)减 T 型接头面积:27* ( 11.4-0.13*4*0.24=70.50面转面层 减卫生间抹灰; 669.22硬木型钢扶手2.76*2+2.71*6完美 WORD 格式整理序分项工程名称单数量计算公式备注号位m2[ ( 1.5+2.1-0.18*2) *9+ ( 1.5*2-0.18) ]*( 11.4-0.9-0.12) +( 1.5+2.1-0.18*2) * 2水泥沙浆抹灰669.22( 11.4-0.12*4)+( 1.5-0.18)* ( 5.6-0.12*2)卫生间、雨蓬+( 2.1-0.18) * ( 5.6-0.42)-61.74-14*1.35+6.52=675.74(三)顶棚抹灰1混合沙浆抹灰m2819.18250.73-166.42*0.24*3-3.06*0.24*3+21.77=819.182楼梯抹灰m231.9329.03*1.13梁侧面抹灰m232.74( 1.26*2*0.3) *20+1.26*2*0.22*4+( 3.3*10+3.2+3-0.24*3-0.12*9) *0.22=32.74(四)油漆工程m2164.20.7*2.1*50+0.9*2.1*48门窗。
叮叮小文库
第一部分定额计价
1、建设工程造价预算书
2、编制说明
3、单位工程费用表
4、工程计价表
5、价格调整表
6、工程量计算书
7、门窗明细表
第二部分工程量清单计较
1、工程量清单报价表
2、投标报价
3、单项工程费用汇总表
4、分部分项工程量清单计较表
5、措施费项目清单计价表
6、其他项目清单计价表
7、零星工作项目计价表
&分部分项工程量清单综合单价分析表
9、主要材料价格表
叮叮小文库
建设工程造价预算书
工程规模:约40万平米
建设(监理)单位:云南工程建设监理有限公司单位负责人:曹国勇资格证章:
2015 年12 月2 日2015
工程造价:39556815.72元
施工(编制)单位:中国有色金属工业第十四冶金建设公司单位负责人:王勇单资格证章:资格年12月2日2015
第一部分定额计价
建设单位:云南华海房地产开发有限公司工程名称:华海新天地21号片区A1-1地块施工单位:中国有色金属工业第十四冶金建设公司建设地点:拥金路工程类别:建筑二类取费等级:二级
单位造价:523.96元/m2
—审计单位:______________ 位负责人:
证章:
年12月2日
编制说明
工程名称:华海新天地21号片区A1-1地块【建筑工程、装饰工程】
单位工程费用表
工程名称:
【建筑工程】共1页
工程计价表
编制人: 审核人:
叮叮小文库
价格调整表
工程名称:华海新天地21号片区A1-1地块【建筑工程】共1页
编制人:
审核人:
工程量计算书
叮叮小文库门窗明细表
第二部分工程量清单计价
投标总价
建设单位:云南华房地产开发有限公司
工程名称:华海新天地21号片区A1-1地块(建筑、装饰装修)
投标总价(小写):39556815.72元
(大写):叁亿玖佰伍拾伍万陆仟八佰壹拾伍圆柒角贰分
投标人:中国有色金属工业第十四冶金建设公司(单位签字盖章)
法定代表人:_____________ ( ___________ 签字盖章)
编制时间:2015年11月06日
单项工程汇总表
工程名称:华海新天地21号片区A1-1地块共1页表二
单位工程费汇总表
工程名称:华海新天地21号片区A1-1地块共1页表二
分部分项工程量清单计价表
工程名称:华海新天地21号片区A1-1地块表四
工程名称:装饰装修工程
措施费项目清单计价表
工程名称:建筑工程共1页表七
合计(结转至单位工程费汇总表)
分部分项工程量清单综合单价分析表。