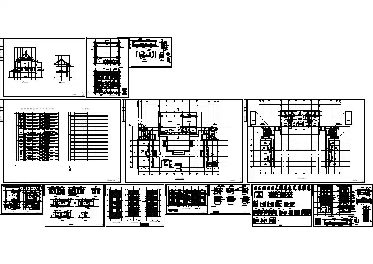
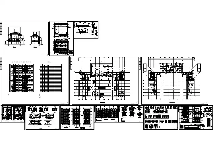
210021002100210043218110121108110250700250200165020050501001007001000200110020050501001007001000392022050016005002204002205001600500220400180300900300180300248018030090030018030010.2001650200200200110020014006007001400600700100x12=1200100x9=900100x18=1800100x30=3000100x13=1300100x21=210050x12=60050x20=1000100140060070014006007001400600700140060070014006007001400600700140060070014006007002.100%%p0.00043218110121108110350500350350500350114006007001400600700%%p0.0002.10017.7006006001400600700140060070014006007001400600700140060070014006007001400600700140060070011140060070014006007004321%%p0.0002.10017.70017.7002.10010.20016.000%%p0.0008110121108110《屋面工程质量验收规范》GB50207-2002,设防烈度为8度,钢筋混凝土结构.八、屋面防水材料的质量标准及施工做法必须符合七、在进行各种面层,垫层,底层施工时,必须严格按照国家颁布的建筑施工及验收乳白色乳胶漆两道.混凝土墙内埋铁件为新02J4-4-37.六、除说明外,预埋木砖满涂沥青防腐料,露明铁件均刷防锈漆一道,按照所选材料的生产厂家编制的施工操作规程在厂家技术人员指导下施工。规范进行施工。对于一些新型装饰材料施工,施工规范尚未纳入的,需严格认真对图,按图施工,如图纸有错、漏、碰、缺,请提交设计人变更后再行施工。五、装饰材料如油漆、涂料、水磨石等需做样板,经设计人同意后方可施工,高级装修材料如内外墙砖等需经考察,经甲方和设计人四、施工过程中要严格遵守国家、自治区有关施工及验收规范,各工种间要该工程的建筑,结构专业施工图设计。4.国家建设部和其他部门颁发的有关设计规范,规程和细则。5.<<房屋建筑制图统一标准>>3.由乌鲁木齐市规划部门提供的建筑选址书。(红线图)2.由新疆有色地质工程公司提供的地质报告。1.由新疆遥安陵园有限公司提供的设计任务书。耐火等级为二级.设计使用年限为50年.同意后方可施工。三、设计内容二,设计依据:十. 外装修材料由甲方自定.工程做法参详新02J3图集.上抹20厚1:2水泥砂浆保护层.6.钢筋混凝土屋面板刮平。5.20厚1:2水泥砂浆找平层。2.4mmSBS高聚物改性沥青防水卷材一层.4.1:5焦渣混凝土找坡层.3.30厚1:2水泥沙浆找平层。九、屋面:(防水等级为 级)1.氯化聚乙烯防水卷材一粘二涂。GB/T5001-2001大门总高度为17.70米.本工程为新疆遥安陵园有限公司九龙生态园--南天门.一,概况建 筑 设 计 总 说 明AAAA建 筑电 气给 排 水结 构暖 通1:100门顶平面图12.25010.2001:503--310.3008.8001:502--21:50g1:50fgf332212.25010.3008.8001:50eeec8.40010.2008.8007.5.4007.5001:25bbbb1:50aa13.90014.200a1:10015.90014.20012.90011.9009.5508.8001:100平 面 图12.90015.9009.5501:1001:1004侧立面图11.9000.20014.2008.80013.90012.20013.20015.90014.20012.90011.9000.2009.5508.80012.25010.3008.80010.3001--1剖面图11.9000.2007.50014.70015.00010.3008.80013.900门天南13.9008.80013.900轴立面图网易 NetEase建筑工程师与建材商的专业网站市场部:ivpmarket@ 技术部:ivptech@穃u5efa筑 编辑部:ivpinfo@土木在线==