一级圆柱齿轮减速器零件图
- 格式:doc
- 大小:345.00 KB
- 文档页数:11
一、设计课题:设计带式输送机运输上的单级直齿圆柱齿轮减速器。
运输机连续工作,单 向运转载荷轻度震动,使用期限 8 年,每年 350 天,每天 8 小时,输送带运动 速度误差不超过 7%。
原始数据:运输带功率 P6(KW)运输带速度 V1.1(m/s)卷筒直径 D180(mm)设计任务要求:1. 减速器装配图纸一张(1号图纸)2. 轴、齿轮零件图纸各一张(2号或3号图纸)3. 设计说明书一份计算过程及计算说明一、传动方案拟定第三组:设计单级圆柱齿轮减速器和一级带传动1、工作条件:使用年限 8 年,工作为一班工作制,载 荷平稳,环境清洁。
2、原始数据:输送带功率 P=6KW;带速 V=1.1m/s;滚筒直径 D=180mm;方案拟定:采用V带传动与齿轮传动的组合,即可满足传动比 要求,同时由于带传动具有良好的缓冲,吸振性能,适应大 起动转矩工况要求,结构简单,成本低,使用维护方便。
1.电动机2. 4.连轴器3.圆柱齿轮减速器5.滚筒6.运输带二、电动机选择1、电动机类型和结构的选择:选择Y系列三相异步电 动机,此系列电动机属于一般用途的全封闭自扇冷电 动机,其结构简单,价格低廉,维护方便,适用于无 特殊要求的各种机械设备。
2、电动机容量选择:电动机所需工作功率为:式:(1)Pd=PW/ηa (kw)由式(2):PW=FV/1000(KW)因此 Pd=FV/1000ηa (KW)由电动机至运输带的传动总效率为:η 总=η1 2 ×η2 3 ×η3×η5式中:η1、η2、η3、η5、分别为轴承、齿轮传动、联轴 器和卷筒的传动效率。
取 η1=0.98,η2=0.97, η3=0.97,η5=0.96则: η 总=0.97 2 ×0.98 3 ×0.97×0.96=0.82所以:电机所需的工作功率:Pd = FV/1000η 总=(5500×1.1)/(1000×0.82)=7.3(kw)3、确定电动机转速卷筒工作转速为:n卷筒=60×1000∙V/(π∙D)=(60×1000×1.1)/(180∙π)=116.7 r/min根据手册P7表1推荐的传动比合理范围,取圆柱齿轮传动一级减速器传动比范围I’=3~7。
《机械设计基础》课程设计说明书题目:带传动及单级圆柱齿轮减速器的设计学院:机械与电子学院专业:机械制造与自动化班级:机制19-1班学号:姓名:李俊指导教师:周海机械与电子学院2019年11月-12月目录一、课程设计任务要求 (3)二、电动机的选择 (4)三、传动比的计算设计 (5)四、各轴总传动比各级传动比 (6)五、V带传动设计 (8)六、齿轮传动设计 (11)七、轴的设计 (19)八、轴和键的校核 (30)九、键的设计 (32)十、减速器附件的设计 (34)十一、润滑与密封 (36)十二、设计小结 (37)十三、参考资料 (37)一、课程设计任务要求1. 用CAD设计一张减速器装配图(A0或A1)并打印出来。
2. 轴、齿轮零件图各一张,共两张零件图。
3.一份课程设计说明书(电子版)并印出来传动系统图如下:传动简图输送机传动装置中的一级直齿减速器。
运动简图工作条件冲击载荷,单向传动,室内工作。
三班制,使用5年,工作机速度误差±5%。
原始数据如下:二、电动机的选择三、传动比的计算设计四、各轴总传动比各级传动比计算结果汇总如下表,以供参考五、传动设计六、齿轮传动设计根据数据:传递功率P1=5.02KW电动机驱动,小齿轮转速n1=480r/min,大齿轮转速n2=166r/min,传递比i=2.90,单向运转,载荷变化不大,使用期限五年,三班制工作。
七、轴的设计主动抽1轴传动功率P2=4.77KW,转速n2=166r/min,工作单向转动轴采用深沟球轴承支撑。
八、轴和键的校核九、键的设计十、减速器附件的设计十一、润滑与密封十二、设计小结这次的课程设计,对于培养我们理论联系实际的设计思想;训练综合运用机械设计和有关先修课程的理论,结合生产实际反系和解决工程实际问题的能力;巩固、加深和扩展有关机械设计方面的知识等方面有重要的作用。
此次减速器,经过两个月的努力,终于将机械设计课程设计作业完成了。
目录一、课程设计任务书 ......................................................................................................................... - 2 -二、传动方案的拟定 ......................................................................................................................... - 1 -三、电动机的选择 ............................................................................................................................. - 2 -四、确定传动装置的有关的参数 ..................................................................................................... - 4 -五、传动零件的设计计算 ................................................................................................................. - 7 -六、轴的设计计算 ........................................................................................................................... - 21 -七、滚动轴承的选择及校核计算 ................................................................................................... - 28 -八、连接件的选择 ........................................................................................................................... - 31 -九、减速箱的附件选择 ................................................................................................................... - 34 -十、润滑及密封 ............................................................................................................................... - 36 -十一、减速箱的附件选择 ............................................................................................................... - 37 -十二、课程设计小结 ....................................................................................................................... - 39 -十三、参考资料 ............................................................................................................................... - 40 -一、课程设计任务书1、设计题目:设计铸造车间碾砂机的传动装置2、设计条件:使用寿命为8年,每日三班制工作,连续工作,单向转动。
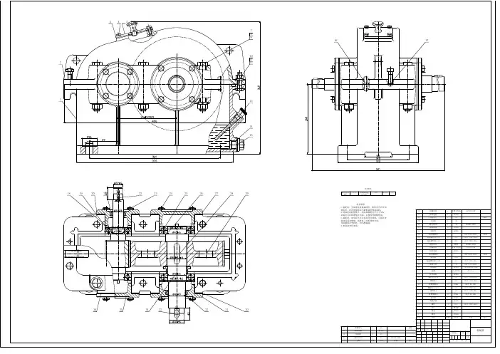
一、仔细分析,对所画对象做到心中有数在画装配图之前,要对现有资料进行整理和分析,进一步搞清装配体的用途、性能、结构特点以及各组成部分的相互位置和装配关系,对其它完整形状做到心中有数。
二、确定表达方案根据装配图的视图选择原则,确定表达方案。
对该减速器其表达方案可考虑为:主视图应符合其工作位置,重点表达外形,同时对右边螺栓连接及放油螺塞连接采用局部剖视,这样不但表达了这两处的装配连接关系,同时对箱体右边和下边壁厚进行了表达,而且油面高度及大齿轮的浸油情况也一目了然;左边可对销钉连接及油标结构进行局部剖视,表达出这两处的装配连接关系;上边可对透气装置采用局部剖视,表达出各零件的装配连接关系及该结构的工作情况。
俯视图采用沿结合剖切的画法,将内部的装配关系以及零件之间的相互位置清晰地表达出来,同时也表达出齿轮的啮合情况、回油槽的形状以及轴承的润滑情况。
左视图可采用外形图或局部视图,主要表达外形。
可以考虑在其上作局部剖视,表达出安装孔的内部结构,以便于标注安装尺寸。
另外,还可用局部视图表达出螺栓台的形状。
建议用A1图幅,1:1比例绘制。
画装配图时应搞清装配体上各个结构及零件的装配关系,下面介绍该减速器的有关结构:1、两轴系结构由于采用直齿圆柱齿轮,不受轴向力,因此两轴均由滚动轴承支承。
轴向位置由端盖确定,而端盖嵌入箱体上对应槽中,两槽对应轴上装有八个零件,如图2-3所示,其尺寸96等于各零件尺寸之和。
为了避免积累误差过大,保证装配要求,轴上各装有一个调整环,装配时修磨该环的厚度g使其总间隙达到要求0.1±0.02。
因此,几台减速器之间零件不要互换,测绘过程中各组零件切勿放乱。
图2-3 轴向相关尺寸2、油面观察结构? 通过油面指示片上透明玻璃的刻线,可看到油池中储油的高度。
当储油不足时,应加油补足,保证齿轮的下部浸入油内,从而满足齿轮啮合和轴承的润滑。
油面观察结构的画法见图2-4,垫片厚1mm,剖面可涂黑。
技术特性输入功率(KW)3.653,高速轴转速(r/min)290.997,低速轴转速(r/min)72.755,传动比 4。
技术要求1.啮合侧隙大小用铅丝检验,保证不小于0.16mm,铅丝饿直径不得大于最小侧隙的两倍.2.用涂色法检验齿轮接触斑点,按齿高接触斑点不小于40%,齿宽接触斑点不小于50%.3.应调整轴承轴向间隙.4.箱座,箱盖及其他零件未加工的内表面,齿轮未加工的表面涂底漆涂红色耐油油膜.5.运转过程中应平稳,无冲击,无异常振动和噪声.各密封处,接合处均不得渗油,漏油.螺旋输送机一级圆柱齿轮减速器的设计摘要此螺旋输送机的设计主要用于物料的传送,根据给定的输送量以及物料特性分别进行叶片用料实形、螺旋直径、螺旋转速等主要参数的设计计算。
传动部分采用电动机带动联轴器,联轴器带动齿轮,齿轮带动联轴器进而带动一级减速器、减速器连接机体的传动方式。
根据计算得出的主要参数选择合适的电动机,从而确定带轮以及减速器的传动比,将主要后续工作引向一级减速器的设计,其中包括主要传动轴的校核、齿轮的选择等计算工作。
最后根据计算所得结果整理出安装尺寸以及装配图的绘制。
关键词:螺旋输送机;减速器;物料运输目录摘要 (1)目录 (2)课题题目 (3)第一章电机的选择 (5)第二章传动装置的运动和动力参数 (7)第三章传动装置的运动和动力设计 (8)第四章圆柱斜齿轮传动的设计 (10)第五章轴的设计计算 (15)第六章轴承的设计与校核 (23)第七章键连接的选择与校核 (28)第八章联轴器的选用 (29)第九章箱体设计 (30)第十章减速器润滑密封 (31)设计心得 (32)参考文献 (32)课题题目题目:设计一用于螺旋输送机上的单级圆柱齿轮减速器。
工作条件:连续单项运转,工作时有轻微震动,使用期限为8年,生产10台,两班制工作。
输送机工作转速的允许误差为±5%。
原始数据:运输机工作轴转矩 T=850 N·m运输机工作轴转速 n=125 rpm1 引言:螺旋输送机是一种常用的连续输送机械。
新乡职业技术学院毕业设计(论文)学院毕业设计(论文)题目:一级圆柱齿轮减速器系别:机械制造系学生姓名:学号:专业名称:机械设计与制造指导教师:2014年12月20日摘要这次毕业设计是由封闭在刚性壳内所有内容的齿轮传动是一独立完整的机构。
通过这一次设计可以初步掌握一般简单机械的一套完整的设计及方法,构成减速器的通用零件图。
这次毕业设计主要介绍了减速器的类型作用及构成等,全方位的运用所学过的知识。
如:机械制图,金属材料工艺学公差等以学过的理论知识。
在实际生产中得以分析和解决。
减速器的一般类型有:圆柱齿轮减速器、圆锥齿轮减速器、齿轮—蜗杆减速器、轴装式减速器、组装式减速器、轴装式减速器、连体式减速器。
关键词:减速器刚性工艺学零部件方案AbstractThis graduation design is a closed all the content in the rigid shell gear transmission is a complete independent institutions. By this time can be designed a preliminary master the simple machines of a complete set of design and method, constitutes a general part drawing speed reducer.This graduation design is mainly introduced the reducer, such as the type of role and composition of comprehensive use of learned knowledge. Such as: mechanical drawing, metal material technology of tolerance to studied the theory of knowledge. To analyze and solve in the actual production. Reducer general type: cylindrical gears reduction gear, bevel gear reducer, gear - worm reducer, shaft mounted reducer, packaged type gear reducer, even with reducer, shaft reducer.Key words: reducer rigid technology components目录摘要 (I)Abstract (II)目录 (III)绪论 (VI)第1章:设计要求 (1)1.1设计题目 (1)1.2运动简图 (1)1.3工作条件 (1)第2章:传动方案的拟定与电机选择 (2)2.1传动方案拟定 (2)2.2选择电动机 (2)2.2.1选择电动机类型 (2)2.2.2选择电动机容量 (2)2.2.3选择电动机的转速 (3)2.3各级传动比的分配 (3)2.3.1计算总传动比 (3)2.3.2分配各级传动比 (3)2.3.3计算各轴转速、功率及转矩、列成表格 (4)第3章:传动零件设计计算 (5)3.1带传动 (5)3.1.1确定设计功率 (5)3.1.2选V带型号 (5)3.1.3确定带轮直径 (5)3.1.4验算带速 (5)3.1.5确定的基准长度和传动中心距 (5)3.1.6验算小带轮包角 (5)3.1.7计算带的根数 (6)3.1.8计算初拉力 (6)3.1.9计算对轴的压力 (6)3.1.10带轮结构设计工作图 (6)3.2齿轮 (6)3.2.1选用斜齿轮传动 (6)3.2.2按轮齿弯曲疲劳强度设计 (7)3.2.3几何尺寸计算 (8)第4章:轴的设计计算与校核 (10)4.1Ⅱ轴选择轴的材料,确定许用应力 (10)4.2按扭转强度,初估轴的最小直径 (10)4.3确定齿轮和轴承的润滑 (10)4.4轴系初步设计 (10)4.4.1轴的结构设计 (10)4.4.2径向尺寸 (10)4.4.3轴向尺寸的确定 (11)4.5轴的强度校核 (11)4.6.1Ⅰ轴选择轴的材料,确定许用应力 (14)4.6.3确定齿轮和轴承的润滑 (15)4.6.4轴系初步设计 (15)4.6.5轴的结构设计 (15)第5章:键的选择与校核 (18)5.1Ⅱ轴齿轮上的键 (18)5.1.1键的类型及其尺寸选择 (18)5.1.2验算挤压强度 (18)5.1.3确定键槽尺寸 (18)5.2联轴器上的键 (18)5.2.1键的类型及其尺寸选择 (19)5.2.2验算挤压强度 (19)5.2.3确定键槽尺寸 (19)5.3Ⅰ轴齿轮上的键 (19)5.3.1键的类型及其尺寸选择 (19)5.3.2验算挤压强度 (19)5.3.3确定键槽尺寸 (19)5.4带轮上的键 (20)5.4.1键的类型及其尺寸选择 (20)5.4.2验算挤压强度 (20)5.4.3确定键槽尺寸 (20)第6章:减速器箱体的设计 (20)第7章:轴承盖的选择 (22)7.1 7207轴承的轴承盖 (22)7.2 7312CJ轴承的轴承盖 (22)第8章:润滑与密封的选择 (23)8.1 润滑 (23)8.2 密封 (23)第9章:减速器附件及说明 (23)9.1 窥视孔盖 (23)9.2 六角头油塞 (23)9.3 通气管 (23)9.4 游标尺 (24)9.5 吊耳和吊钩 (24)9.5.1 吊耳环(铸在箱盖上) (24)9.5.2 吊钩(铸在箱座上) (24)结论 (25)参考文献 (26)致谢 (27)绪论传动装置的总体设计,主要是分析和拟定传动方案,选择电动机型号。
技术要求1.装配前,全部零件用煤油清洗,箱体内不许有杂物存在。
在内壁涂两次不被机油侵蚀的涂料;2.用涂色法检验斑点。
齿高接触斑点不小于50%;必要时可以研磨啮合齿面,以便改善接触情况;3.装配时,剖分面不允许使用任何填料,可涂以密封油漆或水玻璃。
试转时,应检查剖分面,各接触面及密封处,均不准漏油;4.表面涂灰色油漆。
技术特性输入功率(KW) 5.5高速轴转速(r/min)720传动比4比例重量阶段标记共 张 第 张签名文件号分区处数标记(年月日)(签名)标准化(年月日)(签名)设计审核工艺批准1:1装配图123456789101112131415161718192021222324252627282930313233343536序号名称数量材料标准备注1箱座1HT1502箱盖1HT1503垫片1橡胶纸4螺钉48.8GB/T 5782-20165窥视孔盖1Q215A 6通气器1Q235A 7弹簧垫圈14665Mn GB/T 93-19878螺母M1468.8GB/T 6170-20159螺栓M14×11568.8GB/T 5782-201610弹簧垫圈10265Mn GB/T 93-198711螺母M1028.8GB/T 6170-201512螺栓M10×4028.8GB/T 5782-201613杆式油标1Q235A 14油圈1工业用革ZB 70-615油塞M201Q235A JB/ZQ 4450-198616销A8×35235GB/T 117-200017起盖螺钉M10×3018.8GB/T 5782-201618输入轴140Cr 19深沟球轴承2GB/T 276-2013620620轴承透盖1HT15021毡圈油封1半粗羊毛毡FJ145-197922键6X6X321铸铁GB1096-200323端盖螺钉M8×2088.8GB/T 5782-201624端盖螺钉M8×2088.8GB/T 5782-201625深沟球轴承2GB/T 276-2013620926定距环1Q235A 27轴承端盖1HT15028键14X9X50145GB1096-200329大齿轮14530调整垫片108成组31轴承透盖1HT15032毡圈油封1半粗羊毛毡FJ145-1979序号名称数量材料标准备注33键10X8X28145GB1096-200334输出轴14535轴承端盖1HT15036调整垫片108成组。
一级圆柱齿轮减速器设计实例O例:如图1-69所示带式运输机传动方案,运输带工作拉力F=1500N,运输带速度v=1.5n)/s,滚筒直径D=220mm,荐用电机同步转速n=1500rpn)oO工作条件:载荷平稳,连续单向运转,两班制工作。
(运输带与滚筒及支承间的摩擦阻力已在F中考虔)使用期限:寿命十年,大修期三年。
动力来源:三相交流电(220/380V)生产条件:中型机械制造厂,可加工7、8级齿轮、蜗轮。
生产批量:小批量生产。
设计内容:1•减速器装配图一张(1#图纸)2.零件工作图(2〜3张)3.设计计算说明书一份以下为这种方案下设计出的一级直齿圆柱齿轮减速器的计算说明书和减速器装配图(见图1・74)及零件图(从动轴的零件图,见图1-75;齿轮的零件图,见图1-76). O设计说明书联轴器电动机DX/带轮传动一级圆柱齿轮苦差事减速器III工作机OOOOOOOO31 30292827◎n 29403536122±0.010540533513810 11 12 13 14 15 I21H7/r6「n d45k633 32 31* 26 2540] GB 93—198? 垫 GB 6170^1986 " M1065 Mn 39 38 GB 5782-1986M10x35 37 36 35 34 螺母 螺程Q235 Q235 技术待性功率:2.2 kW :高速轴转速:746.7 (r/min);传动比:3.659。
技术要求 1・装配的,所有零件用煤油淸洗,滚动釉承用汽油淸洗•机体内不许 有任何杂物存在。
内壁涂上不被机油浸蚀的涂料两次; 2-喊合测隙用铅丝检验不小于0・16 m 叫 铅丝不得大于最小覽隙的 四倍; 3・用涂色法检验斑点。
按圾髙接触斑点不小于40% ;按悔长接触斑点 不小于50%。
必要时可用研磨或刮后研磨以便改善接触悄况; 4.深构球紬承轴向间隙为0.2-0.5 mm ;5・检査滅速器剖分面、齐接触面及密封处,均不许漏油。
目录一、课程设计任务书....................................................... - 2 -二、传动方案的拟定....................................................... - 1 -三、电动机的选择......................................................... - 2 - 电动机类型的选择.. (2)四、确定传动装置的有关的参数............................................. - 4 -确定传动装置的总传动比和分配传动比。
(4)计算传动装置的运动和动力参数。
(4)五、传动零件的设计计算................................................... - 6 -V带传动的设计计算 (6)齿轮传动的设计计算 (7)六、轴的设计计算........................................................ - 10 -输入轴的设计计算 (10)输出轴的设计计算 (12)七、滚动轴承的选择及校核计算............................................ - 14 -八、连接件的选择........................................................ - 16 -联轴器的选择 (16)键的选择计算 (16)九、减速箱的附件选择.................................................... - 18 -十、润滑及密封.......................................................... - 19 - 十一、课程设计小结...................................................... - 20 - 十二、参考资料.......................................................... - 21 -一、课程设计任务书题目:设计化工易燃易爆品生产车间链板式运输机的传动装置。