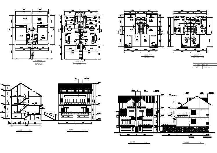
精美二层半带地下室别墅详细设计图
- 格式:dwg
- 大小:1.17 MB
- 文档页数:1
农村自建房2层半独栋别墅含水电、结构全套施工图纸
本户型为2层半独栋别墅,建筑面积682.4平米,占地面积246.97平米。
设有半地下层,建筑面积250.78平方米,有工人房、洗衣房、晾衣间、4间卧室、5个卫生间、健身房、家庭厅、桑拿淋浴室、双车库、5个衣帽间、设备用房、家庭影院;一层设有客厅、厨房、早餐厅、正餐厅、书房、卫生间3间、卧室2间、会客厅、2间衣帽间;二层设有主卧室、2间卧室、3个卫生间、活动室、起居室、4个衣帽间和一个梳妆台;
本户型外观造型简洁大方,色彩明快,功能分区合理,房间尺度设计适宜,采光通风良好,富有时代气息。
鼎川别墅设计图纸_二层农村双拼自建房设计图纸
建筑图:建筑设计说明、工程做法及门窗表、技术层平面图、一层平面图、二层平面图、屋顶平面图、正立面图、背立面图、左立面图、右立面图、A-A剖面图、楼梯大样图、节点详图
结构图:结构设计说明、基础平面图、基础详图、一层结构平面图、二层结构平面图、三层结构平面图、一层梁结构平面图、二层梁结构平面图、三层梁结构平面图、一层柱结构平面图、二层柱结构平面图、三层柱结构平面图、屋面板折角处配筋详图、楼梯结构图
给排水图:给排水设计说明、技术层给排水平面图、一层给排水平面图、二层给排水平面图、屋顶给排水平面图、给排水系统图
电气图:电气设计说明、电气系统图、电位联结做法、技术层照明平面图、一层照明平面图、二层照明平面图、一层插座平面图、二层插座平面图、技术层弱电平面图、一层弱电平面图、二层弱电平面图
技术层:车库、储藏间
一层:客厅、卧室、活动室、厨房、餐厅、卫生间、阳台
二层:起居室、主卧(附步入式衣柜,卫生间,阳台)、2卧室、书房、卫生间。
农村自建房二层别墅设计图纸及效果图大全
独特二层带车库别墅设计图纸及效果图_别墅设计图纸,农村房
效果图:
施工案例图:
二层别墅设计全套图纸效果图_别墅设计图纸,农村房屋设计图
图纸属性
效果图:
施工案例图:
新农村住宅方案_别墅设计图纸,新农村别墅,农村自建房设计
效果图:
施工案例图
二层农村自建房_别墅设计图纸,新农村房屋设计图,农村自建
效果图:
施工案例图:
要找更多二层别墅设计图纸,在别墅图纸超市有上千款设计图纸。
非常好看的农村二层别墅图纸设计范例精选汇总(建议收藏)今天为大家推荐几套不可错过的流行图纸。
下面就一起来看看吧。
图纸编号:gg057别墅风格:中式占地面积:320㎡建筑占地:11.9m×26.9m建筑面积:428㎡建筑整体为中式风格,该栋建筑并非是传统的方正格局,造型较为奇特。
立面多方位开窗设计,使得房屋舒适度更高。
一层入户门居中设计,开门便是挑空客厅,让室内显得敞亮阔气。
一层设有一间卧室,邻近公卫,便于居住者使用。
二层设有三间卧室,均设有阳台,可满足居住者多角度观景的需求。
大露台的设计为居住提供晾衣晒被和休闲的场所。
三层主要是阁楼空间,可灵活进行设计。
图纸链接:12x27二层中式庭院带阁楼别墅图纸编号:yg645别墅风格:中式占地面积:109㎡建筑占地:11.9m×9.2m 建筑面积:334㎡建筑整体为新中式风格,颜色选择上极为淡雅,底部采用面砖配合二层部分的白色真石漆形成舒适视觉感。
屋顶颜色与面砖相近,整体颜色运用突出不同空间。
地下空间相对私密,设计有汗蒸房、健身房、影音室和茶室,相对齐全的功能配合卧室可作业主自用空间。
考虑到卧室需要采光,在东侧和南侧设计有高窗,配合围墙的降低,使得地下空间也有极好居住环境。
一层入户空间利用出挑平台克服高差问题,平台作为室外活动区域,与室内环境相辅相成。
老人房占据东南角采光最好空间,并配有独立卫生间,方便老人日常生活使用。
客餐厅一体化设计让公共空间更加大气,多向采光也使得室内干燥通透,更利于身体健康。
二层为起居空间,共有两间卧室。
西侧卧室配有大面积衣帽间,并与书房紧邻,方便业主家人学习及生活使用。
整层阳台采用连通设计,增加各个房间之间的联系,使得平面更为整体。
图纸链接:占地12x9二层带庭院自建别墅设计全套施工图图纸编号:yg848别墅风格:欧式占地面积:251㎡建筑占地:18.6m×13.5m建筑面积:367㎡通过形体的错落来呼应实现造型的丰富,入口处加入欧式敞廊,作为雨篷强调了入口处的形式感,增加了住宅的华贵气息。
二层新农村小别墅全套图纸
图纸属性
编号:DC0140 层数:二层结构形式:砖混结构主体造价:16-20万
开间:10.76米进深:7.96米占地面积:102.4平方米建筑面积:196.6平方米图纸内容
建筑图:建筑设计说明、一层平面图、二层平面图、屋顶平面图、正立面图、背立面图、左立面图、右立面图、剖面图、门窗详图、门窗表
结构图:基础节点图、基础垫层布置图、基础梁布置图、二层梁布置图、屋顶梁布置图、二层板配筋图、屋顶板配筋图、室外台阶详图、阳台详图、屋顶结构透视图、天沟大样图给排水图:一层水路走向图、二层水路走向图、化粪池详图
电气图:配电系统图、一层插座布局图、二层插座布局图、一层布灯图、二层布灯图设计功能
一层:客厅、卧室、卧室(可作厨房)、餐厅、卫生间
二层:客厅(附阳台)、活动厅、3卧室、卫生间。
住宅地下室方案设计指引一想到住宅地下室,脑海中就浮现出那宽敞、实用的空间,它不仅仅是住宅的延伸,更是生活品质的提升。
我们就来聊聊如何打造一个既实用又美观的住宅地下室方案。
1.设计理念设计理念至关重要。
地下室作为住宅的一部分,应与整体家居风格保持一致,同时突出其独特的功能性。
我们要追求简约而不简单,实用而不失美观,让地下室成为家中的亮点。
2.空间布局(1)客厅:将地下室的一部分设置为客厅,可以让家人在这里休闲娱乐,享受舒适的生活。
可以选择柔软的沙发、舒适的地毯,以及温馨的灯光,营造出轻松的氛围。
(2)卧室:地下室的另一部分可以设置为卧室,为家人提供更多的休息空间。
卧室的设计要注重隐私和舒适度,可以选择柔和的灯光、舒适的床品,以及温馨的装饰。
(3)书房:在地下室设置一个书房,可以让家人在这里安静地学习、工作。
书房的设计要注重光线和通风,同时要考虑到书架和书桌的摆放。
(4)健身房:将地下室的一部分设置为健身房,方便家人锻炼身体。
健身房的设计要注重运动器材的摆放和运动空间的划分,同时考虑到运动时的通风和采光。
(5)储藏室:地下室的空间较大,可以设置一个储藏室,用于存放家庭杂物。
储藏室的设计要注重收纳和整理,避免杂乱无章。
3.色彩搭配(1)米白色:米白色给人一种温馨、舒适的感觉,适用于地下室的整体色调。
(2)深灰色:深灰色具有沉稳、大气的特点,可以作为地下室的辅助色调。
(3)蓝色:蓝色给人一种宁静、清爽的感觉,适用于卧室和书房。
(4)绿色:绿色具有生机勃勃的特点,可以用于健身房,营造出活力四溢的氛围。
4.材料选择(1)地面:可以选择防滑、耐磨的地砖,如抛光砖、仿古砖等。
(2)墙面:可以选择环保、易清洁的乳胶漆,或者使用壁纸作为装饰。
(3)家具:选择简约、实用的家具,如沙发、床、书桌等。
(4)灯具:选择节能、环保的灯具,如LED灯、节能灯等。
5.装饰搭配(1)挂画:在客厅、卧室等区域挂上精美的挂画,提升空间品味。
农村自建房二层带地下室房屋设计图_农村二层房屋设计图9x10米
图纸预览图及简介:[仅是局部效果预览,详细内容及整套图纸请下载附件查看]
本项目为低层住宅建筑(地上二层,一层地下室)。
耐火等级为二级。
设计使用年限为50年,结构选型为砖混砌体结构。
本工程总建筑面积为238.37㎡。
本套图纸只建只建筑施工图,以下是房屋图纸信息介绍:
建筑占地尺寸为:9.6m*10.9m;
建筑层数:地上二层,地下一层;
建筑高度:7.7m(含屋顶高度);
屋顶形式:坡屋顶;
建筑结构:砖混结构;
设计功能:
地下室,火炉房、厨房、餐厅、卫生间;
一层,娱乐室、前厅、客厅、卧室两间、卫生间;
二层:主卧、卫生间、客卧两间、卫生间、露台;
图纸目录:地下室平面图、一层平面图、二层平面图、屋顶平面图、前立面图、背立面图、左立面图、右立面图、节点图、建筑设计说明、楼梯平面、剖面、大样等。
农村自建房二层带地下室房屋设计立面图
地下室平面图
一层平面户型图
二层平面户型图
屋顶层平面图。
农村二层带车库错层别墅设计图纸及效果图图纸属性
编号:
DC0184层数:
二层结构形式:
砖混结构主体造价:18-23万
开间:
10.44米进深:
11.24米占地面积:
97.3平方米建筑面积:
265.1平方米图纸内容
建筑图:
建筑设计说明、工程做法及门窗表、技术层平面图、一层平面图、二层平面图、屋顶平面图、正立面图、背立面图、左立面图、右立面图、A-A剖面图、楼梯大样图、节点详图
结构图:
结构设计说明、基础平面图、基础详图、一层结构平面图、二层结构平面图、三层结构平面图、一层梁结构平面图、二层梁结构平面图、三层梁结构平面图、一层柱结构平面图、二层柱结构平面图、三层柱结构平面图、屋面板折角处配筋详图、楼梯结构图给排水图:
给排水设计说明、技术层给排水平面图、一层给排水平面图、二层给排水平面图、屋顶给排水平面图、给排水系统图
电气图:
电气设计说明、电气系统图、电位联结做法、技术层照明平面图、一层照明平面图、二层照明平面图、一层插座平面图、二层插座平面图、技术层弱电平面图、一层弱电平面图、二层弱电平面图
设计功能
技术层:
车库、储藏间
一层:
客厅、卧室、活动室、厨房、餐厅、卫生间、阳台
二层:
起居室、主卧(附步入式衣柜,卫生间,阳台)、2卧室、书房、卫生间。