桩板墙设计及配筋图
- 格式:pdf
- 大小:265.50 KB
- 文档页数:2
桩板墙工法根据桩身结构设计,桩身挡板段按挡板宽度B放线开挖;桩板以下埋入地面线以下的桩身段,按桩体横宽b放线开挖。
如图所示桩板墙开挖示意图1、挖孔桩施工工艺:放线定桩位及高程一开挖第一节桩孔土方一支护壁模板一放附加钢筋一浇筑第一节护壁砼一检查桩位轴线一架设垂直运输架一安装卷扬机一安装吊桶一照明一活动盖板一水泵通风机等一开挖调运第二节桩孔土方一先拆第一节支第二节模板一浇筑第二节护壁砼一检查桩位轴线一逐层往下循环作业一开挖扩底部分一检查验收一绑扎钢筋一放砼串筒一浇筑桩身砼(随浇随振)。
具体施工工艺图如下:挖孔林廠T T艺根图2、施工方法:首先测定桩位、平整场地,安装井架,修筑出渣道路。
孔口部分处理:根据桩孔孔口段土质情况将井口挖至1m深时,即采用与桩身同级的钢筋砼浇筑成锁口。
以防止下节井壁开挖时井口沉陷。
锁口顶面平整,并略高出原地面18cm。
桩孔开挖:开挖采取边挖边护的方法。
每节挖深1m后,浇筑砼护壁,护壁厚根据地质情况具体确定。
为减轻开挖时对井壁的震动,土质地段采用人工从上到下逐段用镐、锄进行。
坚硬土层用锤、钎或风镐破碎。
挖土次序先中间后周边挖孔。
软岩地段采用人工配合风镐进行。
桩基嵌岩深度范围不采用爆破施工。
开挖过程中遇到地质破碎的地带用钢箍或木头加强支护,同时加紧护壁施工,使护壁尽快达到固壁作用。
施工中随时检查孔径、中线及标高。
每次开挖后都作好井身地质的观察和记录,描绘地质柱状图,地质与设计不符时报请监理工程师及设计代表,并采取相应的处理措施。
挖孔桩护壁采用C20砼,20cm厚,配分布筋8间距25cm主筋12间距30cm以保护挖孔桩周围土体。
挖掘方法一般组织两班制连续作业,采用电动链滑车或架设三脚架,用10KN20KN,慢速卷扬机提升,卷扬机要设限位器。
弃渣装入吊桶通过卷扬机提升至空外堆弃。
为保证方桩浇筑支模的需要,桩板墙桩基开挖尺寸比桩基尺寸各边大20cm。
桩模板采用定型钢模,支撑采用钢管支撑。
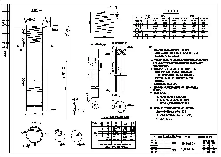
桩板式挡土墙构造图纸一、桩板式挡土墙的组成桩板式挡土墙主要由桩、挡土板和锚固件等组成。
桩是主要的受力构件,通常采用钢筋混凝土灌注桩或预制桩。
桩的间距和深度根据土体的性质、墙高和荷载等因素确定。
挡土板一般采用钢筋混凝土板,其厚度和配筋根据受力情况计算确定。
挡土板可以水平放置,也可以倾斜放置,以适应不同的地形和工程要求。
锚固件用于连接桩和挡土板,增强结构的整体性和稳定性。
常见的锚固件有锚杆、锚索等。
二、桩板式挡土墙构造图纸的内容桩板式挡土墙的构造图纸应包括平面图、立面图、剖面图、节点详图等。
1、平面图平面图主要展示桩板式挡土墙在水平方向的布置情况,包括桩的位置、间距、挡土板的长度和连接方式等。
同时,还应标注出周围的地形、建筑物和道路等相关信息。
2、立面图立面图反映了桩板式挡土墙的高度和外形,展示了桩的入土深度、露出地面高度、挡土板的高度和倾斜度等。
此外,还需标注出墙顶和墙底的标高。
3、剖面图剖面图详细展示了桩板式挡土墙的内部构造,包括桩的尺寸、配筋、挡土板的厚度和配筋、锚固件的布置和连接方式等。
剖面图应选取具有代表性的部位,如桩与板的连接处、桩的锚固段等。
4、节点详图节点详图用于放大和详细展示关键部位的构造和连接方式,如桩与板的连接处、锚固件与桩和板的连接节点等。
节点详图应标注清楚各构件的尺寸、钢筋的规格和布置、焊缝的要求等。
三、桩的构造桩的构造设计直接影响到桩板式挡土墙的稳定性和承载能力。
桩的直径和长度应根据土体的性质、墙高和荷载等因素进行计算确定。
一般来说,桩的直径不宜小于06m,桩的长度应穿过潜在滑动面,并进入稳定土层一定深度。
桩的配筋应根据桩的受力情况进行计算。
在桩的受拉区和受压区应配置足够的纵向钢筋,同时还应设置箍筋以增强桩的抗剪能力。
桩的混凝土强度等级一般不低于 C25,以保证桩的强度和耐久性。
四、挡土板的构造挡土板的厚度和配筋应根据其受力情况进行计算。
挡土板的厚度一般不宜小于 02m,配筋应满足强度和裂缝控制的要求。