主体阶段施工现场平面布置图
- 格式:pdf
- 大小:628.01 KB
- 文档页数:1
施工平面布置图平面布置必须有效安排、充分利用场地的使用空间,科学规划现场施工道路,最大限度减少和避免对周边环境及人员生活工作的影响,满足安全生产、文明施工、健康生活和环境保护的要求。
做好对平面的分配和统一管理,协调各专业对平面的使用,并对施工区域和周边各种公用设施加以保护。
第一节、施工现场临时平面布置原则11.1.1、临时平面布置原则在满足施工的条件下,尽量节约现场办公占地和仓库用房占地;满足施工需要和文明施工的前提下,尽可能减少材料堆放场地;在保证场内交通运输畅通和满足施工对材料需要的前提下,最大限度地减少场内运输,特别是减少场内二次搬运;在平面交通上,要尽量避免装修、安装等单位相互干扰;要服从业主单位的统一协调和管理,制定符合施工现场卫生及安全技术要求和防火规范。
各种生产生活的设施应便于人员的生产生活。
满足安全防火、劳动保护的要求。
第二节、临时设施11.2.1、现场办公室和材料仓库的布置根据现场建筑平面,结合施工场地现状,以及业主的要,在施工现场将不考虑设置办公室、现场仅根据实际施工需要设置材料堆场、临时加工场地等临建设施。
现场楼层还将根据临时用电用水,以及消防的需要,布置临时供电供水线路,和消防器材。
现场办公室安排在甲方指定办公用房内,主要是项目管理的集中地,便于贴进施工现场进行管理和协调工作。
在现场要考虑一个材料综合仓库,主要放置零星材料、机具设备和贵重物品,便于材料搬运及管理。
油漆仓库也设在现场内,与综合仓库分开搭设,主要考虑到油漆材料属易燃易爆物品,应做好通风防火工作,并派专人看管,有效地预防和控制意外事故的发生。
用于工程上的材料,我公司将会和材料供应商协商材料的进场时间、进场数量。
只有当前需要用到工程的材料,根据项目部的总体进场时间要求,进行组织进场。
材料的进场计划必须满足当前施工的需要,避免材料在现场的堆放。
以上布置是施工前期安排,随着施工进度的深入,当某个部位需要搬离时,再根据现场情况,进行合理调整。
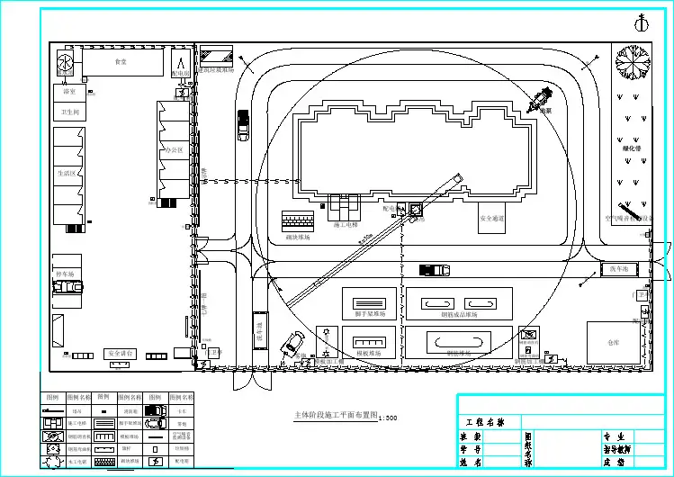
各阶段施工平面布置图1 施工分区图本工程施工将整个区域划分为9个施工区,并依照上图所分施工区域拟采用三家主体施工队伍,土方开挖将坡道留置在2区北侧、6区东侧地下车库范围以外,区域内全部开挖到基底标高,进行桩基施工。
开挖阶段由中间向南北两端进行开挖。
2 土方开挖阶段(1)封闭管理①现场大门:在场地北侧、场地西南侧、东南侧共设置三个大门入口,用于人员和材料进出。
②现场围护:现场围墙将采用现场南北侧围墙采用240mm厚砖砌围墙,高度 2.5m。
东西两侧将采用用可拆卸式组合式金属围墙,高度1.8m。
③门卫室:现场大门处设置门卫室,雇用保安24小时值班,负责施工现场的保卫工作。
④现场道路:北面、南面利用已有的临时道路作为施工主干道。
所有施工道路及下基坑通道均兼作临时消防通道。
(2)生产区临建(3)标识标牌布置①施工图牌:在大门入口处设置施工图牌,包括企业标牌、工程概况牌、质量管理组织构架牌、安全管理组织构架牌、消防组织架构、项目组织架构、施工平面布置图、农民工须知牌等。
②安全标识牌:在基坑周边等处悬挂安全标识牌。
③导向牌:为便于交通管理,在现场大门口设置导向牌。
(4)材料堆场土方开挖完成后在基坑内临近位置设置护坡、桩基施工材料及机械堆场。
3 地下室结构施工阶段地下施工全面开始之后,除2、6区留置位置作为临时材料中转场地,其他区域进行基础及地下室结构施工,在各区施工过程中,重点先抢出5区车库,完成时候后即立刻开展2、6区车库施工。
地下室施工一阶段平面布置图地下室施工二阶段平面布置图(1)主要机械(2)材料堆场4 地上结构施工阶段5区车库施工完成后暂时停止区内主楼施工,待2、6区完成施工后,在2区及6区车库顶设置临时材料转运场后恢复施工。
场区内共设置8个钢筋加工场地,钢筋加工场及周转材堆场等随低楼层封顶依需要逐步拆除。
地上结构施工阶段平面布置图(1)主要机械(2)材料堆场5 装饰装修施工阶段本工程全部地下室结构施工完成,6层及以下楼栋地上部分主体施工完成,12层楼栋主体施工至六层后,进行物料提升机安装及装修料场布置和临时道路二次规划,进入砌体并且插入装修施工。
办公大楼工程施工现场总平面布置图办公大楼工程施工现场总平面布置图提要:场地整体规划在本标段施工期间,工程地下室占地面积较大,扣除交通通道外周边可利用空地较小办公大楼工程施工现场总平面布置图1场地整体规划(一)场地特征本工程位于开发区通盛大道西、星湖大道北**区内,2#楼处在1#楼与3#楼之间。
在本标段施工期间,工程地下室占地面积较大,扣除交通通道外周边可利用空地较小,基坑开挖需在基坑支护施工完毕,降水6-7天后进行。
(二)围墙的布置设计场内南北两侧均设有贯穿东西的场内临时道路,与1#楼与3#楼之间均设置门卫室,设专人看护。
基本实行封闭式管理、封闭式施工。
现场采用砖围墙将整个工地现场围护起来,所有围墙面上严格按建设单位要求并结合我单位施工现场标准化管理规定做好CI规划。
(三)道路与大门的布置本工程北侧与3#楼间设置一公用大门,南侧贯穿东西的道路与1#楼与3#楼交界入口处,设门卫看护。
大门为钢管-薄铁板组合大门,大门上刷油漆书写企业名称,门入口处显着位置设立一个宣传标语牌,用于书写七牌两图等,标牌的样式和尺寸、设立的位置报送业主审批。
由于现场场地较小,场内均进行硬化,场地(道路)硬化采用150厚C20现浇混凝土硬化,并按2%的坡度做好排水。
(四)排水设施的布置充分利用前期土方阶段设置在基坑周边的排水设施,在道路一侧增加宽400、深400的排水沟;在大门洗车场(槽)旁设置600×600×600的沉淀池,进行有组织排水,坡度0.2%,排至排污口。
同时在施工场地大门入口处设置洗车场(槽),配备高压冲洗水枪,以免车辆出入带泥,引起扬尘污染。
(五)办公、住宿临建的布置本工程办公、住宿用房设置在北侧,采用二层彩钢板房。
现场办公用房,主要包括甲方、监理办公室各2间,管理人员办公室4间以及现场会议室 (配备空调等办公设施)。
(六)厕所和标养室的布置现场不设置标养室,委托试验室进行标养。
本工程设厕所一个,布置在现场北侧与1#楼交界处,采用240mm厚砖砌,门窗采用铝合金门窗带纱窗,室内墙面、天棚刷大白浆,墙裙高1.5m,采用15厚1:2防水砂浆并镶贴白瓷砖,地面为200mm×200mm防滑地砖,内设自动冲刷设备和洗手盆。
第一章施工现场平面布置图一、施工总平面图二、临时用地表三、布置要求1、现场平面布置要求按工程实施的需要,本工程现场布置分为三个阶段:土方开挖和基础施工阶段、室外工程阶段。
室外工程施工时,除园林和外网单位外各分包材料、设备不再占用室外场地。
办公室移入楼内。
2、施工用地狭小,只能占用本标段范围内的临时用地,承担进场后的场地规划布置、现场临时道路、临时围墙和出入口、临建、临水、临电等临时设施的建设,施工过程中的拆移调整和最后的全部拆除恢复工作。
现场不设置供居住区。
3、做到5个100%:即工地渣土100%覆盖、工地路面100%硬化、出工地车辆100%冲洗车轮、拆除房屋的工地100%洒水压尘、裸露的空地100%绿化或覆盖4、保证满足公共部位的安全和照明,通道照明符合要求,现场(包括各楼层各工作面)排水及时效,保证设备调试和运行的电量、水量储备和提供的接驳点不超过40米,保证提供的临时消防水满足相关要求和足够的水头压力。
5、临电的方案设计从布置上至少满足现场封闭环路,楼内竖向至少满足主体每栋号内隔层布置分配箱,容量设计要满足工程整体需要即满足各独立分包对容量的要求,并在变电站内、各电梯机房处提供临时用电,每处容量不小于50KW并设分配箱。
6、临水的方案设计从布置上至少满足现场封闭环路和相应接驳点,楼内竖向至少满足每栋号内均有一趟竖向消防水并每层设临水接驳口隔层设消防专用接驳口,并配备相应消防器材,容量设计要满足工程整体需要和有关临时消防设施的专项要求。
7、应至少在每四层设置一个配电箱和一个临时水源。
8、工地办公室布置:施工总平面图(基础阶段、主体阶段、装修阶段);施工进度计划网络图;工程施工形象进度图;质量、安全消防、文明施工管理网络图;消防器材布置图。
9、全体现场施工人员应统一佩带工作牌。
10、用钢管脚手架,脚手架走道外侧需设置踢脚板,高度不小于180mm,油漆颜色为红白或黄黑相间色(250mm相间),散水采用硬地坪,外设排水沟。
施工现场总平面布置图第一节总体要求通过对招标文件、工程技术规范、答疑文件的学习,我们已经充分理解了本工程的重要性。
施工现场作为展现我单位形象的窗口,充分考虑了施工活动对社会的影响,对资源的节约和保护。
为满足工程建设顺利进行,我们对工程建设的各个阶段的平面布置进行策划和部署。
1(1(2(32(1(2(3(4)在物流组织上,尽量避免土建、安装专业施工相互干扰。
优化物流组织的程序,做到短距离灵活配送的要求。
(5)施工用房布置考虑分包单位进出场时间、劳动力计划曲线,合理安排办公用房设置时间,以减少措施费用。
(6)现场施工材料堆放应尽量设在水平运输机械的行程范围内,减少二次搬运。
(7)现场临时设施和场地铺装的设计以绿色施工为指导方针,重视减少对资源的消耗、减少废弃物的排放、减少对环境的影响。
设立环境保护设施制定环境保护方案。
(8)符合施工现场卫生及安全技术要求和防火规范。
第二节临时排水、排污沿施工道路一边修排水沟,沟上封盖钢筋篦子,根据现场出水口的位置做好排水坡向,一般不小于2/1000,排水沟末端设沉淀池,雨水、废水经沉淀池后分别排入市政雨水、污水排水管网。
生1)2)⑴用电线路的选择由建设单位提供的电源接入现场配电室,现场用电主要分为,办公、生活区用电;施工机械用电、塔吊;制作车间用电、楼层施工用电。
具体用电线路走向参见施工平面布置图。
现场用电全部采用五芯电缆埋地供电,系统保护采用TN—S系统。
⑵线路的敷设①埋地电缆:埋地电缆的敷设深度应不少于0.6m,并应在电缆上、下均匀铺设不小于50mm厚的细砂,然后覆盖砖等硬质保护层。
埋地电缆穿越道路及易受机械损伤的场所,以及引出地面从2.0m高至地下0.2m处,必须加设防护套管。
②架空电缆:进入楼内的电缆,其垂直敷设的位置应设在楼梯间的空档,固定点以每层楼高度不少于一处为限。
电缆水平敷设时,宜沿墙或门口固定,其最大弧度垂点距地不得小于1.8m,电缆3)为了采用),D=(管网中水流速度V取1.5m/s)取D=100mm,按消防要求,消房供水干管径为Φ100mm,生产用水干管Φ50mm给水钢管、支管管径Φ25mm可满足施工用水要求。
第五部分施工现场平面布置图及施工道路平面图对于施工而言,即对周边居民造成生活、工作的不便,也是施工材料运输的一大弊端;必须切实搞好施工平面布置,使人进入施工现场,感受到干净、整齐、环保、秩序井然,在施工方便的基础上尽可能做到减少对周边的不利影响;一、布置原则及布置依据1、布置原则1充分利用设计文件规划的施工场地,本着满足施工需求、减少施工占地、减少污染,文明大方的原则布置施工现场;2以满足施工生产需要为前提,尽可能地利用场内交通条件,减少对周围环境影响;2、布置依据1招标文件的有关规定;2本投标人在实施本工程过程中的项目管理目标;3、现场在甲方指定点布置办公性和生产性临时设施,其中办公用房及生活性临时设施采用组合板房,卫生间两个、冲凉房采用砖砌,铝扣天花,内墙贴瓷片,外墙刷白;其余采用星铁棚进行搭建;围蔽采用2米高彩色锌瓦,并做好宣传文明施工及管理工作;二、施工临设1、工地出入口设在设有1处;出入口设置钢门封蔽,门口设置洗车槽;2、施工用临设设有项目经理部办公室、监理办公室、会议室、资料室、土建办公室等等;钢筋、模板加工场,砂石堆场按排在停车场北侧;3、临时围墙的搭设:按甲方提供的征地红线,沿四周做2米高彩色锌瓦围蔽;三、临时水电的布置施工用水、用电驳接点由建设单位提供,我司自备1台200KW的发电机;一临时供水管由现场水源接出,沿拟建建筑物周边布置,由支管接到各用水点,且装上水阀;现场施工用水q1临时供电由现场发、配电房接出,沿建筑物周边和临设布置,设四条供电线路,分别供给生活、施工、加工和工作面用电,在各用电处用支路接入,并装上配电箱;按用水量较大的砼养护及砌砖用水量考虑由:q1=k1k2∑Q1×N1/8/3600式中:q1——施工工程用水量L/Sk1——未预计的施工用水系数取~k2——用水不均衡系数取Q1——每台班实物量,砌砖取50m3/台班,浇捣及养护砼取160m3/台班N1——砌墙工程用水定额取200L/m3,砼工程取150L/m3q1=××50×200+160×150/ 8/3600=1.86L/S现场生活用水q2施工高峰期按1500人计算由:q2=P1×N3×k3/T/8/3600+ P2×N4×k4 /3600/24式中:q2——施工现场生活用水量L/SP1——施工现场高峰昼夜人数人,按1300人计算P2——施工现场居住人数人,按1300人计算N3——施工现场施工人员用水定额30L/人·班N4——施工现场居住人员用水定额,取120L/人k3——施工现场用水不均衡系数取k4——施工现场用水不均衡系数取T ——每天工作班数班,平均取班Q3=1300×30××8×3600+1300×120×3600×24 =L/S消防用水量q3现场5000人以内,消防用水定额按10~15L/S计算q3=10L/S总用水量QQ=q1+q2=+=8.41L/S∠q3用水量取Q=q3=10L/S供水管径计算d2=4Q/π×V×100式中:d——供水管直径mV——管网中水流速度m/s,取1.5m/sd2=4×10/××1000=d=0.100m考虑施工现场施工的不均衡性,按85%预以折减,选用DN100管径基本可以满足施工需要;2、管道布置1生活用水按沿地面布置形式至各用水点;2施工用水用DN100mm竖管沿排栅引上至各层;二临时用电施工组织设计和负荷计算主要施工机械设备容量表:照明用电取30kw按上述分析,主体结构阶段为用电高峰,配线应按此计算,同期使用系数取;用电量为×∑P=2、导线选择I=1000×3×380×=3057.9A选择主导线为:BX—6×3x95+250mm23、照明支线选择按50kw选电线截面为3×25mm2为防止停电及施工用电的不足,我司采用3台200KW发电机发电;六、施工平面管理一平面管理总原则在工程实施前,制定详细的大型机具使用,进退计划,主材及周转材料生产、加工、堆放、运输计划,以及各工种施工队伍退场调整计划;同时,制定以上计划的具体实施方案,严格依照执行标准、奖罚条例,实施施工平面的科学、文明管理;二平面管理计划的确定施工平面科学管理的关键是科学的规划及周密详细的具体计划,在工程进度网络计划的基础上形成主材、机械、劳动力的进退场,垂直运输,布设网络计划,以确保工程进度,充分、均衡的利用平面为目标,制定出拟合实际情况的平面管理实施计划;施工时将该计划输入电脑,进行动态调控管理;三平面管理计划的实施根据工程进度计划的实施调整情况,分阶段发布平面管理实施计划,包含时间计划表,责任人,执行标准,奖罚标准;计划执行中,不定期召开调度会,经充分协调研究后,发布计划调整书;经理部负责组织阶段性的和不定期的检查监督,确保平面计划的实施;地上结构施工重点保证项目:垂直运输安全管理;料具置场点有序的调整、管理;材料、机械进退场,使用的科学调度;施工作业工人区域化管理;四平面管理办法1、施工平面管理由项目经理总负责,由项目工长、材料部门、机械管理部门、后勤组织部门实施,按平面分片包干管理措施进行管理;2、施工现场设置“三图七牌”;3、按照总体规划要求做好平面布置,主要包括:现场办公临设布置;材料堆放场地布置;洗车槽则由业主统一布置;现场排水、排污布置;施工现场要加强场容管理,做到整齐、干净、节约、安全,力求均衡生产;4、施工现场切实做到工完场清,施工垃圾要集中堆放,及时清运,以保持场容的整洁;5、办公区、场外生活区参见文明施工有关规定;七、施工总平面布置图施工总平面布置图详见附件;。
第二章-施工现场平面布置图第二章施工现场平面布置图2.1场地概况本工程位于西安市经济技术开发区内,西临明光路、位于凤城八路与凤城九路之间。
场外道路、绿化配置已经完善,环境整洁。
施工中要严加保护。
2.2出入口2.2.1.现场大门布置:在现场大门主出入口,搭建能反映企业精神面貌,宣传广告企业文化和施工现场概要介绍的企业标识标牌。
力求简洁醒目。
门外张挂环境保护监督牌,门外沿两侧围墙悬挂喷绘彩色风景、环保、人文宣传画,装点周边环境,为我市城市创卫、美化环境增添一道亮丽风景线。
2.2.2现场主入口大门设置在现场的东南角。
现场主干道路设置4.5m宽,场内道路用碎石填筑,上铺50mm厚中砂,再做150mm厚C20混凝土面层,全部硬化现场。
并在搅拌站道路周边做排水明沟,截面为200×300mm。
2.3现场临建设置在现场大门西侧设置门卫室一间,在5#、6#楼北侧设置现场办公区和生活区,办公区和生活区临建房屋采用彩钢EPS夹心板双层活动房以及单层砖混结构房,办公区临建房屋共九间,其中:七间现场办公室,一间会议室及一间微机资料室,另外在办公区西侧设置材料库二间,办公区中间设配电间一间;生活区临建房屋共十三间,设置食堂、浴室、文娱活动室、厕所各一间,宿舍九间,现场搭建临建总面积815㎡,办公区、生活区室外设置花坛,营造优雅环境。
现场生活宿舍区用砖围墙和围护栏杆和生产区隔离、隔挡,生活区现场搭建总面积为549㎡。
由于现场生活宿舍区住宿容纳面积满足不了施工要求,则其他施工人员生活区安排在场外,离现场500米远的盐西村两-三层砖混结构民房安排居住,住宿条件良好。
所有生活区域均设专人负责管理。
生产区临建工棚共九间:现场4#、5#楼中间靠西侧设置木工车间一间,东侧设置钢筋棚一间,以及对焊棚、钢筋堆场;4#、5#、6#楼东西两侧及南侧设置钢化堆场。
后期装修阶段现场东面设置水泥库一间,砂浆搅拌站、砂石堆场等,北边设置砖堆场,生产临建搭建面积为183.6㎡,搭建结构采用钢管柱、钢屋架、柃条、彩钢板工棚。