天津项目缓粘结预应力施工方案
- 格式:docx
- 大小:60.02 KB
- 文档页数:17
缓凝结预应力混凝土施工工法缓凝结预应力混凝土施工工法一、前言缓凝结预应力混凝土施工工法是一种应用于建筑领域的先进施工技术,通过使用预应力钢筋和缓凝结混凝土材料相结合,以提高混凝土结构的强度和抗震性能。
本文将探讨这种工法的特点、适应范围、工艺原理、施工工艺、劳动组织、机具设备、质量控制、安全措施、经济技术分析以及工程实例。
二、工法特点缓凝结预应力混凝土施工工法具有以下几个显著特点:1. 利用预应力钢筋提高混凝土结构的承载能力和变形性能;2. 采用缓凝结混凝土材料,形成均匀致密的混凝土结构,提高抗渗性和耐久性;3. 采用模板支撑系统,提高施工效率和质量控制;4. 可以实现高度的工厂化生产,减少现场施工时间和人力成本;5. 施工过程中减少水泥的使用量,减少对环境的影响。
三、适应范围缓凝结预应力混凝土施工工法适用于各种混凝土结构,包括桥梁、建筑和水利工程等。
特别适合对混凝土结构强度和耐候性要求较高的项目。
四、工艺原理该工法基于预应力原理,在混凝土结构中施加预应力,通过预应力钢筋的拉伸将混凝土结构预压,从而增加混凝土的抗弯、抗剪和抗压能力。
而缓凝结混凝土材料具有较长的凝结时间,可提供充分的施工时间,并在凝结后形成均匀致密的混凝土结构,提高了抗渗性和耐久性。
施工过程中,首先进行预应力钢筋的制作,然后利用模板支撑系统进行施工。
在浇筑混凝土过程中,采用缓凝结混凝土材料,通过振捣、养护等工艺措施,确保混凝土的质量和性能。
五、施工工艺缓凝结预应力混凝土施工工艺包括以下几个施工阶段:预应力钢筋制作、模板安装、混凝土浇筑、养护等。
在每个工艺阶段中,都需要严格按照施工规范和要求进行操作,确保施工质量和安全。
六、劳动组织施工过程中需要建立科学的劳动组织,合理安排施工人员的工作任务,确保施工进度和质量。
包括项目经理、施工队长、预应力钢筋工、混凝土工等多个角色,各自负责自己的工作内容。
七、机具设备缓凝结预应力混凝土施工需要使用各种机具设备,包括预应力钢筋加工设备、起重机械、混凝土搅拌设备等。
缓粘结预应力混凝土技术施工工法XX有限公司1、前言因《混凝土结构设计规范》、《建筑抗震设计规范》内两项关于预应力技术在参与抗震计算的框架结构中使用的规定,限制了无粘结预应力技术在参与抗震计算的框架结构中的使用。
但有粘结预应力施工需要预留穿筋孔或预穿预应力筋及套管、后注浆等施工工艺繁琐;无粘结预应力筋在工作中受力几乎处处相等,易造成预应力筋和锚具疲劳以及受拉区混凝土裂缝多、宽度大和结构强度利用率低的缺点。
直接制约了其适用范围。
根据预应力技术的开发发展现状以及本工程体育场看台及竖向框架柱抗拔等结构复杂、工期紧张的要求,必须寻找合理可行的先进技术,确保本工程的结构功能,满足工期要求。
XX有限公司通过对预应力混凝土技术的创新和改进,成功的将缓粘结预应力混凝土技术运用在体育场看台结构及竖向框架柱中。
解决了本工程结构抗震、使用功能,缩短了施工工期,并形成了缓粘结预应力混凝土技术施工工法。
缓粘结预应力混凝土技术的进一步开发发展是工程的迫切需要,缓粘结预应力体混凝土技术将无粘结预应力体系和有粘结预应力体系相结合,缓粘结预应力技术具有无粘结预应力技术施工方便、造价低和有粘结预应力技术所具有的结构延性好、抗震性能优等特点,达到有粘结预应力结构的效果。
2、工法特点缓粘结预应力技术是预应力技术领域中的一个创新,避免了有粘结预应力技术施工复杂,灌浆质量难以保证的缺点,也吸取了无粘结预应力技术施工工艺流程少、进度快的优点。
1、缓粘结预应力筋的张拉端采用单孔夹片锚,固定端采用挤压锚。
2、预应力钢筋采用缓粘结预应力技术。
施工过程中必须保证预应力筋的有效锚固,因此施工前必须严格审图,以防漏放预应力筋现象。
3、可以抵抗温度变化引起的温度应力,控制结构的温度收缩及表面裂缝。
4、施工简便、速度快。
按设计要求铺设→浇筑砼→砼满足强度后张拉→锚固→封锚。
无需预埋孔道、穿筋、灌浆等,简化施工工艺,加快施工进度。
5、结构自重轻。
后张缓粘结预应力砼结构无需预留孔道,提高结构强度,减小构件尺寸及自重。
一、缓粘结预应力工程施工概述1. 施工原理缓粘结预应力工程施工原理是在预应力筋与混凝土之间设置缓粘结材料,如塑料套管、波纹管等,使预应力筋与混凝土之间的粘结速度减慢,从而在混凝土浇筑后的一段时间内,预应力筋仍能自由滑动,待混凝土达到一定强度后再进行张拉,使预应力筋与混凝土缓慢粘结。
2. 施工优势(1)提高结构耐久性:缓粘结预应力技术能够有效防止预应力筋锈蚀,提高预应力混凝土结构的耐久性。
(2)降低施工难度:由于预应力筋与混凝土之间的粘结速度减慢,施工过程中预应力筋可自由滑动,降低了施工难度。
(3)提高施工效率:缓粘结预应力技术可减少施工过程中的停顿时间,提高施工效率。
二、缓粘结预应力工程施工工艺1. 预应力筋下料、制作(1)根据设计要求,对预应力筋进行下料、制作,确保预应力筋的长度、形状、尺寸符合设计要求。
(2)对预应力筋进行表面处理,如除锈、刷油等,提高预应力筋的耐腐蚀性。
2. 缓粘结材料设置(1)根据设计要求,选择合适的缓粘结材料,如塑料套管、波纹管等。
(2)在预应力筋周围设置缓粘结材料,确保预应力筋与混凝土之间的粘结速度减慢。
3. 模板安装、钢筋绑扎(1)根据设计要求,安装模板,确保模板的稳定性和准确性。
(2)绑扎钢筋,确保钢筋的位置、间距、锚固等符合设计要求。
4. 混凝土浇筑、养护(1)按照设计要求,进行混凝土浇筑,确保混凝土的均匀性和密实性。
(2)对混凝土进行养护,确保混凝土达到设计要求的强度。
5. 预应力筋张拉、粘结(1)待混凝土达到一定强度后,进行预应力筋张拉。
(2)张拉过程中,确保预应力筋与混凝土之间的粘结速度符合设计要求。
(3)张拉完成后,对预应力筋进行粘结处理,确保预应力筋与混凝土之间的粘结牢固。
三、缓粘结预应力工程施工质量控制1. 材料质量:确保预应力筋、缓粘结材料等材料的质量符合设计要求。
2. 施工工艺:严格按照施工工艺进行操作,确保预应力筋与混凝土之间的粘结速度符合设计要求。
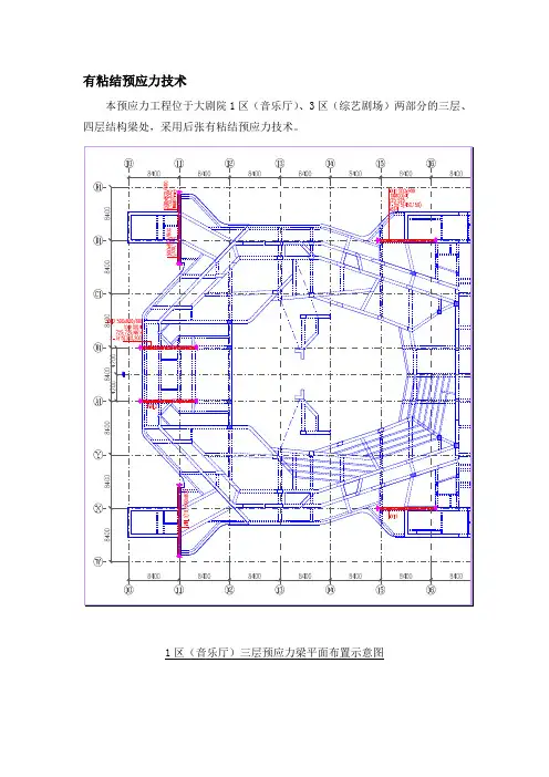
有粘结预应力技术本预应力工程位于大剧院1区(音乐厅)、3区(综艺剧场)两部分的三层、四层结构梁处,采用后张有粘结预应力技术。
1区(音乐厅)三层预应力梁平面布置示意图1区(音乐厅)四层预应力梁平面布置示意图3区(综艺剧场)三层预应力梁平面布置示意图3区(综艺剧场)四层预应力梁平面布置示意图主要材料:①、钢材:预应力筋采用15.2mm,极限强度标准值为1860MPa的低松弛预应力钢绞线。
②、锚具:张拉端采用QM15-5/7/8群锚、I类,固定端采用15.2挤压锚、I类。
③、波纹管:壁厚为3.0mm的镀锌波纹管。
④.①、有粘结预应力筋制作④.①.①在预应力筋制作(组装)时,采用机械切割。
在预应力筋旁边或对其它部件进行气割或焊接时,应防止预应力筋受焊接火花或接地电流的影响。
④.①.②预应力筋下料应在车间内进行。
下料长度应采用钢尺丈量,使用砂轮或专用切筋器切断。
④.①.③钢绞线挤压锚具挤压前,在钢绞线端头安装异型钢丝衬套或挤压套,并在挤压套外面涂润滑油,钢绞线、挤压模和活塞杆应在同一轴心线上。
液压挤压机的压力表读数按生产厂提供的参数控制,钢绞线端头应露出成型后挤压锚具外端。
挤压锚具应与锚垫板固定可靠。
④.②有粘结预应力孔道成型④.②.①后张预应力孔道成型,宜采用预埋管法。
④.②.②镀锌波纹管的连接,可采用大一号同型号波纹管作为接头管。
接头管的长度:管径为40-60mm时,不小于200mm;管径为65-80mm时,不小于250mm;管径为80-100mm时,不小于300mm。
接头管两端应采用胶带密封,不得漏浆。
④.②.③镀锌波纹管安装前,应按设计要求在箍筋上标出预应力筋的曲线坐标位置,点焊φ12-14钢筋点位,间距1m。
波纹管安装时接头位置应错开。
波纹管安装后,必须用铁丝与支托钢筋扎牢。
④.②.④灌浆孔(泌浆孔)与波纹管的连接是波纹管上洞,覆盖海绵垫片和塑料弧形压板并用铁丝扎牢,用φ32*2铁管插在接口上并将其引至构件顶面以上400-500mm。
缓粘结预应力钢绞线抗拔桩施工工法缓粘结预应力钢绞线抗拔桩施工工法一、前言缓粘结预应力钢绞线抗拔桩施工工法是一种新型的桩基施工技术,通过预应力钢绞线的应用,可以提升桩基的承载力和抗拔能力。
本文将对该工法的工艺特点、适应范围、施工工艺、劳动组织、机具设备、质量控制、安全措施、经济技术分析以及工程实例进行详细介绍。
二、工法特点缓粘结预应力钢绞线抗拔桩施工工法具有以下特点:1. 提高桩基抗拔能力:通过预应力钢绞线的施加,有效提升桩基的抗拔能力,增加桩与土体之间的粘结力。
2.施工简便快速:施工过程中无需进行灌注、压土或振捣等繁琐工序,减少了施工时间和工程成本。
3. 技术可靠稳定:采用预应力钢绞线作为主要承载部分,工程质量可靠,施工效果稳定。
4. 适应性强:适用于各类地质条件,无论是软土、粉土、黏土还是砂石等地层,都能够有效施工。
5. 环保节能:施工过程中无需使用水泥和其他灌浆材料,减少了对环境的污染,也减少了能源消耗。
三、适应范围缓粘结预应力钢绞线抗拔桩施工工法适用于多种地质条件,包括软土、粉土、黏土以及砂石等不同的地层。
无论是建设道路、桥梁、港口、码头、高层建筑等工程,均可采用该工法进行桩基施工。
同时,该工法还适用于复杂地质条件下的特殊工程,如河床改道、海上建筑等。
四、工艺原理缓粘结预应力钢绞线抗拔桩施工工法基于以下几个原理:1. 预应力原理:通过施加预应力,将桩与土体连接在一起,形成整体受力体系,提高桩基的承载力和抗拔能力。
2. 粘结原理:使用缓粘结材料使钢绞线与混凝土产生黏结作用,增加桩与土体之间的粘结力,提高桩基的稳定性。
五、施工工艺缓粘结预应力钢绞线抗拔桩施工工法主要包括以下几个施工阶段:1. 设计和准备:根据工程要求,进行桩基的设计计算,并准备所需的材料和机具设备。
2. 桩基施工准备:在施工场地进行准备工作,包括桩位布置、标定控制点等。
3. 钢筋制作:根据设计要求和施工图纸,进行钢筋的加工、制作和预应力处理。
解析缓粘结预应力钢筋工程施工工艺缓粘结预应力钢筋工程是一种常见的建筑结构加固方法,施工工艺主要包括以下几个步骤:1. 钢筋加工:根据设计要求,对预应力钢筋进行加工。
包括裁剪、弯曲、穿孔等工序,确保钢筋在施工过程中能够符合预定的形状和尺寸要求。
2. 模板安装:根据设计图纸,搭建钢筋混凝土构件的施工模板。
模板应该牢固、平整,确保混凝土能够按照设计要求进行浇灌和养护。
3. 钢筋预制件安装:将预应力钢筋的预制件按照设计要求安装在模板内。
预制件的安装应该准确无误,且与模板之间要保持一定的间距和定位。
4. 填充沟槽:在预制件和混凝土之间需要填充沟槽材料。
常用的填充材料有预制聚苯板、聚合物固化剂等。
填充要均匀,确保预应力钢筋与混凝土之间有良好的粘结。
5. 浇筑混凝土:在模板和填充沟槽的基础上,进行混凝土的浇筑。
浇筑过程中要保持混凝土的均匀性和流动性,确保混凝土能够完全充填到模板内,并密实周围的预制件和钢筋。
6. 后期处理:在混凝土凝固后,进行后期处理工作。
主要包括拆除模板、修整表面、进行定位孔、安装方便后期预应力的构件等。
7. 张拉预应力:根据设计要求,进行预应力钢筋的张拉。
通过张拉设备对预应力钢筋施加拉力,使得预应力钢筋产生预应力。
8. 粘结预应力:在预应力钢筋张拉完成后,立即进行粘结工作。
主要包括钢筋与混凝土间的粘结以及填充沟槽材料的固化。
9. 后期养护:预应力钢筋粘结完成后,进行恰当的养护工作。
养护时间一般为7至28天。
养护期间要注意保持混凝土湿润、避免外力损伤。
以上就是缓粘结预应力钢筋工程施工的主要工艺步骤。
在施工过程中,要确保符合设计要求,并严格按照施工规范和要求进行操作,以保证施工质量和工程安全。
缓凝结预应力混凝土施工工法缓凝结预应力混凝土施工工法一、前言缓凝结预应力混凝土施工工法是一种先将混凝土构件浇筑成形,然后通过提高温度和湿度来促进混凝土早期凝结和强化的施工工法。
它在工程实践中已经得到广泛应用,为各类混凝土构件的施工提供了一种快速、高效、可靠的解决方案。
二、工法特点1.提高早期强度:通过升高温度和湿度,缓凝结预应力混凝土工法能够促进混凝土的早期凝结和早期强度发展,缩短施工周期。
2.提高耐久性:通过控制早期养护条件,该工法能够改善混凝土的微观结构,增加构件的耐久性。
3.降低成本:由于缩短了施工周期,该工法能够减少人力、材料和设备的使用,降低施工成本。
三、适应范围缓凝结预应力混凝土施工工法适用于各种混凝土构件的施工,特别适用于具有复杂几何形状、大跨度和高要求的构件。
四、工艺原理缓凝结预应力混凝土施工工法的原理是通过控制施工工艺和提供适当的养护条件来促进混凝土的早期凝结和强化。
在施工中,我们采取以下技术措施:1.控制混凝土配合比:根据设计要求和施工环境,优化混凝土的配合比,确保混凝土均匀、稠度适宜。
2.控制浇筑温度:在施工过程中,通过加热混凝土和模板,保持一定的浇筑温度,加速混凝土的早期凝结和强化。
3.控制湿度:在施工过程中,保持适宜的湿度,以防止混凝土的水分过量蒸发,影响早期凝结和强度发展。
五、施工工艺缓凝结预应力混凝土施工工法包括以下几个施工阶段:1.准备工作:包括施工图纸的准备、材料的配送、设备的安装调试等。
2.模板安装:根据施工图纸要求,安装预制模板,并采取适当的措施防止漏浆和泄漏。
3.混凝土浇筑:根据施工计划,在模板中浇筑预制混凝土构件,并通过控制温度和湿度来促进混凝土的早期凝结和强化。
4.养护处理:对浇筑后的混凝土构件进行适当的养护处理,包括控制温度、湿度和养护时间等。
六、劳动组织缓凝结预应力混凝土施工工法需要具备一定的施工人员,包括工程师、技术员、操作工等。
根据具体工程规模和施工要求,合理组织劳动力,确保施工进度和质量。
缓粘结预应力密肋楼板施工工法缓粘结预应力密肋楼板施工工法一、前言缓粘结预应力密肋楼板施工工法是一种广泛应用于建筑工程中的施工技术,通过运用预应力技术和密肋楼板结构设计,提高楼板的承载能力和整体强度。
本文将详细介绍该工法的特点、适应范围、工艺原理、施工工艺、劳动组织、机具设备、质量控制、安全措施和经济技术分析,并提供一些具体的工程实例。
二、工法特点缓粘结预应力密肋楼板施工工法具有以下特点:1. 结构简单:采用预制混凝土密肋楼板,与梁体相连接,简化了施工工艺。
2. 增强承载能力:预应力混凝土施加预应力,提高楼板整体强度和抗弯承载能力。
3. 施工效率高:采用模具生产预制混凝土部件,减少工地现场施工时间。
4. 节约材料:密肋楼板的节肋结构设计,减少了材料用量,提高了经济性和施工速度。
三、适应范围缓粘结预应力密肋楼板施工工法适用于多种建筑工程,特别适合大跨度、大面积的工业厂房、商业综合体、体育场馆等建筑类型。
四、工艺原理缓粘结预应力密肋楼板施工工法与实际工程之间的联系,主要通过以下技术措施来实现:1. 预应力锚固:在混凝土密肋楼板预制过程中,通过预先设置钢束锚固点,并施加预应力,使楼板在使用过程中能够承受较大的荷载。
2.压浇混凝土:在预应力设置完毕后,进行压浆灌浆作业,使混凝土牢固连接,在混凝土硬化后形成整体强度。
3. 支撑剪顶:采用支撑剪顶的施工工艺,以确保楼板在施工过程中保持水平度和正常工作状态。
五、施工工艺缓粘结预应力密肋楼板施工工艺包括以下几个阶段:1. 梁体制作:按照设计要求制作梁体,包括设置预应力钢束通道和预埋螺栓孔。
2. 预制混凝土密肋楼板:在预制车间中制作密肋楼板,注意施加预应力。
3. 混凝土灌浆:将预制的密肋楼板放置在梁体上,进行压浇混凝土,使密肋楼板与梁体牢固连接。
4. 支撑剪顶:在楼板施工过程中,使用支撑剪顶设备,控制楼板的倾斜度和扭曲度,保持其水平度和稳定性。
5. 后续处理:完成混凝土养护、预应力张拉和锚固、验收等工作,确保楼板质量符合设计要求。
天津项目缓粘结预应力施工组织设计一、项目概述天津项目为一座大型建筑工程,需要进行缓粘结预应力施工。
预应力施工是采用预先施加的拉应力使结构元件在使用荷载下产生一定程度的预拉应力,以提高结构的承载能力和抗震性能。
本设计将详细介绍天津项目的施工组织设计方案。
二、施工方案1.施工流程:(1)创建预应力系统:根据设计要求,确定预应力锚固点位置,开展锚固板的制作和安装,铺设预应力钢束。
(2)拉应力施加:通过液压拉伸设备对预应力钢束进行拉应力施加,使其达到设计要求的预拉应力。
(3)锚固:将预应力钢束固定在锚具上,保证其预拉应力的长期稳定性。
(4)结构浇筑:根据设计要求,进行结构的浇筑和固化过程。
(5)调整和监控:根据实际情况,进行预应力施加的调整和监控,保证施工质量。
2.施工组织(1)编制施工计划:根据工程进度和施工要求,制定详细的施工计划,明确施工人员和设备的安排。
(2)确定施工人员:组建具有一定经验和技术能力的施工队伍,包括工程师、技术员和施工人员等。
(3)选购设备和材料:根据施工需要,选购适用的拉应力设备、锚具和预应力钢束等。
(4)建立施工现场:在施工现场进行必要的设施和场地的建设,确保安全和施工环境。
(5)编制施工方案:根据设计要求和实际情况,编制详细的施工方案,包括预拉应力的施加力度和施工时间等。
(6)实施施工:按照施工方案进行施工,确保施工质量和进度的达到。
三、施工安全与质量控制1.施工安全:(1)建立安全文化:通过安全教育和培训,提高施工人员的安全意识和技能,确保施工安全。
(2)设立施工警示标志:在施工现场设置必要的警示标志,提醒施工人员注意安全。
(3)安全检查和巡视:定期进行安全检查和巡视,发现问题及时整改,确保施工安全。
2.施工质量:(1)好钢用好:选用符合标准要求的预应力钢束和锚具材料。
(2)施工操作规范:严格按照相关规范和设计要求进行施工操作,确保施工质量。
(3)施工现场质量监控:建立现场质量监控点,对施工过程进行监控和检测,确保施工质量达标。
缓粘结预应力筋集束施工工法缓粘结预应力筋集束施工工法是一种应用于混凝土结构中的施工方法,它通过预应力筋的集束施工来增强结构的承载能力和稳定性。
本文将从前言、工法特点、适应范围、工艺原理、施工工艺、劳动组织、机具设备、质量控制、安全措施、经济技术分析和工程实例等方面对缓粘结预应力筋集束施工工法进行详细介绍。
一、前言缓粘结预应力筋集束施工工法是一种将预应力筋进行集束施工的技术,在混凝土结构中得到了广泛应用。
它通过预应力筋的布置和张拉,实现对结构的增强和整体稳定性的提高,具有很好的经济效益和施工效果。
二、工法特点缓粘结预应力筋集束施工工法具有以下特点:1. 灵活性强:可以根据不同结构的要求进行灵活布置和组合,适应不同结构形式的需要。
2. 施工周期短:集束施工可以一次完成多根预应力筋的布置和张拉,从而大大减少了施工周期,提高了工程效率。
3. 经济效益好:缓粘结预应力筋集束施工工法可以有效降低工程成本,提高结构的承载能力和使用寿命,从而带来良好的经济效益。
4. 施工质量可控:采用该施工工法可以有效控制预应力筋的张拉力度和布置精度,保证施工质量稳定可靠。
5. 可广泛应用:适用于各种建筑和桥梁工程中的预应力构件的施工,具有广泛的适应范围。
三、适应范围缓粘结预应力筋集束施工工法适用于各种混凝土结构中的预应力构件的施工,包括建筑工程中的梁、板、柱等构件,以及桥梁工程中的桥梁横梁、箱梁等构件。
四、工艺原理缓粘结预应力筋集束施工工法的工艺原理主要有两个方面的内容。
首先,它通过预应力筋的张拉和粘结,形成一定的预应力,从而对结构施加压力,增强结构的承载能力和稳定性。
其次,通过预应力筋的集束施工方式,有效集中了预应力筋的作用,从而提高了施工效率和质量。
施工工法与实际工程之间的联系主要包括预应力筋位置布置和张拉力度的确定、缓粘结的施工工艺和粘结剂的选择等。
通过对这些联系的具体分析和解释,可以使读者了解该工法的理论依据和实际应用。
缓粘结预应力钢筋工程施工工艺范本1:1.工程概述1.1 工程背景1.2 工程目标1.3 工程范围2.施工准备工作2.1 资源准备2.1.1 人员安排2.1.2 设备准备2.2 材料准备2.2.1 钢筋准备2.2.2 混凝土准备3.施工流程3.1 等级浇筑3.1.1 模板搭设3.1.2 钢筋安装3.1.3 预埋件安装3.1.4 混凝土浇筑3.1.5 后续处理3.2 分层浇筑3.2.1 模板搭设3.2.2 钢筋安装3.2.3 预埋件安装3.2.4 混凝土浇筑3.2.5 后续处理4.质量控制4.1 施工工艺控制4.1.1 材料质量检查4.1.2 钢筋安装质量检查 4.1.3 混凝土配制质量监控 4.2 施工记录4.3 施工检验5.安全措施5.1 施工现场安全 5.2 施工操作安全5.3 应急预案6.施工进度安排6.1 施工计划6.2 进度监控与调整7.经济控制7.1 施工预算7.2 施工成本控制7.3 资金管理8.技术要求8.1 工程规范要求8.2 技术工艺要求9.验收和交接9.1 施工质量验收 9.2 文档整理9.3 工程交接10.附件10.1 施工图纸10.2 施工记录本文档涉及附件:附件1:施工图纸附件2:施工记录本文所涉及的法律名词及注释:1. 钢筋:指用钢材制作的用于加强或支撑混凝土构件的金属材料。
2. 预埋件:指在混凝土浇筑之前在模板中安装的用于固定或连接构件的零部件。
3. 混凝土:指水泥、砂、石等材料经过配合、搅拌、浇筑、养护等工艺过程制成的一种人工岩石材料。
4. 模板:指用于固定混凝土浇筑的装置,通常由钢板、木板等材料组成。
5. 施工计划:指在工程施工过程中,对各项施工工序的时间安排和工作内容进行规划和安排的文件。
范本2:1.施工方案编制1.1 工程概述1.2 施工目标1.3 缓粘结预应力钢筋选择2.施工准备2.1 施工人员安排2.2 施工材料准备2.3 施工设备准备3.施工流程3.1 预应力钢筋制作3.1.1 钢筋加工3.1.2 预应力钢束制作 3.2 模板搭设3.3 钢筋安装3.4 预埋件安装3.5 混凝土浇筑3.6 后续处理4.质量控制4.1 施工工艺控制4.2 材料质量控制4.3 施工记录与报告5.安全管理5.1 施工现场安全5.2 施工操作安全5.3 预防事故与应急预案6.进度控制6.1 施工计划编制6.2 施工进度监控与调整7.经济管理7.1 成本控制7.2 资金管理7.3 费用核算与结算8.技术要求8.1 施工规范要求8.2 施工质量要求9.验收与交接9.1 施工质量验收9.2 文档整理与归档10.附件10.1 施工图纸10.2 施工记录本文档涉及附件:附件1:施工图纸附件2:施工记录本文所涉及的法律名词及注释:1. 缓粘结:指预应力钢筋与混凝土之间通过锚具或套管进行连接,产生摩擦力以传递预应力力量的一种预应力施工方法。
天津项目缓粘结预应力施工方案GE GROUP system office room 【GEIHUA16H-GEIHUA GEIHUA8Q8-缓粘结预应力梁施工专项施工方案编制人:审核人:有限公司20 年月日目录第一章编制依据..................................................... - 1 -第二章工程概况...................................................... - 2 -一、缓粘结预应力简介.............................................. - 2 -二、本工程概况.................................................... - 3 -三、相关设计要求.................................................. - 3 -第三章施工准备..................................................... - 4 -一、工程质量目标.................................................. - 4 -二、工期安排...................................................... - 4 -三、施工项目组织机构.............................................. - 4 -四、技术准备..................................................... - 6 -五、材料准备...................................................... - 6 -六、机械准备...................................................... - 7 -七、劳动力准备.................................................... - 8 -第四章施工工艺流程................................................. - 9 -一、缓粘结钢绞线运输及保管........................................ - 9 -二、抽检取样..................................................... - 9 -三、缓粘结预应力筋的制作.......................................... - 9 -四、缓粘结预应力筋的铺设......................................... - 10 -五、缓粘预应力混凝土浇筑养护..................................... - 10 -六、缓粘结预应力筋的张拉......................................... - 10 -七、缓粘结预应力筋的张拉伸长值................................... - 11 -八、缓粘结预应力筋的封锚......................................... - 13 -第五章质量保证措施................................................ - 13 -第六章安全技术与文明施工措施........................................ - 15 -第一章编制依据一、方案编制依据1)设计图纸及业主提供的相关资料。
天津市建设管理委员会关于颁布《缓粘结预应力混凝土结构施工技术规程》的通知
文章属性
•【制定机关】天津市建设管理委员会
•【公布日期】2008.09.26
•【字号】建科教[2008]878号
•【施行日期】2008.12.01
•【效力等级】地方规范性文件
•【时效性】失效
•【主题分类】机关工作
正文
天津市建设管理委员会关于颁布《缓粘结预应力混凝土结构
施工技术规程》的通知
(建科教[2008]878号)
各有关单位:
为确保缓粘结预应力混凝土结构施工质量,做到技术先进、安全适用,天津市建筑科学研究院按照市建委《关于下达2006年度建设系统第一批科学技术发展计划和工程建设标准编制计划的通知》(建科教[2006]1078号)要求,编制完成《缓粘结预应力混凝土结构施工技术规程》。
经我委组织专家审定,现批准《缓粘结预应力混凝土结构施工技术规程》(DB29-190-2008)为我市地方工程建设标准。
自2008年12月1日起在我市施行。
各相关单位要认真执行本规程,施行过程中如有不明之处及修改意见请及时反馈给天津市建筑科学研究院。
本规程由天津市建设管理委员会负责管理。
本规程由天津市建筑科学研究院负责具体技术内容的解释。
本规程由天津市建设教育培训中心负责征订和发行,任何单位和个人不得翻印
和复制。
特此通知
二○○八年九月二十六日。
缓粘结预应力混凝土技术施工工法XX有限公司/ 、八—1、前言因《混凝土结构设计规范》、《建筑抗震设计规范》内两项关于预应力技术在参与抗震计算的框架结构中使用的规定,限制了无粘结预应力技术在参与抗震计算的框架结构中的使用。
但有粘结预应力施工需要预留穿筋孔或预穿预应力筋及套管、后注浆等施工工艺繁琐;无粘结预应力筋在工作中受力几乎处处相等,易造成预应力筋和锚具疲劳以及受拉区混凝土裂缝多、宽度大和结构强度利用率低的缺点。
直接制约了其适用范围。
根据预应力技术的开发发展现状以及本工程体育场看台及竖向框架柱抗拔等结构复杂、工期紧张的要求,必须寻找合理可行的先进技术,确保本工程的结构功能,满足工期要求。
XX 有限公司通过对预应力混凝土技术的创新和改进,成功的将缓粘结预应力混凝土技术运用在体育场看台结构及竖向框架柱中。
解决了本工程结构抗震、使用功能,缩短了施工工期,并形成了缓粘结预应力混凝土技术施工工法。
缓粘结预应力混凝土技术的进一步开发发展是工程的迫切需要,缓粘结预应力体混凝土技术将无粘结预应力体系和有粘结预应力体系相结合,缓粘结预应力技术具有无粘结预应力技术施工方便、造价低和有粘结预应力技术所具有的结构延性好、抗震性能优等特点,达到有粘结预应力结构的效果。
2、工法特点缓粘结预应力技术是预应力技术领域中的一个创新,避免了有粘结预应力技术施工复杂,灌浆质量难以保证的缺点,也吸取了无粘结预应力技术施工工艺流程少、进度快的优点。
1、缓粘结预应力筋的张拉端采用单孔夹片锚,固定端采用挤压锚。
2、预应力钢筋采用缓粘结预应力技术。
施工过程中必须保证预应力筋的有效锚固,因此施工前必须严格审图,以防漏放预应力筋现象。
3、可以抵抗温度变化引起的温度应力,控制结构的温度收缩及表面裂缝。
4、施工简便、速度快。
按设计要求铺设一浇筑砼一砼满足强度后张拉一锚固一封锚。
无需预埋孔道、穿筋、灌浆等,简化施工工艺,加快施工进度。
5、结构自重轻。
后张缓粘结预应力砼结构无需预留孔道,提高结构强度,减小构件尺寸及自重。
缓粘结预应力梁施工专项施工方案编制人:审核人:有限公司20 年月日目录第一章编制依据 ..................................... - 1 -第二章工程概况 ..................................... - 2 -一、缓粘结预应力简介................................ - 2 -二、本工程概况.................................. - 2 -三、相关设计要求.................................. - 3 -第三章施工准备 ..................................... - 3 -一、工程质量目标.................................. - 3 -二、工期安排.................................... - 3 -三、施工项目组织机构................................ - 4 -四、技术准备.................................. - 5 -五、材料准备.................................... - 6 -六、机械准备.................................... - 6 -七、劳动力准备.................................. - 7 -第四章施工工艺流程 ................................... - 7 -一、缓粘结钢绞线运输及保管............................. - 7 -二、抽检取样.................................. - 8 -三、缓粘结预应力筋的制作.............................. - 8 -四、缓粘结预应力筋的铺设.............................. - 8 -五、缓粘预应力混凝土浇筑养护............................. - 9 -六、缓粘结预应力筋的张拉.............................. - 9 -七、缓粘结预应力筋的张拉伸长值........................... - 10 -八、缓粘结预应力筋的封锚.............................. - 12 -第五章质量保证措施................................... - 12 -第六章安全技术与文明施工措施.............................. - 14 -第一章编制依据一、方案编制依据1) 设计图纸及业主提供的相关资料。
2) 主体施工组织设计的相关要求。
3) 中国建筑工业出版社出版的《建筑施工手册》。
4) 建设部颁发的《建筑工程施工现场管理规定》。
5) 《企业标准》及《质量保证体系文件》。
二、规范采用目录1) GB50204-2015《混凝土结构工程施工及验收规范》2) 03G101-1《混凝土结构施工图平面整体表示方法制图规则和构造详图》3) GB50010-2011《混凝土结构设计规范》4) GB50300-2013《建设工程施工质量验收统一标准》5) JGJ140-2004《预应力混凝土结构抗震设计规程》6) GB/T5224-2014《预应力混凝土用钢绞线》7) CECS180:2005《建筑工程预应力施工规程》8) JGJ92-2004《无粘结预应力混凝土结构技术规程》9) GB/T14370-2000《预应力筋用锚具、夹具和连接器》10) JGJ85-2002《预应力筋用锚具、夹具和连接器应用技术规程》11) JG/T321-2011《预应力用液压千斤顶》12) JG/T319-2011《预应力用电动油泵》13) JGJ33-2012《建筑机械使用安全技术规程》14) 天津市工程建设地方标准《缓粘结预应力混凝土结构施工技术规程》第二章工程概况一、缓粘结预应力简介缓粘结预应力技术是预应力技术领域中的一个创新,近年来广泛用于大型体育场,结构复杂的会展中心,大跨度的物流中心、工厂等等。
缓粘结预应力体系就是无粘结和有粘结两种体系的结合。
在这种体系中预应力筋周围包裹着一种特定的介质——环氧缓凝粘结胶。
前期同无粘结筋一样,钢绞线与缓凝粘结胶之间没有粘结力,后期随着缓凝粘结胶的逐渐硬化,而使预应力筋、缓凝胶和混凝土粘结成一个整体,最终形成有粘结预应力。
因此在施工阶段完全按照无粘结体系施工工艺进行施工。
缓粘结预应力钢绞线结构不需预留孔道,不需要孔道灌浆。
尽管如此,但缓粘结预应力在使用阶段却能发挥有粘结预应力的预应力效果。
缓粘结预应力的特点是避免了有粘结预应力技术施工复杂,灌浆质量难以保证的缺点,同时也吸取了无粘结预应力技术施工工艺流程少、进度快的优点。
缓粘结预应力特点:1 、可以抵抗温度变化引起的温度应力,控制结构的温度收缩及表面裂缝。
2 、施工简便、速度快。
按设计要求铺设→浇筑砼→砼满足强度后张拉→锚固→封锚。
无需预埋孔道、穿筋、灌浆等,简化施工工艺,加快施工进度。
3 、缩短工期,创造可观的经济效益和社会效益。
预应力混凝土结构采用缓粘结预应力技术。
施工过程中必须保证预应力筋的有效锚固,因此施工前必须严格审图,以防漏放预应力筋现象。
二、本工程概况本工程为位于****** ,总建筑面积*** ,,为现浇混凝土框架结构,是设计年限为50 年的乙类民用建筑。
本工程为主体结构中局部大跨度梁和悬挑梁采用缓粘结预应力体系施工,以满足其承载力、变形及抗裂的要求。
三、相关设计要求本工程中缓粘结预应力体系相关设计要求:1、缓粘结预应力筋采用?高强1860型高强度低松驰预应力钢绞线,其截面积为191mm,2 其强度为fptk =1860N/mm2 ;2、缓粘结预应力筋的固定端采用挤压锚,张拉端采用单孔夹片锚。
3、缓凝胶粘剂要在张拉阶段有自由滑动,1 年内固化;3、预应力筋的铺设梁中水平对称布置,可集团束或并束铺设,与曲线图中矢高一致;4、预应力混凝土梁强度等级为C40; 当强度达到100%时,方可张拉;张拉完成,张拉端用微膨胀细石砼浇筑。
本工程张拉端采用内凹式。
5、张拉力为控制应力为? con==1395MPa/m,m 则本工程施工时张拉控制力应为。
实测伸长值与理论计算值的偏差应在正负6%之内。
第三章施工准备、工程质量目标本工程的质量目标为满足设计图纸、达到质量合格,争创天津市优秀工程。
施工方案、国家相关规范、规程的要求,、工期安排我方将根据主体结构施工的进度计划进行施工,确保不影响工程总工期三、施工项目组织机构项目经理:贯彻和实施项目质量方针和目标。
全面负责项目质量体系的建立、完善和运行。
项目副经理:参与贯彻项目质量方针、目标。
参与组织实施质量体系。
技术工程师:全面负责贯彻项目技术质量日常管理,实施质量过程管理事务,负责预应力施工过程中的全面质量监控。
主要有以下几点工作:(1) 做好施工方案;(2) 做好图纸交底,包括对班组及土建单位的交底;(3) 对现场解决不了的技术问题,应及时向上级汇报;(4) 配合监理、总包方及其有关工种做好技术协调工作;(5) 严格按有关设计文件及有关技术规范检查施工质量(同质量员一同负责);材料员及资料员:(1) 材料进场后,做好预应力钢绞线、锚具等验收、抽检工作,监督材料的现场保护;(2) 检查张拉设备是否正常工作,规范操作过程。
如发现设备不能正常工作,应及时更换设备,并做好设备更换记录;(3) 会同监理方做好隐蔽工程验收工作;(4) 做好设计文件及其它有关资料的收集、整理工作;(5) 做好竣工资料整理工作。
质量员:(1) 跟踪检查操作人员是否按设计图要求及规范要求进行预应力筋的铺放施工;(2) 检查混凝土强度是否达到张拉阶段要求的强度;做好张拉记录的检查抽查工作。
如发现张拉结果与设计及规范要求不符应及时通知张拉人员暂停张拉,查明原因,做好相应的技术措施后,再行张拉。
四、技术准备根据施工图纸及相关规范、规程的要求,组织精干技术力量进行图纸会审,对需深化部分与设计、现场进行及时沟通,编制有针对性的施工方案,并对相关人员进行技术交底。
本工程中预应力梁为L1(L1,e1,e2 )直线线型,均为一端张拉,张拉端位置为出板面张拉。
五、材料准备本工程采用天津固鑫金属制品有限公司生产的(1860MPa)钢绞线,锚具采用天津市乾昌预应力机械有限公司产品。
六、机械准备选用设备及指标表:千斤顶高压油泵挤压机七、劳动力准备第四章施工工艺流程一、缓粘结钢绞线运输及保管材料从厂家订货成功,加工成型后,整盘包装运送到现场。
材料进场装卸吊装时,严禁使用钢丝绳或坚硬吊具,防止外包PE套破损,采用专用吊带吊卸。
缓粘结钢绞线堆放应按规格、品种分开堆放在通风良好的地方。
当露天堆放时,应放置在垫木上,同时采取覆盖措施,避免雨淋及暴晒,防止PE护套老化。
二、抽检取样材料进场后,应在监理单位的见证下,对每种规格、每个批次分别截取3 根1 米长的钢绞线,进行抽样试验。
试验项目包括屈服强度、抗拉强度、伸长率。
当有一项不合格时,为该批产品不合格。
每批次截取6个米长的缓粘结钢绞线,放在室温下保存,以直观评判其缓凝效果。
三、缓粘结预应力筋的制作将缓粘结预应力钢绞线放在平坦干燥的场地上进行下料。
首先根据施工图纸的要求计算出下料长度,进行编号下料。
预应力筋下料应用砂轮切割机切割,严禁使用电弧和气割。
内埋式的固定端应除去端部部分PE护套,并用丙酮及刷子将缓凝结胶清除干净。
内埋式固定端采用挤压锚,挤压锚的内衬弹簧长度为50mm,在专用挤压机下挤压缩径。
固定端处理完的钢绞线端部用热收缩胶带裹紧密封,堆放在避光处等待铺放。
四、缓粘结预应力筋的铺设缓粘结筋铺放时,应保持顺直,按照施工图的线型标高图布置支撑钢筋,亦可与其它钢筋绑扎,保证束形控制点与设计的位置偏差在允许的偏差值内,本工程中截面高度为300<h≦1500,允许偏差为正负10mm。
张拉端端部的模板应按预留孔的位置进行钻孔处理, 放置张拉端穴模。
穿束时可多人协同作业,两根并着穿,防止相互扭绞。
每根钢绞线的外露长度不得小于1 米。
本工程中钢绞线束将采用带状布置,每道梁分成平直的2 束在张拉端平顺分开。
其离构件边缘的距离不宜小于40mm;五、缓粘预应力混凝土浇筑养护缓粘结预应力钢绞线铺设完毕后应进行隐蔽验收,当确认合格后方可浇筑混凝土。