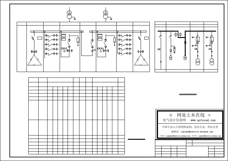
1.照明回路采用BV-2x2.5-DG20-PA/QA。22b1.22t1.22t2.22t3.22a1.22a2.22h1.22h2.22h332W(估)2x100W(估)造型壁灯节能筒灯60002470022b1.22t1.22t2.22t3.22a1.22a2.22h1.22h2.22h316X1X36W(估)500W(估)暗藏1X36W荧光灯灯槽80004000800074612046120650W(估)牛眼灯此路筒灯系电气增加应急照明回路至中庭天花674000造型吊灯 牛眼灯1260247006000暗藏1X18W荧光灯灯槽700040008950W(估)射灯100W(估)隔盏换相,分二路控制暗藏1X18W荧光灯灯槽50W(估)600010111000W(估)60006X1X18W(估)124a2.4a318X1X18W(估)一楼大堂照明平面 1:125120131450001203h13a93a1060002X36W荧光灯高效格栅灯21t821a1暗藏1X36W荧光灯灯槽18X1X36W(估)造型吊灯 21h121y121t421t621t521y221t32PDX21r121t221t1与灯具配套(置灯内)应急照明电源1x32W(估)节能筒灯4t2牛眼灯4t14a164t15621t721a24PDX1PDX1t13a73a83a63a53PDX3t73y13t23t53t43t1休闲吧7000894000自动感应门吸顶柱灯4X36W节能灯管(估)101112600060004d14PDX4c14d14c2雅座区暗藏1X36W荧光灯灯槽15X1X36W(估)3.插座和配电及水下照明回路采用BV-2x2.5+BVR-1x2.5-DG20-PA/QA。2.应急、疏散指示的照明回路采用BV-3x2.5-DG20-PA/QA;1.一般照明回路采用BV-2x2.5-DG20-PA/QA;3a1.3a2隔盏换相,分二路控制暗藏1X36W荧光灯灯槽7000600060003h3造型吊灯 2000W(估)12042003h23t63t33t2附注:隔盏换相,分二路控制10X2X36W(估)4a2.4a3一楼大堂插座平面 1:125暗藏1X36W荧光灯灯槽隔盏换相,分二路控制3a1.3a226X1X36W(估)暗藏1X36W荧光灯灯槽隔盏换相,分二路控制131436X1X36W(估)3a3.3a412601205000120距地500疏散指示灯(1x5w)门框上方或距顶500疏散指示灯(1x8w)21b121c3大堂自动感应门电源21c221c321p121c12PDX21s1造型水景灯1x100W(估)1P34c11P1予留电源1.5KW(估)500W(估)予留电源1y11C21C11PDX3PDX3c21P23b23b13c13z1舞台2.应急、疏散指示的照明回路采用BV-3x2.5-DG20-PA/QA;1.一般照明回路采用BV-2x2.5-DG20-PA/QA;3.插座和配电及水下照明回路采用BV-2x2.5+BVR-1x2.5-DG20-PA/QA。70002x100w(估)6000附注:,垂直安装100w(估)1X36w荧光灯,6x3x36w(估)12042005x100W(估)造型壁灯地藏灯暗藏荧光灯灯槽造型柱灯2KW(估)造型花灯一楼中厅照明平面 1:50附注:22h2隔盏换相,分二路控制暗藏1X36W荧光灯灯槽22h122b122a1.22a2,18x1X36W(估)由2pdx箱引来22h322A1.22A222t322t322t222t122t222t122b15774077402803800280373028038003730280380028038002802802803730373077402807740280680048901490420420489068001490出图比例1:100,10号笔0.45,8号笔0.08,余笔0.18。包厢照明平面 1:100包厢插座平面 1:100暗光槽2.7502.7502.7502.75010x1X36w(估)金卤射灯50w(估)2x13w(估)节能筒灯m4m2m3m1pdx2.9002.9002.9002.9004x1X36w(估)暗光槽10x1X36w(估)暗光槽建筑造型吊灯720w(估)建筑造型吊灯360w(估)240w(估)建筑造型吊灯暗藏灯管包厢5包厢6包厢4包厢3pdxc1c22x1x36w(估)22222.7502.7502.7502.7503.插座边标有“2”则表示距地300处和距顶300处各一只插座。2.配电箱位置可视进线方向调整(对称换至包厢1外墙处)。1.空调盘管及排风扇配电和控制见原设计图。m62.900m82.900m7m52.9002.9004.回路参数见系统图。附注:暗光槽8x1X36w(估)暗光槽16x1X18w(估)建筑造型吊灯720w(估)包厢2包厢1c3c42222L7-16A/1/CBV-4x10+BVR-1x10-DG32-DA5.所有照明零支线均由配电箱内的零母线上直接引出.实施前需根据实际安装的灯具或设备容量的制,出线回路的Pe线随回路的相、力为10KA;防护等级不低于IP30,箱内母线采用绝缘铜排。13.配电设备部分技术要求:要求采用安全型电气设备,其小型终端配电及控制设备的分断能10.电气管道穿越隔墙、楼板时,需采用不燃材料将其周围的缝隙填塞密实。线可靠连接。本工程所有电气设备的配电箱的Pe母排至各用电设备,7.建筑物内的电气装置外壳,配电箱(控制箱)外壳及机电设备金属外8.设计中的灯具型号、规格以及安装的位置、方式、高度等见装修专业有关图,并在工程际情况对本设计做局部合理调整,并请及时做照有关国家规范,规定,11.施工时有关专业请密切配合,及时做好预埋,预留等有关实宜,建设单 6.配电系统接地采用TN-S制, 引至pxd配电箱,情况对设计配电系好施工记录,以便竣工图绘制,未及事宜请参双色(黄绿)软线。不带电的金属部分均与Pe线做电气国标及通用图集等通过设计,施工,建设等方面协商解决.保护接地线随电源Pe支线采用BVR型零线一同敷设。位及施工单位可视实统进行校核。即进线回路采用三相五线壳不带电部分均应与Pe均取自Pe干线,经连接,Pe支线pxd 配电箱配电系统 m2 2.3KW/14A BV-2x2.5-DG20-QAc4 1.5KW/7A BV-2x2.5+BVR-1x2.5-DG20-QAc3 1.5KW/7A BV-2x2.5+BVR-1x2.5-DG20-QAc2 1.5KW/7A BV-2x2.5+BVR-1x2.5-DG20-QA m1 1KW/9A BV-2x2.5-DG20-QAc1 1.5KW/7A BV-2x2.5+BVR-1x2.5-DG20-QAL7-16A/1N/CL7-16A/1N/CL7-16A/1N/CL7-16A/1N/C由建设单位提供L7-16A/1N/CL7-16A/1N/C备用备用L7-16A/1/CF7-25A/4/003-2.5mm 导线,灯头导线采用BV-1.5mm 。出线等线路集中并敷设较为困难处,可采用金属线槽在吊顶内敷设;4.照明及管线的预埋。3.配电箱采用嵌墙安装,设备下沿对地均为1.4米,并请1.供电电源由建设单位提供,三相五线制,供电电压380/220V。2.由配电箱引出的回路均采用BV型铜芯塑料线,穿电线管沿楼板或吊顶及墙上暗敷;配电箱源的插座的安装高度为距顶0.3米。插座暗装,一般为下沿距地0.3米,电视机电及时做好设备予留孔洞、予埋件电 气 设 计 说 明管线规格详见系开关等墙上控制设备的下沿对地1.4米;22支线回路均采用BV-统图及平面附注。 m1 2KW/13A BV-2x2.5-DG20-QA m3 2.3KW/14A BV-2x2.5-DG20-QA空调盘管回路备用L7-32A/3/C32AIj=23APj=10KWpxdL7-16A/1/CL7-16A/1/CL7-16A/1/CL7-16A/1/CLH-16A/3/C备用备用建筑造型吊灯720w(估)包厢插座平面 1:100包厢照明平面 1:100m1pdx2x13w(估)节能筒灯m3m2建筑造型吊灯720w(估)建筑造型吊灯360w(估)240w(估)建筑造型吊灯2.9002.9002.7502.7502.9002.7502.9002.7502.7502.900pdx3x1x36w(估)c3c2c1包厢3包厢4包厢6包厢5包厢2暗藏灯管m42.7502.9002.7502.9002.7502.9003.回路参数见系统图。2.配电箱位置可视进线方向调整(对称换至包厢1外墙处)。附注:1.空调盘管及排风扇配电和控制见原设计图。c4包厢1373028028037303800380028038003800280774077407740774037302802803730280280280280489068006800149048904204201490编辑部:ivpinfo@本图纸由浩辰ICAD软件提供技术支持网易 电气 中国电气行业网络家园;因为专业,所以完美网易 NETEASE ==计图库QQ:396271936