无顶压逆流再生钠离子交换器
- 格式:doc
- 大小:42.50 KB
- 文档页数:4
金昌东烨特种钢铸造有限公司100万吨钢深加工项目炼钢工程软水站一级钠离子交换器二级钠离子交换器树脂装卸罐技术规格书1、说明:2、技术要求2.1无顶压逆流再生一级钠离子交换器型号:Φ2500(内径)数量: 2台工作压力0.6MPa2.1.1 筒体材质Q235-B,内衬3.0mm胶板两层。
衬里面应延到所有接管法兰结合面。
筒体上配有自动排气阀、排气管,上中树脂装卸口,上、中视镜(视镜宽度≥50mm),上中下人孔,上人孔带操作平台(平台加护栏及爬梯)。
2.1.2 布水方式:上布水为十字管型,下布水为衬胶多孔板(两侧衬胶 3.0mm胶板两层)排水帽式。
水帽配置必须考虑树脂粒度要求,配置总出水量不小于120t/h。
2.1.3 中排装置采用母支管结构,母管与支管间采用法兰连接,支管为细缝形、加强型(内部有多孔套管加强骨架)T型绕丝管(多孔管打眼后套绕丝管),支管Φ45,中排支管间距150-250mm。
2.1.4离子交换器配套进出口取样装置、压力表;每套设备配套以下手动隔膜阀(隔膜阀随设备统一装配):进出水阀、上下排水阀、进再生液阀、大反洗进水阀、排气阀,阀门均需配对法兰、紧固件、垫片。
中排、树脂装卸口配对法兰。
设备配置能完成常规的运行、小反洗、排水、再生、置换、小正洗、正洗、大反洗工艺程序。
2.1.5特殊部位材质要求:与上布水装置、中排液装置相关的全部零部件均采用316L不锈钢,下布水水帽采用316L不锈钢材质。
排气管采用1Cr18Ni9Ti材质2.1.6管道接口位置及管径配置见订货附图。
2.2无顶压逆流再生二级钠离子交换器型号:Φ2000(内径)数量: 2台工作压力0.6MPa2.2.1 筒体材质Q235-B,内衬3.0mm胶板两层。
衬里面应延到所有接管法兰结合面。
筒体上配有自动排气阀、排气管,上中树脂装卸口,上、中视镜(视镜宽度≥50mm),上中下人孔,上人孔带操作平台(平台加护栏及爬梯)。
2.2.2 布水方式:上布水为十字管型,下布水为多孔板(两侧衬胶3.0mm胶板两层)排水帽式。
无顶压逆流再生离子交换设备中间排水装置改造研究NORTHCHINAELECTRICPOWER华北电力技术无顶压逆流再生离子交换设备中间排水装置改造研究.2c}l')j北京石景山热电厂(北京100041)刘政修,7-,6/l文摘分析定型产品逆流牲离子交换设备水置问题,提出了逆流再生离子交换设备中排装置改造的具体方案.根据一级除盐设备入口水质及再生情况,计算了逆流再生离子交换设备中排装置改造前一级除盐设备的周期过水量,统计了逆流再生离子交换设备中排装置改造后一级除盐设备实际周期相鼯,了水关键词逆流再生离子交换设备|改造研究?髻,口k. ————一———————一v\'一.●,l'',J,,随着电力工业的飞速发展,火力发电嵩度而排出体外.,子交树脂在使用,组的单机容量不断提高,机组补给水处理方式,水处理系统及设备也不断改进.《火力发电厂化学水处理设计技术规定》(水利电力部电力规划设计院SDGJ2—85)中提出.高压,超高压,亚临界汽包和直流锅炉应选用一级除盐加混合离子交换系统.一般情况下,一级除盐设备阴,阳离子交换器标准设计和定型产品为无顶压逆流再生(参见图1).虽然逆流再生离子交换设备具有对进水含盐量和离子组成适应范围广,出水水质好, 再生剂比耗低的优点,但从理论分析及实践经验证明,其中排装置亦存在不合理性,因此,有必要对逆流再生离子交换设备中排装置进行研究,改造.1逆流再生离子交换设备中排装置存在的问题分析逆流再生离子交换设备再生时,再生液由下向上流动,需要克服中排装置支管(外套两层丝网,孔径分别为0.8~2mm和0.21 o.25mm)的阻力及中排母管与支管的水由于压力,降解,机械磨损及转型膨胀等原因,造成离子交换树脂破碎,细碎的离子交换树脂粉末堵塞中排装置支管而使其阻力上升.另外,由于中排装置母管布于支管上部存在高度差,逆流再生离子交换设备在再生过程中,中排装置易进入空气,形成不了虹吸作用.由于上述原因,逆流再生离子交换设备再生时,中排装置上部的压脂层经常被再生液浸湿,失去了压脂层固定下部床层的作用,由离子交换树脂水力学性能可知,在再生流速下离子交换树脂处于紊乱状态,影响了离子交换树脂的再生效果.逆流再生离子交换设备中排装置支管固定杠与罐体吊耳为活动联接,离子交换设备在运行,再生,特别是大反洗过程中,因中排装置支管固定杠与罐体吊耳的磨擦,易使二者接触处衬胶磨损脱落,造成金属裸露部分的腐蚀及中排装置母管,支管变形,从而影响离子交换设备的再生效果,甚至影响离子交换设备的运行.总之,逆流再生离子交换设备中排装置存一39一I图1无顶压逆流再生离子交换器结构示意图在一定的问题,影响离子交换设备的再生效果, 降低了设备周期过水量及出水水质,增加了再生比耗及再生废液排放量,加重了环境污染.2逆流再生离子交换设备中排装置改造方案.2.1逆流再生离子交换设备中排装置支管固定杠由活动连接改为固定连接,将固定杠(槽钢或角铁)直接焊在罐体上,以防离子交换设备在再生,运行及大反洗时罐体吊耳与40---——中排装置固定杠磨擦,造成衬胶防腐层损坏, 而使设备腐蚀及中排装置变形,影响离子交换设备的再生效果.2.2逆流再生离子交换设备的中排装置由母管在上,支管在下,改为支管在上,母管在下,以防离子交换设备在再生过程中压脂层处于浸泡状态,使树脂乱层而影响离子交换设备的再生效果.2.3离子交换设备中排装置支管改为固定连接时防腐层被损坏部分需进行修复处理.改造后的离子交换设备中排装置见图2.III●l口誊口IIfII,图2改造后的离子交换设备中排装置表1设备规范及再生情况注;此设备原为逆流再生软化器,后改为逆流再生除盐设备,所以阴,阳离子交换树脂装填量不匹配.表2阳离子交换设备人口水质全分析数据3逆流再生离子交换设备周期过水量理论计算3.1离子交换设备规范及再生情况(见表1)3.2阳离子交换设备人口水质全分析数据(见表2).3.3计算3.3.1常规情况下阳离子交换设备周期过水量计算影响阳离子交换设备周期过水量的主要因素有再生剂用量,进水中硬度与阳离子总浓度比值,钙硬与总硬度比值,树脂层高等.根据阳离子交换设备规范,再生情况及入口水质可计算出其周期过水量为720t.(计算过程略)3.3.2常规情况下阴离子交换设备周期过水量计算影响阴离子交换设备周期过水量的主要因素有再生剂用量,纯度,再生剂温度,进水水质,水温,运行流速,树脂层高等.根据阴离子交换设备规范,再生情况,入口水质可计算出其周期过水量为473t.(计算过程略)4实际周期过水量及出水水质统计表3逆流再生离子交换设备实际周期过水量及出水水质统计t周期序号123456平均周期过水量492565488650475546536注:逆流再生离子交换设备出水水质电导率均在0.4~1.ot~S/cm范围内.通过计算,统计,逆流再生离子交换设备实际运行周期过水量比常规情况下的计算周期过水量多63t.5中排装置改造前后经济效益比较5.1常规情况下计算周期过水量酸,碱耗计算一一再生用酸量X3OoA酸耗一丽面=54.3(gHCL?mol)碱耗一丽=83.9(gNaOH?tool一)5.2实际统计周期过水量酸,碱耗计算一一再生用酸量X30酸耗一丽面面=47.9(gHCl?mol一)碱耗一丽一74.0(gNaOH?mol一)5.3经济效益比较若按5套一级除盐设备.一年再生次数为1,320计算,则每年节约:3O工业盐酸一(54.3—47.9)X1320X6.28×800/(1000X1000X30)一141.5(t)4O工业液碱=(83.9—74.O)X1320X6.28×3oo/(1000X1000X40)一61.5(t)无顶压逆流再生离子交换设备中排装置改造后,每年可减少再生次数155次,可节约一级除盐再生水量为Q,则:Q一155X40=6200(t)(下转第45页)一4】一3.3-I-三陵电厂3号机给水泵系统故障分析2019年9~l1月间,十三陵电厂3号机误掉闸达5次,问题发生在给水泵低压控制回路上,查找故障并更换继电器后,仍未解决问题.而当时华北电网全部调峰任务均由十三陵电厂完成,恰逢1,2号机大修,3号机又经常跳闸,导致仅由4号机一台2O万kW机组完成任务,这样迫使大港电厂油机启动,参与调峰任务,耗资很大.因此,尽快恢复十三陵3号机正常运行,显得极为迫切.分析故障现象,机组启停及换向操作过程中,未发生掉闸情况,而常常发生在白天发电和夜间抽水的过程当中,有时故障后,发现继电器触头灼伤或粘连,每次情况又各不一样.首先采取一些措施;控制回路绝缘检查,保护之间相互配合定值检查,设备灰尘清除, 更换部分继电器等,但故障隐患仍未排除.接入WGJ型记录仪,由于给水泵控制回路为交流380V电压,无法直接接在记录仪光隔回路上,因此采取继电器分接点法,在线记录运行工况.之后,相继记录了许多次动作或抖动数据,配合给水泵半压转全压控制回路中各继电器和开关的先后动作原理,分析检查误动作原因.最后一次,给水泵跳闸,备用泵自动投入,常规设备无任何记录,导致运行值班人员第二天才发现,而微机记录仪则存有故障记录,从而发现其中一个继电器绝缘质量有问题,频繁动作,更换以后,问题彻底解决.WGJ型记录仪再一次发挥了作用.4结论十三陵电厂多为国外进口设备,仍有一些继电器信号未接入监视设备,但是这些不太重要的被忽视的信号却往往引起发电机掉闸,而且常常是由于干扰,虚焊,锈蚀等原因引起的信号抖动,这样给电厂故障查找带来更大的困难.另外,有些电厂经常发生不明原因掉闸,即使小修检查,传动试验也无法排除故障,无法区分哪一部分设备先误动作,WGJ型微机记录仪正好满足了这些实际需要,在电厂故障查找工作中发挥了很大作用.(收穑日期l2019—0Z一27)(上接第41页)式中8OO——阳离子交换树脂工作交换容量,mol/m.;300——阴离子交换树脂工作交换容量,mol/m.;6.28——阴(阳)离子交换树脂装载体积,ml4O——每次再生平均自用水量,t.每年共节约费用为:141.5×412"t-61.5×1560+6200X20= 278238(元)式中412——30工业盐酸单价,元/tI156O——4O工业碱单价,元/tI20——一级除盐水单价,元/t.6结论通过逆流再生离子交换设备中排装置改造,取得了良好的经济效益和社会效益; (1)提高了逆流再生离子交换设备运行的安全可靠性,延长了设备检修周期,提高了设备利用率.(2)提高了逆流再生离子交换设备的再生效果,提高了设备周期过水量,改善了出水水质,节约了酸碱再生用量,减少了废液排放及环境污染;减轻了工人劳动强度,延长了离子交换设备的使用寿命.(收稿日期l2019.02—16)一45—。
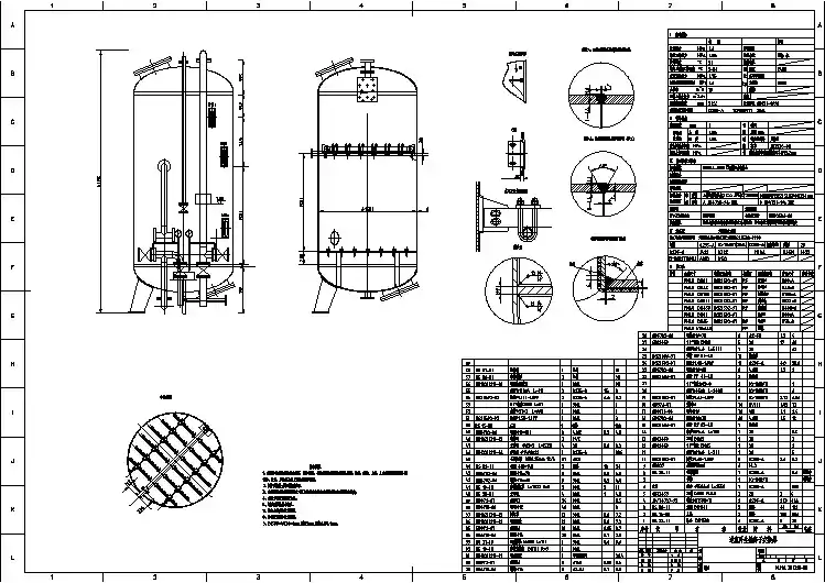
GN型无顶压逆流再生钠离子交换器使用维护说明书(设备安装使用前,请详细阅读本使用说明书)湖南鸿昌热能设备有限公司离子交换器用途锅炉用水及各类换热器补充水的软化、以及空调系统循环冷却水的软化处理、高硬度饮用水的软化、生活热水原水的软化、生活直饮水装置的预处理等。
无顶压逆流再生钠离子交换器概述无顶压逆流再生钠离子交换器将原来固定床顺流再生工艺改为逆流再生,按无顶压再生进行设计,省略了气顶的气源。
经钠离子交换器处理后水中总硬度降低至≦0.03mmol/L以下,在处理生水总硬度较高的水,或要求出水硬度较低时,可采用二级串联软化的方法。
无顶压逆流再生钠离子交换器工作原理在钠离子交换器内装有一定高度的钠离子交换树脂作为交换剂,生水自上而下地通过交换剂层,交换剂上的钠离子置换了生水中的钙、镁离子、使水得到了软化。
Ca2++2NaR → CaR+2Na+ Mg2++2NaR → MgR+2Na+交换剂上的钠离子逐渐被钙、镁离子所取代,当使用一段时间以后置换能力逐渐降低,就会泄漏出钙、镁离子,在出水的硬度达到所规定的数值时,即停止运行,进行再生。
再生时将5~8% 的盐水由下向上地通过交换剂层。
盐液中的钠离子又置换出交换剂上的钙、镁离子,使交换剂得到再生,恢复其交换能力。
反应如下:CaR+2Na+→ Ca2++2NaR MgR+2Na+→ Mg2++2NaR无顶压逆流再生钠离子交换器结构简述1. 上部进水装置:在设备的上部设有进水装置,能使水均匀的分布在交换剂层上。
2. 中间布水装置:中排装置设置在离子交换树脂层和压脂层的分界面上,用于排泄再生盐废液和进小反洗水,型式为:支管母管式,管上开小孔布液,管外包40目60目尼龙网各一层,材质均为SS304L不锈钢。
3. 下部出水装置:交换器内的配水和集水装置,保证整个树脂层水流均匀,采用S304L不锈钢多孔管进行加强,水帽材质为ABS,缝隙宽度为0.25mm。
砂垫层配比按要求装填,另外在交换器最大反洗膨胀高度处各设视镜一个,用以观察体内工况,考虑到树脂的水力装卸,筒体上部设树脂输入口,在筒体下部近多孔板处设树脂卸出口。
三、钠离子交换器Sodium ion exchanger1.说明无顶压逆流再生钠离子交换器具有逆流再生的一切优点,并省去了顶压系统,简化了操作,节省了投资及运行费用。
因此是目前软化水中最先进的设备。
1 and instructionsNo pressure sodium ion exchange counter-flow has all the advantages of counter-flow omitted, and high pressure system and simplify the operation, save investment and running costs. So is the most advanced equipment, water softening.2、技术标准①无顶压逆流再生钠离子交换器为焊接碳钢结构的园柱形容器,顶部和底部为椭圆型封头,设备按标准进行设计、制造和试验,所涉及的标准详见执行标准表。
②阳床本体内部衬胶厚度为 4.5mm,接管衬胶到各法兰的密封面。
设备内部的其它需防腐的非衬胶件材质为316L不锈钢材质。
③钠离子交换器内装设上部配水装置、底部集水装置、底部出水装置、中间排再生液装置和其附件。
上部配水装置为头式结构,采用316L不锈钢丝绕管大喷头布水方式、底部出水装置均采用孔板及排水帽的配水方式,水帽为塔式结构,材质为ABS,水帽缝隙为0.25mm,底部出水装置为挡水板结构。
④底多孔板与下封头间采用无缝管加强,加强管共设3套。
⑤钠离子交换器内的配水和集水装置,保证整个树脂层水流均匀,防止偏流。
底部排水帽的布置呈菱形排列,排水由的设置按最大运行流速进行设计,并留有一定的余量。
中间排水装置采用支母管型式,支管为梯形不锈钢绕丝管内镶不锈钢钻孔管,材质为316L,支管绕丝缝隙宽度为0.25mm。
⑥钠离子交换器的外部本体管路(一次阀门前)为衬胶管,衬胶厚度为3mm,底部出水管配有法兰仪表接口。
无顶压逆流再生离子交换器中排装置的改进摘要:在我国,电力工业的不断发展,火力发电机组的单机容量不断提高,机组补给水处理方式、水处理系统及设备也不断改进。
本文探讨其中一种离子交换除盐水处理设备——无顶压逆流再生离子交换器中排装置结构的改进。
关键词:离子交换器逆流再生中排装置改进Abstract: in our country, the development of the electric power industry, thermal power units of single machine capacity continues to improve, supply water treatment units, water treatment system and way equipment also improving. This paper discusses one of the ion exchange except the salt water treatment equipment-no top upstream pressure renewable ion exchanger ranked the improvement of the device structure.Keywords: ion exchanger counter-current regeneration ranked device improvement前言随着电力工业的发展,火力发电机组的单机容量不断提高,对锅炉补给水的水质要求和水处理系统设备的运行性能要求也越来越高。
目前在我国应用的水的除盐工艺方法,有化学除盐(即离子交换除盐水处理)、膜分离技术(作为锅炉补给水处理的预除盐)和蒸馏法除盐水处理等。
离子交换除盐水处理可使水的含盐量达到几乎不含离子的程度,既可以作为深度除盐,也可以作为部分化学除盐的方法。
离子交换水处理技术的先进性、安全可靠性及其经济性和确保水质的优良,是与离子交换水处理系统设备的结构、运行、管理等的合理性与先进性密切相关的。
逆流再生阴阳离子交换器说明书-CAL-FENGHAI.-(YICAI)-Company One1逆流再生(阴/阳)离子交换器使用说明书南京南自科林系统工程有限公司地址:南京浦口高新区星火路8号一、工艺原理:逆流再生离子交换器(分阳床、阴床、钠床亦称软化器)为无顶压逆流再生固定床,用于软化水、除盐水的制备;在制水工艺上采用逆流制水。
当离子交换器出水再生工艺采用无顶压逆流再生,具有操作简单、外部管系简单、不需要任何顶压设施,投资省的优点。
再生时,稀释好的再生剂由下向上逆向流经树脂层,将从下到上依再生不同层态的树脂,这种方式可以使树脂层获得较好的再生效果,再生剂可以得到较高的利用率,其次,具有废液排放量少,自用水率低等优点。
二、技术参数:1.进水浊度: < 1-2 NTU2.出水水质强酸阳床:钠泄漏不大于100ug/l,一般在20-30ug/l强碱阴床:SiO2泄漏不大于100ug/l,一般在20-50ug/l,出水电导率< 2us/cm。
3.工作压力: <4.工作温度: 5-45℃5.运行流速: 20-30m/h6.水反洗强度: 阳树脂10-15m/h 阴树脂8-10m/h7.再生流速: 5m/h8.再生液浓度: 1-3%9.设备直径: DN125010.填料高度: 阳床1300mm(压脂层200mm)11.阴床2500mm(压脂层200mm)三、结构形式:设备本体是带上下椭圆封头的圆柱形钢结构,内壁衬耐酸耐碱硬橡胶防腐;进水装置为母支管T形绕丝式,中间排水装置为母支管T形绕丝式。
下部为多孔板+水帽集水装置。
设备的本体外部装配有各种控制阀门并留有各种仪表接口,便于用户现场装接或实现水站正常运行。
四. 设备的安装1)安装前检查土建基础是否按设计要求施工。
2)设备按设计图纸进行就位,调整支腿垫铁并检查进出口法兰的水平度和垂直度。
3)将设备和基础预埋铁板焊接固定,固定后再次校验进出口法兰的水平度和垂直度。
无顶压逆流离子交换设备1. 介绍无顶压逆流离子交换设备是一种用于处理水质的高效水处理设备。
它采用逆流冲洗、无顶压注水等技术,通过离子交换剂的作用,能够有效去除水中的有害物质,改善水质,满足各种用水要求。
2. 工作原理无顶压逆流离子交换设备主要由离子交换柱、进水口、排水口、注水口、冲洗口等组成。
其工作原理如下:- 进水口:将待处理的水通过进水口输入设备。
- 离子交换柱:设备内设有离子交换柱,柱内填充有离子交换剂。
当水经过离子交换柱时,离子交换剂能够吸附水中的有害物质,并释放出对水质有益的离子或物质。
- 注水口:无顶压注水技术将水逆流注入设备,以保证水在离子交换柱内的均匀分布。
- 逆流冲洗:在设备工作一段时间后,离子交换柱内会累积一定的污物,需要进行逆流冲洗以清理离子交换柱。
3. 优点无顶压逆流离子交换设备具有以下优点:- 高效去除有害物质:离子交换剂能够吸附多种有害物质,如重金属离子、有机污染物等。
- 水质改善效果好:通过释放对水质有益的离子或物质,有效改善水质,提高水的适用性。
- 设备结构简单:设备结构简单紧凑,易于安装和维护。
- 经济实用:采用无顶压注水技术,既降低了设备运行成本,又提高了设备运行效率。
4. 应用领域无顶压逆流离子交换设备广泛应用于各个领域,包括但不限于以下方面:- 工业用水:适用于工业废水处理,可去除工业污染物,达到排放标准。
- 饮用水净化:能够去除水中的重金属、有机污染物等有害物质,确保饮用水安全。
- 农业灌溉:通过去除水中的盐分、微量元素等对农作物的有害物质,提高灌溉水质,改善农作物生长环境。
- 游泳池水处理:去除游泳池水中的污染物,保持水的清洁、透明度和卫生程度。
5. 结论无顶压逆流离子交换设备是一种高效的水处理设备,具有去除有害物质、改善水质的优点。
它广泛应用于工业、饮用水、农业灌溉等领域,为人们提供安全、干净的用水环境。
相信随着科技的不断进步,无顶压逆流离子交换设备在未来的发展中将发挥更为重要的作用。
一. 用途无顶压逆流再生钠离子交换器主要用于锅炉、热电站、制药、纺织、化工、轻工、电子等工业的硬水软化,去离子水制备的场合。
系统简单,操作方便,且具有逆流再生的一切优点,并省去了顶压系统,简化了操作,节省了投资及运行费用。
因此是目前除盐处理中最先进的设备。
柱内装入不同的树脂可成为强型床、弱型床、双层床等。
以组成经济合理的除盐工艺,获得最佳技术经济效果。
二. 技术参数规格产水量工作温度树脂层高设备净重( mm)(m3/h)( ℃ )(mm)(Kg)¢ 8001418001034¢ 10001600144220001543¢ 12001600193520002092¢ 1500441600243120002626¢ 16001600246620002674¢ 1800160032102000349716004052¢ 20004~ 402000440225004841¢ 220095160042972000465316006156¢25002000667225007312160010374¢3200201200011091250012012三.使用说明1.钠离子交换器投运前的准备(1)对钠离子交换器及附属设备进行全面检查;(2)盐池有足够的盐,再生系统完整好用;(3)压力表,流量表等完整好用;(4)床内树脂高度适宜(在中监视镜 1/2 处),发现明显减少,应查明原因。
2.在投入运行前应进行正洗:开启钠离子交换床入口门、空气门(空气门出水后关闭)、用水自上而下对排水门进行正洗。
正洗流速为10~15m/h,正洗至钠离子交换床出水硬度﹤L 后,关闭正洗排水门,开启钠离子交换床出口水门,投入运行。
3.运行失效以后应进行钠离子再生,再生过程为:(1)小反洗将反洗水从中间排水管引进,从交换床上部排出,对中间排水管上面的压实层进行反洗,以冲去运行时积聚在表面层和中排装置上的污物。
小反洗时,冲洗流速要适宜:既能使压实层要能充分松动,要满出力运行,并按顺序投入备用又不至将正常的树脂颗粒冲走。
无顶压逆流再生离子交换器使用说明书无顶压逆流再生离子交换器再生方法用于工业用水处理时,当钠离子交换器出水硬度大于100微克当量/升、氢离子交换器漏钠大于1毫克/升、阴离子交换器出水SiO2大于100微克/升,应停止设备运行并进行再生。
再生程序如下:1.小反洗:将反洗水从中间排液管引进,对中间排液管上面的压脂层进行小反洗,以洗去积聚在床层表面和中排装置上部树脂层中的污物。
小反洗用水,钠离子及氢离子交换器可用入口水,阴离子交换器可用氢离子交换器出口水或除盐水,小反洗流速小于10m/h,时间约15分钟。
水由中排进入,由反洗排水门排出。
2.放水:打开空气门和中排装置排水门,从中间排液管将水放出以使压脂层平整,大约10分钟,水层约将至中排管以上,压脂层中间。
3.进再生液:再生液浓度 NaCl 3~5% (氯化钠)钠离子软化HCl 2~3% (盐酸)氢离子交换H2SO42~3% (硫酸)氢离子交换NaOH 2~3% (氢氧化钠)阴离子交换再生剂用量软化:100% NaCl 80~90公斤/立方米树脂除盐:100% HCl 60~70公斤/立方米树脂除盐:100% NaOH 20~25公斤/立方米树脂再生剂用量最佳值应通过调整实验确定。
为了得到较好的再生效果,再生剂的稀释水应采用好水:钠离子交换器用软化水;氢离子交换器用氢离子交换器出水或除盐水;阴离子交换器用除盐水。
再生流速3~5m/h,例如:Φ800交换器再生液流量h,Φ1000交换器再生液流量5t/h,Φ1500交换器再生液流量9t/h,Φ2000交换器再生液流量15t/h,Φ2500交换器再生液流量25t/h。
再生时,打开底部再生液入口门、上部空气门和中排的排水门。
用底部再生液入口门的开度调节再生液流量,中排的排水门应全开,空气门部分开启。
4.置换(逆冲洗):再生剂进完后,仍按原流速继续用再生剂稀释水进行逆冲洗。
一般冲洗出水达到下列指标时停止进水;钠离子交换器出水硬度小于500微克当量/升氢离子交换器出水酸度小于5毫克当量/升阴离子交换器出水碱度小于毫克当量/升5.小正洗:小正洗是为了把压脂层中残留的再生废液冲洗干净。
软化器
软化器选用强酸性阳树脂,主要针对来水中的硬度进行脱除,保证出水硬度达到反渗透进水的要求,软化树脂就是树脂将水中的钙、镁离子置换出来,减少了钙、镁离子的含量,使水中不易形成碳酸盐垢和硫酸盐垢。
原水通过软化器时,软化器内的钠型阳离子交换树脂即与水中的钙镁离子置换产出软化水,反应式为2RNa2+Ca2++(Mg2+)→2RCa(Mg)+4Na+,软化水能防止锅炉等用水设备的结垢。
作用及特点
无顶压逆流再生钠离子交换器是用于水处理的软化设备,内填钠型阳离子交换树脂,上层备有压脂层,水流通过离子交换层,除去水中形成硬度的钙、镁离子,达到软化水的目的。
由于采用了对流离子交换和无顶压逆流再生技术,对流离子交换具有出水水质好、节约盐耗和自用水、制水成本低等优点,无顶压再生比水顶压或气顶压再生操作简易。
树脂性能指标
001×7(漂C100E):苯乙烯系,功能基团-SO3-,全交容量≥1.9eg/L,粒度范围0.315-1.250 mm≥95%,湿视密度(堆积密度)0.77-0.8 kg/L
树脂填装总高度:工作层高(即交换器布水帽至视镜中心高)+压脂层高200 mm,以保证交换器的周期制水量。
设备运行性能指标
工作压力:0.6Mpa,试验压力:0.75Mpa,工作温度:<40℃,运行流速:20∽30m/h,小反洗流速:5∽10m/h,再生置换流速:≤5m/h,小正洗流速:10∽15m/h,正洗流速:15∽20m/h,再生液浓度:≤5%。
无顶压逆流再生离子交换器再生效果的影响因素探讨【摘要】虽然反渗透技术在近几年取得了很大的进步,但在水的深度除盐处理中,仍然主要使用离子交换方式。
然而离子交换树脂失效后再生所带来的环境污染迫切需要解决。
再生效果的好坏不仅对交换器出水水质有直接的影响,而且在很大程度上决定着交换器运行的经济性。
对影响无顶压逆流再生离子交换器的再生效果因素进行了研究及应用,取得了明显的效益。
关键词水处理;离子交换;除盐;无顶压逆流;再生效果;影响因素0前言近几年,作为膜法水处理的反渗透(RO)技术以其能耗低,装置简单,操作容易且易控制取得了很大的进步。
但传统的离子交换水处理方式由于其投资费用低,组合方式多,处理水质好,特别是在制备纯水和高纯水的除盐系统深度处理中,仍然主要使用离子交换水处理,但离子交换树脂失效后再生所带来的环境污染问题迫切需要解决。
逆流再生离子交换器再生时再生液是从交换器底部进入,自下而上通过交换树脂层,然后从中间排液装置排出。
为了保证再生时不扰动树脂层,需要采用顶压措施。
通常,逆流再生离子交换器再生时根据顶压方式的不同分为;空气顶压、水顶压和无顶压再生。
而无顶压逆流再生更是以其设备简单,操作方便,自耗水量低而广泛应用。
但无顶压逆流再生时树脂层容易发生扰动,中排装置采用小阻力分配,易偏流等缺点。
本文将对影响无顶压逆流再生离子交换器的再生效果因素进行研究。
1试验部分1.1无顶压逆流再生离子交换器的再生工艺流程1.1.1小反洗启动交换器进口水泵,开小反洗进口阀,反洗出口阀洗至出水清。
目的是松动中排上部的压脂层(压实层),清除压脂层截留的悬浮物。
1.1.2大反洗(定期)关闭小反洗进口阀,缓慢开启反洗进口阀,使树脂膨胀至上窥视孔中部,反洗时不得跑大颗粒树脂,洗至出水清。
1.1.3沉降放水关闭反洗进、出口阀,使树脂沉降5min,开空气阀正排阀放水至上窥视孔中部立即关闭。
1.1.4预喷射启动再生泵,开再生泵出口阀,交换器进酸(碱)阀,开中排阀,维持水位在上窥视孔中部。
逆流再生离子交换器Countercurrent regeneration of ionexchanger使用说明书Operating Instruction一、工艺原理Technical principle逆流再生离子交换器(分阳床、阴床、钠床亦称软化器)为无顶压逆流再生固定床,用于软化水、除盐水的制备;在制水工艺上采用逆流制水。
Countercurrent regeneration of ion exchanger (Inclouding cation exchanger, anion exchanger, sodium ion exchanger is also called sodium softener) for no roof pressure countercurrent regeneration fixed bed, used to soften water, in addition to the preparation of brine; On the water making process by water flow system.当离子交换器出水再生工艺采用无顶压逆流再生,具有操作简单、外部管系简单、不需要任何顶压设施,投资省的优点。
再生时,稀释好的再生剂由下向上逆向流经树脂层,将从下到上依再生不同层态的树脂,这种方式可以使树脂层获得较好的再生效果,再生剂可以得到较高的利用率,其次,具有废液排放量少, 自用水率低等优点。
When ion exchanger regeneration process using no roof pressure water countercurrent regeneration, with easy operation, simple external piping, do not need any jacking facilities, the advantages of saving investment. Regeneration, dilute good regenerant from down to up reverse flowing through the resin layer, the state of different layers from bottom to top in accordance with the regeneration of the resin, this way can make the resin layer to obtain a good effect of regeneration, regeneration agent can get higher efficiency, second, with less waste emissions, the low water use ratio etc.二、技术参数Technical parameters1.进水浊度Influent water turbidity:< 1-2 NTU2.出水水质Effluent turbidity强酸阳床:钠泄漏不大于100ug/l, 一般在20-30ug/lStrong acid cation exchanger:Sodium leakage is not more than 100 ug/l, generally in the 20-30 ug/l.强碱阴床:SiO/泄漏不大于100ug/l,一般^0-50ug/l,出水电导率< 10us/cm。
100m3/h全自动软化水技术规格书一、系统工作方式1、本系统由三套Ø1800钠离子交换器和一套再生清洗系统组成,钠离子交换器二用一备。
2、系统运行为时间控制。
3、系统产水方式为恒流量供水。
4、单套交换器交换器工作方式:反洗、进再生液、漂洗、正洗、运行五个步骤工作。
三、设备规范1、离子交换器无顶压逆流再生钠离子交换器(以下简称钠床)为焊接碳钢结构的圆柱型容器,顶部和底部为椭圆型封头。
钠床本体内部衬胶厚度为5mm,接管衬胶到法兰的密封面。
设备上布水装置为多孔板水帽式。
集水装置为多孔板排水帽式。
排水帽材料尼龙,缝隙0.2mm。
钠床的外部本体管路(一次阀门前)为衬胶管,衬胶厚度为3mm,底部出水管配有法兰仪表接口。
每台钠床配有2个标准的Ø500mm人孔。
人孔盖内表面和器壁内表面持平。
人孔配有人孔盖、垫圈、螺栓、螺母和起吊杆等全套部件。
每台钠床配有两个窥视孔,分别用于观察正常运行时的树脂层和反洗时的树脂层最大膨胀层高度。
窥视镜12cm宽、35cm高,视镜材质是透明、耐腐蚀并有足够的强度以承受来自交换器内部的压力的有机玻璃。
窥视孔视井与筒体内表面和筒壁内表面持平。
每台钠床侧壁留有两个装卸树脂的法兰接口。
钠床配有进水阀、出水阀、反洗进水阀、反洗排水阀、正洗排水阀、再生液进口阀、再生液出口阀和排空气阀等。
钠离子技术参数2、盐过滤器盐过滤器是制备钠离子交换器再生用盐溶液的过滤设备,在盐过滤器上部设有布水器,下部设有多孔板水帽式集液装置,多孔板水帽式集液装置上铺石英砂滤层。
运行时,盐液由上部进入,由下部流出。
设备反洗时,清洗水由下部进入,由反洗排液口流出,从而完成对过滤器滤料的清洗。
盐过滤器为焊接碳钢结构的圆柱形容器,顶部和底部为椭圆型封头,设备按标准进行设计、制造和试验,所涉及的标准详见执行标准汇总表。
盐过滤器本体及接管内部衬橡胶。
盐过滤器装设顶部配水装置、底部集水装置及出水装置、和其附件。
无顶压逆流再生钠离子交换器概述无顶压逆流再生钠离子交换器将原来固定床顺流再生工艺改为逆流再生,按无顶压再生进行设计,省略了气顶的气源。
经钠离子交换器处理后水中总硬度降低至0.04毫克当量/升以下,在处理生水总硬度较高的水,或要求出水硬度较低时,可采用二级串联软化的方法。
工作原理在钠离子交换器内装有一定高度的钠离子交换树脂作为交换剂。
生水自上而下地通过交换剂层,交换剂上的钠离子置换了生水中的钙、镁离子、使水得到了软化。
Ca2++2NaR → CaR+2Na+Mg2++2N aR → MgR+2Na+交换剂上的钠离子逐渐被钙、镁离子所取代,当使用一段时间以后,就会泄漏出钙、镁离子,在出水的硬度达到所规定的数值时,即停止运行,进行再生。
再生时将5~8% 的盐水由下向上地通过交换剂层。
盐液中的钠离子又置换出交换剂上的钙、镁离子,使交换剂得到再生,恢复其交换能力。
反应如下:CaR+2Na+→ Ca2++2NaRMgR+2Na+→ Mg2++2NaR结构简述1. 进水装置在设备的上部设有进水装置,能使水均匀的分布在交换剂层上。
2. 中排装置:中排装置设置在离子交换树脂层和压脂层的分界面上,用于排泄再生食盐废液和进小反洗水,型式为:DN500桪N600型为双母管式,DN800桪N3200型为支管母管式,管上开小孔布液,管外包覆塑料窗纱及60目尼龙网各一层,材质均为20号钢。
3. 排水装置: DN1200及以下的设备采用多孔板上装设滤水帽,DN1500及以上设备有两种形式,及多孔板上装设滤水帽或用石英砂垫层。
多孔板材质按设备规格不同而异,DN500?00型用硬聚氯乙烯制作,DN800桪N3200型采用钢制多孔板,砂垫层配比按要求装填。
另外,在交换器下部排水帽处、树脂面处及最大反洗膨胀高度处各设视镜一个,用以观察体内工况。
考虑到树脂的水力装卸,筒体上部设树脂输入口,在筒体下部近多孔板处设树脂卸出口。
使用方法1、树脂处理小时后,放掉食盐水,用水冲洗树脂,直至出水不呈黄色为止。
逆流再生离子交换器逆流再生离子交换器锅炉软化水设备,离子交换器,钠离子交换器树脂预处理,双室床与双室浮动床设计的自由空间很小,树脂最好采用体外预处理,如利用单独的树脂清洗罐进行交叉浸泡等。
这是由于用再生剂交叉处理时弱型树脂的体积膨胀率可高达30 %~60%,如果双室浮动床像固定床那样在床体内预处理树脂强、弱型树脂组合的逆流再生离子交换器(一)双层床设备结构、运行操作程序与逆流再生固定床相同,见图3-18。
按照一定配比装填强、弱型两种树脂,弱型树脂在上层,强型树脂在下层。
运行时原水从上部进人,先通过弱型树脂,阳树脂双层床中弱酸型树脂去除碳酸盐硬度,强酸型树脂去除非碳酸盐硬度,适用于硬度和碱度接近或硬度略大于碱度,Na+含量不大的原水。
阴树脂双层床弱碱型树脂去除强酸阴离子,强碱型树脂去除弱酸阴离子。
再生时,再生液从下向上先通过强型树脂再流向弱型树脂。
在阳离子交换系统采用阳双层床时,弱酸树脂在运行中由H十型转变成Ca2+型时的体积变化极小,但是因为弱酸树脂只能用于去除水中的重碳酸盐硬度,所以必须根据原水水质的硬度与碱度比例等数据进行核算后选用。
阴双层床的便用特点如下:(1)双层床树脂是靠其颗粒的质量差来分层的,上层的弱碱树脂通常其颗粒直径都控制在0.3~0.6mm范围内,而弱碱树借湿真密度较低,反洗时树脂容易随水流溢出;同时,由于弱碱树脂在失效时其体积会有约25%的膨胀,这又相应降低了反洗空间高度,以致使阴双层床树脂的清洗造成困难。
(2)阴双层床再生时,碱液由下向上首先与下层的强碱树脂接触,从树脂上置换下硅化合物。
当携带了大量硅化合物的废碱液进人弱碱树脂层时,由于弱碱树脂对OH一的优先吸着,使废碱液的pH迅速降低,其中的硅化合物在低pH条件下会以胶态状的硅酸分子析出和积聚在弱碱树脂层内。
在下一周期运行中,这些胶态的硅酸分子又随水流逐渐排出,造成出水含硅量增高,使运行周期提前结束。
(3)在阴双层床进行无顶压逆再生时,由于弱碱树脂的转型收缩,会在压实树脂层下产生水垫空间,造成再生时树脂的扰动和乱层,影响再生效果。