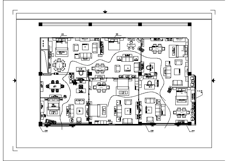
19502004005505509001009002030010020900300700680680700抽油烟机位厨柜定做厨柜定做300800300550300160020680100135950300红色地毯铺面REF厨房餐厅客厅阳台木地板铺面书房木地板铺面小孩房地毯铺面主人房2.700防雾筒灯2.600筒灯吊灯300x300白色铝扣板天花2.4002.4002.7002.4002.7002.700筒灯位清玻层板刷绿色(参效果图)台面刷白面板刷白30MM清镜8MM50MM宽间隔6MM烙缝刷白30MM面板刷白台面刷白8MM清玻台面(参效果图)墙面油绿色肌理20MM间隔30MM木扁线刷白30MM面板刷白台面刷白图例:吸顶灯300x300白色铝扣板天花2.4002.400面板刷白刷绿色(参效果图)台面刷白45MM(参效果图)8MM绿色肌理清玻层板A1:30客厅立面图刷绿色(参效果图)清玻8MM8MM清玻层板暗藏灯管筒灯位豆绿色ICI门套线刷白8MM80MM30木扁线刷白清玻清镜淡绿色防火板饰面豆绿色防火板饰面扁线刷绿色30MM325026501250300090752501850300013502700195024007002750300300300550375055030476476301601301804901700380201519250500400820400100400482468838085008300300300900751123010040889340840840830801007002200280012001850270030027002420625040200180458071540807501050100300303054027002700342550251001001200200300厨柜定做豆绿色ICI饰面装饰画装饰画30mm天花角线刷绿豆绿色ICI饰面面板刷白厨房立面图1:30主卧房床头造型立面图1:3030MM刷51234A21BC21D131A客厅立面图1:30客厅立面图A21:301B主卧房衣柜立面图1B1:30aabbCCa-ab-b100c-cddeeffd-de-ef-f书房书柜立面图D11:30gg柜门边框刷绿色8MM40MM清玻柜门清玻层板木层板刷白20MM抽屉刷绿小孩房衣柜立面图C11:30iii-ijjj-j小孩房书桌立面图C21:30小孩房书桌平面图2C1:30墙面油快涂美1575256501501:304A客厅玄关立面图E-07益田花园D区样板房装饰施工图设计号DESIGN NO.DRAWING NO.张数SHEET NO.图号深圳好思威设计有限公司SHENZHEN HOUSE WELL DESIGN CO.LTD以图内数字所示为准。施工单位必须在工地核对图内所示数字之准确,如发现任何矛盾,应通知设计师,方可施工,否则施工单位须承担所有责任。APPROVED BY 校对CHECKED BY审核DATE日期将任何部分翻印。切勿以比例量度此图,一切非得本公司设计师之书面批准,不得随意DATE日期NOTES备注修改REVISIONDESCRIPTION 说明DESIGNED BY绘图DRAWN BY设计SCALE1:20比例尺图纸名称CONTENT厨房立面图工程名称PROJECT1975100200白色ICI饰面10502005001800定做史丹丽衣柜2扇清玻层板8MM4501800500300100450500180010045050030012002002002006250301200684120084008白色ICI饰面刷绿色(参效果图)刷绿色(参效果图)370白色ICI饰面10023009004004009001003058558558558530240030MM豆绿色ICI豆绿色ICI30MM豆绿色ICI面板刷白30585585585585302400900400400900100D1书房沙发背景立面图1:309003035530100030355300g-g600170010072072030018001004505001001800450300500270022003003100735023001750100100395080501004000益田花园D区样板房(A1)装饰施工图E-057小孩房立面图 深圳好思威设计有限公司SHENZHEN HOUSE WELL DESIGN CO.LTD非得本公司设计师之书面批准,不得随意将任何部分翻印。切勿以比例量度此图,一切对图内所示数字之准确,如发现任何矛盾,应以图内数字所示为准。施工单位必须在工地核通知设计师,方可施工,否则施工单位须承担校 对编 制设 计备注:所有责任。灯具布置图 电器平面布置图 卫生间立面图大样详图 厨房立面图大样详图 1013121189M-02D-01M-01D-02E-06E-07装饰施工图目录序 号图 纸 名 称平面布置图客厅立面图 天花布置图客厅立面图 主人房立面图 主人房立面图 456123图号E-03E-02E-04P-01P-02E-01配电箱APPROVED BY DESIGNED BY日期修改REVISION所有责任。DATENOTES备注以图内数字所示为准。施工单位必须在工地核对图内所示数字之准确,如发现任何矛盾,应通知设计师,方可施工,否则施工单位须承担将任何部分翻印。切勿以比例量度此图,一切非得本公司设计师之书面批准,不得随意DESCRIPTION 说明审核设计校对绘图CHECKED BYDRAWN BYNO3NO4NO2配电箱TNO1NO2益田花园D区样板房装饰施工图SHENZHEN HOUSE WELL DESIGN CO.LTD深圳好思威设计有限公司日期1:50DATE比例尺SCALEBV-500(3 10)45N-63A/1PwhPROJECT图纸名称工程名称CONTENTA1 电器平面布置图BV-500(3 2.5)BV-500(3 2.5)BV-500(3 4)BV-500(3 2.5)45N-20A/1P45N-20A/1P45N-20A/1P45N-20A/1P45N-25A/1P配电系统图一般插座照 明NO1NO2NO3备 用空调插座NO4NO5厨房插座NO3NO3NO2BNO2TDESIGN NO.张数设计号M-01DRAWING NO.图号SHEET NO.非得本公司设计师之书面批准,不得随意将任何部分翻印。切勿以比例量度此图,一切通知设计师,方可施工,否则施工单位须承担对图内所示数字之准确,如发现任何矛盾,应以图内数字所示为准。施工单位必须在工地核所有责任。备注NOTESREVISION修改日期DATEc校对绘图DESCRIPTION 说明DATESCALE比例尺1:50日期APPROVED BY 审核CHECKED BYDESIGNED BY设计DRAWN BYFEGBACAbaaAAD深圳好思威设计有限公司SHENZHEN HOUSE WELL DESIGN CO.LTDcEaDAAFFBGBBccbaCCdesdA1 灯具布置图益田花园D区样板房装饰施工图PROJECTCONTENT图纸名称工程名称DRAWING NO.图号M-02DESIGN NO.SHEET NO.设计号张数阳台VTVTNO2BTFFBeeddeds射灯筒灯防雾筒灯暗藏灯管玻璃造型吊灯吸顶灯客厅立面图2A1:30清镜40mm扁线刷白色白色ICI饰面客厅立面图3A1:3030木扁线刷白台面刷白墙面油绿色肌理快涂美45MM筒灯位暗藏灯管面板刷白白色ICI饰面清玻层板10mm布纹玻璃3900门套面饰绿色手扫漆鹅卵石白色手扫漆饰面绿色手扫漆饰面A客厅立面图21:30A客厅立面图21:30踢脚线面饰绿色手扫漆白色ICI饰面清镜20mm扁线刷白色踢脚线面饰绿色手扫漆10厘夹板拼装面饰白色ICI饰面清镜5mm凹缝踢脚线面饰绿色手扫漆90751350125025027002800265030001850185022007001200275030001950240070032506250162023203002700105040160100200100400250400250120025080100320125080720803425502510010012002700120020065010030045050253425120010010027001130100200300555205752050253425100120010020023002700100300中国专业人士的网络家园;因为专业,所以完美市场部:ivpmarket@ 技术部:ivptech@网易 NetEase建筑在线 编辑部:ivpinfo@==}土木工程}