消防水箱及增压稳压设施
- 格式:doc
- 大小:14.00 KB
- 文档页数:3
消防增压稳压设备出水管管径的确定消防给水系统的消防增压稳压设备是从生活气压给水设备演变而来的。
消防增压设施与生活气压给水设备在作用机理上的最大不同,就是要随时准备为动态管网提供一个短时间(30S)的初期灭火“爆发’’水量,届时,气压水罐出水管的流量会达到:消火栓与自动喷水灭火系统合用时为l5L/S、单消火栓系统时为lOL/S、单自动喷水灭火系统时为5L/S。
工程设计中,气压水罐出水管的管径应为DN≥100mm(当DNl00时,上述系统流速分别为1.73m/S、1.15m/S、0.58m/S,管道阻力损失也在比较合理的范围内)。
然而,在工程实践中发现,有将消防气压水罐出水管的管径定为DN80、DN70、DN50甚至还有DN32的。
显然是忽略了消防气压水罐为初期灭火提供的水量具有‘爆发’’性的特点,把增压稳压设备的出水量和增压泵的出水量这两个完全不同的概念混淆了。
3增压设施的压力对消防给水系统的影响增压设施对消防给水系统施加的压力属于静压还是动压的问题,一直是专业内部争论的热点之一。
某些高度超过90m的高层建筑,消防给水系统设置了高位消防水箱后,最底部的消火栓处的静水压力小于lMPa,按“高规’’7465条规定可以不必分区。
但同时‘高规’’74.72条规定:若此消防给水系统最小利消火栓处的静水压力小于0.07MPa时,应设增压设施。
当在建筑顶部的高位消防水箱旁设了增压设施后,系统的压力就在消防水箱高度的基础上增加了约0.3MPa。
最不利消火栓处的静水压力满足了要求,但最底部消火栓处的压力却超过了1MPa,甚至达到了l.3MPa。
有看法认为增压设施为系统施加的压力为动压,不影响系统的分区,尽管系统最底部消火栓处的压力长期处于超过1MPa的状态。
简言之,就是消防水箱的最高水位与最底部消火栓的垂直高度在100m以内的高层建筑,消防给水系统设与不设增压设施,消防给水系统都可不分区,此为动压论(见图2a)。
另有看法则认为增压设施施加的压力应视为静压,系统是否分区,应取决于增压设施施加了压力后系统的压力状况。
前言中华人民共和国国家标准固定消防给水设备第3部分:消防增压稳压给水设备Fixed water supply equipment used for fire-protection-Part 3:Pressure boosting and stabilizing type water supply equipment used for fire-protectionGB 27898.3-2011颁布部门:中华人民共和国国家质量监督检验检疫总局中国国家标准化管理委员会发布时间:2011年12月30日施行时间:2012年06月01日GB 27898的本部分的第5章、第7章和第8章为强制性的,其余为推荐性的。
GB 27898《固定消防给水设备》分为以下部分:——第1部分:消防气压给水设备;——第2部分:消防自动恒压给水设备;——第3部分:消防增压稳压给水设备;——第4部分:消防气体顶压给水设备;——第5部分:消防双动力给水设备。
……本部分为GB 27898的第3部分。
本部分按照GB/T 1.1-2009给出的规则起草。
本部分由中华人民共和国公安部提出。
本部分由全国消防标准化技术委员会固定灭火系统分技术委员会(SAC/TC 113/SC 2)归口。
本部分起草单位:公安部天津消防研究所。
本部分参加起草单位:青岛三利集团有限公司。
本部分主要起草人:赵永顺、李习民、马六甲、刘连喜、张强、罗宗军、王洪刚。
本部分是首次发布。
1 范围GB 27898的本部分规定了消防增压稳压给水设备的术语和定义、分类、要求、试验方法、检验规则、标志牌和操作指导书、包装、运输和贮存。
本部分适用于消防增压稳压给水设备。
工作原理类似的增压稳压给水设备可参照采用。
2 规范性引用文件下列文件对于本文件的应用是必不可少的。
凡是注日期的引用文件,仅注日期的版本适用于本文件。
凡是不注日期的引用文件,其最新版本(包括所有的修改单)适用于本文件。
GB 150 钢制压力容器GB/T 528 硫化橡胶或热塑性橡胶拉伸应力应变性能的测定GB/T 3222.2 声学环境噪声的描述、测量与评价第2部分:环境噪声级测定GB 27898.1-2011 固定消防给水设备第1部分:消防气压给水设备GB 27898.2-2011 固定消防给水设备第2部分:消防自动恒压给水设备CJ/T 265 无负压给水设备TSG R0004 固定式压力容器安全技术监察规程3 术语和定义GB 27898.1-2011和GB 27898.2-2011界定的以及下列术语和定义适用于本文件。
消防给水系统中增压和稳压设施设计探析陈凯发布时间:2021-09-08T06:28:35.540Z 来源:《房地产世界》2021年10期作者:陈凯[导读] 在消防给水系统中,高位消防水箱是十分重要的组成部分。
该部分的设计能够进一步加强消防给水系统的稳定性、可靠性及安全性,并且在消防给水系统的启动初期也能够使之达到较高的水压水量,对初期火灾加以控制,避免风险或损失的进一步扩大。
舟山市消防救援支队普陀山大队浙江舟山 316107摘要:现阶段我国大部分建筑工程在推进过程中所选用的给水系统均为临时高压给水系统,相较于常规改成系统来说,该种系统的管网内压力相对偏低,不论是水压还是流量都无法满足消防给水的基本需求,只有当消防水泵启动后,才能够逐渐提高水压及流量,所以很难在火灾初期对其加以控制。
结合现行民用建筑设计防火规范分析来看,在现代建筑工程中,需重点推进消防给水系统设计,必须合理安置增压设施及稳压设施。
关键词:消防给水系统;增压设施;稳压设施在消防给水系统中,高位消防水箱是十分重要的组成部分。
该部分的设计能够进一步加强消防给水系统的稳定性、可靠性及安全性,并且在消防给水系统的启动初期也能够使之达到较高的水压水量,对初期火灾加以控制,避免风险或损失的进一步扩大。
同时,在现代消防给水系统中,增压设施与稳压设施必不可少。
其在设计方面也存在较多的重点。
文章将立足于此,对增压设施及稳压设施的设计进行分析。
1增压设施和稳压设施的基本设计结合现阶段比较常见的消防给水系统结构分析来看,在设计增压设施及稳压设施时。
主要选择的设施类型为增压水泵及气压水罐。
在整个消防给水系统中设计增压设施的主要目的在于辅助消防系统提供供水服务。
并且在不同形式的消防给水系统中,其整体的作用也存在一定的差别,如若整个消防给水系统中的消防水箱无法满足高度要求,工作人员需要借助增压设施对其加以局部增压,以满足局部水压所提出的标准。
当高压消防给水系统整体无法达到稳定状态时,工作人员需要借助稳压设施,稳定系统压力功能。
多层建筑消防水箱和增压稳压设施的思考1. 消防水箱在多层建筑消防系统中的作用多层建筑的消防系统结构相对较为复杂,需要安装比较完善的消防设施和设备。
在这些设施中,消防水箱的作用尤为重要。
消防水箱是储存消防用水的容器,对于执行消防任务具有不可或缺的作用。
在多层建筑中,消防水箱通常位于建筑物顶层,利用地形高度差,通过自然重力输水的方式为消防系统提供用水。
消防水箱由水泵或其他设备充水,当消防系统需要用水时,通过开启消防水泵等设备将水送至消防设备和现场,供消防人员使用。
2. 消防水箱的注意事项在多层建筑物中安装消防水箱时,需要注意以下几点:2.1 安全性考虑到水箱的安全性,需要在设计时考虑选取材质,如应选用不鏽钢或者具有足够强度的钢材进行加固;同时还需要考虑防滑、防水等涂层的保护。
2.2 安装位置消防水箱应该安装在楼顶上,以便于利用自然重力输水的方式向下供应水源。
在选择消防水箱的位置时,还需要考虑管道输送的方向、是否易受影响等因素。
2.3 控制器消防水箱配备控制器是必不可少的,以对水位、压力等进行控制,确保消防系统稳定可靠运行。
同时也要注意控制设备的质量和维护保养。
3. 水泵增压稳压设备在消防系统中的重要性消防系统中的水泵增压稳压设备,是确保消防水源供应可靠的保证。
多层建筑的消防系统中可能存在水源压力不够,输水距离过长等问题,此时水泵增压稳压设备就显得尤为重要。
水泵增压稳压设备能够保证消防水源能够满足消防系统的正常需求,如果出现消防水源供应不足的情况,水泵增压稳压设备就能够快速响应,及时补充水源。
衡量水泵增压稳压设备的好坏主要取决于其能否保证消防系统的运行效率和安全性。
在选择水泵增压稳压设备时,还需要考虑其性能、功率、适用范围等因素。
4. 总结消防水箱和水泵增压稳压设备是多层建筑消防系统中不可或缺的两个组成部分,对于确保系统供水和稳定性具有重要的作用。
在效果、安全性等方面的需求都比较高,因此在选择安装消防水箱和水泵增压稳压设备时,需要考虑各种因素,并在使用过程中有一定的维护保养,以确保其正常使用的效果和安全性。
浅谈消防增压稳压设备的选用摘要:结合现行消防给水技术规范,简要叙述了增压稳压设备的工作原理及设置类型,以及设备技术参数的计算方法,并通过实例进行计算。
关键词:消防增压稳压设备工作原理设备选型Introduction to the selection of fire pressure stabilizing device Abstract:Combined with the current technical code for fire protection, introduces the pressure stabilizing device 's working principle and setting types, describes the calculation method of technical parameters, then calculate with an example.Keyword:fire protection pressure stabilizing device working principle equipment selection引言在建筑消防给水系统设计中,保证系统最不利点供水压力,一直是消防给水设计中着重考虑的问题。
现行的《消防给水及消火栓系统技术规范》规定高位消防水箱的设置应高于其所服务的水灭火设施,且最低有效水位应满足水灭火设施最不利点处的静水压力并有:一类高层公共建筑最不利点处的静水压不应低于0.10MPa,当建筑高度超过100m时,不应低于0.15MPa;高层住宅、二类高层公共建筑、多层公共建筑,不应低于0.07MPa;工业建筑不应低于0.10MPa,当建筑体积小于20000m³时,不宜低于0.07MPa;自动喷水灭火系统等自动水灭火系统应根据喷头灭火需求压力确定,但最小不应小于0.10MPa。
当消防水箱的设置高度不能满足上述规范中规定的最不利点的静水压力要求时,应设置消防增压稳压设施。
建构筑物消防员中级-消防供水设施的组成(上)姓名:__________指导:__________日期:__________2017-09-02 12:53(一)消防水箱消防水箱是指设置在地面标高以上的储存或传输消防水量的水箱。
它包括高位消防水箱和中间消防水箱。
高位消防水箱设在建筑物最高部位,储存全部或部分消防水量,即常高压消防给水系统1个水源和临时高压消防给水系统0.2个水源,消防用水靠重力自流至消防给水管。
中间消防水箱是因消防给水系统垂直分区的需要而设置的并联、串连、消防转输的水箱。
临时高压消防给水系统0.2个水源消防水箱设置的目的,一是提供系统启动初期的用水量和水压,在消防泵出现故障的紧急情况下应急供水,确保自动喷水灭火系统的喷头开放后立即喷水,及时控制初期火灾,并为外援灭火争取时间;二是利用高位差为系统提供准工作状态下所需的水压,以达到管道内充水并保持一定压力的目的。
消防水箱的主要功能是储水功能、自动供水功能。
常高压消防给水系统的高位消防水箱满足系统所需的压力和流量的要求,以及火灾延续时间内的用水量的储备。
1.消防水箱的设置范围(1)高位消防水箱的设置在采用临时高压消防给水系统时,或自动喷水灭火系统采用稳高压消防给水系统或临时高压消防给水系统时,或采用高位消防水箱供水的常高压给水系统时,应设高位水箱。
设置常高压给水系统并能保证最不利点消火栓和自动喷水灭火系统等的水量和水压的建筑物,或设置干式消防竖管(干式系统或预作用系统)的建筑物,可不设置高位消防水箱。
(2)中间消防水箱的设置中间消防水箱的设置根据消防给水系统的给水方式不同而设置。
2.消防水箱的设置要求由消防水箱的功能决定了消防水箱的水量,自动供水功能决定了消防水箱的设置高度。
(1)消防水箱的消防储水量:①高位消防水箱的消防储水量如表所示。
②中间消防水箱的消防储水量应根据所选系统给水方式来确定,如表所示。
(2)消防水箱的设置高度自动喷水灭火系统对高位消防水箱设置高度的原则是:满足系统最不利点处喷头的最低工作压力。
消防系统中增压稳压设备设置位置的探讨摘要:1. 设置临时高压给水系统的建筑物应设置消防水箱(包括气压水罐、水塔、分区给水系统的分区水箱)。
2.消防给水系统稳压泵是系统平时维持压力的水泵,对系统起着监护作用和使系统具有自动控制的功能。
关键词:静压力,系统稳压,高位水箱,增压稳压设备Abstract: 1. Set high pressure water supply system building temporary shall set up fire water tank (including water pressure, water tower, points of the water supply system area division water tank).2. The fire water system voltage stabilizing pump is the system maintains the pressure at ordinary times water pump, the system plays a monitoring role and make the system has the function of automatic control.Keywords: static pressure, voltage system, high water tank, pressure inside the equipment一、规范要求我国《建筑设计防火规范》(以下简称低规)8.4.4条规定:设置临时高压给水系统的建筑物应设置消防水箱(包括气压水罐、水塔、分区给水系统的分区水箱)。
消防水箱的设置应符合下列规定:1 重力自流的消防水箱应设置在建筑的最高部位;2 消防水箱应储存10min 的消防用水量。
当室内消防用水量小于等于25L/s,经计算消防水箱所需消防储水量大于12m3时,仍可采用12m3;当室内消防用水量大于25L/s,经计算消防水箱所需消防储水量大于18m3时,仍可采用18m3;3 消防用水与其它用水合用的水箱应采取消防用水不作他用的技术措施;4 发生火灾后,由消防水泵供给的消防用水不应进入消防水箱;5 消防水箱可分区设置。
消防增压稳压设备的工作原理一、利用设在建筑顶层的高位消防水箱对消防增压稳压设备;按“高规”GB50045—95的规定,当高位消防水箱提供的水压不能满足最不利点处的消防水压,则应设高位消防水箱增压装置。
按我国现行“高规”GB50045—95及《建筑设计防火规范》GBl6—87的规定,对于临时高压消防给水系统均应设置高位消防水箱。
此时应注意:(1)稳压泵应能自动启停,并受控于设置在系统管道上的压力检测装置。
(2)稳压泵宜设置在系统顶部靠近高位水箱处,以降低稳压泵的额定工作压力,节约能源。
(3)稳压泵组应设在旁线的管道上。
(4)对自动喷水灭火系统,稳压泵的加压点,应设在系统的水源侧。
二、利用高位消防水池(例如山顶上的高位消防水池)对消防增压稳压设备。
这种系统称为常高压消防系统,但在实际工作中很少见到。
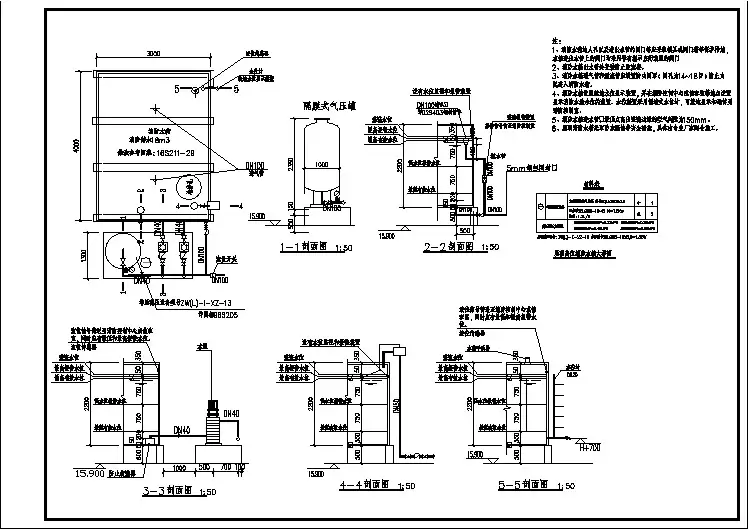
(1)当规范允许用气压罐代替高位水箱时,气压罐必须储存十分钟的消防用水量,平时不能动用,火灾时方可动用,通常称这样的气压罐为“大罐”,“大罐”只能启动稳压泵和停止稳压泵,一般不要求用它的信号去启动主泵,更不允许用它的信号去停运主泵。
(2)“小罐”是指按规范要求,配合高位水箱增压而设置的气压给水装置。
该装置的气压罐仅储存火灾初期的30S的消防用水量,对消火栓给水系统,其调节容积为2支水枪30S用水量,即2×5(L/S)×30=300(L);对自动喷水灭火系统,其调节容积为5只标准喷头30S的用水量,即5×1(L/S)×30=150(L)。
三、利用设在水泵房内的专用稳压泵与气压罐协同工作对消防增压稳压设备,使之处于准备消防状态。
当采用“小罐”时,气压罐不但能发出启动和停止稳压泵的信号,而且还能发出启动消防主泵的信号。
即设备投入正常运行后,系统水压将保持在设定的上下限(即稳压泵的启动和停机压力)之间,当管网泄露、系统压力降至设定压力下限P2时,稳压水泵自动启动,对管网进行补水稳压,以供消防供水系统保证最不利配水点的消防所需压力,当系统压力达到设定压力上限P1时稳压泵停止工作,每次压力下降时,都将重复上述的运行过程,以稳定消防管网的压力和气压罐的调节水容积。
消防给水系统中增压和稳压设施的设计选择高位消防水箱时要考虑到作用,一般会利用重力自流式消防水箱。
建筑物会在最高部位恰当设置高位消防水箱,注意满足相关标准与要求。
以防有火灾发生时可在最短时间内扑灭火源,防止因火势蔓延而造成严重经济与人员伤亡。
《高层民用建筑设计防火规范》以及《自动喷水灭火系统设计规范》等,都有对消防水箱设置作出明确规定,增压设施以及稳压设施是满足高层建筑防火需求的有效方式,因此需要将其合理加设于消防给水系统当中。
一、如何确定气压水罐容积首先,不同类型的消防给水系统应有不同的消防增压设施。
在独立设置的自动喷水灭火系统中,其增压设施出水管道也应独立设置,不应共用气压水罐。
《高层民用建筑设计防火规范》7.4.8.2条规定:"气压水罐的调节水容积宜为450L。
"这过于笼统,在大多数工程项目中不会出现消火栓系统和自动喷水灭火系统共用的情况,这是因为《自动喷水灭火系统设计规范》中明确规定了"(自动喷水灭火)系统应设独立的供水泵"。
其次,建议将气压水罐的设置要求根据不同的系统形式区别对待,《高层民用建筑设计防火规范》对气压给水设备的调节容积是按2支水枪和5只喷头30s的用水量计算。
因此,针对不同的消防给水系统形式,其规定建议改为:消防稳压罐的调节水容积对室内消火栓给水系统不应小于300L,对自动喷水灭火系统不应小于150L,对室内消火栓给水系统和自动喷水灭火系统合用消防泵或消防稳压罐的给水方式不应小于450L。
最后,在《固定消防给水设备》的国家产品标准中,固定消防给水设备目前分为5个部分,即消防气压给水设备、消防自动恒压给水设备、消防增压稳压给水设备、消防气体顶压给水设备、消防双动力给水设备。
用于高位消防水箱的是"消防增压稳压给水设备"。
在消防气压给水中,消防设计规范要求的是气压水罐的有效容积,而气压水罐应设有消防储水容积、稳压水容积、缓冲水容积,补气式气压水罐还应有不动水容积。
1.消防增压稳压泵的设计计算:稳压泵的设计计算内容:稳压泵启泵压力P1、稳压泵停泵压力P2、消火栓泵启泵压力P3、稳压泵扬程H。
依据《消防给水及消火栓系统技术规范》GB 50974-2014第5.3.3条3款,稳压泵的设计应保持系统最不利点处灭火设施在准工作状态时的静水压力为0.15MPa。
(1)稳压泵启泵压力P1(当稳压泵设置在屋顶时):稳压泵启泵压力P1(MPa)>(15-h1+h2)×0.01h1——消防水箱最低水位与最不利点消火栓的静高差(m);h2——消防水箱最低水位与气压罐电接点压力表的静高差(m),取2m;则P1(MPa)=(15-5+2)×0.01=0.12MPa(2)稳压泵停泵压力P2:稳压泵停泵压力P2(MPa)=P1(MPa)+(0.05~0.07)(MPa)(综合考虑稳压泵启泵次数的经验值,按150L调节容积复核稳压泵启泵次数不大于15 次/h)则P2(MPa)=0.12+0.07=0.19MPa(3)消火栓泵启泵压力P3:消火栓泵启泵压力P3(MPa)=P1+h3×0.01-(0.07~0.10)(MPa)h3——气压罐电接点压力表与消火栓泵压力开关的静高差(m),电接点压力表距离屋面高差取2.5m。
则P3(MPa)=0.12+7×0.01-0.1=0.09MPa(4)稳压泵扬程H:稳压泵扬程H(m)≧(P2-h2×0.01)×100则H(m)=(0.19-2×0.01)×100=17m(5)稳压泵设备选用:水泵选用立式多级分段式离心消防专用泵两台,一用一备。
单泵Q=1L/s,H=23m,3000r/min,N=1.1kw,Pg=1.6MPa,Q~H性能曲线平滑无驼峰,电机轴功率应能满足Q~H性能曲线上任何一点的工作要求。
气压罐选用隔膜式、有效容积300L。
2.喷淋增压稳压泵的设计计算:稳压泵的设计计算内容:稳压泵启泵压力P1、稳压泵停泵压力P2、喷淋泵启泵压力P3、稳压泵扬程H。
1.消防水箱
在高层建筑临时高压消防给水系统扑救初期火灾(指火灾的前10 min)时,主要依靠消防给水系统中贮存一定消防水量的高楼供水设备。
当建筑内发生火灾而消防泵尚未启动时,依靠高位水箱的设置高度,把水箱中贮存的消防用水输送到着火点附近的消火栓进行灭火,这是一种在火灾初期非常经济可靠的措施。
(1)高位水箱的贮水量。
高位水箱的贮水量应按建筑物的室内消防用水总量的10 min进行计算。
消防水箱的最小贮水量应符合下列要求:一类建筑(住宅除外)不应小于18立方米;二类建筑(住宅除外)和一类建筑的住宅不应小于12立方米;二类建筑的住宅不应小于6立方米。
(2)高位水箱的设置高度。
高位水箱的设置高度,应保证最不利点消火拴静水压力。
建筑高度不超过100 m时.高层建筑最不利点的静水压力不应小于0.07 MPa;建筑高度超过100 m时,高层建筑最不利点消火栓静水压力不应小于0. 15 MPa。
(3)消防水箱的设置。
消防水箱宜与其他用水的水箱合用.使水箱内的贮水经常处于流动状态,以防止水质变坏。
消防用水与其他用水合用水箱时.应有确保消防用水不被动用的技术措施.
(4)止回阀设置。
消防水箱的出水甘上应设置止回阀,以防止火灾时,消防泵供给的消防用水进人消防水箱,影响消防给水系统正常工作。
2.消防给水系统的增压设备
设有高位消防水箱的消防给水系统.当高位水箱安装高度不能满足上述静压力要求时.应采用增压设备。
增压设备有以下几种:
(1)管道泵。
系统中除设有消防主系外.在屋顶水箱间设置管道泵。
火灾发生后,管道泵由远距离按钮及时启动,从无塔供水设备的水箱吸水加压后送至管网进行灭火。
管道泵的流量对消火栓系统不应大于5L/s,对自动喷水灭火系统不应大于1L/s,以满足一个消火栓用水量或一个自动喷头的用水量。
管道泵的扬程按照保证本区消防管网最不利消火栓所需要的压力.通过计算确定。
(2)气压罐。
气压罐相当于压力水箱,既可贮水又可维持系统所需压力.安装位置不受限制。
并且可通过气压罐的压力控制自动启动消防水泵。
但是,气压罐的缺点是有效贮水容积小.用其代替高位水箱贮存火灾初期10 min用水时,其总容积必将很大.占有较大的空间.同时造价也高。
采用气压罐贮存火灾初期10min消防用水,适用于没有高位水箱的建筑。
(3)稳压泵。
稳压泵是一种小流量高扬程的水泵.设在屋顶水箱间,其作用是补充系统所需的水量,保持系统所需的压力。
稳压泵的运行设有三个压力控制点一般为设计工作压力的正负0.1 MPa间.当系统处在设计工作压力时.稳压泵启动,在压力提高了0.1 MPa时停泵。
火灾发生时消火栓启用.则系统压力
迅速下降.当系统压力下降至稳压泵设计工作压力以下0.1MPa 时.消防水泵启动。
稳压泵的流量一般按1.0L/s,这是因为系统的渗漏量小。
稳压泵的流量设置过大.将延迟消防主泵的启动.以至于不能启动。
稳压泵的缺点是启动频繁.为避免稳压泵的频繁启动,目前多采用稳压泵和小型气压罐联合使用,将其设置在高层建筑顶部水箱间内。
气压罐调节水用量为两支水枪和五个喷头30s的用水量,即2x5x30+5x1 x30=450L/s。
这种增压设计有占地面积小、能耗低、投资省、运行可靠等优点.
【本文档内容可以自由复制内容或自由编辑修改内容期待你的好评和关注,我们将会做得更好】。