浅谈10KV动态无功补偿装置
- 格式:doc
- 大小:17.50 KB
- 文档页数:5
10kV静止无功补偿装置svc运行分析及应用摘要:由于10kV系统直接面对用户对电压的要求很高,需要有很稳定的电压质量,10kV静止型动态无功补偿装置SVC能很好的解决以上问题,保证对用户可靠稳定的供电。
本文介绍了10kV静止型动态无功补偿装置SVC工作原理,并结合220kV象山站的实际情况,分析本站SVC主要构成,并对比了已安装SVC的母线与安装A VC的母线电压的变化曲线分析其作用。
对SVC装置在运行中出现的故障情况进行统计分析,并提出个人改进建议。
关键词:工作原理主要构成应用异常随着社会的进步,电网对高质量、高可靠性的电能供应提出了越来越高的要求,10kV静止型动态无功补偿装置SVC对10kV系统的安全运行,对提高系统的稳定性和可靠性起着非常重要的作用。
SVC主要包括下面内容:工作原理,主要构成,作用。
1 SVC工作原理SVC(Static Var Compensator)是一个动态的无功源。
SVC的显著特点是能快速,连续地对波动性负荷进行补偿,有效地抑制系统电压波动和闪变。
同时滤除系统中的高次谐波。
并通过分相调整改善系统的三相平衡度。
根据接入电网的要求,它可以向电网提供无功(容性),也可以吸收电网多余的无功(感性)。
把电容器组(通过滤波器组)接入电网,就可以向电网提供无功。
当电网不需要太多的无功时,这此多余的无功,就由一个并联的空心电抗器来吸收。
图1所示为TCR+FC型静补装置(TCR,晶闸管控制电抗器)的原理图。
图中;。
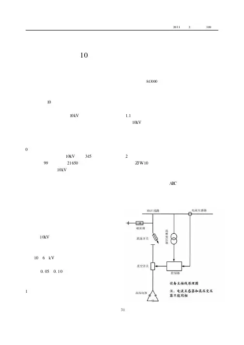
2 220kV象山站SVC设备主要构成深圳供电局首台SVC装置安装于220kV象山站10kV 1M,此静止无功补偿系统SVC装置主要由以下设备构成:(1)开关柜(包括断路器、隔离开关、接地开关、互感器、开关保护);(2)线性(空心)电抗器;(3)可控硅阀组;(4)固定电容器组;(5)滤波器组;(6)阀组冷却水处理系统;(7)SVC二次控制及保护系统。
3 SVC装置的运行特点及应用220kV象山站共有4台主变,每台主变变低有1条母线,共有4条10kV母线,每条母线配置6组电容器组。
10Kv配电室SVG动态补偿装置的研究摘要:目前,生活中的方方面面都离不开电力的支持,电力的发展如何能够紧跟时代的需求,做好电力供给后台保障是非常重要的。
在配电室中进行无功补偿装置的应用是新的研究方向,但目前相关方面还存在很多的问题需要解决。
本文通过对无功补偿装置运行原理进行阐述,探究在其装置中的技术应用,为相关从业人员提供参考。
关键词:原理;无功补偿一、前言随着人民生活水平的提高,终端用电用户对输电的安全性与稳定性的追求也越来越迫切。
而如何解决配网内无负荷运转问题,解决因无功补偿的设备分布设置不合理,无法有效实现无功补偿的问题导致出现输配电网中出现品质较低、线损率较高等问题是必要而有十分关键的,所以,本文对进行10Kv配电线路无功补偿设备的应用研究是非常关键的,希望本文提供思路能帮助改善配电网中的电压品质,减少线损等。
二、10kv配电线路无功补偿技术原理和原则1.10kv配电线路无功补偿技术运用的原理在交流电路中,纯电感的负载电流会将电压延迟90°,纯电感的负荷电压则会向前90°,纯电感和纯电容之间就形成了180°的差别,导致的结果就是两者之间的电流能够相互抵消。
当电源达到正常供电条件后,纯电感性和纯电容性的负载就能够通过放出和吸入电能来进行功率转换,而感应式负荷所需要的无功功率能够在纯电容性负载所产生的无功功率输出中得到。
就这样可以有效地实现了负载补偿、补偿的目的,从而解决了无功功率的问题。
2.10kv配电线路无功补偿技术运用的原则①接近性原则:是为了减少因线路上无功功率控制连续流动所造成的有效功率损失。
②固定补偿原则:目的是用来适应无功补偿损失的实际情况,而当进行固定补偿时,必须考虑到电容器本身的特性和运行条件及保护等因素,各线的无功功率控制补偿点位不宜多于三处,以二处为最好。
而当因线路的运行消耗无功功率控制时,还必须考虑产生无功功率抑制的配电压器:;③客户端补偿原则:因变压器绕组和感性负荷而产生的非功率消耗,因此要求对客户端进行无功补偿措施。
10kv线路无功补偿装置10kV配电线路无功补偿的最佳位置和最佳补偿容星普遍按照“三分之二”的法测确定,即:最佳容量为线路平均无功负荷的三分之二,最佳位置为线路长度的三分之二处。
但是,线路负荷的分布并不均匀,按照“三分之二”的法则确定的补偿方案并不精确。
为了最大限度地就地补偿无功,降低线损,通常根据负荷分布情况按如下步骤确定最佳补偿方案。
如图:①沿负荷最大、线路最长的方向,将线路简化成无分枝主线只有负载分支的线路。
②确定出最大无功总负荷∑Q,可以从配电网监测仪表中读取或通过用电总报装量进行推算。
③最佳安装地点为主线2/3∑Q无功负荷分布处,补偿效果优于安装在主线线路长度的2/3处。
10KV无功自动补偿装置介绍以DS3型10kV无功自动补偿装置为例,是专门针对10kV~35kV 变电站设计的,是在面普通开关柜壳体内装入多台开关,把电容器分为多组自动跟踪负荷变化投切电容器组,实现理想的无功补偿就地随时平衡,同时根据10kW母线电压的变化,自动调节变压器有载调压分接头进行自动调压。
本装置占地面积小、安装施工简单。
装置显菩特点如下:①占地面积小、安装施工简单把电容器分成多组,减小整套装置的占地面积是一个大问题,用传统的设备和方式不能解决。
本产品采用紧凑形结构在一台标准高压开关柜壳体内装5台专用真空断路器开关,5路微机保护,15只放电线圈及VQC综合控制器等等,除电容器电抗器以外的全部一次二次电器设备,都装在装置柜里面如图。
补偿容量10000Kvr时分5组投切,整套装置占地仅6×1.2平米。
安装时仅接入一次进线和所要采集的二次信号即可。
②模块式电容器投切专用真空开关电容器投切专用开关采用模块式结构设计,体积小可任意组合,能在1.2×1.2平米的柜底安装5台,开关的灭弧室采用真空断路器灭弧室,能长朗承受投电容器时涌流的冲击,大触头开距切电容器时能避免重燃。
专门设计可频繁动作操作机构,可靠动作寿命3万次。
电能质量低压电器(2008№21)通用低压电器篇周俊宇(1978—),男,工程师,研究方向为电力系统调度。
变电站10kV 动态无功补偿装置的研究周俊宇(广东电网公司佛山供电局调度中心,广东佛山 528000)摘 要:研究了将FC +TCR 型的电容2电感型动态无功补偿装置用于10k V 的动态无功补偿。
介绍了S VC 及电容2电感型动态无功补偿装置的基本原理、补偿容量的确定方法及控制与保护系统。
在电力系统冲击型负荷较大的趋势下,该S VC 利用晶闸管可控硅的开关原理,瞬时地改变无功功率,用以补偿或吸收负载所需的无功,可改善对10kV 母线电压的冲击影响状况。
关键词:静止型动态无功补偿装置;晶闸管控制电抗器;无功补偿中图分类号:T M 761 文献标识码:B 文章编号:100125531(2008)0720045203Study on 10kV Dynam i c V a r C o m pen sa tor for Sub sta t i onZHOU J unyu(D ispatch Cente r of Foshan Powe r Supp ly Bureau,Guangdong P ower Grid,Foshan 528000,C hina ) Abstra c t:This study adop ted FC +TCR (FC +thyristor contr olled reac t or)capac it or 2induc t or dynam ic reac 2tive po wer co mpensating device in 10k V dynam ic reactive po wer compensa ti on .T he p rinciple,the way t o confir m the co mpens a ting capacit y and t he control and protecting syste m of sta tic v a r co mpens a t or (S VC )and cap ac itor 2i n 2duc t or dynam ic reac tive po wer co mpensati ng devi ce were introduced .A t the trend of bigg e r i mpulse l oad in po we r supp l y syste m ,m aki ng use of the t hyrist or ’s s wit ching p rinci p le,this S VC can change t he reacti ve po wer si m ulta 2neously to co mpensa te or abs orb the reac tive po wer needed by t he load,and can i m p rove t he i mpulse effect on the 10k V bus v oltage.Key word s:sta ti c va r co m pen s a tor (SV C );thyr ister con tr oller r ea c t a r (TC R);va r co m pen s a ti on0 引 言电力系统的各节点无功功率平衡决定了该节点的电压水平,由于当今电力系统的用户中存在着大量无功功率频繁变化的设备,同时,又有大量的对系统电压稳定性有较高要求的精密设备,因此,迫切需要对系统的无功功率进行动态补偿。
10kV配电线路SVG无功补偿的应用分析电力系统无功功率补偿技术正在从常规固定电容器并联补偿向SVG动态无功补偿技术方向过渡,与常规以TCR为代表的SVC静止无功补偿装置相比,SVG 无功补偿装置具有响应速度快、调节速度更快、补偿效率高、运行范围宽等优点。
笔者在阐述无功补偿在电力系统中的必要性后,介绍了SVG无功补偿装置的工作原理。
最后,结合110kV变电站10kV配电侧电气设备技术升级改造实例,详细探讨了SVG无功补偿装置在电力系统中的应用。
标签:110kV变电站;SVG;动态无功补偿0 引言无功补偿对维持电力系统的安全稳定性和节能经济运行,以及改善供配电电能质量尤为重要。
无功功率不足会造成电网系统中电气设备运行损耗和线路损耗的增加,尤其重要的是无功功率出现频繁波动时会引起电网系统中的电压发生波动,加上分布式电源大量接入到电网系统中,以及用户对供电可靠性、经济性要求的进一步提高,电网运行安全稳定性、节能经济性就显得尤为重要。
常规无功功率补偿器如:同步调相机、饱和电抗器等部件存在损耗和噪声较大、运行维护不方便等不足,同时其不能进行实时动态无功补偿,在补偿响应性、实时性、可靠性等方面均很难满足现在智能电网无功补偿需求;静止无功补偿器(SVC)在实际工程应用中存在补偿电流中含严重谐波电流危害;静止无功发生器(SVG)具有响应速度快、调节范围广、谐波特性好、抑制电压闪变能力强、损耗小等优点,是电力系统中较为理想的无功补偿设备装置,发挥非常良好的应用效果。
1 无功补偿在电力系统中的必要性大量非线性整流设备、变频调速设备在电网系统中的广泛应用,对系统谐波和无功补偿技术要求进一步提高。
另外,电网系统中的电动机、变压器等电力设备在运行中属于感性负荷,会大量消耗无功功率,进而导致系统中无功功率不断减少,引起电压波动和线损增加。
因此,为了确保电网系统安全稳定的运行,必须采取完善可靠的无功补偿措施,改善电网系统的无功环境,快速可靠补偿或吸收无功容量,确保电网系统无功动态平衡,就显得尤为重要。
10KV静止型动态无功补偿装置(SVG+FC)在矿井供电系统中的应用【摘要】本文针对大功率设备及电力电子装置在矿井中的越来越频繁造成无功冲击大和产生谐波的现状,提出了基于静止型动态无功补偿装置的安装方案。
介绍了基本工作原理并结合工程实例分析了充分验证了其经济合理性,达到了预期的效果。
【关键词】动态无功补偿;原理;矿井供电;应用1、概述近年来,随着当代电力电子技术的发展,大量的电力电子装置在矿井提升机、绞车等这些煤矿供电系统中的主要用电负荷中得以使用,这些装置构成了整流电路、逆变电路、直流斩波电路等。
在这些装置运行的过程中,产生了大量的谐波,对供电系统的电能质量造成了危害。
传通的无功补偿及谐波治理设备由于响应速度慢,大容量电容器组频繁投切,且与产生谐波的设备不能同步,不能起到滤波作用,造成整个供电系统的电压不稳定和功率因数忽高忽低,并且严重影响电容器组本身的使用寿命。
且对高压交流接触器、变频设备、电子元件等使用寿命也构成严重危害,针对这种现象有必要对现有供电系统进行合理化改进。
2、传统供电系统存在的问题一般电力系统用户负荷吸收有功功率PL和无功功率QL。
电源提供有功功率PS和无功功率QS(可能为感性无功,也可能是容性无功),忽略变压器和线路损耗,则有PS=PL,QS=QL。
没有足够无功补偿的电网存在以下几个问题:(1)电网从远端传送无功;(2)负荷的无功冲击影响本地电网和上级电网的供电质量;(3)负荷的不平衡与谐波也会影响电网的电能质量;因此,供电系统一般都要求对用电负荷进行必要的无功、不平衡与谐波补偿,以提高电力系统的带载能力,净化电网,改善电网电能质量。
3、解决方案3.1SVG用于补偿无功SVG是目前较为先进的无功补偿技术,其基于电压源型变流器的补偿装置实现了无功补偿方式质的飞跃。
它不再采用大容量的电容、电感器件,而是通过大功率电力电子器件的高频开关实现无功能量的变换。
假设负荷消耗感性无功(一般工业用户都是如此)QL,此时控制SVG使其产生容性无功功率,并取QSVG=QL,这样在负荷波动过程中,就可以保证:QS=QSVG-QL=0。
浅谈10kV线路自动无功补偿装置在电网中的应用摘要:本文从传统10kv线路无功补偿装置面临的多项实际问题出发,综合目前配网设备中最新的自动化技术,应用了具备自动投切、自我保护、数据实时采集和记录等功能的新型10kv线路无功自动补偿装置,并经一系列的分析和改进,使设备能够通过简单的带电作业即完成安装,达到了规模化投运的要求。
关键词:10kv线路;无功自动补偿装置;应用前言我市经济近年来发展迅速,用电负荷年年创新高,而与此同时,10kv线路中的感性无功潮流也随之增大,这就使一方面,线路功率损耗和电压损耗增加,影响电网的经济运行和供电质量;另一方面,在夏季高温期间,线路中感性无功的不断增加影响到了变电站的正常运行,对电网的安全稳定构成了威胁。
10kv线路容性无功的合理补偿已变得非常需要。
而传统10kv线路容性无功补偿设备的投撤是由人工操作的,每次将补偿设备投入运行或撤出运行均需线路运行人员到现场操作才能完成,这样,运行维护的工作量就非常大;在实际工作中,设备的投撤与电网稳定运行的实时要求也会有一定脱节;另外,传统设备缺少自我保护,在谐波干扰、过电压等外界因素影响下,设备寿命较短,甚至会发生爆炸,严重影响人员和其他设备的安全。
在此背景下,我局结合无功补偿实际情况和10kv线路无功自动补偿技术的可能性,开展了10kv线路无功自动补偿科技项目研究。
1、10kv线路无功自动补偿项目的实施自项目立项后,我局对10kv线路无功自动补偿设备所需的相关资料、生产厂家和10kv线路无功潮流的特点进行了大范围搜查和分析,并根据前期调查编写了可行性报告。
从进网许可、企业品质、可提供的服务、设备可靠性和功能价格等多方面进行分析、评估,最后选择了金华金凤凰电气有限公司的10kv线路无功自动补偿器作为我局科技项目试用设备。
经过前期的准备,开始进行单台设备的挂网试验,分别在萃溪234线、开山243线和月形959线等3条10kv线路的主线上安装并投运了自动无功补偿设备,每月收录、分析现场数据。
动态无功补偿装置在lOkV配电系统中的应用摘要:无功补偿是降低电网损耗,提高配电效率的有效手段,也是值得推广的一种节能措施。
本文就动态无功补偿装置在10kV配电系统中的应用问题介绍了动态无功补偿装置的内涵和无功补偿的基本原理,对动态无功补偿装置的节能效益进行了分析,并提出了在10kV 配电网中应用无功补偿存在的几个问题。
关键词:动态无功补偿装置10kV配电系统应用引言一个理想的配电系统,电能质量指标总是以某一恒定的频率值和电压值来表示,并以此向用户供电。
众所周知,在10kV以下配电系统的无功消耗总量中,配电变压器约占30%,低压用电设备约占65%。
由此可见,在低压配电系统中实施无功补偿十分必要的。
笔者就动态无功补偿装置在10kV配电系统中的应用问题主要谈以下几个方面的内容。
1 动态无功补偿装置的含义介绍动态无功补偿装置,又名静止同步补偿器。
由于其开关器件为IGBT,所以其动态补偿效果是早期的同步调相机、电容器及无功补偿装置不能比拟的,无功补偿装置以其较低谐波,较高的效率,较快速的动态响应,成为现代柔性交流输电系统中的重要设备。
动态无功补偿装置主要用来补偿电网中频繁波动的无功功率,抑制电网闪变和谐波,提高电网的功率因数,改善配电网的供电质量和使用效率,进而降低网络损耗,有利于延长输电线路的使用寿命。
2 动态无功补偿的基本原理分析电网输出的功率包括两部分:一是有功功率;二是无功功率。
直接消耗电能,把电能转变为机械能、热能、化学能或声能,利用这些能作功,这部分功率称为有功功率;不消耗电能,只是把电能转换为另一种形式的能,这种能作为电气设备能够作功的必备条件,并且这种能是在电网中与电能进行周期性转换,这部分功率称为无功功率。
如电磁元件建立磁场占用的电能,电容器建立电场所占的电能。
电流在电感元件中作功时,电流超前于电压90℃。
而电流在电容元件中作功时,电流滞后电压90℃。
在同一电路中,电感电流与电容电流方向相反,互差180℃.如果在电磁元件电路中有比例地安装电容元件,使两者的电流相互抵消,使电流的矢量与电压矢量之间的夹角缩小。
浅谈10kV配电线路的无功补偿摘要:10kv线路的杆上无功补偿和变电站集中补偿、配变低压补偿、用户侧就地补偿都是电网无功补偿的重要补偿方式,10kv线路的杆上固定补偿以线路无功负荷作为补偿对象,补偿效果较好、设备利用率较高、投资较小,但因为补偿设备安装于杆上,维护起来不太方便,同时易出现保护不易配置等工程问题。
随着科技的进步和电力系统的发展,未来将会出现更多新型的、多功能的无功补偿设备,如近年的谐波无功补偿装置等,使电网的无功补偿方式更合理、更经济、更安全。
关键词:10kV;配电线路;无功补偿1 10kV线路无功补偿的设置原则在配电线路杆塔上并联电容器,以实现对线路无功补偿的方式,需同时考虑线路补偿点的个数、补偿点的位置以及补偿容量。
下面以一条普通的10kV配电线路的干线运行情况为例,说明补偿点数量、位置及补偿容量的确定原则。
1.1补偿位置的确定无功补偿装置安装地点的选择应遵循无功就地平衡的原则,尽可能减少在主干线上传输的电流。
电容器组在10kV线路上装设位置的计算公式:Ll一21/(Zn+1)L式中:L为线路长度;n为电容器组数;Ll为第i组电容器的安装位置距线路首端的距离;i一1,…,n。
1.2线路无功补偿容量的确定配电线路安装电容器组的容量选择是按最大限度降低线损的原则来确定的。
对于一般情况而言,当该配电干线中有n个补偿点时,得到第i个补偿电力电容器补偿容量的计算公式:Ql一ZIQ/(Zn+1)式中:Q为线路首端传输的总无功功率。
1.3补偿点数量的选择随着补偿点的增多,网损降低率越高,补偿效益逐渐提高,在n一4时,网损降低率的增加己经变得很小,因此配电线路的补偿点一般不多于4个。
10Vk线路补偿电容器装置一般安装在户外电杆上,一般不设自动投切装置,所以进行的是固定补偿。
因此补偿的电容器容量应选择为线路流动的最小无功负荷,以避免无功倒送,所以应先实测用电低谷时的无功负荷,以得到线路的最小无功负荷值,再确定无功补偿容量。
10KV静止型动态无功补偿装置(SVG+FC)在矿井供电系统中的运用【摘要】本文针对大功率设备及电力电子装置在矿井中的越来越频繁造成无功冲击大和产生谐波的现状,提出了基于静止型动态无功补偿装置的安装方案。
介绍了基本工作原理并结合工程实例分析了充分验证了其经济合理性,达到了预期的效果。
【关键词】动态无功补偿;原理;矿井供电;应用1、概述近年来,随着当代电力电子技术的发展,大量的电力电子装置在矿井提升机、绞车等这些煤矿供电系统中的主要用电负荷中得以使用,这些装置构成了整流电路、逆变电路、直流斩波电路等。
在这些装置运行的过程中,产生了大量的谐波,对供电系统的电能质量造成了危害。
传通的无功补偿及谐波治理设备由于响应速度慢,大容量电容器组频繁投切,且与产生谐波的设备不能同步,不能起到滤波作用,造成整个供电系统的电压不稳定和功率因数忽高忽低,并且严重影响电容器组本身的使用寿命。
且对高压交流接触器、变频设备、电子元件等使用寿命也构成严重危害,针对这种现象有必要对现有供电系统进行合理化改进。
2、传统供电系统存在的问题一般电力系统用户负荷吸收有功功率PL和无功功率QL。
电源提供有功功率PS和无功功率QS(可能为感性无功,也可能是容性无功),忽略变压器和线路损耗,则有PS=PL,QS=QL。
没有足够无功补偿的电网存在以下几个问题:(1)电网从远端传送无功;(2)负荷的无功冲击影响本地电网和上级电网的供电质量;(3)负荷的不平衡与谐波也会影响电网的电能质量;因此,供电系统一般都要求对用电负荷进行必要的无功、不平衡与谐波补偿,以提高电力系统的带载能力,净化电网,改善电网电能质量。
3、解决方案3.1SVG用于补偿无功SVG是目前较为先进的无功补偿技术,其基于电压源型变流器的补偿装置实现了无功补偿方式质的飞跃。
它不再采用大容量的电容、电感器件,而是通过大功率电力电子器件的高频开关实现无功能量的变换。
假设负荷消耗感性无功(一般工业用户都是如此)QL,此时控制SVG使其产生容性无功功率,并取QSVG=QL,这样在负荷波动过程中,就可以保证:QS=QSVG-QL=0。
浅谈10KV动态无功补偿装置
作者:李晓林
来源:《管理观察》2009年第24期
摘要:近年来,大功率高压电机在神东矿区被广泛应用,一部运量4000T/h的胶带机就需要8台500KW或5台1000KW驱动电机,总功率达到4000到5000KW。
一个6.3米大采高综采工作面的装机功率约在8000KW左右,单靠静态投列电容器补偿无功功率,提高功率因数已无法满足稳定生产供电需要,因为在设备运行与停机检修时感性负荷(电动机)变化较大,在运行时投入适合容量的电容器使功率因数达到0.95以上,在停机检修时将导致10KV母线电压升高,导致其他设备无法使用。
动态无功补偿装置的应用即可解决这一难题。
关键词无功功率补偿;电力电容器;tcr+fc型svc系统
1功率因数和无功功率补偿的基本概念
1.1功率因数:电网中的电气设备和电动机、变压器等属于既有电感又有电阻的电感性负载,电感性负载的电压和电流的相量间存在着一个相位差,相位角的余弦COSφ即是功率因数,它是有功功率与视在功率之比即COSφ=P/S。
功率因数是反映电力用户用电设备合理使用状况、电能利用程度及用电管理水平的一个重要技术指标。
1.2无功功率补偿:把具有容性功率的装置与感性负荷联接在同一电路,当容性装置释放能量时,感性负荷吸收能量,而感性负荷释放能量时,容性装置吸收能量,能量在相互转换,感性负荷所吸收的无功功率可由容性装置输出的无功功率中得到补偿。
2无功补偿的目的与效果
2.1补偿无功功率,提高功率因数
在电网运行中,因大量非线性负载的运行,除了要消耗有功功率外,还要消耗一定的无功功率。
负荷电流在通过线路、变压器时将会产生功率与电能损耗,由电能损耗公式可知,当线路或变压器输送的有功功率和电压不变时,线损与功率因数的平方成反比。
功率因数越低电网所需
无功就越多,线损就越大。
因此,在受电端安装无功补偿装置,可减少负荷的无功功率损耗,提高功率因数,降低线损耗。
2.2提高设备的供电能力
由P=S COSφ可以看出,当设备的视在功率S一定时,如果功率因数COSφ提高,上式中的P 也随之增大,电气设备的有功出力也就提高了。
2.3降低电网中的功率损耗和电能损失
由公式I=P/(3 U COSφ)可知当有功功率P为定值时,负荷电流I与COSφ成反比,安装无功补偿装置后,功率因数提高,使线路中的电流减小,从而使功率损耗降低:ΔP=I2R降低电网中的功率损耗是安装无功补偿设备的主要目的。
2.4改善电压质量
在线路中电压损失ΔU的计算公式如下:
式中:ΔU——线路中的电压损失kV
P——有功功率MW
Q—无功功率Mvar
Ue—额定电压KV
R—线路总电阻Ω
XL—线路感抗Ω
由上式可见,当线路中的无功功率Q减少以后,电压损失ΔU也就减少了。
2.5减少用户电费开支,降低生产成本。
2.6减小设备容量,节省电网投资。
3. 电力电容器无功补偿的实施
3.1补偿原理
所谓电容器补偿,就是在变电所母线或用电设备上并联电力电容器,从而提高供电系统的功率因数和电压质量。
现实中绝大多数电器设备均为感性电抗,从而导致电流I(R+L)置后于电压一个相位角φI, 并联电容器以后,即我们引入一个超前电流IC,使得φI接近于零值,从而达到不使供电设备传输过多无功的目的。
实际补偿过程中,电容器容量的选择是一个十分重要的问题,如果我们选择的容量过小,则起不到很好的补偿作用;如果容量选择过大,使供电回路电流I 的相位超前于电压U,就会产生过补偿,将会引起变压器二次电压升高,导致电力线路及电容器自我的损耗增加。
可控硅动态无功补偿装置SVC(Static Var Compensator)利用晶闸管可控硅的开关原理,瞬时地改变无功功率,用以补偿或吸收负载所需的无功。
它的最大特点是可以连续地调节无功功率的输出,达到无冲击补偿。
由于能实现无冲击补偿,可控硅动态无功补偿装置能避免普通电容器投切时所引起的系统谐振,提高电能质量。
4.tcr+fc型svc系统的组成及控制原理
4.1系统组成
tcr+fc型svc系统的组成如图1所示,一般由tcr、滤波器(fc)及控制系统组成。
通过控制与电抗器串联的两个反并联晶闸的导通角,既可以向系统输送感性无功电流,又可以向系统输送容性无功电流。
该补偿器响应时间快(小于半周波),靈活性大,而且可以连续调节无功输出,缺点是产生谐波,但加上滤波装置则可以克服。
4.2可调控电抗器相(tcr)产生连续变化感性无功的基本原理
如图2(a)所示,u为交流电压。
th1.th2为两个反并联晶闸管,控制这两个晶闸管在一定范围内导通,则可控制电抗器流过的电流i和u的基本波形如图2(b)所示。
图2(a)图2(b)
图2可调控电抗器相(tcr)产生连续变化感性无功的基本原理α为th1和th2的触发角,则有i=(cosα-cosωt)i的基波电流有效值为:i=(2π-2α+sin2α)v式中:v为相电压有效值;ωl为电抗器的基波电抗(ω)。
因此,可以通过控制电抗器l上串联的两只反并联晶闸管的触发角α来控制电抗器吸收的无功功率的值。
4.3恒无功控制、保证功率因数及电压波动
控制系统的基本组成如图3所示。
svc连接到系统中,电容器提供固定容性无功功率Qc,通过具有完好线性特征的补偿电抗器的电流决定了从补偿电抗器输出的感性无功值Qtcr,感性无功与容性无功相抵消,只要Qn(系统)=Qv(负载)-Qc+Qtcr=恒定值(或0),功率因数就能保持恒定,电压几乎不波动。
控制系统的基本组成最重要的是精确控制晶闸管触发,获得所需的电抗器的电流。
根据采集的进线电流及母线电压经乘法器后得出要补偿的无功功率,计算机发出触发脉冲,光纤传输到脉冲放大单元,经放大后触发晶闸管,得到所补偿的无功功率。
4.4无源滤波器(fc)
无源滤波器(filtercompensatior,简称fc),是现阶段最常见、最实用、也是有效的抑制高次谐波的措施。
由电容器、电抗器,有时还包括电阻等无源元件组成。
其基本原理是利用电路谐振的特点,对某次谐波或以上谐波形成低阻抗通路,以达到抑制高次谐波和无功补偿的作用。
分为单调谐波滤波器,双调谐波滤波器和高通滤波器(减幅滤波器)等几种。
高通滤波器(减幅滤波器)又可分为一阶、二阶、三阶和c型。
如图4所示:
5 结束语
本文介绍了了电容-电感型动态无功补偿装置的基本原理和组成,10kV动态无功补偿装置产品运行稳定,抑制了由于冲击性负荷引起的电压波动和电压闪变,补偿效果明显优于传统的固定电容器补偿,为SVC系统在变电站的推广使用积累了设计和运行经验。
参考文献
[1]王兆安,杨君.谐波抑制和无功功率补偿[M].北京:机械工业出版社, 1998.
[2]王一鸣.10 kV动态无功补偿装置的研究.中国科技信息, 2005, (24)3:10-12.
[3]孙频东.静止无功补偿系统的研制[J].南京师范大学学报, 2002, 2(1):18-21.
[4]李欣然.负荷特性对电力系统静态电压稳定性的影响及静态电压稳定性广义实用判据,中国电机工程学报. 1999, 4:26-30
[5]孙元章.静止无功补偿器对电压稳定性的影响.中国电机工程学报, 1997, 6:373-376。