露天采场涌水量计算
- 格式:docx
- 大小:32.32 KB
- 文档页数:6
露天采矿场总涌水量计算露天采矿场总涌水量是由地下水涌水量和降雨迳流量两部分组成。
一、地下水涌水量的计算露天采矿场地下涌水量与地下开采矿坑地下水涌水量计算方法基本相同。
二、降雨迳流量计算露天采矿场降雨迳流量,应按正常降雨迳流量和设计频率暴雨迳流量分别计算。
(一)计算方法1、正常降雨迳流量(Qz)计算公式Qz=FH式中 F——泵站担负的最大汇水面积,m2;H——正常降雨量,m;——正常地表迳流系数,%。
2、设计频率暴雨迳流量(Qp)计算公式Qp=FHp′式中 Hp——设计频率暴雨量,m;′——暴雨地表迳流系数,%;其它符号同前。
(二)计算参数的选取1、汇水面积(F)的圈定(( ((注:1、本表内数值适用于暴雨径流量计算,对正常降雨量计算应将表中数值减去0.1~0.2。
2、表土指腐植土,表中未包括的岩土则按类似岩土性质采用。
3、当岩石有少量裂隙时,表中数值减去0.1~0.2,中等裂隙减去0.2,裂隙发育时减去0.3~0.4。
4、当表土、粘性土壤中含砂时,按其含量适当将表中地表迳流系数减去0.1~0.2。
3、正常降雨量的选择一般矿区可按雨季平均降雨量作为正常降雨量,而对非雨季节经常出现较大降雨地区的露天矿,可选用控制雨量进行设计。
1)雨季平均降雨量的推求收集历年(一般要有10~15年)雨季各月降雨量及降雨天数,用下式求得。
式中 H——历年雨季日平均降雨量,m;N——历年降雨系列资料中某一年的雨季天数,d;Hi——历年降雨系列资料中某一年的雨季总降雨量,m;n——降雨系列资料统计年数。
2)控制雨量的推求24最大日暴雨量大左右,故采用24=1.1;式中 n——暴雨递减指数,由地区n值等值线图查得;其余符号同前。
频率为P的不同历时暴雨量Htp按下式计算:Htp=Sp t1-n式中 t——暴雨历时,min;所有符号同前。
偏差系数Cs一般根据当地Cs与C关系确定,无该资料是可按下式计算:变差系数C,利用地区C24等值线图查得,当无该资料时,可利用下式计算:式中 K——变率,;N——统计年数;H——统计系列资料中某年日最大暴雨量,mm。
水文地质H ydrogeology关于露天采矿场涌水量的预测方法郭广成(中陕核工业集团二一一大队有限公司,陕西 西安 710024)摘 要:露天采场涌水量预测是矿山开采的重要资料,也是矿山水文地质工作中最复杂而且最重要的任务之一,它决定矿床能否开采以及开采的方法和手段的选择。
因此,矿山水文地质人员对于露天采场的涌水量计算方法必须加以研究。
露天采场涌水量的计算公式很多,本文分别计算正常降雨时和设计频率暴雨量时的露天采场的涌水量。
对矿坑涌水量预算结果进行修约,并对计算精度进行评价。
关键词:露天采矿场涌水量;正常降雨量;设计频率暴雨量;修约中图分类号:X383 文献标识码:A 文章编号:1002-5065(2020)08-0153-2Prediction method of water inflow in open pitGUO Guang-cheng(China Shaanxi nuclear industry group ER11 brigade Co., Ltd., Xi'an 710024,China)Abstract: The prediction of water inflow in open pit is not only an important data of mining, but also one of the most complex and important tasks in mine hydrogeology. It determines whether the deposit can be mined and the choice of mining methods and means. Therefore, the calculation method of water inrush in open pit must be studied by mine hydrogeologists. There are many formulas for calculating the water inflow of open pit. In this paper, the water inflow of open pit is calculated under normal rainfall and design frequency rainstorm respectively. The budget result of mine water inflow is revised and the calculation accuracy is evaluated.Keywords: open pit water inflow; normal rainfall; design frequency rainstorm; rounding off本文以新疆阿克苏市硝尔布拉克3号水泥用石灰岩矿为例,对露天采场涌水量进行评价分析。
设计用计算公式计算公式一、矿山服务年限计算N=QA(1e)(a)式中:N—矿山服务年限(a);Q—设计利用储量η—矿石回采率A—矿山年产量e—废石混入率二、矿山生产能力计算万t;%;(地下开采80%-90%,露天开采85%-95%)万t/a;%;(地下开采10%,露天开采5%)1、按采矿工程延深速度验证确定矿山生产能力(露天)A=PVH (1e)(a)式中:A—矿山生产能力P—水平分层平均矿量V—采矿工程年延深速度η—矿石回收率H—阶段高度e—废石混入率万t/a;万t;m/a;%;m;%;2、根据矿山开采年下降速度计算和验证矿山生产能力(地下开采)A=VS1K1·K2·E(万t)式中:A—矿山年生产能力万t/a;V —回采工作面下降速度 S —矿体开采面积—矿石体重α—矿石回收率β—废石混入率m/a ;(浅孔留矿为 10-25 m/a)m ;t/m ;%;(80%-90%)%;(10%-20%)E —地质影响系数(0.7-0.9);K 1—矿体倾角修正系数K 2—矿体厚度修正系数(0.8-1.2)3、矿山生产能力计算(地下开采) A=NQ KE 1 Z(万 t/a )式中:A —矿山生产能力Q —矿块生产能力 N —分布矿块数万 t/a ;万 t/a ;个;K —矿块利用系数(0.1-0.4); E —地质影响系数(0.7-0.9);Z —废石混入率(10%-20%);4、露天矿总生产能力计算A α=A(1+n s )(万 t/a )式中:Aα—年矿岩总生产能力t/a ;A —年矿石生产能力t/a ;n s —生产剥采比t/t ;5、露天矿可能达到的生产能力A=N·n·Q(t/a )2 3式中:A —露天矿矿石年产量Q —挖掘机生产能力t/a ;t/a ;n —同时工作的采矿阶段数N —一个阶段可布置的挖掘机数(汽车运输为 1-2);N=L L oL —一个台阶的矿石工作线长度m ;L o —一台挖掘机占用的工作线长度 m ; 6、根据矿石储量估算露天矿生产能力 Q A=L L=0.2 千Q式中:A —矿山年生产能力Q —境界内矿石储量 L —矿山寿命三、矿井需风量、负压计算t/a ;t ;a ;1)风量计算①按井下同时工作的最多人数计算 Q=qNm /min式中:Q —矿井需风量q —每人用风量 N —最多入井人数m /min ; 4m /min ;人;②按矿井各地点实际需要风量的总和计算 a 、采场需风量3 331°按排除采场炮烟计算Q 1=A·25 m /min式中:Q 1—按排除采场炮烟所需的风量A —每次爆破使用的最大炸药量 25—每 kg 炸药爆破后需风量2°按排尘风速计算Q 1=V·Sm /min ;kg ;式中:Q1 —按采场排尘所需的风量m /min ;V —“规程”规定风速S —采场通风断面积b 、掘进工作面需风量1°按一次爆破的最大炸药量计算 Q z =25Am /min2°按生产过程中最多人数计算 Q z =Qnm /min3°按排尘风速计算Q z =V·Sm /minc 、硐室需风量Q 3=40m /min ~80m /mind 、矿井各地点用风量总和为 Q 总=ΣQ 1+ΣQ 2+ΣQ 3③最终矿井风量的确定取 0.25m/smQ=KQ总m /min33333 3 3333式中:K —为风量备用系数(K=1.1-1.25)2)负压计算H=R Q2PaR=P L S式中:H —矿井通风摩擦阻力R —矿井通风摩擦阻力 Q —矿井风量—巷道通风摩擦阻力系数 P —巷道周长L —巷道长度四、矿井涌水量计算Pam /smm1、露天采坑最大降雨时涌水量计算Q max =H p ·F·φ /1000式中:Qmax —最大降雨时露天采坑的涌水量m /dH p —设计频率暴雨量mmφ —暴雨地表径流系数(0.5-0.9)F —入渗区汇水面积2、露天采坑正常降雨涌水量计算Q m =H·F·φ/1000式中:Q m —正常降雨涌水量H —平均及降雨量F —机械排水担负的汇水面积m /dmmmmφ—正常降雨地表径流系数直(0.3-0.5)33′ 3′23、用稳定流解析法(大井法)按潜水含水层计算矿井涌水量Q=1.366K(2H S)SReg( )r式中:Q—竖井成矿坑的涌水量H—潜水含水层厚度K—渗透系数S—水位降深R—影响半径r—竖井半径成矿坑引用半径矿坑引用半径r 的确定:m /d m m/d m m m当开采范围为不规则形状时r=F当天采范围为矩形时r=a b4F—为开采面积α、b—分别为开采范围的长度和宽度五、排土场计算1、排土场所需容积V y=V s·K s/(1+Kc)式中:Vy—排土场设计的有效容积mV s—剥离岩土的实系数mK s—岩土的松散系数mK c—岩土的下沉率(%)(7%-15%)2、排土场的设计总容积V=K1·V y m 3333式中:V—排土场的设计总容积mV y—排土场的设计容积mK1—容积富余系数(1.02-1.05)六、采场采出矿石品位计算α2=(1-γ)d2式中:α2—采区采出矿石品位%(或g/t)γ—废石混入率%d2—采区矿石地质平均品位%(或g/t)七、主要设备生产能力计算1、潜孔钻机台班生产能力计算V b=0.6·υ·T b·η式中:Vb—潜孔钻机台班生产能力m/台·班T b—潜孔钻机每班工作时间min η—潜孔钻机时间利用系数(0.6-0.4)υ—潜孔钻机钻进进度cm/min V b一般为15-32m/台·班2、凿岩机台班生产能力对中等硬度矿岩一般为20m-30m/台·班3、挖掘机生产能力计算Q B =3600E K mT B DK sm /台·班(1.0-2.0 斗容积)式中:Q B—挖掘机台班生产能力T—挖掘机装载循环时间3113m33sm /台·班s(40 )E —铲斗容积 m(1.0-2.0 )K m —铲斗装满系数(0.8-0.9)K s —岩石松散系数D —每班工作小时数ηB —挖掘机工作时间利用系数(1.5)Q B :1m 铲斗为 8-15m /台·班,2m 铲斗为 20-28m /台·班。
计算公式一、矿山服务年限计算??Q(aN=)A(1?e)式中:N—矿山服务年限(a);Q—设计利用储量万t;η—矿石回采率%;(地下开采80%-90%,露天开采85%-95%)A—矿山年产量万t/a;e—废石混入率%;(地下开采10%,露天开采5%)二、矿山生产能力计算1、按采矿工程延深速度验证确定矿山生产能力(露天)??VP?(aA=)H(1?e)式中:A—矿山生产能力万t/a;P—水平分层平均矿量万t;V—采矿工程年延深速度m/a;η—矿石回收率%;H—阶段高度m;e—废石混入率%;2、根据矿山开采年下降速度计算和验证矿山生产能力(地下开采) ???S?V? K·K·E (万t)A= 21??1;t/a万—矿山年生产能力A式中:V—回采工作面下降速度m/a;(浅孔留矿为10-25 m/a) S—矿体开采面积m;2—矿石体重t/m;3?α—矿石回收率%;(80%-90%)β—废石混入率%;(10%-20%)E—地质影响系数(0.7-0.9);K—矿体倾角修正系数1K—矿体厚度修正系数(0.8-1.2)23、矿山生产能力计算(地下开采)N?Q?K?E A=(万t/a)1?Z式中:A—矿山生产能力万t/a;Q—矿块生产能力万t/a;N—分布矿块数个;K—矿块利用系数(0.1-0.4);E—地质影响系数(0.7-0.9);Z—废石混入率(10%-20%);4、露天矿总生产能力计算A=A(1+n)(万t/a)sα式中:A—年矿岩总生产能力t/a;αA—年矿石生产能力t/a;n—生产剥采比t/t;s5、露天矿可能达到的生产能力)t/a(Q ·n·A=N.;t/a式中:A—露天矿矿石年产量;t/a Q—挖掘机生产能力n—同时工作的采矿阶段数;1-2)N—一个阶段可布置的挖掘机数(汽车运输为L N=L o;mL—一个台阶的矿石工作线长度;mL—一台挖掘机占用的工作线长度o 6、根据矿石储量估算露天矿生产能力Q A=L L=0.2Q千;t/a式中:A—矿山年生产能力t;Q—境界内矿石储量a;L—矿山寿命三、矿井需风量、负压计算1)风量计算①按井下同时工作的最多人数计算/minm Q=qN 3 /min;m Q式中:—矿井需风量3 4m/min;q—每人用风量3人;N—最多入井人数②按矿井各地点实际需要风量的总和计算、采场需风量a1°按排除采场炮烟计算Q=A·25 m/min31式中:Q—按排除采场炮烟所需的风量m/min;31A—每次爆破使用的最大炸药量kg;25—每kg炸药爆破后需风量2°按排尘风速计算Q=V·S1式中:Q—按采场排尘所需的风量m/min;31V—“规程”规定风速取0.25m/sS—采场通风断面积m 3b、掘进工作面需风量1°按一次爆破的最大炸药量计算Q=25A m/min 3z2°按生产过程中最多人数计算Q=Qn m/min 3z3°按排尘风速计算Q=V·S m/min 3z c、硐室需风量Q=40m/min~80m/min 333d、矿井各地点用风量总和为Q=ΣQ+ΣQ+ΣQ 3总21③最终矿井风量的确定Q=KQm/min3 总式中:K—为风量备用系数(K=1.1-1.25)2)负压计算H=RQPa 2??P?L R=3S式中:H—矿井通风摩擦阻力PaR—矿井通风摩擦阻力Q—矿井风量m/s3巷道通风摩擦阻力系数?—P—巷道周长m L—巷道长度m四、矿井涌水量计算1、露天采坑最大降雨时涌水量计算Q=H·F·φ/1000′pmax式中:Q—最大降雨时露天采坑的涌水量m/d3max H—设计频率暴雨量mm pφ—暴雨地表径流系数(0.5-0.9)′F—入渗区汇水面积m 22、露天采坑正常降雨涌水量计算Q=H·F·φ/1000m式中:Q—正常降雨涌水量m/d3m H—平均及降雨量mmF—机械排水担负的汇水面积m 2)0.3-0.5(φ—正常降雨地表径流系数直3、用稳定流解析法(大井法)按潜水含水层计算矿井涌水量SS)(2H?1.366K Q=R)eg(r/dm 式中:Q—竖井成矿坑的涌水量3m —潜水含水层厚度Hm/d K—渗透系数m S—水位降深m —影响半径Rm —竖井半径成矿坑引用半径r r的确定:矿坑引用半径F r=当开采范围为不规则形状时?ba? r=当天采范围为矩形时4—为开采面积 F —分别为开采范围的长度和宽度α、b 五、排土场计算、排土场所需容积1/=V·KV(1+Kc) ssy m 式中:V—排土场设计的有效容积3y—剥离岩土的实系数mV3s m —岩土的松散系数K 3s—岩土的下沉率(K%)(7%-15%)c、排土场的设计总容积2 mV=K·V3 y 1.式中:V—排土场的设计总容积m 3V—排土场的设计容积m 3y K—容积富余系数(1.02-1.05)1六、采场采出矿石品位计算α=(1-γ)d 122式中:α—采区采出矿石品位%(或g/t)12γ—废石混入率%d—采区矿石地质平均品位%(或g/t)2七、主要设备生产能力计算1、潜孔钻机台班生产能力计算V=0.6·υ·T·ηbb式中:V—潜孔钻机台班生产能力m/台·班b T—潜孔钻机每班工作时间min bη—潜孔钻机时间利用系数(0.6-0.4)υ—潜孔钻机钻进进度cm/minV一般为15-32m/台·班b2、凿岩机台班生产能力对中等硬度矿岩一般为20m-30m/台·班3、挖掘机生产能力计算???T3600E?K m/=Q台·班(1.0-2.0斗容积)m33Bm B?K s式中:Q—挖掘机台班生产能力m/台·班3B T—挖掘机装载循环时间s(40 )sE—铲斗容积m(1.0-2.0)m3 3K—铲斗装满系数(0.8-0.9) m K—岩石松散系数(1.5)s—每班工作小时数 η—挖掘机工作时间利用系数B Q:1m铲斗为8-15m/台·班,2m铲斗为20-28m/台·班。
矿井涌水量计算公式矿井涌水量的计算可是个相当重要的事儿呢!这就好比我们过日子得清楚每个月的开销有多少,矿井开采也得搞明白会有多少水涌进来,才能做好应对措施,保证生产安全。
要计算矿井涌水量,首先得搞清楚几个关键的概念。
比如说,“静储量”和“动储量”。
静储量就像是一个水库里原本就有的水,不怎么会变;而动储量呢,就像是河流里流动的水,一直在变化。
常见的矿井涌水量计算公式有好几种。
比如说“大井法”,这名字听起来有点怪,但其实就是把矿井想象成一个大井,然后通过一些复杂的计算来估算涌水量。
还有“水文地质比拟法”,简单说就是找一个跟要计算的矿井情况差不多的,已经有了涌水量数据的矿井来做参考,然后根据两者的差异进行调整。
我记得有一次去一个煤矿实地考察,那场面可真是让我印象深刻。
我们一群人穿着厚厚的工作服,戴着安全帽,深入到矿井里面。
当时,负责计算涌水量的工程师拿着本子和笔,一边查看各种仪器的数据,一边嘴里念念有词地计算着。
周围的矿工们也都一脸紧张地看着,因为涌水量的多少直接关系到他们的工作安全和进度。
矿井里潮湿闷热,灯光也不是特别亮,大家的脸上都挂着汗珠。
工程师告诉我们,哪怕一个小小的数据误差,都可能导致计算结果出现很大的偏差,所以每一个数字都得仔细核对。
在计算矿井涌水量的时候,还得考虑很多因素。
像是含水层的类型和厚度、地下水的水位和水压、矿井的开采深度和面积等等。
这就像是做菜,各种调料的比例都要恰到好处,才能做出美味的菜肴。
如果忽略了某个重要因素,那计算出来的涌水量可能就会差之千里。
而且,随着开采的进行,矿井的情况也会不断变化。
今天算出来的涌水量,可能过一段时间就不准确了。
所以,得经常进行监测和重新计算,就像我们要经常看看自己的钱包,看看是不是超支了一样。
另外,不同地区的矿井,地质条件差别很大。
有的地方含水层丰富,涌水量大得吓人;有的地方则相对较少。
所以在计算的时候,不能生搬硬套公式,得结合实际情况灵活运用。
总第807期第13期2023年7月河南科技Henan Science and Technology矿业与水利工程收稿日期:2023-03-14作者简介:徐圣(1990—),男,硕士,研究实习员,研究方向:矿山水工环地质。
露天矿矿坑涌水量预测及评价——以湖北宜昌某建筑石料用灰岩矿为例徐圣陈永宝张书杰漆双林王腾姜从刚(湖北冶金地质研究所(中南冶金地质研究所),湖北宜昌443000)摘要:【目的】矿坑涌水量预测是矿床水文地质勘查的重要组成部分,是生产设计部门制订开采方案、确定排水能力和制定疏干措施的主要依据,正确预测矿坑涌水量是安全开发矿山的重要工作。
【方法】以湖北宜昌某建筑石料用灰岩矿为例,探讨露天矿矿坑涌水量的预测方法。
通过分析矿区水文地质条件,构建水文地质概念模型,建立水文地质数学模型,选用水均衡法与解析法两种方法联合估算矿坑涌水量。
【结果】预测结果大致符合矿区客观实际。
【结论】数据结果可供生产设计部门参考,同时为其他水文地质条件相似的露天矿的矿坑涌水量预测提供了一种案例参考。
关键词:露天矿;矿坑涌水量预测;水文地质条件;数学模型;水均衡法;解析法中图分类号:TD742.1文献标志码:A文章编号:1003-5168(2023)13-0068-04DOI :10.19968/ki.hnkj.1003-5168.2023.13.013Prediction and Evaluation of Mine Water Inflow in Open-Pit Mine——Taking a Limestone Mine for Building Stone in Yichang,Hubei Province as an ExampleXU ShengCHEN Yongbao ZHANG Shujie QI Shuanglin WANG Teng JIANG Conggang(Hubei Institute of Metallurgical Geology (Central South Institute of Metallurgical Geology),Yichang 443000,China)Abstract:[Purposes ]Prediction of mine water inflow is an important part of hydrogeological exploration.It is the main basis for the production design department to formulate the mining plan,determine the drainage capacity and formulate the drainage measures.Correct prediction of mine water inflow is an im⁃portant work for safe development of mines.[Methods ]This paper takes a limestone mine for building stone in Yichang,Hubei as an example to discuss the prediction method of mine water inflow in open-pit mine.By analyzing the hydrogeological conditions of the mining area,a hydrogeological conceptual modelwas constructed,a hydrogeological mathematical model was established,and water balance method aswell as analytical method were selected to jointly estimate the water inflow of the mine pit.[Findings ]The prediction results are roughly in line with the objective reality of the mining area.[Conclusions ]The data can be used for reference by the production design department.At the same time,it provides a case refer⁃ence for the prediction of mine water inflow in other open-pit mines with similar hydrogeological conditions.Keywords:open-pit mine;prediction of mine water inflow;hydrogeological conditions;mathematicalmodel;water balance method;analytical method 0引言矿坑涌水量预测是矿床水文地质勘查的重要组成部分,它不仅是确定矿床水文地质类型、对矿床进行技术经济评价及合理开发的重要指标之一,更是生产设计部门制订开采方案、确定排水能力和制定疏干措施的主要依据[1]。
煤矿出涌水量的几种测量方法Hessen was revised in January 2021煤矿出/涌水量的几种测量方法1 量桶容积法当流量小于1 L/s时,常用此法。
容器一般用量桶或水桶,为了减少测量误差,计量容器的充水时间不应小于20 s流量计算公式:式中V———容器的容积,L;t———充满容器的时间,s。
2巷道容积法在矿井发生突水时,利用水流淹没倾斜巷道的过程中,经常不断地测量巷道与自由水面相交断面面积(F=ab),用单位时间内水位上涨高度(H)来计算水量,公式如下:式中 H———t时间内水位上涨高度,m;t———水位上涨高度为片时的时间,h;a———巷道内自由水面的平均宽度,m;b———巷道内自由水面长度,m。
3水泵排量法利用水泵实际排水量和水泵运转时间,来计算涌水量Q=水泵铭牌排水量×实际效率×开动时间×台数式中Q—涌水量,m3·d-1。
4浮标测流法采用水面浮标的流水沟道地段及实测断面应符合下列要求:(1)沟道顺直,沟床地段规则完整,长度为3-5倍的沟宽。
(2)水流均匀平稳,无旋涡及回流。
(3)沟道地段内无阻碍水流的杂草、杂物。
实测程序:(1)选定了实测地段后,按相等距离布设三个断面:上断面、基本断面(中断面)、下断面,测量每个断面的横断面积,单位为m2。
(2)在上断面上游附近投放浮标,以便使浮标在接近上断面时,已具有同行水流的流速,测出浮标从上断面至下断面的时间t,求出流速。
(3)浮标从上断面至下断面的漂流历时一般应不短于20 s,如流速较大,可酌情缩短,但不能短于10 s。
(4)投放浮标的数量,视沟道宽度而定,一般不少于2个,每个至少重复投放两次,若两次漂历时间相差不超过10%,则取其平均历时计算,公式如下:式中Q———断面流量,m3·s-1;Kf———断面浮标系数,据经验数值一般介于~;Vf———虚流速,即Vf=L/t计算时采用浮标平均流速,m·s-1;L———上、下两断面的间距,m;F t H H Q ⋅-=21 t ———所选有效浮标的平均历时,s;F ———过水断面面积,m 2。
(1)解析法根据井田水文地质条件和矿井主要充水因素,利用解析法进行矿坑涌水量预测时,直接充水含水层太原组灰岩岩溶水。
1)太原组灰岩岩溶水预测20(2)5-1S M M h Q B K R--= ()105-2R S K = () 式中:Q ——预测矿坑涌水量,m 3/h ;B (m) K (m/d) M (m) S (m) R (m) Q (m 3/h) 32000.44279.51691124.45163.82S ——水位降低值,m ; KK——渗透系数,m/d ;M ——含水层厚度,m ; B ——进水廊道长度,m ; R ——影响半径,m ;K 取抽水实验资料0.44272、10+11号煤层矿井涌水量预算(大井法)开采10+11号煤层布置一个工作面,工作面宽180 m ,推进长度1200m ,因此,将矩形工作面(长a=1200m,宽b=180m )看做一个大井,使用大井法预算矿井涌水量:计算公式为:(2)1.366H M M Q K LgR Lgr-=-式中:Q%~矿井涌水量(m 3/d) K%~渗透系数(m/d) H%~水头高度(m) M%~含水层厚度(m)r%~大井半径(m),r=η4a b+R 0%~引用半径(m),R 0=10S K (S=H) R%~影响半径(m),R=R 0+ r 0根据ZK504号孔资料,太原组含水层水位标高1120.58m ,渗透系数(K )0.4427m/d,含水层厚度(M )约9.5m,先期开采地段10+11号煤层底板标高最低为884m,由此确定水头高度:(H=S )=1120.58-884=236.58(m)r=η4a b +=379.5mR 0=10S K =1574.1m R = R 0+ r 0=1953.6m将上述参数代入上述公式得开采10+11号煤层矿井正常涌水量Q=3743m 3/d (156m 3/h )最大涌水量Qmax=δQ 正,δ: 季节影响比值系数 开采2号煤层时,季节影响比值系数δ=1.2故最大涌水量Qmax=3743×1.2=4492 m 3/d (187.2m 3/h ) 2号煤层与10+11号煤层联合开采,矿井正常涌水量为上述涌水量之和,即矿井正常涌水量:Q 正=355+3743=4098 m 3/d(170.75 m 3/h)最大涌水量Qmax=425+4492 =4917 m 3/d(204.88m 3/h)3 狭长水平坑道法 采用承压——无压公式:(2-)5-5S M M Q BKL= ()式中:Q ——为预测的矿坑涌水量(m 3/d );K ——为渗透系数(m/d ); S ——为最大水位降深(m ); M ——为含水层厚度(m );L——为水平坑道影响宽度(m ),采用奚哈尔德公式10R =; B ——进水廊道长度,主采煤层工作面年推进度,即B =2500m 。
1、正常降雨迳流量(Qz)计算公式Qz=FHH——正常降雨量,m;——正常地表迳流系数,%。
2、设计频率暴雨迳流量(Qp)计算公式Qp=FHp′式中 Hp——设计频率暴雨量,m;′——暴雨地表迳流系数,%;年地表迳流系数实测值迳流系数() 表2 田庄露天铝土矿1964~1965年地表迳流系数实测值地表迳流系数()1982年地表迳流系数实测值地表迳流系数()年地表迳流系数实测值地表迳流系数()注:1、本表内数值适用于暴雨径流量计算,对正常降雨量计算应将表中数值减去0.1~0.2。
收集历年(一般要有10~15年)雨季各月降雨量及降雨天数,用下式求得。
选35.2m为非雨季节控制雨量,作为计算正常降雨迳流量的依据。
4、设计频率暴雨量的计算1)设计频率的选取露天矿排水设计频率标准,目前尚无统一规定。
对一般矿山设计,可根据矿山规模按设计暴雨常用频率选用(见表7)。
对有特殊条件或要求的露天矿,可根据矿山具体情况,2)设计频率暴雨量的计算(1)短历时(≤24h)暴雨量不同频率24h的暴雨量及暴雨计算所需各种参数,均可由地区《水文手册》直接查得,在这种情况下,一般只需要进行设计频率的不同历时的暴雨量计算。
当缺乏上述资料时,可收集矿山附近气象台(站)的降雨和暴雨参数资料,按下述方法进行计算。
频率为P的24h暴雨量H24P计算公式:式中 Kp——模比系数。
24——历年24h最大暴雨量均值,mm;各地最大24h暴雨量比最大日暴雨量大10%左右,故采用24=1.1;频率为P的暴雨雨力Sp采用下式计算:S P=H24P/t1-n式中 n——暴雨递减指数,由地区n值等值线图查得;其余符号同前。
频率为P的不同历时暴雨量Htp按下式计算:Htp=Sp t1-n式中 t——暴雨历时,min;所有符号同前。
偏差系数Cs一般根据当地Cs与C关系确定,无该资料是可按下式计算:变差系数C,利用地区C24等值线图查得,当无该资料时,可利用下式计算:式中 K——变率,;H——统计系列资料中某年日最大暴雨量,mm。
涌水量计算(1)解析法根据井田水文地质条件和矿井主要充水因素,利用解析法进行矿坑涌水量预测时,直接充水含水层太原组灰岩岩溶水。
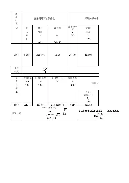
1)太原组灰岩岩溶水预测2(2S?M)M?h0 Q ?BK (5-1)R R ?10SK (5-2)式中:Q——预测矿坑涌水量,m3/h;B(m) 3200 K(m/d) 0.4427 M(m) 9.5 S(m) 169 R(m) 1124.45 Q(m3/h) 163.82 S——水位降低值,m; K——渗透系数,m/d;M——含水层厚度,m; B——进水廊道长度,m; R——影响半径,m;K取抽水实验资料0.4427K2、10+11号煤层矿井涌水量预算(大井法)开采10+11号煤层布置一个工作面,工作面宽180 m,推进长度1200m,因此,将矩形工作面(长a=1200m,宽b=180m)看做一个大井,使用大井法预算矿井涌水量:(2H?M)M计算公式为:Q?1.366KLgR?Lgr式中:Q%~矿井涌水量(m3/d) K%~渗透系数(m/d) H%~水头高度(m) M%~含水层厚度(m) r%~大井半径(m),r=ηa?b4R0%~引用半径(m),R0=10SK(S=H) R%~影响半径(m),R=R0+ r0根据ZK504号孔资料,太原组含水层水位标高1120.58m,渗透系数(K)0.4427m/d,含水层厚度(M)约9.5m,先期开采地段10+11号煤层底板标高最低为884m,由此确定水头高度:(H=S)=1120.58-884=236.58(m) r=ηa?b4=379.5mR0=10SK=1574.1m R= R0+ r0=1953.6m将上述参数代入上述公式得开采10+11号煤层矿井正常涌水量Q=3743m3/d (156m3/h)最大涌水量Qmax=δQ正,δ: 季节影响比值系数开采2号煤层时,季节影响比值系数δ=1.2故最大涌水量Qmax=3743×1.2=4492 m3/d(187.2m3/h) 2号煤层与10+11号煤层联合开采,矿井正常涌水量为上述涌水量之和,即矿井正常涌水量:Q正=355+3743=4098 m3/d(170.75 m3/h)最大涌水量Qmax=425+4492 =4917 m3/d(204.88m3/h)3 狭长水平坑道法采用承压——无压公式:Q?BK(2S-M)M (5-5)L式中:Q——为预测的矿坑涌水量(m3/d);K——为渗透系数(m/d); S——为最大水位降深(m); M——为含水层厚度(m);L——为水平坑道影响宽度(m),采用奚哈尔德公式R?10SK;B——进水廊道长度,主采煤层工作面年推进度,即B=2500m。
计算公式一、矿山服务年限计算)1(e A Q -⋅η (a ) 式中:N —矿山服务年限 (a );Q —设计利用储量 万t ;η—矿石回采率 %;(地下开采8090%,露天开采8595%) A —矿山年产量 万;e —废石混入率 %;(地下开采10%,露天开采5%)二、矿山生产能力计算1、按采矿工程延深速度验证确定矿山生产能力(露天) )1(e H V P -⋅⋅η (a ) 式中:A —矿山生产能力 万;P —水平分层平均矿量 万t ;V —采矿工程年延深速度 ;η—矿石回收率 %;H —阶段高度 m ;e —废石混入率 %;2、根据矿山开采年下降速度计算和验证矿山生产能力(地下开采) βαγ-⋅⋅⋅1S V K 1·K 2·E (万t ) 式中:A —矿山年生产能力 万;V —回采工作面下降速度 ;(浅孔留矿为10-25 m)S—矿体开采面积m2;γ—矿石体重3;α—矿石回收率%;(8090%)β—废石混入率%;(1020%)E—地质影响系数(0.7-0.9);K1—矿体倾角修正系数K2—矿体厚度修正系数(0.8-1.2)3、矿山生产能力计算(地下开采)Z EKQN-⋅⋅⋅1(万)式中:A—矿山生产能力万;Q—矿块生产能力万;N—分布矿块数个;K—矿块利用系数(0.1-0.4);E—地质影响系数(0.7-0.9);Z—废石混入率(1020%);4、露天矿总生产能力计算Aα(1)(万)式中:Aα—年矿岩总生产能力;A—年矿石生产能力;—生产剥采比;5、露天矿可能达到的生产能力·n·Q ()式中:A—露天矿矿石年产量;Q —挖掘机生产能力 ;n —同时工作的采矿阶段数N —一个阶段可布置的挖掘机数 (汽车运输为1-2); oL L L —一个台阶的矿石工作线长度 m ;—一台挖掘机占用的工作线长度 m ;6、根据矿石储量估算露天矿生产能力LQ 0.2千Q式中:A —矿山年生产能力 ;Q —境界内矿石储量 t ;L —矿山寿命 a ;三、矿井需风量、负压计算1)风量计算①按井下同时工作的最多人数计算m 3式中:Q —矿井需风量 m 3;q —每人用风量 4m 3;N —最多入井人数 人;②按矿井各地点实际需要风量的总和计算a 、采场需风量1°按排除采场炮烟计算Q1·25 m3式中:Q1—按排除采场炮烟所需的风量m3;A—每次爆破使用的最大炸药量;25—每炸药爆破后需风量2°按排尘风速计算Q1·S式中:Q1—按采场排尘所需的风量m3;V—“规程”规定风速取0.25mS—采场通风断面积m3b、掘进工作面需风量1°按一次爆破的最大炸药量计算25A m32°按生产过程中最多人数计算m33°按排尘风速计算·S m3c、硐室需风量Q340m3~80m3d、矿井各地点用风量总和为Q总=ΣQ1+ΣQ2+ΣQ3③最终矿井风量的确定总m3式中:K—为风量备用系数(1.1-1.25)2)负压计算23 S LP⋅⋅γ式中:H—矿井通风摩擦阻力R—矿井通风摩擦阻力Q—矿井风量m3γ—巷道通风摩擦阻力系数P—巷道周长mL—巷道长度m四、矿井涌水量计算1、露天采坑最大降雨时涌水量计算·F·φ′/1000式中:—最大降雨时露天采坑的涌水量m3—设计频率暴雨量φ′—暴雨地表径流系数(0.5-0.9)F—入渗区汇水面积m22、露天采坑正常降雨涌水量计算·F·φ/1000式中:—正常降雨涌水量m3H—平均与降雨量F—机械排水担负的汇水面积m2φ—正常降雨地表径流系数直(0.3-0.5)3、用稳定流解析法(大井法)按潜水含水层计算矿井涌水量)()2(366.1rR eg S S H K - 式中:Q —竖井成矿坑的涌水量 m 3H —潜水含水层厚度 mK —渗透系数S —水位降深 mR —影响半径 mr —竖井半径成矿坑引用半径 m矿坑引用半径r 的确定:当开采范围为不规则形状时πF 当天采范围为矩形时4b a + F —为开采面积α、b —分别为开采范围的长度和宽度五、排土场计算1、排土场所需容积·(1)式中:—排土场设计的有效容积 m 3—剥离岩土的实系数 m 3—岩土的松散系数 m 3—岩土的下沉率(%) (715%)2、排土场的设计总容积1· m 3 式中:V —排土场的设计总容积 m 3—排土场的设计容积m3K1—容积富余系数(1.02-1.05)六、采场采出矿石品位计算α12=(1-γ)d2式中:α12—采区采出矿石品位%(或)γ—废石混入率%d2—采区矿石地质平均品位%(或)七、主要设备生产能力计算1、潜孔钻机台班生产能力计算0.6·υ··η式中:—潜孔钻机台班生产能力台·班—潜孔钻机每班工作时间η—潜孔钻机时间利用系数(0.6-0.4)υ—潜孔钻机钻进进度一般为15-32m/台·班上式中机械钻速可近似的用下式表示①4πD²E式中冲击功();冲击频率(次)钻孔直径();岩石凿碎功比耗(³);冲击能利用系数,0.6-0.8.②3.75()轴压(t);钻头钻速();钻头直径;岩石坚固性系数。
煤矿出/涌水量的几种测量方法
1量桶容积法
当流量小于1L/s时,常用此法。
容器一般用量桶或水桶,为了减少测量误差,计量容器的充水时间不应小于20s流量计算公
利用水泵实际排水量和水泵运转时间,来计算涌水量
Q=水泵铭牌排水量×实际效率×开动时间×台数
式中Q—涌水量,m3·d-1。
4浮标测流法
F t
H H Q ⋅-=21采用水面浮标的流水沟道地段及实测断面应符合下列要求:
(1)沟道顺直,沟床地段规则完整,长度为3-5倍的沟宽。
(2)水流均匀平稳,无旋涡及回流。
(3)沟道地段内无阻碍水流的杂草、杂物。
实测程序:
(1)选定了实测地段后,按相等距离布设三个断面:上断面、基本断面(中断
(2)
(3),可酌
(4)次,
L ———上、下两断面的间距,m;
t ———所选有效浮标的平均历时,s;
F ———过水断面面积,m 2。
(5)水仓水位法
涌水量即可用下式计算:
式中Q—涌水量,m3/min;
H1—停泵时水仓水位,m;
H2—停泵时间t时水仓水位,m;
F—水仓底面积,m2。
t—水仓水位从H1上升到H2所需的时间,min。
``。
采区涌水量计算编制:日期:根据21采区实际情况,我矿对21采区排水系统所承担的涌水量进行了重新计算,二1煤顶板涌水量采用比拟法进行计算,二1煤底板L 7-8灰岩水采用大井法进行计算,另外,根据告成矿总体规划,21采区排水系统还要承担23、22采区前期部分开拓巷道涌水的排水任务,同时还要考虑21采区二1煤在开采过程可能出现的灾害水量及其他水量,因此,此次对21采区二1煤开采过程中21采区排水系统所承担的涌水量进行重新核算包括了上述四部分。
各部分涌水量详细计算步骤及过程如下: 一、21采区二1煤层顶板涌水量计算根据21采区二1煤顶板强含水层T 11和T 12分布情况,21采区二1煤开采时受顶板水影响的区域主要为该采区中下部,采用比拟法进行计算。
21采区二1煤开采过程中顶板涌水量计算采用公式如下:132113211321H H F F Q Q ⨯⨯=(顶)(顶)式中:Q 21(顶)------21采区顶板涌水量,m 3/h ;Q 13(顶)------13采区顶板涌水量:正常涌水量取480m 3/h ,最大涌水量取720m 3/h ; F 21------------21采区顶板含水层水位降低值。
受顶板水影响区域最低煤底板标高-220,13采区回采结束后水位降深至-70m ,得F 21=-70-(-220)=150m ;F 13------------13采区顶板含水层水位降低值。
目前13采区回采已基本结束,按其二1煤底板取水位标高为-70m ,13采区回采前顶板水水位标高取长观3#孔水位标高292m ,得F 13=292-(-70)=362m ;H 21------------21采区二1煤采动后形成冒裂带范围内揭露T 11—T 12面积,取609284m 2; H 13------------13采区二1煤采动后形成冒裂带范围内揭露T 11—T 12面积,取1203701m 2。
代入公式132113211321H H F F Q Q ⨯⨯=得:hm Q hm Q /8.3291203701609284362150720/8.21912037016092843621504803)(21321=⨯⨯==⨯⨯=顶最大正常(顶)二、21采区二1煤开采过程中L 7-8灰岩含水层涌水量计算:采用大井法承压—无压公式:r R M M H K Q lg lg )2(366.12--⨯⨯⨯⨯=K S r R ⨯⨯+=10式中:Q------21采区L 7-8含水层涌水量,m 3 /h ;H------承压含水层底板以上水头高度。
涌水量计算方法:类比法;解析法;数值法;统计学方法
1.潜水完整井涌水量计算
潜水完整井是指井筒揭露了整个潜水含水层,并一直打到含水层隔水底板(图10-33)。
其涌水量计算
公式为:
式中Q——井筒涌水量,m3/d;
K——含水层渗透系数,m/d;
H——静止水位高度(对潜水完整井即潜水含水层厚度),m;
h——动水位至含水层底面的距离为动水位高度(h=H-s),m;
s——水位降低值,m;
R——地下水降落范围,即影响半径,m;
r——井筒半径,m。
2.自流水完整井涌水量计算
自流水完整井是指井筒揭露了整个承压水含水层,并一直打到含水层底板隔水层(图10-34)。
其涌水
量计算公式为:
式中M——自流水含水层厚度,m。
井筒涌水量计算公式中参数R 的确定
计算影响半径R的公式有理论公式和经验公式两种
理论公式为:
潜水
承压水
经验公式
潜水——承压水
自流水
水平巷道涌水量的预测方法
通常水平巷道在排水初期,统一的降落漏斗未形成之前,可用下列公式计算其用水量。
(1)潜水完整水平巷道涌水量计算公式
式中K——渗透系数,m/d
B——巷道长度,m。
自流水完整水平巷道涌水量计算公式
采区或采面涌水量计算
例如,某一采区在承压含水层之下开拓,其平面形状近似正方形(图10-39)。
由于在煤层开采过程中,水位降低到隔水
顶以下,所以涌水量计算公式为:
(计算影响半径的经验公式,K单位为m/d);M、H、K 可在勘探报告中查找到;h 值取零。
1、正常降雨迳流量(Qz)计算公式
Qz=FH
H——正常降雨量,m;
——正常地表迳流系数,%。
2、设计频率暴雨迳流量(Qp)计算公式
Qp=FHp′
式中 Hp——设计频率暴雨量,m;
′——暴雨地表迳流系数,%;
年地表迳流系数实测值
迳流系数() 表2 田庄露天铝土矿1964~1965年地表迳流系数实测值
地表迳流系数()
1982年地表迳流系数实测值
地表迳流系数()
年地表迳流系数实测值
地表迳流系数()
注:1、本表内数值适用于暴雨径流量计算,对正常降雨量计算应将表中数值减去0.1~0.2。
收集历年(一般要有10~15年)雨季各月降雨量及降雨天数,用下式求得。
选35.2m为非雨季节控制雨量,作为计算正常降雨迳流量的依据。
4、设计频率暴雨量的计算
1)设计频率的选取
露天矿排水设计频率标准,目前尚无统一规定。
对一般矿山设计,可根据矿山规模按设计暴雨常用频率选用(见表7)。
对有特殊条件或要求的露天矿,可根据矿山具体情况,
2)设计频率暴雨量的计算
(1)短历时(≤24h)暴雨量
不同频率24h的暴雨量及暴雨计算所需各种参数,均可由地区《水文手册》直接查得,在这种情况下,一般只需要进行设计频率的不同历时的暴雨量计算。
当缺乏上述资料时,可收集矿山附近气象台(站)的降雨和暴雨参数资料,按下述方法进行计算。
频率为P的24h暴雨量H24P计算公式:
式中 Kp——模比系数。
24——历年24h最大暴雨量均值,mm;各地最大24h暴雨量比最大日暴雨量大10%左右,故采用24=1.1;
频率为P的暴雨雨力Sp采用下式计算:
S P=H24P/t1-n
式中 n——暴雨递减指数,由地区n值等值线图查得;
其余符号同前。
频率为P的不同历时暴雨量Htp按下式计算:
Htp=Sp t1-n
式中 t——暴雨历时,min;
所有符号同前。
偏差系数Cs一般根据当地Cs与C关系确定,无该资料是可按下式计算:
变差系数C,利用地区C24等值线图查得,当无该资料时,可利用下式计算:
式中 K——变率,;
H——统计系列资料中某年日最大暴雨量,mm。
为了确定变率K值和计算Cs与C值,需将收集到的矿山附近气象台(站)的历年日最大暴雨量,按由大到小的顺序排列成表8,并将求得的历年变率列入表中,然后进行计算。
当设计矿山需要对暴雨频率选择时,则应按上述方法计算不同频率、不同历时的暴雨量,以便计算不同频率、不同历时的暴雨迳流量,为进行技术经济分析提供基础资料。
三、贮排平衡计算
以设计频率的暴雨迳流量和水泵排水量为纵坐标,以排除积水时间或允许淹没时间为横坐标,绘出不同历时的暴雨迳流量累计曲线和水泵工作排水量累计曲线。
横坐标取点时12h以内取的密些,而12h~24h可放稀,长历时段,用日(d)为单位取点)。