风机尺寸
- 格式:xls
- 大小:26.50 KB
- 文档页数:3
HTF(A)型轴流式排烟风机机号:4#-15# 风量:2300-93800m3/h 全压:102-819Pa特点:轴流轮毂式叶轮、采用高温电机,电机全封闭内置,设有专门的电机冷却系统效率高、噪声低、结构合理、体积小、安装方便。
应用:高层建筑、烘房、地下车库、地铁、隧道等消防排烟及送排通风,双速风机低速用于平时通排风、高速时为消防排烟机号转速(rpm)风量(m3/h)风压(Pa)单速功率(kW)双速功率(kW)噪声dB(A)重量(Kg)4 29006500520046004104905201.51.8/1.377 76 14503250260023001021221300.55 73 694.5 2900790058005005105906702.22.4/278 88 14503950290025001271471670.75 74 805 290098248861681751061075233/2.480 110 14504912443134101271531881.1 75 965.5 290015200120001090039859262144/386 135 **** **** 100 1.5 75 115注:双速风机重量参考同号中高速风机的重量。
HTF(A)型风机外尺寸表(单位:mm)注:屋顶式风机基础高度应≥250mm注:消声器长度可根据用户要求及消声量选取,除表中规定尺寸外,也可选择所需尺寸。
风机使用说明你所在的位置:首页>使用说明(一)特别注意事项1、风机外壳或电机外壳的接地必须可靠,禁止反方向旋转,禁止超额定电流运行,禁止缺相运行;2、风机轴承加油次数不少于1000小时/次,禁止在运转中维护风机。
(二)收货检验及风机安装前准备1、风机开箱前应检查包装是否完整无损,风机的铭牌参数是否符合要求,各随带附件是否完整齐全。
2、仔细检查风机在运输过程中有无变形或损坏,紧固件是否松动或脱落,叶轮是否有擦碰现象,并对风机各分零件进行检查。
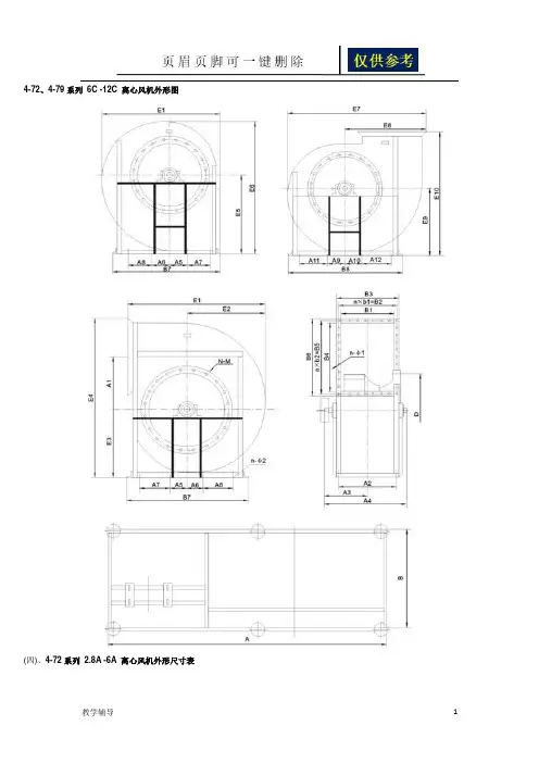
4-72、4-79系列6C -12C 离心风机外形图(四)、4-72系列2.8A -6A 离心风机外形尺寸表机号进风口尺寸出风口尺寸D1 D2 D3 n-Φ1B1 B2 B3 B4 B5 B6 n1×d1n2×d2n-Φ22.8AΦ280 Φ305 Φ330 8-Φ8.5202 234 262 228 258 288 3×783×9612-Φ103.2AΦ320 Φ350 Φ380 10-Φ9.5230 258 290 260 292 320 3×864×7314-Φ10 3.6AΦ360 Φ390 Φ420 10-Φ9.5258 300 338 292 332 372 4×754×8616-Φ10 4AΦ400 Φ430 Φ460 10-Φ9.5286 324 366 324 364 404 4×814×9116-Φ104.5AΦ450 Φ480 Φ510 10-Φ9.5315 356 395 360 400 440 4×895×8018-Φ10 5AΦ500 Φ540 Φ580 12-Φ9.5350 400 430 400 450 480 4×1005×9018-Φ10 6AΦ600 Φ640 Φ680 12-Φ8.5426 475 526 484 534 584 5×956×8922-Φ10机号电机型号安装尺寸B7 B8 A1 A2 A3 A4 A5 A6 A7 A8 A9 A10 A112.8A Y802-2 232 199 196 100 125 177 225 125 165 145 125 180 1603.2A Y90S-2270 160 226 114 140 190 200 140 200 160 140 190 190 Y712-43.6A Y 100L -2298160258 128 140 217 217 140 200 200 140 217 217 Y802-4 1504A Y132S-2336230282 143220230 230220230 230220230 230 Y802-4 150 130 130 1304.5A Y132S-2365240319 160230240 280230290 290230280 240 Y90S-4 150 140 140 1405A Y 160M -4400355353 177270293 293270270 270270293 293 Y 90L -4 180 150 150 1506A Y 112M -4470185423 213195375 405195395 335195405 375 Y 100L -6 178 155 155 245机号电机型号安装尺寸E1 E2 E3 E4 E5 E6 E7 E8 E9 E10 L n-Φ2.8A Y802-2 496 274 355 587 574 232 290 512 250 592 482 6-Φ10.53.2A Y90S-2554 314 405 671 652 266 330 570 282 668 534 6-Φ12.5 Y712-43.6A Y 100L -2638 352 460 762 742 304 360 658 313 7525906-Φ12.5 Y802-4 5654A Y132S-2700 390 480 810 814 330 420 730 350 8347636-Φ12.5 Y802-4 6024.5A Y132S-2778 437 560 929 908 369 460 801 390 9297996-Φ14.5 Y90S-4 9425A Y 160M -4857 484 610 1019 1001 409 500 874 415 10089536-Φ14.5 Y 90L -4 7466A Y 112M -41032 581 750 1241 1206 491 600 1051 500 12158446-Φ14.5 Y 100L -6 824(五)、4-72系列6C -12C 离心风机外形尺寸表机号进风口尺寸出风口尺寸H1 H2 H3 D1 D2 B1 B2 B3 B4 B5 B6 n-Φ1n×b1n×b26CΦ600 Φ640 426 475 526 484 534 584 22-Φ12.56×895×95830 680 580 7CΦ700 Φ740 498 550 598 566 618 666 22-Φ12.5 6×103 5×110 920 775 665 8CΦ800 Φ840 560 610 660 640 690 740 22-Φ12.56×1155×1221040 880 760 10CΦ1000 Φ1050 710 762 810 808 858 908 24-Φ12.56×1436×1271300 1100 950 12CΦ1200 Φ1250 850 910 970 968 1032 1088 30-Φ12.58×1297×130**** **** 1100 机号B7 B8 A1 A2 A3 A4 E1 E2 E3 E4 E5 E6 E7 E8 M1 L W 6C 850 1700 423 216 476 950 1032 452 750 1241 715 1206 600 1051 M12 1860 1080 7C 895 1790 613 253 512 1138 1193 516 840 1412 826 1439 1226 1426 M12 1950 1200 8C 1000 2120 562 283 610 1201 1578 570 960 1608 932 1578 1378 1612 M12 2300 1270 10C 1250 2500 702 358 780 1385 1674 712 1200 2012 1156 1968 1712 2006 M12 2700 1570 12C 1600 3200 842 428 920 1516 2004 844 1400 2372 1386 2358 2052 2386 M12 3400 1700 (六)、4-72系列14E-16E离心风机外形尺寸表机号进风口尺寸出风口尺寸D n-M B1 B2 B3 B4 B5 B6 n-Ф1n×b1 n×b2A1 A214E Ф147024-M12 996 1062 1122 1118 1180 1244 38-Ф149×118 10×118 986 1076 16E Ф167024-M12 1130 1200 1250 1290 1353 1410 42-Ф1410×120 11×123 1134 1230机号安装及外形尺寸图A3 A4 A5 A6 A7 A8 A9 A10 A11 A12 B7B814E 777 1404 270 270 550 550 280 280 560 560 1960 2000 16E 986 1740 310 310 620 620 375 375 600 600 2350 2400机号安装及外形尺寸图E1 E2 E3 E4 E5 E6 E7 E8 E9 E10 n-ФA B14E 2428 1343 1160 2770 1645 2778 2744 1610 1380 2465 8-Ф184000 1670 16E 2670 1549 1350 3192 1850 3149 3141 1842 1560 2681 8-Ф124950 1980 (七)、4-79系列3A -6A 离心风机外形尺寸表机号进风口尺寸出风口尺寸D1 D2 D3 n-Φ1B1 B2 B3 B4 B5 B6 n1×d1n2×d2n-Φ23AΦ300 Φ330 Φ360 8-Φ8.5 216 246 276 244 276 304 3×823×9212-Φ10 3.5AΦ350 Φ380 Φ410 10-Φ8.5251 292 331 284 324 364 4×734×8116-Φ10 4AΦ400 Φ430 Φ460 10-Φ8.5286 324 366 324 364 404 4×814×9116-Φ10 4.5A450 480 510 10-Φ8.5315 356 395 360 400 440 4×895×8018-Φ10 5AΦ500 Φ540 Φ580 12-Φ8.5350 400 430 400 450 480 4×1005×9018-Φ10 6A600 640 680 12-Φ8.5426 475 526 484 534 584 5×956×8922-Φ10机号电机型号安装尺寸B7 B8 A1 A2 A3 A4 A5 A6 A7 A8 A9 A10 A113A Y802-2256 140 209 145 125 183 230 125 170 170 125 230 183 Y701-43.5A Y901-2291160249 173 140 217 217 140 200 200 140 217 217 Y801-4 1504A Y132S-2336230282 199220230 230220230 230220230 230 Y802-4 150 130 130 1304.5A Y132S-2365240319 225230240 280230290 290230280 240 Y90S-4 150 140 140 1405A Y 160M -4400355353 251270293 293270270 270270293 293 Y 90L -4 180 150 150 1506A Y 112M -4470185423 291195375 405195395 335195405 375 Y 100L -6 178 155 155 245机号电机型号安装尺寸E1 E2 E3 E4 E5 E6 E7 E8 E9 E10 L n-Φ3A Y802-2527 294 380 628 611 249 310 544 260 623 498 6-Φ10.5 Y701-43.5A Y901-2612 344 450 741 721 291 345 638 300 7315836-Φ12.5 Y801-4 5584A Y132S-2700 390 480 810 814 330 420 730 350 8347636-Φ12.5 Y802-4 6024.5A Y132S-2778 437 560 929 908 369 460 801 390 9297996-Φ12.5 Y90S-4 6425A Y 160M -4857 484 610 1019 1001 409 500 874 415 10089536-Φ14.5 Y 90L -4 7466A Y 112M -41032 581 750 1241 1206 491 600 1051 500 12158446-Φ14.5 Y 100L -6 824(八)、4-79系列7C -12C 离心风机外形尺寸表机号进风口尺寸出风口尺寸H1 H2 H3D1 D2 B1 B2 B3 B4 B5 B6 n-Φ2n1×d1n2×d2 7CΦ700 Φ740 498 550 598 566 618 666 22-Φ12.55×1106×103920 790 680 8CΦ800 Φ840 560 610 660 640 690 740 22-Φ12.55×1226×1151040 880 760 10CΦ1000 Φ1050 710 762 810 808 858 908 24-Φ12.56×1276×1431300 1100 950 12CΦ1200 Φ1250 850 910 970 968 1032 1088 30-Φ12.57×1308×1291500 1300 1100 机号B7 B8 A1 A2 A3 A4 E1 E2 E3 E4 E5 E6 E7 E8 M1 L W 7C 970 1940 493 252 548 1058 1193 677 840 1412 826 1439 1243 1266 12 2100 1190 8C 1060 2120 562 283 610 1121 1578 168 960 1608 932 1578 1628 1489 12 2300 1270 10C 1250 2500 702 358 780 1385 1674 962 1200 2012 1156 1968 1724 2018 12 2700 1570 12C 1600 3200 842 428 920 1516 2004 1152 1400 2372 1386 2358 2054 2408 12 3400 1700 (九)、4-79系列14E-16E离心风机外形尺寸表机号进风口尺寸出风口尺寸D n-M B1 B2 B3 B4 B5 B6 n-Ф1n×b1 n×b2A1 A214E Ф147024-M12 996 1062 1122 1118 1180 1244 38-Ф149×118 10×118 986 1076 16E Ф167024-M12 1130 1200 1250 1290 1353 1410 42-Ф1410×120 11×123 1134 1230机号安装及外形尺寸图A3 A4 A5 A6 A7 A8 A9 A10 A11 A12 B7B814E 777 1404 270 270 550 550 280 280 560 560 1960 2000 16E 986 1740 310 310 620 620 375 375 600 600 2350 2400机号安装及外形尺寸图E1 E2 E3 E4 E5 E6 E7 E8 E9 E10 n-ФA B14E 2428 1343 1160 2770 1645 2778 2744 1610 1380 2465 8-Ф184000 1670 16E 2670 1549 1350 3192 1850 3149 3141 1842 1560 2681 8-Ф124950 1980。
风机外形尺寸标准
风机的外形尺寸标准通常由制造商根据设计标准和行业要求确定。
一般而言,风机的外形尺寸标准可能会包括以下几个方面:
1. 直径或尺寸:用于描述风机的外径或尺寸大小,通常以毫米或英寸为单位。
2. 高度:有些风机可能是非圆形的,因此高度也是很重要的参数。
3. 安装孔的位置和尺寸:用于安装风机的螺栓孔位置和尺寸,使其能够与相关设备匹配。
4. 连接口尺寸:风机进风口和出风口的尺寸,通常以毫米为单位。
这些标准尺寸实际上会受到风机类型(如轴流风机、离心风机)、制造商以及国际或地方标准的影响,因此确切的规格和尺寸应该直接参考风机的制造商提供的技术规格和说明书。
在向制造商订购或选择风机时,可以要求提供详细的外形尺寸和安装要求,以确保风机可以正确匹配相关设备和满足工程设计需求。
(2)风机型式:带喇叭口畜牧风机。
(3)风机型号:风扇叶直径:1000-mm;最大安装尺寸不超过1110*1110mm。
(4)运行方式:负压运行;负压50Pa时,风量不小时25000 M3/H。
(5)输入功率:小于750W;额定电流2.05A.(6)噪音:不大于69 db;(7)输入电压:380±5% V;(8)叶片:不锈钢;(9)附件:风机外侧装喇叭口,热镀锌防腐,厚度不小于1mm;内侧装铝合金百叶,防空气倒流。
百叶要有连杆机构,打开时和运行时阻力小,关闭时密封性要好。
(10)传动方式:皮带传动。
采用进口的V型三角带,强度高、寿命长,更换、维护方便。
配皮带自动张紧装置。
轴承采用进口超静音、自润滑轴承。
(11)电机:电机采用国产的品牌电机,IP55标准的防护等级及F级的绝缘等级,功率因数0.85以上。
(12)风机型式:带喇叭口畜牧风机。
(13)风机型号:风扇叶直径:1250mm;最大安装尺寸不超过1380*1380mm。
(14)运行方式:负压运行;负压50Pa时,风量不小时30000 M3/H。
(15)输入功率:小于1100W;额定电流2.9A.(16)噪音:不大于69 db;(17)输入电压:380±5% V;(18)叶片:不锈钢;(19)附件:风机外侧装喇叭口,热镀锌防腐,厚度不小于1mm;内侧装铝合金百叶,防空气倒流。
百叶要有连杆机构,打开时和运行时阻力小,关闭时密封性要好。
(20)传动方式:皮带传动。
采用进口的V型三角带,强度高、寿命长,更换、维护方便。
配皮带自动张紧装置。
轴承采用进口超静音、自润滑轴承。
(21)电机:电机采用国产的品牌电机,IP55标准的防护等级及F级的绝缘等级,功率因数0.85以上。
风机型号及参数表一、型号介绍风机型号:FD-1000该型号风机是一种大型工业风机,主要用于通风、换气、除尘等工业领域。
二、主要参数1. 风机类型:离心风机2. 风机尺寸:直径1000mm3. 风量:10000m³/h4. 风压:800Pa5. 额定功率:5.5kW6. 额定电流:12A7. 额定转速:1450rpm8. 噪音:<75dB(A)9. 重量:250kg10. 电源:380V/50Hz三、风机特点1. 高效节能:该型号风机采用先进的离心风机设计,具有较高的风量和风压,能够在保持较低功率消耗的情况下实现良好的通风效果,大大降低了能源消耗。
2. 低噪音:通过优化设计和精选材料,该型号风机在运行时产生的噪音较低,不会对工作环境和员工产生太大的干扰。
3. 稳定可靠:风机采用高品质的电机和轴承,具有较高的转速和转矩,运行稳定可靠,使用寿命长。
4. 安全防护:风机具有过载保护和电机温度保护功能,能够在异常情况下自动停机,保护设备和人员安全。
5. 易于安装和维护:风机结构简单,安装方便,同时采用模块化设计,易于维护和更换零部件。
四、适用范围该型号风机广泛应用于工业厂房、仓库、矿山、化工厂等场所,可用于通风换气、除尘排烟等工作。
其高风量和风压特点能够满足大空间的通风要求,有效改善工作环境。
五、使用注意事项1. 在安装风机时,请确保风机周围没有障碍物,以免影响风机的正常运行。
2. 风机运行时,应定期检查风机的运行状态和温度,确保风机正常运转。
3. 风机在运行过程中如有异常噪音或振动,应立即停机检修,避免造成故障或事故。
4. 风机的电源接线必须符合国家电气标准,确保电源供应稳定可靠。
5. 长时间不使用时,应切断电源,并定期清洁风机,保持风机的良好状态。
6. 风机维护时,应遵循操作手册的要求,使用合适的工具和材料,确保维护工作的安全和有效进行。
六、总结FD-1000型号风机是一款功能强大、性能稳定的工业风机。
负压风机参数
负压风机是一种用于产生负压环境或排风的设备,以下是一份可能的负压风机参数列表:
型号:xxxx
风机类型:离心式负压风机
风机尺寸:直径1000 毫米
最大风量:8000 立方米/小时
额定电压:220V,50Hz
额定功率:2.2 千瓦
最大噪音水平:65 分贝
最大负压:-150 帕
风机材质:镀锌钢板
风叶材质:铝合金
控制方式:手动/遥控
运行模式:单速
安全特性:过载保护、过热保护
进风口尺寸:350 毫米x 350 毫米
出风口尺寸:450 毫米x 450 毫米
外观颜色:蓝色
尺寸:1200 毫米x 1200 毫米x 1300 毫米(长x 宽x 高)
净重:120 千克
使用环境温度:-10°C 至40°C
适用场景:建筑施工、工业通风、卫生防疫等。
通风风机型号及参数表通风风机是目前工业生产和民生生活中常见的设备之一,可用于排除地下车库、工艺车间、商场超市等场所中的浊气及污染物,也可用于清洁室内空气、为工业设备及房间带来清新的空气。
以下是几款常见的通风风机型号及其参数介绍:一、轴流风机轴流风机是目前最通用的通风风机类型,主要应用于低压、大风量的通风系统中。
它利用螺旋桨的设计原理,将气体从一端吸入,然后强制经过桨叶旋转,最终从另一端排出,形成一股强劲的气流。
常见的轴流风机型号有:1、FWZ型轴流风机参数表:风量:9700m³/h压力:535pa电压:380V功率:750W电机速度:1400r/min外形尺寸:650*650mm 2、SDF型轴流风机参数表:风量:61000m³/h压力:280pa电压:380V功率:11kw电机速度:1450r/min外形尺寸:1000*1000mm 二、离心风机离心风机是一种利用高速旋转离心叶轮来产生气流的通风风机,主要应用于冶金、化工、矿山等工业场所中,可用于脱湿、除尘、送风等多个方面。
常见的离心风机型号有:1、4-68型离心风机参数表:风量:4000m³/h压力:599pa电压:380V功率:3kw电机速度:2900r/min外形尺寸:650*650mm2、T30型离心风机参数表:风量:20000m³/h压力:1500pa电压:380V功率:55kw电机速度:2950r/min外形尺寸:1500*1500mm三、混流风机混流风机是一种介于轴流风机和离心风机之间的通风设备,其叶轮的设计结合了轴流风机的桨叶和离心风机的直叶片,独特的气流组织形式为气体提供了更加稳定、柔和的空气流动。
常见的混流风机型号有:1、4-1型混流风机参数表:风量:1050m³/h压力:200pa电压:220V功率:0.25kw电机速度:2800r/min外形尺寸:310*300mm 2、FUMF-25型混流风机参数表:风量:37000m³/h压力:1100pa电压:380V功率:55kw电机速度:2900r/min外形尺寸:1900*1650mm总结:以上列举的四款通风风机都是市场上比较常见的型号,它们分别具有轴流风机、离心风机、混流风机的功能特点。
风机外型尺寸表型号风机长度风机宽度风机高度风机进出囗备注AxBXTSWF-I-5# L=600+100 W=750 H=800 510x510 H=80+720XTSWF-I-6# L=650=100 W=850 H=900 610x610 H=80+820 XTSWF-I-7# L=680+100 W=950 H=1000 710x710 H=80+920 XTSWF-II-8.2# L=930+100 W=1070 H=1133 830x830 H=80+1053 XTHTF-I-3.5# L=760+100 W=600 H=650 360x360 H=80+570 XTHTF-I-4.5# L=800+100 W=700 H=750 460x460 H=80+670 XTHTF-I-5# L=820+100 W=750 H=800 510x510 H=80+720 XTHTF-I-6# L=900+100 W=850 H=900 610x610 H=80+820 XTHTF-I-6.5# L=960+100 W=900 H=950 660x660 H=80+870 XTHTF-I-8# L=1000+100 W=1050 H=1100 810x810 H=80+1020 XTHTF-I-10# L=1070+100 W=1250 H=1313 1010x1010 H=80+1233 XTHTF-II-5.5# L=850+100 W=800 H=850 560x560 H=80+770 XTHTF-II-12# L=1320+100 W=1450 H=1513 1210x1210 H=80+1433 XTHTF-II-15# L=1460+100 W=1750 H=1813 1510x1510 H=80+1733HTF-I-9# L=870 H=546 DN900 H为中心到固定基础高度HTF-II-10# L=900 H=604 DN1000 H为中心到固定基础高度HTFC-II-25A L=1180+50 H=1155+50 800x677上1280x935侧HTFC-I-22B L=1678+50 H=1093+50 730x603上1150x910侧工作总结-财务处长个人工作总结[工作总结-财务处长个人工作总结]工作总结-财务处长个人工作总结(范文)工作总结-财务处长个人工作总结2009-07-06 11:52财务处长个人工作总结光阴似箭、岁月如梭,转眼之间一年过去了,新的一年已经开始,工作总结-财务处长个人工作总结。
9—19离心风机参数
9—19离心风机参数指的是离心风机的外形尺寸和性能参数,它是由一系列的数字和单位组成的。
下面详细介绍一下9—19离心风机参数:
一、外形尺寸
1、前后直径:9—19离心风机的前后直径大小一般是φ355mm;
2、中心距:一般,9—19离心风机的中心距是
360mm;
3、高度:9—19离心风机的高度大小一般是420mm;
4、净重:9—19离心风机的净重一般是27.5kg。
二、性能参数
1、风量:9—19离心风机的风量一般是2880m³/h;
2、静压:9—19离心风机的静压一般是2000pa;
3、功率:9—19离心风机的功率一般是2.2kw;
4、电流:9—19离心风机的电流一般是7.6A;
5、转速:9—19离心风机的转速一般是1410r/min;
6、噪声:9—19离心风机的噪声一般是≤63dB(A);
7、进口温度:9—19离心风机的进口温度一般是
≤60℃;
8、出口温度:9—19离心风机的出口温度一般是
≤100℃。
三、安装要求
1、安装方式:9—19离心风机通常采用立式安装方式;
2、安装地点:9—19离心风机通常应安装在室内、室外平坦无摩擦的地面上;
3、管道连接:9—19离心风机的管道可采用法兰连接;
4、电气连接:9—19离心风机应使用专用电缆连接,并采用合理的接头。
9—19离心风机参数是根据不同型号的离心风机而有所不同,在选择离心风机前,应根据使用的要求,选择合适的离心风机型号,以满足使用需求。
一般情况下,离心风机可以满足室内外的正常通风及空调系统的需要,如果要求更高,可以考虑采用特殊型号的离心风机,满足更高的性能要求。