轻质隔墙板基本节点图
- 格式:docx
- 大小:700.47 KB
- 文档页数:9
ALC轻质隔墙板的施工ACL轻质隔墙板是一种综合效能优良的墙体材料。
本工程用于框架建筑物的内隔墙分隔墙。
ALC轻质隔墙板排列见图1,ALC轻质隔墙板节点构造见图2.①将安装ALC轻质隔墙板的建筑地面及顶棚面剔凿修补完毕,并清扫干净。
根据设计图纸,在建筑地面及顶棚面上弹出隔墙板位置的两侧边线和门窗框位置的两侧边线。
②将ALC轻质隔墙板面和板两侧企口及板的上下板头杂物等清理干净。
③配制粘结剂。
粘结剂重量配合比为水泥:108胶:水=1:0.2:0.3。
配制的方法是将水泥用窗纱过筛,以防水泥过期结块成团,然后再把108胶用水溶解,溶解后加入水泥中,拌合均匀至稠状即可使用。
拌制的粘结剂一定要适量,使用时间不得超过1h,工具用毕要及时清洗干净。
④安设顶棚上的U型扣件。
U型扣件采用镀锌薄钢板加工而成,板厚1mm,高25mm,长、宽各60mm.根据ALC轻质隔墙板的宽度,将ALC轻质隔墙板与板相拼处的顶棚上安装一个U形扣件,采用YD27S8射钉,用射钉枪将U形扣件固定。
⑤安装ALC轻质隔墙端头板。
依照放线的位置,在墙上先安装3个U形扣件。
然后将安装的隔墙板顶面和靠墙的侧面上涂抹胶粘剂。
安装时1人推挤,1人在下部用宽口撬棍撬起,边顶边挤紧端墙和顶棚面,以有浆液挤出为宜,同时检查垂直度和上下边线的位置,合格后即用2对木楔打紧墙板底部,使之向上顶紧,顶棚面上的U形扣件1/2夹住墙板嵬下撬拽。
用油灰刀将出的胶粘剂刮平补齐,然后将继续安装下一块隔墙板。
⑥安装第二块ALC轻质隔墙板。
当ALC轻质隔墙端头板安装完毕后,紧接着安装第二块隔墙板,安装方法同前,板缝隙以5mm为宜,按同样的施工方法一块隔墙板。
⑦贴玻璃纤维网格条。
第一层采用60mm宽的玻璃纤维网格条贴,贴剂与拼装胶粘相同,待胶粘剂稍干后,可再贴第二层玻璃纤维网格条。
第二层是采用150mm宽玻璃纤维网络条贴板与板的拼缝,为了使施工后的板缝美观、洁净,板面不污染,在刮涂胶粘剂的板面范围弹出灰线,贴缝的胶粘剂与拼装胶粘剂相同,玻璃纤维网格条贴顺铺平,胶粘剂刮平,表面光滑。
轻质隔墙板施工方法(多图)一、轻质隔墙板有什么优点?1、环保使用原料不含对人体有害物质,无放射性A类产品,符合国家G/T169-2005标准。
2、防火在1000摄氏度的高温下的耐火极限不低于3小时,而且不散发有毒气体,不燃性能达到国家A级标准。
3、扩大房屋空间轻质隔墙板分为内墙和外墙,内墙的隔墙板可以充分的扩大房屋的空间。
4、整体性好由于是装配式施工,本体三合一结构,板与板连接成整体,抗冲击性能强,用钢结构方法锚固,墙体强度高,可做层高、跨度大的间隔墙体,整体抗震性能高于普通砌筑墙体多倍。
复合墙板隔墙系统结构紧密,整体性好,不变形,墙面不易松散,抗震性好。
5、防潮防水实验证明,轻质墙板能在无做任何防水饰面的情况下,用水泥粘结成池体装满水,轻质墙板背面能保持干燥,不留痕迹,在潮湿天气里也不会出现冷凝水珠。
轻质隔墙板的面板是专业的防水板,有良好的防水,防潮性能,可适用于厨房、卫生间、地下室等潮湿区域。
6、隔音具有良好的隔音效果,其隔音效果符合国家住宅的隔音要求,大大高于其他砌砖墙体的隔音效果。
7、施工简单快捷完全是干作业,装配式施工,墙板可任意切割调整宽度、长度。
施工时运输简洁、堆放卫生,无需砂浆批荡,大大缩短了工期,而且材料损耗率低,减少了建筑垃圾。
8、隔热保温轻质隔墙板的制造工艺,决定了良好的隔热保温功能,让室内环境更加舒适。
9、吊挂力强复合墙板可以直接打钉或上膨胀螺栓进行吊挂重物,而且墙板的面板表面平整光滑不会产生粉尘,可直接粘贴瓷砖、墙纸、木饰板等材料做饰面处理。
10、轻质经济施工简单便捷,降低劳动强度,加快施工进度,节约工程总造价,满足了不同客户对现代建筑室内外环境的要求。
二、性能参数三、案例工程概况蒸压加气混凝土板轻质隔墙施工。
本工程主要构件材料见下表四、施工准备1、劳动力准备2、机具准备3、试验准备1)蒸压加气混凝土板进场后,须经材料室组织技术、质检对外观质量、尺寸偏差进行检查验收,并向厂家所要板材合格证及相应检验报告,2)所用材料类型及同类型材料的强度等级在划分检验批时必须相同;3)蒸压加气混凝土板按同一种原材料、同一工艺生产、相同质量等级的每3000块为一个检验批,不足3000块的也按一批计,随机抽取50块板进行外观质量和尺寸偏差的检验。
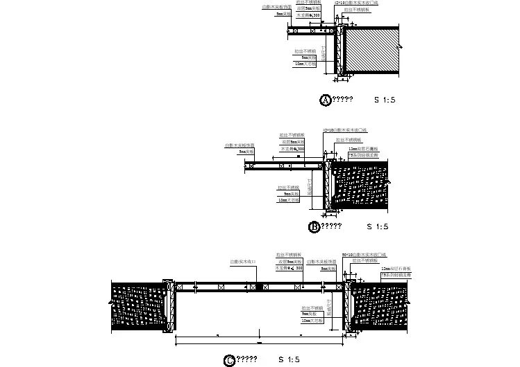
附图:轻质隔墙板基本节点做法详图节点名称节点图做法要点节点1:标准板“一字型”连接墙板嵌缝带应在木楔拆除14天后施工,完成后间隔30天以上才能开始精装修;在板缝满刮一层专用粘贴剂,厚度约3mm,再粘贴一道50mm宽玻纤网带,用抹子完全压入粘贴剂内;抹平粘结剂,接缝横平竖直,整洁美观;板缝处理14天后,移交精装修前,检查若有裂缝,用粘贴剂修补;节点2:标准板与补板“一字型”连接补板应提前用粘贴剂填平切口;墙板嵌缝带应在木楔拆除14天后施工,完成后间隔30天以上才能开始精装修;在板缝满刮一层专用粘贴剂,厚度约3mm,再粘贴一道50mm宽玻纤网带,用抹子完全压入粘贴剂内;抹平粘结剂,接缝横平竖直,整洁美观;板缝处理14天后,移交精装修前,检查若有裂缝,用粘贴剂修补;节点3:墙板与剪力墙同宽连接剪力墙预留凹槽与梁底留槽交汇,宽50mm,深4mm;墙板嵌缝带应在木楔拆除14天后施工,完成后间隔30天以上才能开始精装修;在板缝满刮一层专用粘贴剂,再粘贴一道100mm宽玻纤网带,用抹子完全压入粘贴剂内;抹平粘结剂,接缝横平竖直,整洁美观;板缝处理14天后,移交精装修前,检查若有裂缝,用粘贴剂修补;节点4:墙板与剪力墙一侧平齐连接墙板与剪力墙平齐一侧连接做法同节点3;另一侧连接做法同节点5。
节点5:墙板与免抹灰结构墙、柱“T字型”连接结构预留凹槽,宽为墙厚每边加30mm,深8mm;墙板嵌缝带应在木楔拆除14天后施工,完成后间隔30天以上才能开始精装修;在板缝满刮一层专用粘贴剂,再粘贴一道50mm宽玻纤网带,用抹子完全压入粘贴剂内;抹平粘结剂,接缝横平竖直,整洁美观;板缝处理14天后,移交精装修前,检查若有裂缝,用粘贴剂修补;节点6:墙板与外墙“T字型”连接外墙砌体施工完成7天后、内保温砂浆施工前安装墙板;内保温砂浆施工时间:墙板安装完成14天后,抹灰层压墙板;抗裂砂浆及网络布向墙板转边25mm,并抹平凹槽。
板缝处理14天后,移交精装修前,检查若有裂缝,用粘贴剂修补;节点7:墙板底与楼板面连接清除楼面墙板安装位置的灰尘并洒水湿润;墙板经安装检验合格后24小时内,用细石混凝土(高度>30mm)或1:2干硬水泥砂浆(高度≤30mm)将墙板底部填塞密实;板缝处理14天后,移交精装修前,检查若有裂缝,用粘贴剂修补;节点8:墙板顶与楼板底连接板底留凹槽宽为墙厚每边加30mm,深8mm;墙板嵌缝带应在木楔拆除14天后施工,完成后间隔30天以上才能开始精装修;在板缝满刮一层专用粘贴剂,再粘贴一道50mm宽玻纤网带,用抹子完全压入粘贴剂内;抹平粘结剂,接缝横平竖直,整洁美观;板缝处理14天后,移交精装修前,检查若有裂缝,用粘贴剂修补;节点9:墙板底与反坎连接反坎采用铝模与主体结构整体浇注,保证尺寸、高度、宽度及定位准确。
恒大城项目一期工程ALC轻质隔墙专项施工方案编制人:审核人:审批人:分包单位:河南德川集成建筑科技有限公司总包单位:江苏南通三建集团股份有限公司年月日目录第一章编制依据 (3)第二章工程概况 (3)第三章施工方法 (3)1、工艺流程 (3)2、施工准备 (4)3、施工方法及技术措施 (4)4、各项施工管理措施 (7)4.1成品保护措施 (7)5、工程验收 (8)6、主要节点做法 (8)第一章编制依据1.1图集手册表1.1-1 施工图集手册表第二章工程概况工程名称:恒大城项目建设单位:焦作御景置业有限公司设计单位:河南省纺织建筑设计院有限公司监理单位:河南省育兴建设工程管理有限公司施工单位:江苏南通三建集团股份有限公司本工程位于河焦作市山阳区碧莲路焦作一中往东200米。
本工程由1#~2#独立商业、3#商业、主入口大门、8#~15#主楼组成。
本工程已规划用地面积为96285.0平方米,规划建筑面积为269598平方米(不含地下室)。
总建筑面积:17864.38平方米、主楼建筑结构形式为剪力墙结构,基础采用CFG桩基筏板基础。
第三章施工方法1、工艺流程固定U型铁件→安装隔墙板→检查、调整→塞木楔→板缝处理1.1固定U型铁件:先依据地面墙线确定顶部U型铁件的位置固定好。
1.2安装隔墙板:先将粘结砂浆抹在公槽内,砂浆必须满铺均匀,确保灰浆饱满。
再将墙板移至安装位置,用撬棍将墙板来回移动,保证墙板上端与侧面板缝粘结密实。
1.3检查、调整:使用靠尺检查墙面的平整度与垂直度,调整到标准范围以内。
1.4塞木楔:调整合格后,在板下端用木楔将墙板楔紧。
1.5板缝处理:板缝及与主体交界处用粘结砂浆填实、刮平,在面层上铺一层7cm宽的耐碱玻纤网格布,表面抹平。
外墙拼缝因采用防水砂浆,墙板上端采用粘结砂浆填实、抹平。
2、施工准备2.1技术准备2.1.1公司技术及施工人员必须熟悉设计施工图纸、设计变更洽商,充分理解设计意图;然后再进行翻样、加工。
............《轻质墙板构造图集》主要指导施工技术和构造做法,提供了各个阶段的施工准备的工作内容,指导施工有条不紊的进行。
本图集通过解说一些新材料、新工艺保证工期、质量、安全符合国标及行标要求的预制墙板技术和构造做法。
一、编制依据本图集根据《建筑用轻质隔墙条板》GB/T23451—2009、《建筑轻型条板隔墙技术规程》JGJ/T157—2008、《建筑隔墙用轻质条板》JG/T169—2005《轻骨料混凝土隔墙板施工技术规程》DB11/T491-2007、《蒸压陶粒混凝土墙板应用技术规程》DBJ/T—15-84-2011、《轻质隔墙条板质量检验评定标准》DBJ01-29、《四川省灰砂混凝土空心隔墙板标准图集》川08J135等标准,并结合本省有关厂家产品进行编制。
二、适用范围本图集适用于抗震设防烈度六级至八级地区的工业与民用建筑的非承重隔墙及框架结构的填充墙。
三、主要内容本图集主要内容分两部分, 第一部分包括预制墙板规格及材料要求、深化设计流程及配板说明、质量验收及成品保护说明。
第二部分是工艺流程及做法说明、墙板安装连接构造节点, 每个构造节点包括: 做法说明、工艺流程、构造做法、管理动作和详图等内容。
四、索引方法当选用部分详图时:当选用部分详图时:五、其他1.本图集所注尺寸均已mm为单位除特别注明外。
2.本图集中未说明的均参照有关规定及规程中的相应条款执行。
3.本图集中未说明的连接节点请参照24页墙板连接形式图。
编制说明图集号页 2............材料说明一、墙板分类墙板按照用途不同分为普通板和异型板两类。
a.普通板:墙板按照截面不同分为空心板和实心板两类。
b.异型板:墙板按照连接方式不同分为L型板和T型板。
二、普通板规格及使用部位系列L Q B H F T 建议使用部位95型板2000~300055 595 95 45 45 单或双隔墙与结构一字连接注:表中L为长度;B为宽度;H为厚度;F为榫头接缝槽;T为榫槽接缝槽;Q为板上部压槽;R为异形板总厚度。
LCP H 0301图集LCP隔墙材料轻质隔墙建筑构造西安速腾建材有限公司目录说明···················································································LCP标准板、规格图········································································LCP板立面及剖面图······································································LCP板与板连接节点·········································································LCP板与墙、柱、梁板连接节点·······························································LCP板单、双层排列图······································································LCP板节点安装构件示意图···································································LCP板墙上设备安装节点·····································································LCP附录:板原材料、技术性能、安装要求·····················································说明1.编制依据1.1中国建筑标准设计研究所图集 03J113 1.2房屋建筑制图统一标准 GB/T5001-2001 1.3ATR复合材料轻质隔墙板 Q/KAK01-2005 1.4建筑设计防火规范 GBJ16-871.5住宅内隔墙轻质条板 JG/T3029-1995 1.6民用建筑节能设计标准 JGJ26-951.7民用建筑工程室内环境污染控制规范 GB50325-20011.8建筑装饰装修工程质量验收统一标准 GB50201-20011.9建筑工程施工质量验收统一标准 GN50300-20011.10建筑材料放射性核素限量 GB6566-2012.概述2.1本图集LCP空心轻质隔墙板具有重量轻、强度高、防火、隔声、防辐射、可加工、施工方使等优点。
蒸压轻质加气混凝土板材内隔墙施工工法前言我国是较早的生产和使用加气混凝土的国家之一,近年来为进一步保护环境、节约能源,全国各地方政府相继制定出一系列的措施以支持和鼓励新型墙体材料的发展。
为规范加气混凝土板材隔墙的施工,特制定本工法。
1 特点1.1 材料特点1.1.1 ALC蒸压加气混凝土板材是瑞典INTERNATIONAL SIPOREXAB 公司的专利技术产品,是一种多气孔混凝土新型板材。
1.2 本工法施工特点1.2.1干式作业,现场无污染,有利于环保。
1.2.2工厂加工现场组装,施工进度快。
1.2.3施工方法简便,工作效率高,降低工程成本。
2 适用范围本工法适用于各种框架结构中内隔墙体施工。
3 工艺原理本工法利用板材在工厂预制精度高,并有良好的可加工性的特点,在施工中通过预埋插筋、安装槽钢等使内墙与原框架梁、板等有效的固定,从而达到减轻劳动强度、缩短建设工期、提高施工效率的目的。
4 工艺流程及操作要点4.1工艺流程图4.14.2 操作要点及注意事项4.2.1 一般要求1 板材进场后,需对其种类、尺寸和外形等产品质量进行确认,是否满足设计要求。
2 板材的搬运起吊和保管(1)板材质地疏松易于损坏,故应尽量减少转运;(2)为防止板材受损坏在运输中应采取绑扎措施;(3)板材易于吸湿、吸水,故堆放时不得直接接触地面;为防止因堆放不善而引起挠曲、开裂等损伤或应堆放过高而形成安全隐患并方便施工时板材的取4 板材安装所用钢材:钢筋为I级钢、钢材选用A3钢。
5 填充砂浆要求:水泥标号不宜大于32.5级;砂应符合砌筑砂浆用砂的要求;水中不应含有对钢筋和砂浆产生不利影响的有害杂质;砂浆的标准配合比为水泥:砂=1:3,为方便施工其流动性应满足50—70mm。
6 修补用砂浆,应由板的制造厂家为ALC板施工而特别配制。
7 有防火要求:耐火接缝材料宜先选用岩棉保温板。
8 安装时的含水率应控制在20%以内,因北京地区空气干燥,故可不考虑空气因素,只需注意板材储存及运输过程。
附图:
轻质隔墙板基本节点做法详图
灰结构墙、
节点
13:
接地线管、开关和插座暗埋
做法要点同节点12
节点14:预制内墙板吊挂重物节点
➢ 在深化设计时应明确悬挂重物点的定
位;
➢ 在内墙板吊挂重物一侧,按照确定位
置钻孔,孔径50mm ,深70mm ,用EPS
板或发泡胶封堵孔芯下口,再用1:2水泥砂浆将孔填塞密实,砂浆初凝前按照确定位置插入预埋挂件或按所挂重物标准做法后置挂件;
➢ 本节点做法适用在预制内墙板上悬挂
重物,单点吊挂重量不得大于300N(30kg);孔洞砂浆填塞28天后方可吊挂重物。
(注:可编辑下载,若有不当之处,请指正,谢谢!)。