集团总部各部门档案归档工作相关要求
- 格式:xls
- 大小:57.00 KB
- 文档页数:2
关于开展公司文件材料移交归档工作的通知公司各部门:为进一步落实《公司“十四五”档案工作专项规划》要求,确保总部各类档案完整、准确、系统、安全,公司计划开展总部文件材料移交归档工作,现将有关要求通知如下:一、归档范围(一)2022至2023年度档案。
包括各部门在日常工作中形成的属于归档范围、具有查考利用价值的文件材料,例如业务活动中直接形成的具有保存价值的合同、协议、备忘录、证书、奖杯、奖牌、录音、录像、照片等材料。
(归档部门:公司各部门)(二)2015至2020年度会计档案。
包括会计凭证、会计账簿、财务报告等。
(归档部门:财务部)(三)专题档案。
包括设备仪器、重特大事件、科技研究项目、定点帮扶、党史学习教育等专题档案移交。
(归档部门:综合管理部、科技质量部、党群工作部)二、归档要求(一)移交主体。
请各部门根据《公司文件材料归档范围和档案保管期限表》(见附件1),汇总本部门需归档的各类文件材料,认真做好收集、归档工作。
(二)移交内容。
归档的文件材料包括纸质文件、照片、录音录像、电子文件、实物等各类载体档案。
各部门在其职能活动中获得的各类奖杯、奖状、证书、奖牌等荣誉类实物均属公司档案。
(三)移交方式。
通过线上线下相结合的方式进行移交。
各部门兼职档案员通过档案系统线上办理移交手续,档案系统内填写《档案移交清单》,可通过在线直接填写或批量导入数据(导入模板见附件2)两种方式完成。
涉及电子文件移交,在系统内直接上传电子文件。
文件归档流程可参见附件3,线下各部门将清单中的实体档案送至公司档案室,由办公室对照清单内容进行核对预审。
(四)整理要求。
各部门根据兼职档案员培训要求(见附件4),规范整理本部门档案,按照“档案门类”“年度”进行分别整理。
1.序号:归档文件顺序号,同一类型、同一年度、同一保管期限从1开始按照流水顺序排号;2.题名:规范填写文件标题。
没有标题、标题不规范,或者标题不能反映文件主要内容、不方便检索的,应自拟标题,自拟内容外加方括号“[ ]”;3.保管期限:每份文件明确保管期限,同一类型同一年度的档案,按照保管期限从长到短排列,先排列“永久”保管的档案,再排列保管“30年”的档案,依此类推;4.日期:文件的形成时间,收文、发文以印发日期为准,用8位数字标注年月日,如20210615;无法精确月份、日期的以0补足8位,如20210600、20210000;5.载体类型:文件载体类型包括纸质、电子、实物等,同一份文件有多种载体形式,均应注明,如一份文件有纸质文件,同时有电子文件,应在载体类型注明纸质、电子。
公司档案的管理制度第一章总则第一条为规范和加强公司档案管理,保护公司档案的完整性、保密性和可追溯性,提高工作效率和信息化管理水平,特制定本制度。
第二条本制度适用于公司范围内各类纸质档案和电子档案的管理,包括全公司内的档案管理机构、各相关部门、各级管理人员、全体员工及有关外部机构和人员。
第三条公司档案的管理遵循依法、规范、安全、高效的原则,强调档案管理的科学性、合理性、规范性和透明度,维护公司档案的价值和利益。
第四条公司档案管理按照分类、鉴定、归档、检索、传递、保管、销毁等环节进行,确保档案的准确、及时和恢复性管理。
第二章档案管理机构第五条公司设立档案管理机构,具体管理档案工作,负责全公司档案管理的组织、协调和督导,属于公司管理层次。
第六条档案管理机构负责统筹公司档案传统和数字化管理、文献档案和业务档案、档案保管和档案利用,保证公司档案工作的顺利进行。
第七条档案管理机构设立专门档案管理员,经过档案管理培训,具备一定的专业技能和管理能力,维护公司档案的权益。
第八条档案管理机构设立档案管理委员会或工作组织,进行档案管理工作的讨论、研究和决策,根据实际情况确定档案管理的具体措施和方案。
第三章档案管理职责第九条公司档案管理机构负责公司档案管理制度的设计和实施,管理档案管理工作的规章制度和技术标准。
第十条公司各级管理人员负责全公司档案管理工作的推动和落实,履行档案管理的领导责任,保障档案管理的正常运转。
第十一条公司各相关部门负责本部门档案的管理,按照公司档案管理制度和要求进行档案管理工作,维护本部门档案的完整性和安全性。
第十二条公司全体员工负责本人档案信息的准确、完整和及时更新,按照公司档案管理要求进行档案管理工作,确保公司档案的信息化管理。
第四章档案管理流程第十三条档案管理流程包括档案采集、归档、检索、传递、保管、销毁等环节,在档案管理制度规定范围内进行。
第十四条档案采集包括新建档案、收集档案、整理档案、分类档案等工作,确保公司档案的信息全面和完整。
公司(企业)档案管理制度一、目的与原则企业档案管理制度的建立,旨在规范企业内部文件资料的归档、保管与使用,确保档案的完整性、安全性及可追溯性。
该制度遵循合法、真实、完整、保密的原则,以实现档案资源的合理开发和有效利用。
二、档案分类与归档1. 档案分类:根据内容性质和管理需要,将档案分为财务档案、人事档案、合同档案、技术档案等类别。
2. 归档要求:所有文件资料应当在活动结束后及时归档,并按照既定的分类标准进行整理。
三、档案整理与编号1. 档案应按照规定的格式进行整理,确保内容的清晰和易检索性。
2. 每份档案应有唯一的编号,便于管理和追踪。
编号规则需简单明了,易于理解和操作。
四、档案存储与保护1. 实体档案应存放在专门的档案室内,环境要求干燥、通风、防潮、防火。
2. 电子档案应备份至少两份,分别存储在不同的安全设备或地点,以防数据丢失。
五、档案借阅与使用1. 借阅档案需经过审批,非相关人员不得随意查阅档案。
2. 借阅时需填写借阅登记表,注明借阅日期、归还日期等相关信息。
3. 借阅者应爱护档案资料,不得涂改、撕毁或私自复制。
六、档案的销毁与转移1. 对于过期或不再具有保存价值的档案,应按照国家法律法规和企业规定进行销毁。
2. 重要档案如需转移至外部机构保管,应选择信誉良好的专业机构,并签订保密协议。
七、制度的执行与监督1. 各部门应指定专人负责档案管理工作,定期对档案进行检查和维护。
2. 企业应定期组织档案管理培训,提高员工的档案管理意识和能力。
3. 违反档案管理制度的行为,将视情节轻重给予相应的处理。
八、附则本档案管理制度自发布之日起生效,由企业管理部门负责解释和修订。
第一章总则第一条为了加强集团总部档案管理工作,确保档案的完整、准确、安全和有效利用,依据《中华人民共和国档案法》及相关法律法规,结合集团总部实际情况,制定本制度。
第二条本制度适用于集团总部及其下属子公司、分支机构的档案管理工作。
第三条集团总部档案管理工作应遵循以下原则:(一)集中统一管理原则;(二)依法管理原则;(三)便于利用原则;(四)安全保密原则;(五)科学规范原则。
第二章档案分类与归档第四条集团总部档案分为以下类别:(一)文书档案;(二)科技档案;(三)会计档案;(四)人事档案;(五)声像档案;(六)电子档案;(七)其他档案。
第五条档案归档应当遵循以下要求:(一)按照档案分类和归档范围进行归档;(二)归档材料应当完整、准确、清晰,符合档案归档标准;(三)归档材料应当按照档案形成时间顺序排列;(四)归档材料应当经过档案管理人员审核,确保档案质量。
第三章档案收集与整理第六条档案收集应当遵循以下要求:(一)按照档案分类和归档范围进行收集;(二)及时收集集团总部及其下属子公司、分支机构形成的档案;(三)对归档材料进行审查,确保档案的真实性、完整性和准确性;(四)对收集到的档案进行整理,使其符合档案管理要求。
第七条档案整理应当遵循以下要求:(一)按照档案分类和归档范围进行整理;(二)对档案进行编号、编目,建立档案目录;(三)对档案进行分类、编目、整理,确保档案的系统性、完整性和准确性;(四)对档案进行数字化处理,提高档案的利用率。
第四章档案保管与保护第八条档案保管应当遵循以下要求:(一)按照档案保管期限和重要程度进行分类存放;(二)对档案进行定期的检查和维护,确保档案的安全;(三)对档案库房进行温湿度控制,防止档案霉变、虫蛀;(四)对档案进行防火、防盗、防潮、防尘、防紫外线等安全措施。
第九条档案保护应当遵循以下要求:(一)对档案进行定期消毒,防止细菌、病毒等生物污染;(二)对档案进行修复和保护,延长档案使用寿命;(三)对重要档案进行备份,确保档案的完整性和安全性;(四)对档案进行数字化转换,提高档案的利用效率。
档案管理办法第一节总则第一条为规范档案的管理工作,有效地保护和利用档案,根椐中华人民共和国档案法以下简称档案法等国家有关法律、法规的规定,特制定本办法;第二条档案管理由集团行政部归口管理,集团档案室具体负责本办法的实施;第三条集团设立档案室,各类档案均应移交档案室统一保管,集团各部门及成员企业设档案管理员;第四条本办法所称的档案,系指集团自成立以来主要职能活动和员工在各种职务活动中形成的、对员工个人、集团、社会具有保存价值的文字或书面材料,包括文书档案、科技档案、会计档案、人事档案、声像档案、安全监察档案、特殊文件证书等、边沿档案等;第二节档案的收集整理第五条根据集团特点,档案收集应采用“集中与分散相结合”的方式;第六条档案的收集整理应参照集团档案分类大纲进行档案分类设置详见附表;第七条各成员企业应具体负责本公司的档案收集整理;行政文书类档案由公司档案员收集整理;工程技术类档案,由工程技术部门按照时间先后顺序收集整理,多部门协同完成的工程档案,由负责主体工程的部门收集整理;其他业务类档案,原则上均为谁形成谁收集整理,但某类档案资料极少,且专业性不强的,可将档案资料交到公司档案员处整理;第八条应当立卷归档的材料应收集齐全,并进行整理、立卷,定期交本单位档案机构或者档案工作人员集中管理;任何人都不得据为己有或者拒绝归档;第九条档案整理:1、整理原则:遵循档案形成规律,既保持资料之间有机联系,又区分不同保存价值;2、整理内容:包括修整、装订狭义、分类、排列、编号、编目、装盒;3、整理标准:分修整、分类、排列、装订的标准:▲修整常见有四种方式:A、修裱破损文件;修裱用粘合剂规定用方便胶固体胶,不得用浆糊或透明胶;B、复制字迹模糊或易褪变的文件;如传真件、圆珠笔书写文件等;复印件不易存档,但为了延长档案寿命,保存档案原内容,最好采用单面复印;C、超大纸张折叠,档案要求标准封面为A4型,超大纸张应折叠成与其它纸张相同型号,以便归档利用;D、去除易锈蚀的金属物;▲分类:又称组类,一般原则为:宜粗不宜细;应按照档案的基本分类方法,即:文书档案、专门档案包括会计档案和人事档案、科技档案、声像档案、边沿性档案进行档案分组;具体分类参照集团档案分类大纲;其中边沿性档案一般包括:大事记;组织机构沿革;数据汇编各机构企业证书号、注册资金数、每年员工变动情况、各项目占地面积或建筑面积等;人员换岗时的物品交接单、企业证书变更材料等;▲排列:按照问题或事由进行排列;此目的是为客观反映某一问题或事由的发生、发展、结束的全过程,可以进行快速查找,方便利用如电脑索引;另外,成套性文件材料也可集中排列;如某些事由形成的文件彼此间联系较松散,但这些事由间则有着较密切的联系,则将这较松散的文件按照相关事由进行排列;如公司名称或其他变更、兼并之类的档案,同一工程项目各种前期手续等;▲装订:狭义上的装订,指单纯的用线或固体胶进行装、粘;应注意三个问题:A、装订的前后顺序:同一件文档根据所具有的形式不同分为五种顺序:◆正本前,定稿后;◆正文前,附件后;◆原件前,复制件后;◆转发文前,被转发文后;◆复文批复在前,来文请示在后;B、装订方法:◆5页以下用固体方便胶粘,不用胶水和浆糊;◆5-40页的,用缝纫机或针线手装;;◆40页以上的,则用三孔一线法进行装订,以不压字为主,前后不用加封面、备考表;C、装订位置:用固体胶粘一般应以左侧齐为主;用针线手缝或缝纫机则装在文件左上侧位置长约三四厘米;用三孔一线法进行装订则在文件左侧中部位置;第十条档案收范围凡是记述和反映本集团、公司生产经营、形象塑造、重大活动等具有保存价值的文字资料包括党群工作、董事会、监事会、行政管理、经营管理、生产管理、产品管理、科技管理、基建管理、设备管理、会计管理、人事管理等工作中形成的、办理完毕的特殊载体等不同形式形成的历史记录均属归档范围;1、文书档案公司筹建设立资料、企业发展规划、方针目标、经营决策、经济分析、可行性报告、项目建议书、请示与批复、会议纪要、大事记、各种计划、年报、外来文件资料、函、请柬等、公司章程、合同协议、制度办法、机构调整、职务任免、企业文化或形象策划等党工团行政、生产经营销售类文件通知资料;集团、公司召开各类工作会议资料、各种工作升级达标考核资料、员工外出培训、会议考察、学术研究带回的文件资料等、劳动定员、定额调配、劳动保护、安全管理、员工安全教育、工伤事故处理、环境保护、检测控制、排污治理、创优申请、规划、措施、成果申报、批准、评定、转售、奖状、奖章、注册商标,等等;2、设备仪器⑴自制设备、技术调查报告、设备方案、图样及计算材料、设备组装、调试、运行、记录、检测报告、设备安装使用说明、开工校验签单、技术项目攻关记录、成果报告、操作规程、维修保养、大修记录、事故分析与处理结果、设备报废报告与批复等文件材料;⑵外购设备设备仪器购置申请报告、来往信函、批复、设备技术、计算材料、设备订购协议合同、随机图册、说明书、合格证、装箱单、备件目录、软件系统、设备安装规程、设备安装、运行改造、保养维修、事故记录、设备开箱校验汇签单、索赔资料、设备停用、转售、报废、批准文等;3、工程技术档案⑴工程施工前期文件、请示、批复资料、图纸、工程预算、施工合同、协议及来往文件、开工报告、施工许可证、施工图会审记录、施工设计方案、计划、设计变更、工程更改通知单、图表、照片、地质勘探、工程校验材料;⑵工程验收文件资料图纸、工程质量鉴定、重大质量事故、缺陷及遗留问题、报告分析、全套土建、电器、管网、竣工图、总结、消防验收工程验收结论、工程结算及审批文件、与工程连体的设备安装文件资料、工程维修、改建、扩建形成的文件、图纸资料;4、会计档案经营活动中形成的各种凭证、帐簿、报表、报表分析、其他有关会计移交、保管、销毁、清册等;5、人事档案:个人应聘应交表格、资料、岗位变更手续、晋职降职记录、奖惩记录、定期考核与考评报告、个人政审、党工团申请书、志愿书、审批报告及登记表等资料;6、审计部各种审计报告、审计材料、审计凭据等资料;7、特殊载体档案上级领导视察题词、字画、赠品、照片及底片、录音录象带、光盘、奖状、奖杯、证书锦旗;本单位生产、经营、销售、宣传及职工文化生活中产生的声像材料;第三节保存第十一条档案室应根据档案法和本办法的要求,对归档资料进行筛选、归卷和编目定卷等工作,并分类、编号、编目、入柜保管,严防霉变、鼠咬、虫害等造成档案的残缺;第十二条存档资料份数:普通要求一式三份一份有领导签字的原始稿,二份打印出的正式稿,特殊类别除外,并分别装订成甲乙两卷;甲卷内含原始稿和一份正式稿归交档案室,乙卷内含一份正式稿归交所在单位档案管理员备查;第十三条档案的保存期限分为短期和永久;临时资料实行短期保存,其它资料一律长期保存;第四节借阅第十四条需借阅档案的人员,应填写档案借阅审批单,办理档案借阅审批手续;第十五条借阅档案类型及借阅方式与审批人的对应关系为下表:第十六条档案的借阅、查阅应按下列规定执行:1、查借阅人应填写档案借阅审批单,并按下述规定完备手续后,方可查借阅;2、文件资料类档案,查阅人员经所在单位负责人签字批准后,由集团档案主管领导审核同意后方可到档案室借阅;3、技术人员查阅技术资料类的,需经项目经理签字,所在单位负责人批准后,方可查阅;4、财务人员查阅财务资料的财务,需经本单位财务负责人签字并经单位负责人批准后,方可查阅;5、档案原件原则上不外借,特殊原因需经董事长同意;如需复印的,需登记详细并记录须带出原件原因,经档案室同意后并写明归还期限方可带出;归还时双方要当场清点;6、原则上不准外单位人员查借阅公司档案资料,特殊情况必须由董事长审批;7、凡借阅档案不按程序办理审批手续者,档案室应拒绝办理;各成员企业办公室负责本单位所有人员借阅资料手续的办理与监督;8、档案资料如出现被损坏缺页丢失等情况,当事人应立即向档案管理员和公司主管领导报告,分清责任后视严重程度做出处理,对隐瞒不报者,发现后应严肃处理;9、查借阅人所在单位负责人必须对查阅种类档案进行严格审批,并对产生的后果负责;第十七条档案原件借出的有关规定:1、借阅人将原件借出的,必须在借阅审批单上注明归还日期;若到归还日而未归还者,集团档案室对借阅人进行30元/次的罚款,并督促其尽快归还,否则,每按规定逾期三天,罚款增加一倍,依此类推;同时,在集团内通报借阅人和批准人;2、借阅人若将原件借出而无正当理由地丢失或归还复印件,统一按丢失档案进行处罚:能补办原件的尽量补办原件,若补办不到原件的,将视档案的重要程度进行每份100元至1000元的罚款,并进行通报;第五节档案管理第十八条集团档案室对成员企业档案管理应进行不定期检查,检查主要内容为:1、是否按规定收集档案并按规定的整理标准进行整理;2、档案保管条件是否已危及档案安全;3、执行制度是否严格,是否有可能造成档案损毁或遗失;4、是否有发现档案破损、变质、下落不明或泄密等情况,未及时采取有效防治措施;5、是否有拒不向本单位档案部门移交应当立卷归档的文件材料;6、科研成果、产品试制、基建工程或其他技术项目鉴定验收时,未按规定验收档案,致使档案残缺不全的;7、借阅档案未按规定及时归还,且屡催不还的;8、在保管或利用档案中涂改、撕毁、丢失档案的,借原件还复印件的;9、其它可能导致档案损毁的行为;违反上述9个方面其中之一的,要求当事人、部门或公司立即整改,问题较为严重的或屡教不改的要上报集团董事会处理;第十九条集团总部各部门、各成员企业每年1月份上报上年度案卷总目录,每月15日前上报本部门、本公司上月档案收集情况,填写档案收集目录表和遗失档案备案表附后,并将两表报至集团档案室可用电脑操作或网络进行,逾期不报者一次罚款20元,并在集团内通报;第二十条各公司档案员必须认真登记其他部门所交档案见附表:日常档案收到登记表,并要求上交档案的人员在登记表中签字,若发现此表主要项目未登记完全的,则参照第十条进行处罚;第二十一条各公司档案向集团档案室移交时间一般定为每年的四月份进行;逾期不交或未交完整者,对公司经理在全集团范围内通报批评;第二十二条档案室应严格执行保密制度,做好档案密级的划控和守密、解密工作,严防泄密事件发生;第二十三条对绝密类文件资料、科技专利档案等,档案室应单独登记,分密级入柜,并妥善保管,严防失、泄密事件的发生;第二十四条凡已归档的文件资料,任何人不得擅自复印、摘抄、涂改等;第二十五条董事长或集团总裁可视情况下令封存全部或部分档案资料;第六节附则第二十六条档案管理人员调离工作岗位时,应将本人管理的档案按本办法的规定移交、清退,未办理完成移交、清退的不能调离;第二十七条本办法解释权归集团行政部,集团档案室具体负责本办法的实施;第二十八条本办法自发布之日起施行;。
公司文件档案管理制度一、总则为规范公司文件档案管理工作,提高档案管理效率和安全性,依据相关法律法规和公司管理制度,制定本档案管理制度。
二、档案管理范围本制度适用于公司所有部门、单位的文件档案管理工作,包括纸质档案和电子档案。
三、档案管理职责1.公司文件档案管理部门负责整个公司的档案管理工作,包括档案的采集、整理、归档和借阅等工作。
2.各部门负责本部门文件档案的管理工作,保证文件档案的完整性、真实性、保密性和可查性。
3.公司领导负责档案管理工作的监督和检查,确保档案管理工作的顺利进行。
四、档案管理流程1.档案采集:各部门每天定时将产生的文件进行采集,分门别类整理。
2.档案归档:对已整理好的文件进行归档,按照文件的类型、重要程度进行分类存放。
3.档案借阅:员工需要查阅档案时,填写借阅申请表格,经过部门主管审批后方可查阅。
4.档案销毁:对于已经过期或无用的档案,按照相关规定进行销毁处理。
五、档案管理原则1.真实性原则:对于档案内容应真实准确,不得篡改或隐瞒任何信息。
2.保密性原则:对于需要保密的档案应加密存放,避免泄露。
3.可查性原则:对于需要查阅的档案应方便员工进行查询。
4.整理规范原则:文件档案的整理应按照一定的序列和规范进行,便于管理和查阅。
5.保护原则:对于重要档案应加强保护,防止遭到损坏或丢失。
六、档案安全保护1.对于电子档案,设置密码进行保护,定期备份数据,防止数据丢失。
2.对于纸质档案,设置保险箱或密封柜进行保护,避免被人非法取阅。
3.严格控制档案的借阅权限,避免档案泄露。
4.定期检查档案的存放状态,保持档案的完好性。
七、违规处理对于违反档案管理制度的行为,公司将视情节轻重给予相应的处理,包括警告、记过、记大过等处罚。
八、附则1.本档案管理制度经公司领导批准后施行,如有需要修改,须经公司领导同意后方可调整。
2.本档案管理制度解释权归公司领导层所有。
以上为公司文件档案管理制度,各部门和员工要严格遵守,确保公司档案管理工作顺利进行。
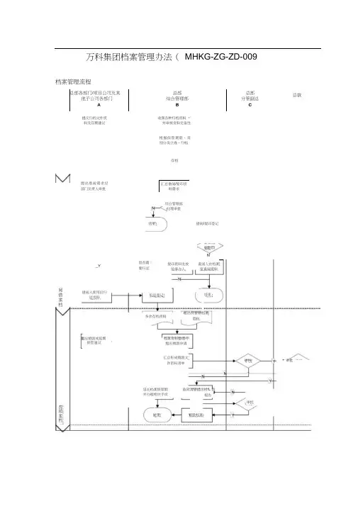
万科集团档案管理办法( MHKG-ZG-ZD-009档案管理流程 总部各部门/项目公司及其总部总部 他子公司各部门综合管理部分管副总ABC总裁提交归档文件资 料及存期建议收集各种归档资料 *L并审核资料完备性根据保管期限、类 别分类立卷、归档存档提出借阅需求经 部门负责人审批汇总借阅/复印资料需求综合管理部 经理审批结束 借阅/复印登记复印N_Y归还登记审核 结束 查阅人在档案 室查阅资料复印资料发放 给承办人借阅人使用后归还资料是否需H 要归还阅 借 案 档 毁销案档多余存档资料结束超出保管期档案资料提出销毁或延期保管建议J档案资料整理并 提出销毁申请汇总形成销毁文 件资料清单延长档案保管期 并办理相关手续 造具清册提出销L 毁报告 Hl销毁档案* 审批审批1.目的为了有效的保护和利用档案,充分发挥公司历史资料的作用,规范公司档案管理,特制定本制度。
2. 适用范围万科控股集团有限公司及下属各控股子公司。
3. 定义:4. 职责:4.1. 综合管理部4.1.1. 负责收集、整理、立卷、鉴定、保管公司的所有文书档案。
4.1.2. 负责对档案的借阅进行审批、登记管理。
4.1.3. 负责档案销毁申请的提出及审批后的档案销毁执行。
4.2. 集团各职能部门及各子公司4.2.1. 负责收集、整理、立卷、鉴定、保管与本部门/子公司业务有关的所有文书档案。
4.2.2. 负责对与本部门/子公司业务有关的文书档案销毁申请的审核。
4.2.3. 负责在本部门/子公司阶段业务结束后将有关重要文书档案移交集团综合管理部。
5. 程序和内容:5.1. 档案立卷范围5.1.1. 公司成立所形成的一切文件。
5.1.2. 公司章程类文件。
5.1.3. 公司管理规章制度。
5.1.4. 重要会议记录、会议纪要。
5.1.5. 经营计划、工作总结;5.1.6. 意向书、合同、协议、立项报告及可行性报告。
5.1.7. 重要的来往信函。
5.1.8. 一切与公司业务、技术、项目有关的资料。
★★★★★中国石油天然气集团公司档案工作规定第一章总则第一条为规范中国石油天然气集团公司(以下简称集团公司)档案工作,加强档案业务建设,发挥管理职能,根据《中华人民共和国档案法》、《企业档案管理规定》等有关法律法规,制定本规定。
第二条本规定适用于集团公司总部机关及所属企事业单位(以下简称各单位)。
第三条本规定所称档案是指各单位在生产建设、科学研究、经营管理等各项工作活动中形成的,具有查考利用价值的,并且经过专门保管机构整理后集中保管的各种载体的原始记录。
第四条档案是各单位资产的重要组成部分,档案工作是各单位生产、经营和管理的基础工作。
集团公司档案工作实行统一领导、分级管理的原则,维护档案完整与安全,坚持资源整合和资源开发,为各项工作提供有效服务。
第二章档案管理机构和人员第五条集团公司办公厅是档案工作的归口管理机构,其主要职责是:(一)负责宣传贯彻国家有关档案工作的法律、法规和方针政策,组织制定集团公司档案工作的各项管理制度。
(二)制定和实施集团公司档案事业发展规划和年度计划,对集团公司档案工作实行统筹规划和宏观管理。
(三)组织、指导、检查、监督、协调各单位档案业务工作。
(四)负责总部机关档案的收集、整理、鉴定、保管、统计和提供利用。
指导总部机关各部门、临时项目组和重大活动组织机构文件材料的形成、积累、整理及归档工作。
(五)负责组织协调集团公司档案教育、档案宣传、档案科学技术研究和档案业务的交流与培训工作。
(六)负责档案信息化建设。
(七)负责档案编研工作。
第六条各单位档案工作机构的基本职责是:(一)负责宣传贯彻国家有关档案工作的法律、法规和方针政策,执行集团公司档案工作的各项管理制度。
(二)制定和实施本单位档案工作规划和计划。
(三)负责本单位档案的收集、整理、鉴定、保管、统计和提供利用。
指导本单位各部门、临时项目组和重大活动机构文件材料的形成、积累、整理及归档工作。
对所属单位的档案工作进行监督、检查、指导和考核。
公司档案正本管理制度第一章总则第一条为规范公司档案正本管理工作,保证公司档案资料的完整、准确和安全,提高公司档案管理的科学化和标准化水平,特制定本管理制度。
第二条公司档案正本管理制度适用于公司各部门和单位的档案正本管理工作。
第三条公司档案正本管理应遵循原则有序性、保密性、权责分明、规范性、安全性和便捷性的原则。
第四条公司档案正本管理应实现以下目标:确保档案正本的准确性和完整性;保护档案正本的安全性和完整;提高档案管理效率和效果。
第二章档案正本管理职责第五条公司档案管理部门负责公司档案正本管理工作的组织、指导和监督。
第六条公司各部门和单位负责本部门和单位档案正本的管理工作,并按照档案管理部门的要求,及时上交、存档、更新和销毁档案。
第七条公司各部门和单位应指定专门的档案管理人员进行档案管理工作,并明确工作职责和权限。
第三章档案正本管理流程第八条公司档案正本管理流程包括:档案正本的制作、整理、归档、存档、更新、借阅、调阅和销毁等环节。
第九条公司各部门和单位应按照档案管理部门的要求,制定档案正本管理流程,并严格执行。
第十条公司档案管理部门应根据公司的需求,及时更新和完善档案正本管理流程,保证其科学性和适用性。
第四章档案正本管理制度第十一条公司档案正本管理制度包括:档案正本管理责任制度、档案正本管理规定、档案正本管理章程、档案正本管理程序和档案正本管理制度改进机制。
第十二条档案管理责任制度应包括公司领导对档案管理工作的领导和监督责任,各部门和单位对档案管理工作的责任和义务,档案管理人员对档案管理工作的责任和义务。
第十三条档案管理规定应包括档案的分类、整理、归档、存档和销毁等具体管理规定。
第十四条档案管理章程应包括档案管理制度的制定和实施程序,各部门和单位档案管理的要求,档案管理工作的评估和监督。
第十五条档案管理程序应包括档案正本管理流程的具体步骤和操作流程。
第十六条档案管理制度改进机制应包括对档案管理工作的评估和监督,对档案管理制度的及时修订和完善。
公司档案归档管理制度第一章总则第一条为规范公司档案管理工作,提高档案管理效率,确保档案的完整性、可靠性和保密性,制定本制度。
第二条公司档案管理制度适用于公司各部门,包括全体员工。
第三条档案管理工作必须遵循法律法规和公司相关规定,坚持档案管理的原则和制度,建立科学的档案管理制度,做到系统完整、规范有序。
第二章档案管理制度第四条公司建立健全档案管理制度,包括档案的采集、整理、编制、管理、利用和归档。
第五条公司各部门要建立自己的档案管理制度,并按照公司的统一要求进行管理。
第六条档案管理由专门的档案管理部门负责统一管理,各部门配合协助。
第七条公司要建立档案管理系统和电子档案管理系统,确保档案信息的存储和检索。
第三章档案管理流程第八条档案管理分为采集、整理、编制、管理、利用和归档六个阶段。
采集阶段:各部门负责档案的采集工作,包括纸质档案和电子档案的采集。
整理阶段:对采集到的档案进行分类整理,便于管理和利用。
编制阶段:对档案进行编目、编号等工作,建立档案目录。
管理阶段:建立档案管理系统,确保档案的保密性和完整性。
利用阶段:根据需要对档案进行检索、提取等工作,方便员工查阅使用。
归档阶段:根据档案管理制度要求,及时将档案进行归档,确保档案的安全保存。
第四章档案管理制度操作规范第九条档案管理人员要经过专门培训,熟悉档案管理制度和操作规范,确保档案管理工作的规范性。
第十条档案管理人员要保密档案信息,严格按照规定的权限查阅、提取和处理档案。
第十一条档案管理人员要定期检查档案的完整性和安全性,确保档案的长期保存。
第五章档案管理制度的监督与评估第十二条公司领导要重视档案管理工作,建立健全档案管理监督机制,定期对档案管理工作进行评估。
第十三条对档案管理工作不符合要求的部门和个人,要及时纠正,确保档案管理工作的正常开展。
第六章附则第十四条本制度的解释权归公司档案管理部门所有。
第十五条本制度自发布之日起生效。
文件档案管理制度条例制度,是大家约定俗成的规矩,对于公司的文件档案管理,人员的工作管理需要依靠制度的规范执行。
那么,大家知道制度的格式吗?下面是由作者给大家带来的文件档案管理制度条例7篇,让我们一起来看看!文件档案管理制度条例篇1为使公司安全生产文件管理制度化、规范化、科学化,使得每次安全生产检查能够有确切可以查阅的资料和记录,充分发挥各项安全记录文件在安全生产中的重要作用,根据国家相关规定,结合公司实际情况,特制定本制度。
安全文件管理目标及内容:1、安全管理各项台账要有专门的存放地点,并由专门人员进行管理。
2、要对文件的内容、份数、标题等逐一核对,如发现不符应及时向上级报告。
3、应及时送交领导,不要挤压。
4、应及时登记编号、分类整理并存档,做好详细记录。
5、保存时,要保持文件的完整性。
6、需上报的文件必须经过负责人及法人的审核、签字批准后方可上报,文件上必须详细写明文件标题、主送单位、经办人等。
7、存档人员应及时分类整理、存档,并统计编号、编制目录等,以方便查阅。
8、存档时,要求把文件的批复、正本、底稿、主件、附件收集齐全,保持文件、材料的完整性。
9、传阅文件应严格遵守传阅范围和详细规定,不得将有密级文件带回家里阅读或随身携带到公共场所。
10、借阅时要明确责任人借阅时间和归还时间。
借阅人必须做好保密管理,不得翻印和复印,不能转借他人。
11、对于不具备存档和存查价值的文件应填写《文件销毁清单》,经安全科长批准后,可以销毁。
文件档案管理制度条例篇2(一) 质量文件包括各类文件、手册、作业指导书,有关标准、规范、规程,试验检验质量活动记录等。
(二) 建立收发文件记录,建立质量体系文件清单,及时收集整理质量活动记录(样品台帐、试验记录、试验报告、试验台帐等)。
(三) 质量文件由资料员建立档案分类妥善保管。
(四) 工程试验检测资料,由资料员随着工程进展及时整理并负责归档保管,工程竣工后移交技术部门统一归档上缴项目部。
档案管理岗位职责及要求(10篇)档案管理岗位职责及要求(篇1)1、负责修订完善公司档案管理制度和工作流程,实现规范化管理;2、负责公司及有关公司各类归档文件、资料、档案的收集、整理、分类、编目、保管、借阅、销毁、利用、开发等,进行科学系统的管理与落实,确保档案工作科学有效;3、定期检查旧档案,确保档案材料安全;4、积极开展档案知识宣传与辅导工作,增强各部门及所属单位员工的档案意识与档案工作能力。
档案管理岗位职责及要求(篇2)1、制定档案管理工作流程、制度、要求,并贯彻实施;2、负责指导工程项目资料、图纸等档案的接收、清点、登记、发放、归档、管理工作;3、负责指导施工过程中的技术变更、洽商记录、会议纪要等资料归档工作;4、负责指导备案资料的填写、会签、整理、报送、归档工作;5、负责公司存档的资料移交工作;6、监督下属项目公司档案管理工作。
档案管理岗位职责及要求(篇3)主要职责如下:一、认真贯彻执行国家有关档案工作的法律法规和方针政策,建立健全公司各部门(单位)档案管理规章制度。
二、负责对公司各部门(单位)档案资料管理培训。
三、负责对公司各部门(单位)资料员档案管理考核。
四、负责对各部门(单位)资料员、专管员档案资料管理的监督、检查、指导工作。
五、负责管理公司各部门(单位)的档案资料的统一管理,积极探索提高档案管理的业务技术水平。
六、负责公司行政文书和工程资料档案的分类、立卷收集和查存借阅工作七、负责公司各部门(单位)工程资料、技术资料、文书档案电子文档的输录及档案资料电子查询平台的刷新维护工作工作。
八、负责公司各部门(单位)用印存档的监督使用管理工作。
九、负责各类合同、决算,变更、协议,纪要、判决书、执行款项等复印分发相关部门工作。
十、负责工程合同、决算、检测报告、竣工报告、质保金等工程重要信息的扫描后制作链接工作。
十一、负责采供订货合同的扫描及装订成册工作。
十二、负责对各类检测仪器仪表的使用管理、维护检测及费用分摊工作。
公司档案保存管理制度规定一、目的与范围制定本制度的目的,在于规范本公司的档案管理工作,确保档案资料的完整性、安全性、可用性和保密性。
本制度适用于公司所有部门及员工的档案保存和管理行为。
二、档案分类与归档要求1. 按照档案的性质和用途,将档案分为财务档案、人事档案、合同档案、技术档案等类别,并明确各类档案的归档时间、保存期限和责任人。
2. 每份档案应包含完整的内容,如相关文件、附件、审批记录等,并确保信息的真实性和准确性。
3. 归档的档案应清晰标注档案编号、名称、日期等信息,便于检索和使用。
三、档案保存与保密1. 根据档案的重要性和保密等级,采取相应的物理和技术措施保护档案安全,防止档案遗失、损坏或泄露。
2. 对于涉密档案,实行严格的访问控制和权限管理,仅限授权人员查阅和使用。
3. 定期对档案进行维护和检查,确保存储环境的适宜性,防止因环境因素导致的档案损害。
四、电子档案管理1. 电子档案应备份至少两份,一份用于日常使用,另一份作为备用存档,存放在不同的存储介质或地点。
2. 建立电子档案管理系统,实现档案的数字化、信息化管理,提高档案检索效率和利用率。
3. 定期更新防病毒软件,确保电子档案不受病毒侵害,同时对重要数据进行加密处理,增强数据安全性。
五、档案借阅与归还1. 制定档案借阅流程,任何借阅行为都需经过审批,并由专人负责登记备案。
2. 借阅者应当爱护档案资料,不得随意涂改、折叠或损坏,使用完毕后应及时归还。
3. 归还的档案需由管理员检查确认无损后,方可完成归还手续。
六、档案销毁与转移1. 对于已经过期或不再具有保存价值的档案,应按照国家相关法律法规和企业规定进行销毁。
2. 销毁档案前需进行登记备案,并有相关负责人审批。
3. 对于需要移交外部机构或长期存储的档案,应按照相关规定办理转移手续,并确保档案在转移过程中的安全。
七、监督与责任1. 公司设立专门的档案管理部门或指定专责人员,负责监督和检查档案保存管理制度的执行情况。
总公司档案室管理制度档案室的管理首先需要明确的是档案分类标准。
根据企业的具体情况,档案可以按照性质、来源、使用频率等多个维度进行分类。
例如,可以将档案分为财务档案、人事档案、合同档案等大类,每个大类下面再细分为具体的小类,以便工作人员快速定位和检索。
紧制定档案收集与归档流程是基础工作之一。
所有文件在产生之初就应明确其归档的时间、责任人以及归档方式。
具体操作时,应当由各部门负责人初审后,交由档案室专职人员进行复核,并最终归档。
这一过程需严格遵守时间规定和质量要求,保证档案资料的及时更新和准确性。
对于档案的存储环境也有着严格的要求。
档案室应设置在干燥通风、光线适宜的地方,避免高温、潮湿及直接日光照射,以防档案材料老化、变形。
同时,应采用专业的防火、防潮设施,并定期对存储环境进行检查维护,确保档案的物理安全。
在数字化时代背景下,电子档案管理同样不可忽视。
企业应建立电子档案管理系统,对电子文档进行分类、编号、存储和备份。
同时,要确保系统的数据安全,采取有效的技术措施防止数据泄露或被非法篡改。
对于档案的借阅与归还制度也是管理中的重点环节。
制定清晰的借阅流程,明确借阅人的资格、借阅手续、借阅期限以及续借条件等。
归还时,应有专人负责检查档案的完整性和是否有损坏,确保档案资源的循环利用不受影响。
最后但同样重要的是档案的保密与安全管理。
依据国家相关法律法规和企业的实际需求,制定不同级别的保密措施。
对于涉及商业机密等敏感信息的文件,应实行严格的访问控制和监督机制。
定期开展档案安全培训,提高员工的安全意识和责任感,从源头上预防信息泄露风险。
文书档案收集整理归档规范(最终版)第一篇:文书档案收集整理归档规范(最终版)文书档案收集整理归档规范范围本规范对公司文书档案的定义、归档范围、归档要求和整理归档程序等作了明确的规定和要求。
本规范适用于集团公司所有文书档案的管理。
2 文书档案的归档范围2.1 文件材料的归档范围反映公司主要职能活动和基本历史面貌的,对公司具有利用价值及凭证价值的文件材料;其他对公司发展具有查考价值的文件资料。
2.2 文件材料的不归档范围其他单位所发的不需本公司办理的文件材料(如其他单位所发的供本公司参阅的简报、抄阅件等);公司形成的无查考利用价值的事务性、临时性的文件资料;一般性文件的历次修改稿、各次校对稿;其他与本公司无关的文件材料。
2.3 各部门档案的归档范围2.3.1综合办a)公司章程文件:公司章程,公司设立、变更的申请、审批、登记以及终止、解散后清算文件等;b)股东会文件:股东会议记录、股东会议通知、股东出缺席会议记录、股东名册、股东印章等;c)董事会文件:董事就任书、董事会议记录、总裁(副)、总经理发文、批复、业务执行文件等;d)财年总计划、重要契约、诉讼文件、公司知识产权资料、公司历史沿革及重大事件记录等;e)重要会议的通知、报告、决议、总结、领导人讲话、典型发言、会议记录等;f)总经办日常工作文件:签呈、督办记录、来访接待记录等;g)其他具有保存价值的文件材料。
2.3.1.1 基本文件:人力资源战略、年度人力资源工作绩效目标、人力资源政策和管理制度、薪酬福利制度、奖惩制度、绩效管理制度等;2.3.1.2 人事业务具体文件:公司职员花名册、职员工资、人事档案、考核资料、招聘文件、招聘考试题目汇集、聘用通知书、劳动合同、晋升资料、任免文件等;2.3.1.3 人力资源部日常工作中产生的其他具有保存价值的文件材料;营销部a)销售管理策略和规划、年度行销计划与销售目标、市场及行业销售分析、销售预测、销售渠道的规划和建设、产品生命周期管理作业、定价政策文件等;b)经销合同、客户名单、客户订单和客户投诉受理文件、产品物流服务体系文件等;c)销售部日常工作中产生的其他具有保存价值的文件材料;成本部a)公司年度采购策略及绩效目标、采购计划、年度采购成本控制目标、新产品物料采购计划、各类采购合同(设备、包装材料、食品原材料)、进货渠道文件等;b)供应商资料、询比价资料、供应商品质管理年度策略和行动计划、新供应商的开发和认证计划、供应商评审和业绩考核、供应商采购价格的维护和应付账款的审核等;c)采购部日常工作中产生的其他具有保存价值的文件材料;工程技术部2.3.1.4 审计报告、审计作业流程、审计规划等;2.3.1.5 财务审计、绩效审计、纪检督察工作、专项审计相关文件等; 2.3.1.6 投诉、举报方面的相关资料;2.3.1.7 审计部日常工作中产生的其他具有保存价值的文件材料;文书档案收集整理归档规范1/5 Q/XZL G.15.C.GMO.S.002—2012/V0 财务部a)会计凭证类:原始凭证、记账凭证、汇总凭证,其他会计凭证。
档案管理制度(通用7篇)档案管理制度1第一条为了规范公司档案管理工作,保证档案的完整性及保密性,理顺工作程序,明确工作职责,杜绝资料流失,特制定本制度。
第二条档案管理机构及其职责1、公司档案工作实行二级管理,一级管理是指公司综合管理部的统筹管理;二级管理是指各部门的档案资料管理工作。
2、综合管理部档案管理员负责公司所有档案资料的统一收集管理,各部门的档案管理员负责本部门档案资料的使用管理。
3、档案管理人员要严格执行公司档案管理规定,认真细致地做好档案保管以及利用工作,充分发挥档案资料的作用。
4、综合管理部档案管理员有责任对二级档案管理工作进行监督和指导,每年对二级档案管理进行一次检查验收。
第三条归档制度1、凡是反映公司战略发展、生产经营、企业管理及工程建设等活动,具有查考利用价值的文件资料均属归档范围。
2、凡属归档范围的文件资料,均由公司集中统一管理,任何个人不得擅自留存。
3、归档的文件资料,原则上必须是原件,原件用于报批不能归档或相关部门保留的,综合部保存复印件。
4、凡公司业务活动中收到的文件、函件承办后均要及时归档;以公司名义发出的文件、函件要留底稿及正文备查。
5、业务活动中涉及金融财税方面的资料,由财务部保存原件;属于人事方面的资料,由人力资源部保存原件;属于工程建设方面的,由规划建设部保存原件。
以上部门应将涉外事务的复印件报综合管理部备案。
6、由公司对外签订的经济合同,应保留三份原件,综合管理部保存一份,财务部及合同执行(或签订)部门各保存一份。
特殊情况只有一份原件时,由综合部保存原件。
7、在归档范围内的其他资料,由经办人整理后连同有关资料移交综合管理部档案室。
部门需要使用的可复印或复制,归档范围外的由各部门自行保管。
第四条档案保管制度1、公司综合管理部设存放档案的专门库房,各部门应根据保存档案数量,设置存放档案的箱柜,并具备防火、防潮、防虫等安全条件。
2、归档资料要进行登记,编制归档目录。
中国华能集团公司档案管理规定第一章总则第一条为加强中国华能集团公司(以下简称集团公司)档案管理,进一步提高档案工作科学化水平,有效保护和充分利用档案信息资源,更好地为集团公司各项工作服务。
根据《中华人民共和国档案法》和国家档案局《企业档案工作规范》(DA/T42-2009)等相关政策、法规,结合集团公司实际,制定本规定。
第二条本规定适用于集团公司总部、直属单位、产业公司、区域公司、直管单位及基层企业(以下统称各单位)。
第三条本规定所称档案是指各单位在开展各项管理和业务活动中形成的具有保存价值的各种形式的历史记录。
第四条档案工作是各单位管理工作的重要组成部分,是维护集团公司经济利益、合法权益、历史面貌和宣传企业文化的重要基础工作,是各单位履行职责、开展业务的信息支持和保障。
各单位应维护档案的完整、准确、系统与安全。
第五条档案工作应实行统一领导、统一管理、统一制度、统一标准。
工作的特点和规律,做好档案利用信息反馈、利用效果记录,以获取较为系统集中或者有特殊价值的档案信息,做到被动服务与主动服务并举,提高档案信息利用效率。
第七章档案信息化建设第三十五条各单位应加强档案信息化建设,把档案信息化纳入本单位信息化建设规划,与企业信息化协调发展和同步建设,档案管理系统软件的配备应满足本单位档案工作的实际需要,并适应本单位信息化建设发展需要。
第三十六条各单位要根据档案保管和利用的实际需要,对重要档案实施数字化。
档案数字化工作按照《中国华能集团公司档案数字化实施办法》(办发(2012 )26号)执行。
第三十七条各单位应建立室藏档案数据库,充分利用现代化手段和先进技术管理档案,逐步实现档案的全文检索,推进集团公司档案信息网站建设,不断充实档案信息服务内容,逐步实现档案管理数据化和服务网络化,以适应集团公司档案信息化管理需要。
第八章奖惩第三十八条各单位应按照《中华人民共和国档案法》和集团公司有关规定,对在档案管理、档案信息开发、档案工作学术研究等方面取得优异成绩和做出重要贡献的人员给予表彰和奖励。