荷载计算实例
- 格式:xls
- 大小:25.50 KB
- 文档页数:2
梯形荷载公式(原创实用版)目录1.梯形荷载公式的概述2.梯形荷载公式的推导过程3.梯形荷载公式的应用实例4.梯形荷载公式的优缺点分析正文一、梯形荷载公式的概述梯形荷载公式,又称梯形载荷公式,是一种计算梯形结构在竖直方向上荷载分布的数学公式。
在工程设计、建筑结构分析等领域有着广泛的应用。
该公式能够帮助工程师快速准确地计算梯形结构在竖直方向上的荷载分布情况,从而保证结构的稳定性和安全性。
二、梯形荷载公式的推导过程梯形荷载公式的推导过程较为简单。
首先,假设梯形结构的上底长为a,下底长为 b,高为 h。
在竖直方向上,梯形结构可以被分为无数个小矩形,每个小矩形的高为 dx。
对于每个小矩形,其荷载可以表示为:dF = γ * dx,其中γ表示荷载密度。
将所有小矩形的荷载相加,即可得到梯形结构在竖直方向上的总荷载F。
由于每个小矩形的宽度 dx 在竖直方向上不断变化,因此需要对所有小矩形的荷载进行积分。
积分范围是从 0 到 b,即上底到下底的宽度。
因此,梯形荷载公式可以表示为:F = ∫[γ * dx],积分区间为 [0, b]通过积分求解,可以得到梯形荷载公式的解析解。
三、梯形荷载公式的应用实例在实际工程应用中,梯形荷载公式可以帮助工程师计算梯形结构的荷载分布情况,从而确保结构的稳定性和安全性。
例如,在设计桥梁、高楼等建筑物时,梯形荷载公式可以应用于计算楼梯、楼板等梯形结构的荷载分布,为工程设计提供重要依据。
四、梯形荷载公式的优缺点分析梯形荷载公式的优点在于推导简单,易于理解和应用。
同时,该公式能够较为准确地计算梯形结构在竖直方向上的荷载分布,为工程设计提供重要依据。
然而,梯形荷载公式也存在一定的局限性。
例如,在处理非梯形结构的荷载计算时,该公式无法直接应用。
此外,对于复杂的荷载分布情况,梯形荷载公式可能无法精确描述。
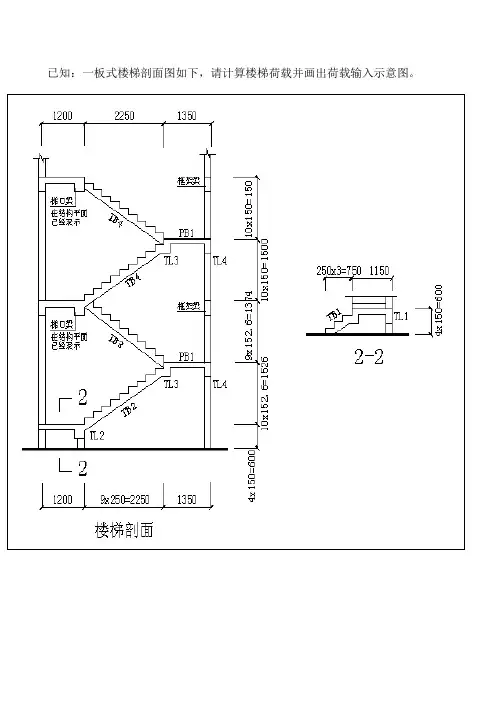
已知:一板式楼梯剖面图如下,请计算楼梯荷载并画出荷载输入示意图。
楼梯间的梁柱荷载计算钢筋混凝土重力密度:25 KN/m 3 , 楼梯活荷载:2.0 KN/m 2。
一、计算①梁的荷载作用在①梁上的荷载有上、下楼梯的各一半荷载,相当于一整条楼梯的作用力。
楼梯长度: )(7.21.5 2.2522m =+板厚 = 1/25板跨 = 2250/25 = 90 (mm)楼梯板产生的恒荷载:1)底板:2.7 × 1.1 × 0.09 ×25 = 6.68 (KN)2)三角形梯级:9 × (0.15 × 0.25)/2 × 1.1 × 25 = 4.64 (KN) 楼梯板总恒荷载=(6.68+4.64) × 1.2(抹灰系数)=11.32 × 1.2 = 13.6(KN)作用在①梁上的恒荷载沿长度分布=13.6/2.2 =6.2(KN/m)楼梯板产生的活荷载:楼梯板活荷载(长度取沿投影方向2.25m) = 2.25 ×1.1×2 = 5 (KN)作用在①梁上的活荷载沿长度分布=5/2.2 =2.3 (KN/m)二、计算梯间两小柱处的集中荷载上、下楼梯的各一半荷载,相当于一整条楼梯的作用力,还有梯间平台的自重和②梁的自重,通过②梁传递到两条小柱处,分别为集中恒荷载和集中活荷载。
集中恒荷载计算:1)梯间平台的恒荷载=1.35×2.2 ×0.09 ×25 ×1.2(抹灰系数)=8.02(KN)2)②梁的自重=0.18 ×0.3 ×2.2 ×25 ×1.2(抹灰系数) = 3.56 (KN) 3)小柱的自重=0.18×0.18×(1.5-0.3)×25 ×1.2(抹灰系数)=1.17 (KN)作用在小柱顶面的总恒荷载=梯间平台的恒荷载/2+一整条楼梯的恒荷载+②梁的自重=8.02/2 + 13.6 + 3.56=21.17 (KN)每条小柱分得的恒荷载=作用在小柱顶面的总恒荷载/2+一条小柱的自重=21.17/2 + 1.17=11.76 (KN)集中活荷载计算:楼梯间平台的活荷载=1.35 ×2.2 ×2=5.94 (KN)作用在小柱顶面的总活荷载=梯间平台的活荷载/2+一整条楼梯活荷载=5.94/2+5=7.97 (KN)每条小柱分得的活荷载=7.97/2 =3.98 (KN)三、计算梯间异型柱轴心处的集中荷载异型柱轴心处的集中总恒荷载=梯间平台的恒荷载/2+③梁的自重=8.02/2 + 3.56= 7.57 (KN)(③梁的自重同②梁的自重)每条异型柱分得的恒荷载=7.57/2 = 3.79(KN)异型柱轴心处的集中总活荷载=梯间平台的活荷载/2=5.94/2 = 2.97 (KN)每条异型柱分得的活荷载=2.97/2 = 1.49 (KN)用0厚度板法,荷载该输入多少?。
屋顶水箱荷载计算概述说明以及解释1. 引言1.1 概述本文将详细介绍屋顶水箱荷载计算的相关内容。
在建筑设计中,屋顶水箱是常见的用于储存雨水或供应生活用水的设施。
然而,在设计过程中,必须充分考虑到水箱所增加的额外荷载对整体结构的影响,以确保建筑物的安全性和稳定性。
1.2 文章结构为了系统地介绍屋顶水箱荷载计算,本文将分为以下几个部分进行论述:2. 屋顶水箱荷载计算:这一部分将首先阐述屋顶水箱定义及其在建筑设计中的作用。
接下来,我们将详细分析影响屋顶水箱荷载的因素,并介绍不同的计算方法。
3. 实例解释:本节将通过具体实例来解释和说明屋顶水箱容量测算以及荷载计算方法。
我们将选取两个不同情况下的实例,以使读者更好地理解如何进行实际计算。
4. 结果与讨论:在这一部分,我们将总结并讨论所得出的计算结果。
首先,我们会概括总结各个实例中的计算结果。
接着,我们将讨论水箱位置对荷载的影响,以及在水箱设计过程中需要注意的事项和建议。
5. 结论与展望:最后,我们将总结本文的主要结论,并展望未来可能进行的研究方向和改进措施。
1.3 目的本文旨在全面介绍屋顶水箱荷载计算的相关内容,帮助读者了解和掌握如何进行屋顶水箱荷载计算。
通过阅读本文,读者将能够更好地理解屋顶水箱的定义及作用,分析影响荷载的因素,并学会应用不同的计算方法。
同时,本文还将提供实例解释和讨论结果,以便读者更好地运用所学知识解决实际问题。
通过深入研究和分析,在设计过程中为确保建筑物安全稳定性提供参考建议和注意事项。
以上是“1. 引言”部分内容,清晰明了地介绍了文章目录结构中的各个小节概述、整体内容及目的。
2. 屋顶水箱荷载计算2.1 定义与作用屋顶水箱荷载计算是指对安装在建筑物屋顶的水箱产生的荷载进行计算和评估。
屋顶水箱常用于储存雨水或供应家庭用水等目的。
然而,由于水具有一定的重量,在未经适当计算和设计的情况下,其荷载可能会对建筑结构造成不利影响。
因此,进行屋顶水箱荷载计算是确保建筑结构安全可靠的重要步骤。
10米围挡风荷载计算摘要:一、围挡风荷载计算的重要性二、10米围挡风荷载计算方法1.风压值的确定2.风荷载系数的确定3.结构抵抗力的计算4.安全系数的考虑三、计算实例四、围挡风荷载计算的实用建议正文:一、围挡风荷载计算的重要性在建筑工程中,围挡风荷载计算是一项至关重要的任务。
它能帮助我们了解并评估风对建筑物、结构物以及围挡等设施的影响程度,以确保工程的安全性和稳定性。
特别是在我国,地域广阔,气候多样,风荷载对建筑物的影响更为明显。
因此,进行准确的风荷载计算,对于工程设计和施工具有重要意义。
二、10米围挡风荷载计算方法1.风压值的确定首先,我们需要根据工程所在地的气象数据,确定设计风压值。
设计风压值是根据当地气象台站多年观测数据计算得出的,一般采用50年一遇的风压值。
此外,还需要考虑风的阵风系数,以反映风荷载的瞬时性。
2.风荷载系数的确定风荷载系数是反映风荷载作用于结构物表面的分布情况的参数。
根据围挡的高度、形状以及表面粗糙程度等因素,选取合适的风荷载系数。
一般来说,10米高的围挡风荷载系数可参照国家相关规范取值。
3.结构抵抗力的计算结构抵抗力是指结构物承受风荷载的能力。
在进行风荷载计算时,需要根据围挡的结构形式、材料等因素,计算其抗风能力。
这包括构件的抗弯、抗剪、抗扭等抵抗力。
4.安全系数的考虑为了保证工程安全,风荷载计算时需要考虑安全系数。
安全系数是指在设计风荷载下,结构物的抵抗力需大于实际风荷载的作用力。
通常情况下,安全系数可取1.5~2。
三、计算实例以下为一个10米高围挡的风荷载计算实例:假设工程所在地设计风压值为ω=0.4 kN/m,风荷载系数α=0.8,围挡结构抵抗力σ=0.45 kN/m,安全系数k=1.5。
风荷载W=αωS=0.8×0.4×10×10=32 kN四、围挡风荷载计算的实用建议1.充分了解工程所在地的气象数据,包括历年最大风速、风向等,为风荷载计算提供依据。
洛阳顺驰洛南12#地项目商铺S-5一.楼、屋面恒荷载1.1,2#楼梯间:(地面砖楼地面)30厚0.6 kN/m2 (03J930-1-- 7/31) 30厚1:2.5水泥砂浆0.6 kN/m2100厚砼楼板 3.0kN/m220厚砂浆抹灰0.4 kN/m2----------------------------------------总=3.5 kN/m2 取3.5 kN/m22. 厨房、客厅、餐厅:(石材板楼地面)装修面层90厚 1.65 kN/m2 (03J930-1-- 11/32)100厚砼楼板 2.5kN/m220厚砂浆抹灰0.4 kN/m2----------------------------------------总=4.55 kN/m2 取4.6 kN/m2(120厚砼楼板取5.1 kN/m2)3.卧室:(石材板楼地面)装修面层90厚 1.65 kN/m2 (03J930-1-- 11/32)100厚砼楼板 2.5kN/m220厚砂浆抹灰0.4 kN/m2----------------------------------------总=4.55 kN/m2 取4.6 kN/m2(120厚砼楼板取5.1 kN/m2)4.卫生间:(地面砖楼地面)装修面层130厚 2.2kN/m2 (03J930-1-- 19/35)100厚砼楼板 2.5kN/m220厚砂浆抹灰0.4 kN/m2----------------------------------------总=5.1kN/m2,考虑找坡取5.5 kN/m2(120厚砼楼板取6.0 kN/m2)5.阳台:(地面砖楼地面)装修面层60厚 1.4 kN/m2 (03J930-1-- 19/35)100厚砼楼板 2.5kN/m220厚砂浆抹灰0.4 kN/m2----------------------------------------总=4.3kN/m2,取4.5kN/m26.平屋面、露台:8厚缸砖0.2 kN/m220厚1:4性干硬水泥砂浆0.4 kN/m20.15厚聚乙烯薄膜一层0.02 kN/m22层3厚SBS改性沥青防水卷材0.1 kN/m220厚1:2.5水泥砂浆0.4 kN/m220厚(最薄处)1:8水泥膨胀珍珠岩找2%坡 2.2 kN/m245厚挤塑聚苯乙烯泡沫塑料板保温层0.2 kN/m2100厚砼楼板 2.5 kN/m220厚砂浆抹灰0.4 kN/m2--------------------------------------------总=6.42 kN/m2 取6.5 kN/m2 7.不上人屋面(坡屋面):蓝灰色丽兰瓦0.4 kN/m2白灰砂浆卧瓦0.2 kN/m220厚1:2水泥砂浆0.4 kN/m245厚挤塑聚苯乙烯泡沫塑料板保温层0.15 kN/m215厚聚合物水泥砂浆0.3 kN/m23厚聚合物防水净浆0.06 kN/m22层3厚SBS改性沥青防水卷材0.1 kN/m220厚1:2.5水泥砂浆0.4 kN/m215厚1:2水泥砂浆0.3 kN/m2120厚砼楼板 3.0 kN/m220厚砂浆抹灰0.4 kN/m2--------------------------------------------总=5.7 kN/m25.7/cosa=7.0 取7.0 kN/m2二.填充墙荷载二层墙重:层高h=3.9m,加气混凝土砌块容重按7.0 kN/m3,内墙200厚,外墙250厚。
高大模板的确定和荷载计算方法一、高大模板的定义:根据《危险性较大的分部分项工程安全管理办法》(建质[2009]87号)和《建设工程高大模板支撑系统施工安全监督管理导则》(建质[2009]254号)规定:搭设高度8m及以上;搭设跨度18m及以上,施工总荷载15kN/m2及以上;集中线荷载20 kN/m及以上的模板支撑系统属于高大模板。
二、施工总荷载的计算方法:(一)荷载的组成施工荷载=永久荷载(钢筋砼自重+模板木方钢管的自重)×分项系数+施工均布活荷载×分项系数钢筋砼自重=板厚(m)×25KN/m3(25KN/m3为钢筋砼比重换算成KN/m3为单位,在计算均荷载时钢筋砼比重取值为25KN/m3。
)模板木方钢管的自重:0.3KN/m2(计算均荷载时取值为0.3KN/m2)施工均布活荷载:2KN/m2分项系数:永久荷载分项系数取1.2;施工均布活荷载分项系数取1.4(二)计算实例:(25×M+0.3)×1.2+2×1.4=15M=[(15-1.4x2-1.2 x0.3]/25=0.474米取整M=474mm,即板厚达到或超过474MM时,需要专家论证。
三、集中线荷载的计算方法:(一)荷载的组成集中线荷载=永久荷载(钢筋砼自重+模板木方钢管的自重)×分项系数+施工均布活荷载×分项系数钢筋砼自重=梁的截面积(m2)×26KN/m3(26KN/m3为钢筋砼比重换算成KN/m3为单位,在计算集中线荷载时钢筋砼比重取值为26KN/m3。
)模板木方的自重=梁截面模板的周长(m)×0.5KN/m2(计算集中线荷载时取值为0.5KN/m2)施工均布活荷载=梁宽m×3KN/m2分项系数永久荷载分项系数取1.2;施工均布活荷载分项系数取1.4(二)计算实例:1、梁高700,梁宽7001.2x[0.70x0.70x26+(0.70+0.7+0.70)*0.50]+0.70x3x1.40=19.488<20,不需论证。
4毫米钢化玻璃机械荷载
4毫米钢化玻璃的机械荷载取决于多个因素,包括玻璃板的尺寸、形状、支撑方式和应力分布等。
一般来说,机械荷载可以通过以下公式计算:
荷载 = 应力 × 面积
其中,应力可以通过以下公式计算:
应力 = 弯曲力 / 断面积
弯曲力可以通过以下公式计算:
弯曲力 = 弹性模量 × 断面积 × 弯曲曲率
断面积可以通过以下公式计算:
断面积 = 玻璃板厚度 × 玻璃板宽度
弹性模量是玻璃的材料属性,可以在材料手册或技术规格中找到。
弯曲曲率是玻璃板在受力时产生的曲率,可以通过力学分析或实验测量得到。
请注意,以上公式只是一个简化的计算方法,实际情况可能更加复杂。
因此,如果需要准确计算4毫米钢化玻璃的机械荷载,请咨询专业工程师或使用专业软件进行计算。
钢丝绳终端荷载计算公式钢丝绳终端荷载计算公式1. 引言钢丝绳在工程中广泛应用于吊装、起重、运输等领域。
钢丝绳的终端荷载计算是评估其承载能力的重要部分。
本文将介绍钢丝绳终端荷载的计算公式,并通过实例进行解释说明。
2. 钢丝绳终端荷载的定义钢丝绳终端荷载是指钢丝绳在受荷状态下,终端所承受的最大应力。
终端荷载的计算是为了确保钢丝绳在使用过程中不产生过载现象,从而保障工程的安全性。
3. 钢丝绳终端荷载计算公式基本公式钢丝绳终端荷载的基本公式为:P = D / A其中,P是终端荷载(N),D是绳线的断裂强度(N),A是终端面积(平方米)。
圆形截面钢丝绳终端荷载计算公式当钢丝绳的截面形状为圆形时,终端面积A可以根据以下公式计算:A = π * r^2其中,r是钢丝绳的半径。
其他截面形状的钢丝绳终端荷载计算公式对于其他不规则截面形状的钢丝绳,可以通过将其视为一系列规则截面的组合来计算终端面积A。
具体计算方法取决于钢丝绳的形状特征,可以利用数值方法或几何方法进行求解。
4. 实例说明假设某钢丝绳的断裂强度为1000 N,直径为10 mm,则终端荷载可以通过以下步骤计算: 1. 计算钢丝绳的半径:r = 10 mm / 2 = 5 mm = m 2. 利用圆形截面钢丝绳终端荷载计算公式计算终端面积:A = π * ()^2 ≈ m^23.利用基本终端荷载计算公式计算终端荷载:P = 1000 N / m^2 ≈ .59 N因此,该钢丝绳的终端荷载约为.59 N。
钢丝绳终端荷载的计算是确保工程中钢丝绳安全使用的重要部分。
本文介绍了钢丝绳终端荷载的计算公式,并通过实例进行了解释说明。
在实际应用中,需要根据钢丝绳的形状和特点选择合适的计算方法。
6. 注意事项单位的统一在进行终端荷载的计算时,需要保持计算公式中的物理量单位的统一。
通常情况下,强度单位使用牛顿(N),面积单位使用平方米(m^2)。
确保单位的一致性可以避免计算结果出现错误。
图为经过设计验算、符合设计要求的支模系统“稳如泰山”一、荷载计算1、箱梁荷载:箱梁钢筋砼自重F1=1.7×26 KN/m3×1.2=53.04KN/m22、施工荷载:取F2=2.5KN/m23、振捣混凝土产生荷载:取F3=2.0KN/m24、箱梁芯模:取F4=1.5KN/m25、胶合板:取F5=0.15KN/m26、方木:取F6=7.5KN/m2二、底模强度计算箱梁底模采用高强度胶合板,板厚t=20mm,胶合板方木背肋间距为300mm,所以验算模板强度采用宽b=300mm平面胶合板。
1、模板力学性能(1)弹性模量E=0.1×105MPa。
(2)截面惯性矩:I=bh3/12=30×23/12=20cm4(3)截面抵抗矩:W= bh2/6=30×22/6=20cm3(4)截面积:A=bh=30×2=60cm22、模板受力计算(1)底模板均布荷载:F= F1+F2+F3+F4=53.04+2.5+2.0+1.5=59.04KN/m2q=F×b=59.04×0.3=17.712KN/m(2)跨中最大弯矩:M=qL2/8=17.712×0.32/8=0.2 KN.m(3)弯拉应力:σ=M/W=0.2×103/20×10-6=10MPa<[σ]=11MPa胶合板板弯拉应力满足要求。
(4)挠度:从胶合板下方木背肋布置可知,胶合板可看作为多跨等跨连续梁,按三等跨均布荷载作用连续梁进行计算,计算公式为:f=0.677qL4/100EI=(0.677×17.712×3004)/(100×0.1×105×20×104)=0.49mm<L/400=0.75mm胶合板挠度满足要求。
综上,胶合板受力满足要求。
三、横梁强度计算横梁为10×10cm 方木,跨径为0.6m,中对中间距为0.3m。
单跨平板桥梁荷载计算实例一、工程概况。
假设我们有一座单跨平板桥,跨径为L = 20m,桥宽为 B = 10m。
该桥设计为城市次干路桥梁,承受的荷载包括恒载和活载。
二、恒载计算。
(一)结构自重。
1. 桥面板自重。
- 假设桥面板采用C30混凝土,厚度为h = 0.2m。
混凝土的容重取γ =25kN/m^3。
- 桥面板单位面积自重q_1=γ× h = 25×0.2 = 5kN/m^2。
- 对于整个桥面板,沿桥长方向单位长度的自重q_1L=q_1× B = 5×10 =50kN/m。
2. 主梁自重。
- 假设主梁为矩形截面钢梁,截面尺寸为高H = 1m,宽 b = 0.5m,钢材容重取γ_s=78.5kN/m^3。
- 主梁单位长度自重q_2=γ_s× b× H = 78.5×0.5×1 = 39.25kN/m。
- 如果有两根主梁,则沿桥长方向单位长度的主梁总自重q_2L=2×q_2=2×39.25 = 78.5kN/m。
3. 恒载总自重。
- 沿桥长方向单位长度的恒载总自重q_g=q_1L+q_2L=50 + 78.5=128.5kN/m。
三、活载计算。
(一)车辆荷载。
1. 公路 - Ⅱ级荷载标准。
- 车道荷载由均布荷载q_k和集中荷载P_k组成。
- 对于双车道的桥,均布荷载标准值q_k=7.875kN/m(计算跨径大于5m小于等于50m时)。
- 集中荷载标准值P_k:当计算跨径L = 20m时,P_k=195kN。
2. 车辆荷载在桥上的布置。
- 为了计算最不利荷载效应,均布荷载满布全桥跨。
- 集中荷载作用在跨中位置,因为跨中是弯矩最不利的位置。
(二)人群荷载。
1. 人群荷载标准值。
- 城市次干路桥梁,人群荷载标准值取q_r=3kN/m^2。
- 沿桥长方向单位长度的人群荷载q_rL=q_r× B = 3×10 = 30kN/m。
超过一定规模的危险性较大的分部分项工程(高支模)荷载设计值计算方法一、范围确定 (2)二、计算方法 (2)1、施工总荷载(设计值)10~15K N/M2的范围(指楼板) (2)2、集中线荷载(设计值)15~20K N/M的范围(指大截面梁) (2)三、计算实例 (3)1、楼板计算: (3)2、大梁计算: (4)超过一定规模的危险性较大的分部分项工程(高支模)荷载设计值计算方法一、范围确定危险性较大的分部分项工程范围:施工总荷载(荷载效应基本组合的设计值,以下简称设计值)10kN/m2及以上,或集中线荷载(设计值)15kN/m及以上。
超过一定规模的危险性较大的分部分项工程范围:施工总荷载(设计值)15kN/m2及以上,或集中线荷载(设计值)20kN/m及以上。
二、计算方法按照《建筑施工模板安全技术规程》JGJ162-2008规范4.3.1条规定确定荷载组合分项系数如下:1、施工总荷载(设计值)10~15kN/m2的范围(指楼板)混凝土钢筋自重25.10kN/m3,模板自重0.30kN/m2,施工活荷载2.50kN/m2。
(1)由可变荷载效应控制的组合S=1.2×(25.10×板厚+0.30)+1.40×2.50=kN/m2(2)由永久荷载效应控制的组合S=1.35×25.10×板厚+0.7×1.40×2.50=kN/m22、集中线荷载(设计值)15~20kN/m的范围(指大截面梁)混凝土钢筋自重25.50kN/m3,模板自重0.50kN/m2,施工活荷载2.00kN/m2。
集中线荷载=永久荷载(钢筋砼自重+模板木方的自重)×分项系数+施工均布活荷载×分项系数钢筋砼自重=梁的截面积(m2)×26KN/m3(26KN/m3为钢筋砼比重换算成KN/m3为单位,在计算集中线荷载时钢筋砼比重取值为26KN/m3。
梁上开门并开窗
4.994.804.704.614.51
楼屋面荷载、梁墙荷载计算:活载q:
本工程楼屋面设计活载根据使用要求确定,除特殊说明外均按《建筑结构荷载规范》(GBJ9-87)采用,楼屋面设计活载为:卧室、厅:1.5kN/m 2,厨房、卫生间、梯间:2.0kN/m 2,阳台:2.5kN/m 2
夹层:2.5kN/m 2, 上人屋面:1.5kN/m 2, 不上人屋面:0.7kN/m 2恒载g:
楼面按方块大理石面层:1.2kN/m 2
屋面按预制混凝土架空隔热层:1.8kN/m 220厚空心砖砌体:3.2kN/m 2
层高3.0m,梁上开窗荷载按70%实墙荷载计算。
4.42
4.324.224.134.03
梯板面荷载恒载标准值:( ι=n*b)
+水磨石面层:n*(b+h)*δ0*ρ0/ι= 0.65*(b+h)/b +踏步:n*0.5*b*h*25/ι= 12.5*h
+斜板:n*δ*25*b/cos α/ι= 25*δ/cos α+板底抹灰:n*δ1*17*b/cos α/ι=0.34/cos α
跨中弯距 M=q*ι*ι/8/cos α 配筋 M/0.9/f y /(h-25)
梯板荷载及配筋计算计算(按水磨石面层0.65kN/m 2)。