上海长途汽车客运总站施工图设计说明(地上部分)
- 格式:docx
- 大小:20.49 KB
- 文档页数:8
建筑结构与设备论文1描述身边的一建筑——上海长途汽车客运南站●场地概述上海长途客运南站位于柳州路以西,石龙路以北。
南区火车站南广场东南部,汽车站东南侧为进站广场,东北侧设有行包托运广场并设机动车道入地下室,该车站的西北侧为客运停车场。
客运站占地面积2万平方米、总建筑面积2万平方米,建筑高度约20米。
长途汽车南站主题建筑采用与铁路南站主站屋同心的圆弧演化的非对称弧形平面,与上海南站的圆屋顶建筑造型一起构筑成日月同辉的艺术体,体现了二者之间互依、互补、互通、互连的设计思想。
●平面布局由于长途汽车南站是铁路南站的组成部分,是一个大型的交通换乘枢纽中的重要一环,所以以火车、长途汽车为主的对外交通工具,以地铁、室内公交、出租车、轻轨等为主的队内交通工具,这些交通设施在南站地区形成了一个有机的整体。
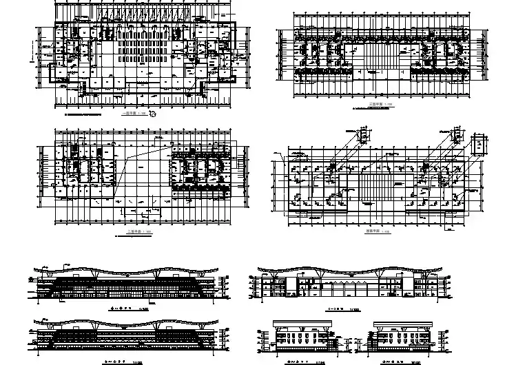
客运南站总体为地下一层,地上四层的建筑,建筑平面为月牙形。
首次进站厅和地下进站大厅均设置售票处,首次还设置有母婴候车室、便利超市、吸烟室等便民设施。
二层为餐厅,三层为司乘休息区和室外空中花园,四层为公司办公用房,地下层连通地铁及铁路南站的地下购物广场。
●造型设计上海长途南站建筑形体舒展,弧形主体与椭圆形体量构成活泼自由的空间形态。
通过形体的穿插分隔、虚实对比产生丰富的建筑效果。
总体设计采用钢结构、玻璃和铝合金幕墙的组合,表现出精致、通透的建筑风格。
同时,大厅内部采用暖色的陶土板幕墙,不仅从色调、质感上给予了视觉感受上的调和,也更使整个建筑增添了一份稳重大方的气质。
●结构设计上海长途客运南站的建筑平面弧长约148米,并在距本主楼西侧12米处设有塔楼一座,房屋高度为18.7米,地下室底板建筑层高为4米和5.5米。
总建筑约18000平方米。
1) 地下结构设计上海长途南站的地下室外墙为现浇钢筋混凝土墙,地下室楼板采用现浇梁板体系。
地下室局部区域按照6级人防设计。
2)地上结构设计上海长途南站的工程结构可分为三部分一是主题建筑部分,采用的是现浇钢筋混泥土框架结构。
上海长途汽车客运总站一、项目特点及概况(约250字)上海是我国最大的交通枢纽城市之一。
拟建基地位于上海站北广场西侧50号地块,规划用地面积29476.34平方米。
铁路上海站北广场在基地东侧,有16条公交线路的终点站在这里汇合,地铁一号线和明珠线一期也在此设站。
建成后的长途汽车客运总站将包括候车室、行包房等客运设施,停车场,车辆清洗、修理等机务设施、商业设施和驾驶员行车公寓,必将改善这一地区的周边环境,取得社会,环境与经济效益的统一。
作为上海第一个现代化大型客运中心,客运站的车流量、客流量都是上海目前设计中规模最大的,它将成为上海连接西南、西北方向各省市的汽车客运交通枢纽。
二、主要资料项目名称(全称)上海长途汽车客运总站(必填!)英文名称(如有请提供)建设单位名称(全称)上海长途汽车客运总站有限公司(必填!)英文名称(如有请提供)合作设计单位名称(含结构、机电)(必填!)合作设计单位承担角色用途(即建设性质)长途汽车客运站(必填!)设计及竣工年份2002(设计),2005(竣工) (必填!)项目进展阶段在建(完成、在建、方案)(必填!)建设地点上海站北广场西侧50号地块(尽可能详细)(必填!)建设面积规模73924.26m2M2(必填!)29476m2M2(必填!)主体建筑结构形式框架—剪力墙(必填!)主要外装修材料玻璃,铝板幕墙,铝合金窗(必填!)三、分类资料技术经济指标技术参数分类表其它资料:1 .基本结构柱网尺寸9000x90002 .大空间结构形式无3 .平面功能安排与旅客流程组织客运站占两层空间,旅客同层进出站。
4 .内部层高变化的交通方式电梯、自动扶梯、楼梯。
5 .外部交通组织(人流和车流)人流与车流分开。
6 .高峰小时旅客量1700人。
7 .年旅客量60万人5 .各专业简要说明及主要设备的系统及配置技术数据(每个专业100-250字)建筑专业针对基地特点,提出了轴带“2十1”的构想,即两条水平带,一条立体垂直带交织出三条功能轴。
长途汽车客运站建筑设计指导书一、站址选择汽车客运站站址选择应符合下列规定:1.符合城市规划的总体交通要求;2.与城市干道联系密切,流向合理且出人方便;3.地点适中,方便旅客集散和换乘其他交通;4.具有必要的水源、电源、消防、通信、疏散及排污等条件。
二、总平面设计1.汽车客运站总平面设计应符合下列规定:(1)总平面布置应包括站前广场、站房、停车场、附属建筑、车辆进出口及绿化等内容;(2)布局合理,分区明确,使用方便,流线简捷,应避免旅客、车辆及行包流线的交叉;(3)布置紧凑,合理利用地形,节约用地,并留有发展余地,与周围建筑关系应协调;(4)应处理好站区内排水坡度,防止积水。
2.汽车进站口、出站口应符合下列规定:(1)一、二级汽车站进站口、出站口应分别独立设置,三、四级站宜分别设置;汽车进站口、出站口宽度均不应小于4m;(2)汽车进站口、出站口与旅客主要出人口应设不小于5m的安全距离,并应有隔离措施;(3)汽车进站口、出站口距公园、学校、托幼建筑及人员密集场所的主要出人口距离不应小于20m;(4)汽车进站口、出站口应保证驾驶员行车安全视距。
3.汽车客运站站内道路应按人行道路、车行道路分别设置。
双车道宽度不应小于6m;单车道宽度不应小于4m;主要人行道路宽度不应小于2.5m。
三、站前广场1.站前广场应与城市交通干道相连。
2.站前广场应明确划分车流路线、客流路线、停车区域、活动区域及服务区域。
3.旅客进出站路线应短捷流畅;应设残疾人通道,其设置应符合现行行业标准《方便残疾人使用的城市道路和建筑物设计规范》JGJ50的规定。
4.站前广场位于城市干道尽端时,宜增设通往站前广场的道路;位于干道一侧时,宜适当加大站前广场进深。
四、站房设计1.汽车客运站的站房应由候车、售票、行包、业务及驻站、办公等用房组成。
2.站房设计应做到功能分区明确,客流、货流安排合理,有利安全营运和方便使用。
3.汽车客运站的候车厅、售票厅、行包房等主要营运用房的建筑规模,应按旅客最高聚集人数计算。
建筑施工图设计说明(±0.000以上部分)一、工程概况:建筑名称:上海长途汽车客运总站建设单位:上海长途汽车客运总站有限公司建设地点:上海站北广场西侧50号地块,即恒丰北路以东,孔家木桥路以西,中兴路以南,交通路以北基地面积:29476平方米(按测点电脑计算)总建筑面积:74796平方米(地上部分52355平方米,地下部分22441平方米)建筑等级:一级建筑防火等级:司售楼为一类高层建筑,防火等级为一级;场站楼为多层建筑,防火等级为二级结构类型:钢筋混凝土框架-剪力墙结构二、设计依据:1、由上海长途汽车客运总站有限公司提供的上海长途汽车客运总站红线定位图及红线坐标点2、上海市闸北区建设和管理委员会《关于上海市长途汽车客运总站扩初设计的批复》(2003年3月17日)3、有关主管部门(规土、消防、供电、市政、电信、交通、环保、节能、环卫、卫生防疫、劳保、绿化、人防等)对初步设计的审核意见4、业主关于施工图设计有关问题的回复5、与本工程有关的国家相关规范法规和上海市的有关规定,主要为:5.1工程建设标准强制性条文房屋建筑部分(2002年版)5.2民用建筑设计通则JGJ37-875.3高层民用建筑设计防火规范GB50045-95(2001年版)5.4建筑设计防火建筑GBJ16-87(2001年版)5.5人民防空工程设计防火规范GB50098-98(2001年版)5.6汽车库、修车库、停车场设计防火规范GB50067-975.7汽车客运站建筑设计规范JGJ60-995.8办公建筑设计规范JGJ67-895.9汽车库建筑设计规范JGJ100-985.10城市道路和建筑物无障碍设计规范JGJ50-20015.11建筑工程交通设计及停车库(场)设置标准DBJ08-7-965.12汽车加油加气站设计与施工规范GB50156-20025.13上海市城市规划管理技术规定及其配套性文件2002年版6、本公司与业主及配套多次会议的会议纪要及传真文件7、建筑面积计算根据1982年颁布的《建筑面积计算规则》8、上海市长途汽车客运总站扩初设计说明及文本三、设计标高:本项目的设计标高±0.000相当于绝对标高4.1m,室内外高差0.6m。
目录一、工程概况二、施工部署三、施工预备四、要紧分项工程施工方法五、施工现场平面布置六、施工进度打算七、质量保证措施八、保证施工安全和文明施工的措施九、环境爱护措施十、降低成本措施附图:施工现场平面布置图项目质量体系治理网络图安保体系治理网络图施工段划分示意图压桩工艺流程图井点降水平面布置图土钉墙平面布置图附表:施工进度打算表技术复核项目一览表要紧机械设备一览表计量、检测仪器一览表隐蔽验收一览表砼、砂浆、试块制作一览表附件:1、上海长途汽车客运总站压桩工程施工组织设计2、上海长途汽车客运总站基坑围护工程施工组织设计3、上海长途汽车客运总站井点降水施工组织设计4、上海长途汽车客运总站基坑开挖施工方案上海长途汽车客运总站基础施工组织设计一、工程概况上海长途汽车客运总站,位于上海火车站北广场西侧,规划用地面积29476m2,总建筑面积74796m2,其中地上面积52355m2,地下面积22441m2。
客运总站由横卧的四层商业裙房和拔地而起的27层驾驶员行车公寓楼组成。
建成后上海长途汽车客运总站将包括侯车厅、行包房等客运设施、停车场、车辆清洗、修理等机务设施以及驾驶员行车公寓,共同改善这一地区的周边环境,是一座功能齐全、设备先进的现代化客运中心,它将成为上海连接西南、西北方向各省、市的交通枢纽,成为展示上海大都市形象的具有时代气息的标志性建筑。
1.1 差不多情况——工程项目名称:上海长途汽车客运总站——建设单位:上海长途汽车客运总站有限公司——设计单位:华东建筑设计研究院有限公司——监理单位:上海铁道学院建设监理科技公司——施工总承包单位:上海鹏欣建筑安装工程有限公司——工程地址:中兴路1662号1.2 建筑情况驾驶员行车公寓楼地上27层,地下一层,建筑物总高度98.8m,建筑面积28686m2。
其中一层为商务层,二层为餐饮层,三层为会所、娱乐区,三层与四层间设技术转换层,四层至二十二层为公寓标准层,二十三层起为开敞观光餐厅,为客人提供绝佳高空观景平台。
建筑施工图设计说明(± 0.00以0 上部分)一、工程概况:建筑名称:上海长途汽车客运总站建设单位:上海长途汽车客运总站有限公司建设地点:上海站北广场西侧50 号地块,即恒丰北路以东,孔家木桥路以西,中兴路以南,交通路以北基地面积:29476 平方米(按测点电脑计算)总建筑面积:74796平方米(地上部分52355平方米,地下部分22441 平方米)建筑等级:一级建筑防火等级:司售楼为一类高层建筑,防火等级为一级;场站楼为多层建筑,防火等级为二级结构类型:钢筋混凝土框架-剪力墙结构二、设计依据:1、由上海长途汽车客运总站有限公司提供的上海长途汽车客运总站红线定位图及红线坐标点2、上海市闸北区建设和管理委员会《关于上海市长途汽车客运总站扩初设计的批复》(2003年3月17日)3、有关主管部门(规土、消防、供电、市政、电信、交通、环保、节能、环卫、卫生防疫、劳保、绿化、人防等)对初步设计的审核意见4、业主关于施工图设计有关问题的回复5、与本工程有关的国家相关规范法规和上海市的有关规定,主要为:5.1 工程建设标准强制性条文房屋建筑部分(2002 年版)5.2 民用建筑设计通则JGJ37-875.3 高层民用建筑设计防火规范GB50045-95(2001 年版)5.4 建筑设计防火建筑GBJ16-87(2001 年版)5.5 人民防空工程设计防火规范GB50098-98(2001 年版)5.6 汽车库、修车库、停车场设计防火规范GB50067-975.7 汽车客运站建筑设计规范JGJ60-995.8 办公建筑设计规范JGJ67-895.9 汽车库建筑设计规范JGJ100-985.10 城市道路和建筑物无障碍设计规范JGJ50-20015.11 建筑工程交通设计及停车库(场)设置标准DBJ08-7-965.12 汽车加油加气站设计与施工规范GB50156-20025.13 上海市城市规划管理技术规定及其配套性文件2002 年版6、本公司与业主及配套多次会议的会议纪要及传真文件7、建筑面积计算根据1982 年颁布的《建筑面积计算规则》8、上海市长途汽车客运总站扩初设计说明及文本三、设计标高:本项目的设计标高士0.00相当于绝对标高4.1m,室内外高差0.6m。
(室外道路标高中兴路为绝对标高3.5m,孔家木桥路为绝对标高3.4m,交通路为绝对标高2.9m,根据上海长途汽车客运总站有限公司提供的上海长途汽车客运总站红线定位图)。
四、设计总则:1 、除特别说明外,本工程施工图所注尺寸除总图及标高以米为单位外,其余均以毫米为单位。
2、施工图中的平、立、剖面图及节点详图等使用时应以所注尺寸为准,不能直接以图纸比例量度测算。
3、所有与工艺、公用设备相关的预留洞、预埋件、管弄等必须与相关的工艺、公用设备工种的图纸密切配合。
4、除本图已作详细表述外,屋面、吊顶、地面、砌体、木结构、幕墙、门窗、内外装饰等单项工程的建筑用料、规格、施工要求尚应符合现行的国家或地方各项设计和施工验收规范。
5、本施工图设计说明,仅适用于本工程本阶段设计范围。
五、建筑用料说明:1、墙体:地上部分:⑴外墙:轻制砂加气混凝土砌块,厚度详见建筑详图。
构造措施及与钢筋混凝土墙柱连接做法详见结构说明和相应的设计规程。
墙体导热系数0.12W/m.k。
⑵内墙:a. 房间隔墙采用120、150、200厚轻制砂加气混凝土板,位置见平面图所示。
b. 司售楼内管道井采用100厚加气混凝土板。
c. 部分轻钢龙骨外覆板材隔墙由二次装修定,参考位置见各层平面图图示,其具体材料及做法应能使墙体符合相应位置所需的耐火极限小时数。
d. 100厚墙体门洞边、墙体中间、墙体拐角、墙体端部设构造柱100x100,配4 10钢筋与主体预留筋搭接,6箍筋@200。
构造柱间距>4000。
墙体砌筑每1000高设20厚M10水泥砂浆缝槽,缝内加8通长钢筋,超过3000高的墙体做钢筋混凝土构造梁拉结。
e. 大型设备机房预留设备搬运孔洞,待设备安装后封砌,管道通过墙面在安装后封砌密实,并应达到隔声及防火规范耐火极限要求。
f. 暖通管道应用防火保温材料填嵌密实。
g. 防火墙(位于分隔两个防火分区的墙体为防火墙)墙体材料应满足耐火极限 3 小时的要求。
12、墙面:(1)外墙:a. 司售楼四层(技术层)以上外墙面涂抹专用界面剂,并用1:1:6混合砂浆分层找平粉刷涂料。
其余外墙面采用由玻璃、铝板组成的幕墙系统。
幕墙工程应由具备专项设计资质的设计施工企业根据国家及上海市有关幕墙规范、标准及政府专项规定等承担幕墙技术设计和制作图,并对幕墙工程(结构设计和加工制作以及玻璃类型厚度等)的质量和安全负责。
本施工图仅绘制有关幕墙的平、立面划格图。
b. 位于防火分区隔墙和疏散楼梯间、前室两侧的水平距离在2m,转角4m范围内的玻璃应采用甲级防火玻璃。
c. 幕墙系统风压变形性能等应满足规范要求,按照《建筑幕墙物理性能分级》(GB/T 15225-94及国标《玻璃幕墙工程技术规程》DBJ08-56-96其主要性能指标为:风压变形性能I级;雨水渗透性能II级;空气渗透性能II级;保温性能IV 级;隔声性能III级(>32d;耐撞击性能应不小于140Nm/sec。
d. 幕墙系统的防火设计应符合现行国家标准《高层民用建筑设计防火规范(GB50045-95)》的有关规定。
e. 非透视玻璃幕墙部分,外墙外侧刷防水涂料二度,并贴玻璃棉保温层。
f. 铝合金幕墙型材室外露明表面采用氟碳烤漆二层处理。
氟碳烤漆树脂采用PPG In dustries Kyner 500 Dura na碳氟聚合树脂或同等品质产品,氟碳漆由PPG Industries 授权配置厂提供或与上述同等品质产品相容者。
室内露明铝料表面采用Polycyon烤漆处理,色彩为米灰色,以幕墙厂家提供的色卡为准。
(2)屋面机房等非幕墙部分的外墙饰面采用10厚1:1:6混合砂浆括糙, 10厚1:1:4 混合砂浆粉平,外覆涂料,涂料质量应符合《外墙涂料工程应用技术规程》DG/TJ08-504-2000的要求。
相应女儿墙、檐头、雨蓬等处的构造设计及材料做法见详图。
(3)内墙面:室内装饰分对外精装饰和一般装饰两部分。
对外精装饰部分由业主方另行发包设计,一般装饰部位及材料详见建筑室内用料表。
3、平顶:详见建筑室内用料表。
4、屋面:根据GB50207- 94《屋面工程技术规范》,本项目屋面防水等级为二级,防水层耐用年限15 年,设防要求为 2 道,防水材料为合成高分子防水卷材和合成高分子防水涂料,保温隔热材料为挤塑聚苯乙烯板。
屋面工程施工前,施工队应通过图纸会审,掌握施工图中的细部构造及有关技术规范要求,并应编制防水工程的施工方案或技术措施。
屋面工程施工中,应按施工工序、层次进行检验,合格后方可进行下道工序、层次的作业,屋面工程的防水必须由防水专业队伍或防水工施工,严禁非防水专业队伍或防水工进行屋面工程的防水施工。
防水、保温隔热材料应有材料质量证明文件,并经质检部门认证。
(1)上人屋面做法(自上而下):a. 8厚地砖(色彩及规格另定); b. 22厚1:2 水泥砂浆结合层; c. 40厚C2 0细石混凝土配?4@200双向,设分仓缝4.5M X 4.5M缝宽20嵌密封膏;d.聚氨酯防水涂料一度;e.2厚三元乙丙基橡胶防水卷材;f.20厚1:2.5水泥砂浆找平层(铺设编织镀锌钢丝网片);g.粘贴聚苯乙稀挤塑泡沫保温隔热板找坡,泛水坡度为2%,最薄处25 厚;h. 20 厚1:25 水泥砂浆找平层;i.板面刷水泥基渗透型防水涂料一度;j.现浇钢筋混凝土板。
(2)非上人屋面做法(自上而下):a. 40厚C20细石混凝土配?4@200双向,设分仓缝4.5M X4.5M,缝宽20嵌密封膏;b..聚氨酯防水涂料一度;c. 2厚三元乙丙基橡胶防水卷材; d. 20厚1:2.5水泥砂浆找平层(铺设编织镀锌钢丝网片); e.粘贴聚苯乙稀挤塑泡沫保温隔热板找坡,泛水坡度为2%,最薄处25厚;f.20厚1:2.5水泥砂浆找平层;g.板面刷水泥基渗透型防水涂料一度;h.现浇钢筋混凝土板。
(3)金属屋面做法待定,由我方提出技术要求,厂家具体制作安装。
5、调车平台做法(自上而下):20 厚耐压防滑广场砖(色彩、规格另定);20厚1: 2水泥砂浆结合层;70厚C20细石混凝土内配巾10@15双向,设分仓缝6Mx6M,缝宽20,嵌建筑密封膏;20厚聚苯乙烯挤塑型泡沫保温隔热板(抗压强度>500kg/m2 2厚三元乙丙基橡胶防水卷材;20厚1:2.5 水泥砂浆找平层(铺设编织镀锌钢丝网片)。
6、站前广场做法(自上而下): 20厚防滑广场砖(色彩、规格另定);22厚1: 2水泥砂浆结合层;80厚C10素混凝土垫层;70厚碎石夯实;素土夯实。
7、防护栏杆:上人屋面女儿墙防护详见建筑图防护栏杆,材料供应厂商必须对侧向力进行验算。
8、明沟及散水:建筑底层及屋面设置带盖板明沟。
明沟纵向泛水不小于0.5%,坡向雨水收水口。
盖板设计根据不同位置及屋面面层做法见详图。
9、台阶、门坎:室外台阶、门坎以素混凝土砌筑。
台阶平台顶面标高应低于室内地坪20mm,以防雨水进入,饰面材料应防滑;门坎顶面外倾,形式及构造做法见详图。
10、外门窗:(1)建筑外门窗与幕墙结合,主要为铝合金框架,各种物理性能指标应与幕墙相一致。
(2)门窗类型、规格、用料在门窗表中表述,颜色另定。
门窗断面系列及玻璃厚度应由门窗设计制作单位依据国家有关幕墙规范、标准及政府专项规定等根据工程项目使用要求、门窗性能要求、材料构造性能和强度要求具体设计确定,加工和安装应严格按照施工验收规范及有关规定、规程进行,并对门窗的工程质量和使用安全负责。
消防门需选用消防局批准的产品,所有的五金配件均采用不锈钢或铜质。
(3) 除特殊说明外,建筑幕墙玻璃均采用镀膜中空安全玻璃,空气层厚度> 6mm玻璃规格及精确尺寸按现场实际情况验算确定。
(4) 通风百页均采用横向防雨百页。
(5) 用于天棚及栏板的玻璃应为安全夹膜玻璃。
(6) 用于防火分区隔墙上和设备机房的门为甲级防火门,前室和楼梯间的门为乙级防火门,设备管弄门和门窗表上未注的管井检修门均为丙级防火门。
11、落水排水屋面排水采用铸铁落水头及聚氯乙烯(UPVC落水管有组织外落水排水型式。
12、金属构件设计院所出金属构造详图仅限于对建筑形式作建议或规定,厂家必须以此为基础按照有关规范进行必要的结构计算,完成加工安装详图,经设计院、业主、监理确认后方可加工安装。
13、油漆(1) 埋件、铁件除锈后刷防锈漆二度;木砖及所有木构件与砌体接触处刷水柏油二度防腐处理;2(2) 金属制品除锈后,防锈漆一度,调和漆二度;木门及木构件采用清水腊克或调和漆,表面均亚光处理。