塔设备设计说明书
- 格式:doc
- 大小:452.50 KB
- 文档页数:12
总体设计方案的拟定金属结构安装基础当在保证所设计的机型达成国家有关标准的同时,力求结构合理,技术先进,积极性好,工艺简朴,工作可靠。
2.2总体设计方案的拟定QTZ500型塔式起重机是上回转、水平臂架、液压自升式的结构形式,由金属结构、工作机构和驱动控制系统三部分组成。
在进行总体设计时,要综合考虑塔机的强度、刚度、稳定性、各种工况下的外载荷以及塔机的经济性,从而选出合理的设计方案。
2.2.1 金属结构塔式起重机金属结构部分由塔身,塔头或塔帽,起重臂架,平衡臂架,回转支撑架等重要部件组成。
对于特殊的塔式起重机,由于构造上的差异,个别部件也会有所增减。
金属结构是塔式起重机的骨架,承受塔机的自重载荷及工作时的各种外载荷,是塔式起重机的重要组成部分,其重量通常约占整机重量的一半以上,因此金属结构设计合理与否对减轻起重机自重,提高起重性能,节约钢材以及提高起重机的可靠性等都有重要意义。
1.基础高层建筑施工用的附着式塔式起重机都采用小车变幅的水平臂架,幅度大部分在五十米以上,无须移动作业即可覆盖整个施工范围,因此多采用钢筋混凝土基础。
钢筋混凝土基础有多种形式可供选用。
对于有底架的固定自升式塔式起重机,可视工程地质条件,周边环境以及施工现场情况选用X形整体基础,四个条块分隔式基础或者四个独立块体式基础。
对于无底架的自升式塔式起重机则采用整体式方块基础。
X形整体基础的形状及平面尺寸大体与塔式起重机X形底架相似。
塔式起重机的X形底架通过预埋地脚螺栓固定在混凝土基础上,此种形式多用于轻型自升式塔式起重机,如图2-1所示。
2-1 X形整体基础长条形基础由两条或四条并列平行的钢筋混凝土底梁组成,其功能如同两条钢筋混凝土的钢轨轨道基础,分别支承底架的四个支座和由底架支座传来的上部荷载。
假如塔机安装在混凝土砌块人行道上,或是安装在原有混凝土地面上,均可采用这种钢筋混凝土基础,如图2-2所示。
分块式基础由四个独立的钢筋混凝土块体组成,分别承受由底架结构传来的整机自重及载荷。
毕业设计说明书题目:QTZ40塔式起重机总体及臂架设计目录第1章前言 (1)1.1 概述 (1)1.2 发展趋势 (1)第2章总体设计 (2)2.1 概述 (2)2.2 确定总体设计方案 (2)2.3 总体设计原则 (29)2.4 平衡臂与平衡重的计算 (30)2.5 起重特性曲线 (32)2.6 塔机风力计算 (33)2.7 整机的抗倾覆稳定性计算 (43)2.8 固定基础稳定性计算 (49)第3章吊臂的设计计算 (50)3.1 分析单吊点与双吊点的优缺点 (50)3.2 吊臂吊点位置选择 (51)3.3 吊臂结构参数参数 (52)3.4 有限元模型建立过程的几点简化 (53)3.5 吊臂结构的有限元分析计算 (54)3.6 计算结果分析 (69)3.7吊臂强度校核 (76)3.8 吊臂稳定性校核 (76)毕业设计小结 (87)致谢 (88)参考文献 (89)2-1 塔顶结构图图2-3 臂架截面及其腹杆布置1-水平腹杆2-侧腹杆3-上弦杆4-下弦杆臂架1-7节:B=1020mm H=800mm臂架截面尺寸与臂架承载能力、臂架构造、塔顶高度及2-6 附着装置11. 套架与液压顶升机构1)爬升架爬升架主要由套架,平台,液压顶升装置及标准节引进(2-14.1)a=4(2-14.2)a=2图2-14起重特性曲线2.6 塔机风力计算m11837.74/1445.247起重臂风力计算m-1.1M2 +M3+M4-1.1Mm+M2+M3+ M。
目录摘要 (I)Abstract (II)引言 (1)第1章设计条件与任务 (2)1.1设计条件 (2)1.2设计任务 (2)第2章设计方案的确定 (3)第3章精馏塔的工艺设计 (4)3.1全塔物料衡算 (4)3.1.1原料液、塔顶及塔底产品的摩尔分数 (4)3.1.2原料液、塔顶及塔底产品的平均摩尔质量 (4)3.1.3物料衡算进料处理量 (4)3.1.4物料衡算 (4)3.2实际回流比 (5)3.2.1最小回流比及实际回流比确定 (5)3.2.2操作线方程 (6)3.2.3汽、液相热负荷计算 (6)3.3理论塔板数确定 (6)3.4实际塔板数确定 (7)3.5精馏塔的工艺条件及有关物性数据计算 (8)3.5.1操作压力计算 (8)3.5.2操作温度计算 (9)3.5.3平均摩尔质量计算 (9)3.5.4平均密度计算 (10)3.5.5液体平均表面张力计算 (10)3.6精馏塔的塔体工艺尺寸计算 (12)3.6.1塔径计算 (12)3.6.2精馏塔有效高度计算 (13)第4章塔板工艺尺寸的计算 (14)4.1精馏段塔板工艺尺寸的计算 (14)4.1.1溢流装置计算 (14)4.1.2塔板设计 (15)4.2提馏段塔板工艺尺寸设计 (15)4.2.1溢流装置计算 (15)4.2.2塔板设计 (16)4.3塔板的流体力学性能的验算 (16)4.3.1精馏段 (16)4.3.2提馏段 (17)4.4板塔的负荷性能图 (18)4.4.1精馏塔 (18)4.4.2提馏段 (19)第5章板式塔的结构 (21)5.1塔体结构 (21)5.1.1塔顶空间 (21)5.1.2塔底空间 (21)5.1.3人孔 (21)5.1.4塔高 (21)5.2塔板结构 (21)第6章附属设备 (21)6.1冷凝器 (21)6.2原料预热器 (22)第7章接管尺寸的确定 (23)7.1蒸汽接管 (23)7.1.1塔顶蒸汽出料管 (23)7.1.2塔釜进气管 (23)7.2液流管 (23)7.2.1进料管 (23)7.2.2回流管 (23)7.2.3塔釜出料管 (23)第8章附属高度确定 (24)8.1筒体 (24)8.2封头 (24)8.3塔顶空间 (24)8.4塔底空间 (24)8.5人孔 (24)8.6支座 (24)8.7塔总体高度 (24)第9章设计结果汇总 (25)设计小结与体会 (27)参考文献 (28)引言在炼油、石油加工、精细化工、食品、医药等部门,塔设备属于使用量大,应用面广的重要单元设备。
塔设计说明书范例一、引言在建筑和工程领域,塔是一种常见的结构形式,用于提供支撑和高度。
塔可以用于通信、电力传输、风力发电等多个领域。
本设计说明书旨在提供一个塔设计的范例,以帮助读者了解塔设计的关键要素和过程。
二、设计目标本设计的目标是开发一个稳定、坚固且经济高效的塔结构,满足以下要求:1. 提供足够的高度和稳定性,以适应特定的应用需求。
2. 考虑到塔的承受力,确保塔结构能够安全承载预定载荷。
3. 考虑到材料成本和施工技术,以确保设计方案的经济性。
4. 确保设计方案符合国家和行业相关标准和规范。
三、设计过程1. 确定需求在开始设计之前,我们需要明确塔的具体用途和应用需求。
例如,通信塔需要考虑天线安装和信号传输要求,而风力发电塔需要考虑叶片和发电机的安装。
2. 选择合适的材料根据需求和设计目标,选择合适的材料来构建塔结构。
常用的材料包括钢、混凝土和铝合金。
在选择材料时,需要考虑材料的强度、重量和可持续性。
3. 结构设计基于需求和材料选择,进行塔的结构设计。
这可能涉及到使用CAD软件进行建模和分析,以确定最佳的结构形式和尺寸。
常见的塔结构形式包括桁架、钢管和混凝土塔。
4. 载荷计算进行载荷计算是塔设计中的重要步骤。
根据塔的用途和当地环境条件,计算和分析塔所能承受的各种载荷,如风荷载、地震荷载、设备重量等。
5. 结构优化基于载荷计算的结果,进行塔结构的优化。
这可能涉及到调整材料的尺寸、增加加强杆件或者使用更高强度的材料,以提高塔的稳定性和承载能力。
6. 施工计划根据设计方案,制定详细的施工计划。
考虑到施工过程中的安全性、效率和成本控制,确保塔的准确建造。
四、设计输出根据设计过程的结果,我们将提供以下设计输出:1. 结构图纸:包括塔的平面图、立面图和细部图,以及结构尺寸和标注。
2. 载荷计算报告:详细说明各种载荷的计算方法和结果。
3. 施工计划:包括塔的施工过程、安全措施和项目进度安排。
五、结论本设计说明书介绍了塔设计的范例,希望能够帮助读者了解塔设计的基本过程和关键要素。
2、中联塔机遵循的主要标准GB5144-94 塔式起重机安全规程GB/T13752-92 塔式起重机设计规范GB/T9462-1999 塔式起重机技术条件GB/T5031-94 塔式起重机性能试验GB/T17806-1999 塔式起重机可靠性试验方法GB/T17807-1999 塔式起重机结构试验方法JG/T5037-93 塔式起重机分类3、中联塔机特点综述中联重科具有五十年的塔机设计经验,是塔机行业技术归口单位和理事长单位,为国内80%的塔机行业厂家转让了技术,多次组织并承担国家攻关项目,主持编写了国家和行业相关技术标准,聚集了行业最优秀的专家,是国内最权威的塔机技术中心。
中联自1995年自行生产塔机以来,经过这么多年的努力,5013、5015、5613、5616、5023、5518、6015-10、6016-8、6020、6517、7030、7035、7052、TCT7032已成系列,其性能参数完全符合市场需要,多年来中大型塔机销量一直雄居国内同类产品的首位。
1997年,在成熟的塔机技术基础上,中联独创性地推出起重、布料两用机,实现一机多用,革命性地拓展了塔机在建设领域的应用范围。
中联塔机,无论是在技术水平,还是在制造质量,在国内都居领先地位,与世界先进水平同步。
中联塔机的技术特点:3.1独有的技术服务中联塔机研究所的电话直接面向客户,可随时提供技术咨询;有非标附着架提供机制;新机可免费提供基础咨询。
以上三项是一般塔机生产厂家无法提供的技术服务,这是中联的技术优势。
3.2强有力的设计采用精确的ADAMS运动分析和I—DEAS有限元分析计算,使塔机每一部位处于合理的受力状态,且具有良好的强度、刚度和抗疲劳性。
在设计过程中,专家对塔机的总体方案及关键部件进行严格把关,专家评审委员会对塔机的总体方案和每一部件进行认真讨论和审定。
中联的弹性设计体系,能在最短的时间内为客户设计并制造出特殊工程所需的特型塔机。
塔设备设计说明书塔设备设计说明书概述塔设备的设计和选型是建⽴在对循环吸收⼯段、精制⼯段流程的模拟、优化的基础上。
在满⾜⼯艺要求的条件下,考虑设备的固定投资费⽤和操作费⽤,进⾏进⼀步模拟计算、设计和选型。
设计主要包括⼯艺参数设计、基本参数设计和机械设计。
⼯艺参数设计对该塔的⽣产能⼒、分离效果、物料和能量等操作参数作了设计;基本参数设计部分完成了塔设备的选型、填料的选型和参数设计塔板负荷性能校核等内容的设计;机械⼯程设计部分设计内容为塔设备的材质壁厚、封头、开⼝和⽀座地基等,同时对塔的机械性能做了校核。
我们完成了对全⼚2 座塔设备的⼯艺参数设计、基本参数设计和机械设计,并选取其中最有代表性的⼆氧化碳吸收塔给出了详细的计算和选型说明。
详细的设备装配图见⼯艺设计施⼯图。
烟道⽓吸收塔设计说明书第1 部分概要烟道⽓吸收塔是吸收的关键设备之⼀,其作⽤是贫液吸收烟道⽓中的⼆氧化碳,从⽽达到使⼆氧化碳从烟道⽓中分离的⽬的。
塔的吸收能⼒直接影响到⼆氧化碳的回收率。
吸收塔的设计应符合⼀下塔设备的基本要求:1⽣产能⼒⼤,即⽓液处理量⼤;2分离效率⾼,即⽓液相能充分接触;3 适应能⼒及操作弹性⼤,即对各种物料性质的适应性强并且在负荷波动时能维持操作稳定,保持较⾼的分离效率;4流体流动阻⼒⼩,即⽓相通过每层塔板或单位⾼度填料层的压降⼩;5 结构简单可靠,材料耗⽤量少,制造安装容易,以降低设备投资;设计说明书包括⼯艺参数设计、基本结构设计和机械⼯程设计三部分。
⼯艺参数设计对该塔的⽣产能⼒、吸收效果、物料和能量等操作参数作了设计;基本参数设计部分完成了塔设备的选型、填料的选型和参数设计、塔板负荷性能校核等内容的设计;机械⼯程设计部分设计内容为塔设备的材质壁厚、封头、开⼝和⽀座地基等,同时对塔的机械性能做了校核。
第2 部分⼯艺参数设计2.1 ⽣产能⼒项⽬年产⼗万吨⼆氧化碳,根据物料横算,⽓体进料量为7119.88kg/h ,液体进料量为294619kg/h ,塔顶物流量为54990.8kg/h ,塔底物流量为309748Kg/h 。
前言这次毕业设计是学生在大学期间的最后一次运用4年所学的知识,进行的一个综合性设计。
作为过程装备与控制工程专业的本科生,不仅需要牢固掌握基本的理论知识,还要在设计,实践的过程中学会应用。
正因为如此,认真地去做设计肯定对将来的工作的一次练兵,为今后的发展起到铺垫作用。
课题题目是Φ4500mm常压塔机械设计。
工作介质是原油,地点武汉,最高工作温度360℃,最高工作压力为0.15Mpa。
此常压蒸馏塔应用于炼油工艺过程中期,是最常用的一种单元设备之一。
由于原油具有其独特性,因此在设计时也很有必要去注意一些实际问题。
本设计说明书介绍了设计的主要过程,包括设计的思路。
从材料的选取,结构参数设计和选型,厚度计算,强度与稳定性校核,开孔补强设计,以及主要零部件的制造工艺等,都有基本的叙述。
为做到设计的正确性,合理性,就要严格按照设计原则进行,所有数据必须经过查表和计算得到,同时要考虑实际中存在的问题,比如安装吊运、检修等。
考虑到设备和生产的经济性,设计中遵循最优原则,即在满足基本要求的前提下最大限度地提高经济性和效率。
此书是对整个设计过程的记录以及整合。
全书分为五章,与装配图紧密相连,互成整体。
这次设计工作是由陈世民同学在何家胜副教授的指导以及同学的帮助合作下完成的,在此对提供过帮助的老师和同学表示谢意!但是由于设计者水平有限,肯定会有不妥甚至错误之处,如有发现,请读者指正为谢!编者2010.06.01摘要原油常压蒸馏作为原油加工的一次加工工艺,在原有加工流程中占有举足轻重的作用,其运行的好坏直接影响到整个原有加工的过程。
而在蒸馏加工的过程中最重要的分离设备就是常压塔。
因此,常压塔的设计好坏对能否获得高收益,搞品质的成品油油着直接的影响。
本次设计的常压塔是原油炼制工艺过程的中期塔设备。
设计时要考虑实际要求,遵循塔设备的设计原则,要经历需求分析、目标界定、总体结构设计、零部件结构设计、参数设计和设计实施这几个过程。
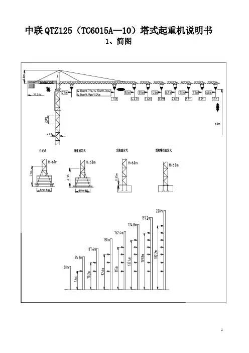
中联QTZ125(TC6015A—10)塔式起重机说明书1、简图2、中联塔机遵循的主要标准GB5144-94 塔式起重机安全规程GB/T13752-92 塔式起重机设计规范GB/T9462—1999 塔式起重机技术条件GB/T5031—94 塔式起重机性能试验GB/T17806—1999 塔式起重机可靠性试验方法GB/T17807—1999 塔式起重机结构试验方法JG/T5037—93 塔式起重机分类3、中联塔机特点综述中联重科具有五十年的塔机设计经验,是塔机行业技术归口单位和理事长单位,为国内80%的塔机行业厂家转让了技术,多次组织并承担国家攻关项目,主持编写了国家和行业相关技术标准,聚集了行业最优秀的专家,是国内最权威的塔机技术中心.中联自1995年自行生产塔机以来,经过这么多年的努力,5013、5015、5613、5616、5023、5518、6015—10、6016—8、6020、6517、7030、7035、7052、TCT7032已成系列,其性能参数完全符合市场需要,多年来中大型塔机销量一直雄居国内同类产品的首位。
1997年,在成熟的塔机技术基础上,中联独创性地推出起重、布料两用机,实现一机多用,革命性地拓展了塔机在建设领域的应用范围。
中联塔机,无论是在技术水平,还是在制造质量,在国内都居领先地位,与世界先进水平同步。
中联塔机的技术特点:3.1独有的技术服务中联塔机研究所的电话直接面向客户,可随时提供技术咨询;有非标附着架提供机制;新机可免费提供基础咨询.以上三项是一般塔机生产厂家无法提供的技术服务,这是中联的技术优势.3。
2强有力的设计采用精确的ADAMS运动分析和I—DEAS有限元分析计算,使塔机每一部位处于合理的受力状态,且具有良好的强度、刚度和抗疲劳性。
在设计过程中,专家对塔机的总体方案及关键部件进行严格把关,专家评审委员会对塔机的总体方案和每一部件进行认真讨论和审定。
中联的弹性设计体系,能在最短的时间内为客户设计并制造出特殊工程所需的特型塔机.3。
摘要被人们喻为“巨人之臂”、“画在天空中的弧、“力与美的象征”的起重机,广泛应用于国民经济各部门进行物质生产和装卸搬运的重要设备。
塔式起重机是一种能在一定范围内垂直起升和水平移动物品的机械,是现代化工业与民用建筑中的主要施工机械。
本次设计是关于塔式起重机的传动部分,目标是使塔式起重机所提起的重物能够正常的升降以及让小车能够在横梁上水平的运行。
首先,根据已知条件确定好设计的传动方案;然后,根据传动方案所提升的负载选择电动机,在依次选择选择蜗杆传动减速器、联轴器、制动器等;接着根据起升高度设计卷筒以及钢丝绳的设计计算,最后是对小车的设计计算;根据上述所选出的标准件以及零部件应用工程软件绘制出塔式起重机的装配图,根据装配图拆出塔式起重机的零部图。
设计塔式起重机构时,根据机构传动选择标准元件实际情况进行零部件的强度和寿命校核验算。
最后把计算结果整理成设计说明书。
总之,为了确保产品的质量和水平,设计工作按照科学的程序进行,分清主次,合理取舍。
关键词:塔式起重机;起升机构;传动设计AbstractBy people known as the”Giant of the arm”,”draw the art in the sky”,”a symble of strength and beauty” ,of the crane is widely used in material production sectors of the national economy and the importance of loading and unloading equipment.Tower crane is a species in certain range of vertical lifting and horizontal movement items of machinery,a modern industrial and civil buliding in the major construction machinery.This design is part of the transmisson tower cranes,tower cranes which objective is to bring the weight down normal and allow car to run at the level of the beam.Fist,according to known the conditions of good design to determine the transmission program;then,according to the load drive upgrade program selection motor,wore drive in the orderof selection options reducer,couplings,brakes,etc;then roll under the lift,the design and Rope design calculation,the last car car is design and calculation;last elect under the standard condition and the application of engineering software to map out parts of tower crane’s assemble drawings,according to dismantle the tower crane assembley drawings of parts and plans.Design of tower crane bodies,in accordance with standard component for Driving choose the actual situation in parts of the intensity and lifetime calibration checking.Final results were organized into design sepcifications.In short,in order to ensure product quality and level of design work carried out in accordance with scientific procedures,to distiguish between primary and secondary,a reasonable choice.Keywords:Tower crane;Hoisting mechanism;Transmission Design.目录1 绪论错误!未定义书签。
目录1设计条件 (1)2.1 按计算压力计算圆筒及封头厚度 (2)2.1.1 塔体厚度计算....................................... 错误!未定义书签。
2.1.2 封头厚度计算....................................... 错误!未定义书签。
2.2筒体、圆筒、封头、裙座的质量................. 错误!未定义书签。
2.3塔的基本自振周期的计算............................. 错误!未定义书签。
2.4载荷及弯矩计算............................................. 错误!未定义书签。
2.4.1风载荷计算示例.................................... 错误!未定义书签。
2.4.2地震弯矩的计算示例............................ 错误!未定义书签。
2.5计算各界面的最大弯矩................................. 错误!未定义书签。
2.6圆筒内力校核................................................. 错误!未定义书签。
2.7裙座壳轴向应力校核..................................... 错误!未定义书签。
2.8基础环厚度计算............................................. 错误!未定义书签。
2.9地脚螺栓计算................................................. 错误!未定义书签。
3裙座与塔壳对接焊封验算................................ 错误!未定义书签。
4心得体会............................................................ 错误!未定义书签。
目录第二章塔设备设计 (2)2.1 塔设备设计依据 (2)2.2 设计要求 (2)2.2 塔设备简介 (3)2.2.1板式塔 (3)2.2.2填料塔 (3)2.2.3 塔形对比 (7)2.3 塔设备设计的一般原则 (9)2.4 塔的选型结果 (11)2.5 醋酸洗涤塔的设计(T0301) (12)2.5.1 概述 (12)2.5.2 T0301塔设计条件 (13)2.5.3 塔形选择 (18)2.5.4 塔径及塔内件的计算 (18)2.5.5 塔的水力学校核 (21)2.5.6 设计条件汇总 (23)2.5.7 塔设备的机械设计 (23)2.5.7.1 塔高的计算 (23)2.5.8 接管的计算 (24)2.5.9 筒体、封头、裙座的壁厚及地脚螺栓设计 (26)2.6 塔设备设计小结 (29)2.7 新型塔板的应用 (29)2.8 塔设备SW6校核说明书 (31)第一章塔设备设计2.1 塔设备设计依据《化工设备设计全书——塔设备》《化工设备设计基础规定》HG/T20643-2012《设备及管道保温设计导则》GB 8175-2008《钢制人孔和手孔的类型与技术条件》HG/T 21514-2014《钢制化工容器结构设计规定》HG/T 20583-2011《工艺系统工程设计技术规范》HG/T 20570-1995《钢制压力容器焊接规程》JB/T4709-2007《塔器设计技术规定》HG20652-1998《不锈钢人、手孔》HG21594-21604-2014《压力容器封头》GB/T 25198-2010《压力容器封头》GB/T 25198-2010《钢制塔式容器》NB/T47041-2014《塔顶吊柱》HG/T 21639-20052.2 设计要求(1)分离效率高达到一定分离程度所需塔的高度低。
(2)生产能力大单位塔截面积处理量大。
(3)操作弹性大对一定的塔器,操作时气液流量的变化会影响分离效率。
若将分离效率最高时的气液负荷作为最佳负荷点,可把分离效率比最高效率下降15%的最大负荷与最小负荷之比称为操作弹性,易于稳定操作。
QTZ80(6012)塔机基础制作说明书佛山市南海高达建筑机械有限公司建筑物建筑物最外缘(含阳台等)1塔机的安装位置图1塔机安装时所需场地尺寸1.1塔机安装场地的参考尺寸(见图1)145001800500018005000套架3400×34001.2塔机的安装位置应尽量靠近建筑物和最大预制构件的安装部位,以充分利用起重臂的有效幅度和起重能力,还应考虑塔机安装、拆卸方便。
1.3塔机的最长旋转部分—起重臂,吊钩等要避离高压输电线5米以上,以免触电伤人、损坏设备等事故发生。
1.4根据现场的具体情况,基础中心与建筑物的外侧的距离应不少于4米,也不宜过大。
2塔机基础共4页第1页佛山市南海高达建筑机械有限公司4000~4500620003地脚螺栓预埋3.1地脚螺栓在预埋时,必须用底架或工厂随机提供的预埋模板。
3.2放置预埋模板应注意,焊有角钢的一面向上,并且将钢板上焊有“后”字的一方置于塔机顶升时平衡臂所在的一方。
3.3将4颗地脚螺栓分别悬挂在模板四角薄钢板的孔上,同时将32颗地脚螺栓分别悬挂在模2.1地基的土质应坚硬牢实,如承载能力大于20吨/m 2,按图2要求加作基础。
否则,应按图3要求作桩基础。
2.2混凝土标号为C35以上,在基础内预埋有地脚螺栓,分布钢筋和受力钢筋等,基础的制作应严格按图2施工。
2.3混凝土基础的总混凝土量约35m 3,基础重量不小于84吨。
2.4基础表面应平整,并校水平,平面度误差应小于1/500。
2.5基础与基础节下端四个大大方法兰的连接处应用二次浇注的方法找平至水平,可用水平仪测量,其水平误差差值应小于1/1000。
QTZ80(6012)塔机基础制作说明书共4页第2页佛山市南海高达建筑机械有限公司3.5用水准仪将模板的四块钢板校平至相对误差≤1/500。
3.6将地脚螺栓的上部扶至竖直状态,然后在螺栓下端钩环内置入φ25的长度不小于400毫米的钢筋,并利用它将螺栓下部与绑扎好的钢筋焊接连接成为整体。
引言塔设备是化学工业,石油化工,生物化工,制药等生产过程中广泛采用的传质设备。
根据塔内气液接触构件的结构形式,可分为板式塔和填料塔两大类。
板式塔为逐级接触式气液传质设备,塔内设置一定数量的塔板,气体以鼓泡形式或喷射形式通过塔板上的液层,正常条件下,气相为分散相,液相为连续相,气相组成呈阶梯变化,它具有结构简单,安装方便,压降低,操作弹性大,持液量小等优点,被广泛的使用。
本设计的目的是分离苯—甲苯的混合液,故选用板式塔。
设计方案的确定和流程说明1.塔板类型精馏塔的塔板类型共有三种:泡罩塔板,筛孔塔板,浮阀塔板。
浮阀塔板具有结构简单,制造方便,造价低等优点,且开孔率大,生产能力大,阀片可随气流量大小而上下浮动,故操作弹性大,气液接触时间长,因此塔板效率较高。
本设计采用浮阀塔板。
2. 加料方式加料方式共有两种:高位槽加料和泵直接加料。
采用泵直接加料,具有结构简单,安装方便等优点,而且可以引入自动控制系统来实时调节流量及流速。
故本设计采用泵直接加料。
3. 进料状况进料方式一般有两种:冷液进料及泡点进料。
对于冷液进料,当进料组成一定时,流量也一定,但受环境影响较大;而采用泡点进料,不仅较为方便,而且不受环境温度的影响,同时又能保证精馏段和提馏段塔径基本相等,制造方便。
故本设计采用泡点进料。
4. 塔顶冷凝方式苯和甲苯不反应,且容易冷凝,故塔顶采用全凝器,用水冷凝。
塔顶出来的气体温度不高,冷凝后的回流液和产品无需进一步冷却,选用全凝器符合要求。
5. 回流方式回流方式可分为重力回流和强制回流。
本设计所需塔板数较多,塔较高,为便于检修和清理,回流冷凝器不适宜塔顶安装,故采用强制回流。
6. 加热方式加热方式分为直接蒸气和间接蒸气加热。
直接蒸气加热在一定回流比条件下,塔底蒸气对回流液有稀释作用,从而会使理论塔板数增加,设备费用上升。
故本设计采用间接蒸气加热方式。
7. 操作压力苯和甲苯在常压下相对挥发度相差比较大,因此在常压下也能比较容易分离,故本设计采用常压精馏。
精馏塔设计说明书1.1 塔型选择根据生产任务,若按年工作日330天,每天开动设备24小时,由于产品粘度较小,流量较大,为减少造价,降低生产过程中压降和塔板液面落差的影响,提高生产效率,选用浮阀塔。
1.2 有关的工艺计算 1.2.1 精馏塔的物料衡算以年工作日为330天,每天开车24小时计,进料量为:3200000101104/3302422.86F kmol h ⨯==⨯⨯由全塔的物料衡算方程可写出: 总物料 F D W =+易挥发组分 F D W Fx Dx Wx =+将0.1736,0.8182,0.0004,1104FD W kmolx x x F h ====代入全塔物料衡算方程得:D=234 kmol h ,W=870 kmol h塔顶易挥发组分的回收率=100%99.99%DFDx Fx ⨯= 塔底难挥发组分的回收率=(1)100%95.28%(1)W F W x F x -⨯=-1.2.2 塔板数的确定1.2.2.1 最小回流比及操作回流比的确定由于是泡点进料,0.1736e F x x ==,即过点(0.1736,0.1736)做直线0.1736x =交平衡线于点e ,由点e 可读得0.495e y =,因此:min 0.81820.4951.00560.4950.1736D e e e x y R y x --===--R (适宜)=(1.1~2)min R所以可取操作回流比 1.5R =理论塔板数的确定精馏段操作线方程:10.60.32711D n n n x Ry x x R R +=+=+++ 提馏段操作线方程:1 2.490.0006n m W m L W y x x x L W L W+''=-=-''--回流比R=1,则 1.557.8986.835kmol L RD h ==⨯=;因为是饱和液体进料,则q=1,86.835273.4360.235kmol L L F h'=+=+=q 线方程:0.1736x =在~y x 相图中分别画出上述直线,利用图解法可以求出T N =13 块(含塔釜)其中,精馏段11块,提馏2段块。
扬州大学课程设计(化工设备)设计题目:班级:姓名:学号:设计时间:指导教师:目录符号说明表一、前言………………………………………………………………………(一)课程设计的目的与任务……………………………………………(二)塔设备的概述(三)塔设备选材的原则及材料选择二、塔设备机械设计条件三、塔设备设计计算(一)塔设备材料性能参数确定(二)塔设备壁厚的确定(三)塔设备质量载荷计算(四)弯矩计算(五)应力计算(六)地脚螺栓的设计计算(七)裙座与壳体连接焊缝的强度校核(八)计算结果四、参考文献五、结束语附图符号说明表塔体外径,一、前言(一)课程设计的目的与任务(参见设计教材前言和第六章开头部分)(二)塔设备的概述(参见汤善甫教材和设计教材第六章,重点阐述塔的结构特点、组成部分、结构型式、功能等)(三)塔设备选材的原则及材料选择(参见汤善甫教材和设计教材)二、塔设备机械设计条件(参见设计教材)管口方位图三、 塔设备设计计算(一)塔设备材料性能参数确定主要指设计压力、设计温度、焊接接头系数、材料弹性模量、屈服极限、腐蚀裕量等。
(二)塔设备壁厚的确定塔底液面高度为2.23m(液封盘液面离下封头焊缝接头高度) 液柱静压力66H 1010909.59.81 2.230.02MPa 0.05p gh ρ--==⨯⨯⨯=> 计算压力c H 0.10.020.12MPa p p p =+=+=筒体计算厚度[]c tc0.1218000.9mm 21470.80.122p D p δσφ⨯===⨯⨯--封头计算厚度[]c tc0.1218000.9mm 21470.80.50.1220.5p D p δσφ⨯===⨯⨯-⨯-按刚度要求,筒体最小厚度 min 2218003.6mm 10001000D δ⨯=== 取厚度附加量3mm ,考虑到风载荷等影响,适当增加壁厚,设定筒体、封头和裙座的名义厚度均为8mm 。
则:塔壳的有效厚度δδ5mm 封头的有效厚度δδ5mm 裙座的有效厚度δδ (三)塔设备质量载荷计算() 塔体质量查附表【】,每米筒节质量356kg ;查附表,每个封头质量为224.4kg ;已知:筒体高度13.83m ,裙座高度为3m ;由此可得: 筒体质量: ××4923.5kg 封头质量: ×448.8kg 裙座质量: ×1068kg 塔体质量01m :011234923.5448.810686440.3k gm m m m =++=++= () 塔附属体质量1610.1kg 3644025025001a =⨯==..m .m()塔段内件质量查表 筛板塔盘单位面积质量65kg·kg..D n m 4330681420654652202=⨯⨯⨯=⨯⨯=ππ() 保温层质量封头保温层体积3’()[]h D D D D D D V ⨯-++⎥⎥⎦⎤⎢⎢⎣⎡⨯⎪⎭⎫ ⎝⎛-⎪⎭⎫ ⎝⎛+⨯⎪⎭⎫ ⎝⎛+=202si 0020si 02si 0,324424232δπδδπ⎥⎥⎦⎤⎢⎢⎣⎡⨯⎪⎭⎫ ⎝⎛-⎪⎭⎫ ⎝⎛+⨯⎪⎭⎫ ⎝⎛+=418162181610041816100218163222π()[]322m 4098.0251816100218164=⨯-⨯++π封头保温层质量3’kg ..V m ''912230040980233=⨯==ρ保温层总质量()[],sim H D m 320202032D -24++=ρδπ()[]kg 9.27419.122230010138301816-1002181649-22=⨯+⨯⨯⨯⨯+=π() 平台、扶梯质量塔体的人孔处安装层操作平台,共层,平台宽1m ,包角。
第一章绪论1.1 化工原理课程设计的目的和要求课程设计是《化工原理》课程的一个总结性教学环节,是培养综合运用本门课程及有关选修课程的基本知识去解决某一设计任务的一次训练。
在整个教学计划中,它也起着培养独立工作能力的重要作用。
1.2 精馏操作对塔设备的要求为了满足工业生产和需要,塔设备还得具备下列各种基本要求:(1) 气(汽)、液处理量大,即生产能力大时,仍不致发生大量的雾沫夹带、拦液或液泛等破坏操作的现象。
(2) 操作稳定,弹性大,即当塔设备的气(汽)、液负荷有较大范围的变动时,仍能在较高的传质效率下进行稳定的操作并应保证长期连续操作所必须具有的可靠性。
(3) 流体流动的阻力小,即流体流经塔设备的压力降小,这将大大节省动力消耗,从而降低操作费用。
对于减压精馏操作,过大的压力降还将使整个系统无法维持必要的真空度,最终破坏物系的操作。
(4) 结构简单,材料耗用量小,制造和安装容易。
(5) 耐腐蚀和不易堵塞,方便操作、调节和检修。
(6) 塔内的滞留量要小。
实际上,任何塔设备都难以满足上述所有要求,不同的塔型各有某些独特的优点,设计时应根据物系性质和具体要求,抓住主要矛盾,进行选型。
1.3板式塔类型在化学工业和石油工业中广泛应用的诸如吸收、解吸、精馏、萃取等单元操作中,气液传质设备必不可少。
塔设备就是使气液成两相通过精密接触达到相际传质和传热目的的气液传质设备之一。
塔设备一般分为级间接触式和连续接触式两大类。
前者的代表是板式塔,后者的代表则为填料塔,在各种塔型中,当前应用最广泛的是筛板塔与浮阀塔。
筛板塔在十九世纪初已应用与工业装置上,但由于对筛板的流体力学研究很少,被认为操作不易掌握,没有被广泛采用。
五十年代来,由于工业生产实践,对筛板塔作了较充分的研究并且经过了大量的工业生产实践,形成了较完善的设计方法。
筛板塔和泡罩塔相比较具有下列特点:生产能力大于10.5%,板效率提高产量15%左右;而压降可降低30%左右;另外筛板塔结构简单,消耗金属少,塔板的造价可减少40%左右;安装容易,也便于清理检修。
目录目录 (1)塔设备选型说明书 (1)1.1 塔型的选择原则 (1)1.2 填料塔和板式塔的比较 (1)1.2.1 板式塔塔型选择的一般原则 (2)1.2.2 板式塔的塔盘类型与选择 (3)1.2.3 填料塔填料选择 (4)1.3 塔型的结构与选择 (4)1.3.1 与物性有关的因素 (5)1.3.2 与操作条件有关的因素 (5)1.3.3 其他因素 (5)1.3.4 本厂实际情况的选择 (6)1.4 塔的设计 (6)1.4.1 塔的主要工艺尺寸计算 (7)1.5 CupTower校核 (18)1.6 塔负荷性能优化数据 (23)1.7 塔机械工程设计 (24)1.7.1 塔高的计算 (24)1.7.2 塔相关设计与校核参数 (25)1.7.3 SW6塔强度校核 (26)附塔设备一览表 (40)塔设备选型说明书1.1 塔型的选择原则精馏塔主要有板式塔、填料塔两种,它们都可以用作蒸馏和吸收等气液传质过程,但两者各有优缺点,要根据具体情况选择。
塔选型参考标准《固定式压力容器》GB 150-2011《压力容器封头》GB/T 25198-2010《石油化工塔器设计规范》SHT 3098-2011《钢制化工容器结构设计规定》HG/T 20583-2011《工艺系统工程设计技术规范》HG/T 20570-1995《塔顶吊柱》HG/T 21639-2005《不锈钢人、手孔》HG 21594-21604《钢制人孔和手孔的类型与技术条件》HG/T 21514-2005《钢制塔式容器》JB/T 4710-2005《钢制管法兰、垫片、紧固件》HG/T 20592~20635-20091.2 填料塔和板式塔的比较表1-1 精馏塔的主要类型及特点类型板式塔填料塔结构特点每层板上装配有不同型式的气液接触元件或特殊结构塔内设置有多层整砌或乱堆的填料,如拉西环、鲍尔环、鞍型填料等散装填料,格栅、波纹板等规整填料操作特点气液逆流逐级接触微分式接触,可采用逆流操作,也可采用并流操作类型板式塔填料塔设备性能空塔速度(亦即生产能力)高,效率高且稳定;压降大,液气比的适应范围大,持液量大,操作弹性小大尺寸空塔气速较大,小尺寸空塔气速较小;要求液相喷淋量较大,持液量小,操作弹性大制造与维修直径在600mm以下的塔安装困难,金属材料耗量大新型填料制备复杂,造价高,检修清理困难,可采用非金属材料制造,但安装过程较为困难适用场合处理量大,操作弹性大,带有污垢的物料处理强腐蚀性,液气比大,真空操作要求压力降小的物料1.2.1 板式塔塔型选择的一般原则选择时应考虑的因素有:物料性质、操作条件、塔设备性能及塔的制造、安装、运转、维修等。
《化工设备机械基础》塔设备设计课程设计说明书学院:木工学院班级:林产化工0 8学号:姓名:万永燕郑舒元分组:第四组目录前言................................................................ 错误!未定义书签。
摘要 (2)关键字 (2)第二章设计参数及要求 (2)1.1符号说明 (2)1.2.设计参数及要求 (3)33第二章材料选择 (4)2.1概论 (4)2.2塔体材料选择 (4)2.3 裙座材料的选择 (4)第三章塔体的结构设计及计算 (5)3.1 按计算压力计算塔体和封头厚度 (5)3.2 塔设备质量载荷计算 (5)3.3 风载荷和风弯矩 (6)3.4 地震弯矩计算 (7)3.5 各种载荷引起的轴向应力 (7)3.6 塔体和裙座危险截面的强度与稳定校核 (8)3.7 塔体水压试验和吊装时的应力校核 (9)3.7.1 水压试验时各种载荷引起的应力 (9)93.8塔设备结构上的设计 (10)1010板式塔的总体结构 (11)小结 (11)附录 (11)附录一有关部件的质量 (11)附录二矩形力矩计算表 (12)附录三螺纹小径与公称直径对照表 (12)参考文献 (12)前言摘要塔设备是化工、石油等工业中广泛使用的重要生产设备。
塔设备的基本功能在于提供气、液两相以充分接触的机会,使质、热两种传递过程能够迅速有效地进行;还要能使接触之后的气、液两相及时分开,互不夹带。
因此,蒸馏和吸收操作可在同样的设备中进行。
根据塔内气液接触部件的结构型式,塔设备可分为板式塔与填料塔两大类。
板式塔内沿塔高装有若干层塔板(或称塔盘),液体靠重力作用由顶部逐板流向塔底,并在各块板面上形成流动的液层;气体则靠压强差推动,由塔底向上依次穿过各塔板上的液层而流向塔顶。
气、液两相在塔内进行逐级接触,两相的组成沿塔高呈阶梯式变化。
填料塔内装有各种形式的固体填充物,即填料。
液相由塔顶喷淋装置分布于填料层上,靠重力作用沿填料表面流下;气相则在压强差推动下穿过填料的间隙,由塔的一端流向另一端。
气、液在填料的润湿表面上进行接触,其组成沿塔高连续地变化。
目前在工业生产中,当处理量大时多采用板式塔,而当处理量较小时多采用填料塔。
蒸馏操作的规模往往较大,所需塔径常达一米以上,故采用板式塔较多;吸收操作的规模一般较小,故采用填料塔较多。
板式塔为逐级接触式气液传质设备。
在一个圆筒形的壳体内装有若干层按一定间距放置的水平塔板,塔板上开有很多筛孔,每层塔板靠塔壁处设有降液管。
气液两相在塔板内进行逐级接触,两相的组成沿塔高呈阶梯式变化。
板式塔的空塔气速很高,因而生产能力较大,塔板效率稳定,造价低,检修、清理方便关键字塔体、封头、裙座、。
第二章设计参数及要求1.1符号说明Pc ----- 计算压力,MPa;Di ----- 圆筒或球壳内径,mm;[Pw]-----圆筒或球壳的最大允许工作压力,MPa;δ ----- 圆筒或球壳的计算厚度,mm;δn ----- 圆筒或球壳的名义厚度,mm;δe ----- 圆筒或球壳的有效厚度,mm;t ][δ----- 圆筒或球壳材料在设计温度下的许用应力,MPa ;t δ ------ 圆筒或球壳材料在设计温度下的计算应力,MPa ; φ ------ 焊接接头系数;C ------- 厚度附加量,mm ;1.2.设计参数及要求1.2.1设计参数1.2.2设计要求(1) 塔体内径Di =1200 mm,塔高近似取H=28680mm 。
(2) 计算压力MPa p c 20.0=,设计温度t=200℃。
(3) 设计地区:基本风压值20/400m N q =,地震设防烈度为8度,场地土类:Ⅰ类,设计地震分组:第二组,设计基本地震加速度为0.3g 。
(4) 塔内装有N=26层浮阀塔,每块塔盘上存留介质层高度为mm h w 60=,介质密度为31/5.794m kg =ρ。
(5) 沿塔高每6块塔板左右开设一个手孔,手孔数为3个,相应在手孔处安装半圆形平台3个,平台宽度为B=800mm ,高度为1000mm 。
(6) 塔外保温层的厚度为mm s 100=δ操作质量为./20003m kg m e =。
(7) 塔体与封头材料选用MnR 16,其中[][]MPa 170170==σσ,MPa t ,Mpa s 345=σ,(8) 裙座材料选用Q235-A 。
(9) 塔体与裙座对接焊接,塔体焊接接头系数85.0=φ。
(10) 塔体与封头厚度附加量C=2mm ,裙座厚度附加量C=2mm 。
第二章 材料选择2.1概论塔设备与其他化工设备一样,置于室外,无框架的自支承式塔体,绝大多数是采用钢材制造的。
这是因为钢材具有猪狗的强度和塑性,制造性能较好,设计制造的经验也比较成熟,因此,在大型的塔设备中,钢材更具有无法比拟的有点。
2.2塔体材料选择设计中塔体的材料选择是:MnR 16;塔体是塔设备的外壳,由等直径和等壁厚的圆筒和两个封头组成,塔体除满足工艺条件下的强度、刚度外,还应考虑风力、地震、偏心载荷所英气的强度、刚度问题,以及吊装、运输、检验、开停工作等的影响,所以选择塔体的材料很重要。
2.3 裙座材料的选择设计中裙座材料的选择是:Q A -235;塔体裙座是塔体安放到基础上的连接部分,它必须保证塔体坐落在确定位置上进行正常工作,为此,它应当具有足够的强大和刚度,能够承受各种操作情况下的全塔质量,以及风力、地震等引起的载荷。
第三章 塔体的结构设计及计算3.1 按计算压力计算塔体和封头厚度(1) 塔体厚度计算取δ=4mm ,考虑厚度附加量C=2mm ,经圆整,取mm n 8=δ,mm e 6=δ 。
(2) 封头厚度计算 采用标准椭圆形封头: []mm p D p c ti c 74.39.05.085.0170212009.02=⨯-⨯⨯⨯=-=φσδ, 取δ=4mm,考虑厚度附加量C=2mm 经圆整后,取mm n 8=δ,mm e 6=δ。
3.2 塔设备质量载荷计算1、筒体圆筒、封头、裙座质量01m圆筒质量: kg m 7.699038.262651=⨯= 封头质量:kg m 1562.11302=⨯=裙座质量: kg m 5822.22653=⨯=说明:(1)塔体圆筒的总高度为mm H 38.260=(2)查得mm DN 1200=,厚度mm 8的圆筒质量为m kg /265 (3)查得mm DN1200=,厚度mm 8的椭圆形封头质量为m kg /130(4)裙座高度为mm 20202、塔内构件质量02m(由表8-1查得浮阀塔盘质量为75kg/m 2) 3、保温层质量03m其中,'03m 为保温层的质量,kg 4、平台、扶梯质量04m()()[]()()[]kgH q nq D B D m FF pn i ni5262394015035.01.02008.022.1121.02008.022.1785.021222224222204=⨯+⨯⨯⨯⨯+⨯+-⨯+⨯+⨯+⨯=⨯+++-+++=δδδδπ说明:由表8-1查得,平台质量2/150m kg q p =;笼式扶梯质量m kg q F /40=;笼式扶梯总高m H F 39=;平台数量n=8。
4、 操作时物料质量05m说明:物料密度31/800m kg =ρ,塔釜圆筒部分深度h0=1.8m ,塔板层数N=42.,塔板上液层高度m h w 1.0=,由表4-21查得,封头容积33312.12414.324m D V i f =⨯=∏=。
5、 附件质量a m按经验取附件质量为kg m m a 1932837425.025.001=⨯==6、 冲水质量w mkgV H D m w f w w i w 321801000121000262.1785.02422=⨯⨯+⨯⨯⨯=+=ρρπ其中,3/1000m kg w =ρ8、各种质量载荷 :3.3 风载荷和风弯矩(1)风载荷计算示例(2)各段塔风载荷计算结果:(3)风弯矩计算3.4 地震弯矩计算3.5 各种载荷引起的轴向应力(1)计算压力引起的轴向拉应力 其中,)(628mm C n e =-=-=δδ (2)操作质量引起的轴向压应力 截面0-0令裙座厚度mm s 8=δ,有效厚度es is sb es D A mm δπδ==-=);(628。
截面1-1 式中,);(3152256632088220kg m =-=-sm A 为人孔截面的截面积,查相关标准得:258630mm A sm =截面2-2 其中,e i D A kg m δπ==--=-);(28373314956632088220。
(3)最大弯矩引起的轴向应力 截面0-0其中,).(100948.8107848.01031.78880000max mm N M M M e w ⨯=⨯+⨯=+=--截面1-1其中,).(1034.7107848.01056.68881111max mm N M M M e w ⨯=⨯+⨯=+=--sm Z 为人孔截面的抗弯截面系数,查相关标准得:327677000mm Z sm =。
截面2-2其中,).(102148.7107848.01043.68882222max mm N M M M e w⨯=⨯+⨯=+=--3.6 塔体和裙座危险截面的强度与稳定校核(1)塔体的最大组合轴向拉应力校核 截面2-2塔体的最大组合拉应力轴向发生在正常操作的2-2截面上。
其中,)(4.173][;2.1;85.0;170][Mpa K K Mpa t t ====φσφσ满足要求(2)塔体与裙座的稳定校核 截面2-2塔体截面2-2 上的最大组合轴向压应力 满足要求 其中,查图得(200,16MnR ℃)2.1,170][,115===K Mpa Mpa B tσ。
截面1-1塔体1-1截面上的最大组合轴向压应力 满足要求 其中,查图得(200,235AR Q -℃)2.1,113][,5.107===K Mpa Mpa B tσ。
截面0-0塔体0-0截面上的最大组合轴向压应力 满足要求其中,2.1;113][;5.107===K Mpa Mpa B tσ (3)各危险截面强度与稳定校核汇总3.7 塔体水压试验和吊装时的应力校核3.7.1 水压试验时各种载荷引起的应力1.试验压力和液柱静压力引起的环向应力 液柱静压力=0.06mpa2.试验压力引起的轴向拉应力3.最大质量引起的轴向拉应力4.弯矩引起的轴向应力3.7.2水压试验时应力校核1.筒体环向应力校核 T sσφσ>9.0 所以满足要求2.最大组合轴向拉应力校核又s φσσ9.022max <- 所以满足要求 3.最大组合轴向压应力校核[]{}s cr KB σσσσσ9.0,min 12.6722322222max =<=+=--- 满足要求3.8塔设备结构上的设计3.8.1基础环设计1基础环尺寸取 )(15003001200300mm D D is ob =+=+= 2.基础环应力校核 其中(1)mpa A gm Z M bb b 07.3000max max =+=-σ(2)mpa A gm Z M M bb e w b 587.13.0max 00max =++=-σ 取以上两者中的较大值mpa b 05.2max =σ,选用75号混凝土。