楼地面工程量计算实例
- 格式:pdf
- 大小:390.86 KB
- 文档页数:10
地面计算规则楼地面工程量计算例题第一章地面工程1、楼梯装饰定额中,包括了踏步、休息平台和楼梯踢脚线,但不能包括楼梯底面抹灰。
注解:误解楼梯间首层地面的踢脚线也包含在楼梯装饰定额中。
其实,楼梯间首层地面的高空踢脚线不包含在楼梯装饰定额中,楼梯装饰定额中只含楼梯踢脚线,而不在乎楼梯间踢脚线。
楼梯底面抹灰应执行天棚相应子目,往往漏算。
2、台阶、坡道、散水定额中,仅含面层的工料费用,不包括垫层。
注解:经常只计算台阶、坡道、散水的面层,而通济桥相应的垫层。
3、块料面层、木地板、活动地板,按图示尺寸以平方米计算。
扣除柱子所占的面积,门窗洞口、暖气槽和壁龛的开口部分工程量并入相应面层内。
注解:地板洞口的地面经常漏算。
4、块料踢脚、木踢脚按图示长度以米计算。
注解:门窗洞口的长度经常减掉,而侧面的踢脚往往漏算。
5、地面灰土垫层中的素土,定额中均一般利用原土,故不考虑买土的费用。
注解:特殊情况下,需要买土,而买土的费用常漏算。
6、石材图案镶贴应按镶贴正蓝旗图案的矩形面积计算,成品雕花按设计图案图案的面积计算。
注解:石材拼花常单独求解,而石材拼花的工程量未并无扣除,应按“算多少扣多少”的原则执行。
7、波打线一般为块料楼(地)面沿墙边四周所做的装饰线;宽度不等。
波打线按图示尺寸以平方米计算。
注解:地面四周的波打线常与地面面层合并计算,其实应单独计算。
8、找平层、整体面层按房间净面积以平方米计算,不扣除墙垛、柱、间壁墙及面积在0.3平方米以内孔洞所占到面积,但门窗洞口、暖气槽的面积也不不断增加。
注解:计算找平层、整体面层时常误把间壁墙所占面积减掉。
9、楼梯面层工程量按楼梯间净水平投影面积以平方米计算。
楼梯井宽在500mm 以内者不予扣除,超过500mm 者应扣除其面积。
注解:计算时,常先计算单层的楼梯面层工程量,然后乘于楼层数减1的(n —1)。
当楼顶为上能人屋面时,楼梯常通到楼顶,单层的楼梯面层工程量应乘于楼层数,而不是楼层数减1。
楼地面工程量计算案例
一、案例情况。
咱们就说有这么一个小长方形的房间,要做地面装修。
这个房间的长是5米,宽是4米。
地面就打算铺那种正方形的地砖,地砖的边长是0.5米。
二、整体楼地面面积计算。
首先呢,咱们得算出这个房间地面的总面积,这就简单啦,长方形的面积等于长乘以宽嘛。
那这个房间地面的面积就是5米×4米 = 20平方米。
这就是咱们要铺地砖的总面积啦。
三、单块地砖面积计算。
接下来算一下每块地砖的面积。
地砖是正方形的,正方形面积等于边长乘以边长。
那每块地砖的面积就是0.5米×0.5米 = 0.25平方米。
四、地砖块数计算。
最后呢,咱们就能算出需要多少块地砖啦。
用房间地面的总面积除以每块地砖的面积,也就是20平方米÷0.25平方米 = 80块。
不过呢,在实际工程里啊,你得考虑到切割啊、损耗啥的,所以一般会多准备几块地砖,以防万一。
比如说多准备个5块,那就得准备85块地砖。
你看,这楼地面工程量计算就这么简单一回事儿,就像搭积木一样,一块一块算清楚就好啦。
楼地面工程量计算例题
楼地面工程量计算是建筑工程中非常重要的一个环节,它涉及到对楼地面面积、材料用量以及施工成本等方面的计算。
下面我们来看一个楼地面工程量计算的例题,并对其进行拓展。
假设某楼地面的平面尺寸为20米*15米,要求采用PVC地板进行铺设。
根据设计要求,PVC地板的规格为0.3米*0.3米。
现在我们需要计算出铺设这个楼地面所需的PVC地板数量。
首先,我们需要计算出楼地面的总面积。
根据题目给出的尺寸,楼地面的面积为20米*15米=300平方米。
接下来,我们计算出每块PVC地板的面积。
根据题目给出的规格,每块PVC地板的面积为0.3米*0.3米=0.09平方米。
然后,我们将楼地面的总面积除以每块PVC地板的面积,即可得到所需的PVC
地板数量。
300平方米/0.09平方米=3333.33块。
由于地板不能分割,所以我们需要向上取整,得到所需的PVC地板数量为3334块。
除了计算PVC地板的数量,我们还需要考虑边角的地板切割和浪费。
通常情况下,边角部分的地板需要切割成适当的形状,而一些地板也会因为铺设不规范而导致浪费。
因此,在实际计算中,我们需要考虑到这些因素,并适当增加地板的数量。
此外,除了PVC地板的数量,我们还需要计算出所需的其他材料,例如地板胶水、地板踢脚线等。
这些材料的用量计算与PVC地板的计算类似,都需要根据设计要求和尺寸进行计算。
综上所述,楼地面工程量计算是一个综合性的工作,需要考虑到各种因素,包括面积计算、材料用量以及施工成本等。
通过合理的计算和规划,可以确保工程的顺利进行,并控制好成本。
工程量计算案例范文案例:地一座高层住宅小区的建设工程量计算一、项目背景二、工程量计算1.横向建筑工程量计算(1)高层住宅楼-结构工程量:主体结构总建筑面积×建筑面积综合系数×各项构件用量,其中建筑面积综合系数为1.2-安装工程量:根据建筑面积计算,包括电气安装、给排水等。
-装饰工程量:根据建筑面积计算,包括室内装修、外立面装饰等。
(2)商业综合体-结构工程量:主体结构总建筑面积×建筑面积综合系数×各项构件用量。
-安装工程量:根据建筑面积计算,包括空调、给排水等。
-装饰工程量:根据建筑面积计算,包括室内装修、外立面装饰等。
2.纵向建筑工程量计算考虑到该住宅小区将建设地下停车场,地上设有多层停车设施,还有电梯等垂直交通设备。
工程量计算包括:-结构工程量:地下停车场结构、多层停车设施结构等。
-安装工程量:电梯、空调、电气等。
-装饰工程量:室内装修、外立面装饰等。
3.基础设施工程量计算该住宅小区的基础设施包括供水、排水、供电、燃气等。
工程量计算包括:-水工程量:供水管道、供水设备、水泵等。
-排水工程量:排水管道、排水设备等。
-电工程量:电缆、电器设备等。
-燃气工程量:燃气管道、燃气设备等。
4.其他工程量计算为了满足住宅小区的运营需求,还需要考虑相关的其他工程量计算,包括绿化工程、道路工程、景观工程等。
三、总结该住宅小区的工程量计算涵盖了横向建筑、纵向建筑、基础设施以及其他工程的计算,这些数据将为项目实施提供参考,并为合理安排资源和制定预算提供支持。
工程量计算作为工程项目管理的一项重要任务,必须准确、细致地进行,以确保工程项目的顺利进行。
楼地面工程量计算规则
计算规则:楼地面装饰面积按饰面的净面积计算,不扣除0.1m2以内的孔洞所占面积,拼花部分按实贴面积计算
1)楼地面面层
计算规则:楼地面装饰面积按饰面的净面积计算,不扣除0.1m2以内的孔洞所占面积,拼花部分按实贴面积计算。
计算公式:楼地面面层工程量=房间净长X房间净宽-0.1m2以上的孔洞所占面积
2)楼梯面层
计算规则:楼梯面积(包括踏步、休息平台以及小于50mm宽的楼梯井)按水平投影面积计算。
计算公式:楼梯面层工程量=楼梯间水平投影净面积一大于50mm宽楼梯井面积
3)台阶面层
计算规则:台阶面层(包括踏步及最上一层踏步沿300mm)按水平投影面积计算
计算公式:台阶面层工程量=(台阶水平投影长+300mm)X台阶宽
4)踢脚线
计算规则:踢脚线按实贴长乘以高,按m2计算,成品踢脚线按实贴延长米计算。
按相应定额乘以1.15系数。
计算公式:楼地面踢脚线工程量=实贴长X踢脚板高
楼地面踢脚线工程量(成品)=实贴延长米
楼梯踢脚线工程量二实贴长X踢脚板高X1.15
楼梯踢脚线工程量(成品)=实贴延长X踢脚板高X1.15
5)栏杆、栏板、扶手
计算规则:栏杆、栏板、扶手均按其中心线长度与延长米计算,计算扶手时不扣除弯头所占长度。
计算公式:栏杆、栏板、扶手工程量=各跑楼梯X斜长系数+平台、栏杆、栏板、扶手长度。
6)弯头及零星项目
计算规则:弯头工程量按个计算;零星项目按实铺面积计算。
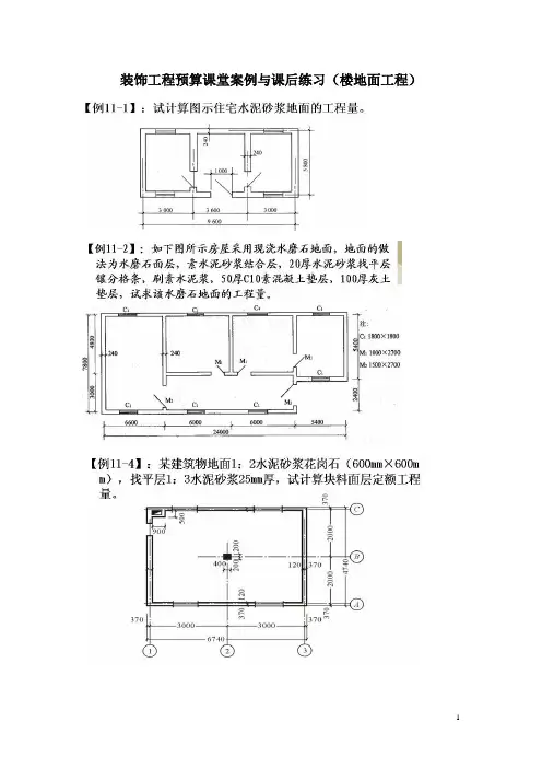
装饰工程预算课堂案例与课后练习(楼地面工程)
课后练习
【9】某高校实习工厂如图所示,要求地面做现浇整体水磨石面层,试计算其工程量。
【10】如图所示,地面、踢脚线铺贴花岗岩面层,踢脚线高150mm,其工程量又该是多少?
【11】如图所示建筑平面,室内地面为普通水磨石面层,普通水磨石踢脚线,踢脚线高150mm。
M-1外台阶长度为7m,室外散水为C10混凝土,宽800mm,厚80mm,试分别计算普通水磨石面层,普通水磨石踢脚线和散水的清单工程量、定额工程量。
【12】某工程楼梯如图所示,计算其楼梯的工程量。
【13】某建筑物门前台阶如图所示,试计算贴大理石台阶面层的工程量。
【14】某建筑平面如图所示,墙厚240mm,室内铺设500mm ×500mm中国红大理石,试计算大理石地面的工程量。
【15】在如图所示中,若室内铺设600mm ×75 mm ×18mm实木地板,柚木UV漆板、四面企口,木龙骨50mm ×30mm ×500mm。
试计算木地板
地面的工程量。
【16】某建筑物内一楼梯如图所示,同走廊连接,采用直线双跑形式,墙厚240mm,梯井300mm宽,楼梯满铺芝麻白大理石,试计算其工程量。
【17】计算图所示室内贴150mm高中国红大理石踢脚线的工程量。
楼地面铺贴工程量计算公式楼地面铺贴工程是建筑工程中的重要环节之一,其质量直接影响到整个建筑的美观度和使用寿命。
在进行楼地面铺贴工程时,需要对铺贴的材料和工程量进行准确的计算,以确保工程的顺利进行和质量的保证。
本文将介绍楼地面铺贴工程量的计算公式及其相关内容。
1. 铺贴材料的计算。
在进行楼地面铺贴工程时,首先需要计算铺贴材料的用量。
铺贴材料一般包括瓷砖、地板砖、胶水等。
其计算公式如下:铺贴材料用量 = 铺贴面积×材料用量系数。
其中,铺贴面积为实际需要铺贴的面积,材料用量系数是指铺贴材料在铺贴过程中的损耗系数,一般为1.05-1.1。
通过该公式可以计算出铺贴材料的准确用量,以确保在施工过程中不会出现材料不足或者浪费的情况。
2. 胶水的计算。
胶水是楼地面铺贴工程中必不可少的材料,其用量的计算也是十分重要的。
胶水的计算公式如下:胶水用量 = 铺贴面积×胶水用量系数。
其中,铺贴面积同样为实际需要铺贴的面积,胶水用量系数是指在铺贴过程中所需的胶水用量与铺贴面积的比值。
一般来说,胶水用量系数为0.8-1.2。
通过该公式可以计算出胶水的准确用量,以确保铺贴的牢固性和美观度。
3. 辅材的计算。
除了铺贴材料和胶水外,楼地面铺贴工程中还需要考虑到一些辅助材料的用量,如防水剂、勾缝剂等。
其计算公式如下:辅材用量 = 铺贴面积×辅材用量系数。
其中,辅材用量系数是指在铺贴过程中所需的辅材用量与铺贴面积的比值。
通过该公式可以计算出辅材的准确用量,以确保楼地面铺贴工程的质量和耐久性。
4. 总工程量的计算。
最后,通过以上三个方面的计算,可以得到楼地面铺贴工程的总工程量。
其计算公式如下:总工程量 = 铺贴材料用量 + 胶水用量 + 辅材用量。
通过以上公式的计算,可以得到楼地面铺贴工程所需的材料和辅助材料的准确用量,以确保施工过程中的顺利进行和工程质量的保证。
总结。
楼地面铺贴工程量的计算是建筑工程中的重要环节,其准确性直接关系到工程的顺利进行和质量的保证。
单元7 楼地面工程量计算
[讲义编号NODE95104600070100000101:针对本讲义提问
[讲义编号NODE95104600070100000102:针对本讲义提问
[讲义编号NODE95104600070100000103:针对本讲义提问
[讲义编号NODE95104600070100000104:针对本讲义提问
图1.1
【答案】1.水磨石整体面层工程量清单的编制
[讲义编号NODE95104600070100000105:针对本讲义提问[讲义编号NODE95104600070100000106:针对本讲义提问
[讲义编号NODE95104600070100000107:针对本讲义提问
[讲义编号NODE95104600070100000108:针对本讲义提问[讲义编号NODE95104600070100000109:针对本讲义提问
[讲义编号NODE95104600070100000110:针对本讲义提问
料),不扣除点缀所占的面积,点缀面积按实计算,套相应定额子目。
[讲义编号NODE95104600070100000111:针对本讲义提问
[讲义编号NODE95104600070100000112:针对本讲义提问
【答案】1.块料面层工程量清单的编制
[讲义编号NODE95104600070100000113:针对本讲义提问[讲义编号NODE95104600070100000114:针对本讲义提问[讲义编号NODE95104600070100000115:针对本讲义提问
[讲义编号NODE95104600070100000116:针对本讲义提问
【答案】工程量=(3.9-0.24)×(3+3-0.24)+(5.1-0.24)×(3-0.24)[讲义编号NODE95104600070100000117:针对本讲义提问
[讲义编号NODE95104600070100000118:针对本讲义提问
[讲义编号NODE95104600070200000101:针对本讲义提问
[讲义编号NODE95104600070200000102:针对本讲义提问
【例5】某房屋平面如图1.4所示,室内水泥砂浆粘贴200mm高预制水磨石踢脚板,计算工程量。
图1.4
【答案】踢脚板工程量=[(8.00-0.24+6.00-0.24)×2+(4.00-0.24+3.00-0.24)×2-[讲义编号NODE95104600070200000103:针对本讲义提问
[讲义编号NODE95104600070200000104:针对本讲义提问
[讲义编号NODE95104600070200000105:针对本讲义提问[讲义编号NODE95104600070200000106:针对本讲义提问
[讲义编号NODE95104600070200000107:针对本讲义提问[讲义编号NODE95104600070200000108:针对本讲义提问
【例7】某学院办公楼入口台阶如图1.6所示,花岗石贴面,试计算其台阶装饰工程量。
【答案】工程量=(4+0.3×2)×(0.3×2+3)-(3-0.3)×(4-0.3)=16.56-9.99=[讲义编号NODE95104600070200000109:针对本讲义提问
【答案】工程量清单编制
[讲义编号NODE95104600070200000110:针对本讲义提问。