给水工程普通快滤池设计说明书
- 格式:doc
- 大小:76.02 KB
- 文档页数:11
普通快滤池计算(说明:设计水量为3255m 3/d —学号*10 m 3/d ) 设计水量:d m Q 34255.3101.305.1=⨯⨯= 设计数据:滤速h m V 10=,冲洗强度2.14m s l q =,冲洗时间6min 。
计算:1、 滤池面积及尺寸:工作时间24小时,冲洗周期:12小时。
实际工作时间:h T 3.235.012241.024=--= 滤池面积:264.1363.231031836m VT Q F =⨯== 采用滤池数为四个,单行布置,每个滤池的面积为34.162m 。
采用滤池长宽比为:左右3=bl 。
采用滤池尺寸为:m B m L 4,6.8== 校核强制滤速:h m N NV V 3.131/=-=2、 滤池高度支承高度:m H 45.01=滤料层高:m H 7.02=砂面上水深:m H 8.13=超高:m H 3.04=滤池总高:m H H H H H 25.34321=+++=3、配水系统A .干管 干管流量s l fg q g 24.4781416.34=⨯==。
采用管径为800mm (干管埋入池底,顶部设滤头或开孔)B .支管支管中心间距:采用m a j 3.0= 每池支管数:支583.573.06.822≈=⨯=⨯=a l n j 每根入口流量:s l n q q j gj 25.85824.478===采用管径:85mm支管始端流速为:1.45m/sC .孔眼布置支管孔眼总面积与滤池面积之比k 采用0.25%孔眼总面积:22854000854.016.34%25.0mm m Kf F K ==⨯==采用孔眼直径:10mm每个孔眼面积:78.52mm孔眼数:1088个每根支管孔眼数:19个支管孔眼布置设二排与垂线450夹角向下交错排列:每根支管长度:()()m d B L g J 7.16.045.05.0=-=-= 每排孔眼中心距m n L a k J k 18.0195.07.15.0=⨯== D .孔眼水头损失支管采用壁厚6mm ,孔眼直径与壁厚之比为:1.67,流量系数为0.68,所以水头损失为m g k q g h k 5.325.068.0101421102122=⎪⎭⎫ ⎝⎛⨯⨯=⎪⎪⎭⎫ ⎝⎛=μ E .复算配水系统支管长度与直径之比不大于60:608.18807.1≤==j J d L 孔眼总面积与支管总截面积之比为0.259小于0.5,符合要求。
普通快滤池设计计算书1. 设计数据1.1设计规模近期360000/m d1.2滤速8/v m h =1.3冲洗强度215/s m q L =⋅1.4冲洗时间6min1.5水厂自用水量5%2.设计计算2.1滤池面积及尺寸设计水量31.056000063000m /Q d =⨯=滤池工作时间24h ,冲洗周期12h 滤池实际工作时间24240.123.812T h =-⨯=(式中只考虑反冲洗停用时间,不考虑排放初滤水) 滤池面积263000330.88823.8Q F m vT ===⨯ 采用滤池数8N =,布置成对称双行排列 每个滤池面积2330.8841.368F f m N === 采用滤池尺寸1:2=BL 左右 采用尺寸9L m =, 4.6B m = 校核强制滤速889.14/181Nv v m h N ⨯===--强 2.2滤池高度支承层高度10.45H m =滤料层高度20.7H m =砂面上水深32H m =超高(干弦)40.3H m =滤池总高12340.450.720.3 3.45H H H H H m =+++=+++=2.3配水系统(每只滤池)2.3.1干管干管流量·41.3615620.4/g q f g L s ==⨯= 采用管径800g d mm =(干管埋入池底,顶部设滤头或开孔布置) 干管始端流速 1.23/g v m s =2.3.2支管支管中心间距0.25z a m = 每池支管数922720.25z z L n a =⨯=⨯=根(每侧36根) 每根支管长 4.60.80.3 1.752z l m --== 每根支管进口流量620.48.62/72g z z q q L s n === 采用管径80z d mm = 支管始端流速 1.72/z v m s =2.3.3孔口布置支管孔口总面积与滤池面积比(开孔比)0.25%α= 孔口总面积20.25%41.360.1034k F f m α=⨯=⨯= 孔口流速0.62046/0.1034k v m s == 孔口直径9k d mm = 每个孔口面积225263.6 6.36104k k f d mm m π-=⨯==⨯ 孔口总数250.103416266.3610k k k F N m f -==≈⨯个 每根支管孔口数16262372k k z N n n ==≈个 支管孔口布置设两排,与垂线成045夹角向下交错排列 每根支管长 4.60.80.3 1.752z l m --== 每排孔口中心距 1.750.150.50.523z k k l a m n ===⨯⨯水支管孔眼布置图2.3.4孔眼水头损失支管壁厚采用5mm δ= 孔眼直径与壁厚之比9 1.85kd δ== 查表得流量系数0.68μ= 水头损失21115421029.8100.680.25k q h m g μα⎛⎫⎛⎫==⨯= ⎪ ⎪⨯⨯⨯⎝⎭⎝⎭ 2.3.5复算配水系统支管长度与直径之比不大于601.7521.875600.08z z l d ==≤ 孔眼总面积与支管总横截面积之比小于0.520.10340.290.51720.084k z z F n f π==≤⨯⨯⨯ 干管横截面积与支管总横截面积之比为1.75~2.02210.84 1.7691720.084g z z f n f ππ⨯⨯==⨯⨯⨯ 2.4洗砂排水槽洗砂排水槽中心距02a m = 排水槽根数0 4.6 2.322n ==≈根 排水槽长度09l L m ==每槽排水量30111541.36310.2/0.3102/22Q qf L s m s ==⨯⨯== 采用三角形标准断面槽中流速00.6/v m s =槽断面尺寸0.40.400.450.450.31020.28x Q m ==⨯= 排水槽底厚度m 05.0=δ砂层最大膨胀率45%e =砂层高度20.7H m =洗砂排水槽顶距砂面高度2 2.50.070.450.7 2.50.280.050.07 1.14H eH x m δ=+++=⨯+⨯++= 洗砂排水槽总平面面积2000220.289210.08F xl n m ==⨯⨯⨯= 复算:排水槽总平面面积与滤池面积之比一般小于25% 010.0824.37%25%41.36F f ==≤ 2.5滤池各种管渠计算2.5.1进水进水总流量33163000/0.729/Q m d m s ==采用进水渠断面渠宽10.9B m =,水深10.75H m = 渠中流速11110.729 1.08/0.90.75Q v m s B H ===⨯ 各个滤池进水管流量320.7290.091/8Q m s == 采用进水管直径2350D mm =管中流速20.95/v m s =2.5.2冲洗水冲洗水总流量331541.36620.4/0.6204/Q q f L s m s =⨯=⨯== 采用管径3600D mm =管中流速3 2.2/v m s =2.5.3清水清水总流量3410.729/Q Q m s ==清水渠断面同进水渠断面(便于布置)每个滤池清水管流量3520.091/Q Q m s ==采用管径5300D mm =管中流速5 1.29/v m s =2.5.4排水排水流量3630.6204/Q Q m s ==排水渠断面宽度60.8B m =,60.6H m =渠中流速6 1.29/v m s =2.6冲洗水箱冲洗时间6min t =冲洗水箱容积31.5 1.51541.36660335W qft m ==⨯⨯⨯⨯= 水箱底至滤池配水管之间的沿途及局部水力损失之和1 1.0h m = 配水系统水头损失2 4.0k h h m ==承托层水头损失310.0220.0220.45150.15h H q m ==⨯⨯= 滤料层水头损失1402 2.65(1)(1)(1)(10.41)0.70.681h m H m γγ=--=--⨯= 安全富余水头5 1.5h m =冲洗水箱底应高出洗砂排水槽面012345140.150.68 1.57.33H h h h h h m =++++=++++=。
普快滤池计算说明书一、 已知数据:设计水量Q=1.10×100=110m 3/h=0.03 m 3/s (包括自用水量10%) 滤速v=8m/h冲洗强度q=15L/s·㎡冲洗时间T=6min二、 计算:1、 滤池面积及尺寸:滤池冲洗周期为24小时滤池面积:F=8110=v Q =13.75㎡ 采用滤池数N=1 采用滤池长宽比=BL 1.5 采用滤池尺寸L=4.5m ,B=3.0m实际滤速为v=0.35.4110⨯=8.15 2、 滤池高度:采用滤头滤板小阻力配水系统配水室高度H 1=0.65m滤板厚度H 2=0.10m承托层厚度H 3=0.10m滤料层厚度H 4=0.80m砂面上水深H 5=1.50m超高H 6=0.30m故滤池总高H= H 1+ H 2+H 3 +H 4 +H 5 +H 6=0.65+0. 10+0.10+0.80+1.50+0.30=3.45m所以滤池总尺寸为:4.5×3.0×3.45m3、 洗砂排水槽洗砂排水槽中心距采用a 0=1.5m排水槽根数n 0=25.10.3=根 排水槽长度L=4.5m每槽排水量q 0=qLa 0=15×4.5×1.5=101.25L/s采用三角形标准断面槽中流速采用v 0=0.6m/s槽断面尺寸x==00100021v q 6.0100025.10121⨯=0.205m,取0.21m 砂层膨胀率e=45%砂层厚度h=0.80m砂层膨胀高度eh=0.45×0.8=0.36m ,取0.35m洗砂排水槽总平面面积F 0=2xLn 0=2×0.21×4.5×2=3.78㎡ 复核:排水槽总平面面积与滤池面积之比,一般小于25% %25%280.35.478.30≈=⨯=f F 4、 滤池各种管路计算1) 进水管:进水管流量Q 1=Q=0.03 m 3/s取进水流速为v=1.0m/s进水管管径D 1=114.303.0441⨯⨯=V Q π=0.195m ,取0.2m 2) 清水管:滤池出水量Q 2=Q 1=0.03m 3/s取清水流速为v=1.0m/s滤池清水管管径D 2=114.303.0442⨯⨯=V Q π=0.195m,取0.2m 3) 反冲洗水管:滤池反冲洗水量Q 3=0.015×4.5×3.0=0.2025m 3/s 取反冲洗流速为v=2.25m/s滤池反冲洗水管管径D 3=25.214.32025.0443⨯⨯=V Q π=0.339m,取0.35m 4)排水管单格滤池反冲洗排污量Q 4=Q 3=0.015×4.5×3.0=0.2025m 3/s 取排水流速为v=1.5m/s滤池排水管管径D 4=5.114.32025.0444⨯⨯=V Q π=0.415m,取0.40m 5)反冲洗水泵Q=qfH=H 0+h 1+h 2+h 3+h 4+h 5式中q —冲洗强度(L/s·㎡)Q —水泵出水量(L/s )f —滤池面积(㎡)H —所需水泵扬程(m ) H 0—洗砂排水槽顶与清水池最低水位高差(m )取8m h 1—清水池与滤池间冲洗管的沿程水头损失与局部水头损失之和(m ),取2mh 2—配水系统水头损失(m )取0.5m h 3—承托层水头损失(m ) h 4—滤层水头损失(m ) h 5—富余水头,取1~2m所以Q=15×4.5×3.0=202.5L/s=729m 3/h h 3=0.022×0.1×15=0.033mh 4=()=-⎪⎭⎫ ⎝⎛-40111H m r r ()8.041.011165.2⨯-⎪⎭⎫ ⎝⎛-=0.79m H=8+2+0.5+0.033+0.79+2=13.32m 所以反冲水泵参数如下:Q=729m 3/h ,H=13.32m型号为:350S-16A扬程H=8.6~13.7m流量Q=800~1167m功率N=55kw。
普通快速滤池设计方法•普通快滤池滤料一般为单层细砂级配滤料或煤、砂双层滤料,冲洗采用单水冲洗,冲洗水由水塔(箱)或水泵供给。
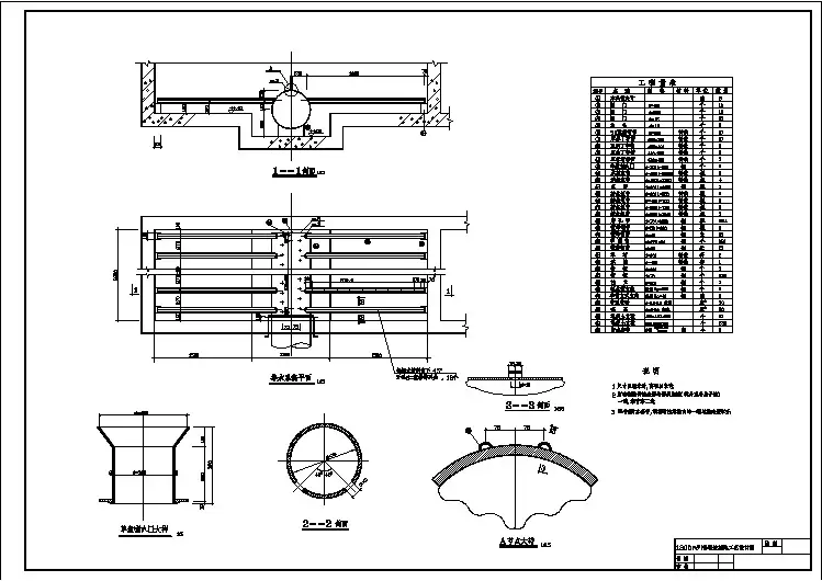
普通快滤池结构示意图见图14-7。
•普通滤池适用条件(1)一般适用于大、中型水厂,为避免冲洗不均匀,单池面积不宜超过50m2。
(2)可与平流沉淀池或斜管沉淀池组合使用;(3)普通快滤池高度包括承托层、滤料层、砂面上水深以及超高,一般总高度在3.2-3.6m。
•普通滤池有那些要求(1)滤料粒径可根据需要做出调整,粗粒滤料可达1.2-2.0mm,冲洗强度亦应作相应调整,有条件时可改造为气水联合冲洗;(2)根据污水性质需选择耐腐蚀滤料,如多孔陶粒、瓷砂等;(3)处理含金属离子或荷ξ电位较高粒子的废水,可设活性炭滤层来提高处理效果;(4)反冲洗水力分级大,砂粒不均匀系数(K80)应尽可能小,以免滤池水头损失增大。
(5)宜采用大阻力配水系统;(6)滤层表面以上的水深宜采用 1.5-2m;(7)普通快滤池设计过滤周期为12-24h;(8)滤池底部宜设有排空管,其入口处设栅罩,池底坡度约0.005;(9)配水系统干管末端一般装排气管,管径为32一40mm,排气管伸出滤池顶处应加截止阀;(10)DN≥300的阀门及冲洗阀门一般采用电动阀或气动阀;(11)每格滤池应设水头损失计及取样管;(12)密封渠道应设检修人孔。
•快滤池设计要求与参数1.滤料与滤速滤料与滤速的设计参见滤池的工艺组成中表14-1、表14-2。
2.滤池①滤池总面积 F滤池总面积F按公式确定:F=Q/v(T0-t0) 式中F滤池总过滤面积,m2;Q-设计水量,m3/d;v-设计滤速,m/h;T0-滤池每日工作时间,h;t0-滤池每日冲洗过程的操作时间,h。
②滤池个数滤池个数一般不少于两个。
滤池个数多,单池面积小,配水均匀,冲洗效果好,滤池总面积和格数可参见表14-8采用。
•③单池尺寸单个滤池面积按式计算:f=F/N 式中:f-单个滤池面积,m2;F-滤池总面积,m2m;N-滤池个数。
给水课程设计普通快滤池一、课程目标知识目标:1. 学生能够理解普通快滤池的工作原理及其在给水处理中的重要性;2. 学生能够掌握普通快滤池的组成部分及各部分的功能;3. 学生能够描述普通快滤池的运行过程,包括滤料的选择、过滤速度的控制等。
技能目标:1. 学生能够运用所学知识分析给水处理中普通快滤池的操作过程;2. 学生能够设计简单的普通快滤池实验,并通过实验数据进行分析和总结;3. 学生能够运用图表、文字等形式,清晰、准确地表达普通快滤池的相关知识。
情感态度价值观目标:1. 学生能够认识到给水处理工程在环境保护和水资源利用方面的重要性,培养环保意识和责任感;2. 学生通过学习普通快滤池的原理和应用,激发对水处理技术的兴趣,提高学习热情;3. 学生在学习过程中,培养合作、探究、创新的精神,形成积极向上的学习态度。
课程性质:本课程为给水处理技术的实践教学,以理论联系实际为原则,注重培养学生的实践操作能力和分析解决问题的能力。
学生特点:初三学生具备一定的物理、化学基础知识,对实验操作有浓厚兴趣,但需加强理论知识与实际应用的结合。
教学要求:结合学生特点和课程性质,注重启发式教学,引导学生通过实践探究,将理论知识转化为实际操作能力,提高学生的综合素质。
在教学过程中,关注学生的情感态度价值观的培养,使学生在掌握知识技能的同时,形成正确的价值观。
通过分解课程目标为具体的学习成果,为后续教学设计和评估提供明确方向。
二、教学内容1. 普通快滤池的工作原理及重要性:介绍普通快滤池在给水处理中的作用,滤除水中悬浮物和部分胶体,保证水质的清洁。
教材章节:《给水工程》第四章第三节“过滤处理”。
2. 普通快滤池的组成部分及功能:分析滤池的构成,包括滤料层、承托层、配水系统等,并阐述各部分的作用。
教材章节:《给水工程》第四章第三节“过滤处理的设备与材料”。
3. 普通快滤池的运行过程:讲解滤料的选择、过滤速度的控制、反冲洗等过程,使学生了解滤池的运行机制。
普通快滤池课程设计书一、课程目标知识目标:1. 学生能够理解普通快滤池的基本概念和原理,掌握其组成部分及功能。
2. 学生能够掌握普通快滤池在给水处理中的应用和操作流程。
3. 学生能够了解普通快滤池与其他类型滤池的优缺点对比。
技能目标:1. 学生能够运用所学知识,分析给水处理过程中普通快滤池的工作原理和操作要点。
2. 学生能够通过实际案例分析,设计并优化普通快滤池的运行参数,提高处理效果。
3. 学生能够运用数据分析和评价方法,对普通快滤池的处理效果进行评估。
情感态度价值观目标:1. 培养学生对给水处理技术的兴趣,激发他们学习环境保护和水资源利用的责任感。
2. 培养学生团队合作精神,学会在小组讨论中倾听、尊重他人意见,共同解决问题。
3. 培养学生关注社会热点问题,认识到普通快滤池在水资源保护中的重要性,树立环保意识。
课程性质:本课程为环境科学相关学科的中等难度课程,结合实际案例,注重理论与实践相结合。
学生特点:学生为八年级学生,具备一定的物理和化学基础,对环境保护和水资源利用有一定了解。
教学要求:通过本课程的学习,使学生在掌握普通快滤池相关知识的基础上,提高分析问题、解决问题的能力,培养学生的环保意识和实践操作技能。
教学过程中注重启发式教学,引导学生主动探究,提高学习效果。
二、教学内容1. 普通快滤池基本概念:滤池的定义、分类及普通快滤池的特点。
2. 普通快滤池工作原理:过滤介质、滤层结构、过滤过程及过滤机理。
3. 普通快滤池的组成部分:滤池壳体、滤料、反冲洗设备、进出水系统等。
4. 普通快滤池在给水处理中的应用:处理流程、运行参数优化、操作注意事项。
5. 普通快滤池与其他类型滤池的对比:不同类型滤池的性能、适用范围及优缺点分析。
6. 案例分析:选取具有代表性的普通快滤池工程案例,分析其设计、运行及优化过程。
7. 数据分析与评价:介绍评价普通快滤池处理效果的方法和指标,如滤速、过滤周期、水头损失等。
3.12普通快滤池的设计3.12.1设计参数设计水量Qmax=22950m3/d=0.266m3/采用数据:滤速)m (s /14q s /m 10v 2•==L ,冲洗强度 冲洗时间为6分钟3.12.2普通快滤池的设计计算(1) 滤池面积及尺寸:滤池工作时间为24h ,冲洗周期为12h ,实际工作时间T=h 8.2312241.024=⨯-,滤池面积为2m 968.231022950v =⨯==T Q F 采用4个池子,单行行排列2m 24496N F f === 采用池长宽比 L/B=1.5左右,则采用尺寸L=6m 。
B=4m 校核强制滤速m 3.131-41041-N Nv v =⨯==‘ (2) 滤池高度:支撑层高度:H1=0.45m滤料层高度:H2=0.7m砂面上水深: H3=1.7m保护高度: H4=0.3m总高度: H=3.15m(3)配水系统1.干管流量:s /3361424fq q g L =⨯==采用管径s /m 19.1v mm 600d g g ==,始端流速2.支管:支管中心距离:采用,m 25.0a j = 每池支管数:根480.2562a 2n j =⨯=⨯=L m/s 6.1mm 75L/s 04.784/336n q q j g j ,流速,管径每根支管入口流量:==3.孔眼布置:支管孔眼总面积占滤池总面积的0.25%孔眼总面积:2k m m 6000024%25.0Kf F =⨯==采用孔眼直径m m 9d k = 每格孔眼面积:22k mm 6.634d f ==π 孔眼总数9446.6360000f F N k k k === 每根支管空眼数:个2048/944n n jk k ===N 支管孔眼布置成两排,与垂线成45度夹角向下交错排列, 每根支管长度:m 7.16.0421d 21l g j =-=-=)()(B 每排孔眼中心数距:17.0205.07.1n 21l a k jk =⨯=⨯= 4.孔眼水头损失:支管壁厚采用:mm 5=δ流量系数:68.0=μ水头损失:hm 5.3K 101g 21h 2k ==)(μ 5.复算配水系统:管长度与直径之比不大于60,则6023075.07.1d l j j<== 孔眼总面积与支管总横面积之比小于0.5,则 33.1075.0464d 4f n g 2j j k =⨯=)()(ππF 孔眼中心间距应小于0.2,则2.017.0a k <=(4) 洗砂排水槽洗砂排水槽中心距m 2a 0= 排水槽根数:根224n 0==排水槽长度:m 6l 0= 每槽排水量:L/s1682614a ql q 000=⨯⨯== 采用三角形标准断面。
●滤池间设计过滤是三级处理的重要环节,是确保出水达到高级标准的必要处理单元。
过滤可以除大部分悬浮物和胶体,在降低出水SS 的同时,还可以有效的降低出水的COD 、BOD 、NH 3-N 和TP 。
污水三级处理中常用的过滤设施按过滤介质不同可分为成床过滤(也称为深层过滤)和表面过滤。
普通快滤池的布置,根据其规模大小,采用单排或双排布置、是否设中央渠、反冲洗方式、配水系统形式以及所在地区房东要求等,可布置成许多形式。
应使阀门集中、管路简单、便于操作管理和安装检修。
已知:设计水量:20000m 3/d 日变化系数:1.2冲洗强度:15L/(m 2.s) 冲洗时间:6min1、滤池工作时间滤池工作时间24h ,冲洗周期24h ,滤池实际工作时间:9.2324240.1-24=⨯=T h (式中0.1代表反冲洗停留时间;只考虑反冲洗停用时间,不考虑排放初滤水时间)2、设计处理水量Q=2×104 m 3/d=0.231 m 3/s 日变化系数1.2Q max =1.2×Q=24000 m 3/d=0.278 m 3/s=1000 m 3/h3、滤池面积及尺寸由《室外给水设计规范》:《污水再生利用工程设计规范》:《污水过滤处理工程技术规范》:综合比较,本次设计滤池采用石英砂单层滤料,设计滤速取v1=6m/s滤池面积为:F=Q max / (v1× T)=1.2×Q /(v1× T) =24000/(6×23.9)=167.36 m2≈168 m2由手册3,表9-16得到滤池个数N=4格,每个滤池面积f= F/N=42(m2)由手册3,表9-11,采用滤池长宽比L/B=2:1~4:1取L/B=2左右,L=7,B=6,实际滤池面积L×B=42 m2实际滤速v1=24000 m3/d ×24 h / ( 23.9h ×4×40m2) =5.98m/h(基本符合7-9m/h)校核强制滤速v'= N×v1 /(N-1)=6.98 m/h4、滤池高度1)承托层高度H1=150mm,采用卵石(《给水规范》,采用滤头配水系统时。
普通快滤池工艺设计与计算一、滤池面积和尺寸1、滤池工作时间为24h ,冲洗周期为12h ,滤池实际工作时间为:h T 8.2312241.024=⨯-= 式中:0.1代表反冲洗停留时间由于该水厂引用水库里面的水,其水质比较好,故该滤池采用石英砂单层滤料,其设计滤速为8~10m/h ,本设计取1v =10h m /,滤池面积为:214.5028.2310120000m T v Q F =⨯==根据设计规范,滤池个数不能少于2个,即N ≥2个,根据规范中的表如下: 本设计采用滤池个数为10个,其布置成对称单行排列。
每个滤池面积为: 242.50102.504m N F f ===式中:f —每个滤池面积为(m ²),N —滤池个数N ≥2个,取10个 F —滤池总面积(m ²)设计中采用滤池尺寸为:则L=9m ,B=6m ,故滤池的实际面积为9*6=54m ²实际滤速v1=1200000/(23.8*10*54)=9.34m/h ,基本符合规范要求:滤速为8~10m/h 。
校核强制流速2v 为:当一座滤池检修时,其余滤池的强制滤速为h m N Nv v /37.1011034.910112=-⨯=-=,符合规范要求:强制滤速一般为10~14 m/h 2、滤池高度:H=H1+H2+H3+H4 式中:H---滤池高度(m ),一般采用3.20-3.60m ; H1---承托层高度(m );一般可按表(1)确定; H2---滤料层厚度(m );一般可按表(2)确定; H3---滤层上水深(m);一般采取1.5~2.0m H4---超高(m );一般采用0.3m设计中取H1=0.40m ,H2=0.70m ,H3=1.80m ,H4=0.30m ;m H 20.330.080.170.040.0=+++=二、每个滤池的配水系统1、最大粒径滤料的最小流化态流速54.0031.2054.031.131.1)1(26.12m m d V mf-⨯⨯⨯=μφ Vmf---最大粒径滤料的最小流化态流速(m/s);d---滤料粒径(m );φ---球度系数;μ---水的动力粘度[(N.S)/m2]m0---滤料的孔隙率。
快滤池的设计3.5 快滤池的设计管廊的布置一、决定滤速及计算滤池总面积设计快滤池时,首先碰到的问题就是选择适当的过滤速度,再根据设计水量,计算出所需要的滤池总面积。
滤池过滤的速度,实际上可分为两个,一个是正常工作条件下的滤速,另一个是强制滤速(如前所述,是指在某些滤池因为冲洗、维修或其他原因不能工作时,其余滤池所必须采取的滤速,因此强制滤速就比较高)。
一般指的滤速是正常工作条件下的滤速。
在确定滤速的大小时,要综合考虑滤池进出水的浑浊度,滤料及池子个数等因素。
一般情况下,滤池个数较多时,可以选择较高的滤速。
如果要保留滤池有适当的潜力,或者水的过滤性能还未完全掌握,滤池数目较少时,就应该采用偏低的滤速。
滤速正确选择是十分重要的问题,因为它涉及到滤过水的水质、滤池面积的大小、投资的多少、运转是否经济方便等一系列的问题。
因此必须多方面了解和吸取净水条件相近的水厂的运转经验,有时也作过滤试验来确定滤速。
表3.10是我国生产上采用的平均滤速。
我国设计规范上规定砂滤料的滤速为8,12米/时,双层滤料则为12,16米/时。
滤速确定后,根据设计水量就可以计算出滤池的总面积F:(3.36)3式中 Q——设计水量(包括厂用水量)(米/时); v——设计滤速(米/小时)。
二、滤池个数的选择及尺寸的决定滤池的总面积定了后,接下来的问题就是定滤池的个数,和每个池子的尺寸。
选择池子的个数,主要是综合考虑下列两个因素:(1)从运转的观点来说,池子的数目较多为好。
假定只有两个池子,那么在一个池子冲洗,或因修理而停止生产的时候,另一个池子的滤速,必须增加一倍才能保证原有的总出水量。
如果有四个池子,那么在同样的情形下,滤池的滤速只须提高1/3,这就不会超过允许的强制滤速,见表6—3,足以保证总出水量。
而且,因滤速增加对水质的影响也会小一些,运转上的灵活性也比较大一些。
但如池子太多,也会引起频繁的冲洗工作,运转管理也不方便。
(2)从滤池造价的观点来说,单个滤池的2面积越大,则每米滤池的造价越低。
一)普通快滤池的主要构造普通快速滤池站的设施,主要由以下几个部分组成:(1)、滤池本体,它主要包括进水管渠、排水槽、过滤介质(滤料层),过滤介质承托层(垫料层)和配(排)水系统。
(2)、管廊,它主要设置有五种管(渠),即浑水进水管、清水出水管、冲洗进水管、冲洗排水管及初滤排水管,以及阀门、一次监测表设施等。
(3)、冲洗设施,它包括冲洗水泵、水塔及辅助冲洗设施等。
(4)、控制室,它是值班人员进行操作管理和巡视的工作现场,室内设有控制台、取样器及二次监测指示仪表等。
(二)普通快速滤池的设计要点和主要参数(1)、滤池数量的布置不得少于2个,滤池个数少于5个时宜采用单行排列,反之可用双行排列,单个滤池面积大于50平方米时,管廊中可设置中央集水渠。
(2)、单个滤池的面积一般不大于100平方米,长宽比大多数在1.25:1~1.5:1之间,小于30平方米时可用1:1,当采用旋转式表面冲洗时可采用1:1、2:1、3:1。
(3)、滤池的设计工作周期一般在12~24个小时,冲洗前的水头损失一般为2.0~2.5m。
(4)、对于单层石英砂滤料滤池,饮用水的设计滤速一般采用8~10米/小时,当要求滤后水浊度为1度时,单层砂滤层设计滤速在4~6米/小时,煤砂双层滤层的设计滤速在6~8米/小时。
(5)、滤层上面水深,一般为1.5~2.0米,滤池的超高一般采用0.3米。
(6)、单层滤料过滤的冲洗强度一般采用12~15 L/s·m2,双层滤料过滤冲洗强度在12~16 L/s·m2。
(7)、单层滤料过滤的冲洗时间在7~5分钟,双层滤料过滤冲洗时间在8~6分钟。
(三)普通快速滤池在建造设计中注意的问题(1)、配水系统干管末端应装有排气管;(2)、滤池底部应设有排空管;(3)、滤池闸阀的起闭一般采用水力或电力,但当池数少时且阀门直径等于小于300mm时,也可采用手动;(4)、每个池应装上水头损失计和取样设备;(5)、池内与滤料接触的壁面应拉毛,以避免短流造成出水水质不好;(6)、池底坡度约为0.005,坡向排空;(7)、各种密封渠道上应设入孔,以便检修;(四)普通快速滤池的优缺点单层滤料优点:(1)运行管理可靠,有成熟的运行经验;(2)池深较浅;缺点;(1)阀门比较多;(2)一般大阻力冲洗,需要设有冲洗设备;双层滤料优点:(1)滤速比单层的高;(2)含污能力较大(约为单层滤料的1.5~2.0倍),工作周期较长;(3)无烟煤做滤料易取得,成本低;缺点:(1)滤料径粒选择较严格;(2)冲洗时要求高,常因煤粒不符合规格发生跑煤现象;(3)煤砂之间易积泥。
给水处理厂设计第一部分设计说明书1、设计原始资料1.1 设计水量设计水厂总供水量:10万吨/天,已建水厂供水规模:5万吨/天,新建水厂供水规模:5万吨/天。
1.2 给水水源设计水厂以南河为供水水源,新增水量以鲤鱼塘水库为水源。
根据重庆市开县水利局提供的资料显示,南河全长91Km,最枯流量2.19m3/s,洪峰流量达4272 m3/s,流域面积1117.2Km2,多年平均年径流总量6.6亿m3,根据重庆市开县疾病预防控制中心对石龙船水厂取水口所作的原水水质分析显示,以Ⅲ类水域水质标准评价:开县水环境全年不考虑大肠菌群时,南河干流开县县城段水质较好;在考虑大肠菌群时,南河干流开县县城段属轻度污染。
因此,南河干流开县县城段的水质较好,水量充沛,是较理想的取水水源。
1.3 水源水质资料⑴浑浊度:最高浑浊度4000NTU,含砂量26Kg/m3⑵碱度:>5mg/L⑶总硬度:月平均最高4.0meq/L,月平均最低1.8meq/L⑷ pH值:6.9~7.6⑸色度:5⑹大肠菌群指数:38000个/L,细菌总数:12000个/L⑺水温:月平均最高27.7℃,月平均最低6.9℃⑻嗅和味:微量⑼铁:1mg/L1.4 净化水质要求生活用水:达到国家生活饮用水水质标准(GB5749-85)无地下水生产用水:无特殊要求1.5 净水厂地形图比例尺1:5001.6 地质资料水厂地质为:砂质粘土,抗压强度1.5 Kg/cm2以上,无地下水。
1.7 建筑材料供应情况各种建筑材料均可供应。
1.8 混凝剂Al2(SO4)318H2O,纯度50%,最大投加量40 mg/L。
1.9 消毒剂采用液氯,最大加氯量0.5~2.0 mg/L。
1.10 气象资料最冷月平均气温 5.7℃最热月平均气温 34.8℃极端温度:最高39.5℃,最低-3.0℃风向:见地形图中风玫瑰图2、工艺流程的确定2.1 常规工艺流程水厂是给水处理中的主要部分,其任务是通过必要的处理方法,去除水中的悬浮物质,胶体物质,细菌及其它有害成分及杂质,使之符合生活饮用或工业使用所要求的水质。
4.5 普通快滤池工艺设计与计算4.5.1.滤池面积和尺寸滤池工作时间为24h ,冲洗周期为12h ,滤池实际工作时间为:h T 8.2312241.024=⨯-=式中:0.1代表反冲洗停留时间由于该水厂引用水库里面的水,其水质比较好,故该滤池采用石英砂单层滤料,其设计滤速为8~10m/h ,本设计取1v =10h m /,滤池面积为:219.1498.231005.16.33986m T v Q F =⨯⨯==根据设计规范,滤池个数不能少于2个,即N ≥2个,根据规范中的表如下: 本设计采用滤池个数为4个,其布置成对称单行排列。
每个滤池面积为: 24.3749.149m N F f ===式中:f —每个滤池面积为(m2),N —滤池个数N ≥2个,取4个 F —滤池总面积(m2)设计中采用滤池尺寸为:则L=6m ,B=6m ,故滤池的实际面积为6*6=36m2实际滤速v1=3600*1.05/(23.8*4*36)=10.41m/h ,基本符合规范要求:滤速为8~10m/h 。
校核强制流速2v 为:当一座滤池检修时,其余滤池的强制滤速为h m N Nv v /88.131441.104112=-⨯=-=,符合规范要求:强制滤速一般为10~14 m/h2.滤池高度:H=H1+H2+H3+H4 式中:H---滤池高度(m ),一般采用3.20-3.60m ; H1---承托层高度(m );一般可按表(1)确定; H2---滤料层厚度(m );一般可按表(2)确定; H3---滤层上水深(m);一般采取1.5~2.0m H4---超高(m );一般采用0.3m设计中取H1=0.40m ,H2=0.70m ,H3=1.80m ,H4=0.30m ;m H 20.330.080.170.040.0=+++=表4-6 大阻力配水系统承托层材料、粒径与厚度5.20。
4.5.2每个滤池的配水系统1、最大粒径滤料的最小流化态流速54.0031.2054.031.131.1)1(26.12m m d V mf-⨯⨯⨯=μφ Vmf---最大粒径滤料的最小流化态流速(m/s);d---滤料粒径(m );φ---球度系数;μ---水的动力粘度[(N.S)/m2]m0---滤料的孔隙率。
普通快滤池设计计算1.已知条件设计水量Qn=20000m ³/d ≈833m ³/h.滤料采用石英砂,滤速v=6m/h,10d =0.6,80K =1.3,过滤周期Tn=24h ,冲洗总历时t=30min=0.5h;有效冲洗历时0t =6min=0.1h 。
2.设计计算(1)冲洗强度q q[L/(s*m ³)]可按下列经验公式计算。
632.0632.145.1)1()35.0(2.43v e e dm q ++=式中 dm ——滤料平均粒径,mm ;e ——滤层最大膨胀率,采用e=40%;v ——水的运动黏度,v=1.142mm /s (平均水温为15℃)。
与10d 对应的滤料不均匀系数80K =1.3,所以 dm=0.980K 10d =0.9x1.3x0.6=0.702(mm)632.0632.145.114.1)4.01()35.04.0(702.02.43⨯++⨯⨯=q =11[L/(s*m ³)] (2)计算水量Q 水厂自用水量主要为滤池冲洗用水,自用水系数α为vqt t Tn Tn 06.3)(--=α=61.0116.3)5.024(24⨯⨯--=1.05Q=αQn=1.05X883=875(m ³/d) (3)滤池面积F滤池总面积F=Q/v=875/8=109㎡ 滤池个数N=3个,成单排布置。
单池面积f=F/N=109/3=36.33(㎡),设计采用40㎡,每池平面尺寸采用B×L=5.2m×7.8m (约40㎡),池的长宽比为7.8/5.2=1.5/1. (4)单池冲洗流量冲q冲q =fq=40×11=440(L/s)=0.44(m ³/s) (5)冲洗排水槽①断面尺寸。
两槽中心距a 采用2.0m,排水槽个数 1n =L/a=7.8/2.0=3.9≈4个槽长l=B=5.2m,槽内流速v 采用0.6m/s 。
一、原始资料1.滤池形式:普通快滤池2.水质资料:水源为水库水,水库上游植被较好,无工业废水等污染,库容积较大,常年雨量充沛。
水质具体资料如下:①浊度:常年平均浊度10-15mg/L,汛雨期及风浪时为150-200mg/L;②色度:15度;③水温3-25℃;④ PH值:6.8;⑤细菌总数:12000个/mL;⑥大肠杆菌:20000个/L;⑦臭和味:略有;⑧耗氧量:4.5mg/L;⑨总硬度:8度;⑩碳酸盐硬度:6度。
3.其他资料①常年平均水温18℃,最高水温27℃,最低水温1℃;②常年气温:最冷月平均-2.5℃,最热月平均26.3℃,极端最高42℃,极端低温-15.7℃;③土壤冰冻深度 0.15cm;④地基承载力 10T/m2;⑤地震烈度 7度以下;⑥高峰水量(8月)低峰供水量(1月)之比 1:4.3,日变化系数Kd=1.2。
二、滤池的选择(1)滤池的工作原理:过滤时,开启进水支管与清水支管的阀门。
关闭冲洗水支管阀门与排水阀。
浑水就经进水总管、支管从浑水渠进入滤池,经过滤料层、承托层后,由配水系统的配水支管汇集起来再经配水系统干管渠、清水支管、清水总管流往清水池。
浑水流经滤料层时,水中杂质即被截流。
随着滤层中杂质截流量的增加,滤料层中水头损失也相应增加。
一般当水头损失增至一定程度以致滤池产水量减少或由于滤过水质不符合要求时,滤池便需停止过滤进行冲洗。
冲洗时,关闭进水支管与进水支管阀门。
开启排水阀与冲洗水支管阀门。
冲洗水即由冲洗水总管、支管,经配水系统的干管、支管及支管上的许多孔眼流出,由下而上穿过承托层及滤料层,均匀的分布于整个滤池平面上。
滤料层再由下而上均匀分布的水流中处于悬浮状态,滤料得到清洗。
冲洗废水流入冲洗排水槽,再经浑水渠、排水管和废水渠进入下水道。
冲洗一直进行到滤料基本洗干净为止。
冲洗结束后,过滤重新开始。
(2)滤池的分类及优缺点:1.普通快滤池有成熟的运转经验,运行稳妥可靠;采用砂滤料,材料易得,价格便宜;采用大阻力配水系统,单池面积可做的较大,池深较浅;可采用降速过滤,水质较好;但是,阀门多,必须设有全套冲洗设备。
2.双阀滤池不仅有普通快滤池所具有的优点,同时减两只阀门,相应降低了造价和检修工作量。
但也必须设有全套冲洗设备;增加形成虹吸的抽气设备。
3.V型滤池具有运行稳妥可靠;采用砂滤料,材料易得;滤床含污量大、周期长、滤速高、水质好;具有气水反洗和水表面扫洗,冲洗效果好的优点。
但是配套设备多,如鼓风机等;土建较复杂,池深比普通快滤池深。
4.多层滤池包括双层滤料滤池、三层滤料滤池、接触双层滤料滤池。
其中双层滤料滤池、三层滤料滤池含污能力大,可采用较大的滤速,降速过滤、水质较好且双层滤料滤池方便改造但是滤料不易获得,价格贵,滤料易流失,冲洗困难,易积泥球。
接触双层滤料滤池有以下优点:对滤前水的浊度适用幅度大,因而可以作为直接过滤;条件合适时,可以不用沉淀池,节约用地,投资省:降速过滤水质较好。
缺点是,对运转的要求较高,工作周期短。
5.虹吸滤池不需大型阀门、冲洗水泵或冲洗水箱易于自动化操作。
但是土建结构复杂;池深大,单池面积不能过大,反冲洗时要浪费部分水量,冲洗效果不易控制;变水位等速过滤,水质不如降速过滤。
6.无阀滤池不需要设置阀门,自动冲洗管理方便,可成套定型制作。
缺点是:运行过程看不到滤层情况,清砂不便,单池面积较小,冲洗效果较差,反冲洗时需要浪费部分水量,变水位等速过滤水质不如降速过滤。
7.移动罩滤池优点是造价低,不需大量阀门设备;池深浅,结构简单;能自动连续运行,不需冲洗水塔或水泵;节约用地和电耗;降速过滤。
缺点是需设移动冲洗设备,对机械加工材质要求高;起始滤速较高,因而滤池平均设计滤速不易过高;罩体与隔墙间的密封要求较高。
(3)滤池选择选择普通快速滤池。
三、滤池设计(一)设计水量由原始资料根据要求,以5万吨为基础,3000吨为一单位增量,以学号为顺序,每人取一水量,得到11.3万吨。
经计算求的水厂自身耗水量(主要为滤池冲洗用水)的系数α=1.04,所以最终水量取4888(m³/h)。
(二)滤料与滤速的选择(1)滤料应具有足够的机械强度和抗蚀性能,一般可采用石英砂、无烟煤和重质矿石等。
(2)滤料厚度与有效粒径之比:细砂及双层滤料过滤应大于1000;粗砂及三层滤料过滤应大于1250。
(3)滤池应按正常情况下的滤速设计,并以检修情况(一格或者两格停运)下的强制滤速校核。
(4)滤池滤速及滤料组成的选用,一般宜按表1采用表1 滤池滤速及滤料组成注:滤料的相对密度为:石英砂2.6~2.65;无烟煤1.4~1.6;重质矿石4.7~5.0根据资料的水质条件,可以选择双层滤料(上层无烟煤下层石英砂),滤速选择v=10m/h.(三)滤池面积和尺寸1.滤池面积滤池的过滤周期为h,采用24h,每次冲洗滤池所需要的总时间采用0.5小时,滤池的有效冲洗历时采用6min=1/12h.水厂自身耗水量的系数α=1.04.F=Q/V式中:F-滤池面积m²;v-滤速m/h。
计算得F=488.8㎡(详见计算书,下同)2.滤池个数设计中,滤池个数应通过技术经济比较确定,并需考虑水厂内其他处理构筑物及水厂总体布局等有关问题,但在任何情况下,滤池个数不得少于两个;滤池个数少于5个者,宜采用单行排列,管廊位于滤池一侧。
超过5个者,宜采用双行排列,管廊位于两排滤池中间。
后者布置较紧凑,但是管廊通风,采光不如前者,检修也不太方便。
滤池个数可根据表2确定。
表2强制滤速v´=Nv/(N-1)=11.1m/h。
3.滤池尺寸每个滤池面积f=F∕N=48.88m²,取54 m²。
滤池长宽比在1.5左右,计算得:长L=9m,宽B=6m4.滤池高度H=H1+H2+H3+H4=3.15m式中 H1——支承层高度:0.45mH2——滤料层高度:0.70mH3——砂面上水深:1.70mH4——保护高度:0.30m5.冲洗强度q=12[L/(s·m2)](四)配水系统①配水干渠干管流量q g=f q=54X12=648L/s=0.648 m²/sq——冲洗强度12L/(s·m²))干渠始端流速采用V=1.5m/s干渠始端流量Q=fg=0.65m³/s干渠断面积采用0.7×0.7=0.49㎡干渠壁厚尺寸采用0.1干渠顶面应开设孔眼②配水支管支管中心间距采用:s=0.25每池支管数:n j=2 X L / s=2 X 9 / 0.25=72根每根支管入口流量:q j=q g/ n j=0.65/72=0.00903m³/s 采用管径:d j=75mm支管始端流速:v j=2.05m/s每根支管长度:l j=(B-d g-0.1X2)/2=(4.3-0.8-0.1X2)/2=2.55m③支管孔眼支管孔眼总面积与滤池面积之比为0.20%——0.28%,采用α=0.24%,支管总面积=αf=0.0024*54=0.130㎡孔径采用d=9mm=0.009m单孔面积w=πd²/4=0.785*0.09²=6.359*10^-9孔眼总数n=2044每一支孔眼数(分两排交错排列)为n=29孔眼中心距s=0.176m④复算配水系统:孔眼总面积与支管总横截面积之比小于0.5:F k/(72 X 0.785 X 0.075²)=0.4<0.5干管横截面积与支管总横截面积之比一般为1.75——2.0:f g/(n j f j)=1.54≈1.75孔眼中心距应小于0.2m:a k=0.176<0.2(五)冲洗排水槽①断面尺寸两槽中心距采用a=1.9m排水槽个数 n f=L/a=4.7≈5槽长L=B=6m槽内流速采用0.6m/s排水槽采用标准半圆形槽底断面形式,其末端断面模数为:x=0.23m②设置高度滤料层厚度采用Hn=0.7m排水槽底厚度采用0.05m槽顶位于滤层面以上的高度为:He=0.5*0.7+2.5*0.23+0.05+0.075=1.05m(六)滤池各种灌渠计算①冲洗水箱容积V=1.5qft*60/1000=350m³水箱内水深,采用h箱=3.5m圆形水箱直径D箱=11.3m②水箱底至滤池配水管间的沿途及局部损失之和:h1=3.39m配水系统水头损失:h2= h k=3.28m承托层水头损失:h3=0.022qH1=0.00903m滤料层水头损失:h4=(γ´/γ-1)(1-m。
)H2=0.45m式中γ´——滤料相对密度(石英砂为2.65)γ——水的相对密度m。
——滤料膨胀前的孔隙率(石英砂为0.41)H2——滤层膨胀前厚度(m)备用水头为1.5——2.0m:采用h5=1.5m冲洗水箱底应高出洗砂排水槽面:H=h1+h2+h3+h4+h5=8.97m≈9m四、主要参考文献资料1.《给水排水设计手册》1、3、9、10、11 中国建筑工业出版社2.《室外给水设计规范》GBJ13-86 ,1997版。
3.《给水厂处理设施设计规范》,崔玉川等,化学工业出版社2003 ,太原。
4.净水厂设计,钟淳昌。
5.给排水专业毕业设计参考图集,哈建工。
6.《给水工程》(第四版),严煦世等,中国建筑工业出版社。
目录一.原始资料二、滤池的选择三、滤池设计(一)设计水量(二)滤料与滤速的选择(三)滤池面积和尺寸(四)配水系统(五)冲洗排水槽(六)滤池各种灌渠计算(七)冲洗水箱四、主要参考文献资料。