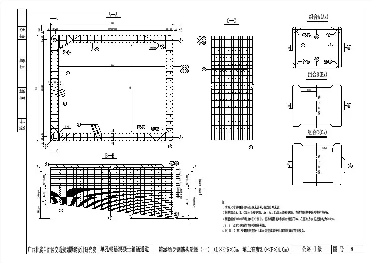
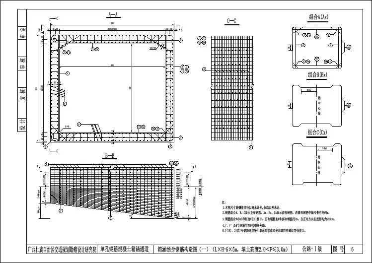
4、箱涵涵身钢筋构造图(一)(6X5填土0.26≤F≤2米)
- 格式:dwg
- 大小:338.44 KB
- 文档页数:1
各种涵洞工程图识图、算量,完虐教科书!2017-02—28 筑业造价涵洞是常见的道路工程泄水构筑物.涵洞结构复杂多变,识读工程图让人摸不着头脑,经常由于尺寸判断失误而造成工程返工。
下面小编就带你深入认识各种涵洞,用3D模型图手把手教你怎么识读涵洞工程图及工程量计算。
涵洞分类(1)按建筑材料分类涵洞按建筑材料分类有钢筋混凝土涵、混凝土涵、砖涵、石涵、木涵、金属涵等。
(2)按构造形式分类涵洞按构造形式分为圆管涵、拱涵、箱涵、盖板涵等,工程上多用此类分法。
(3)按孔数分类涵洞按孔数分有单孔、双孔、多孔等。
(4)按洞顶有无覆盖土分类涵洞可分为明涵和暗涵(洞顶填土大于50cm)等。
涵洞组成涵洞是由洞口、洞身和基础三部分组成的排水构筑物.如下图所示为钢筋混凝土圆管涵立体分解图,从中可以了解涵洞各部分的名称、位置和构造。
涵洞工程图涵洞从路面下方穿过道路,埋置于路基土层中,尽管涵洞的种类很多,但图示方法基本相同。
涵洞工程图主要由立面图(纵剖面图)、平面图、侧面图和必要的构造详图(如涵身断面图、构件钢筋结构图、翼墙断面图)、工程数量表、附注等组成,各种图形表达涵洞的结构形状及尺寸,工程数量表给出全涵各构件的材料及数量,附注说明一些图中无法表达的内容,如尺寸单位、施工方法和注意事项等.工程图特点(1)在图示表达时,涵洞工程图以水流方向为纵向(即与路线前进方向垂直布置),并以纵剖面图代替立面图,剖切平面通过涵洞轴线。
(2)平面图一般不考虑涵洞上方的覆土,或假想土层是透明的。
平面图上有时不画出洞身基础的投影,而在立面图和断面图中表达.(3)洞口正面布置图在侧面投影图位置作为侧面图,当进、出水洞口形状不一样时,则需分别画出其进、出水洞口布置图。
如图7—4中,侧面投影是洞口正面图。
(4)洞身断面图、钢筋布置图、翼墙断面图等也可能在另一张图中表达。
读图方法先概括了解,后深入细读;先整体、后局部,再综合起来想象整体.〈概括了解>(1)从标题栏、角标及图样上的注释中了解名称、尺寸单位、涵洞所处的位置(里程桩号)及有关要求。
(一)孔径及净空净跨径L 0 = 6.00m 净高h 0 = 3.00m(二)设计安全等一级结构重要性系数r 0 =1.1(三)汽车荷载荷载等级公路 —Ⅰ级(四)填土情况涵顶填土高度H = 1.5m 土的内摩擦角Φ =35°填土容重γ1 =19kN/m 3地基容许承载力[σ0] =260kPa(五)建筑材料普通钢筋种类HRB335主钢筋直径22mm 钢筋抗拉强度设计值f sd =280MPa 钢筋弹性模量E s =200000MPa涵身混凝土强度等级C30涵身混凝土抗压强度设f cd =13.8MPa 涵身混凝土抗拉强度设f td = 1.39MPa 钢筋混凝土重力密度γ2 =25kN/m 3基础混凝土强度等级C20混凝土重力密度γ3 =24kN/m 3(一)、截面尺寸拟顶板、底板厚度δ =0.5m C 1 =0.15m 侧墙厚度t =0.5m C 2 =0.15m 横梁计算跨径L P = L 0+t= 6.5m L = L 0+2t=7m 侧墙计算高度h P = h 0+δ= 3.5m h = h 0+2δ =4m 基础襟边 c =0.1m 基础高度 d =0.1m 基础宽度B =7.2m图 L-01(一)恒载恒载竖向压力p 恒 = γ1H+γ2δ =41.00kN/m 2恒载水平压力顶板处e P1 = γ1Htan 2(457.72kN/m 2底板处e P2 = γ1(H+h)tan228.32kN/m 2钢 筋 混 凝 土 箱 涵 结 构 设 计一 、 设 计 资 料二 、 设 计 计 算三 、 荷 载 计 算(二)活载汽车后轮着地宽度一个汽车后轮横向分布> 1.3/2 m > 1.8/2 m故车轮压力扩散线相重 a =(0.6/2+Ht3.100m同理,纵向,汽车后0.2/2+Htan30°=0.966 m > 1.4/2 m故 b =(0.2/2+Ht 1.400m ∑G =140kN 车辆荷载垂直压力q 车 = ∑G/(a×b)32.26kN/m 2车辆荷载水平压力e 车 = q 车tan 2(45°8.74kN/m 2(一)构件刚度比K =(I 1/I 2)×0.54(二)节点弯矩和1、a种荷载作用下 (图涵洞四角节点弯矩M aA = M aB = M aC =-1/(K+1)·pL P 2/12横梁内法向力N a1 = N a2=0侧墙内法向力N a3 = N a4=pL P /2恒载p = p 恒 =41.00kN/m 2M aA = M aB= M aC =-93.83kN ·m N a3 = N a4=133.25kN 车辆荷载p = q 车 =32.26kN/m 2M aA = M aB= M aC =-73.82kN ·m 图 L-02N a3 = N a4=104.84kN2、b种荷载作用下 (图M bA = M bB = M bC =-K/(K+1)·ph P 2/12N b1= Nb2=ph P/2N b3 = N b4=0恒载p = e P1 =7.72kN/m 2M bA = M bB= M bC =-2.76kN ·m N b1 = N b2=13.52kN3、c种荷载作用下 (图图 L-03M cA = M cD =-K(3K+8)/[M cB = M cC =-K(2K+7)/[N c1 =ph P/6+(McA-M cB )/h P N c2 =ph P /3-(M cA -N c3 = N c4=0恒载p = e P2-e P1 =20.60kN/m 2M cA = M cD =-4.00kN ·m M cB= M cC=-3.36kN ·m N c1 =11.83kN N c2 =24.21kN图 L-044、d种荷载作用下 (图1.17 m0.6/2+Htan30°=四 、 内 力 计 算M dA =-[K(K+3)/[M dB =-[K(K+3)/[M dC =-[K(K+3)/[M dD =-[K(K+3)/[N d1 =(M dD-M dC )/h P N d2 =ph P -(M dD -M dC )/h P N d3 = N d4=-(M dB -M dC )/L P车辆荷载p = e 车 =8.74kN/m 2M dA =-16.68kN ·m M dB =10.09kN ·m M dC =-13.21kN ·m M dD =13.56kN ·m 图 L-05N d1 =7.65kN N d2 =22.95kN N d3 = N d4=-3.59kN5、节点弯矩、轴力计算(1)按《公路桥涵设计(2)按《公路桥涵设计(3)按《公件内力计1、顶板 (图L-06)x =L P /2P = 1.2p 恒+1.4q 车 =94.36kN N x = N 1 =46.19kN M x=M B +N 3x-271.64kN·m V x = Px-N 3=5.02kN2、底板 (图L-07)ω1 =1.2p 恒+1.4(q 车-=83.72kN/m 2ω2 =1.2p 恒+1.4(q 车=105.01kN/m 2x =L P /2N x = N 2 =84.94kN M x =M A +N 3x-ω1·x 2/2-=270.75kN ·m V x =ω1x+x 2(ω2-ω=-12.28kN3、左侧墙(图L-08)ω1 =1.4e P1+1.4e 车=23.05kN/m 2ω2 =1.4e P2+1.4e 车51.88kN/m 2x =h P /2N x = N 3 =301.65kNM x =M B +N 1x-ω1·x 2/2-=-172.20kN ·m V x =ω1x+x 2(ω2-ω=6.76kN 4、右侧墙(图L-09)ω1 =1.4e P1 =10.81kN/m 2ω2=1.4e P2 =39.65kN/m 2x =h P /2N x = N 4 =301.65kN图 L-08图 L-09图 L-06图 L-07M x =M C +N 1x-ω1·x 2/2-=-186.09kN ·m V x =ω1x+x 2(ω2-ω=-14.66kN5、构件内力汇总表(1)承载能(一)承载能力极1、顶板 (B-C)钢筋按左、右对称,用(1)跨中l 0 =6.50mh =0.50ma =0.05m h 0 =0.45mb =1.00mM d =271.64 kN ·m ,N d =46.19 kN , V d=5.02 kNe 0 = M d /N d=5.881i =h/121/2=0.144m五 、 截 面 设 计(3)采用上述计算方法,以及《公路桥涵设计通用规范》(JTG D60—2004)第4.1.7条规定,可得构件在正常使用极限状态下长期组合如下表:(2)采用上述计算方法,以及《公路桥涵设计通用规范》(JTG D60—2004)第4.1.7条规定,可得构件在正常使用极限状态下短期组合如下表:长细比l 0/i =45.03> 17.5由《公路钢筋混凝土及ξ1 =0.2+2.7e 035.483> 1.0 ,取ξ1 =1.00ξ2=1.15- 1.020> 1.0 ,取ξ2 =1.00η =1+(l 0/h)2ξ1ξη = 1.009由《公路钢筋混凝土及e = ηe 0+h/2-a 6.135mr 0N d e =f cd bx(h 0-x/2)311.73 =13800x(0.45-x/2)解得x =0.053 m≤ξb h 0 =0.56×0.45 =0.252 m 故为大偏心受压构件。
箱涵结构计算书目录1 计算依据与基础资料 (1)1.1 工程概况 (1)1.1.1截面尺寸 (1)1.1.2填土情况 (1)1.2 标准与规范 (1)1.2.1 标准 (1)1.2.2 规范 (1)1.3 主要材料 (2)1.4 设计要点与参数 (2)1.5 计算软件 (2)2 计算模型简介 (3)2.1 计算模型 (3)2.2 荷载施加 (3)3 箱涵结构计算 (4)3.1 荷载组合 (4)3.2 箱涵受力计算 (4)3.2.1 箱涵弯矩 (4)3.2.2 箱涵剪力 (5)3.2.3 箱涵轴力 (6)3.2.4 箱涵配筋验算 (7)4地基承载力验算 (27)4.1荷载计算 (27)4.2地基应力 (27)1 计算依据与基础资料1.1 工程概况道路在桩号K1+000处设置两孔6x3.5m箱涵,箱涵结构中心线与道路中线的法线逆交13.5度,箱涵全长46m1.1.1截面尺寸净跨径:6m净高:3.5m顶板厚:0.6m底板厚:0.65m侧墙厚:0.6m倒角:0.15x0.15m基础: 15cmC15素混凝土垫层;50cm浆砌片石垫层;基础宽度:14.8m1.1.2填土情况箱涵覆土厚度:1.729m土的内摩擦角:30°填土容重:18KN/m31.2 标准与规范1.2.1 标准桥梁结构安全等级为一级;设计荷载:汽车荷载:公路-I级,人群荷载:根据《桥梁设计准则》要求。
跨径:2孔6.0x3.5m钢筋砼箱涵;箱涵总长:46m;横坡:根据道路设计进行设置。
地震烈度:7度;环境条件Ⅰ类;地震荷载:地震基本烈度为7度,动荷载峰值加速度0.1g,Ⅱ类场地。
1.2.2 规范《公路桥涵设计通用规范》(JTG D60-2004);《公路钢筋混凝土及预应力混凝土桥涵设计规范》(JTG D62-2004);《公路桥涵地基与基础设计规范》(JTG D63-2007); 《公路桥梁抗震设计细则》(JTG/T B02-01-2008); 《公路涵洞设计细则》(JTG/T D65-04-2007); 《公路桥梁抗震设计细则》(JTJ041-2000); 《城市道路设计规范》(CJJ 37-90); 1.2.3 参考资料《公路桥涵设计手册》桥梁上册(人民交通出版社2004.03) 《公路小桥涵设计示例》(人民交通出版社2005.01)1.3 主要材料1)混凝土:箱涵采用C30混凝土。
目 录序号图 表 名 称通用图编号页数备注序号图 表 名 称通用图编号页数备注钢筋混凝土圆管涵1说明TY-YGH-122圆管涵拼宽一般布置图TY-YGH-213孔径1.0米正管节钢筋构造图(管长0.5、1.0米)TY-YGH-314孔径1.5米正管节钢筋构造图(管长0.5、1.0米)TY-YGH-415孔径1.0米斜管节钢筋构造图(一)TY-YGH-516孔径1.0米斜管节钢筋构造图(二)TY-YGH-617孔径1.5米斜管节钢筋构造图(一)TY-YGH-718孔径1.5米斜管节钢筋构造图(二)TY-YGH-819斜交洞口一般构造图TY-YGH-9110正交八字洞口构造及工程数量表TY-YGH-10111斜交八字洞口构造及工程数量表TY-YGH-11112斜交斜做八字洞口正翼墙尺寸表TY-YGH-12113斜交斜做八字洞口反翼墙尺寸表TY-YGH-13114锥坡式洞口尺寸及工程数量表TY-YGH-14115套管式接头变形缝构造图TY-YGH-15116进水口跌井构造图TY-YGH-16117钢筋砼跌井井盖构造图TY-YGH-17118跌井洞口防落物网构造图TY-YGH-181南昌至樟树高速公路改扩建工程桥涵通用图 第1页 共2页 TY-YGH-1钢筋砼圆管涵设计说明一、 技术标准及设计规范(一) 中华人民共和国交通部标准《公路工程技术标准》JTG B01—2003(二) 中华人民共和国交通部标准《公路桥涵设计通用规范》JTG D60—2004(三) 中华人民共和国交通部标准《公路钢筋混凝土及预应力混凝土桥涵设计规范》JTG D62—2004(四) 中华人民共和国交通部标准《公路砖石及混凝土桥涵设计规范》JTJ D61—2005(五) 中华人民共和国交通部标准《公路桥涵地基与基础设计规范》JTG D63—2007(六) 中华人民共和国交通部标准《公路桥涵施工技术规范》JTJ041—2000二、 技术指标(一) 孔径:φ1.00、φ1.50m。
箱涵全套结构计算表格EXCEL版(包含计算书只需输入数据)1、孔径及净空净跨径L 0 =3m 净高h 0 = 2.5m2、设计安全等级三级结构重要性系数r 0 =0.93、汽车荷载荷载等级公路—Ⅰ级4、填土情况涵顶填土高度H =0.8m 土的内摩擦角Φ =30°填土容重γ1 =18kN/m 3地基容许承载力[σ0] =200kPa5、建筑材料普通钢筋种类HRB335主钢筋直径12mm 钢筋抗拉强度设计值f sd =280MPa 涵身混凝土强度等级C 20涵身混凝土抗压强度设计值f cd =9.2MPa 涵身混凝土抗拉强度设计值f td = 1.06MPa 钢筋混凝土重力密度γ2 =25kN/m 3基础混凝土强度等级C 15混凝土重力密度γ3 =24kN/m 3(一)截面尺寸拟定(见图L-01)顶板、底板厚度δ =0.3m C 1 =0.3m 侧墙厚度t =0.28m C 2 =0.5m 横梁计算跨径L P = L 0+t = 3.28m L = L 0+2t = 3.56m 侧墙计算高度h P = h 0+δ = 2.8m h = h 0+2δ =3.1m 基础襟边 c =0.2m 基础高度 d =0.4m 基础宽度 B =3.96m图 L-01(二)荷载计算1、恒载恒载竖向压力p 恒= γ1H+γ2δ =21.90kN/m2恒载水平压力顶板处e P1 = γ1Htan 2(45°-φ/2) = 4.80kN/m 2底板处e P2 = γ1(H+h)tan 2(45°-φ/3) =23.40kN/m 22、活载钢筋混凝土箱涵结构设计一、设计资料二、设计计算汽车后轮着地宽度0.6m,由《公路桥涵设计通用规范》(JTG D60—2004)第4.3.4条规定,按30°角向下分布。
一个汽车后轮横向分布宽> 1.3/2 m < 1.8/2 m故横向分布宽度a = (0.6/2+Htan30°)32+1.3 =2.824m同理,纵向,汽车后轮着地长度0.2m0.2/2+Htan30°=0.562 m < 1.4/2 m故b = (0.2/2+H tan30°)32 =1.124m ∑G =140kN 车辆荷载垂直压力q 车= ∑G /(a3b) =44.12kN/m 2车辆荷载水平压力e 车 = q 车tan 2(45°-φ/2) =14.71kN/m2(三)内力计算1、构件刚度比K = (I 1/I 2)3(h P /L P ) =1.052、节点弯矩和轴向力计算(1)a种荷载作用下 (图L-02)涵洞四角节点弯矩M aA = M aB = M aC = M aD =-1/(K+1)2pL P 2/12横梁内法向力N a1 = N a2 =0侧墙内法向力N a3 = N a4 =pL P /2恒载p = p 恒 =21.90kN/m 2M aA = M aB = M aC = M aD =-9.58kN 2m N a3 = N a4 =35.92kN 车辆荷载p = q 车 =44.12kN/m 2M aA = M aB = M aC = M aD =-19.30kN 2m 图 L-02N a3 = N a4 =72.36kN(2)b种荷载作用下 (图L-03)M bA = M bB = M bC = M bD =-K/(K+1)2ph P 2/12N b1 = N b2 =ph P /2N b3 = N b4 =0恒载p = e P1 =4.80kN/m 2M bA = M bB = M bC = M bD =-1.61kN 2m N b1 = N b2 =6.72kN(3)c 种荷载作用下 (图L-04)图 L-03M cA = M cD =-K(3K+8)/[(K+1)(K+3)]2ph P 2/60M cB = M cC =-K(2K+7)/[(K+1)(K+3)]2ph P 2/60N c1 =ph P /6+(M cA -M cB )/h P N c2 =ph P /3-(M cA -McB )/h PN c3 = N c4 =0恒载p = e P2-e P1 =18.60kN/m2M cA = M cD =-3.43kN 2m M cB = M cC =-2.80kN 2m N c1 =8.45kN N c2 =17.59kN图 L-04(4)d 种荷载作用下 (图L-05)M dA =-[K(K+3)/6(K 2+4K+3)+(10K+2)/(15K+5)]2ph P 2/40.6/2+Htan30°=0.76 mM dB =-[K(K+3)/6(K2+4K+3)-(5K+3)/(15K+5)]2ph P2/4M dC =-[K(K+3)/6(K2+4K+3)+(5K+3)/(15K+5)]2ph P2/4M dD =-[K(K+3)/6(K2+4K+3)-(10K+2)/(15K+5)]2ph P2/4 N d1 =(M dD-M dC)/h PN d3 = -N d4 =-(M dB-M dC)/L P车辆荷载p = e车 =14.71kN/m2M dA =-19.82kN2mM dB =9.00kN2mM dC =-13.92kN2mM dD =14.90kN2m图 L-05N d1 =10.29kNN d2 =30.88kNN d3 = -N d4 =-6.99kN(5)节点弯矩、轴力计算及荷载效应组合汇总表按《公路桥涵设计通用规范》(JTG D60—2004)第4.1.6条进行承载能力极限状态效应组合V x =ω1x+x2(ω2-ω1)/2L P-N3图 L-07=-27.13kN(3)左侧墙 (图L-08)ω1 =1.4e P1+1.4e 车=27.31kN/m 2ω2 =1.4e P2+1.4e 车53.35kN/m 2x =h P /2N x = N 3 =134.61kNM x =M B +N 1x-ω12x 2/2-x 3(ω2-ω1)/6h P =-13.17kN 2mV x =ω1x+x 2(ω2-ω1)/2h P -N 1=11.69kN (4)右侧墙 (图L-09)ω1 = 1.4e P1 = 6.72kN/m 2ω2 = 1.4e P2 = 32.76kN/m 2x =h P /2N x = N 4 =154.18kNM x =M C +N 1x-ω12x 2/2-x 3(ω2-ω1)/6h P=-25.08kN 2m V x =ω1x+x 2(ω2-ω1)/2h P -N 1 =-17.14kN(5)构件内力汇总表(四)截面设计1、顶板 (B-C)钢筋按左、右对称,用最不利荷载计算。
⾃⼰编制的表格-两孔箱涵(结构、配筋、裂缝、基底应⼒)箱涵结构计算(恒载+活载)钢筋混凝⼟箱涵结构设计⼀、设计资料1、孔径及净空净跨径L0 =9.1m净⾼h0 = 5.4m孔数m=22、设计安全等级⼀级结构重要性系数r0 = 1.13、汽车荷载荷载等级公路 —Ⅰ级4、填⼟情况涵顶填⼟⾼度H = 2.1m⼟的内摩擦⾓Φ =30°填⼟容重γ1 =18kN/m3地基容许承载⼒[σ0] =200kPa5、建筑材料普通钢筋种类HRB400主钢筋直径22mm钢筋抗拉强度设计值f y =360MPa涵⾝混凝⼟强度等级C30涵⾝混凝⼟抗压强度设计值f cd =14.3MPa涵⾝混凝⼟抗拉强度设计值f td = 1.43MPa钢筋混凝⼟重⼒密度γ2 =25kN/m3基础混凝⼟强度等级C20混凝⼟重⼒密度γC =23.5kN/m3⼆、设计计算(⼀)截⾯尺⼨拟定 (见图L-01)顶板厚度δ1 =0.8m底板厚度δ1 =1mC1 =0.4m侧墙厚度t =1mC2 =0.4m中墙厚度t' =0.8m横梁计算跨径L P = L0+(t+t')/2 =10mL = 2L0+2t+t' =21mL1=10m侧墙计算⾼度h P = h0+δ = 6.2mh = h0+(δ1+δ2) =7.2m基础襟边 c =0.1m基础⾼度 d =0.3m基础宽度 B =21.2m⼟压⼒分项系数γ3= 1.1⾃重分项系数γ4= 1.05(⼆)荷载计算1、恒载恒载竖向⼟压⼒q恒⼟ =γ 3 γ1H =41.58kN/m2顶板⾃重q恒⾃ =γ 4 γ2δ1 =21.00kN/m2恒载⽔平压⼒顶板(顶板底⾯)处e P1 =γ 3 γ1(H+δ1)tan2(45°-φ/2) =19.14kN/m2图 L-01底板(底板顶⾯)处e P2 =γ 3γ1(H+h0+δ1)tan2(45°-φ/3) =54.78kN/m22、活载汽车后轮着地宽度0.6x0.2m,后轮分布间距1.4x1.8m,由《公路桥涵设计通⽤规范》(JTG D60—2004)第4.3.4条规定,按30°⾓向下分布。
各种涵洞工程图识图、算量,完虐教科书!2017-02-28 筑业造价涵洞是常见的道路工程泄水构筑物。
涵洞结构复杂多变,识读工程图让人摸不着头脑,经常由于尺寸判断失误而造成工程返工。
下面小编就带你深入认识各种涵洞,用3D模型图手把手教你怎么识读涵洞工程图及工程量计算。
涵洞分类(1)按建筑材料分类涵洞按建筑材料分类有钢筋混凝土涵、混凝土涵、砖涵、石涵、木涵、金属涵等。
(2)按构造形式分类涵洞按构造形式分为圆管涵、拱涵、箱涵、盖板涵等,工程上多用此类分法。
(3)按孔数分类涵洞按孔数分有单孔、双孔、多孔等。
(4)按洞顶有无覆盖土分类涵洞可分为明涵和暗涵(洞顶填土大于50cm)等。
涵洞组成涵洞是由洞口、洞身和基础三部分组成的排水构筑物。
如下图所示为钢筋混凝土圆管涵立体分解图,从中可以了解涵洞各部分的名称、位置和构造。
涵洞工程图涵洞从路面下方穿过道路,埋置于路基土层中,尽管涵洞的种类很多,但图示方法基本相同。
涵洞工程图主要由立面图(纵剖面图)、平面图、侧面图和必要的构造详图(如涵身断面图、构件钢筋结构图、翼墙断面图)、工程数量表、附注等组成,各种图形表达涵洞的结构形状及尺寸,工程数量表给出全涵各构件的材料及数量,附注说明一些图中无法表达的内容,如尺寸单位、施工方法和注意事项等。
工程图特点(1)在图示表达时,涵洞工程图以水流方向为纵向(即与路线前进方向垂直布置),并以纵剖面图代替立面图,剖切平面通过涵洞轴线。
(2)平面图一般不考虑涵洞上方的覆土,或假想土层是透明的。
平面图上有时不画出洞身基础的投影,而在立面图和断面图中表达。
(3)洞口正面布置图在侧面投影图位置作为侧面图,当进、出水洞口形状不一样时,则需分别画出其进、出水洞口布置图。
如图7-4中,侧面投影是洞口正面图。
(4)洞身断面图、钢筋布置图、翼墙断面图等也可能在另一张图中表达。
读图方法先概括了解,后深入细读;先整体、后局部,再综合起来想象整体。
<概括了解>(1)从标题栏、角标及图样上的注释中了解名称、尺寸单位、涵洞所处的位置(里程桩号)及有关要求。