钢结构--锚栓选用表--锚栓规格表
- 格式:pdf
- 大小:321.35 KB
- 文档页数:7
一、问题的提出《钢结构设计手册上册》(第三版)、《钢结构节点设计手册》(第二版)、《地脚螺栓(锚栓)通用图》HG/T21545-2006中的钢锚栓锚固长度有较大差异。
结合具体工程实例:山东富伦钢厂余热回收锅炉框架,抗震设防烈度7度0.1g。
经过计算地脚螺栓选用M20 Q235B,锚栓类型采用直钩锚栓。
基础混凝土等级C20。
根据《钢结构设计手册上册》(第三版)表10-6 锚栓锚固长度为400mm。
根据《钢结构节点设计手册》(第二版)表9-75 锚栓锚固长度为520mm根据《地脚螺栓(锚栓)通用图》HG/T21545-2006锚栓锚固长度为410×1.05=430mm因此按哪本手册(图集)进行设计的问题就产生了。
二、分析计算计算方法一:地脚螺栓埋入基础中的的锚固长度属于混凝土结构范畴,地脚螺栓的有小直径面积及地脚螺栓的强度设计值属于钢结构范畴,因此地脚螺栓的锚固长度可根据《混凝土结构设计规范》GB50010-2002、与《钢结构设计规范》GB50017-2003进行分析计算,la=α×fy/ft×d (《混凝土结构设计规范》GB50010-2002 9.3.1-1)α取0.16 (《混凝土结构设计规范》GB50010-2002 表9.3.1)ft取1.1N/mm2(《混凝土结构设计规范》GB50010-2002 表4.14)fy取140 N/mm2(《钢结构设计规范》GB50017-2003 表 3.4.1-4)la=0.16×140 N/mm2 / 1.1N/mm2×20mm=408mm根据《建筑抗震设防分类标准》GB50223-95 7.04条余热锅炉框架为丙类建筑。
抗震等级三级(《混凝土结构设计规范》GB50010-2002 表11.1.4)laE=1.05 la=408×1.05=429mm计算方法二:根据二力平衡原理得出理论公式: fy·Ae=2πr·la·ft根据上述计算方法可得出下表:抗震设防等级6度基础混凝土等C20地脚螺栓型号材质方法一计算结果节点手册结构手册图集理论公式M20 Q235B(Q345B) 408mm(525mm) 520mm(700mm) 400mm(500mm) 410mm(530mm) 496mm(638mm)M22 Q235B(Q345B) 448mm(576mm) 570mm(770mm) 440mm(550mm) 450mm(580mm) 559mm(719mm)M24 Q235B(Q345B) 489mm(629mm) 620mm(840mm) 480mm(600mm) 490mm(630mm) 596mm(766mm)抗震设防等级7度基础混凝土等C20地脚螺栓型号材质方法一计算结果节点手册结构手册图集理论公式M20 Q235B(Q345B) 429mm(551mm) 520mm(700mm) 400mm(500mm) 431mm(557mm) 496mm(638mm)M22 Q235B(Q345B) 471mm(605mm) 570mm(770mm) 440mm(550mm) 473mm(609mm) 559mm(719mm)M24 Q235B(Q345B) 514mm(661mm) 620mm(840mm) 480mm(600mm) 515mm(662mm) 596mm(766mm)抗震设防等级8度基础混凝土等C20地脚螺栓型号材质方法一计算结果节点手册结构手册图集理论公式M20 Q235B(Q345B) 449mm(578mm) 520mm(700mm) 400mm(500mm) 451mm(583mm) 496mm(638mm)M22 Q235B(Q345B) 493mm(634mm) 570mm(770mm) 440mm(550mm) 495mm(638mm) 559mm(719mm)M24 Q235B(Q345B) 538mm(692mm) 620mm(840mm) 480mm(600mm) 539mm(693mm) 596mm(766mm)分析上表中的数据可以得出:《地脚螺栓(锚栓)通用图》HG/T21545-2006中的锚栓锚固长度和计算过的结果几乎完全一致。
2-5 钢结构计算2-5-1 钢结构计算用表为保证承重结构的承载能力和防止在一定条件下出现脆性破坏,应根据结构的重要性、荷载特征、结构形式、应力状态、连接方法、钢材厚度和工作环境等因素综合考虑,选用合适的钢材牌号和材性;承重结构的钢材宜采用Q235钢、Q345钢、Q390钢和Q420钢,其质量应分别符合现行国家标准碳素结构钢GB/T 700和低合金高强度结构钢GB/T 1591的规定;当采用其他牌号的钢材时,尚应符合相应有关标准的规定和要求;对Q235钢宜选用镇静钢或半镇静钢;承重结构的钢材应具有抗拉强度、伸长率、屈服强度和硫、磷含量的合格保证,对焊接结构尚应具有碳含量的合格保证;焊接承重结构以及重要的非焊接承重结构的钢材还应具有冷弯试验的合格保证;对于需要验算疲劳的焊接结构的钢材,应具有常温冲击韧性的合格保证;当结构工作温度等于或低于0℃但高于-20℃时,Q235钢和Q345钢应具有0℃C冲击韧性的合格保证;对Q390钢和Q420钢应具有-20℃冲击韧性的合格保证;当结构工作温度等于或低于-20℃时,对Q235钢和Q345钢应具有-20℃冲击韧性的合格保证;对Q390钢和Q420钢应具有-40℃冲击韧性的合格保证;对于需要验算疲劳的非焊接结构的钢材亦应具有常温冲击韧性的合格保证,当结构工作温度等于或低于-20℃时,对Q235钢和Q345钢应具有0℃冲击韧性的合格保证;对Q390钢和Q420钢应具有-20℃冲击韧性的合格保证;当焊接承重结构为防止钢材的层状撕裂而采用Z向钢时,其材质应符合现行国家标准厚度方向性能钢板GB/T 5313的规定;钢材的强度设计值材料强度的标准值除以抗力分项系数,应根据钢材厚度或直径按表2-77采用;钢铸件的强度设计值应按表2-78采用;连接的强度设计值应按表2-79至表2-81采用;钢材的强度设计值N/mm2表2-77注:表中厚度系指计算点的钢材厚度,对轴心受力构件系指截面中较厚板件的厚度;钢铸件的强度设计值N/mm2表2-78焊缝的强度设计值N/mm2表2-79注:1.自动焊和半自动焊所采用的焊丝和焊剂,应保证其熔敷金属的力学性能不低于现行国家标准碳素钢埋弧焊用焊剂GB/T 5293和低合金钢埋弧焊用焊剂GB/T 12470中相关的规定;2.焊缝质量等级应符合现行国家标准钢结构工程施工质量验收规范GB 50205的规定;其中厚度小于8mm钢材的对接焊缝,不宜用超声波探伤确定焊缝质量等级;3.对接焊缝抗弯受压区强度设计值取f c w,抗弯受拉区强度设计值取f t w;螺栓连接的强度设计值N/mm2表2-80注:1.A级螺栓用于d≤24mm和l≤10d或l≤150mm按较小值的螺栓;B级螺栓用于d >24mm或l>10d或l>150mm按较小值的螺栓;d为公称直径,l为螺杆公称长度;2.A、B级螺栓孔的精度和孔壁表面粗糙度,C级螺栓孔的允许偏差和孔壁表面粗糙度,均应符合现行国家标准钢结构工程施工质量验收规范GB 50205的要求;铆钉连接的强度设计值N/mm2表2-81注:1.属于下列情况者为I类孔:1在装配好的构件上按设计孔径钻成的孔;2在单个零件和构件上按设计孔径分别用钻模钻成的孔;3在单个零件上先钻成或冲成较小的孔径,然后在装配好的构件上再扩钻至设计孔径的孔;2.在单个零件上一次冲成或不用钻模钻成设计孔径的孔属于II类孔;计算下列情况的结构构件或连接时,上述强度设计值应乘以相应的折减系数:1.单面连接的单角钢1按轴心受力计算强度和连接;2按轴心受压计算稳定性等边角钢+δ,但不大于:短边相连的不等边角钢+δ,但不大于;长边相连的不等边角钢;几为长细比,对中间无连接的单角钢压杆,应按最小回转半径计算,当δ<20时,取δ=20;2.无垫板的单面施焊对接焊缝;3.施工条件较差的高空安装焊缝和铆钉连接;4.沉头和半沉头铆钉连接;注:当几种情况同时存在时,其折减系数应连乘;钢材和钢铸件的物理性能指标见表2-82;钢材和钢铸件的物理性能指标表2-82吊车梁、楼盖梁、屋盖梁、工作平台梁以及墙架构件的挠度不宜超过表2-83所列的容许值;受弯构件挠度允许值表2-83注:1.l为受弯构件的跨度对悬臂梁和伸臂梁为悬伸长度的2倍;2.νT为全部荷载标准值产生的挠度如有起拱应减去拱度允许值;νQ为可变荷载标准值产生的挠度允许值;框架结构的水平位移允许值:在风荷载标准值作用下框架柱顶水平位移和层间相对位移不宜超过下列数值;1.无桥式吊车的单层框架的柱顶位移H/1502.有桥式吊车的单层框架的柱顶位移H/4003.多层框架的柱顶位移H/5004.多层框架的层间相对位移h/400H为自基础顶面至柱顶的总高度;h为层高;注:1.对室内装修要求较高的民用建筑多层框架结构,层间相对位移宜适当减小;无墙壁的多层框架结构,层间相对位移可适当放宽;2.对轻型框架结构的柱顶水平位移和层间位移均可适当放宽;桁架弦杆和单系腹杆的计算长度见表2-84;桁架弦杆和单系腹杆的计算长度l0表2-84注:1.l为构件的几何长度节点中心间距离;l1为桁架弦杆侧向支承点之间的距离;2.斜平面系指与桁架平面斜交的平面,适用于构件截面两主轴均不在桁架平面内的单角钢腹杆和双角钢十字形截面腹杆;3.无节点板的腹杆计算长度在任意平面内均取其等于几何长度钢管结构除外;受拉构件的允许长细比见表2-85;受压构件的允许长细比见表2-86;受拉构件的允许长细比表2-85注:1.承受静力荷载的结构中,可仅计算受拉构件在竖向平面内的长细比;2.在直接或间接承受动力荷载的结构中,单角钢受拉构件长细比的计算方法与表2-86注2相同;3.中、重级工作制吊车桁架下弦杆的长细比不宜超过200;4.在设有夹钳或刚性料耙等硬钩吊车的厂房中,支撑表中第2项除外的长细比不宜超过300;5.受拉构件在永久荷载与风荷载组合作用下受压时,其长细比不宜超过250;6.跨度等于或大于60m的桁架,其受拉弦杆和腹杆的长细比不宜超过300承受静力荷载或间接承受动力荷载或250直接承受动力荷载;受压构件的允许长细比表2-86注:1.桁架包括空间桁架的受压腹杆,当其内力等于或小于承载能力的50%时,允许长细比值可取为200;2.计算单角钢受压构件的长细比时,应采用角钢的最小回转半径,但在计算交叉杆件平面外的长细比时,可采用与角钢肢边平行轴的回转半径;3.跨度等于或大于60m的桁架,其受压弦杆和端压杆的允许长细比值宜取为100,其他受压腹杆可取为150承受静力荷载或间接承受动力荷载或120直接承受动力荷载;单层厂房阶形柱计算长度的折减系数见表2-87;单层厂房阶形柱计算长度的折减系数表2-87注:有横梁的露天结构如落锤车间等,其折减系数可采用;摩擦型高强度螺栓中摩擦面抗滑移系数见表2-88;一个高强度螺栓的预拉力见表2-89;摩擦面的抗滑移系数μ表2-88一个高强度螺栓的预拉力PkN 表2-89螺栓或铆钉的允许距离见表2-90;螺栓或铆钉的最大、最小允许距离表2-90注:1.d0为螺栓或铆钉的孔径,t为外层较薄板件的厚度;2.钢板边缘与刚性构件如角钢、槽钢等相连的螺栓或铆钉的最大间距,可按中间排的数值采用;常见型钢及其组合截面的回转半径的近似值见表2-91;常见型钢及其组合截面的回转半径的近似值表表2-91圆形钢管规格及截面特征见表2-92;圆形钢管规格及截面特征表表2-92直径外径Dmm 壁厚tmm截面面积cm2理论重量kg/m外表面积m2/m截面特征Icm4Wcm3icmI kcm4Z0cmmm in注:I——毛截面惯性矩;W——毛截面抵抗矩;i——回转半径;I k——抗扭惯性矩;Z0——截面重心到边缘距离;2-5-2 钢结构计算公式1.构件的强度和稳定性计算公式表2-93强度和稳定性计算表表2-932.连接计算公式表2-94连接计算公式表2-942-5-3 钢管结构计算1.适用于不直接承受动力荷载,在节点处直接焊接的钢管桁架结构;钢管外径与壁厚之比,不应超过100y f 234;轴心受压方管或矩形管的最大外缘尺寸与壁厚之比,不应超40y f 234; 2.钢管节点的构造应符合下列要求:1主管外径应大于支管外径,主管壁厚不应小于支管壁厚;在支管与主管连接处不得将支管穿入主管内;2主管和支管或两支管轴线之间的夹角θi 不宜小于30°;3支管与主管的连接节点处,应尽可能避免偏心;4支管与主管的连接焊缝,应沿全周连续焊接并平滑过渡;5支管端部宜用自动切管机切割,支管壁厚小于6mm 时可不切坡口;3.支管与主管的连接可沿全周用角焊缝,也可部分用角焊缝、部分用对接焊缝,支管管壁与主管管壁之间的夹角大于或等于120°的区域宜用对接焊缝或带坡口的角焊缝;角焊缝的焊脚尺寸h f 不宜大于支管壁厚的两倍;4.支管与主管的连接焊缝为全周角焊缝,按下式计算,但取βf =1:w f f we f f l h N βσ≤= 角焊缝的有效厚度he,当支管轴心受力时取;角焊缝的计算长度l w ,按下列公式计算:1在圆管结构中取支管与主管相交线长度:式中 d 、d i ——主管和支管外径;θi ——主管轴线与支管轴线的夹角; 2在矩形管结构中,支管与主管交线的计算长度,对于有间隙的K 形和N 形节点:对于T 、Y 、X 形节点ii w h l θsin 2= 式中 h i 、b i ——分别为支管的截面高度和宽度;5.为保证节点处主管的强度,支管的轴心力不得大于表2-95规定的承载力设计值:支管轴心力的承载力设计值表2-95圆管结构的节点形式见图2-2;图2-2 圆管结构的节点形式aX形节点;bT形和Y形受拉节点;cT形和Y形受压节点;dK形节点;eTT形节点;fKK形节点2-5-4 钢与混凝土组合梁计算组合梁为由混凝土翼板与钢梁通过抗剪连接件组成;翼板可用现浇混凝土板,并可用混凝土叠合板或压型钢板;钢与混凝土组合梁计算见表2-96;混凝土翼板的计算宽度图2-3b e为:b e=b0+b1+b2式中b0——板托顶部的宽度,当α<45°时按α=45°计算板托顶部的宽度;当无板托时,取钢梁上翼缘的宽度;b1、b2——梁外侧和内侧的翼板计算宽度,各取梁跨度l的1/6和翼板厚度h c1的6倍中的较小值;图2-3 混凝土翼板的计算宽度1-混凝土翼板;2-板托;3-钢梁钢与混凝土组合梁计算表2-96。
固上森锚栓的参数包括以下几个方面:
1. 直径:常见的直径规格有M6、M8、M10等,以英寸或毫米为单位。
2. 长度:通常以毫米为单位进行标记,常见的长度规格有20mm、30mm、40mm等。
3. 螺纹类型:有多种类型,常见的有UNC(美国统一粗牙螺纹)、UNF(美国统一细牙螺纹)、M(公制螺纹)等。
4. 强度等级:常用强度等级为 4.8、8.8、10.9等,强度等级越高,螺栓的抗拉强度和扭矩能力就越大。
5. 螺栓材料:一般为碳钢、不锈钢、合金钢等,各种材料具有不同的强度和耐腐蚀性,可根据工程要求选择合适的材料。
固上森锚栓的参数还会根据具体的产品型号有所区别,例如公称直径为12mm,长度为160mm,牙距为10的型号适用于幕墙、钢结构、设备固定等,而其他型号则适用于其他领域。
因此,对于具体的固上森锚栓参数,需要根据型号和工程要求进行选择和确认。
输入参数:序号名称数值锚栓规格与数量1化学锚栓规格M14×1802化学锚栓数量43化学锚栓材质奥氏体不锈钢4化学锚栓性能等级70锚板尺寸与边距5锚板X方向长a(mm)2506锚板Y方向长b(mm)2507锚板厚度(mm)108锚板X方向螺栓间距s11(mm)1509锚板Y方向螺栓间距s21(mm)160原值边界限值10锚板X方向和边缘垂距c1(mm)86092011锚板X方向和边缘垂距c2(mm)86092012锚板Y方向和边缘垂距c3(mm)86092013锚板X方向和边缘垂距c4(mm)860920荷载标准值14轴向拉力(kN) 4.515X轴方向剪力(kN)016Y轴方向剪力(kN)-517扭矩(kNm)0.05拉力、剪力标准值选用JGJ145规范的计算值序号名称1判定:N/n-My1/Σyi22单个锚栓最大拉力组合设计值Nsdh(N)3锚栓钢材破坏受拉承载力设计值NRd,s(N)4群锚抗拉承载力判定(钢材破坏)5X轴方向受拉偏心距eN1(mm)6Y轴方向受拉偏心距eN2(mm)7锚栓钢材破坏受拉承载力标准值NRk,s(N)8锚固承载力分项系数-钢材破坏γRs,N9群锚受拉区各螺栓拉力组合设计值之和Nsdg(N)10混合破坏受拉承载力设计值NRd,p(N) 11群锚抗拉承载力判定(混合破坏)12无间距、边距影响,单个锚栓受拉承载力标准值NRk,p0(N)13无间距、边距影响,单个锚栓达到受拉承载力标准值临界间距Scr,Np(mm)14无间距、边距影响,单个锚栓达到受拉承载力标准值临界边距Ccr,Np(mm)15无间距、边距影响,单根锚栓或群锚受拉混凝土实际锥体破坏投影面积Ap,N0(mm²)16单根锚栓或群锚受拉混凝土实际锥体破坏投影面积Ap,N(mm²)17边距c对受拉承载力的影响系数ψs,Np18群锚表面破坏对受拉承载力影响系数ψg,Np19荷载偏心对受拉承载力的影响系数ψec,Np20表层混凝土因剥离作用受拉对承载力的影响系数ψre,Np21混合破坏受拉承载力标准值NRk,p(N)输出参数:抗拉承载力。
锚固螺栓锚栓用于上部钢结构与下部基础的连接,承受柱弯矩在柱脚底板与基础间产生的拉力,剪力由柱底板与基础面之间的摩擦力抵抗,若摩擦力不足以抵抗剪力,则需在柱底板上焊接抗剪键以增大抗剪能力。
锚栓一头埋入混凝土中,埋入的长度要以混凝土对其的握裹力不小于其自身强度为原则,所以对于不同的混凝土标号和锚栓强度,所需最小埋入长度也不一样。
为了增加握裹力,对于Φ39以下锚栓,需将其下端弯成L型,弯钩的长度为4D;对于Φ39以上锚栓,因其直径过大不便于折弯,则在其下端焊接锚固板。
锚栓的锚固及构造详见表7-5与表7-6。
259表7-5-1Q235 钢锚栓选用表锚栓直径d (mm) 锚栓截面有效面积A0(cm)连接尺寸锚固长度及细部尺寸每个螺栓的受拉承载力设计值taN(KN)Ⅰ型Ⅱ型Ⅲ型单螺母双螺母锚固长度 l (mm)锚板尺寸a(mm)b(mm)a(mm)b(mm)当基础混凝土的强度等级为 C(mm)t(mm)C15 C20 C15 C20 C15 C2020 22 24 27 3033 36 39 42 45 2.4483.0343.5254.5945.6066.9368.1679.75811.2113.06454550505555606570757575808085909510010511060657075808590951001059095100105110120125130135140500550600675750825900100040044048054060066072078010501125840900630675505540140140202034.342.549.464.378.597.1114.3136.6156.9182.8260表7-5-2Q235 钢锚栓选用表锚栓直径d (mm) 锚栓截面有效面积A0(cm)连接尺寸锚固长度及细部尺寸每个螺栓的受拉承载力设计值taN(KN)Ⅰ型Ⅱ型Ⅲ型单螺母双螺母锚固长度 l (mm)锚板尺寸a(mm)b(mm)a(mm)b(mm)当基础混凝土的强度等级为 C(mm)t(mm)C15 C20 C15 C20 C15 C2048 52 56 6064 68 72 76 80 14.7317.5820.3023.6226.7630.5534.6038.8943.4480859095100105110115120120125130135145150155160165110120130140150160170180190150160170180195205215225235120013001400150016001700180019002000960104011201200128013601440152016007207808409009601020108011401200575625670720770815865910960200200200240240280280320350202020252530303040206.2246.1284.2330.7374.6427.7484.4544.5608.2261表7-5-3 Q235 钢锚栓选用表锚栓直径d (mm) 锚栓截面有效面积A0(cm)连接尺寸锚固长度及细部尺寸每个螺栓的受拉承载力设计值taN(KN)Ⅰ型Ⅱ型Ⅲ型单螺母双螺母锚固长度 l (mm)锚板尺寸a(mm)b(mm)a(mm)b(mm)当基础混凝土的强度等级为 C(mm)t(mm)C15 C20 C15 C20 C15 C2085 90 95 100 49.4855.9162.7369.95130140150160180190200210200210220230250260270280212522502375250017001800190020001275135014251500102010801140120035040045050040404545692.7782.7878.2979.3262表7-6-1Q345 钢锚栓选用表锚栓直径d (mm) 锚栓截面有效面积A0(cm)连接尺寸锚固长度及细部尺寸每个螺栓的受拉承载力设计值taN(KN)Ⅰ型Ⅱ型Ⅲ型单螺母双螺母锚固长度 l (mm)锚板尺寸a(mm)b(mm)a(mm)b(mm)当基础混凝土的强度等级为 C(mm)t(mm)C15 C20 C15 C20 C15 C2020 22 24 27 3033 36 39 42 45 2.4483.0343.5254.5945.6066.9368.1679.75811.2113.064545505055556065707575758080859095100105110606570758085909510010590951001051101201251301351406006607208109009901080117050055060067575062590010001260135010501125755810630675140140202044.154.663.582.7100.9124.8147.0175.6201.8235.1263表7-6-2 Q345 钢锚栓选用表锚栓直径d (mm) 锚栓截面有效面积A0(cm)连接尺寸锚固长度及细部尺寸每个螺栓的受拉承载力设计值taN(KN)Ⅰ型Ⅱ型Ⅲ型单螺母双螺母锚固长度 l (mm)锚板尺寸a(mm)b(mm)a(mm)b(mm)当基础混凝土的强度等级为 C(mm)t(mm)C15 C20 C15 C20 C15 C2048 52 56 6064 68 72 76 80 14.7317.5820.3023.6226.7630.5534.6038.8943.448085909510010511011512012012513013514515015516016511012013014015016017018019015016017018019520521522523514401560168018001920204021602280240012001300140015001600170018001900200086593510101080115012251300137014407207808409009601020108011401200200200200240240280280320350202020252530303040265.1316.4365.4425.2481.7549.9622.8700.0781.9264表7-6-3 Q345 钢锚栓选用表锚栓直径d (mm) 锚栓截面有效面积A0(cm)连接尺寸锚固长度及细部尺寸每个螺栓的受拉承载力设计值taN(KN)Ⅰ型Ⅱ型Ⅲ型单螺母双螺母锚固长度 l (mm)锚板尺寸a(mm)b(mm)a(mm)b(mm)当基础混凝土的强度等级为 C(mm)t(mm)C15 C20 C15 C20 C15 C2085 90 95 100 49.4855.9162.7369.95130140150160180190200210200210220230250260270280255027002850300021252250237525001530162017101800127513501425150035040045050040404545890.6100611291259265。
2-5钢结构计算2-5-1钢结构计算用表为保证承重结构的承载能力和防止在一定条件下出现脆性破坏,应根据结构的重要性、荷载特征、结构形式、应力状态、连接方法、钢材厚度和工作环境等因素综合考虑,选用合适的钢材牌号和材性。
承重结构的钢材宜采用0235钢、Q345钢、Q390钢和Q420钢,其质量应分别符合现行国家标准《碳素结构钢》GB/T700和《低合金高强度结构钢》GB/T1591的规定。
当采用其他片卑号的钢材时,尚应符合相应有尖标准的规定和要求。
对Q235钢宜选用镇静钢或半镇静钢。
承重结构的钢材应具有抗拉强度、伸长率、屈服强度和硫、磷含量的合格保证,对焊接结构尚应具有碳含量的合格保证。
焊接承重结构以及重要的非焊接承重结构的钢材还应具有冷弯试验的合格保证。
对于需要验算疲劳的焊接结构的钢材,应具有常温冲击韧性的合格保证。
当结构工作温度等于或低于0 C但高于・20 C时,Q235钢和Q345钢应具有0 C C冲击韧性的合格保证;对Q390钢和Q420钢应具有・20 C冲击韧性的合格保证。
当结构工作温度等于或低于・20 C时,对Q235钢和Q345钢应具有・20 C冲击韧性的合格保证;对Q390钢和Q420钢应具有・40 C冲击韧性的合格保证。
对于需要验算疲劳的非焊接结构的钢材亦应具有常温冲击韧性的合格保证,当结构工作温度等于或低于・20 C时,对Q235钢和Q345钢应具有0 C冲击韧性的合格保证;对Q390钢和Q420钢应具有・20 C冲击韧性的合格保证。
当焊接承重结构为防止钢材的层状撕裂而采用Z向钢时,其材质应符合现行国家标准《厚度方向性能钢板》GB/T 5313的规定。
钢材的强度设计值(材料强度的标准值除以抗力分项系数),应根据钢材厚度或直径按表2-77采用。
钢铸件的强度设计值应按表2-78采用。
连接的强度设计值应按表2・79至表Z81采用。
钢材的强度设计值(N/m命表2-77注:表中厚度系指计算点的钢材厚度,对轴心受力构件系指截面中较厚板件的厚度。
常用柱脚锚栓选用表-secret表7-5-1 Q235 钢锚栓选用表锚栓直径d (mm) 锚栓截面有效面积A0(cm)连接尺寸锚固长度及细部尺寸每个螺栓的受拉承载力设计值taN(KN)Ⅰ型Ⅱ型Ⅲ型单螺母双螺母锚固长度 l (mm) 锚板尺寸a(mm)b(mm)a(mm)b(mm)当基础混凝土的强度等级为 C(mm)t(mm)C15 C20 C15 C20 C15 C2020 22 24 27 3033 36 39 42 45 2.4483.0343.5254.5945.6066.9368.1679.75811.2113.06454550505555606570757575808085909510010511060657075808590951001059095100105110120125130135140500550600675750825900100040044048054060066072078010501125840900630675505540140140202034.342.549.464.378.597.1114.3136.6156.9182.8表7-5-2 Q235 钢锚栓选用表锚栓直径d (mm) 锚栓截面有效面积A0(cm)连接尺寸锚固长度及细部尺寸每个螺栓的受拉承载力设计值taN(KN)Ⅰ型Ⅱ型Ⅲ型单螺母双螺母锚固长度 l (mm) 锚板尺寸a(mm)b(mm)a(mm)b(mm)当基础混凝土的强度等级为 C(mm)t(mm)C15 C20 C15 C20 C15 C2048 52 56 6064 68 72 76 80 14.7317.5820.3023.6226.7630.5534.6038.8943.4480859095100105110115120120125130135145150155160165110120130140150160170180190150160170180195205215225235120013001400150016001700180019002000960104011201200128013601440152016007207808409009601020108011401200575625670720770815865910960200200200240240280280320350202020252530303040206.2246.1284.2330.7374.6427.7484.4544.5608.2表7-5-3 Q235 钢锚栓选用表锚栓直径d (mm) 锚栓截面有效面积A0(cm)连接尺寸锚固长度及细部尺寸每个螺栓的受拉承载力设计值taN(KN)Ⅰ型Ⅱ型Ⅲ型单螺母双螺母锚固长度 l (mm) 锚板尺寸a(mm)b(mm)a(mm)b(mm)当基础混凝土的强度等级为 C(mm)t(mm)C15 C20 C15 C20 C15 C2085 90 95 100 49.4855.9162.7369.95130140150160180190200210200210220230250260270280212522502375250017001800190020001275135014251500102010801140120035040045050040404545692.7782.7878.2979.3表7-6-1 Q345 钢锚栓选用表锚栓直径d(mm) 锚栓截面有效面积A0(cm)连接尺寸锚固长度及细部尺寸每个螺栓的受拉承载力设计值taN(KN)Ⅰ型Ⅱ型Ⅲ型单螺母双螺母锚固长度 l (mm) 锚板尺寸a(mm)b(mm)a(mm)b(mm)当基础混凝土的强度等级为 C(mm)t(mm)C15 C20 C15 C20 C15 C2020 22 24 27 30 2.4483.0343.5254.5945.606454550505575758080856065707580909510010511060066072081090050055060067575044.154.663.582.7100.933 36 39 42 45 6.9368.1679.75811.2113.065560657075909510010511085909510010512012513013514099010801170625900100012601350105011257558106306751401402020124.8147.0175.6201.8235.1表7-6-2 Q345 钢锚栓选用表锚栓直径d(mm) 锚栓截面有效面积A0(cm)连接尺寸锚固长度及细部尺寸每个螺栓的受拉承载力设计值taN(KN)Ⅰ型Ⅱ型Ⅲ型单螺母双螺母锚固长度 l (mm) 锚板尺寸a(mm)b(mm)a(mm)b(mm)当基础混凝土的强度等级为 C(mm)t(mm)C15 C20 C15 C20 C15 C2048 52 56 60 14.7317.5820.3023.6280859095120125130135110120130140150160170180144015601680180012001300140015008659351010108072078084090020020020024020202025265.1316.4365.4425.264 68 72 76 80 26.7630.5534.6038.8943.4410010511011512014515015516016515016017018019019520521522523519202040216022802400160017001800190020001150122513001370144096010201080114012002402802803203502530303040481.7549.9622.8700.0781.9表7-6-3 Q345 钢锚栓选用表锚栓直径d(mm) 锚栓截面有效面积A0(cm)连接尺寸锚固长度及细部尺寸每个螺栓的受拉承载力设计值taN(KN)Ⅰ型Ⅱ型Ⅲ型单螺母双螺母锚固长度 l (mm) 锚板尺寸a(mm)b(mm)a(mm)b(mm)当基础混凝土的强度等级为 C(mm)t(mm)C15 C20 C15 C20 C15 C2085 90 95 100 49.4855.9162.7369.95130140150160180190200210200210220230250260270280255027002850300021252250237525001530162017101800127513501425150035040045050040404545890.6100611291259。
化学螺栓规格表一、化学螺栓适用范围1、适用于普通混凝土强度等级大于等于C15(未开裂混凝土),致密的天然石材。
2、用于固定普通钢结构、底座、导轨、柱帽、柱脚、牛腿、栅栏、楼梯、幕墙、扁钢及型钢、预埋钢筋、埋入式模板等。
二、化学螺栓特点:1、施工温度范围较宽,从15℃~40℃。
2、无膨胀力锚固,对混凝土不产生挤压应力,适用于各种基材,在强度较差的混凝土上表现更佳。
3、安全方便(如喜利得螺栓药剂管特殊倒挂外形,保证垂直面吊挂施工时不坠落)。
4、间距、边距小,适用于空间狭小处。
5、安装操作便利,安装后能迅速固结,有较高的承载力。
6、适用于重载及各种震动负载。
7、锚固厚度较大。
化学螺栓规格有M8,M10,M12,M16,M20,M24,M30,M33等规格化学螺栓是靠与混凝土之间的握裹力和机械咬合力共同作用来抗拔和螺栓本身来抗剪,主要用在新旧结构的连接处,各项力学指标你可以找厂家是产品介绍,计算时要根据厂家提供的资料来进行,因为各种厂家生产的化学粘接剂都不同,所以粘接能力也不同,平常比较知名的大陆外品牌有德国喜利得、德国惠鱼锚具、台湾固特优等厂家生产的化学螺栓;大陆内品牌较多,且良莠不齐,使用前需认真核实其性能。
化学螺栓是后埋件的一种,在预埋件漏埋或后建工程中使用。
化学螺栓规格基材为混凝土,天然硬质石材。
材质是聚胺酯丙稀酸酯+石英砂。
是靠与混凝土之间的握裹力和机械咬合力共同作用来抗拔和螺栓本身来抗剪,主要用在新旧结构的连接处,各项力学指标你可以找厂家是产品介绍,计算时要根据厂家提供的资料来进行,因为各种厂家生产的化学粘接剂都不同,所以粘接能力也不同,化学螺栓是后埋件的一种,在预埋件漏埋或后建工程中使用。
化学螺栓适用于重载在近边距和狭窄构件(柱、阳台等)上固定可在混泥土(=> C25砼)里使用可在耐压的天然石里锚固(未经检验)适用于以下锚固:钢筋固、金属构件、拖架、机器基板、道路护栏、模板的固定、隔音墙墙脚的固定、路牌的固定、枕木的固定、楼板护边、重型支撑粱、屋面装饰构件、窗户、护网、重型电梯、楼板支撑、施工支架的固定、穿传输系统、轨枕的固定、支架和货架系统的固定、防撞设施、汽车拖架、支柱、烟囱、重型广告牌、重型隔音墙、重型门的固定、成套设备的固定、塔吊的固定、管道的固定安装、重型拖架、导轨的固定、钉板的连接、重型空间分割装置、货架、遮阳蓬固定不锈钢A4锚拴可用于室外、潮湿空间、工业污染区、近海区镀锌钢、不锈钢A 4不适用于含氯的潮湿空间(如室内游泳池等)适用于较小轴距和多个锚固点的基板的固定。
钢结构承载计算用表为保证承重结构的承载能力和防止在一定条件下出现脆性破坏,应根据结构的重要性、荷载特征、结构形式、应力状态、连接方法、钢材厚度和工作环境等因素综合考虑,选用合适的钢材牌号和材性。
承重结构的钢材宜采用Q235钢、Q345钢、Q390钢和Q420钢,其质量应分别符合现行国家标准《碳素结构钢》GB/T 700和《低合金高强度结构钢》GB/T 1591的规定。
当采用其他牌号的钢材时,尚应符合相应有关标准的规定和要求。
对Q235钢宜选用镇静钢或半镇静钢.承重结构的钢材应具有抗拉强度、伸长率、屈服强度和硫、磷含量的合格保证,对焊接结构尚应具有碳含量的合格保证。
焊接承重结构以及重要的非焊接承重结构的钢材还应具有冷弯试验的合格保证。
对于需要验算疲劳的焊接结构的钢材,应具有常温冲击韧性的合格保证。
当结构工作温度等于或低于0℃但高于—20℃时,Q235钢和Q345钢应具有0℃C 冲击韧性的合格保证;对Q390钢和Q420钢应具有—20℃冲击韧性的合格保证.当结构工作温度等于或低于-20℃时,对Q235钢和Q345钢应具有-20℃冲击韧性的合格保证;对Q390钢和Q420钢应具有-40℃冲击韧性的合格保证。
对于需要验算疲劳的非焊接结构的钢材亦应具有常温冲击韧性的合格保证,当结构工作温度等于或低于—20℃时,对Q235钢和Q345钢应具有0℃冲击韧性的合格保证;对Q390钢和Q420钢应具有-20℃冲击韧性的合格保证.当焊接承重结构为防止钢材的层状撕裂而采用Z向钢时,其材质应符合现行国家标准《厚度方向性能钢板》GB/T 5313的规定.钢材的强度设计值(材料强度的标准值除以抗力分项系数),应根据钢材厚度或直径按表2—77采用。
钢铸件的强度设计值应按表2-78采用.连接的强度设计值应按表2-79至表2—81采用。
钢材的强度设计值(N/mm2)表2—77注:表中厚度系指计算点的钢材厚度,对轴心受力构件系指截面中较厚板件的厚度。
螺栓强度等级螺栓性能等级的含义钢结构连接用螺栓性能等级分3.6、4.6、4.8、5.6、6.8、8.8、9.8、10.9、12.9等10余个等级,其中8.8级及以上螺栓材质为低碳合金钢或中碳钢并经热处理(淬火、回火),通称为高强度螺栓,其余通称为普通螺栓。
螺栓性能等级标号有两部分数字组成,分别表示螺栓材料的公称抗拉强度值和屈强比值。
例如,性能等级 4.6级的螺栓,其含义是:1、螺栓材质公称抗拉强度达400MPa级;2、螺栓材质的屈强比值为0.6;3、螺栓材质的公称屈服强度达400×0.6=240MPa级性能等级10.9级高强度螺栓,其材料经过热处理后,能达到:1、螺栓材质公称抗拉强度达1000MPa级;2、螺栓材质的屈强比值为0.9;3、螺栓材质的公称屈服强度达1000×0.9=900MPa级螺栓性能等级的含义是国际通用的标准,相同性能等级的螺栓,不管其材料和产地的区别,其性能是相同的,设计上只选用性能等级即可。
强度等级所谓8.8级和10.9级是指螺栓的抗剪切应力等级为8.8GPa和10.9Gpa8.8公称抗拉强度800N/MM2公称屈服强度640N/MM2一般的螺栓是用"X.Y"表示强度的,X*100=此螺栓的抗拉强度,X*100*(Y/10)=此螺栓的屈服强度(因为按标识规定:屈服强度/抗拉强度=Y/10)如4.8级则此螺栓的抗拉强度为:400MPa屈服强度为:400*8/10=320Mpa根据有关资料,M8螺栓8.8级可承受最小拉力为29300N,约2989.8KG,单个的也是这么多。
这些数据在机械手册上都是可以查到的,它的计算公式如下:最小拉力载荷:F=AsX最小抗拉强度As--螺栓的应力截面积(手册上可查到)最小抗拉强度--螺栓材料的最小抗拉强度(手册上可查到)内六角外六角螺栓直径性能等级(3.6 5.6 6.9S(mm)S(mm)M(mm)Fv(N)Ma(Nm)Fv(N)Ma(Nm)Fv(N)Ma(Nm)1.54M22550.13450.157100.325M2.54850.266550.351,3100.712.25 5.5M36300.371,0500.621,7000.996M3.58500.571,4000.952,250 1.537M41,1000.851,850 1.42,900 2.3 48、9M51,800 1.73,000 2.84,800 4.5510M62,550 2.94,200 4.86,7507.7 613、4M84,65077,7501212,40019 815、17M107,4001412,3002319,70037 1019、21M1210,8002418,0004028,80065 1222、23M1414,8003924,7006439,500105 1424、26M1620,4005934,0009854,50015527M1824,8008141,30013566,0002151730M2031,90011553,00019085,00030532M2239,90015566,500260106,0004151936M2445,90020076,500330122,00053041M2780,500295100,000490161,0007802246M3073,500395122,000660196,0001,05050M3391,500540153,000900244,0001,4502755M36107,000690179,0001,150287,0001,850 60M39129,000900215,0001,500345,0002,400 3265M42148,0001,100247,0001,850395,0002,950 70M45173,0001,400289,0002,300462,0003,700 3675M48195,0001,700325,0002,800520,0004,450 80M52234,0002,150390,0003,600624,0005,750 4185M56270,0002,700450,0004,500719,0007,150 90M60315,0003,350525,0005,550841,0008,900 4695M64357,0004,000595,0006,700951,00010,700 S-内六角或外六方两平行边距离Fv-螺栓预紧力。
外墙保温用锚栓规格一、产品概述外墙保温用锚栓是一种用于固定外墙保温材料的建筑材料,具有抗腐蚀、耐久性强等特点。
本规格旨在为用户提供详尽准确的锚栓规格参数,以便用户选择合适的锚栓。
二、材料1. 锚栓主体采用优质碳素钢或不锈钢。
2. 螺母采用优质不锈钢。
三、规格参数1. 锚栓长度:80mm-300mm。
2. 锚栓直径:8mm-16mm。
3. 螺母直径:相应锚栓直径的螺母。
4. 洞内深度:至少与锚栓长度相等,最好略大于锚栓长度。
四、性能指标1. 抗拉强度:≥5KN。
2. 抗剪强度:≥3KN。
3. 抗腐蚀性能:符合GB/T1771-2007标准要求。
五、使用方法1. 在外墙保温板上打孔,并清理孔洞内部灰尘等杂物。
2. 将锚栓插入孔洞中,并旋转使其与墙面紧密贴合,注意不能过紧。
3. 在锚栓上加装螺母,并适当调整螺母的紧度,以确保外墙保温板固定牢固。
六、注意事项1. 锚栓安装前应检查其表面是否有明显的损伤或变形。
2. 安装时应注意锚栓与墙面的垂直度,以免影响固定效果。
3. 安装后应及时对锚栓进行检查和维护,如有损坏或松动应及时更换或加固。
七、包装及运输1. 锚栓和螺母分别采用塑料袋包装,每袋数量不超过50个。
2. 包装后的锚栓和螺母应放置在干燥通风处,避免阳光直射和雨淋。
3. 运输中应轻拿轻放,避免碰撞和挤压。
八、质量保证1. 本产品质量保证期为一年。
2. 在质保期内如发现产品质量问题,请及时联系供货商进行处理。
九、生产厂家本产品由专业建筑材料生产厂家生产制造,具有多年生产经验和技术实力。
2-5 钢结构计算2-5-1 钢结构计算用表为保证承重结构的承载能力和防止在一定条件下出现脆性破坏,应根据结构的重要性、荷载特征、结构形式、应力状态、连接方法、钢材厚度和工作环境等因素综合考虑,选用合适的钢材牌号和材性。
承重结构的钢材宜采用Q235钢、Q345钢、Q390钢和Q420钢,其质量应分别符合现行国家标准《碳素结构钢》GB/T 700和《低合金高强度结构钢》GB/T 1591的规定。
当采用其他牌号的钢材时,尚应符合相应有关标准的规定和要求。
对Q235钢宜选用镇静钢或半镇静钢。
承重结构的钢材应具有抗拉强度、伸长率、屈服强度和硫、磷含量的合格保证,对焊接结构尚应具有碳含量的合格保证。
焊接承重结构以及重要的非焊接承重结构的钢材还应具有冷弯试验的合格保证。
对于需要验算疲劳的焊接结构的钢材,应具有常温冲击韧性的合格保证。
当结构工作温度等于或低于0℃但高于-20℃时,Q235钢和Q345钢应具有0℃C冲击韧性的合格保证;对Q390钢和Q420钢应具有-20℃冲击韧性的合格保证。
当结构工作温度等于或低于-20℃时,对Q235钢和Q345钢应具有-20℃冲击韧性的合格保证;对Q390钢和Q420钢应具有-40℃冲击韧性的合格保证。
对于需要验算疲劳的非焊接结构的钢材亦应具有常温冲击韧性的合格保证,当结构工作温度等于或低于-20℃时,对Q235钢和Q345钢应具有0℃冲击韧性的合格保证;对Q390钢和Q420钢应具有-20℃冲击韧性的合格保证。
当焊接承重结构为防止钢材的层状撕裂而采用Z向钢时,其材质应符合现行国家标准《厚度方向性能钢板》GB/T 5313的规定。
钢材的强度设计值(材料强度的标准值除以抗力分项系数),应根据钢材厚度或直径按表2-77采用。
钢铸件的强度设计值应按表2-78采用。
连接的强度设计值应按表2-79至表2-81采用。
钢材的强度设计值(N/mm2)表2-77注:表中厚度系指计算点的钢材厚度,对轴心受力构件系指截面中较厚板件的厚度。
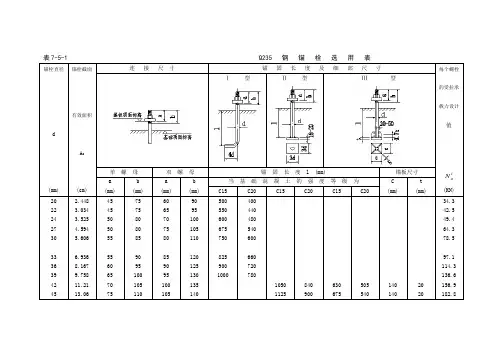
第一节锚栓锚栓用于上部钢结构与下部基础的连接,承受柱弯矩在柱脚底板与基础间产生的拉力,剪力由柱底板与基础面之间的摩擦力抵抗,若摩擦力不足以抵抗剪力,则需在柱底板上焊接抗剪键以增大抗剪能力。
锚栓一头埋入混凝土中,埋入的长度要以混凝土对其的握裹力不小于其自身强度为原则,所以对于不同的混凝土标号和锚栓强度,所需最小埋入长度也不一样。
为了增加握裹力,对于Φ39以下锚栓,需将其下端弯成L型,弯钩的长度为4D;对于Φ39以上锚栓,因其直径过大不便于折弯,则在其下端焊接锚固板。
锚栓的锚固及构造详见表7-5与表7-6。
259表7-5-1Q235 钢锚栓选用表锚栓直径d (mm) 锚栓截面有效面积A0(cm)连接尺寸锚固长度及细部尺寸每个螺栓的受拉承载力设计值taN(KN)Ⅰ型Ⅱ型Ⅲ型单螺母双螺母锚固长度 l (mm)锚板尺寸a(mm)b(mm)a(mm)b(mm)当基础混凝土的强度等级为 C(mm)t(mm)C15 C20 C15 C20 C15 C2020 22 24 27 3033 36 39 42 45 2.4483.0343.5254.5945.6066.9368.1679.75811.2113.06454550505555606570757575808085909510010511060657075808590951001059095100105110120125130135140500550600675750825900100040044048054060066072078010501125840900630675505540140140202034.342.549.464.378.597.1114.3136.6156.9182.8260表7-5-2Q235 钢锚栓选用表锚栓直径d (mm) 锚栓截面有效面积A0(cm)连接尺寸锚固长度及细部尺寸每个螺栓的受拉承载力设计值taN(KN)Ⅰ型Ⅱ型Ⅲ型单螺母双螺母锚固长度 l (mm)锚板尺寸a(mm)b(mm)a(mm)b(mm)当基础混凝土的强度等级为 C(mm)t(mm)C15 C20 C15 C20 C15 C2048 52 56 6064 68 72 76 80 14.7317.5820.3023.6226.7630.5534.6038.8943.4480859095100105110115120120125130135145150155160165110120130140150160170180190150160170180195205215225235120013001400150016001700180019002000960104011201200128013601440152016007207808409009601020108011401200575625670720770815865910960200200200240240280280320350202020252530303040206.2246.1284.2330.7374.6427.7484.4544.5608.2261表7-5-3 Q235 钢锚栓选用表锚栓直径d (mm) 锚栓截面有效面积A0(cm)连接尺寸锚固长度及细部尺寸每个螺栓的受拉承载力设计值taN(KN)Ⅰ型Ⅱ型Ⅲ型单螺母双螺母锚固长度 l (mm)锚板尺寸a(mm)b(mm)a(mm)b(mm)当基础混凝土的强度等级为 C(mm)t(mm)C15 C20 C15 C20 C15 C2085 90 95 100 49.4855.9162.7369.95130140150160180190200210200210220230250260270280212522502375250017001800190020001275135014251500102010801140120035040045050040404545692.7782.7878.2979.3262表7-6-1Q345 钢锚栓选用表锚栓直径d (mm) 锚栓截面有效面积A0(cm)连接尺寸锚固长度及细部尺寸每个螺栓的受拉承载力设计值taN(KN)Ⅰ型Ⅱ型Ⅲ型单螺母双螺母锚固长度 l (mm)锚板尺寸a(mm)b(mm)a(mm)b(mm)当基础混凝土的强度等级为 C(mm)t(mm)C15 C20 C15 C20 C15 C2020 22 24 27 3033 36 39 42 45 2.4483.0343.5254.5945.6066.9368.1679.75811.2113.064545505055556065707575758080859095100105110606570758085909510010590951001051101201251301351406006607208109009901080117050055060067575062590010001260135010501125755810630675140140202044.154.663.582.7100.9124.8147.0175.6201.8235.1263表7-6-2 Q345 钢锚栓选用表锚栓直径d (mm) 锚栓截面有效面积A0(cm)连接尺寸锚固长度及细部尺寸每个螺栓的受拉承载力设计值taN(KN)Ⅰ型Ⅱ型Ⅲ型单螺母双螺母锚固长度 l (mm)锚板尺寸a(mm)b(mm)a(mm)b(mm)当基础混凝土的强度等级为 C(mm)t(mm)C15 C20 C15 C20 C15 C2048 52 56 6064 68 72 76 80 14.7317.5820.3023.6226.7630.5534.6038.8943.448085909510010511011512012012513013514515015516016511012013014015016017018019015016017018019520521522523514401560168018001920204021602280240012001300140015001600170018001900200086593510101080115012251300137014407207808409009601020108011401200200200200240240280280320350202020252530303040265.1316.4365.4425.2481.7549.9622.8700.0781.9264表7-6-3 Q345 钢锚栓选用表锚栓直径d (mm) 锚栓截面有效面积A0(cm)连接尺寸锚固长度及细部尺寸每个螺栓的受拉承载力设计值taN(KN)Ⅰ型Ⅱ型Ⅲ型单螺母双螺母锚固长度 l (mm)锚板尺寸a(mm)b(mm)a(mm)b(mm)当基础混凝土的强度等级为 C(mm)t(mm)C15 C20 C15 C20 C15 C2085 90 95 100 49.4855.9162.7369.95130140150160180190200210200210220230250260270280255027002850300021252250237525001530162017101800127513501425150035040045050040404545890.6100611291259265。