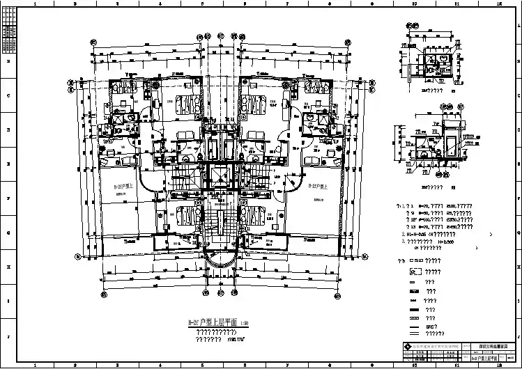
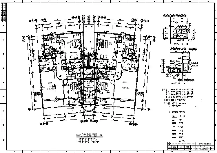
1:50户型上层平面 B-3f上下砖墙封堵M0921M0921M0721LC0613起居厅上空LC0613卧室主卧室B3W4B3W5书房LC1018窗洞1500x2300B-3f户型上M0921M0921M0721水LC0613上下砖墙封堵起居厅上空水LC0613水电主卧室书房LC1018阳台M0921M0921M0721LC0613起居厅上空LC0613电卧室主卧室书房LC1018窗洞1500x2300B-3f户型上B-3f户型上卧室M0921M0921M0721LC0613起居厅上空LC0613卧室主卧室B3W4书房LC1018B-3f户型上卧室卧室卧室卧室M0721M0921M0721B3W4B34B38B30B420.5%M0721B3W4B3W50.5%B3W40.5%0.5%B35B31B391/B302/B342/B381/B321/B361/B40B35B31B39B37B33B41B34B38B30B38B34B42B34B38B302/B303/B343/B381/B321/B361/B40B38B34B42B36B32B40B35B31B39B37B33B41BCBABCBABDBD1/B381/B341/B371/B331/B302/B342/B382/B322/B362/B401/B381/B341/B371/B33B3W5B3W50.5%0.5%0.5%窗洞2700x2300窗洞2700x2300窗洞1500x2300窗洞1500x2300窗洞2700x2300窗洞2700x2300M0921M0921M0921M0921M0921M0921M0921M0721窗洞1800x1800窗洞1800x1800窗洞1800x2000窗洞1800x2000窗洞1800x1800窗洞1800x1800窗洞1800x2000窗洞1800x2000阳台阳台下上下上上下上下阳台6006008400907800710090018001000180017001010300010001200250650830600850380470430420500470120020001001000100801820100970600100250750100570190050750950100258065055057010501501505001000100100250650345802220630557290094501415729576505701750R135052550050052518010010038631001001820100509001005039208010090904110237010018025271009007505010014005420180180397790050508001501001850339025002001950200185010010018044576501009005010018010080180100100840090710090018001000180017001010100100780030001000180050900100750100301090901001000100650750300100220010090901200120010501045010055729009450141572957650100100105010450100102510252050180480080100180500100130520洞1洞13洞1洞1洞13洞1洞1洞12'洞1洞12'6006008400907800710090018001000180017001010300010001200780030001000180010084009071009001800100018001700101010012001200102510252050300100150200100JIHGFEDC电气负责人设备负责人结构负责人建筑负责人B 年 月 日 年 月 日 年 月 日 年 月 日研设 计 人专业负责人制 图 人123456789审定人审核人主持人北京市建筑设计10归档日期工程名称工程号图名院深圳院究11 年 月 日12JIHGF12345687910EDCB1112A闵 华 瑛张 中 增肖楠 孙颐潞韩 志 刚于 清 川韩 志 刚乔自清 戴建敏罗平 陈宇张 荣 亚深圳万科温馨家园98-10于 清 川图号建施B3W51:50空调室外机 空调室内机热水器图例: 消火栓户配电箱洞注:1%%c=70,中心距地2100,洞12'%%c=100,中心距地2350,B-3f户型上层平面425卫生间大样挂壁镜手纸盒香皂盒距地600不锈钢管浴帘杆%%c20毛巾架淋浴器800x800抹圆角R=20剪力墙红砖墙板GRC1.毛巾架挂壁镜手纸盒B3W41:50卫生间大样B3W5门坎高60热水器洞12'0.5%0.5%洞13%%c=70,中心距地2450,窗洞上沿标高皆为3.H+2.300 (H )为本层建筑标高2.H1=H-0.05 (H )为本层建筑标高窗洞上沿标高皆为3.H+2.300 (H )为本层建筑标高2.H1=H-0.05 (H )为本层建筑标高H1H180100100470470150015001650165080135013504704708080100100JIHGFEDC电气负责人设备负责人结构负责人建筑负责人B 年 月 日 年 月 日 年 月 日 年 月 日研设 计 人专业负责人制 图 人123456789审定人审核人主持人北京市建筑设计10归档日期工程名称工程号图名院深圳院究11 年 月 日12JIHGF12345687910EDCB1112A闵 华 瑛张 中 增肖楠 孙颐潞韩 志 刚于清川韩 志 刚乔自清 戴建敏罗平 陈宇张 荣 亚深圳万科温馨家园98-10于 清 川图号建施杜林R1200R1150R1200轴处B30仅改为红砖砌筑轴处B42仅改为红砖砌筑1850109911001046105015015063010012009159359259259001250250x5=1250100洞1200200洞1洞9洞91%1%洞9%%c=50,中心距地25,10010010080175.25°4.75°4.75°4.75°4.75°4.75°1%8004309705204501020门坎高60901010702090908080702070208090100100100100100292029204000100100392010080801002920901010801003920100100802920901010801003920100100801%78007700770080770080761041104110340010009090909010033208077004110770033209010080411077003320901008080803440.0034403600120036003600780077007700761015003000100016508047015003000100016504708080909090350035004110340090100332090808033203000100016501500470807700904110100803320300010001650150047080770090411010080101090101090180090017001800100010090101070209010010070207020100100100808041004000400029208010039208080392090101010080292010080392090101010080292010080180200200(洞口具体尺寸定位详右侧)粘土空心砖墙粘土空心砖墙10109018009001001800170010001010902707250710010010010015010015096309450180820180457100100205020501001050100162018018070001002350100700054201801400180100780010010078001001007800457205054201415725076501001001001001001501808201001001620180100235018014004572050542014157250765010010010010010015018082010010016201801002350180140010010015010018018010018010080803600803600804.75°4.75°预埋雨水套管外加百页。预留风机洞口。用于吸顶排气扇用于正压送风口。用于抽油烟机用于消火栓用于户配电箱用于热水器用于空调机用于热水器用于空调机用于空调机详B8,9,10#楼电梯大样4.75°4.75°4.75°R1350R135010080轴处B42仅改为红外偏轴线100砖080轴处B30仅改为红外偏轴线100砖砌筑100801008019.31 M2 8.03 M2 3.09 M20.5% 7.07 M2 3.60 M2 2.83 M2 6.11 M2 8.17 M211.52 M2 4.33M212.10 M214.99 M2单元层建筑面积:210.69M2单元层建筑面积:189.77M2