(完整版)吊顶构造设计(带例图)
- 格式:doc
- 大小:662.51 KB
- 文档页数:4
平屋顶构造(附图片)卷材防水屋面构造卷材防水屋面是利用防水卷材与粘结剂结合,形成连续致密的构造层来防水的有沥青类卷材防水屋面、高聚物改性沥青类卷材防水屋面、高分子类卷材防水屋面。
水层具有一定的延伸性和适应变形的能力,又被称作柔性防水屋面。
卷材防水屋面较能适应温度、振动、不均匀沉陷等因素的变化作用,整体性好,为复杂,技术要求较高。
卷材防水屋面适用防水等级为I—Ⅳ级的屋面防水。
1、卷材(1)沥青类防水卷材沥青防水卷材是用原纸、纤维织物、纤维毡等胎体材料浸涂沥青,表面撤布段状、粒状或片状材料后制成的可卷曲片状材料,传统上用得最多的是纸胎石油沥青油毡。
纸胎油毡是将纸胎在热沥青中渗透浸泡两次后制成,其标号按纸胎每m2的质量而定,用于屋面防水工程的标号不宜低于350号。
(2)高聚物改性沥青类防水接材高聚物改性沥青类防水卷材是以高分子聚合物改性沥青为涂盖层,纤维织物或纤维毡为胎体.粒状、片状或薄膜材料为覆面材料制成的可卷曲片状防水材料,如改性沥青油毡,再生胶改性沥青聚酯油毡,铝箔塑胶聚酯油毡,丁苯橡胶改性沥青油毡等。
(3)合成高分子防水卷材凡以各种合成橡胶、合成树脂或二者的混合物为主要原料,加入适量化学助剂和填充料加工制成的弹性或弹塑性卷材,均称为高分子防水卷材。
高分子防水卷材具有重量轻,适用温度范围宽(-20~80℃),耐候性好,抗拉强度高(2~18.2MPa),延伸率大(可>45%)等优点。
2、卷材防水屋面构造(1) 构造组成卷材防水屋面具有多层次构造的特点,其构造组成分为基本层次和辅助层次两类。
①基本构造层次卷材防水屋面的基本构造层次按其作用分别为:结构层、找平层、结合层、防水层、保护层。
结构层多为刚度好,变形小的各类钢筋混凝土屋面板。
找平层卷材防水层要求铺贴在坚固而平整的基层上,以防止卷材凹陷或断裂,因而在松软材料及预制屋面板上铺设卷材以前,都须先做找平层。
找平层一般采用1︰3水泥砂浆或1︰8沥青砂浆.整体混凝土结构可以做较薄的找平层(15~20mm),表面平整度较差的装配式结构宜做较厚的找平层(20~30mm)。
吊顶施工详细图解我们通常在装修中常常提到吊顶,可是究竟对什么是吊顶,许多业主只有一个很模糊的概念。
对于吊顶知识和为什么要进行吊顶方面都存在许多的疑问。
要搞清这些就需要先对吊顶有一个从始至终的认识。
让我们先来看看什么是吊顶吧:吊顶:吊顶是对室内顶部的美化,房屋的顶部装修,就叫吊顶。
局部吊顶是在顶部的局部位置进行吊顶装修。
参照装修吊顶的作用,看看各位业主是否需要进行吊顶呢?装修吊顶的作用如下:一、防止水气浸润和油烟散乱,好做清洁。
如卫生间和厨房的吊顶。
二、造型以变化空间,实现艺术创作。
如客厅餐厅卧室。
三、隐藏灯光,使灯具的反射光来表现柔和自然。
模仿了自然光。
四、隐藏管线。
五、在屋顶不成水平时,外观倾斜时,通过吊顶来调整达到水平状。
吊顶所需要的材料:1、龙骨材料;2、饰面板材料龙骨材料介绍:解释:龙骨是吊顶时与顶子墙体相固定的,用于撑起外面的石棉板,起到支撑和固定的作用。
龙骨材料:轻钢龙骨、木龙骨和铝合金龙骨。
轻钢龙骨和铝合金龙骨的优点是不容易变形。
木龙骨的优点是容易做各种等造型,缺点是易变形开裂。
注意:吊顶所使用龙骨的品种、规格和颜色应符合设计要求。
应检查材料的产品合格证、性能检测报告、出厂日期及使用说明书、进场验收记录和复验报告。
应优先选用绿色环保材料和通过ISO 14001环保体系认证的产品吊顶轻钢龙骨。
防骗提示:在吊顶开始前一定要在吊顶材质方面仔细把关,一般现在都会采用轻钢龙骨和铝合金龙骨吊顶,因为其材质比较其他品种如木龙骨更加结实、耐用。
木龙骨只使用于少量特殊造型无法用轻钢龙骨时,才使用木质龙骨。
有的装修公司施工中大范围木龙骨是为了偷工减料,轻钢龙骨的价格远高于木龙骨的。
饰面板材料介绍:石膏板、金属板、聚苯乙烯泡沫塑料板和铝塑板等。
解释:饰面板:饰面板就是吊顶安装龙骨后,最后罩住龙骨的板子。
吊顶材料主要有矿棉板、石膏板、木板、PVC塑料扣板、玻璃、金属等几种。
1、PVC塑料扣板①特点吊顶它以PVC为原料,经加工成为企口式型材,具有重量轻、安装简便、防水防潮、防蛀虫的特点,它表面的花色图案变化也非常多,并且耐污染、好清洗、有隔音、隔热的良好性能,特别是新工艺中加入了阻燃材料,使其能离火即灭,使用更为安全。
夹板天花吊顶(木质吊顶)为现时装修常用。
夹板(也叫胶合板),是将原木经蒸煮软化后,沿年轮切成大张薄片,通过干燥、整理、涂胶、组坯、热压、锯边而成。
具有材质轻、强度高、良好的弹性和韧性、耐冲击和振动。
易加工和涂饰,绝缘等优点。
做天花一般用5厘夹板。
3厘的太薄容易起拱,9厘的太厚。
其受欢迎的原因在于其能轻易地创造出各种各样的造型天花,包括弯曲的,圆的,方的更不在话下。
但有个缺点:怕白蚁。
补救方法是喷洒防白蚁药水。
夹板天花用漆时用了一些时间可能会掉了,方法是在装修时一定要先刷清漆(光油),干了之后才做另的工序。
另一种夹板的缺点是接口处会裂开,方法是在装修时用原子灰来补接口处。
夹板吊顶已逐渐不用,因为木质夹板。
受室内温度、湿度影响,容易变形、扭曲、起翘、开裂,而石膏板稳定性要超过夹板。
所需的材料:木料、主龙骨、次龙骨、吊筋、圆钉、φ6或φ8吊筋螺杆、射钉、膨胀螺栓、胶粘剂、木材防腐剂、木材防火涂料和8号镀锌铅丝。
所需的工具:拉铆枪、电动自攻钻、快装钳、无齿锯(或电动剪)、板锯、手电钻及山花钻头、安全多用刀、滑梳、胶料铲、腻子刀、铁抹子等。
吊顶又名平顶、天棚、顶棚等。
用木材作龙骨,用胶合板、纤维板、吸管板、刨花板等板材作罩面材料的吊顶谓之木骨架罩面板顶棚。
一、构造做法及材料1.构造作法(1)木屋架(或钢木屋架)顶棚主要由吊筋、龙骨、次龙骨(主搁栅、次搁栅)、罩面板组成,见图1。
(2)钢筋混凝土槽形板、空心板下顶棚主要由主龙骨、次龙骨、吊筋(φ8钢筋)、罩面板组成见图2。
图2 槽形板下吊顶示意图(3)吊顶面层接缝。
吊顶采用胶合板、纤维板时接缝隙处理见图3。
图3 层面接缝处理示意图a凹槽b“八字”形凹槽c盖缝(4)木龙骨圆弧形吊顶或球冠形吊顶。
木龙骨圆弧形吊顶或球冠形吊顶是由多层木夹板作龙骨,先按设计图放样,用曲线锯锯出若干弧形木龙骨做成单体木骨架。
如图4所未,然后组装成所需形状。
图4 木龙骨圆弧形、球冠形吊顶示意图a圆弧形吊顶示意b球冠形吊顶示意木龙骨做成并经样板校验后,可钉罩面板。
吊顶构造设计一、设计条件1、某会议室顶棚平面如附图所示,柱子断面尺寸为600×600,墙体厚度 200,钢筋混凝土框架结构。
2、会议室内设吊顶,吊顶上均匀布置八组铝合金一体化带罩日光灯(可以改变灯具布局),西边吊顶设置了反光灯槽,北边窗顶设置了窗帘盒。
3、吊顶的龙骨为金属龙骨,面板材料及规格自定,龙骨、面板及配件可参考教材、课件或图集。
反光灯槽从墙边伸出300mm宽,高度比吊顶表面低不小于250mm。
窗帘盒为隐藏式,宽 200~ 300mm,高 180mm。
灯具为嵌入式,规格 2×28W,尺寸 1200× 300×60(间距自定)。
二、设计绘制内容2701、吊顶平面图 1 个,比例 1:60 或 1:5075用不同线型画出面板、龙骨及吊点的平面布置图(各构件的线型可参考下图,也可自定,线型应在图中加以说明);标注面板名称、龙骨名称及间距尺寸、吊点间距尺寸、反光灯槽宽20 70606070 20度尺寸、窗帘盒宽度尺寸、灯具间距尺寸;画出索引号(索引号为直径10 细线圆);标注图300名及比例。
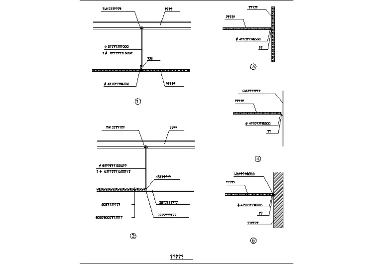
参考线型主龙骨(承载龙骨、附加龙骨)次龙骨(覆面龙骨)横撑龙骨(间距龙骨)吊点2、吊顶周边剖切节点详图 2 个(灯槽处 1 个、窗帘盒处 1 个),比例 1:5 或 1:10画出各详图中剖到及可见的构件(剖到的断面应画材料图例),以及各构件之间的连接、吊挂关系;标注各构件的名称;标注各部位的尺寸、标高等;标注详图号及比例(详图号为直径 14 粗线圆,其编号应与平面图的索引号对应)。
3、灯具处横剖面节点 1 个, 比例 1:5 或 1:10画出灯具与周围剖到及可见的构件,以及灯具与龙骨的连接构造、灯具及周围龙骨的连接吊挂构造(灯具及周围构件关系应与平面图保持一致);标注构件名称及尺寸;标注详图号及比例(详图编号应与平面图索引号对应)。
三、图纸要求A3 图幅白绘图纸,张数不限,墨线绘制。
吊顶构造设计
一、设计条件
1、某会议室顶棚平面如附图所示,柱子断面尺寸为600×600,墙体厚度200,钢筋混凝土框架结构。
2、会议室内设吊顶,吊顶上均匀布置八组铝合金一体化带罩日光灯(可以改变灯具布局),西边吊顶设置了反光灯槽,北边窗顶设置了窗帘盒。
3、吊顶的龙骨为金属龙骨,面板材料及规格自定,龙骨、面板及配件可参考教材、课件或图集。
反光灯槽从墙边伸出300mm 宽,高度比吊顶表面低不小于250mm 。
窗帘盒为隐藏式,宽200~300mm ,高180mm 。
灯具为嵌入式,规格2×28W ,尺寸1200×300×60(间距自定)。
二、设计绘制内容
1、吊顶平面图1个,比例1:60或1:50
用不同线型画出面板、龙骨及吊点的平面布置图(各构件的线型可参考下图,也可自定,线型应在图中加以说明);标注面板名称、龙骨名称及间距尺寸、吊点间距尺寸、反光灯槽宽
度尺寸、窗帘盒宽度尺寸、灯具间距尺寸;画出索引号(索引号为直径10细线圆);标注图名及比例。
2030070
6070602057
参考线型
主龙骨(承载龙骨、附加龙骨)吊点
次龙骨(覆面龙骨)横撑龙骨(间距龙骨)
270
2、吊顶周边剖切节点详图2个(灯槽处1个、窗帘盒处1个),比例1:5或1:10 画出各详图中剖到及可见的构件(剖到的断面应画材料图例),以及各构件之间的连接、吊挂关系;标注各构件的名称;标注各部位的尺寸、标高等;标注详图号及比例(详图号为直径14粗线圆,其编号应与平面图的索引号对应)。
3、灯具处横剖面节点1个,比例1:5或1:10
画出灯具与周围剖到及可见的构件,以及灯具与龙骨的连接构造、灯具及周围龙骨的连接吊挂构造(灯具及周围构件关系应与平面图保持一致);标注构件名称及尺寸;标注详图号及比例(详图编号应与平面图索引号对应)。
三、图纸要求
A3图幅白绘图纸,张数不限,墨线绘制。
制图应符合施工图标准,标题栏格式参考下图。
四、参考资料:教材14页至27页;《室内设计资料集》;《装饰构造图集》等。
附1:会议室顶棚平面
附2:标题栏格式:
附3:灯具断面形状及尺寸可参考下图:
灯具示意:
20300
7060706020
57
参考线型
270
附4、参考例图:。