装饰工程预算试卷及答案
- 格式:doc
- 大小:100.50 KB
- 文档页数:5
建筑装饰预算期末考试题型(单选15*2分、多选5*4分、简答题5*6分、计算题2*10分)(一)、单选与多选1、以下关于投资估算的说法正确的是投资估算是控制设计总概算的重要依据2、下列天棚工程属于分部工程3、建设工程项目不包括以下施工图预算内容4、清单计价模式下编制装饰装修工程预算的方法是综合单价法5、以下属于扩建项目的是学校增建教学用房、医院增建门诊部或病床用房6、概算定额是确定完成合格的单位扩大分项工程和扩大结构构件所需消耗的人工、材料和机械台班的数量标准7、关于施工定额的说法正确的是以同一性质的施工过程或工序为测定对象8、干挂1m2花岗岩内墙面的时间定额是0.0824工日,产量定额是12.13m2/工日9、2个工人工作4h为1工日10、以下关于劳动消耗定额的说法正确的是劳动消耗定额中每个工日工作时间为8h、劳动消耗定额的表现形式是时间定额和产量定额、时间定额和产量定额互成倒数、时间定额以“工日”为单位、劳动消耗定额反应的是装饰装修工人劳动生产率的社会平均先进水平11、下列不是材料单价组成的是新材料检验试验费12、基价是由人工费、材料费、机械费组成的13、建筑业全年每月平均工作天数为20.83天14、B5-17表示定额编号、“B”表示装饰工程、“B5”表示装饰工程第五部15、定额套用的方式有直接套用、换算、补充16、下列关于柱装饰饰面工程量正确的是柱子挂贴大理石项目中的柱墩属于零星项目,按米计算、柱抹灰按结构断面周长乘以高计算、柱饰面面积按外围饰面尺寸乘以高度计算17、以下属于镶贴块料的“零星项目”是窗台线、雨棚周围、压顶、扶手18、某工程室内净面积为50m2,柱垛面积为0.48m2,管道面积为0.1m2,则吊顶天棚龙骨工程量为50m219、天棚装饰面层工程量按主墙间实钉(胶)面积以平方米计算、不扣除间壁墙、检查口、附墙烟囱、垛和管道所占面积、应扣除0.3m2以上的孔洞、独立柱、灯槽及与天棚相连的窗帘盒所占面积20、关于楼梯底面的装饰工程量说法正确的是楼梯底面的装饰工程量包括楼梯段底面装饰和平台底面装饰两部分、板式楼梯底面的装饰工程量按水平投影面积乘1.15系数计算、梁式楼梯底面按展开面积计算21、住房公积金是规费22、夜间施工费属于措施费23、以下属于企业管理费的是固定资产使用费、印花税、职工教育经费、财务费24、下列费用中,属于建筑安装工程规费项目内容的是工程排污费25、下列费用中不属于企业管理费的是生产工人劳动保护费、临时设施费、脚手架费26、分部分项工程量清单的项目名称应按附录的项目名称结合拟建工程的实际确定27、招标控制价应在招标时公布,不应上调或下浮28、下列关于暂列金额的说法正确的是用于施工合同鉴定时尚未确定的材料的采购费、施工中可能发生的工程变更产生的费用、发生的索赔、现场签证确认等的费用29、下列说法正确的是承包人应在合同约定时间内编制完成竣工结算书30、下列竣工结算的依据有投标文件、双方确认的索赔款、现场签证事项及价款31、按设计图示尺寸以质量计算清单工程量的是金属面油漆32、计图示尺寸以油漆部分展开面积计算清单工程量的是衣柜油漆、梁柱饰面油漆、零星木装饰油漆33、不属于铝合金门的五金是风撑34、下列属于天棚吊顶工程分项项目特征描述的是吊顶形式、油漆的品种、刷漆的遍数、材料种类、规格35、清单编码可以设置为020*********的是柱面装饰、梁面装饰36、某单层工业厂房外墙勒脚以上外围水平面积为7200m2,厂房高为7.8m,内设有两层办公室,每层高均大于2.2m,其外围水平面积为350m2,厂房外设有顶盖办公室楼梯两层,每个自然层水平投影面积为7.5m2,则该厂房的总建筑面积为7557.5m237、某建筑外有一顶无外围结构的檐廊,挑出墙外1.5m,檐廊长24m,则檐廊的建筑面积为18.0m238、以下应计算全部建筑面积的是层高2.3m的地下商场39、;六层砖混住宅梯,一层楼梯水平投影面积为11.3,则一个单元内楼梯间的建筑面积为67.8m2(二)、简答题1、什么是建筑装饰装修工程预算?答:建筑装饰装修工程预算是指根据招标文件,建筑装饰装修工程设计图纸,装饰装修工程定额,有关取费标准,当时当地的人、材、机市场单价或工程量清单,现行《建设工程工程量清单计价规范》,施工组织设计等各种资料,确定装饰工程所需费用的造价问价。
建筑装饰工程概预算教程(04495) 12.041 按定额反映的生产要素消耗内容可以把工程定额划分为几种?劳动消耗定额、材料消耗定额、机械台班使用定额2 按定额的用途,可以把工程定额分为几种?1施工定额——施工企业成本控制 2预算定额——确定工程合同价时用 3概预算定额指标——设计方案优选 4估算值表——投资决策3 按主编单位和管理权限,可将工程定额分为几种?1全国统一劳动定额2地区补充劳动定额3企业补充劳动定4 工程定额有哪些特点?1、法令性经济法规、强制执行2、科学性仅反映社会生产力发展客观规律其制定和管理必须科学化 3、群众性来自广大生产者并衡量其生产效率 4、先进性大多数生产者通过努力能达到或超过定额水平 5、相对稳定性定额是一定阶段社会生产力发展水平的反应只能并且必须在一定时期内是稳定的。
6、时效性定额只能反映一定时期社会生产力发展水平7、统一性国家对经济发展具有宏观调控功能。
5 什么是建设项目?指有一个设计任务书,能按经过优化的设计图纸进行施工,建特点设和营运中有按〈公司法》构建的独立法人负责制组织机构,经济上实行独立核算,并且是由一个,一个以上的单项工程组成的新固定资产投资项目统称。
特点:独立法人,经济上独立核算,一般是由编制工程估算,设计总概算,修正概算。
6 建设项目按管理需要可分为几类?(1)基本建设项目(2)更新改造项目(3)商品房屋建设项目(4)其它固定资产投资项目7 什么是生产性建设项目?生产性建设项目是指直接用于物质生产或直接为物质生产服务的项目,主要包括工业项目(含矿业)、建筑业和地区资源勘探事业项目、农林水利项目、运输邮电项目、商业和物资供应项目等。
8 建设项目按照他组成的内容不同,可划分为几类项目?建设项目一般划分为单项工程、单位工程、分部工程及分项工程9 什么是单位工程?是可以独立、设计也可以独立施工,但不能独立形成生产能力与发挥效益的民工程项目。
如土建工程,设备安装工程。
建设行业专业人员岗位模拟试卷装饰预算员专业知识(二)一、单选(共50题,共50分)1. 根据《招标投标法》规定,投标保证金( )。
A 、一般不超过投标报价的1%,最多不超过10万元人民币;B 、一般不超过投标报价的2%,最多不超过80万元人民币;C 、一般不超过投标报价的2%,最多不超过10万元人民币;D 、一般不超过投标报价的1%,最多不超过80万元人民币;2.某居民楼附近噪音严重,采用多功能门、窗玻璃,选( )玻璃能达到这些要求。
A 、普通平板玻璃;B 、中空玻璃;C 、吸热玻璃;D 、夹层玻璃;3.一个工人工作4h ,其工日数为( )工日。
A 、4;B 、8;C 、0.5;D 、1;4./ 是表示( )的标高符号。
A 、首层室内地面 ;B 、标准层;C 、首层室外地坪 ;D 、总图室外地坪;5.装配式混凝土住宅结构安装施工,采用临时支撑体系时,对预制柱、墙板的上部斜撑,其支撑点间距离底部的距离不宜小于高度的( )。
A 、1/3;B 、1/2;C 、2/3;D 、3/4;6.装饰装修安全生产管理必须坚持“安全第一、预防为主”的方针,建立健全安全生产( )和群防群控制。
A 、管理制度;B 、保障制度;C 、奖惩制度;D 、责任制度;7.工程量清单中分部分项工程量应按( )。
A 、企业定额规定的工程量计算规则计算;B 、设计图纸标注的尺寸计算;C 、通常公认的计算规则计算;D 、国家规范规定的工程量计算规则计算;8.FIDIC 合同条件规定的“合同有效期”是指从合同签字之日起,至( )止。
A 、颁发工程移交证书日;B 、工程移交证书中注明的竣工日;C 、颁发解除缺陷责任证书日;D 、承包商提交的结算清单生效日;9.根据《建设工程施工现场消防安全技术规范》,施工现场内应设置临时消防车道,临时消防车道与在建工程、临时用房、可燃材料堆场及其加工场的距离,不宜小于( )m ,且不宜大于40m 。
《装饰工程概预算》期末复习题一、单项选择题1.某车间的楼地面工程是【 C 】A.单项工程B.单位工程C.分部工程D.分项工程2.关于工程量清单计价与定额计价,下列说法正确的是【 B 】A.工程量清单计价采用工料单价法,定额计价采用综合单价计价B.两者合同价款调整方式不同C.工程量清单由招标人提供,其准确性和完整性由投标人负责D.定额计价仅适用于非招投标的建设工程3.不属于预算定额组成内容的是【 C 】。
A.定额基价B.工料机消耗量C.市场价格D.项目名称4. 2012年《河北省建筑、安装、市政、装饰装修工程费用标准》中,建筑安装工程费由【 C 】、间接费、利润和税金组成。
A.直接成本B.直接工程费C.直接费D.管理费5. 有永久性顶盖的室外楼梯,其建筑面积应按建筑物自然层的水平投影面积的【 B 】计算。
A.全面积B.1/2面积C.1/4面积D.以上均不对6. 以下选项中对工程量清单概念表述不正确的是【 B 】。
A.工程量清单是包括工程数量的明细清单B.工程量清单也包括工程数量相应的单价C.工程量清单由招标人提供D.工程量清单是招标文件的组成部分7.施工企业注册地在市区,到我省偏远山区农村施工,其建筑安装工程费中税金应按【C 】计取。
A.3.48%B.3.41%C.3.28%D.3.17%8. 2012年《河北省建筑、安装、市政、装饰装修工程费用标准》中,下列取费项目中属于可竞争费用的是【 C 】。
A.安全生产、文明施工费B.规费C.管理费D.税金9. 当不能直接套用定额分项,需要进行换算时,换算后的定额基价是【 A 】。
A.原定额基价+换入的费用-换出的费用B.原定额基价+换入的单价-换出的单价C.原定额基价+换入的消耗量-换出的消耗量D.综合单价+换入的单价-换出的单价10. 根据《建设工程工程量清单计价规范》(GB50500-2008)有关规定,下列关于分部分项工程量清单说法正确的是【 C 】。
建设行业专业人员岗位模拟试卷装饰预算员专业知识(二)一、单选(共50题,共50分)1. 根据《招标投标法》规定,投标保证金()。
A、一般不超过投标报价的1%,最多不超过10万元人民币;B、一般不超过投标报价的2%,最多不超过80万元人民币;C、一般不超过投标报价的2%,最多不超过10万元人民币;D、一般不超过投标报价的1%,最多不超过80万元人民币;2. 某居民楼附近噪音严重,采用多功能门、窗玻璃,选()玻璃能达到这些要求。
A、普通平板玻璃;B、中空玻璃;C、吸热玻璃;D、夹层玻璃;3. 一个工人工作4h,其工日数为()工日。
A、4;B、8;C、0.5;D、1;4. / 是表示( )的标高符号。
A、首层室内地面;B、标准层;C、首层室外地坪;D、总图室外地坪;5. 装配式混凝土住宅结构安装施工,采用临时支撑体系时,对预制柱、墙板的上部斜撑,其支撑点间距离底部的距离不宜小于高度的()。
A、1/3;B、1/2;C、2/3;D、3/4;6. 装饰装修安全生产管理必须坚持“安全第一、预防为主”的方针,建立健全安全生产()和群防群控制。
A、管理制度;B、保障制度;C、奖惩制度;D、责任制度;7. 工程量清单中分部分项工程量应按()。
A、企业定额规定的工程量计算规则计算;B、设计图纸标注的尺寸计算;C、通常公认的计算规则计算;D、国家规范规定的工程量计算规则计算;8. FIDIC合同条件规定的“合同有效期”是指从合同签字之日起,至()止。
A、颁发工程移交证书日;B、工程移交证书中注明的竣工日;C、颁发解除缺陷责任证书日;D、承包商提交的结算清单生效日;9. 根据《建设工程施工现场消防安全技术规范》,施工现场内应设置临时消防车道,临时消防车道与在建工程、临时用房、可燃材料堆场及其加工场的距离,不宜小于()m,且不宜大于40m。
A、2;B、3;C、4;D、5;10. 税金是建筑安装工程费的重要组成部分,下列选项中不属于税金组成的是()。
形考三工后,与建设单位进行的最终工程价款结算。
选择一项:对选择一项:对3【单选题】木踢脚线聚氨酯漆3遍的计量单位是()m:选择一项:10)m:选择一项:100在工程设计变更确定后10天内,设计变更涉及工程价款调整的,由承包人向发包人提出,经发包人审核同意后调整合同价款。
选择一项:错施工企业根据本企业的施工技术和管理水平,以及有关工程造价计价资料而制定的,并供本企业使用的人工、材料和机械台班消耗量标准。
答案1在合理的施工组织设计、正常施工条件下,生产一定计量单位的分项工程合格产品所需人工、材料、机械台班的社会平均消耗量标准。
答案2选择一项或多项:a. 装饰工程竣工结算说明b. 装饰工程竣工结算汇总表c. 装饰工程各单位工程结算表d. 装饰工程竣工资料8【判断题】在开工前编制装饰工程施工图预算只能反映装饰工程的预期造价。
选择一项:对题目【单选题】楼面水泥砂浆贴大理石的计量单位是(10)m2:选择一项:9【单选题】装饰工程预付款按合同约定拨付,原则上不低于合同金额的()%。
正确答案是:102部分内容组成。
正确的答案是“对”。
)m2:正确答案是:10()%。
正确答案是:3014【匹配题】概念匹配题:答案1为配合协调招标人进行的工程分包和材料采购所需的费用。
答案2完成招标人提出的,不能以实物量计量的灵性工作项目所需的费用。
工程变更是指全部合同文件的任何部分的改变,不论是形式的,质量的或数量的变化。
正确的答案是“对”。
16【多选题】装饰工程工程量清单计价的内容具体包括:选择一项或多项:分部分项工程费, 措施项目费, 其他项目费, 规费选择一项或多项:a. 繁荣装饰市场b. 合理确定装饰工程实际造价c. 维护承发包双方合法权益d. 加强装饰资金管理18【多选题】装饰工程规费一般包括以下内容:选择一项或多项:a. 建筑管理费b. 安全生产监督费c. 劳动保险费d. 工程定额测定费19【单选题】预付款在施工前一次拨付,施工过程中不作抵扣,当预付款加已付工程款达到合同价款的()%时,停付工程款。
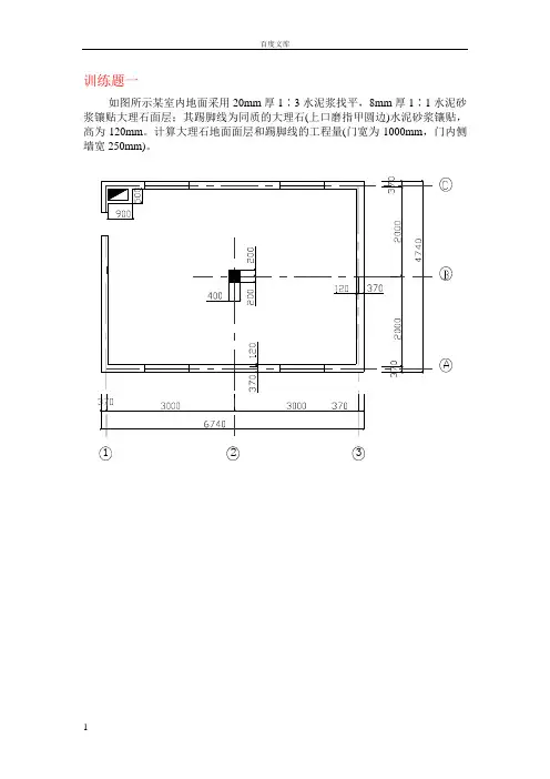
如图所示某室内地面采用20mm厚1∶3水泥浆找平,8mm厚1∶1水泥砂浆镶贴大理石面层;其踢脚线为同质的大理石(上口磨指甲圆边)水泥砂浆镶贴,高为120mm。
计算大理石地面面层和踢脚线的工程量(门宽为1000mm,门内侧墙宽250mm)。
123某建筑物门前台阶如下图所示,试分别计算面层采用花岗岩(水泥砂浆粘贴)或水磨石面层的工程量(每步台阶高150mm)花池如下图所示某楼梯,扶手为硬木扶手(靠墙没有扶手),栏板为铁艺栏板,面贴贴大理石面层,楼梯踢脚板为同质大理石,试求与楼梯相关的工程量。
某工程有弧形内墙面,拟采用素水泥浆粘贴600mm×400mm文化石(密缝),其中顶端弧边长,室内净高为,计算该弧形墙面工程量。
若文化石损耗率为10%,求它的用量。
训练题六如下图所示为某墙面设计图,试求出该墙面工程的工程量。
如下图所示,天棚为不上人型轻钢龙骨石膏板吊顶。
求轻钢龙骨和石膏板的工程量。
某房间净尺寸为×,采用木龙骨硅酸钙板吊平顶(吊在混凝土板下),木吊筋为40mm×50mm,高度为350mm,大龙骨断面55mm×40mm,中距600 mm(沿方向布置),小龙骨断面30mm ×30mm中距400mm(双向布置),硅酸钙板规格为×厚8mm,四周采用50mm×50mm红松阴角线条,板缝用自粘胶带粘贴,清油封底、满批泥子2遍,并刷白色乳胶漆3遍,求该顶棚各项目工程量和板材、线材的用量(木材损耗率和硅酸钙板损耗率均为5%)。
某工程采用70系列银白色带上亮双扇铝合金推拉窗(框外围尺寸为1 450mm×2 050mm,上亮高650mm),型材厚,现场制作及安装,试确定其工程量。
某室内装饰工程有15樘实木门框单扇无纱切片板门(洞口尺寸为900mm×2 100mm),门扇为细木工板上双面贴花式切片板,门框设计断面尺寸为52mm×95mm,每樘门装球形锁1把,100mm厚型铜铰链l副,铜门吸1只,求该工程项目工程量。
(课程代码392367)一、 单项选择题〔本大题共60小题〕1、依据设计阶段不同,起的作用和使用的编制依据不同,工程概预算有“三算”,就 是设计概算、施工图预算、OA 、竣工决算B 、施工预算C 、招投标标价确实定D 、施工预算参考答案:A2、一座教学楼的土建工程属于 _________ oA.单位工程B.单项工程C.分部工程D.分项工程参考答案:A3、竣工结算是依据 ________ 编制的。
A.概算定额B.预算定额C.施工定额D.概算指标参考答案:B4、某钢铁厂的焦化车间属于 ________ 。
A.单位工程B.单项工程C.分部工程D.建设工程参考答案:B5、施工图预算是依据 ________ 编制的。
A.概算定额 B,预算定额 C.施工定额 参考答案:B6、施工预算是依据 ________ 编制的。
A.概算定额B.预算定额C.施工定额 参考答案:C7、业主向国家提出,要求建设某一建设工程的建议文件是指 ___________A.可行性争辩报告B.技术说明书C.设计任务书D.工程建议书参考答案:D8、修正概算造价是在 阶段测算和确定的。
A.决策B.初步设计C.技术设计D.施工图设计参考答案:C9、建设工程的实际造价是。
A.承包合同价B.竣工决算价C.竣工结算价D.总承包价 室内装修工程概预算 复习题D.概算指标D.企业内部消定额参考答案:B 10、工程实际造价是在阶段确定的。
A.招投标B.合同签定C.施工图设计D.竣工验收参考答案:D 11、概算造价是指在初步设计阶段,预先测算和确定的工程造价,它主要受___________________________________ 把握。
A.投资估算 B.合同价 C.修正概算造价 D.预算造价参考答案:A 12、建筑安装工程费用由构成。
Λ.直接费、间接费、打算利润和税金B.宜接费、间接费、法定利润和税金 C.直接工程费、间接费、打算利润和税金 D.直接工程费、间接费、法定利润和税金参考答案:C 13、以下费用中不属于直接工程费用是o参考答案:B A.材料费 B.企业治理费 C.其他直接费 D.现场经费14、以下不属于材料预算价格的费用是o参考答案:CA.材料原价B.材料包装费C.材料检验试验费D.材料选购保管费15、以下关于时间定额和产量定额的说法中,正确的选项是0A.施工定额可以用时间定额来表示B.时间定额和产量定额是互为倒数的C.时间定额和产量定额都是材料定额的表现形式D.劳动定额的主要表现形式是产量定额参考答案:B 16、预算定额的编制根底是oA.投资估算指标B.概算指标C.概算定额D.施工定额参考答案:D 17、概算定额的主要编制根底是oA.机械台班定额B.扩大构造定额C.预算定额D.施工定额参考答案:C 18、以下各种定额中,不属于工程造价计价定额的是oA.费用定额B.预算定额C.概算定额D.概算指标参考答案:A19、工程建设定额是由多种类、多层次定额结合而成的有机整体,其构造简单、层次鲜亮、目标明确。
一、单项选择题(共25题,每题1分,共25分)1.工程计价的最小单元为()。
A.单位工程B.分部工程C.分项工程D.工序答:C2.下面不属于施工图预算价的是()。
A.标底价B.投标价C.中标价D.估算价答:D3.在工程建设的程序中,经历了()的多次性计价。
A.估算→概算→修正概算→预算→决算→结算B.概算→估算→修正概算→预算→结算→决算C.概算→修正概算→估算→预算→结算→决算D.估算→概算→修正概算→预算→结算→决算答:D4.广义的工程造价是从()角度定义的。
A.建筑安装工程承包商B.建筑安装工程发包商C.设备供应商D.建设项目投资者答:D5.工程之间在用途、结构、造型等方面都存在很大的不同,这反映为造价的()特点。
A.多次性计价B.重复性计价C.单件性计价D.组合性计价答:C6.下列时间消耗不可以计价的是()。
A.不可避免的中断时间B.不可避免的无负荷工作时间C.多余工作时间D.非施工本身原因的机械停工时间答:C7.下列时间消耗可以索赔的是()。
A.不可避免的中断时间B.不可避免的无负荷工作时间C.多余工作时间D.非施工本身原因的机械停工时间答:D8.装饰工程中的人工是通过研究其消耗的()来决定其价格。
A.具体劳动B.抽象劳动C.消耗量D.工作过程答:B9.在使用过程中逐渐消耗掉其价值的材料称为()。
A.净用材料B.实体性材料C.损耗材料D.周转性材料答:D10.一次性消耗掉的材料称为()。
A.净用材料B.实体性材料C.损耗材料D.周转性材料答:B11.在劳动定额测定中,最基本的定额测定方法是()。
A.技术测定法B.比较类推法C.统计分析法D.经验估计法答:A12.材料入库后到使用期间的损耗包含在()内。
A.材料原价B.运杂费C.保管费D.采购费答:C13.某施工机械设计使用6年,耐用总台班为1500台班,使用期内大修理周期为3次,一次大修理费为6000元,则台班大修理费为()元。
A.16B.12C.8D.4 答:C14.大型施工机械在施工现场内单位工程或栋号之间的转移,按其场外运输费用的()计算。
《装饰工程计量与计价》复习资料一、简答题(40分,每题10分)1.清单项目设置的“五统一”2.建筑装饰工程费用构成3.什么是工程量清单计价?4.简述装饰预算楼地面工程整体面层的清单计算规则二、计算题(60分)。
1.某地砖规格为200mm×200mm,灰缝1mm,其损耗率为1.5%,则100m2地面地砖消耗量为多少块?(10分)2.某建筑物内一楼梯如图所示,同走廊连接,采用直线双跑形式,墙厚240mm,梯井300mm宽,楼梯满铺芝麻白大理石,试用清单计算规则计算其工程量。
(10分)3.如下图所示某建筑一层平面图,室内为水泥砂浆地面,踢脚线为水泥砂浆踢脚线,厚度为20mm,高度为150mm,用清单计算规则计算室内水泥砂浆踢脚线的工程量. (10分)4.某学院办公楼入口台阶如图所示,花岗石贴面,根据清单计算规则计算其台阶工程量。
(10分)5.某客厅天棚如图所示,为不上人型轻钢龙骨石膏板吊顶,试计算天棚的清单工程量、龙骨、石膏板基层工程量。
(20分)《装饰工程计量与计价》复习资料答案一、简答题(40分,每题10分)1.清单项目设置的“五统一”答:统一项目编码、统一项目名称、统一项目特征、统一计量单位、统一工程量计算规则。
(10分)2.建筑装饰工程费用构成答:建筑装饰工程费用由工程直接费、间接费、利润和税金组成。
直接费:直接费包括人工费、材料费、施工机械使用费。
间接费:包括规费和企业管理费(10分)3.什么是工程量清单计价?答:工程量清单计价是在建设工程招投标中,招标人或委托具有资质的中介机构编制工程量清单,并作为招标文件中的一部分提供给投标人,由投标人依据工程量清单进行自主报价,经评审,合理低价中标的一种计价方式。
(10分)4.简述装饰预算楼地面工程整体面层的清单计算规则。
答:按设计图示尺寸以面积计算。
扣除凸出地面构筑物、设备基础、室内铁道、地沟等所占面积。
不扣除间壁墙和0.3m2以内的柱、垛、附墙烟囱及孔洞所占面积。
概预算模拟试卷一、填空题(每空2分,共60分)1。
在施工图预算中,工料分析内容包括分部工程工料分析表、单位工程工料分析汇总表和有关文字说明三部分组成。
2。
设计概算是由设计单位编制完成的。
一般设计概算比施工概算大5%。
3。
两算对比是指施工预算和施工图预算;施工图预算>施工预算。
4。
工程量就是以物理计量单位或自然计量单位所表示的各个具体分项工程和构配件的数量。
5.单位估价表也称地区单位估价表或建筑装饰装修工程预算定额.6.装饰装修工程预算可以分为:工程估算、设计概算、施工图预算、施工预算、竣工决算。
7.预算定额是平均水平,概算定额是平均水平、施工定额是中等偏上水平。
8.我国一级资质建筑装饰装修施工企业为280家,甲级资质建筑装饰装修工程设计单位为147家.9.甲地的施工企业到乙地做工程,那么他们在做预算时应该用乙地的预算定额。
10.施工预算与施工图预算相比,施工预算是公司或施工单位内部运作使用的文件。
11.下列哪个建筑物类型属于高级装饰装修等级(D )A、高教建筑B、广播通信建筑C、医疗建筑D、体育馆12.概算定额与概算指标相比,概算指标的针对性和综合性的特征更为突出。
13。
设计概算的种类有:设计项目总概算、单项工程综合概算、单位工程概算、工程建设其他费用概算.14。
在墙面工程量内墙面抹灰面积的计算中,应该计算的面积是踢脚线。
15.在计算技术层的建筑面积时,最少大于2.2m为有效面积。
16。
H>2。
2的深基础地下架空层在计算工程量面积时,需要乘1/2。
二、计算题(每题5分,共20分)1。
A。
某房间地面铺贴花岗岩板,其工程量为71.6m2,其花岗岩板的市场价格为220元/m2,而定额预算价格为130元/m2,该材料在定额手册第29页第14个子项目上,换算前定额基价为27200。
65元/100m2,定额消耗量为100,求其调整后的定额编号以及其预算价值。
换算后定额基价=换算前定额基价+[换算材料定额消耗量*(换算材料市场价格—换算材料预算价格)]换算后预算价值=工程项目工程量*相应的换算后定额基价解:1。
《建筑工程与装饰工程预算》模拟题(A)一、单选题(40 分,每题 2 分)1. 编制施工预算所采用的定额是___。
A.预算定额 B.施工定额 C.概算定额 D.劳动定额2. 某办公楼的给排水工程工程,称为___。
A.建设项目 B.单项工程 C.单位工程 D.分部工程3. 某项目若将设计生产能力在原有的基础上增加一倍 (n=0.6, f=1)则投资额增加___。
A.100%B.60%C.30%D.50%4. 购买一批钢材共计 500t。
其中 300t 的购买原价为 3600 元/t,100t 的购买原价为 3700 元/t, 100t 的购买原价为 3800 元/t。
则这批钢材的综合原价为 ___。
A.3660 元/tB.3700 元/tC.3650 元/tD.3680 元/t5.某人工挖土工程,单位时间产量定额为 2.5m3/工日,其时间定额为___。
A.0.4 工日/m3B.0.5 工日/m3C.0.25 工日/m3D.2.5 工日/m36. 建筑安装企业管理人员的工资属于 ___ 。
A.人工费 B.直接费 C.企业管理费 D.规费7. 工程监理费,应包括在___ 中。
A. 间接费 B.预备费 C.工程建设其他费 D.建筑安装工程费8. 计算砖砌墙工程量时, ___ 的体积要扣除。
A.木砖 B.混凝土构造柱 C.砌体内加固钢筋 D. 嵌入墙内的梁头9. 夜间施工增加费属于___ 。
A.直接工程费 B.措施费 C.规费 D.企业管理费10. 高层建筑中的管道井,其建筑面积计算方法正确的是 ___。
A.不论多少层,仅按一层计算B.不计算面积C.不论多少层,仅按顶层和底层计算面积D.按建筑物自然层计算面积11. 建筑安装工程税是指___。
A.营业税B.城市维护建设税C.教育费附加D.ABC3 项的综合税12. 利用概算定额编制概算的方法是 ___。
A.概算指标法B.类似工程预算法C.生产能力指数法D.概算定额法13. 在工程建设的可行性研究阶段,对应的造价称为 ___。
《建筑工程与装饰工程预算1618》14秋在线作业2
单选题多选题判断题
一、单选题(共10 道试题,共40 分。
)
1. 在工程建设的可行性研究阶段,对应的造价称为:
A. 概算造价
B. .预算造价
C. 投资估算
D. 投标报价
-----------------选择:C
2. 某项目若将设计生产能力在原有的基础上增加一倍(n=0.6,f=1)则投资额增加:
A. 100%
B. 60%
C. 30%
D. 50%
-----------------选择:D
3. 高层建筑中的管道井,其建筑面积计算方法正确的是:
A. 不论多少层,仅按一层计算
B. 不计算面积
C. 不论多少层,仅按顶层和底层计算面积
D. 按建筑物自然层计算面积
-----------------选择:D
4. 建筑安装企业管理人员的工资属于:
A. 人工费
B. 直接费
C. 企业管理费
D. 规费
-----------------选择:C
5. 建筑安装工程税是指:
A. 营业税
B. 城市维护建设税
C. 教育费附加
D. ABC3项的综合税
-----------------选择:D
6. 编制施工预算所采用的定额是:
A. 预算定额
B. 施工定额
C. 概算定额
D. 劳动定额
-----------------选择:B
7. 在计算外墙砖基础的工程量时,其长度是指:。
第1页(共10页) 第2页(共10页)
密
封
线内
不
要答
题
○-○-○
○-○-○
试卷代号:
****学院高职教育 2013-20124学年度考试
《装饰工程预算》试题
2014 年 月
一、单项选择题(每小题2分,共20分)
1.根据建筑安装工程定额编制式的原则,按平均先进水平编制的是( )
A .预算定额
B .企业定额
C .概算定额
D .概算指标
2.对于施工周转材料,能计入材料定额消耗量的是( )
A .一次使用量
B .摊销量
C .净用量
D .回收量
3.10 m 3
一砖厚普通黏土砖墙中砂浆的净用量应为( )
A .2.51 m 3
B .2.38 m 3
C .2.26 m 3
D .1.59m 3
4.某砖混结构墙体砌筑工程,完成10 m 3
砌体基本用工为工日13.5工日,辅助用工2.0工日,超运
距用工1.5工日,人工幅度差系数为10%,则该砌筑工程预算定额中人工消耗量为( ) A .14.85工日/10 m 3 B .17.52工日/10 m 3 C .18.7工日/10 m 3 D .20.35工日/10 m 3
5.在编制预算定额时,对于那些常用的、主要的、价值量大的项目,分项工程划分宜细;次要的、不常用的、价值量相对较小的项目则可以放粗,这符合预算定额编制的( )
A .平均先进性原则
B .时效性原则
C .保密原则
D .简明适用的原则
6.关于预算定额,以下表述正确的是( )
A .预算定额是编制概算定额的基础
B .预算定额是以扩大的分部分项工程为对象编制的
C .预算定额是概算定额的扩大与合并
D .预算定额中人工工日消耗量的确定不考虑人工幅度差
7.一别墅庭院有石砌围墙,下为毛石基础,墙内地坪标高为—0.45m ,墙外地坪标高为—1.2m ,在计算砌石工程量时,下列说法正确的是( ) A.—1.2m以下为毛石基础,—1.2m以上为石墙
B.—0.45m以下为石基础,—0.45m以上为石墙
C.以—0.825m为界,下为石基础,上为石墙 D.—1.2m以下为石基础,—0.45m以上为石墙
8.计时观察法最主要的三种方法是( )
A .测时法、写实记录法、混合法
B .写实记录法、工作日写实法、混合法
C .测时法、写实记录法、工作日写实法
D .写实记录法、选择测时法、工作日写实法
9.确定机械台班定额消耗量时,首先应( )
A .确定正常的施工条件
B .确定机械正常生产率
C .确定机械工作时间的利用率
D .确定机械正常的生产效率
10.计算钢筋工程量时,其搭接长度的计算方法是( )P87 A .设计未规定的不计 B.设计已规定的不计 C .设计未规定的应计 D.不论设计是否对定均应计算
二、多项选择题(每题2分,共10分)
第3页(共10页) 第4页(共10页)
密
封线
内
不要答题
1.计算墙面抹灰工程量规定正确的是( )
A .不包括墙面勾缝
B .按设计图示尺寸以面积计算
C .扣除墙裙抹灰
D .门窗洞口侧面勾缝郑家
E .扣除踢脚线抹灰 2.影响建筑材料预算价格变动的因素包括( )P29 A .定额材料消耗量 B .材料生产成本 C .运输距离 D .市场供求 E .材料供应体制
3.工程建设定额按编制程序和用途可分为( )
A .施工定额
B .预算定额
C .概算指标
D .劳动消耗定额
E .材料消耗定额 4.施工定额是建筑安装企业管理的基础,也是工程建设定额体系中的基础,其作用为( ) A .施工定额是施工企业计划管理的依据 B .施工定额是组织和指挥施工生产的有效工具 C .施工定额是编制施工预算的基础
D .施工定额是编制投标报价的基础和竣工结算的依据
E .施工定额有利于推广先进技术
5.工程量清单中的工程量计算规则,按专业划分有( )
A .建筑工程,安装工程
B .卫生工程
C .装饰装修工程
D .园林绿化工程
E .市政工程
三、名词解释(每小题5分,共25分)
1.施工定额:
2.单项工程:
3.措施项目:
4.工程量:
5.周转性材料:
四、简答题(每小题5分,共15分)
1.影响工程概预算费用的因素有那些?
2.工程量清单编制的程序和步骤是怎样的?
3.高低联跨建筑物该如何计算建筑面积?
第5页(共10页) 第6页(共10页)
密封
线
内
不
要
答
题
五、计算题(每题15分,共15分)
1.某工程需用白水泥,选定甲、乙两个供货点,甲地出厂价670元/吨,可供需要的70%,乙地出厂价690元/吨,可供需要量的30%。
汽车运输,甲地离工地80千米,乙地离工地60千米,汽车运输
费用为每吨千米2.5元。
求白水泥的预算价格。
六、论述题(每题15分,共15分)
1.请简要论述工程量清单的意义。
第7页(共10页) 第8页(共10页)
密
封
线
内不要
答
题
试卷代号:
*****高职教育 2013-2014学年度考试
《装饰工程预算》试题答案及评分标准
2014年3月
一、单项选择题(每小题2分,共20分)
1.(B) 2.(B ) 3.(C ) 4.(C ) 5.(D ) 6.(A ) 7.(D ) 8.(C ) 9.(A ) 10.(A )
二、多项选择题(每题2分,共10分)
1.(BC ) 2.(BCDE ) 3.(ABC ) 4.(ABCE ) 5.(ACDE )
三、名词解释(每小题5分,共25分)
1.施工定额:是施工企业直接用于建筑工程投标取价、施工管理与经济核算的一种定额。
2.单项工程:是指能够独立设计、独立施工,建成后能够独立发挥生产能力或工程效益的工程目。
3.措施项目: 为完成工程项目施工,发生于该工程施工前和施工过程中技术、生活、安全等方面的非工程实体项目。
4.工程量:把设计图纸的内容按定额的分项工程或按结构构件项目划分,并按计算规则进行计算,以物理计量单位或自然计量单位表示的实体数量。
5.周转性材料:指在施工过程中能多次使用、反复周转的工具性材料。
四、简答题(每小题5分,共15分) 1.影响工程概预算费用的因素有那些?
答:主要影响因素有:(1)政策法规性因素。
(2)地区性与市场性因素。
(3)设计因素。
(4)施工因素。
(5)编制人员素质因素
2.工程量清单编制的程序和步骤是怎样的?
答:(1)编制清单准备工作。
(2)编制工程量分项清单。
①编制分部、分项工程量清单。
②编制措施项目清单。
③编制其他措施项目工程量清单。
(3)审核与修正分项工程量清单。
(4)按规范格式整理工程量清单。
3.高低联跨建筑物该如何计算建筑面积?
答:高跨为边跨时,按勒脚以上两端山墙外表面间的水平长度,乘以勒脚以上外墙表面至高跨中拄外边线的水平宽度计算。
高跨为中跨时,按勒脚以上两端山墙外表面间的水平长度,乘以中柱外边线的水平宽度计算。
五、计算题(每题15分,共15分)
1. 解:甲的单价:670+80×2.5=870(元/吨)
乙的单价:690+60×2.5=840(元/吨)
加权平均得:870×0.70+840×0.30=609+252=861(元/吨) 六、论述题(每题15分,共15分)
1.请简要论述工程量清单的意义。
论述要点:
(1)实行工程量清单计价是工程造价全面深化改革的需要
(2)工程量清单计价能有效地规范建设市场,适应社会主义市场经济发展。
(3)实行工程量清单计价是建设企业健康发展的需要。
(4)实行工程量清单计价有利于我国工程造价管理政府职能的转变。
(5)实行工程量清单计价有利于我国工程总分包建设体制的完善。
(6)实行工程量清单计价是融入全球大市场的需要。
题
答
要
不
内
线
封
密
第9页(共10页)第10页(共10页)。