【彩钢板屋面节点】钢结构-山墙女儿墙泛水详图
- 格式:pdf
- 大小:189.53 KB
- 文档页数:1
女儿墙泛水,用一句话总结就是一种防水措施,泛水是建筑上的一种防水工艺,通俗的说其实就是在墙与屋面,也就是在所有的需要防水处理的平立面相交处进行的防水处理,说白了就是用防水材料把墙角包住。
和散水不同其构造要点及做法为:(1)将屋面的卷材继续铺至垂直墙面上,形成卷材防水,泛水高度不小于250mm。
(2)在屋面与垂直女儿墙面的交接缝处,砂浆找平层应抹成圆弧形或45度斜面,上刷卷材胶粘剂,使卷材胶粘密实,避免卷材架空或折断,并加铺一层卷材。
(3)做好泛水上口的卷材收头固定,防止卷材在垂直墙面上下滑。
一般做法是:在垂直墙中凿出通长的凹槽,将卷材收头压入凹槽内,用防水压条钉压后再用密封材料嵌填封严,外抹水泥砂浆保护。
凹槽上部的墙体亦应做防水处理。
通俗解释:泛水是指屋面女儿墙、挑檐或高低屋面墙体的防水做法,其主要作用就是保证女儿墙、挑檐、高低屋面墙不受雨水冲刷,以及保护屋面其余地方的防水层(不至于进水)。
***************************************************************** *******************山墙就是一座房子侧面最外面的那两堵墙。
举个例子的话。
一间房子的话,在一堵墙上要开个门噻,开门的这堵墙和它对面的那个墙不叫山墙,而是和他相邻的那两堵墙才叫山墙,山墙还必须是最后面的墙。
也就是说山墙是区分房内房外的侧面墙。
泛水是建筑上的一种防水工艺,通俗的说其实就是在墙与屋面,也就是在所有的需要防水处理的平立面相交处进行的防水处理,说白了就是用防水材料把墙角包住。
天棚包括天花板:房屋内部在屋顶或楼板下面加的一层东西,或用木板做成,或在木条、苇箔上抹灰,或在苇箔、秫秸上糊纸,有保温、隔音、美观等作用1、附加防水层不管主防水层是什么,都需要按规范增设,某些单层防水屋面不做附加层也要对一些节点进行密封处理;2、附加防水层与主防水层不一定要完全紧密连接,可以是独立增强防水处理。
钢结构屋面彩板安装施工方案1 工程概况该钣金厂房钢结构工程,厂房采用混凝主体,轻型钢结构屋面。
内置不锈钢天沟,屋面采用双层彩钢板加保温棉(从下到上依次为Q900型彩钢板+50厚24K离心玻璃棉加铝箔+V760型自扣式彩钢屋面板),该工程屋面设计坡度为5%,单坡长24m。
高度为9。
5m—11.65m,总面积约为5267m2。
2 施工范围产业园Ⅱ区钣金厂房轻型钢结构屋面彩板、保温棉、西层板、天沟制作、运输、安装、验收。
3 施工准备3。
2材料进场检验3。
2.1、材料进场厂商应附原厂(素材提供厂商)出厂材质检验证明并依规定办法取样送检。
3.2。
2、检验成型板规格尺寸、厚度、数量、长度及宽度。
3.2.3、检验各式收边料规格尺寸、厚度、数量及形式是否符合料单。
3。
2。
4、检验零配件自攻螺丝及垫片、拉钉、止水胶泥、落水管、固定座、等.3.2。
5、彩色钢板外观不得有刮伤磨损、扭曲、污染色差、翘角等现象.3.2.6、吊升过程中彩色钢板垂直弯带若有松脱应放下重新调整后再吊升。
3。
2.7、彩色钢板缓慢下降待吊车手控制定位后依序放下。
3.2。
7、材料吊置屋架后,所有板肋须朝上,板面应朝同一方向(便于安装公母扣合)并应以尼龙绳或麻绳固定于钢构之主构件上,屋面板隔跨堆放,不得置于檩条中央.3。
2。
8 屋面板吊运的材料堆放(屋面板采用现场地面成型,暂定在1轴)3。
2。
9、材料进场至指定地点前须分批分类吊放,不立即使用时应整齐堆置并以帆布或塑胶布覆盖。
3。
2.10、地面堆放材料时为保持干燥须铺设枕木(枕木高于6cm以上),材料不得接触地面,枕木间距不大于3M,且需安排倾斜放置,以利排水。
3。
2。
11、材料吊运屋架前应以钢带捆扎束紧。
3。
2。
12、材料吊上屋架施工要点:吊放钢板前须先在女儿墙位置设置挡板防止钢板滑落(如下图所示),并使用麻绳捆绑固定。
4 施工方法4。
1施工部署4.1.1 流水施工段划分第一单元:G~M/1~20轴线第二单元:A~G/1~20轴线4。
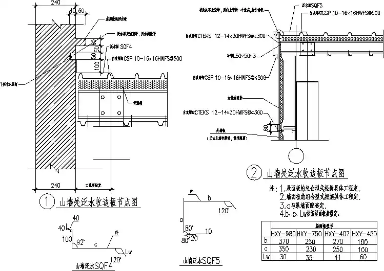
山墙、女儿墙部位漏水- 建筑技术现象在山墙、女儿墙部位漏水治理(1) 清除卷材张口脱落处的旧胶结料,烤干基层,重新钉上防腐木条,将旧卷材贴紧钉牢,再覆盖一层新卷材,收口处用防水油膏封口。
(2) 凿除开裂和剥落的压顶砂浆,重抹1:2~2.5水泥砂浆,并做好滴水线。
最好换上预制钢筋混凝土压顶板,(在地震地区不宜使用)。
(3) 将转角处开裂的卷材割开,旧卷材烘烤后分层剥离,清除旧胶结料,按图11.4的作法处理。
施工准备(1) 屋面工程施工时前,施工单位应通过图纸会审,掌握施工图中的细部构造及有关技术要求,并应编制防水施工方案或技术措施。
(2) 施工负责人应向班组进行技术交底。
内容包括:施工部位、施工顺序、施工工艺、构造层次、节点设防方法、增强部位及做法,工程质量标准,保证质量的技术措施,成品保护措施和安全注意事项。
(3) 防水层所用的材料应有材料质量证明文件,并经指定的质量检测部门认证,确保其质量符合技术要求。
进场材料应按规定取样复试,提出试验报告,严禁在工程中使用不合格产品。
(4) 准备好熬制或拌合胶粘剂、运输防水材料、涂刷胶粘剂、嵌填密封材料、铺贴卷材、清扫基层等施工操作中各种必需的工具、用具、机械以及安全设施、灭火器材。
(5) 为使檐口立面清洁美观,必要时可在檐口立面上先刷一层滑石粉、石灰浆等隔离材料,以防止污染檐口立面的饰面层(待防水层施工完毕后,再将其清理干净)。
(6) 检查找平层的施工质量是否符合前述要求。
当出现局部凹凸不平、起砂起皮、裂缝以及预埋不稳等缺陷时,可进行修补。
操作工艺(1) 基层处理剂的涂刷喷、涂基层处理剂前要首先检查找平层的质量和干燥程度并加以清扫,符合要求后才可进行,在大面积喷、涂前,应用毛刷对屋面节点、周边、拐角等部位先行处理。
1) 冷底子油的涂刷冷底子油作为基层处理剂主要用于热粘贴铺设沥青卷材(油毡)。
涂刷冷底子油的品种要视卷材而定,不可错用。
涂刷要薄而均匀,不得有空白、麻点、气泡,也可用机械喷涂。
钢结构彩板屋面漏水质量通病的原因及防治措施(一)钢结构彩板屋面漏水质量通病的原因及防治措施1、屋面板的连接钢结构体系建筑屋面板,在屋面上有长向连接和侧向连接2种。
长向连接主要是搭接,即上坡板压下坡板,搭接处设置专用防水密封胶加固定专用压条,而侧向连接的方式,目前主要有以下3种:1)搭接连接把压型钢板搭接边重叠,并用各种螺栓、铆钉或自攻螺钉等连成整体。
该连接又分为带密封胶槽与不带密封胶槽2种,屋面螺钉外露,波峰均比较低。
2)暗扣式连接固定支座利用平头自攻螺钉固定在屋面檩条上,再将压型屋面板与固定支座扣合。
屋面无螺钉外露,但由于与檩条直接用螺钉连接而无法控制热胀冷缩的变形。
3)咬合暗扣式连接,屋面系统通过滑动支架来固定屋面板,既有利于屋面防水和保持屋面的整体性,又能有效地控制因热胀冷缩引起的变形,该连接形式分180°和360°两种。
2、漏水原因分析彩钢板维护系统本身具有一定的强度和刚度,材料一般不会漏水,维护系统漏水原因主要在节点处理不当,材料的品质,系统设计的成熟性、完备性,结构构造和安装技术等也都直接影响到围护系统的防水效果。
彩钢板由于受环境、温度的变化而收缩、变形,接口和搭接连接部位产生位移时,密封胶条或硅酮胶与彩板表面粘结处不能同步位移而产生脱离,造成彩钢板屋面漏水。
不同的采光板在相同的时间内其变形和老化的程度也不尽相同。
屋面漏水按原因归结起来主要如下。
(1)设计因素1、《刚架轻型房屋钢结构技术规程》(CECS 102:98)中规定:刚架轻型房屋屋面坡度宜取1/8~1/20,屋面坡度过小,屋面雨水不能及时排入天沟,屋面积水而造成屋面渗水现象。
2、缺少节点设计,选用节点做法不当,屋脊处女儿墙高度不够,伸出屋面的管道、排气道位置不妥或高度不够,以至影响防水层施工困难。
3、板型选择不当,对于暗扣式和咬合式的板型,只要现场安装得当,一般不会有太大的问题。
如果选用直接用自攻螺钉连接的板型,即使现场处理得很好,防水胶做的也很到位,但由于面板具有热胀冷缩的性能,同样也会出现漏水现象。
彩钢屋面工程施工方法实例一、工程概况1.总体简介天津某产业园Ⅱ区工程位于天津市内该工程设计有电气厂房一栋、钣金厂房一栋、减振厂房一栋和综合厂房一栋。
厂房部分为轻钢屋面,办公部分为混凝土屋面。
3)2.钣金厂房概况天津某产业园Ⅱ区钣金厂房钢结构工程,厂房采用混凝主体,轻型钢结构屋面。
内置不锈钢天沟,屋面采用双层彩钢板加保温棉(从下到上依次为Q900型彩钢板+50厚24K离心玻璃棉加铝箔+YX51-380-760型自扣式彩钢屋面板),该工程屋面设计坡度为5%,单坡长24m。
高度为8m-19m,总面积约为8908m2。
二、编制依据本工程屋面钢结构施工方案编制依据:1、天津某产业园Ⅱ区工程施工图纸2、工程技术洽商单、设计变更单、图纸会审记录3、《钢结构工程施工质量验收规范》GB50205-2001、4、相关的行业标准和公司内的企业标准、质量体系文件及其管理制度。
三、施工范围天津某产业园Ⅱ区钣金厂房轻型钢结构屋面彩板、保温棉、西层板、天沟制作、运输、安装、验收。
四、施工准备1、作业人员工人进场时必须进行安全教育,并对工人进行质量和技术再教育。
施工人员要持有操作证。
施工人员进场后,项目部除按规定对项目相关人员及分包进行方案、技术交底外。
2、主要设备3、材料进场检验3.1、材料进场厂商应附原厂(素材提供厂商)出厂材质检验证明并依规定办法取样送检。
3.2、检验成型板规格尺寸、厚度、数量、长度及宽度。
3.3、检验各式收边料规格尺寸、厚度、数量及形式是否符合料单。
3.4、检验零配件自攻螺丝及垫片、拉钉、止水胶泥、落水管、固定座、等。
3.5、彩色钢板外观不得有刮伤磨损、扭曲、污染色差、翘角等现象。
3.6、吊升过程中彩色钢板垂直弯带若有松脱应放下重新调整后再吊升。
3.7、彩色钢板缓慢下降待吊车手控制定位后依序放下。
3.8、材料吊置屋架后,所有板肋须朝上,板面应朝同一方向(便于安装公母扣合)并应以尼龙绳或麻绳固定于钢构之主构件上,屋面板隔跨堆放,不得置于檩条中央。
钢结构屋面彩板防水处理一、压型彩钢板屋面防水的研究钢结构屋顶大多采用压型彩钢板,所以我主要以压型彩钢板为研究对象。
钢结构屋面、墙面等围护结构,一般采用压型彩钢板,单层压型彩钢板优点是重量轻、强度高、制作安装方便,厂房空间大、价格便宜;缺点是钢板的导热和热胀冷缩系数大,隔音效果差,使钢板受雨水侵蚀产生腐蚀生锈,导致漏水。
对要求有保温、隔热、隔音效果的建筑物,可以采用双层压型彩钢板中间填充保温材料(如玻璃棉、岩棉、聚苯泡沫等);填充材料可以在现场填充,也可以与彩钢板工厂预复合成型(称为彩钢夹芯板)。
现在压型彩钢板搭接基本有长向搭接、侧向搭接、屋脊节点、排水沟节点、和墙面搭接处等特殊天窗、排气孔、排水口、锚钉节点。
压型彩钢板本身一般不存在渗漏水的可能。
因此,彩钢压型板漏水主要原因都在搭接、节点、生锈等。
二、工程中遇到的问题民航学院南院第二教学楼B区工程,该工程位于天津市东丽区民航学院新区院内,紧邻滨海国际机场,工程性质为教学试验办公楼,总建筑面积10961m2。
该工程建筑主体五层,建筑高度22.36m。
主体为现浇钢筋砼框架结构,框架填充墙一般采用炉渣混凝土砌块,本工程外檐局部为玻璃幕墙,雨蓬处包铝塑板。
屋面为彩色金属复合保温板屋面,局部为上人屋面。
本工程屋面面积约为2500m2,钢梁为焊接H型钢梁,屋面为双层压型彩钢板中间填充玻璃棉。
主钢构件材质为Q235。
檩条采用Q235 C型薄壁型钢。
首先是搭接处,此处漏水的原因施工中的处理不好导致漏水解决的关键是没有按照规范施工。
所以为了防止以上问题的出现在施工前我们做了完善的施工方案,安装每一块钢板时,应将其边搭接准确地放在前一块钢板上,并与前一块钢板夹紧,直到钢板的两端都固定为止。
一种简单而有效的方法是用一对虎钳分别夹住所搭接的钢板。
钢板的安装就位并与前一块钢板搭接的步骤。
钢板沿纵向就位,其端部尤其是上端部需用钳子夹住搭边部分,这样可保证钢板一端的就位,并使一端的搭接也处于正确的位置,从而固定住钢板,在固定的过程中,夹板钳始终应在纵向夹住钢板。