某学校图书馆建筑施工图纸(全集)
- 格式:dwg
- 大小:2.83 MB
- 文档页数:1
某学校图书馆建筑完整设计施工方案图纸标题:某学校图书馆建筑完整设计施工方案图纸一、概述本文旨在介绍某学校图书馆的建筑完整设计施工方案图纸,包括规划布局、建筑设计、结构设计、机电设计、装饰设计等方面。
该图书馆将成为学校文化交流的重要场所,为师生提供安静、舒适的学习环境。
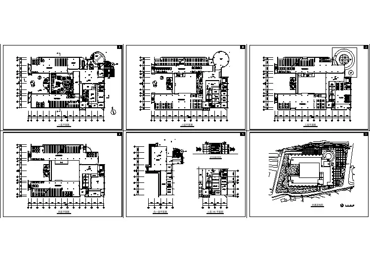
二、规划布局在规划布局方面,我们将图书馆置于学校中心区域,使其成为校园核心建筑之一。
图书馆南侧为教学区域,北侧为运动场地,东侧为校园大道,西侧为校园景观水系。
同时,我们将图书馆与校园其他重要建筑形成对景关系,提升图书馆的视觉效果。
三、建筑设计在建筑设计方面,我们采用了现代风格,以简洁明快的设计手法体现出现代化的设计理念。
建筑主体采用钢结构,外墙采用玻璃幕墙,既能保证结构安全,又能增强室内采光。
此外,我们还注重了建筑节能设计,如采用Low-E玻璃、保温材料等。
四、结构设计在结构设计方面,我们采用了地基基础设计,以保障建筑的安全性和稳定性。
地基采用桩基础,基础持力层为中风化岩层。
上部结构采用框架结构,以增强建筑物的抗震性能。
同时,我们还考虑了风载、雪荷载、地震荷载等自然因素的影响,确保建筑物的安全性。
五、机电设计在机电设计方面,我们采用了智能化设计,包括楼宇自动化控制系统、安防系统、消防系统等。
同时,我们还注重了环保设计,如采用节能型空调系统、LED照明系统等。
此外,我们还考虑了室内环境质量,如新风系统、空气净化系统等,为师生提供健康舒适的学习环境。
六、装饰设计在装饰设计方面,我们注重了室内空间的利用和美感的体现。
室内墙面采用环保材料,如硅藻泥、环保漆等,以保证室内空气质量。
同时,我们还注重了室内色彩搭配和灯光设计,以营造出温馨、舒适的学习氛围。
此外,我们还根据图书馆的特点,设计了具有文化氛围的装饰元素,如书架、阅读桌、文化墙等,使图书馆成为师生的精神家园。
七、总结综上所述,某学校图书馆建筑完整设计施工方案图纸涵盖了规划布局、建筑设计、结构设计、机电设计、装饰设计等方面。